Morton Terrace

Page 1

Morton Terrace

| LINCOLNSHIRE | DN21 2RF

IN EXCESS OF £200,000

GAINSBOROUGH
OFFERS

Step Inside

MORTON TERRACE 5 2 2

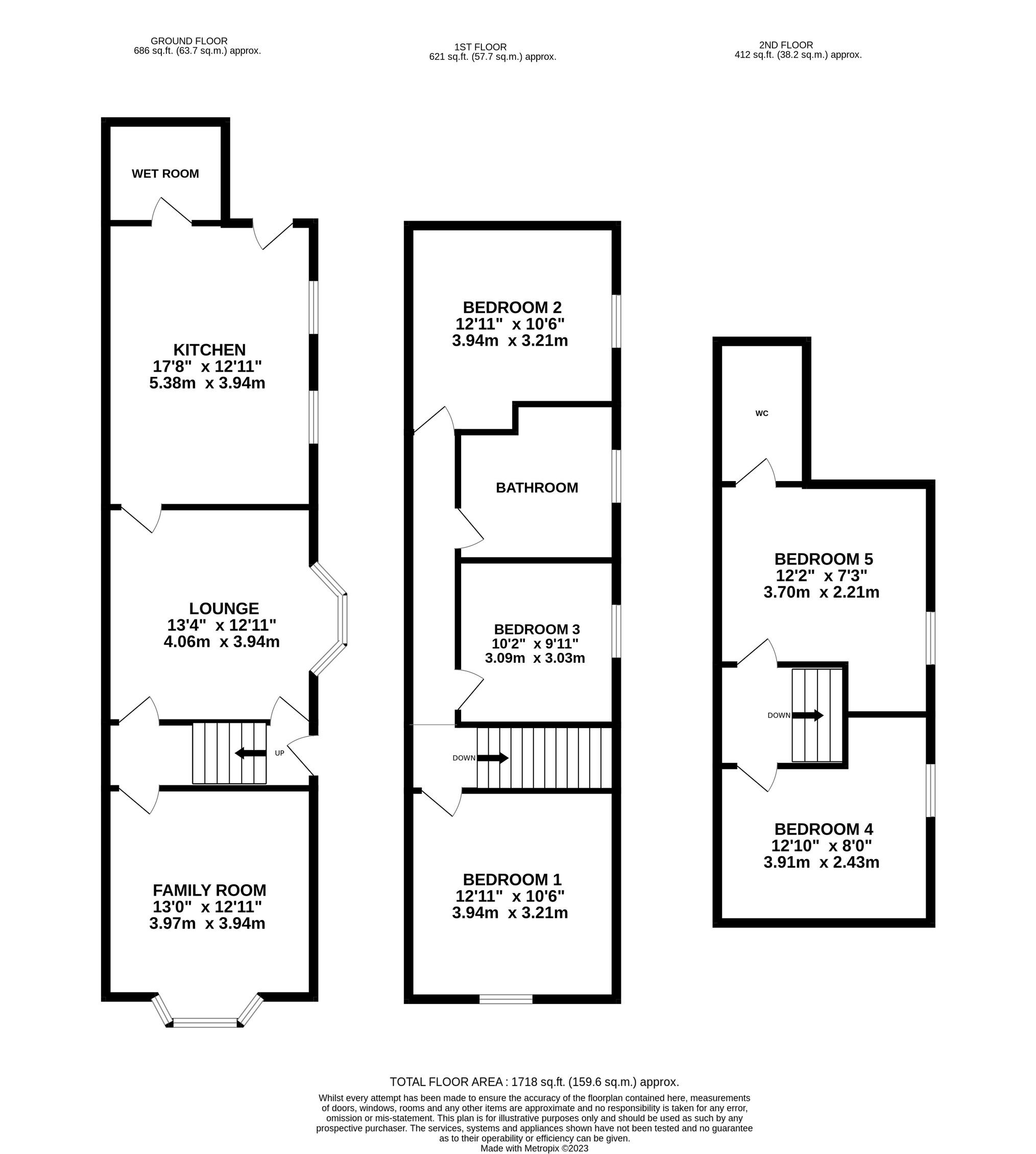
Welcome to this exceptional five double bedroom, three-storey property located on Morton Terrace in the sought-after area of Gainsborough. Situated within walking distance to the prestigious Queen Elizabeth's High School and the vibrant town centre, this property offers both convenience and a vibrant lifestyle.

This versatile accommodation has been thoughtfully designed to cater to your every need On the ground floor, you will find two spacious reception rooms, perfect for entertaining guests or enjoying quality family time The modern family kitchen is a true highlight, featuring contemporary design and ample space for culinary delights. Additionally, a convenient wet room on this level adds a touch of practicality and convenience to daily life.

Moving to the first floor, you will discover three well-appointed bedrooms and a family bathroom, providing comfortable and private spaces for relaxation. The second floor offers two additional bedrooms and a cloakroom, creating flexibility and potential for various uses.

Externally, the property boasts well-maintained gardens both at the front and rear, offering a serene outdoor retreat. A 12ft x 8ft summer house, currently used as a playroom, and an adjoining shed measuring 8ft x 6ft are included, providing additional storage or versatile spaces for your needs.

It's worth noting that the property has potential for generating rental income by splitting it into two flats, utilizing the ground and first floor. This offers an excellent investment opportunity for those looking to maximize returns.

Furthermore, the layout of the property lends itself to accommodating a home office on the top floor, providing a quiet and productive workspace. Additionally, the ground floor living arrangement is easily achievable with the specially adapted wet room, ramp access to the back door, and the possibility to use the family room as a bedroom.

In summary, this exceptional property on Morton Terrace offers not only a comfortable and spacious family home but also immense potential for various lifestyles and investment opportunities. The well-maintained gardens, included summer house, and shed add to the overall appeal. Don't miss the opportunity to explore the possibilities this property has to offer schedule a viewing today!

EPC Rating: D | Tenure: Freehold| Council Tax: B

Agents notes: All measurements are approximate and for general guidance only and whilst every attempt has been made to ensure accuracy, they must not be relied on. The fixtures, fittings and appliances referred to have not been tested and therefore no guarantee can be given that they are in working order. Internal photographs are reproduced for general information and it must not be inferred that any item shown is included with the property. For a free valuation, contact the numbers listed on the brochure

GILIIAN TURNER 01427 616161 DDM Residential 9 Church Street, Gainsborough, Lincolnshire, DN21 2JJ 01427 616161 | gainsborough@ddmresidential.co.uk followDDMResidentialon

Turn static files into dynamic content formats.

Create a flipbook
Issuu converts static files into: digital portfolios, online yearbooks, online catalogs, digital photo albums and more. Sign up and create your flipbook.