Street | Cleethorpes | North East Lincolnshire | DN35 7BJ Offers in excess of: £88,000

![]()
Street | Cleethorpes | North East Lincolnshire | DN35 7BJ Offers in excess of: £88,000

Investment Opportunity in Cleethorpes: 3 Bed House with Long-Term Tenant paying £550 a month.
Welcome to your next investment opportunity in the heart of Cleethorpes! This well-maintained 3-bedroom terraced house presents an ideal ready-made investment for landlords seeking a reliable income stream. Currently occupied by a long-term tenant paying £550.00 per month.
Property Highlights:
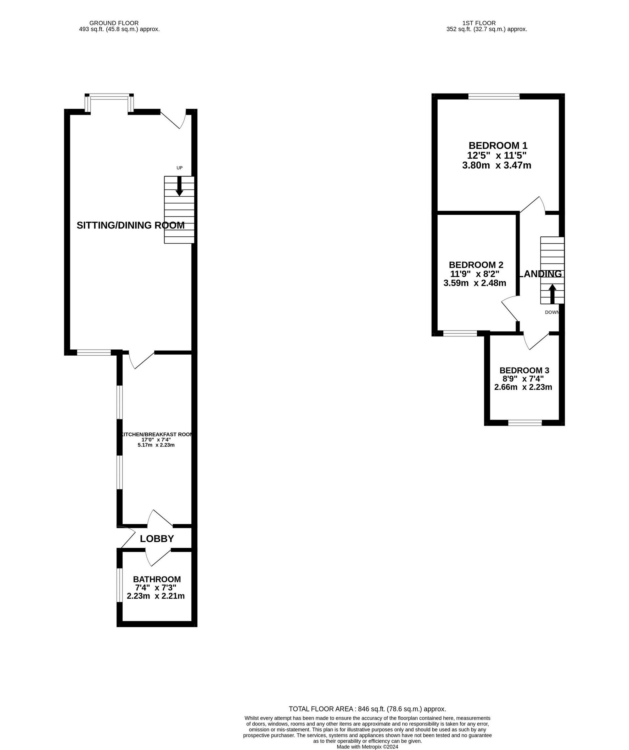
Spacious Through Lounge Dining Room: Enjoy the comfort and versatility of a through lounge dining room featuring a bay window, providing ample natural light and a welcoming ambiance for tenants.
Galley Breakfast Kitchen: The modern galley breakfast kitchen offers convenience and functionality, equipped with all the essentials to cater to tenants' needs.
Modern Bathroom: A well-appointed modern bathroom adds to the appeal of this property, providing comfort and convenience for tenants.
Three Double Bedrooms: Upstairs, discover three generously sized double bedrooms, offering plenty of space for tenants to relax and unwind.
Outdoor Space: The property boasts a small front garden and a rear garden featuring a lawn and patio, providing tenants with outdoor space to enjoy and entertain.
Location Advantages:
Convenient Access: Situated within walking distance of public transport links, tenants have easy access to commuting options, enhancing the property's appeal.
Local Amenities: Enjoy the convenience of nearby local amenities, including shops, restaurants, and recreational facilities, catering to tenants' daily needs and leisure activities.
Schools: Families will appreciate the proximity to schools catering to all ages, making this property an attractive option for tenants with children.
Investment Potential:
With a reliable long-term tenant in place and a solid yield of 6.5% at the asking price, this property presents a compelling investment opportunity for landlords looking to expand their portfolio in Cleethorpes. Benefit from immediate rental income and the potential for future capital appreciation in a sought-after location.
Don't Miss Out:













Agents notes: All measurements are approximate and for general guidance only and whilst every attempt has been made to ensure accuracy, they must not be relied on. The fixtures, fittings and appliances referred to have not been tested and therefore no guarantee can be given that they are in working order Internal photographs are reproduced for general information and it must not be inferred that any item shown is included with the property For a free valuation, contact the numbers listed on the brochure.

