

![]()


Presenting an outstanding opportunity to create your perfect home in the charming market town of Gainsborough. This traditional threebedroom semi-detached house, located on Lea Road, is offered with no onward chain, ensuring a smooth and hassle-free purchase.
Situated close to local amenities, including the popular Marshall’s Yard Shopping Complex, supermarkets, and highly-regarded schools such as Queen Elizabeth's High School, this property is perfect for families, first-time buyers, and investors. Excellent road and rail links to Lincoln, Retford, and Scunthorpe make commuting a breeze.
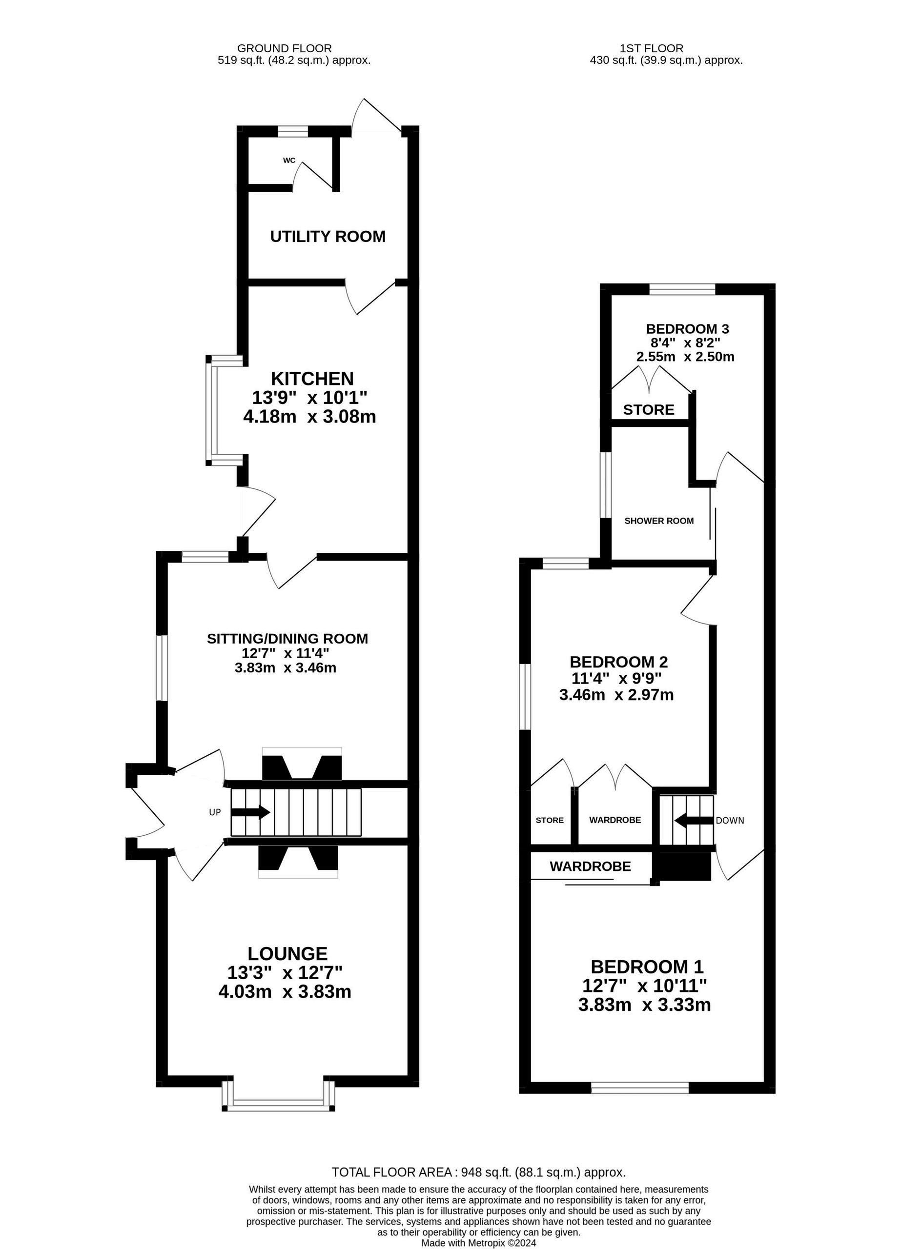
Step inside through the side entrance door into a welcoming hallway. The front lounge features a large bay window, flooding the room with natural light, and a charming feature fireplace. The second reception room, versatile as a sitting or dining room, boasts an under-stairs storage cupboard and another beautiful fireplace. This room seamlessly leads to the spacious kitchen, equipped with traditional fitted units. Completing the ground floor is a separate utility area and a convenient W.C.
Upstairs, you'll find three well-proportioned bedrooms, each offering fitted wardrobes or storage. The modern shower room is equipped with a walk-in shower, wash hand basin, and W.C., ensuring comfort and style.
Outside, the property features ample off-road parking on the driveway, accommodating multiple vehicles and leading to a detached garage. Both the front and rear gardens are laid to lawn, with the rear garden benefiting from planted borders, a timber garden shed for additional storage, and a greenhouse, perfect for gardening enthusiasts.
Don’t miss this exceptional opportunity to design your dream home in a prime location. Contact us today to book a viewing!




















Agents notes: All measurements are approximate and for general guidance only and whilst every attempt has been made to ensure accuracy, they must not be relied on. The fixtures, fittings and appliances referred to have not been tested and therefore no guarantee can be given that they are in working order Internal photographs are reproduced for general information and it must not be inferred that any item shown is included with the property For a free valuation, contact the numbers listed on the brochure.

