

![]()


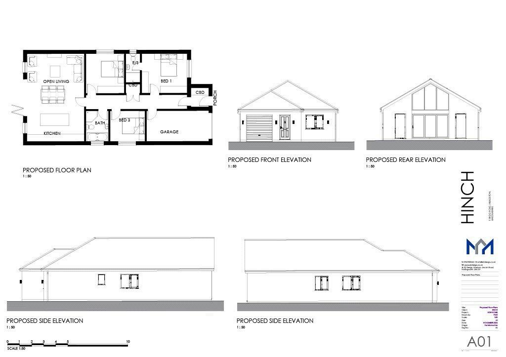
Welcome to Brigg Road in the charming village of Hibaldstow, where an enticing opportunity awaits you to create your dream home. Nestled in a serene, non-overlooked setting, this plot is perfect for building a three-bedroom detached bungalow. Strategically positioned just a short drive away from the vibrant market town of Brigg, residents will enjoy easy access to a plethora of local amenities including shops, eateries, and schools. Commuters will appreciate the excellent transport links to nearby Scunthorpe,Lincoln via the A15 and Grimsby via the M180. This prime building plot comes with full planning permission, granting you the freedom to bring your vision to life. The proposed dwelling boasts a thoughtfully designed layout featuring three double bedrooms, one with an En-suite shower room, and a separate family bathroom.
The heart of the home is the inviting open plan living/dining/kitchen area, adorned with full height windows that offer picturesque views of the private rear garden. Additionally, the property includes an integral single garage and driveway, adding convenience and functionality to your lifestyle.
Planning Application No PA/2023/1914
Don't let this opportunity slip away. Contact us today to seize this chance to create your ideal living space.










Agents notes: All measurements are approximate and for general guidance only and whilst every attempt has been made to ensure accuracy, they must not be relied on The fixtures, fittings and appliances referred to have not been tested and therefore no guarantee can be given that they are in working order. Internal photographs are reproduced for general information and it must not be inferred that any item shown is included with the property. For a free valuation, contact the numbers listed on the brochure.

