Lambert Road

Page 1

Lambert Road | Grimsby | North East Lincolnshire | DN32 0NS
Asking Price: £65,000

STEP INSIDE

Lambert Road

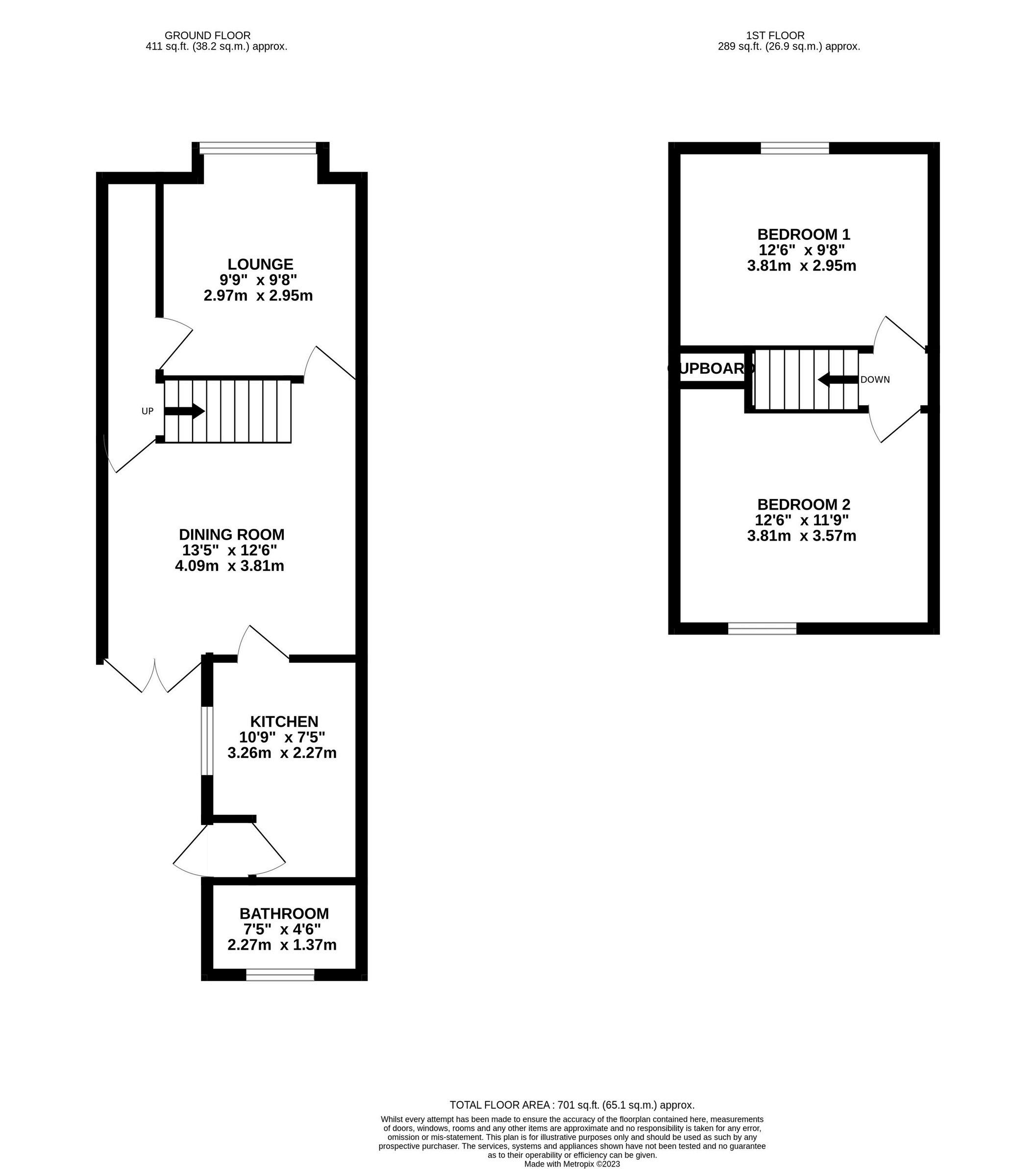
EPC: E | Tenure: Freehold | Council Tax: A 2 3 Investment Opportunity: End Terraced House with Tenants in Situ Welcome to an excellent investment opportunity! This end-terraced house is not just a property; it's a chance to secure a steady income stream with long-term tenants a ready in place. Located conveniently within easy reach of local amenities, public transport, and schools, this property is a smart addition to any investment portfolio Property Overview: Current Rental Income: £125 per week Type: End Terraced House Bedrooms: 3 (Double Bedrooms) Reception Rooms: 2 Bathrooms: 1 (Family Bathroom) Additional Rooms: Kitchen, Utility Area, Storage Room Outdoor Space: Garden with Patio Doors Current Tenancy: The property comes with long-term tenants currently paying £125 per week in rent. The existing lease provides a stable and immediate income for the investor Enjoy the peace of mind that comes with an established tenancy. Interior Features: Spacious Living: Two reception rooms provide ample space for family activities and entertaining guests. Functiona Kitchen: Well-equipped kitchen for convenient meal preparation. Utility Area: Additional space for laundry and storage, contributing to the propertys practicality Generous Bedrooms: Three double bedrooms upstairs offer comfortable living for tenants. Outdoor Living: The property boasts a private garden accessible through patio doors from the storage room. This outdoor space is perfect for relaxation gardening, or hosting gatherings. Parking: On street parking only Location: Situated within easy reach of local amenities, public transport, and schools, this property is in a prime location for attracting future tenants Whether its shopping, commuting, or education, residents will appreciate the convenience this location offers Investment Benefits: Steady Income: Enjoy immediate rental income with the current tenants in place Desirable Location: The property's proximity to amenities and schools enhances its appeal to potential tenants Dont Miss Out! Seize this opportunity to invest in a property with tenants in situ providing immediate and ongoing returns Whether you're a seasoned investor or just starting in the property market, this end-terraced house offers a promising addition to your portfolio
1

Key Facts For Buyers

Agents notes: All measurements are approximate and for general guidance only and whilst every attempt has been made to ensure accuracy, they must not be relied on The fixtures, fittings and appliances referred to have not been tested and therefore no guarantee can be given that they are in working order. Internal photographs are reproduced for general information and it must not be inferred that any item shown is included with the property. For a free valuation, contact the numbers listed on the brochure.

DOUG WEBSTER 01472 358671 followDDMResidentialon DDM Residential 25 Osborne Street, Grimsby, DN31 1EY 01472 358671 | grimsby@ddmresidential.co.uk

Turn static files into dynamic content formats.

Create a flipbook
Issuu converts static files into: digital portfolios, online yearbooks, online catalogs, digital photo albums and more. Sign up and create your flipbook.
Lambert Road by Fine & Country / DDM Residential - Issuu