

![]()


Spacious Two-Storey Terraced Home with Great Potential Offered chain free and ready for transformation, this generously proportioned property presents an exciting opportunity for buyers seeking a project with long-term rewards.
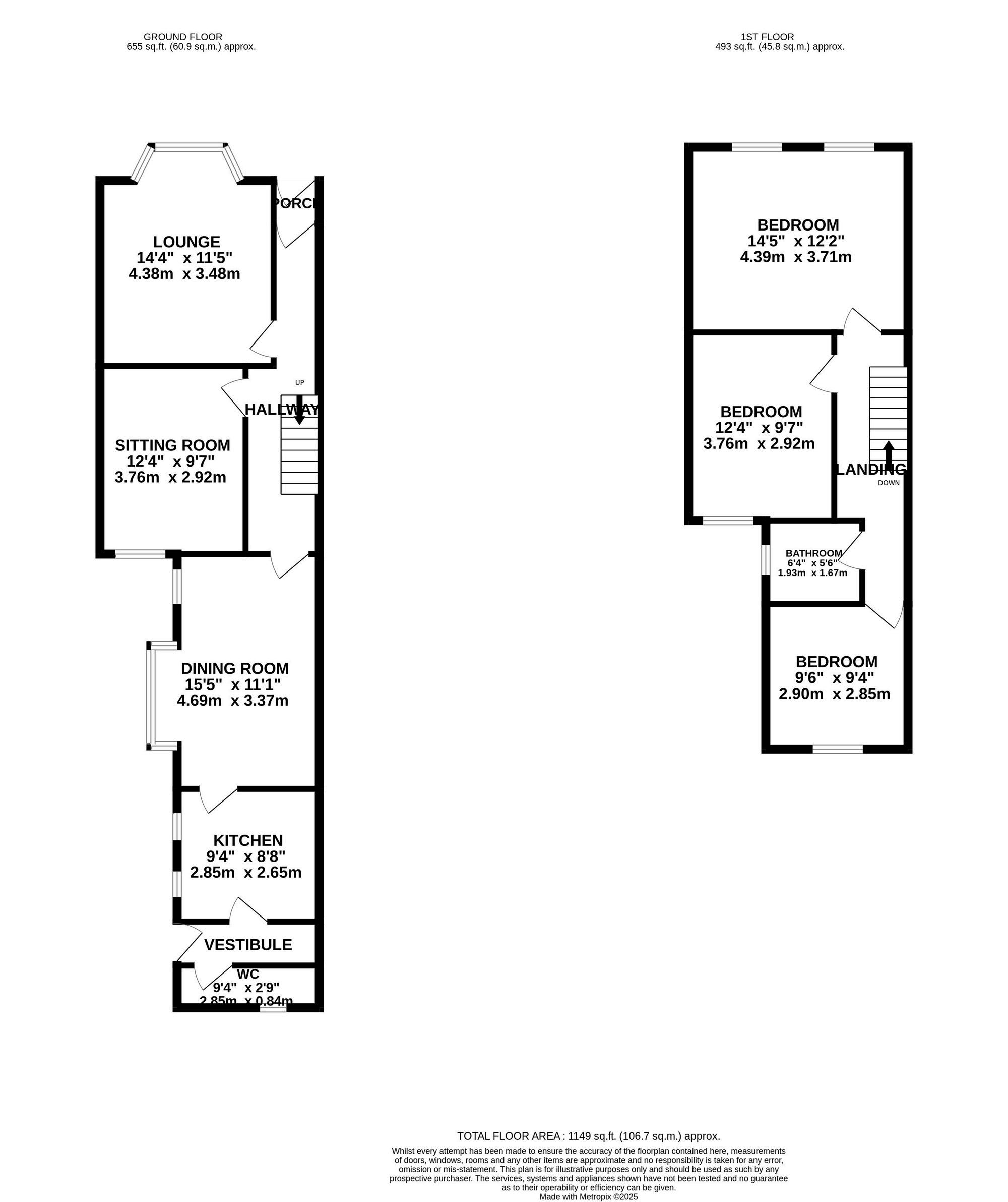
Set across two floors, the home features a well-balanced layout ideal for family living or investment. The ground floor includes three distinct reception areas perfect for flexible use as lounge, dining, and sitting rooms—alongside a separate kitchen and a w/c. Upstairs, three bedrooms and a bathroom offer comfortable accommodation.
Outside, both front and rear yards provide scope for landscaping or additional storage. While the property requires modernisation, its size and structure offer a solid foundation for a stylish renovation.
Why DN32?
Located in the heart of Grimsby, DN32 offers residents a blend of affordability, community spirit, and coastal charm. With easy access to Cleethorpes Beach, local amenities, and transport links, it's a practical and appealing place to call home.
3
1
This property is for sale by the Modern Method of Auction, meaning the buyer and seller are to Complete within 56 days (the "Reservation Period"). Interested parties’ personal data will be shared with the Auctioneer (iamsold).
If considering buying with a mortgage, inspect and consider the property carefully with your lender before bidding.
A Buyer Information Pack is provided. The buyer will pay £349 (Inc. VAT) for this pack which you must viewed before bidding.
The buyer signs a Reservation Agreement and makes payment of a nonrefundable Reservation Fee of 4.50% of the purchase price including VAT, subject to a minimum of £6,600.00 including VAT. This is paid to reserve the property to the buyer during the Reservation Period and is paid in addition to the purchase price. This is considered within calculations for Stamp Duty Land Tax.
Services may be recommended by the Agent or Auctioneer in which they will receive payment from the service provider if the service is taken. Payment varies but will be no more than £450.00. These services are optional.
TO VIEW OR MAKE A BID – Contact DDM Residential on 01472 358671.











