
Avenue | Grimsby | North East Lincolnshire | DN32 9LL
Asking Price: £90,000

![]()

Avenue | Grimsby | North East Lincolnshire | DN32 9LL
Asking Price: £90,000

Hainton Avenue
Investment Opportunity: Two Tenanted Flats with Freehold
EPC: C/TBC | Tenure: Freehold | Council Tax: A 3
2
A fantastic investment opportunity presents itself with this mid-terrace property on Hainton Avenue, comprising two flats, each with its own unique charm and tenancy in place.
Property Overview:
Location: Situated centrally with easy access to public transport and local amenities.
Flats:
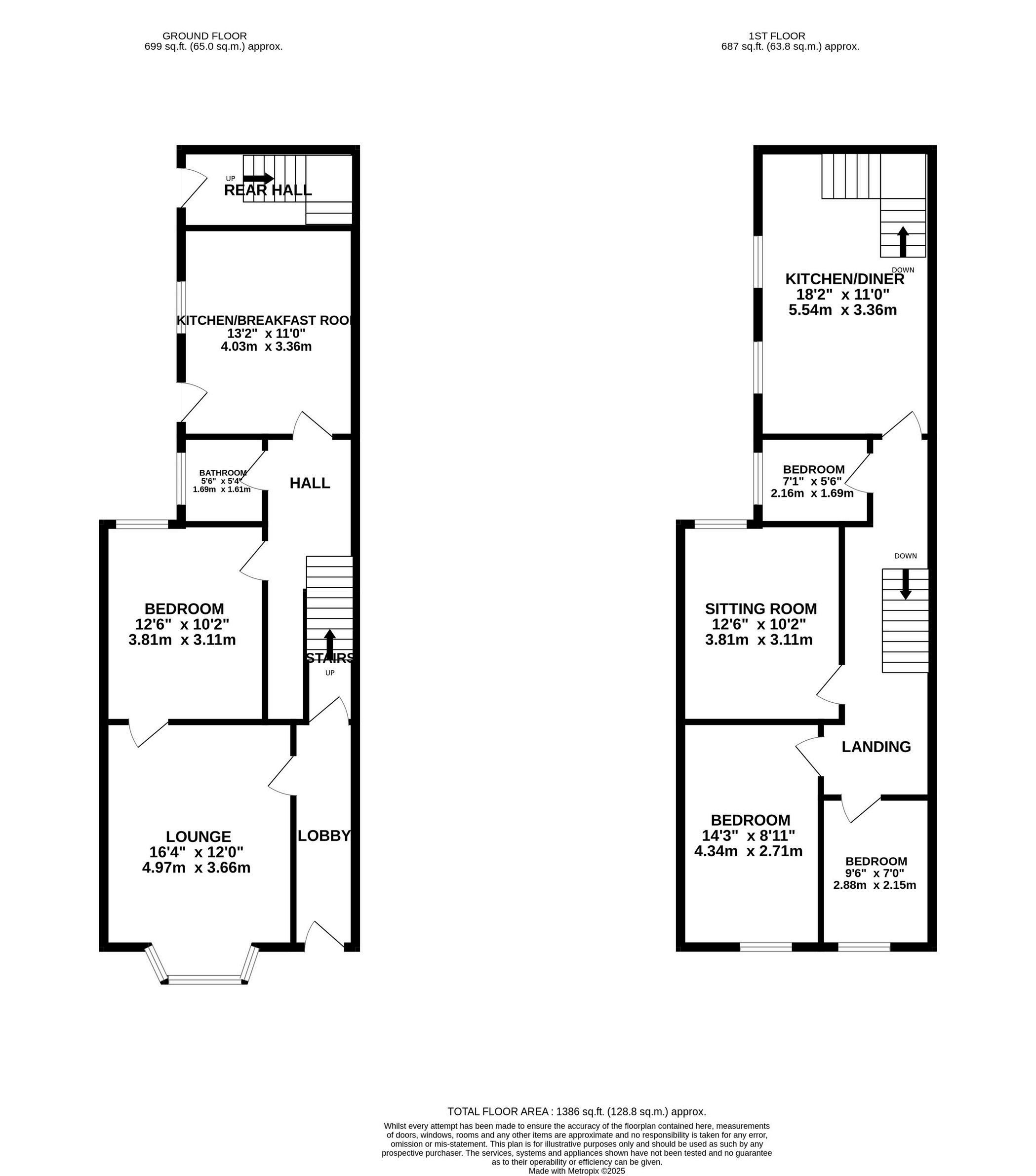
Flat A (Ground Floor): Accessed via a front communal entrance, featuring a spacious lounge with a bay window, a double bedroom, an inner hall leading to the bathroom, and a breakfast kitchen with access to a shared rear garden.
Flat B (First Floor): Also accessed via the communal entrance, offering a layout that includes a double bedroom and a single bedroom at the front, a central sitting room, a bathroom, and a kitchen diner with a staircase to a rear lobby and access to the shared garden.
Additional Features:
Outdoor Space: Includes a front yard and a low-maintenance rear garden predominantly laid with concrete and some planting areas.
Income Potential: Currently generating a combined annual income of £10,740 with both flats occupied.
Investment Benefits:
Freehold Included: The sale includes the freehold of the property.
Ready-Made Investment: Ideal for adding to an existing portfolio or for those new to property investment.
Tenant Stability: Viewing is recommended to meet the tenants and appreciate the stability they bring to this investment opportunity.
This property represents a ready-made income stream in a sought-after location, offering both convenience and potential for growth. Don't miss out on this promising investment opportunity. 2















Agents notes: All measurements are approximate and for general guidance only and whilst every attempt has been made to ensure accuracy, they must not be relied on The fixtures, fittings and appliances referred to have not been tested and therefore no guarantee can be given that they are in working order. Internal photographs are reproduced for general information and it must not be inferred that any item shown is included with the property. For a free valuation, contact the numbers listed on the brochure.

