

![]()


Hainton Avenue
EPC: D + E | Tenure: Freehold | Council Tax: A 5
Fantastic Investment Opportunity – Spacious End-Terraced Property on Hainton Avenue, Grimsby.
2
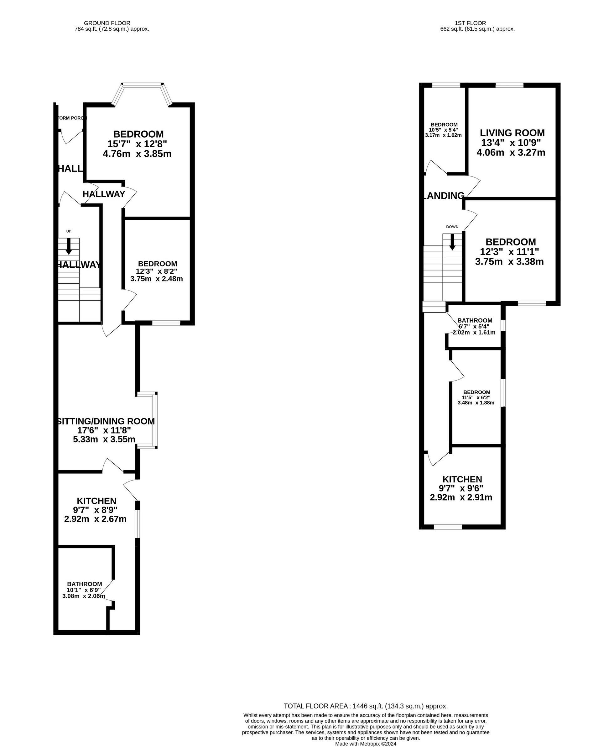
Offered with no onward chain, this large end-terraced property presents a superb investment opportunity for developers and landlords alike. Currently configured as two self-contained flats – one on the ground floor and one on the first – the property is in need of modernisation throughout, providing a blank canvas for those looking to add value.
Ground Floor Flat: The ground floor flat is accessed via a communal entrance to the left, and features a spacious hallway leading to:
A bright front lounge or bedroom with a charming bay window.
A second bedroom.
A generous living/dining room.
A well-sized kitchen with direct access to the rear yard.
A bathroom located at the rear of the flat.
First Floor Flat: The first-floor flat is accessed straight ahead from the communal entrance, where there's useful storage space under the stairs. The flat offers:
Three bedrooms (or two bedrooms and a front sitting room) at the front of the property.
A bathroom and an additional bedroom towards the rear.
A kitchen with plenty of potential.
Once modernised, this property has an estimated rental income of £12,000 per annum, subject to compliance with current legislation. Situated in a popular area of Grimsby, it’s ideally located for access to local amenities, schools, and transport links.
This is an ideal project for those looking to capitalise on the rental market or developers seeking to add value through refurbishment. Don’t miss out on this fantastic opportunity! 2












Agents notes: All measurements are approximate and for general guidance only and whilst every attempt has been made to ensure accuracy, they must not be relied on The fixtures, fittings and appliances referred to have not been tested and therefore no guarantee can be given that they are in working order. Internal photographs are reproduced for general information and it must not be inferred that any item shown is included with the property. For a free valuation, contact the numbers listed on the brochure.

