

![]()


A spacious three-bedroom home with a long-term tenant in situ, offering immediate rental income and strong investment potential in a highdemand Grimsby location.
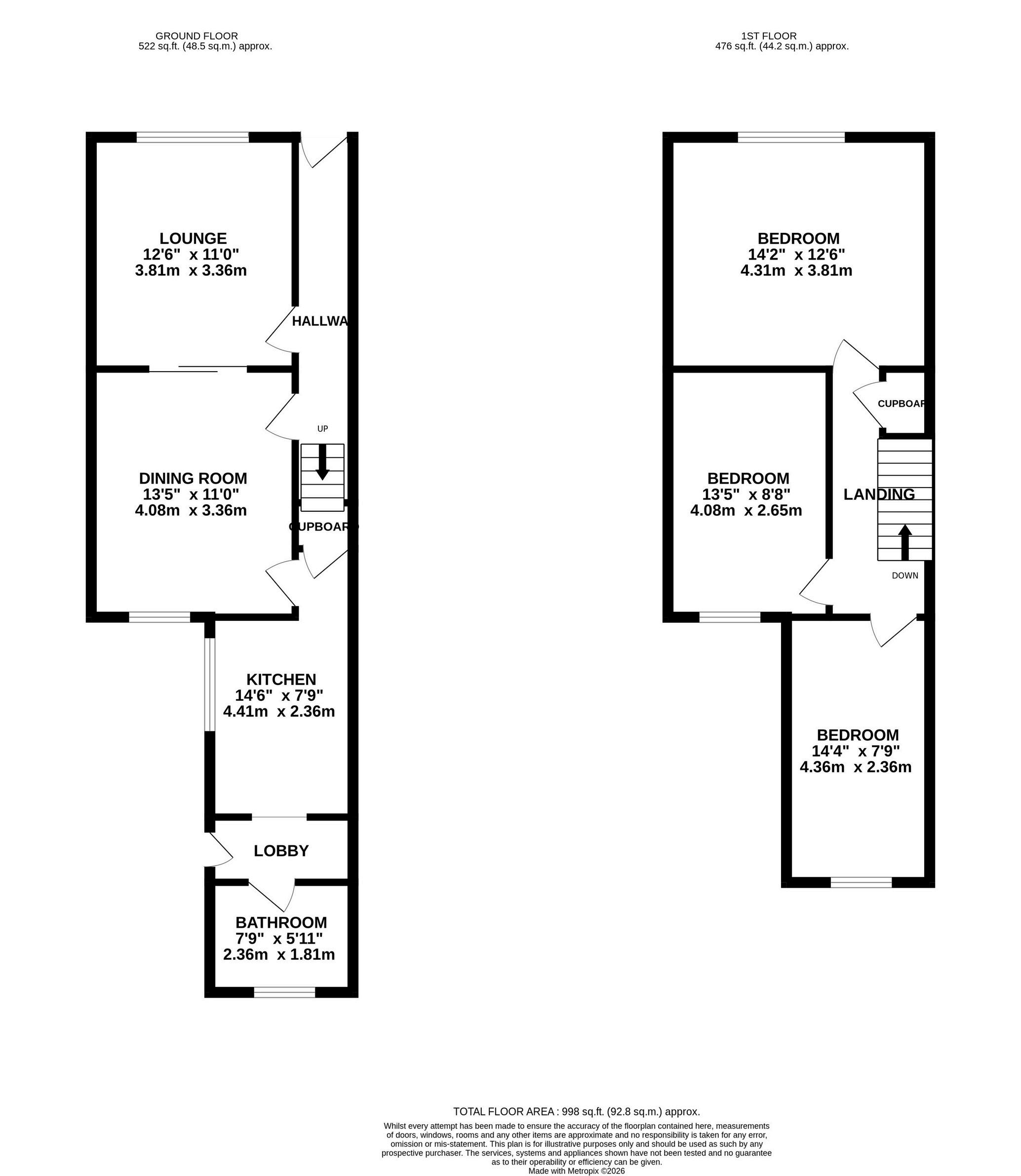
This well-proportioned three-bedroom home on Grafton Street offers a practical and spacious layout ideal for long-term rental demand. The ground floor features two generous reception rooms-a lounge to the front and a separate dining room-both offering good natural light and flexible living space. To the rear, the kitchen is a strong size with a straightforward layout, leading through to a ground-floor bathroom and useful lobby area.
Upstairs, the property provides three well-sized bedrooms. The principal bedroom spans the full width of the front of the house, while the second and third bedrooms offer comfortable proportions for tenants needing family space, home-working rooms, or guest accommodation. The overall footprint of almost 1,000 sq.ft. ensures the property appeals to a broad tenant base.
To the rear, the property benefits from a private garden-an attractive feature for renters seeking outdoor space for relaxation, storage, or lowmaintenance gardening. Homes with outside space consistently perform well in the local rental market, adding to the property’s long-term appeal.
Situated in a well-established residential area of Grimsby, Grafton Street offers strong rental fundamentals. The property is within easy reach of local shops, schools, bus routes, and Grimsby town centre, making it a convenient choice for working professionals and families alike. The area continues to attract steady tenant demand due to its affordability, good transport links, and proximity to major employment hubs across North East Lincolnshire.
This home is being sold with a long-term sitting tenant, currently generating £6,600 per annum, providing immediate income from day one. With stable occupancy, a practical layout, and a location known for consistent rental performance, this property represents a reliable and accessible investment opportunity in a market where demand for well-priced rental homes remains strong.













