
Asking Price: £170,000

![]()

Asking Price: £170,000

Fosseway EPC: C | Tenure: Freehold | Council Tax: B 3 1
Welcome to Fosseway, where comfort meets convenience in this delightful townhouse situated in the heart of Gainsborough's sought-after residential area. Ideally located for easy access to Marshall’s Yard shopping complex, highly regarded schools like Queen Elizabeth Grammar School, and excellent transport links to Scunthorpe, Lincoln, and Retford, this property promises a lifestyle of ease and accessibility.
3
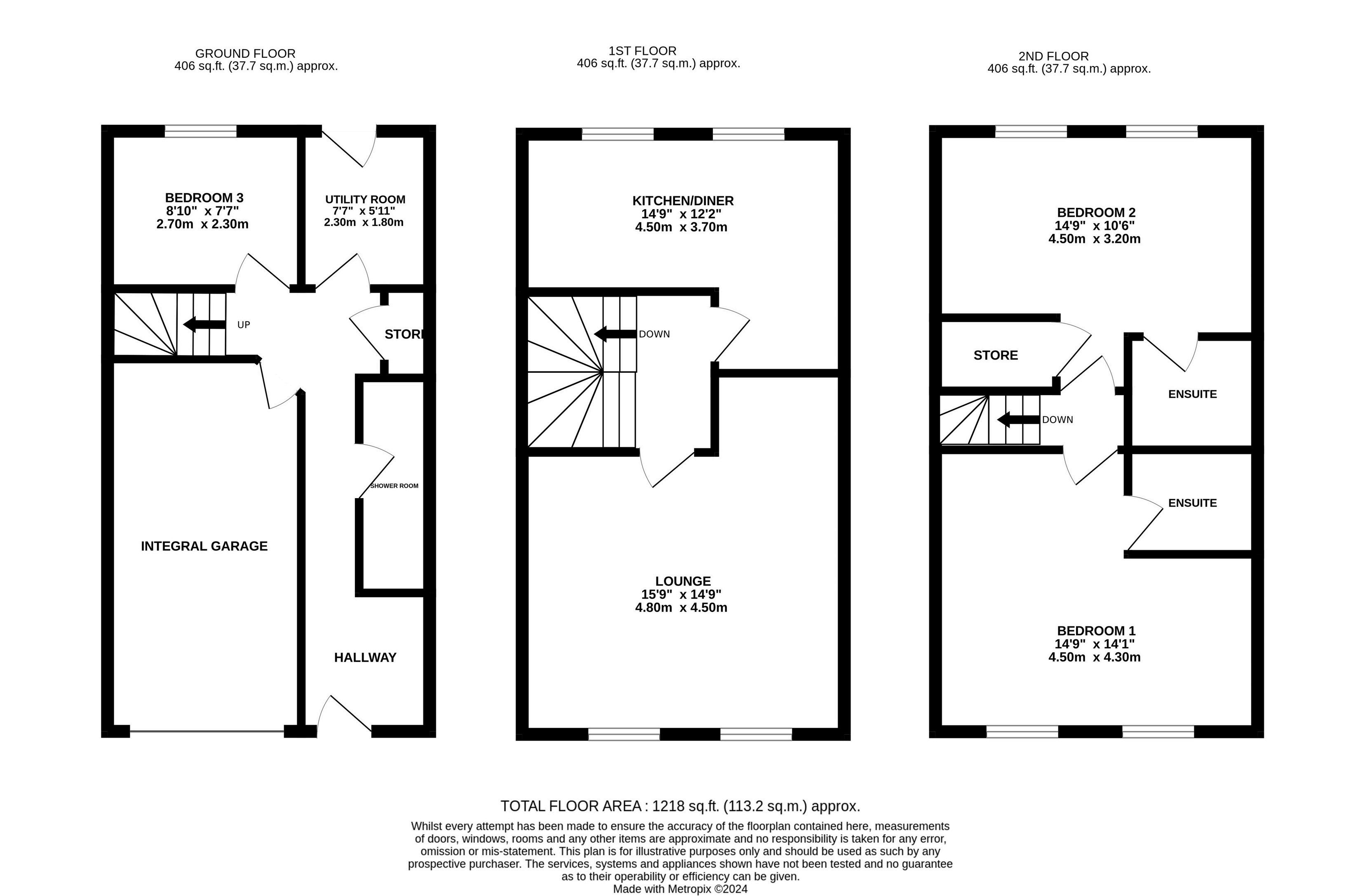
Step inside to a welcoming entrance hallway that accommodates a well-appointed WC/Shower Room, a practical utility room with space for both a washing machine and tumble dryer, and direct access to the fully enclosed, low-maintenance rear garden.
Completing the ground floor, the third bedroom offers flexible living space, ideal as a private area for a teen, a home office, or for family members who may prefer ground-floor accommodation.
Ascending to the first floor, a spacious lounge awaits, inviting you to relax or entertain in style. Natural light pours into this inviting space, creating a warm ambiance for comfortable living. Adjacent to the lounge, the modern kitchen diner is both stylish and functional, featuring ample cabinetry, integrated appliances, and generous worktop space with room for a dining table—perfect for family meals or casual gatherings.
The top floor is dedicated to two generously sized double bedrooms, each featuring its own en-suite bathroom, providing privacy and comfort for all occupants. This layout is ideal for families or shared living arrangements, offering ample space and flexibility.
Adding to the appeal, this property includes a driveway at the front, providing convenient off-street parking, as well as an integral single garage with a roller door for additional storage or secure vehicle parking.
Don’t miss the chance to make this Fosseway townhouse your own and experience the ideal blend of modern living, prime location, and peaceful surroundings. Contact us today to arrange a viewing and seize the opportunity to call this charming property your new home.



















Agents notes: All measurements are approximate and for general guidance only and whilst every attempt has been made to ensure accuracy, they must not be relied on The fixtures, fittings and appliances referred to have not been tested and therefore no guarantee can be given that they are in working order. Internal photographs are reproduced for general information and it must not be inferred that any item shown is included with the property. For a free valuation, contact the numbers listed on the brochure.

