

![]()


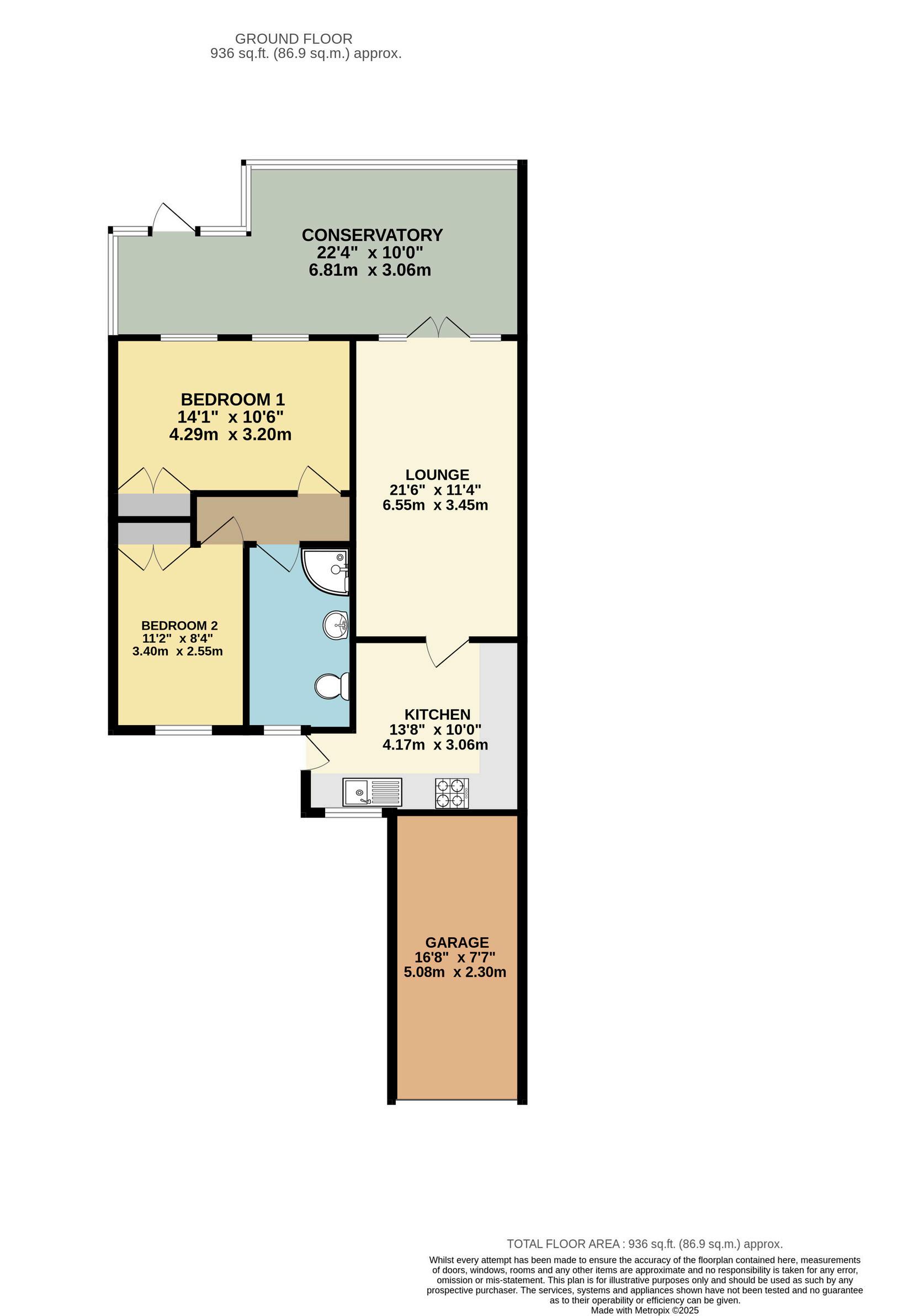
We proudly present a fantastic opportunity to purchase this semi-detached bungalow that is situated on the quiet cul-de-sac of Essex Drive in Burtonupon-Stather.
Offered with NO CHAIN for ease of purchase, this superb home boasts a generous lounge, a well-designed fitted kitchen, a modern shower room, two double bedrooms, a conservatory overlooking the lovely rear garden, off-road parking and an attached singe garage, and is an ideal purchase for buyers who are looking for a spacious home that is set over one floor in a highly sought-after village location.
Stepping into the property, you are welcomed into a spacious and well-appointed kitchen/diner that benefits from a range of base and wall-mounted cabinets, a built-in double oven and ample space for white goods. This bright and airy space seamlessly leads into a generous lounge, providing the perfect setting for relaxation and entertaining. French doors open into a delightful conservatory, allowing an abundance of natural light to flood the space while offering a wonderful view of the garden.
Leading off the lounge, a central hallway connects the main living areas to the rest of the home, leading to two well-proportioned double bedrooms, each offering comfort and versatility. The family bathroom is conveniently located off the hall and features a walk-in shower cubicle, a hand wash basin and a low-level flush W.C. Thoughtfully laid out, this home offers a practical yet inviting space, ideal for a range of buyers seeking comfort and functionality.
Externally, the front garden is mainly stone-shingled for easy maintenance, with a driveway leading to the garage, which features an up-and-over door, lighting, power, and plumbing for an automatic washing machine. The rear garden is predominantly laid to lawn and enjoys a patio seating area for entertaining, enhanced by well-maintained flower and shrub borders. A greenhouse is perfect for avid gardeners. The garden is enclosed by wooden fence panelling, ensuring a high degree of privacy, while a side access gate provides convenient entry to the front.
Situated in the picturesque village of Burton-upon-Stather, this property enjoys excellent travel links to the M180 and Humber Bridge, facilitating convenient access to the national motorway network. The village boasts a regular bus route to nearby Scunthorpe and is surrounded by sought-after leisure amenities including Normanby Hall Country Park, Golf Club, and Equestrian Centre. Local conveniences include an outstanding primary school, a village store, two welcoming public houses, hairdressers, a village hall, and a doctor's surgery affiliated with Winterton Medical Practice. This charming village setting offers a delightful blend of community charm and modern convenience.
















Agents notes: All measurements are approximate and for general guidance only and whilst every attempt has been made to ensure accuracy, they must not be relied on. The fixtures, fittings and appliances referred to have not been tested and therefore no guarantee can be given that they are in working order Internal photographs are reproduced for general information and it must not be inferred that any item shown is included with the property For a free valuation, contact the numbers listed on the brochure.

