
Asking Price: £75,000

![]()

Asking Price: £75,000

Edward Street EPC: C | Tenure: Freehold | Council Tax: A 3
Investment Opportunity on Edward Street
Welcome to your next investment opportunity on Edward Street! This mid-terrace property is a gem for both new and experienced landlords, offering a ready-made investment with a long-term tenant in place, providing a steady annual rental income of £5400. The tenant has maintained the property impeccably, ensuring it remains in pristine condition both inside and out.
Property Features:
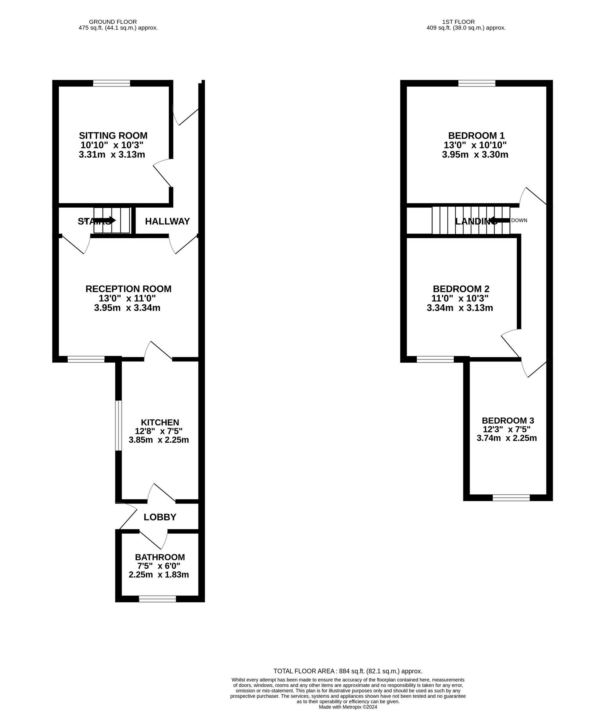
Two Spacious Reception Rooms: Perfect for versatile living and entertaining.
Modern Galley Kitchen: Well-equipped and efficiently designed for convenience.
Ground Floor Bathroom: Stylish and functional for modern living.
Three Double Bedrooms: Ample space for comfortable living.
Front Yard: Welcoming and easy to maintain.
Rear Garden: Featuring a patio, lawn with pebble border, and a practical shed for storage.
Location Highlights:
Close to Local Amenities: Enjoy the convenience of nearby shops, cafes, and essential services.
Excellent Public Transport Links: Easy access to bus routes and train stations for commuting.
Nearby Schools: Great choice of schools for all ages, making it ideal for families. This property offers a seamless blend of comfort, convenience, and charm, making it a highly attractive investment. Whether you're a landlord just starting out or an experienced investor looking to expand your portfolio, this opportunity on Edward Street is not to be missed.
Invest in a property that guarantees both stability and potential growth. Secure your future with this ready-made investment on Edward Street!












Agents notes: All measurements are approximate and for general guidance only and whilst every attempt has been made to ensure accuracy, they must not be relied on The fixtures, fittings and appliances referred to have not been tested and therefore no guarantee can be given that they are in working order. Internal photographs are reproduced for general information and it must not be inferred that any item shown is included with the property. For a free valuation, contact the numbers listed on the brochure.

