Dover Street

Page 1

Dover Street

GRIMSBY | NORTH EAST LINCOLNSHIRE | DN31 2HH

STARTING BID £36,000

Step Inside

DOVER STREET

EPC Rating: D Council Tax: A Tenure: Freehold 2 1 1

DDM PROPERTY AUCTION : For sale by Modern Method of Auction: Starting Bid Price

£36,000 plus reservation fee.

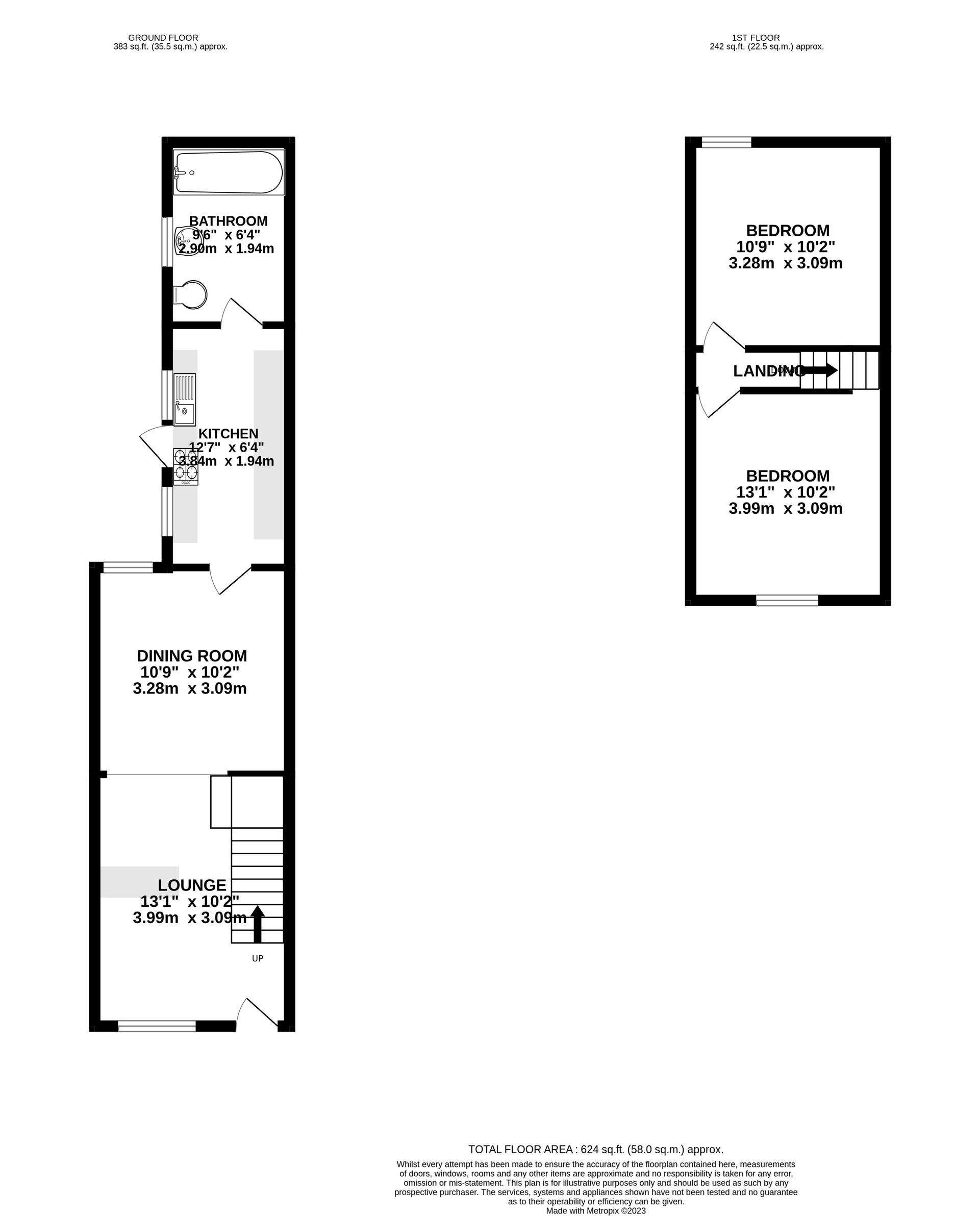
This two bedroom mid terrace property is located on Dover Street within walking distance to Grimsby Town Centre and is the ideal investment property or first time buy.

In need of modernisation the property offers spacious living accommodation which includes, open plan living diner room, galley kitchen and enclosed rear garden.

Step Inside

A ground floor entrance leads into the spacious living dining room which is separated by a half wall and step with access to the galley kitchen and downstairs family bathroom with three piece suite, a rear door leads to the enclosed rear garden. To the first floor are two double bedrooms.

Externally, the rear enclosed garden provides access to the communal alleyway with rear gate access.

Auctioneer Comments

This property is for sale by the Modern Method of Auction. Should you view, offer or bid on the property, your information will be shared with the Auctioneer, iamsold Limited. This method of auction requires both parties to complete the transaction within 56 days of the draft contract for sale being received by the buyer’s solicitor. This additional time allows buyers to proceed with mortgage finance. The buyer is required to sign a reservation agreement and make payment of a non-refundable Reservation Fee. This being 4.2% of the purchase price including VAT, subject to a minimum of £6,000.00 including VAT. The Reservation Fee is paid in addition to purchase price and will be considered as part of the chargeable consideration for the property in the calculation for stamp duty liability. Buyers will be required to go through an identification verification process with iamsold and provide proof of how the purchase would be funded. This property has a Buyer Information Pack which is a collection of documents in relation to the property. The documents may not tell you everything you need to know about the property, so you are required to complete your own due diligence before bidding. A sample copy of the Reservation Agreement and terms and conditions are also contained within this pack. The buyer will also make payment of £300 including VAT towards the preparation cost of the pack, where it has been provided by iamsold. The property is subject to an undisclosed Reserve Price with both the Reserve Price and Starting Bid being subject to change.

Referral Arrangements

The Partner Agent and Auctioneer may recommend the services of third parties to you. Whilst these services are recommended as it is believed they will be of benefit; you are under no obligation to use any of these services and you should always consider your options before services are accepted. Where services are accepted the Auctioneer or Partner Agent may receive payment for the recommendation and you will be informed of any referral arrangement and payment prior to any services being taken by you.

TO VIEW OR MAKE A BID – Contact DDM Residential on 01472 358 671 or visit:

www.northlincolnshirepropertyauction.c o.uk

https://bit.ly/DoverStreet

Agents notes: All measurements are approximate and for general guidance only and whilst every attempt has been made to ensure accuracy, they must not be relied on. The fixtures, fittings and appliances referred to have not been tested and therefore no guarantee can be given that they are in working order. Internal photographs are reproduced for general information and it must not be inferred that any item shown is included with the property. For a free valuation, contact the numbers listed on the brochure

DDM Residential 25 Osborne Street, Grimsby, DN31 1EY 01472 358671 | grimsby@ddmresidential.co.uk followDDMResidentialon DOUG WEBSTER 01472 358671

Turn static files into dynamic content formats.

Create a flipbook
Issuu converts static files into: digital portfolios, online yearbooks, online catalogs, digital photo albums and more. Sign up and create your flipbook.