

![]()


Crest House is a substantial five-bedroom detached period home set on a generous circa 0.2-acre plot in the picturesque hamlet of Cabourne.
This property offers a seamless blend of modern comfort and countryside charm, featuring spacious living areas, a well-equipped kitchen, and a master suite with an en-suite shower/dressing room. Large windows throughout the house invite an abundance of natural light, enhancing the warmth and welcoming atmosphere of this family home.
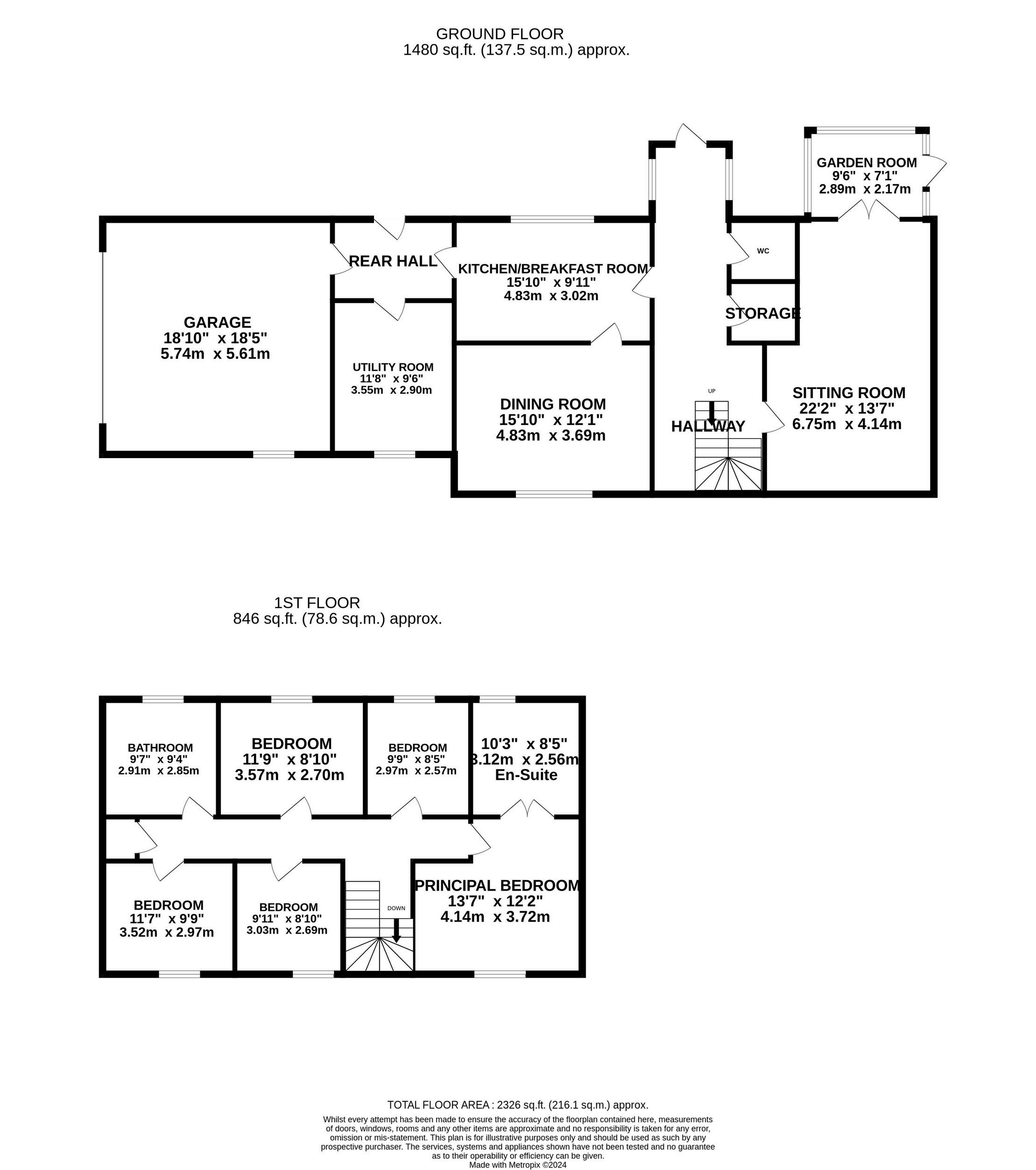
The ground floor boasts a variety of living spaces including a large lounge with exposed feature beams and a cozy log burner, a formal dining room and a bright and airy sunroom that opens onto the garden. The kitchen/breakfast room is designed for both everyday life and casual entertaining, with ample worktop space, a range-style cooker, and modern appliances. Additional conveniences include a ground floor WC, utility room and a rear hall, providing functional storage and easy access to the outdoor spaces. To the first floor there are five generous bedrooms to cater for both family and guests, the principal one with spacious en-suite shower/dressing room and a family bathroom with four-piece white suit serves the remaining rooms.
The extensive wraparound garden, accessed through electric timber gates, provides a perfect setting for outdoor activities and summer gatherings. The expansive lawns are complemented by a large paved patio area, ideal for outside dining and entertaining. The property also features an attached double garage fronted by a broad parking area ideal for larger vehicles and a selection of outbuildings, including storage sheds, kennels, pens, and runs, offering versatile options for hobbyists or pet owners.
Location
Located within the Lincolnshire Wolds, an Area of Outstanding Natural Beauty, just a short distance from the historic market town of Caistor with its many amenities including independent shops, highly-rated Caistor Grammar School and sports facilities. The easy access to major road networks and the picturesque surroundings compliment this excellent rural location.



























Agents notes: All measurements are approximate and for general guidance only and whilst every attempt has been made to ensure accuracy, they must not be relied on The fixtures, fittings and appliances referred to have not been tested and therefore no guarantee can be given that they are in working order. Internal photographs are reproduced for general information and it must not be inferred that any item shown is included with the property. For a free valuation, contact the numbers listed on the brochure.

