Cottingham Court

Page 1

3 Building Plots,
BARTON UPON HUMBER| LINCOLNSHIRE | DN18 5PY ASKING PRICE £175,000
Cottingham Court

Take a look at

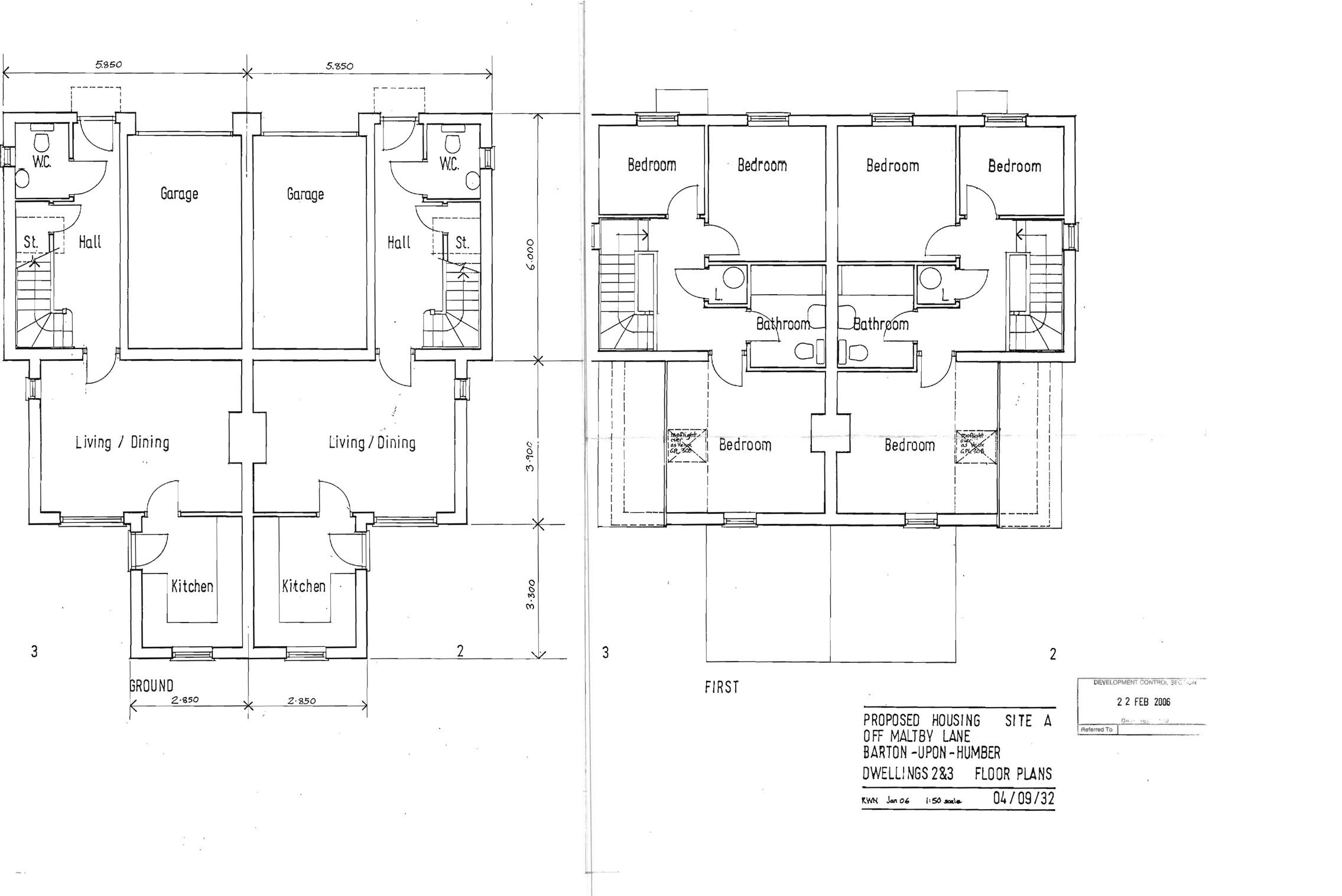
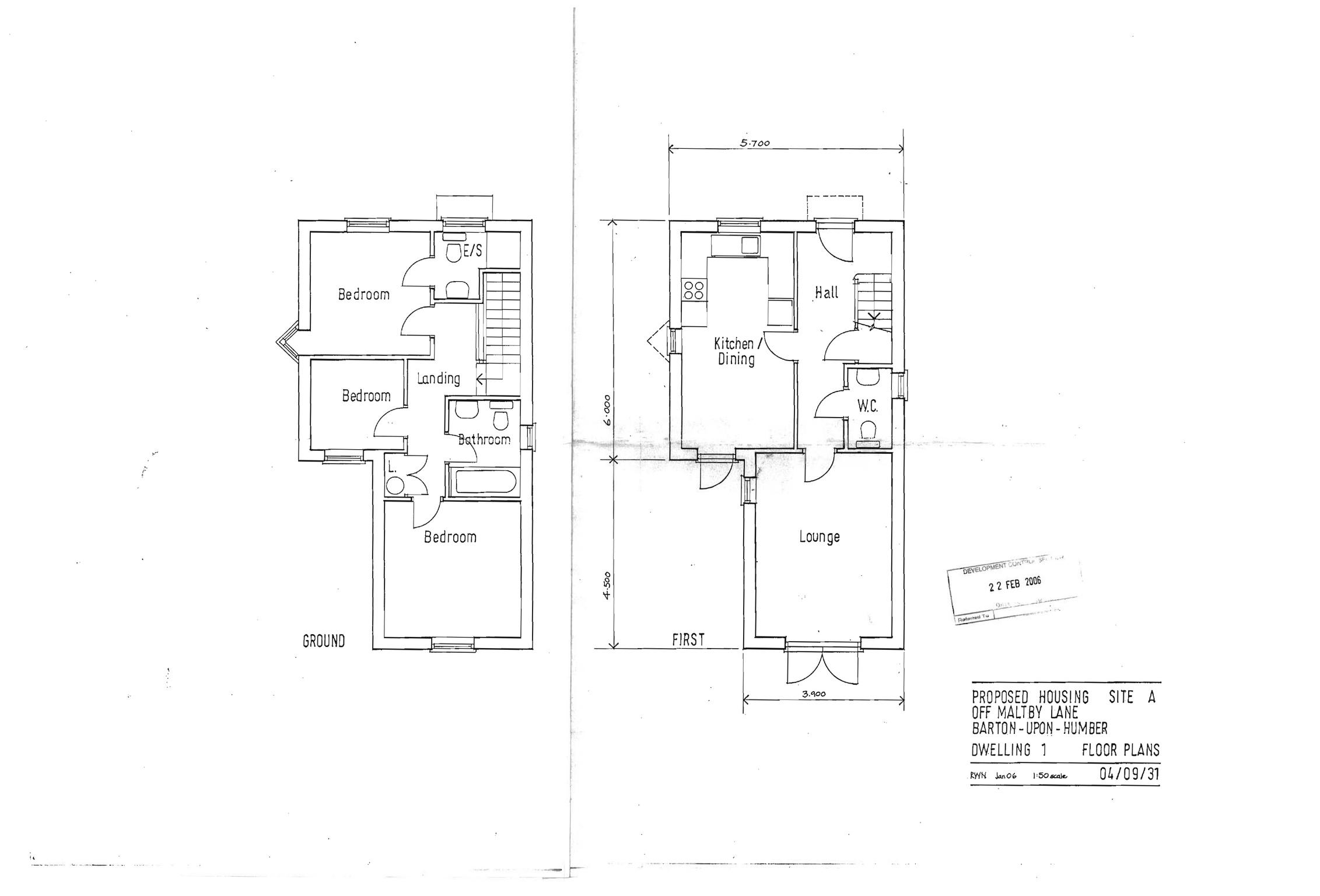
3 BUILDING PLOTS, COTTINGHAM COURT

A fantastic opportunity for either a developer, builder or self build project. Cottingham Court has three plots available with outline planning permission granted in 2006. The plots include a pair of 3 bed semi detached houses and two, 3 bed detached houses. Please contact our Barton office on 01652 661166 for more information.

followDDMResidentialon KATE JEFFERY 01652 661166 DDM Residential 12a George Street, Barton Upon Humber, DN18 5ES 01652 661166 | barton@ddmresidential.co.uk

Turn static files into dynamic content formats.

Create a flipbook
Issuu converts static files into: digital portfolios, online yearbooks, online catalogs, digital photo albums and more. Sign up and create your flipbook.