Buller Street

Page 1

Buller Street

NORTH EAST LINCOLNSHIRE | DN32 8BL

PRICE £80,000

ASKING
GRIMSBY|

Step Inside

BULLER STREET

EPC Rating: D | Tenure: Freehold | Council Tax: A 3 1 2

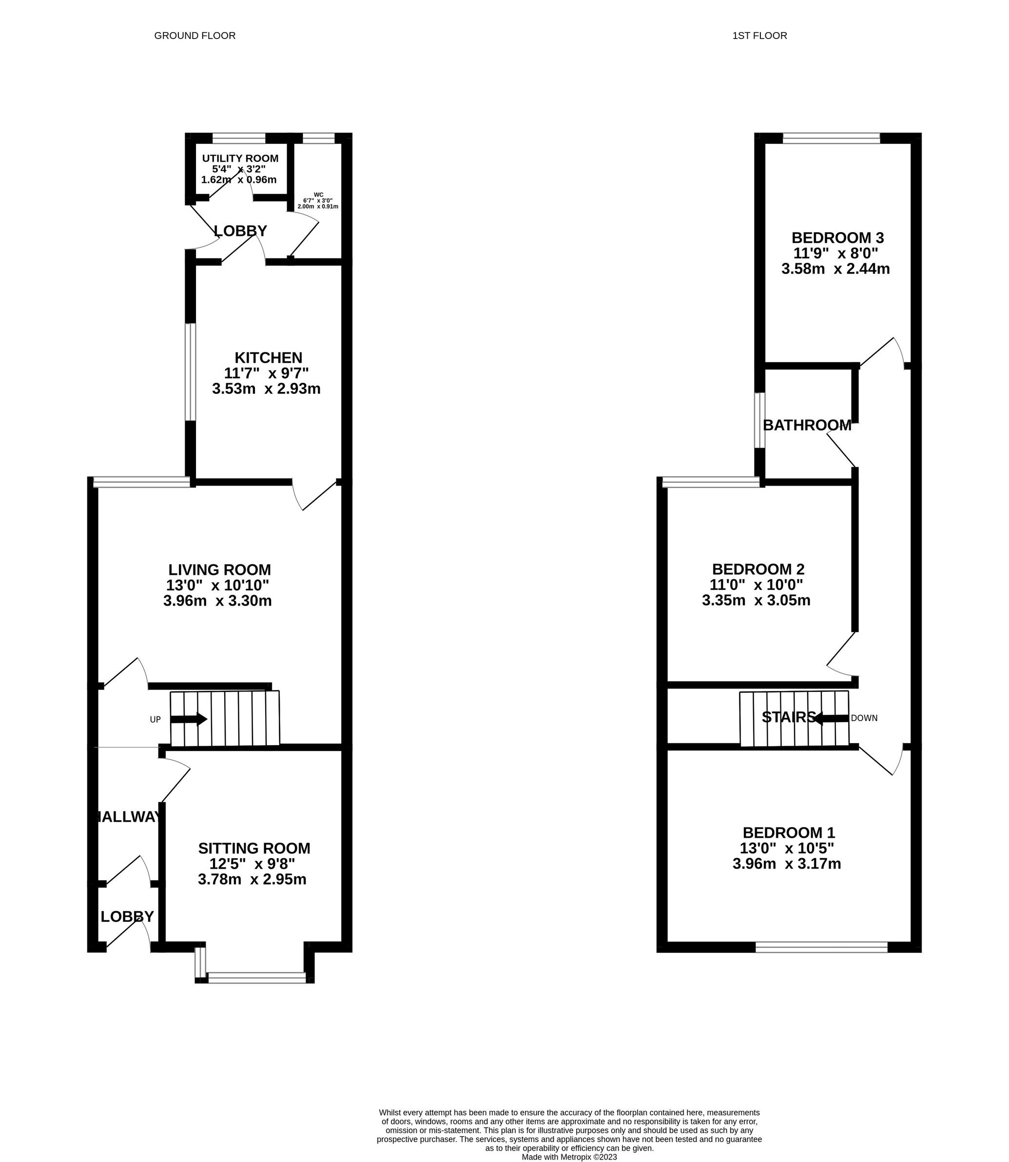
Immaculate three bedroomed mid terraced property with a newly decorated and recently carpeted interior throughout this property is bound to appeal to families, first time buyers and investors.

Briefly comprising froward facing lounge, seperate dining room and a beautifully fitted brand new kitchen with integrated hob and oven. There is also a handy downstairs W/C.

To the first floor there are three good sized bedrooms as well as a first floor family bathroom with bath and pedastal hand basin.

The property also benefits from easy to maintain gardens front and rear. The property is offered with No

Forward CHAIN for ease of purchase.

Agents notes: All measurements are approximate and for general guidance only and whilst every attempt has been made to ensure accuracy, they must not be relied on. The fixtures, fittings and appliances referred to have not been tested and therefore no guarantee can be given that they are in working order. Internal photographs are reproduced for general information and it must not be inferred that any item shown is included with the property. For a free valuation, contact the numbers listed on the brochure

DDM Residential 25 Osborne Street, Grimsby, DN31 1EY 01472 358671 | grimsby@ddmresidential.co.uk followDDMResidentialon DIANE SOADY 01472 358671

Turn static files into dynamic content formats.

Create a flipbook
Issuu converts static files into: digital portfolios, online yearbooks, online catalogs, digital photo albums and more. Sign up and create your flipbook.
Buller Street by Fine & Country / DDM Residential - Issuu