Bradford Road

Page 1

Bradford Road

| NORTH EAST LINCOLNSHIRE | DN40 2BE

ASKING PRICE £170,000

IMMINGHAM

Step Inside

BRADFORD ROAD

Tenure: Freehold | Council Tax: B 3 1 2

EPC Rating: D |

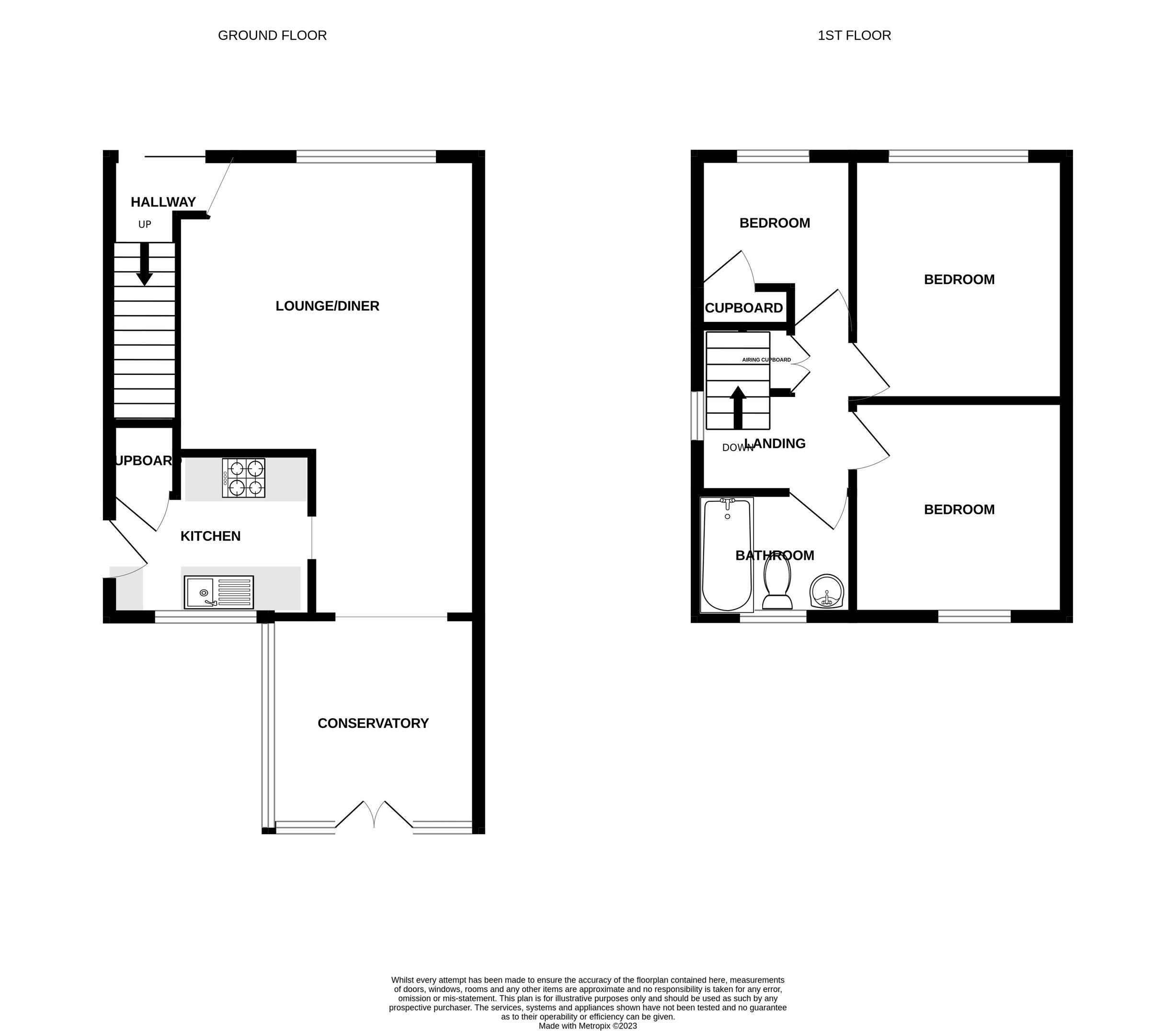
This modern three bedroomed semi-detached family home is in the popular town of Immingham close to local amenities and local schooling. The well-presented property offers versatile and modern living accommodation that includes a lounge/diner with extension through to conservatory and modern fitted kitchen alongside an enclosed garden with purpose-built summer house, detached garage and off road parking for several vehicles.

Step Inside

A ground floor entrance door leads into the welcoming hall with stairs to first floor and access to the well-proportioned living dining room which has been opened up into the conservatory with double doors to the rear garden creating a fantastic space for any growing family, the kitchen is adjoining the dining area and is complete with modern fitted kitchen and understairs storage which the current owners utilise as a pantry store along with a side access door to the driveway.

To the first floor is the forward facing master bedroom, second double bedroom along with a further third single bedroom. The family bathroom is fitted with modern three-piece suite including shower over bath, hand basin and low level flush w.c.

Externally, to the front aspect there is a large driveway providing access to the detached garage along with a lawned area which are both accessible through the double timber built gates. To the rear of the property the garden offers a multitude of options with decking area with plants leading to pergola currently housing a hot tub, a lawned area and a purpose built timber summer house complete with electrics and bar area.

Please note the current owners have recently obtained full planning permission on the property to turn it into a 4 bedroomed semi detached property whilst extending the rear and creating a larger garden space, the full planning application can be viewed under the following reference: DM/0551/22/FUL.

https://bit.ly/BradfordRoad1

Agents notes: All measurements are approximate and for general guidance only and whilst every attempt has been made to ensure accuracy, they must not be relied on. The fixtures, fittings and appliances referred to have not been tested and therefore no guarantee can be given that they are in working order. Internal photographs are reproduced for general information and it must not be inferred that any item shown is included with the property. For a free valuation, contact the numbers listed on the brochure

DDM Residential 25 Osborne Street, Grimsby, DN31 1EY 01472 358671 | grimsby@ddmresidential.co.uk followDDMResidentialon DOUG WEBSTER 01472 358671

Turn static files into dynamic content formats.

Create a flipbook
Issuu converts static files into: digital portfolios, online yearbooks, online catalogs, digital photo albums and more. Sign up and create your flipbook.