23 Bigby Road

Page 1

Bigby Road BRIGG | NORTH LINCOLNSHIRE | DN20 8HR ASKING PRICE £197,000

Step Inside

This delightful double fronted, Georgian end terrace town house is superbly situated to take advantage of the town centre amenities. The property offers well proportioned living spaces and would be ideal for a family looking to acquire a period home within a historic market town.

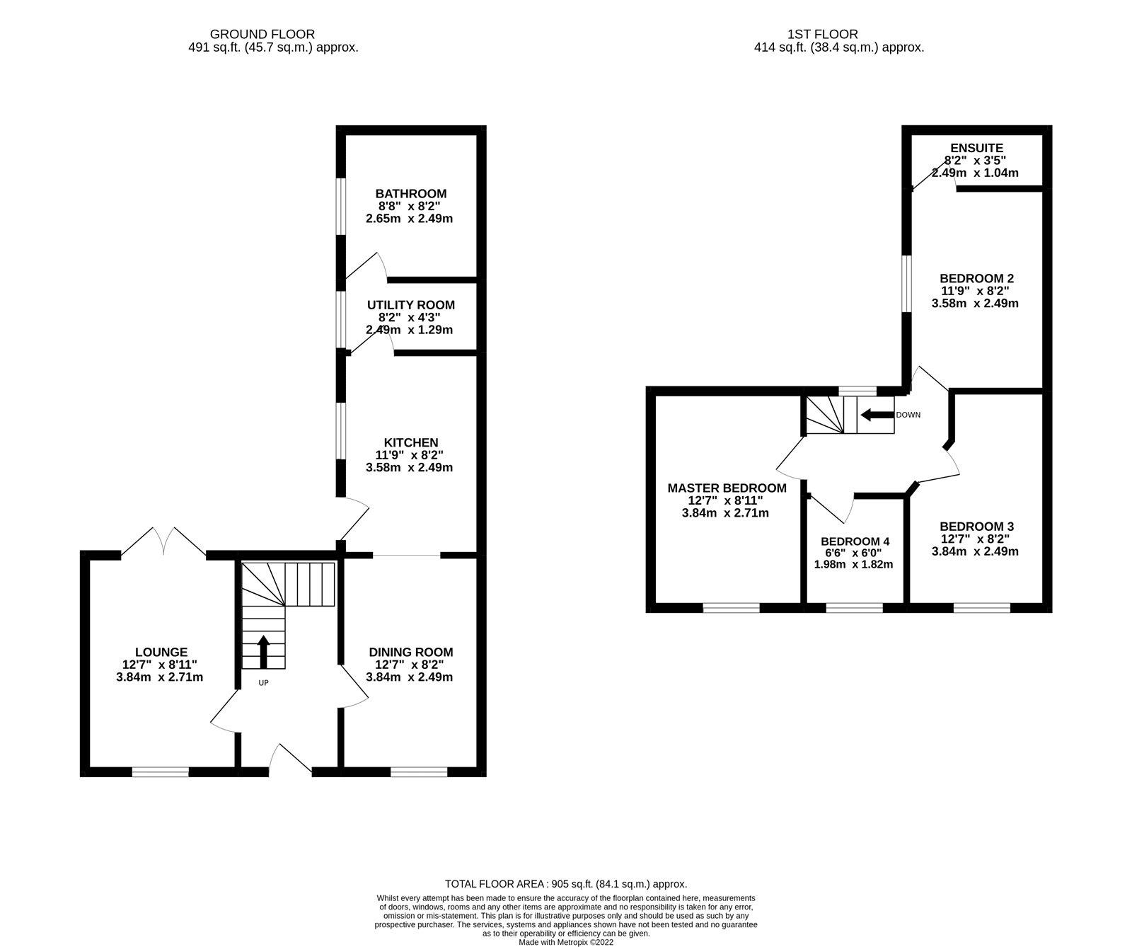
The property briefly comprises of a central hallway with return staircase, forward facing lounge with feature fireplace and doors to the garden room and a further forward facing dining room with feature fireplace and archway through to the well appointed light oak effect kitchen. A further storage area leads from the kitchen to the split level bathroom with three piece suite in white. To the first floor there are three principal bedrooms, one of which has the potential for an ensuite together with a fourth single bedroom which was previously utilised as a study.

Externally the property is fronted by a low maintenance buffer garden with timber gateway and dwarf walling. To the rear of the property is a good sized yet easy to maintain garden with artificial lawn.

A BIGBY
4 2 2 https://bit.ly/3Ct2oZVBigbyRoad
EPC Rating: E | Tenure: Freehold | Council Tax:
ROAD

Agents notes: All measurements are approximate and for general guidance only and whilst every attempt has been made to ensure accuracy, they must not be relied on. The fixtures, fittings and appliances referred to have not been tested and therefore no guarantee can be given that they are in working order. Internal photographs are reproduced for general information and it must not be inferred that any item shown is included with the property. For a free valuation, contact the numbers listed on the brochure

DDM Residential 72 Wrawby Street, Brigg, North Lincolnshire, DN20 8JE 01652 653666 | brigg@ddmresidential.co.uk followDDMResidentialon LIBERTY SMITH 01652 653666

Turn static files into dynamic content formats.

Create a flipbook
Issuu converts static files into: digital portfolios, online yearbooks, online catalogs, digital photo albums and more. Sign up and create your flipbook.
23 Bigby Road by Fine & Country / DDM Residential - Issuu