

![]()


Situated in the popular market town of Gainsborough resides this fantastic opportunity for first time buyers and investors alike. Available with no onward chain and requiring a small scheme of renovations the property presents the ideal home for those looking to fit and finish a property to their own taste and lifestyle.
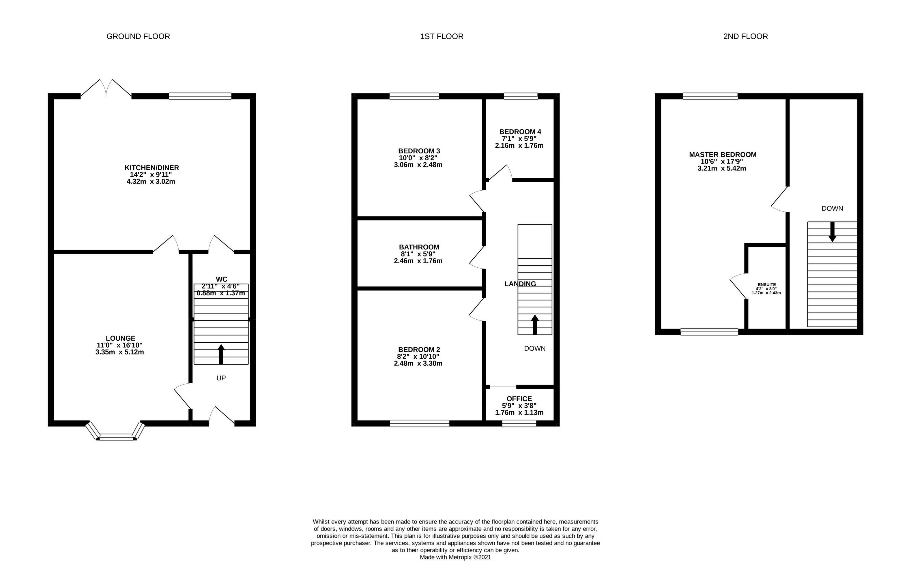
The property briefly comprises of; generous lounge, fitted kitchen with dining area and cloakroom on the ground floor. To the first floor is an office room which could be easily used as a dressing room, three bedrooms served by a family bathroom with three piece suite. To the second floor is the master bedroom served by an en-suite shower room.
Externally the property is fronted by a buffer garden enclosed by a low level brick wall. To the rear is a low maintenance rear yard with off road parking for one vehicle.














Agents notes: All measurements are approximate and for general guidance only and whilst every attempt has been made to ensure accuracy, they must not be relied on The fixtures, fittings and appliances referred to have not been tested and therefore no guarantee can be given that they are in working order. Internal photographs are reproduced for general information and it must not be inferred that any item shown is included with the property. For a free valuation, contact the numbers listed on the brochure.

