

![]()


EPC: D | Council Tax: A
Unfurnished 2 bedroom ground floor apartment, spacious lounge, kitchen/diner, shared drive, communal grounds.
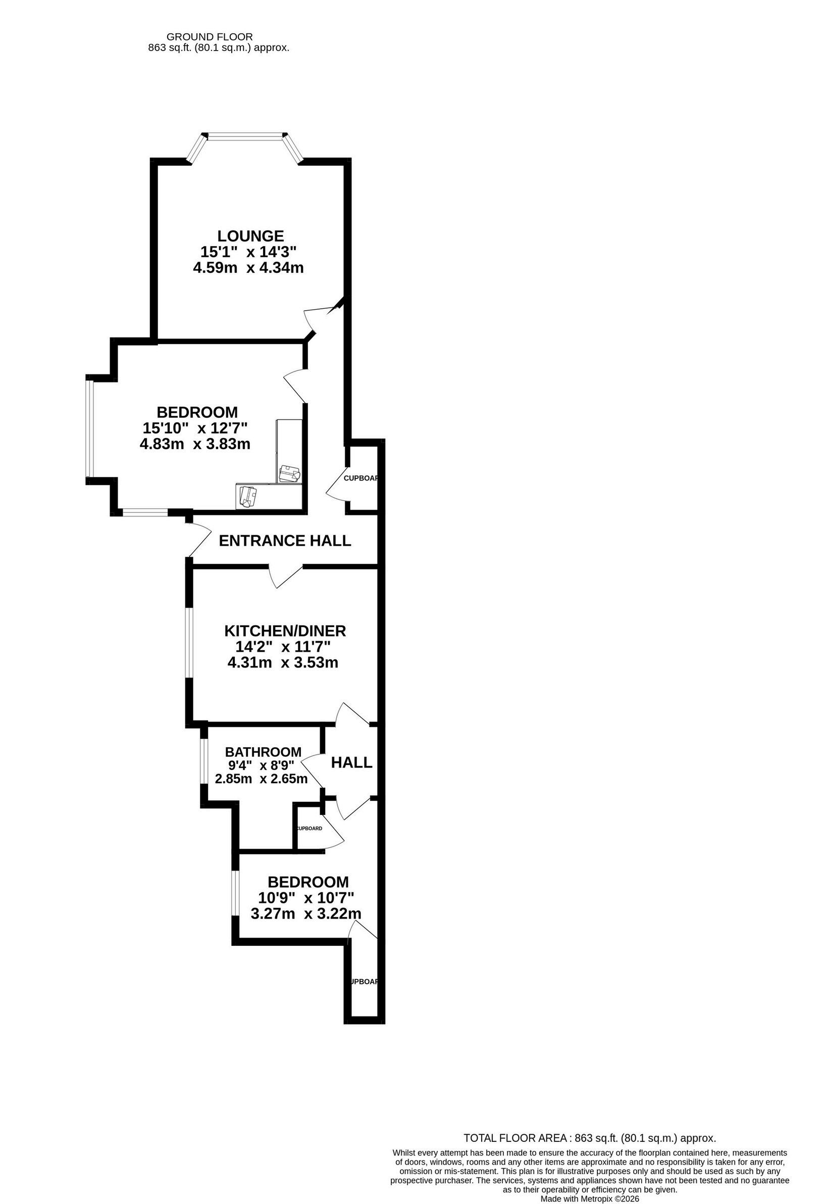
This two bedroom ground floor flat on Abbey Park Road offers a bright, well arranged home that feels spacious and easy to live in. Its layout flows naturally from the entrance hall, There is a generous lounge at the front of the property with bay window. The kitchen diner provides a sociable setting for cooking and mealtimes, with enough space to accommodate a dining table without feeling crowded.
Both bedrooms are well proportioned, giving flexibility for different living arrangements. The main bedroom is particularly roomy, while the second bedroom works well as a guest room, home office or additional double. A large bathroom and two useful storage cupboards off the hallway add to the practicality of the home, keeping the living areas uncluttered.
The flat is offered unfurnished, making it easy for new tenants to personalise the space. Its ground floor position provides straightforward access, and the availability of offroad parking is a welcome advantage in this well connected part of Grimsby.
Local amenities, transport links and green spaces are all within easy reach, making the property especially appealing to working professionals or retirees seeking a comfortable, low maintenance base.







