3 Tudor Reach

Page 1

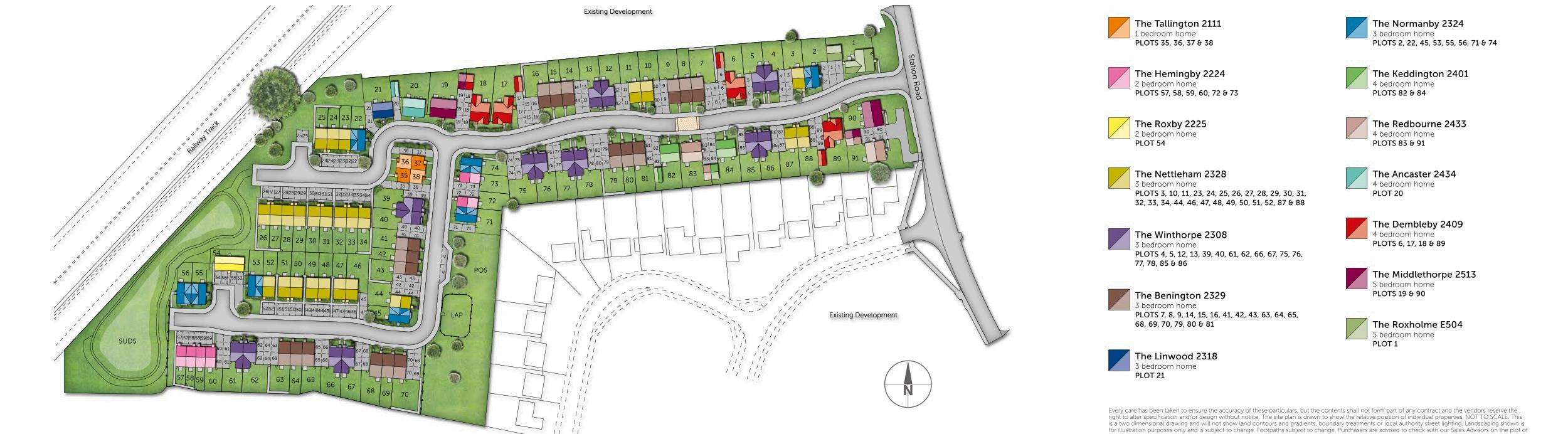
| Kirton In Lindsey | Lincolnshire | DN21 4BD H Tudor Reach, Station Road From: £185,000

STEP INSIDE

Tudor Reach, Station Road

EX SHOW HOME – FIXTURES AND FITTINGS INCLUDED!

An ideal home for singles, couples or families, this three bedroom property offers the versatility you need to create the home lifestyle you’ve always wanted

Summary ABOUT YOUR HOME

This three bedroom house has a spacious hall and kitchen A sizable living/dining area can be utilised however you wish to suit your lifestyle and that of your family French doors lead outside, extending the sociable space at the rear of the house even more during warm summer days and evenings

Bedroom one is located at the front of the house and is an impressive size, while bedrooms two and three are situated at the rear The house bathroom consists of a crisp white suite and comes complete with shaver point, extractor fan and impeccable tiling

ABOUT YOUR DEVELOPMENT

This wonderful location is partially situated on Lincoln Cliff, offering beautiful local scenery. Alongside the town’s unique atmosphere and r also boasts easy connections to the rest of the country, with both Lincoln and Scunthorpe less than half an hour away. This small town has a lot to offer, with a local high street and marketplace, which are home to several independent retailers including a but various beauty salons and a sweetshop. The town has a garden centre neighbouring a cosy café and a further two pubs which serve food. Y a number of other local takeaways and supermarkets in the area.

Other facilities in the town include a post office, where local residents can carry out their banking, as well as the Trent Valley Gliding Club. Further leisure and shopping can be found just a short distance away, with Scunthorpe located 10 miles from Kirton in Lindsey’s centre. He access a host of independent and chain restaurants, as well as spend time at one of the town’s two shopping centres. Kirton in Lindsey benefits from a close proximity to the A15, providing links to Peterborough and Lincoln, as well as the M180, which offer Scunthorpe and Humberside.

BUYING OPTIONS

ASSISTED SALE - We can assist you with the sale of your property to ensure you do not lose out on the new Allison Home you have your Best of all, we will pay your estate agent fees so you will save money too!

PART EXCHANGE – This allows you to buy a new Allison home without having to sell your current property yourself. Instead, we organise existing home for you, from start to finish. No estate agent fees, no chain and no delays.

FORCES HELP TO BUY - Under the scheme, Armed Forces Personnel can borrow up to 50% of their annual salary, to a maximum of £25,0 free, allowing you to purchase your dream Allison home in a way that is affordable.

SAVE ON YOUR ENERGY BILLS

Did you know that new build homes use 64% less energy than older counterparts, cutting the average energy bill by £2,200* a year

TERMS AND CONDITIONS

*Source: HBF’s Watt a save July 2023 report.

Key features

• EX SHOW HOME

• Fixtures and Fittings included

• Front aspect kitchen

• Two double bedrooms

• Two parking spaces

1
3 1
Home 3 – The Nettleham

Agents notes: All measurements are approximate and for general guidance only and whilst every attempt has been made to ensure accuracy, they must not be relied on The fixtures, fittings and appliances referred to have not been tested and therefore no guarantee can be given that they are in working order. Internal photographs are reproduced for general information and it must not be inferred that any item shown is included with the property. For a free valuation, contact the numbers listed on the brochure.

followDDMResidentialon DARRYL CROSS 01652 653666 DDM Residential 72 Wrawby Street, Brigg, North Lincolnshire, DN20 8JE 01652 653666 | brigg@ddmresidential.co.uk

Turn static files into dynamic content formats.

Create a flipbook
Issuu converts static files into: digital portfolios, online yearbooks, online catalogs, digital photo albums and more. Sign up and create your flipbook.
3 Tudor Reach by Fine & Country / DDM Residential - Issuu