

KANYARUT SUKSOMKORN / KANYAPUK KARAYA
0 0 1 - 4
0 5 0 6 0 7 0 8 0 9 1 1 1 2 021 8 2 9 3 0
INTRODUCTION

CONCEPT
OBJECTIVES
MASTER PLAN
SITE LOCATION
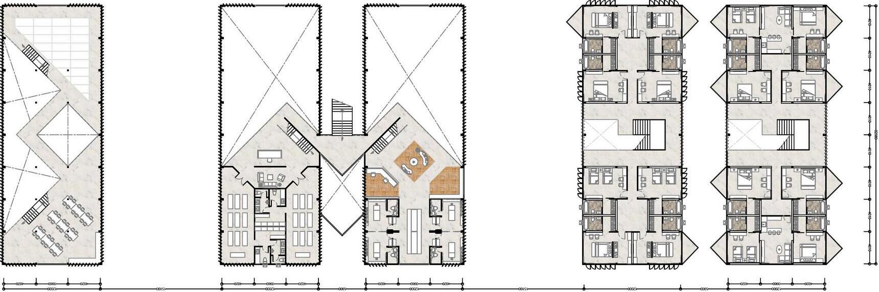
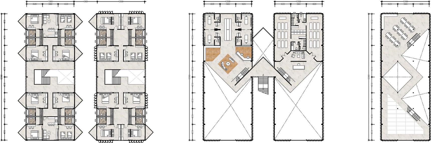
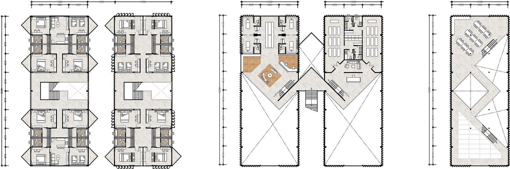
PLAN & PERSPECTIVE
TARGET GROUP
ISOMATIC DIAGRAM
PROGRAMS
MOODBOARD






















UbonRatchathani


Chalerm Ratchakumaree





Ubon Ratchathani Rajabhat
Ubon Ratchathani
TARGET GROUP



CONCEPT














































