Facilities Study Report

Page 1

Fergus Falls Public Schools

Facilities Study: Facilities Assessment and Educational Analysis

Adams Elementary, McKinley Elementary, Lincoln School, and Roosevelt Education Center

August 2021

 Building Age Diagram

 Detailed Spreadsheet of Items with Preliminary Estimated Costs, by category of assessment

o Educational Adequacy per building

 Site Educational Adequacy Analysis Diagram

 Building Educational Adequacy Analysis Diagram

F. Appendix ………………………………..………………………………………………………………………………..…… 82

• Minnesota Department of Education ‘Guide for Planning School Construction Projects in Minnesota’, square footage guidelines excerpts.

• Memos

o Facilities ‘heads up’ meeting

o REC Educational Adequacy Meeting

Facilities Study Fergus Falls Public Schools Page | 1
Page
Introduction ………………………………………………………………………………………………………………..… 2 B. Project Scope
3
Table of Contents
A.
………………………………………………………………………………..………………..…………..…
Facilities Assessment
Educational Adequacy Analysis C. Executive Summary ………………………………………………………………………………..……………………… 6
Facility Condition Index Matrix
Facility Assessment Detail Summary Spreadsheet D. Process ………………………………………………………………………………………………………………..…...…… 11
Facility Assessment and Educational Adequacy Analysis per Building:
E.
Adams Elementary School ………………………………..………………………………………………..…… 14
McKinley Elementary School……………………………..………………………………………………..…… 28
Lincoln School………………………………..…………………………….……………………………………..…… 42
Roosevelt Education Center………………………………..……………………………………….……..…… 53
o Facility Assessment per building

Introduction

Fergus Falls Public Schools has been proceeding through a strategic planning process for the last two years. As the next part of this process, in May 2021, the district recognized the value of a facilities assessment for some of their buildings: those that did not have as much of a focus in the projects stemming from the 2007 referendum, and Lincoln School. Lincoln School, a former Target building that the district purchased, has been partially developed as an early childhood center, and has open shell space that can be developed. The district was also interested in how these buildings measured up from an educational adequacy standpoint - getting an independent evaluation by educational experts.

This information will facilitate planning for potential building improvements. It will also inform a 10-year long-term facilities and maintenance plan. ATSR Planners, Architects, and Engineers, having detailed knowledge of some of the Fergus Falls Public Schools facilities from the 2007 referendum projects, and having extensive experience in designing educational facilities over the past 76 years, was retained to provide professional services for a Facilities Assessment and Educational Adequacy Analysis for the following buildings:

• Adams Elementary

• McKinley Elementary

• Lincoln School (for purposes of evaluating potential build-out options for the current shell space, including a kindergarten center or other uses)

• Roosevelt Education Center (not including ice arenas and arena locker room area)

Project Understanding

The Architect understood that the Owner required professional services for the project scope components listed below, as discussed.

• Facilities Assessment: evaluation of physical deficiencies in the buildings listed above, including estimated costs of each component.

• Educational Adequacy Analysis: comparing to Minnesota Department of Education school construction guidelines, evaluating building and site capacity, and evaluating suitability for the changing needs of 21st century ‘future ready’ learning environments.

Facilities Study Fergus Falls Public Schools Page | 2

Project Scope

Based on the Architect’s understanding of the project, the following tasks were performed:

Facilities Assessment

The Facilities Assessment evaluated the following categories:

• Site Physical Conditions – Including hard surfaces, activity spaces, and site drainage and landscaping.

• General Building Physical Conditions – Including exterior building enclosure (roofs, walls, exterior doors, and windows) and interiors (doors and windows interior walls, floors, and ceilings, cabinetry, equipment, ADA, and code deficiencies).

• Food Service Equipment – Including condition and adequacy.

• Mechanical Systems Physical Condition – Including HVAC (heating/ventilating/air conditioning), plumbing, EMS controls, and fire protection.

• Electrical Systems Physical Condition – Including power, lighting, and fire alarms.

• Technology Systems Physical Condition

ATSR is providing Facility Assessment Spreadsheets by building and by category of assessment, with associated estimated costs. These are project costs, incorporating estimated construction costs, fees, construction contingencies, etc.

• Each item is evaluated by its condition and assigned a condition number:

Because this Assessment’s focus is on deficiencies (verses listing every item in a building regardless of its condition), the spreadsheet contains primarily items in Conditions 1 and 2 (Failed and Poor). Occasionally items that are Condition 3 (Adequate) are listed, for example if they have a short expected useful life span and may reach the end of this expected useful life at/near the end of a 10-year maintenance plan. Occasionally items that are Condition 4 (Good) are listed, for documentation purposes, such as large mechanical systems/units.

• The Spreadsheet also has the capability to prioritize items: 1 - High 2

At this time almost all items are listed as 2 – Medium priority. The Facilities Assessment does not generally set priorities at this time; this step is a part of the next planning process with the district, as the team will work together to look at options and set priorities. A few items have been shifted to 3 – Low priority, in consultation with the district in preliminary review of the draft spreadsheet.

Facilities Study Fergus Falls Public Schools Page | 3
- Failed 2 – Poor 3 – Adequate 4 – Good 5 – New
1
Medium 3
Low

• The Spreadsheet incorporates yearly typical cost/price inflation into the costing. Costs have been set for 2022 for now (the earliest an LTFM project would likely be scheduled). An inflation factor of 4% is being used, which has held up well as being in line with actual inflation over time. Items can be selected for year of work, and project costs will automatically inflate out to that year of construction. This facilitates long-term planning incorporating inflation.

• Costs in the spreadsheet are tied to the date the spreadsheet is started (June 2021) using Engineering News Record Building Cost Index (ENR-BCI). This is an industry standard system that tracks construction costs in areas of the country and assigns an index number each month. We are in a time of increased construction costs due to the COVID-19 pandemic. Each year we can insert the new index number into the spreadsheet. If construction costs drop over time, and the index number drops, the costs listed in the spreadsheet will drop with it. Thus, if the district decides to continue to use the spreadsheet in years ahead, the costs can continually be calibrated to the most recent actual inflation, instead of always using 4% a year from June 2021.

• As planning moves forward, the spreadsheet has the capability to assign and track various types of financing for designated work, i.e., bond referendum, LTFM, capital, lease levy, etc.

ATSR is providing a Facility Condition Index Matrix. This matrix is an overall summary that represents, by category, highlighting conditions 1 and 2, the repair costs relative to the replacement cost of each building. Red shows the greatest percentage of replacement cost, then yellow, then green. This helps to understand the relative impact of the categories of work for the buildings.

ATSR is providing a Detail Summary spreadsheet. This is a summary of all the dollar amounts identified in the overall system, including all conditions and all preliminary priority assessments.

Educational Adequacy

The Educational Adequacy Analysis used the following criteria and process:

• Square footage guidelines and other recommendations from the Minnesota Department of Education “Guide for Planning School Construction Projects”.

• ATSR’s decades of experience as an award-winning educational design architecture and engineering firm, applying our expertise in future-ready learning environments.

Criteria include:

o Safety and Security (secure entries, building zoning, restroom safety)

o A variety of spaces (from individual to various teaming sizes, to large group), and a variety of furniture to support student choice and comfort.

o Agile and flexible architecture, allowing for spatial connections as desired, and flexible and ergonomic furniture.

o Lighting

o Acoustics

o Indoor Air Quality

o Technology Integration

o School and Community Pride/Ethos Messaging

Facilities Study Fergus Falls Public Schools Page | 4

ATSR gave a presentation, “Directions in Educational Learning Environments”, illustrating these criteria, to district leadership and curriculum representatives and principals, and received agreement from them that these criteria were appropriate for evaluation of educational adequacy in the district.

• Interviews with district leadership and curriculum representatives and principals (refer to Process section).

Due to the nature of three of the buildings in this study being elementary schools or younger, and the REC being a multi-use facility with only limited specialty high school functions, building utilization studies and evaluation of scheduling for building use efficiency do not apply, and were not conducted.

Study Fergus Falls Public Schools Page | 5
Facilities

Executive Summary

From the Facilities Assessment and Educational Adequacy Study for the four buildings, the following can be concluded:

1) The physical conditions of the buildings vary. The elementary schools are in generally fair condition, with some exterior envelope issues (primarily roofing) and newer mechanical systems. The Roosevelt Education Center is in generally fair to poor condition, depending on the area of the building. The building has exterior envelope issues that need to be addressed, as well as most mechanical/electrical systems and interior fittings being original to their age of construction and past their useful life. Lincoln School (exterior) is in good condition, with the roofing being past its warranty.

2) There are critical areas that should be addressed in each building to better ensure their long-term viability, should the district choose to keep the buildings in service. These areas have been identified in the report and consideration should be given to address those needs in the shortterm to avoid the probability of greater costs in the long-term.

3) The elementary school’s sites are very ‘undersized’, causing parking/traffic circulation issues and eliminating potential for any further building expansion. Most areas in the buildings, other than the standard classrooms at Adams, are undersized relative to MN Dept. of Education guidelines. In addition, the buildings are missing appropriate spaces for 21st Century Learning Environments and for student support services. These deficiencies raise the question of whether these buildings have reached their useful life span.

4) Lincoln School has potential for multiple uses but has challenges with separating bus/deliveries traffic from bus drop-off/pick-up, public/staff parking, and student access to the east portion of the site.

5) The Roosevelt Education Center, due to being a former high school, has some excess/underutilized space, and many facility’s needs, many of which occur in these excess/underutilized spaces. The District has some difficult decisions to make regarding the cost effectiveness of upgrading these spaces. Due to the large cost of the facility’s needs, the district may need to phase the upgrades of desired areas over a longer time frame.

The findings of this study suggest that the Board and administration face some critical decisions moving forward in their planning. Solutions to address the physical problems cited in this study can be relatively simple; developing a long-term plan that ‘triages’ the District’s most critical needs and then put that plan forward for public support. Developing such a plan becomes more complex, and costly, when faced with the decision of how to address the educational adequacy issues that have been identified in this study, and how to balance the underutilization and high facilities upgrades costs at Roosevelt. However, the pathway forward, while challenging, will present opportunities for the school district and community to shape their goals and desires for district facilities for years to come.

Facilities Study Fergus Falls Public Schools Page | 6
Fergus Falls Facility Condition Index Matrix 9/14/2021 Adams Elem McKinley Elem Lincoln School Roosevelt Educ Center Sitesize(acreage) 2.58 2.25 16.62 17.94 Buildingsize(squarefootage) 41,770 44,826 89,420 152,600 EnrollmentOct1,2021(projection)302 238 Capacity(MSat71%/HSat90%)336 242 90%98% $ in millions ADA ACCESSIBILITY 0.0 Site Access 0.0%0.0%0.0%0.0% 0.000.000.000.00 0.0 Building access / Entry / Toilet 0.0%0.1%0.0%0.1% 0.000.010.000.03 AIR QUALITY 3.5 Ventilation (whole bldg) 0.0%0.0%0.0% 10.3% 0.000.000.003.45 0.0 Temperature Controls 0.0%0.0%0.0%0.0% 0.000.000.000.00 2.2 Mechanical / Boilers / Systems 0.3% 8.0% 0.0%4.1% 0.030.780.001.38 GENERAL BUILDING CONDITION- EXTERIOR 2.4 Roofs 8.3%6.9% 0.0%3.0% 0.760.670.001.02 0.5 Windows 0.1%0.1%0.0%1.5% 0.000.010.000.49 1.5 Walls / Exterior 2.2%2.9%0.0%3.0% 0.200.280.001.00 GENERAL BUILDING CONDITION- INTERIOR 6.1 Interior Finishes 8.3% 4.3%0.0% 14.6% 0.760.420.004.88 0.8 Interior Equipment 4.0%0.9%0.0%1.1% 0.370.080.000.38 1.0 Plumbing Systems 2.0%0.5%0.0%2.4% 0.180.050.000.81 3.2 Electrical / Lighting 5.6%5.1% 0.1% 6.4% 0.510.500.032.13 PROGRAM NEEDS 0.3 Technology Systems (data / video) 0.8%0.0%0.0%0.7% 0.070.000.000.22 0.0 Technology Plan 0.0%0.0%0.0%0.0% 0.000.000.000.00 SAFETY / SECURITY 0.0 Access control 0.0%0.0%0.0%0.0% 0.000.000.000.00 0.0 Communications (Voice) 0.1%0.0%0.0%0.1% 0.010.000.000.04 0.4 Fire Alarm 0.0%0.0%0.0%1.3% 0.000.000.000.42 0.0 Emergency Power Backup 0.0%0.0%0.0%0.0% 0.000.000.000.00 0.0 Intrusion detection 0.0%0.0%0.0%0.0% 0.000.000.000.00 0.0 Surveillance 0.0%0.0%0.0%0.0% 0.000.000.000.00 SITE 0.2 Drainage 0.3%0.2%0.1%0.3% 0.030.020.020.10 0.9 Hard surface / parking / walks 1.9%0.9%0.0%1.8% 0.170.090.010.59 0.1 Play fields / play grounds 0.3%0.1%0.0%0.1% 0.030.010.000.02 Cond 1,2: 23 $ SUMMARY Percentage of Building Replacement Cost (%) 34.0%29.8%0.3% 50.7% TOTAL by Building (Million $) 3.12.90.117.0 KEY 1%Green (less than 1%) 1%-5%Yellow (between 1% - 5%) 5% Red (over 5%) 10.0 Summary line mult. (x10) © Copyright 2021 Armstrong Torseth Skold Rydeen, Inc. Page 1 of 1
Fergus Falls Public Schools Facility Assessment Detailed Summary 2021-2022 9/14/2021 overall 2021 2022 Bldg No. Building Name Year %ProjectCost% High Priority MediumLow High Priority MediumLow 1Adams Elementary2022 11% $4,804,07211%$ - $ - $ - $ 4,409,392 $ 394,680 $ 41,770 sfSiteWork $230,776- - - - 230,776115.01 $ /sfBuildingEnvelope$1,070,264- - - - 1,070,264BuildingInterior $2,313,688- - - - 1,919,008 394,680 BuildingSystems $1,189,344- - - - 1,189,3443McKinley Elem2022 20% $8,998,392 20% - $ - $ - $ - $ 5,596,760 $ 3,401,632 $ 44,826 sfSiteWork $113,152- - - - 113,152200.74 $ /sfBuildingEnvelope $965,432- - - - 965,432BuildingInterior $964,184- - - - 964,184BuildingSystems $6,955,624- - - - 3,553,992 3,401,632 overall 2021 2022 Bldg No. Building Name Year % ProjectCost % High Priority Medium Low High Priority Medium Low 46Lincoln School2022 21% $9,623,328 21% - $ - $ - $ - $ 9,623,328 $ - $ 89,420 sfSiteWork $30,368 - - - - 30,368107.62 $ /sfBuildingEnvelope $2,617,992 - - - - 2,617,992BuildingInterior $6,948,552 - - - - 6,948,552BuildingSystems $26,416 - - - - 26,41647Roosevelt Educ Center2022 48% $21,742,032 48% - $ - $ - $ - $ 21,684,624 $ 57,408 $ 152,600 sfSiteWork $709,280 - - - - 709,280142.48 $ /sfBuildingEnvelope $2,503,592 - - - - 2,503,592BuildingInterior $5,959,096 - - - - 5,952,232 6,864 BuildingSystems $12,570,064 - - - - 12,519,520 50,544 117 SUBTOTALS $45,167,824 - $ - $ - $ - $ 41,314,104 $ 3,853,720 $ FCIPRIORITY1TOTAL(fund) 5% 15% 0% 100% TOTAL-ALLYEARS2021-2046$45,167,824 - $ 45,167,824 $ TOTAL - PRIORITIES 1-2$41,314,104 - $ 41,314,104 $ TOTAL - PRIORITY 1$0 0% - $ - $ TOTAL - PRIORITY 2$41,314,104 91% - $ 41,314,104 $ TOTAL - PRIORITY 3$3,853,720 9% - $ 3,853,720 $ overall 2021 2022 Project No.sProject High Priority MediumLow High Priority MediumLow 1.00 SITE-Hardsurfaces $862,7842% - $ - $ - $ - $ 862,784 $ - $ 1.01 Asphalt paving 384 62% - - - - 536,7441.02 Concrete walks / curbs 384 24% - - - - 205,1921.03 Curb / Gutter 384 14% - - - - 120,8481.04 0 - 0% - - - - -1.05 0 - 0% - - - - -2.00 SITE-ActivitySpaces $52,6240% - $ - $ - $ - $ 52,624 $ - $ 2.01 Playgrounds 384 0% - - - - -2.02 Athletic Fields 384 0% - - - - -2.03 Supporting Activity Structures (Dugouts, fences, etc.) 384 100% - - - - 52,6242.04 Exterior Bleachers - grandstands 384 0% - - - - -2.05 Hard surface play areas 384 0% - - - - -3.00 SITE-Drainage/Landscaping $168,1680% - $ - $ - $ - $ 168,168 $ - $ 3.01 Grass / Turf 384 100% - - - - 168,1683.02 Trees, Shrubs, Planting 384 0% - - - - -3.03 Irrigation Systems 384 0% - - - - -3.04 Monument Signage 384 0% - - - - -3.05 Storm / Drainage 384 0% - - - - -3.06 Accessibility (ADA) 367 0% - - - - -3.07 0 - 0% - - - - -4.00 Exterior(BuildingEnvelope) $7,157,280 16%$ - $ - $ - $ 7,157,280 $ - $ 4.01 Roofs 383 71% - - - - 5,060,3284.02 Wall systems 368 6% - - - - 424,2164.03 Tuck pointing / Sealant 368 11% - - - - 811,5124.04 Doors / Hardware 369 4% - - - - 308,1524.05 Curtainwall / Storefront 368 7% - - - - 486,7204.06 Window systems 368 0% - - - - 14,5604.07 Louvers / Screenwalls / Fenestration 368 0% - - - - 21,4244.08 Painting and Plaster 368 0% - - - - 30,3684.09 0 - 0% - - - - -4.10 0 - 0% - - - - -5.00 Interior(Building) $14,164,696 31%$ - $ - $ - $ 13,770,016 $ 394,680 $ 5.01 Doors / Hardware 369 4% - - - - 522,2885.02 Windows / Door Sidelights 379 0% - - - - 22,5685.03 Flooring / Base 379 7% - - - - 1,014,0005.04 Ceiling / Acoustic Panels 379 3% - - - - 390,7285.05 Wall Finishes (PT, VWC, etc) 379 3% - - - - 392,3925.06 Tile Applications 379 0% - - - - 53,8725.07 Hand, Guardrail / Code Deficiencies 379 3% - - - - 376,3761 © Copyright 2021 Armstrong Torseth Skold Rydeen, Inc.
Fergus Falls Public Schools Facility Assessment Detailed Summary 2021-2022 9/14/2021 overall 2021 2022 Bldg No. Building Name Year %ProjectCost% High Priority MediumLow High Priority MediumLow 5.08 Accessibility (ADA) 367 0% - - - - 41,1845.09 Secure / Controlled Entries 369 0% - - - - 16,2245.10 REMODELING / ADDITIONS - 80% - - - - 10,940,384 394,680 6.00 Interior(FixedEquipment) $2,020,8244% - $ - $ - $ - $ 2,013,960 $ 6,864 $ 6.01 Interior Bleachers 369 0% - - - - -6.02 Interior Fixed Seating 369 0% - - - - -6.03 Lockers - Corridor 369 7% - - - - 139,8806.04 Lockers - Athletic 369 5% - - - - 96,0966.05 Stage Curtains 369 0% - - - - -6.06 Curtain / Wall Dividers - gym 379 0% - - - - 3,2246.07 BB Backstops / Systems 369 0% - - - - -6.08 Wall Pads 369 1% - - - - 14,9766.09 Chalk Board / Marker board 379 8% - - - - 171,4966.10 Tack Boards 379 3% - - - - 60,0086.11 Display Cases 379 0% - - - - -6.12 Operable Dividing Walls 379 0% - - - - 6,0326.13 Cabinetry / Counter Tops / Stools 379 34% - - - - 675,168 6,864 6.14 Cubbies / Hook Strips 379 2% - - - - 45,6566.15 Restroom Partitions 379 3% - - - - 60,9446.16 Wall Mount Café Tables 369 0% - - - - -6.17 Window Treatments 369 0% - - - - -6.18 Kitchen Equipment 369 37% - - - - 740,4806.19 Cold Storage Rooms 369 0% - - - - -6.20 Pool Equipment 369 0% - - - - -6.21 Score / Video Board 369 0% - - - - -7.00 HVAC $15,275,208 34%$ - $ - $ - $ 11,823,032 $ 3,452,176 $ 7.01 Boilers 380 23% - - - - 3,465,1767.02 Motors / controllers / pumps / systems / VFDs and electrical feeders to accommodate 380 0% - - - - -7.03 fuel oil systems (storage, piping, burners) 380 0% - - - - -7.04 HVAC piping (steam / hot water), condensate, valves, tanks, heat exchangers 380 11% - - - - 1,684,0727.05 Pumps - condensing, hot water, chilled water, circulation, fuel oil 380 7% - - - - 1,026,2727.06 Energy Management Systems (24 volt low voltage) 380 6% - - - - 908,4407.07 Air handler units / ERU - dampers 380 45% - - - - 3,596,216 3,280,576 7.08 Terminal units -DER / dual duct / VAV / Radiant heat / Cabinet unit heaters / unit ventilators / unit heaters / etc. 380 2% - - - - 370,9687.09 Make-up air units 380 0% - - - - -7.10 Exhaust fans - PRV / utility sets 380 1% - - - - 216,6327.11 Liquified-petroleum systems 380 0% - - - - -7.12 water treatment - softeners for boilers. 380 0% - - - - -7.13 Ductwork - hard / plennum 380 0% - - - - -7.14 Ductwork - cleaning / pressure testing 380 0% - - - - -7.15 Air outlets / inlets 380 0% - - - - -7.16 Balancing system 380 0% - - - - -7.17 Cooling systems - chillers / pumps / ice storage / cooling towers / gas fired absorbers 380 3% - - - - 272,480 121,056 7.18 Roof top units - DX / Split (heat / fan / filters) / Spot coolers 380 2% - - - - 181,896 50,544 7.19 dust collection 380 1% - - - - 100,8807.20 Pools - ventilation / dehumidification / plate exchanger380 0% - - - - -7.21 Pipe and Duct Insulation 380 0% - - - - -7.22 Needle Point Bi-Polar Ionization unit 380 0% - - - - -8.00 Plumbing $1,176,8643% - $ - $ - $ - $ 1,176,864 $ - $ 8.01 Motors / controllers / pumps / systems / VFDs and electrical feeders to accommodate 381 0% - - - - -8.02 Piping (domestic) / labeling / conditioning 381 59% - - - - 697,4248.03 Isolation valves / excercize / access 381 0% - - - - -8.04 Fittings / Couplings 381 0% - - - - -8.05 Piping (sanitary) 381 0% - - - - -8.06 Sump pumps / lift stations 381 0% - - - - -8.07 Storm piping / rain water leaders (below drain bowl) 381 0% - - - - -8.08 Plumbing Fixtures 381 30% - - - - 356,7208.09 Wash Fountains / showers 381 0% - - - - -8.10 Drinking Fountains 381 0% - - - - 5,0968.11 Fire suppression- source / pumps / distribution / heads381 0% - - - - -8.12 Compressed air system 381 0% - - - - -8.13 Plumbing for fume hoods 381 0% - - - - -8.14 Pools - pumps / heat exchangers / filter systems / drainage / chemical feed 381 0% - - - - -8.15 Domestic Water Heaters 381 10% - - - - 117,6248.16 Water Treatment / Softeners / Wells 381 0% - - - - -9.00 Electrical $684,0082% - $ - $ - $ - $ 684,008 $ - $ 9.01 Electrical Study Update / Main / medium voltage / tranformer / metering 370 0% - - - - -9.02 Arc-Flash NFPA 70e requirements (OSHA) 370 0% - - - - -9.03 Electric panels - distribution / labeling 370 37% - - - - 251,0569.04 branch circuits - computer / media (utilization voltage - 120 volt, etc) 370 1% - - - - 10,0889.05 Fire Alarm 370 62% - - - - 422,8649.06 Technology Accomodation 370 0% - - - - -9.07 Low voltage systems (less than 24 volts) 370 0% - - - - -9.08 Emergency generators / battery backup systems / inverters 370 0% - - - - -9.09 Sound Systems 370 0% - - - - -2 © Copyright 2021 Armstrong Torseth Skold Rydeen, Inc.
Fergus Falls Public Schools Facility Assessment Detailed Summary 2021-2022 9/14/2021 overall 2021 2022 Bldg No. Building Name Year %ProjectCost% High Priority MediumLow High Priority MediumLow 10.00 Lighting $3,201,6407% - $ - $ - $ - $ 3,201,640 $ - $ 10.01 Lighting - Lamps / ballasts / controls 370 94% - - - - 3,014,33610.02 Emergency Lighting / Exit signs 370 6% - - - - 178,88010.03 Special purpose lighting - theaters 370 0% - - - - -10.04 Security Lighting (Exterior) 370 0% - - - - 8,42410.05 Parking lot lighting 370 0% - - - - -10.06 Exterior athletic lighting - lamps / standards / bases 370 0% - - - - -11.00 Technology/Security $403,7281% - $ - $ - $ - $ 403,728 $ - $ 11.01 Stuctured cabling 370 60% - - - - 243,88011.02 Classroom technology systems - 0% - - - - -11.03 Local Sound systems 370 29% - - - - 116,06411.04 Master Clock Systems 370 0% - - - - -11.05 Building Paging sytems 370 11% - - - - 43,78411.06 Access Control 370 0% - - - - -11.07 Burgler Alarm System 370 0% - - - - -11.08 Video Surveillance System 370 0% - - - - -11.09 TV Distribution System - 0% - - - - -SUBTOTALS $45,167,824 - $ - $ - $ - $ 41,314,104 $ 3,853,720 $ 3 © Copyright 2021 Armstrong Torseth Skold Rydeen, Inc.

Process

The following activities occurred during July and August 2021:

Meetings/Interviews:

Several meetings and interviews were held. The information gleaned from them has been incorporated into the facilities assessment process and spreadsheets and educational adequacy analysis for each building – refer to each building’s analysis sections for details. Meeting memos for larger group meetings are in the appendix.

• 07/12/21: Facilities ‘Heads Up’ Meeting:

To identify facilities issues at each building that the ATSR team should watch for when preforming the building assessments.

Present:

o ATSR: Nancy LaBissoniere - architect, Dan Moll – architect, Pat Collins – mechanical engineer.

o ISD 544: Jeff Drake - Superintendent, Doug Anderson -Facilities Supervisor, Blake Stoltman -Finance Director, Dan Hanson - REC Mechanical Custodian

• 07/12/21: REC Educational Adequacy Meeting:

To identify functions on the site and within the building, and understand what works, what doesn’t, and what needs to be improved.

Present:

o ATSR: Nancy LaBissoniere - Architect, Dan Moll - Architect

o ISD 544: Jeff Drake - Superintendent, Kristin Tuel – Area Learning Center Director, Shannon Erickson - Special Ed Co-op Director, Mark Anderson - Kennedy HS Principal

• 07/14/21: Adams and McKinley Educational Adequacy Meeting:

ATSR first gave the ‘Directions in Educational Environments’ presentation, to show the criteria being proposed for educational adequacy analysis. Then the group discussed, and Scott confirmed that he did agree with these criteria and noted he would love to have a new building with these features. He didn’t feel that there was space in the existing buildings to develop them. Then ATSR reviewed the site and building plans with Scott, to identify functions on the sites and within the buildings, and understand what works, what doesn’t, and what needs to be improved.

Present:

o ATSR: Nancy LaBissoniere - Architect, Dan Moll - Architect

o ISD 544: Jeff Drake - Superintendent, Scott Colbeck – Adams ES and McKinley ES Principal

Facilities Study Fergus Falls Public Schools Page | 11

• 07/14/21: Curriculum group Educational Adequacy Meeting

ATSR first gave the ‘Directions in Educational Environments’ presentation, to show the criteria being proposed for educational adequacy analysis. Then the group discussed, and confirmed that they did agree with these criteria, and that these features would be beneficial to teaching and learning at the schools as educational needs are changing.

Present:

o ATSR: Nancy LaBissoniere - Architect, Dan Moll - Architect

o ISD 544: Jeff Drake - Superintendent, Kristie Sullivan – Curriculum Director/Asst. Principal, Ryan Johnson – IQ Academy Asst. Principal

• 07/14/21: Kindergarten group Educational Adequacy Meeting

Meeting to understand concerns by some Kindergarten teachers for the potential relocation of Kindergarten from McKinley to Lincoln school. Teachers explained their concerns and later sent ATSR documents they had previously sent to the district documenting these concerns. (Note: the two documents, a PowerPoint presentation, and a summary of teacher responses to a survey, have not been attached here due to their length and because the District is already in possession of this information).

Present:

o ATSR: Nancy LaBissoniere - Architect, Dan Moll - Architect

o ISD 544: Jeff Drake - Superintendent, Scott Colbeck – Adams ES and McKinley ES Principal, Kindergarten staff: Jessica Kohlhase, Kayla Jorgenson, Kylie Miller, Nicole Schleske, Shelley Schoeneck, Lisa Schlosser

• 08/03/21: Roofing Meeting

Meeting to review status of existing roofing for the schools.

Present:

o ATSR: Nancy LaBissoniere - Architect

o ISD 544: Doug Anderson - Facilities Supervisor

• 08/12/21: Food Service Meeting

Meeting to review the function of food service programs, spaces, and equipment, and understand what works, what doesn’t, and what needs to be improved. Email follow up for a few questions.

Present:

o ATSR: Nancy LaBissoniere – Architect, Dan Moll – Architect, John Jurichko – Food Service Designer

o ISD 544: Lance Wells – Food Service Director

• With site visits: The teams spoke with head custodians during their site visits to discover any issues they were aware of that should be looked into/added to the assessment.

Facilities Study Fergus Falls Public Schools Page | 12

• 08/24/21: Phone conference with RA Morton

Phone conference (after previous informational emails) to discuss existing deficient condition at top of walls at REC Vocational wing and develop solution and lineal foot price to be used in assessment spreadsheet.

Present:

o ATSR: Nancy LaBissoniere – Architect

o RA Morton: Preston Euerle – President; Paul Heinen – Project Manager

• 08/27/21: Review of draft Facilities Assessment spreadsheets:

Virtual meeting to review draft version of spreadsheets with district representatives, RA Morton, and ATSR team, to answer questions, verify if any item should be proactively moved to low priority.

Present:

o ATSR: Nancy LaBissoniere – Architect, Dan Moll – Architect, - Blayne Parkos –Mechanical Engineer, Pat Collins – Mechanical Engineer, Mike Halgrimson – Electrical Designer, John Jurichko – Food Service Designer, Ron Spoden – Landscape Architect.

o RA Morton: Preston Euerle – President

o ISD 544: Jeff Drake – Superintendent, Ed Shea – Mechanical Supervisor. (Doug Anderson unable to be present - dealing with a problem at a school)

Assessment Visits

During the last half of July and early August 2021, ATSR’s highly qualified architectural, mechanical, electrical, technology, and landscape architect personnel reviewed the four buildings and sites, analyzing and documenting conditions for inclusion into the facility assessment spreadsheets.

Study Fergus Falls Public Schools Page | 13
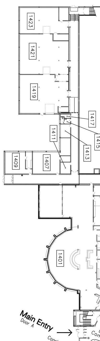
Facilities

Adams Elementary

Facilities Assessment Summary by Category Site

• Replace sections of concrete pavement areas that are broken, pitted, and/or are a trip hazard

o Including the removal and replacement of metal railings where present/necessary

• Remove and replace sections of retaining wall block units that are deteriorated

• Remove and replace asphalt pavement (playground and parking lot) areas

• Remove, replace, or mend chain link fence sections

• Correct drainage and low areas around building to provide proper drainage away from building Including planting bed and turf restoration

• NOTE: A playground specialist should evaluate the rubber playground tiles and playground equipment to verify that they are still compliant

General Building Condition – Exterior and Interior

• Roofs out of warranty and beyond life expectancy

• Exterior- masonry restoration, steel lintels at openings, painting and sealants- require upgrades

• Interior- doors, wire glass, carpet, water-stained adhered ceiling tile, roof access, restroom accessibility – require upgrades

Facilities Study Fergus Falls Public Schools Page | 14
Masonry Condition- requiring restoration/ cleaning & replacement of sealants Roof ‘Tenting’-
stresses at edges and seams
Facilities Study Fergus Falls Public Schools Page | 15
Masonry- ‘Bowed’ -requires rebuild/ Erosion along wall- direct water away replacement of portion of wall & repair masonry/ paving Restrooms-non accessible, view of toilet Soffit plaster failure- repair/replace

Food Service

• Revise kitchen to comply with hybrid central kitchen district model. Serving line to be replaced for adequate serving. Replace noncompliant equipment including wood cabinetry. Refer to spreadsheet for detailed equipment list.

Mechanical

In 2017 Adams Elementary School had HVAC upgrades throughout the building. These upgrades include a central geothermal system provides heating and cooling to the building. The plant consists of modular water-cooled chillers and 3 sets of pumps to circulate water through the well, cooling, and heating loops. A rooftop energy recovery unit provides ventilation to the fan coil units. There is a total of 30 fan coil units and 2 air handling units which distribute supply air and provide temperature control. The building energy management system is direct digital control. A backup condensing hot water boiler was added in 2019. The following are recommendation incorporated in the report:

• Replace old exhaust fans

• Replace domestic hot water heaters

Electrical

• Replace fluorescent lighting throughout the building with LED lighting with occupancy sensors for energy savings. Payback is approximately 3 years, not including rebates that may be offered by some utilities.

• The main electrical service (switch board) and some panels are original and need to be replaced.

Technology

• Replace technology cabling, which is older and does not meet current installation standards. It was installed before there were standards, so it is installed improperly (i.e. running over light fixtures, which can create interference, unsupported laying on ceiling tiles, etc.).

Study Fergus Falls Public Schools Page | 16
Facilities
Adams Elementary School
Fergus Falls Facility Assessment 9/14/2021 197 198 199 200 201 202 203 204 205 206 207 208 209 210 211 212 213 214 215 216 217 218 219 220 221 222 223 224 225 226 227 228 229 230 231 232 233 ABCDEFGHIJKLMNOPQRSTUVWXYZAAAC 34% $ 74.43 3,108,900 1,2Cond. Priority High (1)$$ $ 13.66 570,400 3Cond.Priority Med (2) 4,409,392 $ 4,409,392 $ $ 22.90 956,700 4,5Cond.Priority Low (3) 394,680 $ 394,680 $ Adams Elementary 41,770 SF Dan M, Pat C, Mike M, Dave B, Ron S. 2022 TOTAL PRIORITIES 4,804,072 $ Projected2022 BaseEst.Proj.Base2022 PROJECTConstructionUnitConstCostConst.CostProjectProject COST Cost Basis Cost Unit Quantity Cost Factor Cost Factor Cost Cost 1 LTFM2022 1Adams Elem 1.00SITEHard surfaces $$$ls $1.292 $ 129% $ 1Adams Elem1.01Asphalt pavingplaygroundand service area Full Depth Removal & Replacement of Asphalt Pavement: -Asphalt removal & replacement.-Removal of a lone concrete slab -Add a concrete ramp to Door D (leading out to playground area (it is asphalt now) -Add bollards in front of metal/glass window well coverings-Removal and Replacement of basketball hoopfoundations (2 of the 3 are starting to lean) -Restriping ofplayground. 2LTFM22022 $ 87,800 $ 68,000 $ 27.00 SY 1,875 $ 50,600 1.292 $ 65,400 129% $ 84,400 87,776 1Adams Elem1.01Asphalt paving 2LTFM22022 $ 7,800 $ 6,100 $ 1,500.00 LS 3 $ 4,500 1.292 $ 5,800 129% $ 7,500 7,800 1Adams Elem1.01Asphalt paving LTFM22022 $$sy $1.292 $ 129% $ 1Adams Elem1.02Concrete walks curbsat east ramp/stairs Remove/ReplaceConcrete Pvmnt 2LTFM22022Sections are cracked $ 22,700 $ 17,700 $ 12.50 Sf 1,050 $ 13,100 1.292 $ 16,900 129% $ 21,800 22,672 1Adams Elem1.02Concrete walks curbs at east ramp to lower entry area Restoration of Existing Retaining Wall 2LTFM22022 $ 52,100 $ 40,400 $ 30,000.00 Ls 1 $ 30,000 1.292 $ 38,800 129% $ 50,100 52,104 1Adams Elem1.02Concrete walks curbs at east ramp to lower entry area Metal RailingGrind-off rust areas, prime, & repaint 2LTFM22022 $ 4,300 $ 3,400 $ 2,500.00 Ls 1 $ 2,500 1.292 $ 3,200 129% $ 4,100 4,264 1Adams Elem1.02Concrete walks curbs LTFM22022 $$$sf $1.292 $ 129% $ 1Adams Elem1.02Concrete walks curbs LTFM22022 $$$sf $1.292 $ 129% $ 1Adams Elem1.03Curb Gutter LTFM22022 $$$lf $1.292 $ 129% $ 1Adams Elem1.03Curb Gutter LTFM22022 $$$lf $1.292 $ 129% $ 1Adams Elem 2.00SITEActivity Spaces LTFM $$$ls $1.292 $ 129% $ 1Adams Elem2.01Playgrounds LTFM22022 $$$sf $1.292 $ 129% $ 1Adams Elem2.02Athletic Fields LTFM22022 $$$sf $1.292 $ 129% $ 1Adams Elem2.03 Supporting Activity Structures (Dugouts, fences, etc.) playgroundand service area Repair Chain Link Fence2LTFM22022 $ 28,100 $ 21,800 $ 60.00 lf 270 $ 16,200 1.292 $ 20,900 129% $ 27,000 28,080 1Adams Elem2.04Exterior Bleachers grandstands LTFM22022 $$$sf $1.292 $ 129% $ 1Adams Elem2.05Hard surface play areas LTFM22022 $$$ 2.50 sy $1.292 $ 129% $ 1Adams Elem2.05Hard surface play areas LTFM22022 $$$ 4.50 sy $1.292 $ 129% $ 1Adams Elem2.05Hard surface play areas LTFM22022 $$$ls $1.292 $ 129% $ 1Adams Elem 3.00SITEDrainage Landscaping LTFM $$$ls $1.292 $ 129% $ 1Adams Elem3.01Grass / Turfon either side of north main entry walk, and at south end of bldg Add top soil/fill,or Regrade Area & Sod 2LTFM22022Correct drainage by building corner near service entrance $ 28,100 $ 21,800 $ 60.00 lf 270 $ 16,200 1.292 $ 20,900 129% $ 27,000 28,080 1Adams Elem3.02Trees, Shrubs, Planting LTFM22022 $$$ls $1.292 $ 129% $ 1Adams Elem3.03Irrigation Systems LTFM22022 $$$sf $1.292 $ 129% $ 1Adams Elem3.04Monument Signage LTFM22022 $$$sf $1.292 $ 129% $ 1Adams Elem3.05Storm / Drainage LTFM22022 $$$ls $1.292 $ 129% $ 1Adams Elem3.06Accessibility (ADA) LTFM22022 $$$ea $1.292 $ 129% $ 1Adams Elem3.070 LTFM22022 $$$ls $1.292 $ 129% $ 1Adams Elem 4.00Exterior (Building Envelope) LTFM $$$ls $1.210 $ 129% $ 1Adams Elem4.01RoofsSouthside South Addn Tremco white TPO, past warranty, ponding, tenting 21992LTFM22022Replace with 60 mill fully adhered EPDM with 20 year warranty, more insulation 20 $ 194,000 $ 150,400 $ 16.10 sf 7,425 $ 119,500 1.210 $ 144,600 129% $ 186,500 193,960 Year Action Recommended Life Exp. (yrs) Reb. (Y/N) Item Description 1-5 Cond. Install Orig. Repl. Fund Yr Fnl Pr. Item Code Room No.(s) / Area No.(s) Note Bldg No. Location Cat. Code Category Description © Copyright 2021 Armstrong Torseth Skold Rydeen, Inc. Page 1 of 7

plaster window infills/ surfaces-12 units 2400 sf

Fergus Falls Facility Assessment 9/14/2021 200 201 202 203 ABCDEFGHIJKLMNOPQRSTUVWXYZAAAC Adams Elementary 41,770 SF Dan M, Pat C, Mike M, Dave B, Ron S. 2022 TOTAL PRIORITIES 4,804,072 $ Projected2022 BaseEst.Proj.Base2022 PROJECTConstructionUnitConstCostConst.CostProjectProject COST Cost Basis Cost Unit Quantity Cost Factor Cost Factor Cost Cost Year Action Recommended Life Exp. (yrs) Reb. (Y/N) Item Description 1-5 Cond. Install Orig. Repl. Fund Yr Fnl Pr. Item Code Room No.(s) / Area No.(s) Note Bldg No. Location Cat. Code Category Description 234 235 236 237 238 239 240 241 242 243 244 245 246 247 248 249 250 251 252 253 254 255 256 257 258 259 260 261 262 263 264 265 266 267 268 269 270 271 272 273 274 1Adams Elem4.01RoofsGym StorageTremco white TPO, past warranty 21994LTFM22022Replace with 60 mill fully adhered EPDM with 20 year warranty, more insulation 20 $ 10,300 $ 8,100 $ 16.10 sf 400 $ 6,400 1.210 $ 7,700 129% $ 9,900 10,296 1Adams Elem4.01RoofsCafeteriaTremco white TPO, past warranty 21994LTFM22022Replace with 60 mill fully adhered EPDM with 20 year warranty, more insulation 20 $ 49,500 $ 38,400 $ 16.10 sf 1,895 $ 30,500 1.210 $ 36,900 129% $ 47,600 49,504 1Adams Elem4.01RoofsLobbyTremco white TPO, past warranty 21994LTFM22022Replace with 60 mill fully adhered EPDM with 20 year warranty, more insulation 20 $ 8,400 $ 6,600 $ 16.10 sf 325 $ 5,200 1.210 $ 6,300 129% $ 8,100 8,424 1Adams Elem4.01RoofsClassroomTremco white TPO, past warranty 21994LTFM22022Replace with 60 mill fully adhered EPDM with 20 year warranty, more insulation 20 $ 209,600 $ 162,500 $ 16.10 sf 8,020 $ 129,100 1.210 $ 156,200 129% $ 201,500 209,560 1Adams Elem4.01RoofsGym Tremco white TPO, past warranty 21994LTFM22022Replace with 60 mill fully adhered EPDM with 20 year warranty, more insulation 20 $ 87,600 $ 68,000 $ 16.10 sf 3,355 $ 54,000 1.210 $ 65,300 129% $ 84,200 87,568 1Adams Elem4.01RoofsEast EntranceTremco white TPO, past warranty 21994LTFM22022Replace with 60 mill fully adhered EPDM with 20 year warranty, more insulation 20 $ 1,400 $ 1,100 $ 16.10 sf 50 $ 800 1.210 $ 1,000 129% $ 1,300 1,352 1Adams
21994LTFM22022Replace with 60 mill fully adhered EPDM with 20 year warranty, more insulation 20 $ 197,200 $ 152,900 $ 16.10 sf 7,545 $ 121,500 1.210 $ 147,000 129% $ 189,600 197,184 1Adams Elem4.01Roofs LTFM22022 $$$ 16.10 sf $1.210 $ 129% $ 1Adams Elem4.02Wall systems Plaster window infills/ surfaces Plaster
stain3LTFM22022Clean
30 $ 99,400 $ 77,100 $ 25.50 sf 2,400 $ 61,200 1.210 $ 74,100 129% $ 95,600 99,424 1Adams
systemsN of S addnBowed masonry wall11994LTFM22022 50 $ 8,200 $ 6,300 $ 50.00 sf 100 $ 5,000 1.210 $ 6,100 129% $ 7,900 8,216 1Adams Elem4.02Wall systemsfront canopyFlagpole brackets cut off3LTFM22022Replace brackets $ 4,800 $ 3,800 $ 1,000.00 ea 3 $ 3,000 1.210 $ 3,600 129% $ 4,600 4,784 1Adams Elem4.02Wall systems 2LTFM22022 $$$sf $1.210 $ 129% $ 1Adams Elem4.02Wall systems LTFM22022 $$$sf $1.210 $ 129% $ 1Adams Elem4.03Tuck pointing Sealantperimeter 10%Exteriormasonrydeterioration 2LTFM22022Replace chipped/ cracked/spalled brick, tuckpoint mortar joints 50 $ 73,600 $ 57,200 $ 51.00 lf 1,025 $ 52,300 1.050 $ 54,900 129% $ 70,800 73,632 1Adams Elem4.03Tuck pointing Sealantperimeter x sidewall Exterior masonry and stone dirty/stained 2LTFM22022Clean masonry & stone-sills and roof caps on entire envelope of exterior 50 $ 88,800 $ 68,800 $ 4.10 ea 15,375 $ 63,000 1.050 $ 66,200 129% $ 85,400 88,816 1Adams Elem4.03Tuck pointing Sealantmas cjtSealants missing/agedhard 3LTFM22022Remove and replace sealant joints8 $ 3,500 $ 2,800 $ 11.00 lf 225 $ 2,500 1.050 $ 2,600 129% $ 3,400 3,536 1Adams Elem4.04Doors / Hardware11 Exterior Doors Alum/HM Doors Exit devices/ Hardware 3LTFM22022Replace missing/ damaged weatherstripping 8 $ 2,000 $ 1,600 $ 105.00 ea 11 $ 1,200 1.210 $ 1,500 129% $ 1,900 1,976 1Adams Elem4.04Doors / Hardware LTFM22022 $$$sf $1.210 $ 129% $ 1Adams Elem4.05Curtainwall Storefront LTFM22022 50 $$$sf $1.210 $ 129% $ 1Adams Elem4.05Curtainwall Storefront LTFM22022 $$$sf $1.210 $ 129% $ 1Adams Elem4.06Window systems12 units plus curve Corrosion at lintels2LTFM22022clean of rust and scale, paint10 $ 4,800 $ 3,800 $ 10.00 lf 300 $ 3,000 1.210 $ 3,600 129% $ 4,600 4,784 1Adams Elem4.07Louvers / Screenwalls / Fenestration LTFM22022 $$$sf $1.210 $ 129% $ 1Adams Elem4.08Painting and PlasterSouth & east walls addtn Weathering paint & plaster cracking soffits 1LTFM22022 10 $ 27,200 $ 21,200 $ 25.50 sf 660 $ 16,800 1.210 $ 20,300 129% $ 26,200 27,248 1Adams Elem4.090 LTFM2022 $$$ls $1.210 $ 129% $ 1Adams Elem4.100 LTFM2022 $$$ls $1.210 $ 129% $ 1Adams Elem4.100 LTFM22022 $$$ls $1.210 $ 129% $ 1Adams Elem 5.00 Interior (Building) LTFM $$$ls $1.210 $ 129% $ 1Adams Elem5.01Doors / HardwareThroughoutbuilding Non-accessible (knobs)1LTFM22022Replace w/ ADA compliant lever7 $ 3,700 $ 2,900 $ 380.00 ea 6 $ 2,300 1.210 $ 2,800 129% $ 3,600 3,744 1Adams Elem5.01Doors / HardwareRepair function2LTFM22022Replace 7 $ 13,800 $ 10,700 $ 1,418.00 ea 6 $ 8,500 1.210 $ 10,300 129% $ 13,300 13,832 1Adams Elem5.01Doors / HardwareDamaged doors2LTFM22022Replace with new wood doors30 $ 13,800 $ 10,700 $ 1,418.00 ea 6 $ 8,500 1.210 $ 10,300 129% $ 13,300 13,832 1Adams Elem5.01Doors / Hardware LTFM22022 $$$ea $1.210 $ 129% $ 1Adams Elem5.02Windows Door Sidelights Wireglass safety concerns 1LTFM22022Replace with safety glass20 $ 800 $ 700 $ 79.00 ea 6 $ 500 1.210 $ 600 129% $ 800 832 1Adams Elem5.02Windows Door Sidelights LTFM22022 $$$ea $1.210 $ 129% $ 1Adams Elem5.03Flooring / Base202Gym wood floor3LTFM22022Sand and refinish10 $ 15,400 $ 12,000 $ 6.00 sf 1,580 $ 9,500 1.210 $ 11,500 129% $ 14 ,800 15,392 1Adams Elem5.03Flooring / Base206New gym VCT4LTFM22022Replace12 $ 18,200 $ 14,100 $ 4.60 sf 2,440 $ 11,200 1.210 $ 13,600 129% $ 17,500 18,200 1Adams Elem5.03Flooring / Base224,226,230,233,235,238,242,247,253,off L2 Classroom CPT tile4LTFM22022Remove and replace every 15 to 20 yr10 $ 112,700 $ 87,400 $ 10.50 sf 6,605 $ 69,400 1.210 $ 84,000 129% $ 108,400 112,736 1Adams Elem5.03Flooring / Base235L2 Classroom CPT tile2LTFM22022Replace older CPT tile10 $ 13,800 $ 10,700 $ 10.50 sf 805 $ 8,500 1.210 $ 10,300 129% $ 13,300 13,832 1Adams Elem5.03Flooring / Base234Library broadloom carpet1LTFM22022Remove old and replace with CPT tile10 $ 18,200 $ 14,100 $ 10.50 sf 1,070 $ 11,200 1.210 $ 13,600 129% $ 17,500 18,200 1Adams Elem5.03Flooring / Base219,221,234,243,245,248,254,title L2 Classroom broadloom CPT 1LTFM22022Remove old and replace with CPT tile10 $ 97,400 $ 75,600 $ 10.50 sf 5,710 $ 60,000 1.210 $ 72,600 129% $ 93,700 97,448 1Adams Elem5.03Flooring / Basegirls,boysL2 Restrooms CT5LTFM02022Remove and replace with 8x8 CT50 $$$sf 750 $1.210 $ 129% $ 1Adams Elem5.03Flooring / Base LTFM22022 $$$sf $1.210 $ 129% $ © Copyright 2021 Armstrong Torseth Skold Rydeen, Inc. Page 2 of 7
Elem4.01RoofsNorthside South Addn Tremco white TPO, past warranty
damage,
Elem4.02Wall
Fergus Falls Facility Assessment 9/14/2021 200 201 202 203 ABCDEFGHIJKLMNOPQRSTUVWXYZAAAC Adams Elementary 41,770 SF Dan M, Pat C, Mike M, Dave B, Ron S. 2022 TOTAL PRIORITIES 4,804,072 $ Projected2022 BaseEst.Proj.Base2022 PROJECTConstructionUnitConstCostConst.CostProjectProject COST Cost Basis Cost Unit Quantity Cost Factor Cost Factor Cost Cost Year Action Recommended Life Exp. (yrs) Reb. (Y/N) Item Description 1-5 Cond. Install Orig. Repl. Fund Yr Fnl Pr. Item Code Room No.(s) / Area No.(s) Note Bldg No. Location Cat. Code Category Description 275 276 277 278 279 280 281 282 283 284 285 286 287 288 289 290 291 292 293 294 295 296 297 298 299 300 301 302 303 304 305 306 307 308 309 310 311 312 313 314 315 1Adams Elem5.03Flooring / Base119,124L1 Classroom CPT tile4LTFM22022Remove and replace10 $ 28,300 $ 21,900 $ 10.50 sf 1,660 $ 17,400 1.210 $ 21,100 129% $ 27,200 28,288 1Adams Elem5.03Flooring / Base106,122,126L1 ClassroombroadloomCPT 1LTFM22022Remove old and replace with CPT tile10 $ 35,800 $ 27,900 $ 10.50 sf 2,108 $ 22,100 1.210 $ 26,700 129% $ 34,400 35,776 1Adams Elem5.03Flooring / Base Stair/ Ramp carpet3LTFM22022Replace with MCT/Rubber application5 $ 8,400 $ 6,600 $ 12.90 sf 400 $ 5,200 1.210 $ 6,300 129% $ 8,100 8,424 1Adams Elem5.03Flooring / Base Corridor MCT lino tile5LTFM22022Replace with same, 12-15years12 $ 33,800 $ 26,200 $ 7.30 sf 2,850 $ 20,800 1.210 $ 25,200 129% $ 32,500 33,800 1Adams Elem5.03Flooring / Base ESL CPT2LTFM22022Remove and replace10 $ 6,800 $ 5,200 $ 10.50 sf 395 $ 4,100 1.210 $ 5,000 129% $ 6,500 6,760 1Adams Elem5.03Flooring / Base Elec room CPT3LTFM22022Remove floor finish, replace with MCT10 $ 1,400 $ 1,100 $ 7.30 sf 110 $ 800 1.210 $ 1,000 129% $ 1,300 1,352 1Adams Elem5.03Flooring / Base129Elevator Flooring4LTFM22022Remove and replace with MCT12 $ 1,500 $ 1,200 $ 12.90 sf 70 $ 900 1.210 $ 1,100 129% $ 1,400 1,456 1Adams Elem5.03Flooring / Base LTFM22022 $$$sf $1.210 $ 129% $ 1Adams Elem5.04Ceiling Acoustic Panels202Gym2LTFM22022Replace water stained tiles20 $ 10,700 $ 8,400 $ 4.20 sf 1,580 $ 6,600 1.210 $ 8,000 129% $ 10,300 10,712 1Adams Elem5.04Ceiling Acoustic Panels206New Gym4LTFM22022Exposed steel joist, deck paint25 $ 7,900 $ 6,200 $ 2.00 sf 2,440 $ 4,900 1.210 $ 5,9 00 129% $ 7,600 7,904 1Adams Elem5.04Ceiling Acoustic Panels219, 221, 224, 226 L2 Classroom-tile sag, cupped 2LTFM22022Replace damaged tile25 $ 83,700 $ 65,000 $ 4.20 sf 12,285 $ 51,600 1.210 $ 62,400 129% $ 80,500 83,720 1Adams Elem5.04Ceiling Acoustic Panels234Library2LTFM22022Replace damaged tile25 $ 7,300 $ 5,700 $ 4.20 sf 1,070 $ 4,500 1.210 $ 5,400 129% $ 7,000 7,280 1Adams Elem5.04Ceiling Acoustic Panelsgirls, boys 2 each L2 Restrooms3LTFM22022Replace plaster with VACT30 $ 7,700 $ 6,000 $ 6.30 sf 750 $ 4,700 1.210 $ 5,700 129% $ 7,400 7,696 1Adams Elem5.04Ceiling Acoustic Panels119,122,124,126 L1 Classrooms2LTFM22022Replace damaged tile25 $ 23,300 $ 18,200 $ 4.20 sf 3,420 $ 14,400 1.210 $ 17,400 129% $ 22,400 23,296 1Adams Elem5.04Ceiling Acoustic PanelsStair/Ramp/Elevator2LTFM22022Replace damaged tile25 $ 3,200 $ 2,600 $ 4.20 sf 470 $ 2,000 1.210 $ 2,400 129% $ 3,100 3,224 1Adams Elem5.04Ceiling Acoustic PanelsCorridor2LTFM22022Replace damaged tile25 $ 19,400 $ 15,200 $ 4.20 sf 2,850 $ 12,000 1.210 $ 14,500 129% $ 18,700 19,448 1Adams Elem5.04Ceiling Acoustic Panels106Workroom2LTFM22022replace damaged tile25 $ 2,400 $ 1,900 $ 4.20 sf 348 $ 1,500 1.210 $ 1,800 129% $ 2,300 2,392 1Adams Elem5.04Ceiling Acoustic Panels LTFM22022 $$sf $1.210 $ 129% $ 1Adams Elem5.05Wall Finishes (PT, VWC, etc)202Gym3LTFM22022Refresh paint all10 $ 8,300 $ 6,500 $ 1.50 sf 3,400 $ 5,100 1.210 $ 6,200 129% $ 8,000 8,320 1Adams Elem5.05Wall Finishes (PT, VWC, etc)206New Gym3LTFM22022Refresh paint all10 $ 9,800 $ 7,600 $ 1.50 sf 4,000 $ 6,000 1.210 $ 7,300 129% $ 9,400 9,776 1Adams Elem5.05Wall Finishes (PT, VWC, etc)AllL2 Classrooms3LTFM22022Refresh paint all10 $ 46,200 $ 35,800 $ 1.50 sf 18,900 $ 28,400 1.210 $ 34,400 129% $ 44,400 46,176 1Adams Elem5.05Wall Finishes (PT, VWC, etc)234Library3LTFM22022Refresh paint all10 $ 1,800 $ 1,400 $ 1.50 sf 720 $ 1,100 1.210 $ 1,300 129% $ 1,700 1,768 1Adams Elem5.05Wall Finishes (PT, VWC, etc)4 roomsL2 Restrooms3LTFM22022Paint upper wall above wsct10 $ 3,300 $ 2,700 $ 1.50 sf 1,400 $ 2,100 1.210 $ 2,500 129% $ 3,200 3,328 1Adams Elem5.05Wall Finishes (PT, VWC, etc)119, 122, 124, 126 L1 Classrooms3LTFM22022Refresh paint all10 $ 11,400 $ 8,900 $ 1.50 sf 4,680 $ 7,000 1.210 $ 8,500 129% $ 11,000 11,440 1Adams Elem5.05Wall Finishes (PT, VWC, etc)Stair/ Ramp/Corridor3LTFM22022Refresh paint all10 $ 3,800 $ 3,100 $ 1.50 sf 1,620 $ 2,400 1.210 $ 2,900 129% $ 3,700 3,848 1Adams Elem5.05Wall Finishes (PT, VWC, etc)106Workroom3LTFM22022Refresh paint all10 $ 2,900 $ 2,300 $ 1.50 sf 1,170 $ 1,800 1.210 $ 2,200 129% $ 2,800 2,912 1Adams Elem5.05Wall Finishes (PT, VWC, etc)Dishroom FRP2LTFM02022Replace damaged panels (see dish room under remodeling) 15 $$ 1,100 $ 1.70 sf 450 $ 800 1.210 $ 1,000 129% $ 1,3001Adams Elem5.05Wall Finishes (PT, VWC, etc) LTFM22022 10 $$$sf $1.210 $ 129% $ 1Adams Elem5.06Tile Applications2 roomsKitchen/Dish QT floor5LTFM02022Replace damaged tile (see kitchen under remodeling) 30 $$ 9,500 $ 16.70 sf 450 $ 7,500 1.210 $ 9,100 129% $ 11,7001Adams Elem5.06Tile Applications4 roomsRestroom wainscot CT4LTFM22022Replace damaged tile30 $ 29,200 $ 22,700 $ 18.00 sf 1,000 $ 18,000 1.210 $ 21,800 129 % $ 28,100 29,224 1Adams Elem5.06Tile Applications LTFM22022 $$$sf $1.210 $ 129% $ 1Adams Elem5.07Hand, Guardrail Code Deficiencies Room 232No access to roof to service equipmentportable ladder only 2LTFM22022Provide interior ships ladder & roof hatch $ 81,100 $ 63,000 $ 50,000.00 ls 1 $ 50,000 1.210 $ 60,500 129% $ 78,000 81,120 1Adams Elem5.07Hand, Guardrail Code Deficiencies Stair next to Gym Guard rails are too short (3') and picket spacing over 4" 2LTFM22022Cut off existing guard rails and replace $ 24,400 $ 18,900 $ 500.00 lf 30 $ 15,000 1.210 $ 18,200 129% $ 23,500 24,440 1Adams Elem5.08Accessibility (ADA)South EndL2 Restroomsclearances, access 2LTFM02022(see remodeling) $$$sf 310 $1.210 $ 129% $ 1Adams Elem5.08Accessibility (ADA) LTFM22022 $$$sf $1.210 $ 129% $ 1Adams Elem5.09Secure / Controlled EntriesLocked Vestibule?LTFM2022 $$$sf $1.210 $ 129% $ 1Adams Elem5.10REMODELING ADDITIONSSouth end 2 toilets L2 Restrooms clearances, access 2LTFM22022 $ 163,200 $ 126,500 $ 288.00 sf 310 $ 89,300 1.362 $ 121,600 129% $ 156,900 163,176 1Adams Elem5.10REMODELING ADDITIONS4 Rooms boys girls B218, B223 Restrooms4LTFM32022(appear to meet all requirements except ambulatory stall) $ 394,700 $ 306,000 $ 288.00 sf 750 $ 216,000 1.362 $ 294,200 129% $ 379,500 394,680 1Adams Elem5.10REMODELING ADDITIONSKitchenOld cabinets and equipment not suited for current usage 2LTFM22022Remodel kitchen within existing arrea (existing area is too small, but assumption is can not get bigger) $ 102,600 $ 79,700 $ 288.00 sf 195 $ 56,200 1.362 $ 76,500 129% $ 98,700 102,648 1Adams Elem5.10REMODELING ADDITIONSDishwashingUpdate existing finishes with kitchen update 2LTFM22022Remodel finishes in dishwashing area $ 31,400 $ 24,400 $ 82.50 sf 208 $ 17,200 1.362 $ 23,400 129% $ 30,200 31,408 1Adams Elem5.10REMODELING ADDITIONS LTFM22022 $$$ls $1.362 $ 129% $ © Copyright 2021 Armstrong Torseth Skold Rydeen, Inc. Page 3 of 7
Fergus Falls Facility Assessment 9/14/2021 200 201 202 203 ABCDEFGHIJKLMNOPQRSTUVWXYZAAAC Adams Elementary 41,770 SF Dan M, Pat C, Mike M, Dave B, Ron S. 2022 TOTAL PRIORITIES 4,804,072 $ Projected2022 BaseEst.Proj.Base2022 PROJECTConstructionUnitConstCostConst.CostProjectProject COST Cost Basis Cost Unit Quantity Cost Factor Cost Factor Cost Cost Year Action Recommended Life Exp. (yrs) Reb. (Y/N) Item Description 1-5 Cond. Install Orig. Repl. Fund Yr Fnl Pr. Item Code Room No.(s) / Area No.(s) Note Bldg No. Location Cat. Code Category Description 316 317 318 319 320 321 322 323 324 325 326 327 328 329 330 331 332 333 334 335 336 337 338 339 340 341 342 343 344 345 346 347 348 349 350 351 352 353 354 355 356 1Adams Elem 6.00Interior (Fixed Equipment) LTFM $$$ls $1.210 $ 129% $ 1Adams Elem6.01Interior BleachersN/A LTFM22022 $$$sf $1.210 $ 129% $ 1Adams Elem6.02Interior Fixed SeatingN/A LTFM22022 $$$sf $1.210 $ 129% $ 1Adams Elem6.03LockersCorridorDamaged from wear and tear 3LTFM22022 Electrostatic paint15 $ 32,400 $ 25,200 $ 50.00 ea 400 $ 20,000 1.210 $ 24,200 129% $ 31,200 32,448 1Adams Elem6.04LockersAthletic N/A LTFM22022 $$$sf $1.210 $ 129% $ 1Adams Elem6.05Stage Curtains N/A LTFM22022 $$$sf $1.210 $ 129% $ 1Adams Elem6.06Curtain / Wall DividersgymN/A LTFM22022 $$$ 95.00 sf $1.210 $ 129% $ 1Adams Elem6.07BB Backstops / Systems LTFM22022 $$$sf $1.210 $ 129% $ 1Adams Elem6.08Wall Pads New Gym3LTFM22022Replace vinyl wall pads (not fire rated foam) 20 $ 7,500 $ 5,800 $ 19.00 sf 240 $ 4,600 1.210 $ 5,600 129% $ 7,200 7,488 1Adams Elem6.08Wall Pads N/A LTFM22022 $$$lf $1.210 $ 129% $ 1Adams Elem6.09Chalk Board / Marker board238 247 253L2 Classrooms2LTFM22022Replace old green chalkboards30 $ 18,500 $ 14,400 $ 189.50 lf 60 $ 11,400 1.210 $ 13,800 129% $ 17,800 18,512 1Adams Elem6.09Chalk Board / Marker board234Library3LTFM22022New markerboard over tackboard30 $ 6,100 $ 4,800 $ 189.50 lf 20 $ 3,800 1.210 $ 4,60 0 129% $ 5,900 6,136 1Adams Elem6.09Chalk Board / Marker board219 221 224 226 242 243 L2 Classrooms3LTFM22022Replace grey markerbaords (recommend white) 30 $ 36,900 $ 28,600 $ 189.50 lf 120 $ 22,700 1.210 $ 27,500 129% $ 35,500 36,920 1Adams Elem6.09Chalk Board / Marker board119 122 124 126 L1 Classrooms3LTFM22022Replace grey markerboards (recommend white) 30 $ 24,600 $ 19,200 $ 189.50 lf 80 $ 15,200 1.210 $ 18,400 129% $ 23,700 24,648 1Adams Elem6.09Chalk Board / Marker board LTFM22022 $$$sf $1.210 $ 129% $ 1Adams Elem6.10Tack Boards233 234 238 242 247 253 L2 Classrooms3LTFM22022Replace old tackboards 25 $ 13,800 $ 10,700 $ 70.50 lf 120 $ 8,500 1.210 $ 10,300 129% $ 13,300 13,832 1Adams Elem6.10Tack Boards L1 ClassroomsLTFM22022 25 $$$ 70.50 lf$1.210 $ 129% $ 1Adams Elem6.11Display Cases N/A LTFM22022 $$$sf $1.210 $ 129% $ 1Adams Elem6.12Operable Dividing WallsN/A LTFM22022 $$$sf $1.210 $ 129% $ 1Adams Elem6.12Operable Dividing WallsN/ANoneLTFM22022 $$$sf $1.210 $ 129% $ 1Adams Elem6.13Cabinetry Counter Tops Stools 219 221 224 226 L2 Classrooms2LTFM22022Replace PLAM base and upper cabinets, sink (slightly better than rooms below) 30 $ 81,000 $ 62,800 $ 312.00 lf 160 $ 49,900 1.210 $ 60,400 129% $ 77,900 81,016 1Adams Elem6.13Cabinetry Counter Tops Stools 233 238 242 243 245 247 248 253 254 L2 Classrooms2LTFM22022Replace PLAM base and upper cabinets, sink 30 $ 228,000 $ 176,700 $ 312.00 lf 450 $ 140,400 1.210 $ 169,900 129% $ 219,200 227,968 1Adams Elem6.13Cabinetry Counter Tops Stools Library Rm 234 Library shelvingmismatched 3LTFM22022 Replace wall shelving at two ends of room for aesthetics 30 $ 25,400 $ 19,700 $ 312.00 lf 50 $ 15,600 1.210 $ 18,900 129% $ 24,400 25,376 1Adams Elem6.13Cabinetry Counter Tops Stools 235Music room3LTFM22022Replace with appropriate music storage30 $ 25,400 $ 19,700 $ 312.00 lf 50 $ 15,600 1.210 $ 18,900 129% $ 24,400 25,376 1Adams Elem6.13Cabinetry Counter Tops Stools L. 1 Classrooms 119 122 124 126 original /old casework2LTFM22022Replace PLAM casework, base, uppers and sink 30 $ 40,700 $ 31,500 $ 312.00 lf 80 $ 25,000 1.210 $ 30,300 129% $ 39,100 40,664 1Adams Elem6.13Cabinetry Counter Tops Stools L1 Workroom/ Printing Caseworkmismatched pieces 3LTFM22022Replace PLAM casework for storage and countertop work surfaces 30 $ 25,400 $ 19,700 $ 312.00 lf 50 $ 15,600 1.210 $ 18,900 129% $ 24,400 25,376 1Adams Elem6.13Cabinetry Counter Tops Stools LTFM22022 $$$ 108.00 lf $1.210 $ 129% $ 1Adams Elem6.14Cubbies Hook Strips L2 Classrooms 245, 248 ,254 Cubbies3LTFM22022Replace PLAM cubbies 30 $ 45,700 $ 35,400 $ 312.00 lf 90 $ 28,100 1.210 $ 34,000 129% $ 43,900 45,656 1Adams Elem6.15Restroom PartitionsMetal partitions-scratched/ damage 4LTFM22022Replace as required20 $ 30,500 $ 23,700 $ 1,251.00 ea 15 $ 18,800 1.210 $ 22,700 129% $ 29,300 30,472 1Adams Elem6.16Wall Mount Café Tables LTFM22022 $$$sf $1.210 $ 129% $ 1Adams Elem6.17Window TreatmentsAdd/ Repair as requiredLTFM22022 20 $$$ 17.80 sf $1.210 $ 129% $ 1Adams Elem6.17Window Treatments LTFM22022 $$$ 17.80 sf $1.210 $ 129% $ 1Adams Elem6.18Kitchen EquipmentKitchen Equip per meeting with Food Service Director Lance Wells LTFM22022Double convection oven, two section freezer, heated pass through, serving line, replace hood at dish machine (inc associated mech work), misc storage equipment and sink $ 168,000 $ 130,300 $ 103,500.00 LS 1 $ 103,500 1.210 $ 125,200 129% $ 161,500 167,960 1Adams Elem6.18Kitchen Equipment LTFM22022 $$LS $1.210 $ 129% $ 1Adams Elem6.19Cold Storage RoomsPortable LTFM22022 $$$sf $1.210 $ 129% $ 1Adams Elem6.19Cold Storage Rooms LTFM22022 $$$sf $1.210 $ 129% $ 1Adams Elem6.20Pool Equipment N/A LTFM22022 $$$sf $1.210 $ 129% $ 1Adams Elem6.21Score / Video BoardN/A LTFM22022 $$$sf $1.210 $ 129% $ 1Adams Elem6.220 LTFM2022 $$$ls $1.210 $ 129% $ 1Adams Elem6.220 LTFM22022 $$$ls $1.210 $ 129% $ 1Adams Elem 7.00 HVAC LTFM $$$ls $1.254 $ 129% $ © Copyright 2021 Armstrong Torseth Skold Rydeen, Inc. Page 4 of 7
Fergus Falls Facility Assessment 9/14/2021 200 201 202 203 ABCDEFGHIJKLMNOPQRSTUVWXYZAAAC Adams Elementary 41,770 SF Dan M, Pat C, Mike M, Dave B, Ron S. 2022 TOTAL PRIORITIES 4,804,072 $ Projected2022 BaseEst.Proj.Base2022 PROJECTConstructionUnitConstCostConst.CostProjectProject COST Cost Basis Cost Unit Quantity Cost Factor Cost Factor Cost Cost Year Action Recommended Life Exp. (yrs) Reb. (Y/N) Item Description 1-5 Cond. Install Orig. Repl. Fund Yr Fnl Pr. Item Code Room No.(s) / Area No.(s) Note Bldg No. Location Cat. Code Category Description 357 358 359 360 361 362 363 364 365 366 367 368 369 370 371 372 373 374 375 376 377 378 379 380 381 382 383 384 385 386 1Adams Elem7.01BoilersMECHLochinvar Boiler, WHV285, 285,000 BTUH Condensing Boiler 42019LTFM22022 30 $ 27,400 $ 21,200 $ 65,000.00 ea 0 $ 18,500 1.100 $ 20,400 129% $ 26,300 27,352 1Adams Elem7.05Pumpscondensing, hot water, chilled water, circulation, fuel oil Geowell pumps (2)Taco KV3011, 195 GPM @ 90ft, 15HP 42018LTFM22022 30 $$$ea 2 $1.254 $ 129% $ 1Adams Elem7.05Pumpscondensing, hot water, chilled water, circulation, fuel oil Chilled Water Pumps(2)Taco KV4009, 304 GPM @ 78 ft, 10 HP 42018LTFM22022 30 $$$ea 2 $1.254 $ 129% $ 1Adams Elem7.05Pumpscondensing, hot water, chilled water, circulation, fuel oil Hot Water Pumps(2)Taco KV2508, 170 GPM @78 ft, 7.5HP 42018LTFM22022 30 $$$ea 2 $1.254 $ 129% $ 1Adams Elem7.07Air handler units ERUdampers Fan coil units FCU-1 thru 30 42018LTFM22022 25 $$$ea 30 $1.254 $ 129% $ 1Adams Elem7.07Air handler units ERUdampers Innovent DOAS Unit, MN E-RHXC-2/SP-58503-C provides outdoor air to fan coil units, 5850 CFM, 32004LTFM22022 25 $$$ea 30 $1.254 $ 129% $ 1Adams Elem7.07Air handler units ERUdampers AHU-0842018LTFM22022 25 $$$ea 30 $1.254 $ 129% $ 1Adams Elem7.07Air handler units ERUdampers AHU-3042018LTFM22022 25 $$$ea 30 $1.254 $ 129% $ 1Adams Elem7.10Exhaust fansPRV utility sets A216TOILET EXHAUST2LTFM22022Replace with direct drive exhaust fan $ 13,400 $ 10,500 $ 8,000.00 ea 1 $ 8,000 1.254 $ 10,000 129% $ 12,900 13,416 1Adams Elem7.10Exhaust fansPRV utility sets A217TOILET EXHAUST2LTFM22022Replace with direct drive exhaust fan $ 13,400 $ 10,500 $ 8,000.00 ea 1 $ 8,000 1.254 $ 10,000 129% $ 12,900 13,416 1Adams Elem7.10Exhaust fansPRV utility sets A218TOILET EXHAUST3LTFM22022Replace with direct drive exhaust fan $ 13,400 $ 10,500 $ 8,000.00 ea 1 $ 8,000 1.254 $ 10,000 129% $ 12,900 13,416 1Adams Elem7.10Exhaust fansPRV utility sets A223TOILET EXHAUST3LTFM22022Replace with direct drive exhaust fan $ 13,400 $ 10,500 $ 8,000.00 ea 1 $ 8,000 1.254 $ 10,000 129% $ 12,900 13,416 1Adams Elem7.17Cooling systemschillers / pumps / ice storage cooling towers gas fired absorbers Multistack MS050X (3), 135 Tons 42018LTFM22022 25 $ 272,500 $ 211,300 $ 1,200.00 ton 135 $ 162,000 1.254 $ 203,100 129% $ 262,000 272,480 1Adams Elem 8.00 Plumbing LTFM $$$ls $1.254 $ 129% $ 1Adams Elem8.01Motors controllers / pumps systems VFDs and electrical feeders to accommodate LTFM22022 $$$sf $1.254 $ 129% $ 1Adams Elem8.02Piping (domestic) / labeling conditioning LTFM22022 $$$sf $1.254 $ 129% $ 1Adams Elem8.03Isolation valves excercize / access LTFM22022 $$$sf $1.254 $ 129% $ 1Adams Elem8.04Fittings / Couplings LTFM22022 $$$sf $1.254 $ 129% $ 1Adams Elem8.05Piping (sanitary) LTFM22022 $$$sf $1.254 $ 129% $ 1Adams Elem8.06Sump pumps lift stations LTFM22022 $$$sf $1.254 $ 129% $ 1Adams Elem8.07Storm piping / rain water leaders (below drain bowl) LTFM22022 $$$sf $1.254 $ 129% $ 1Adams Elem8.08Plumbing FixturesSouth Toilet rooms Toilet 1 B218/B223 F-1 (4), F-2(3), F-3(6) 2 Flush valves are on a timer LTFM02022Replace fixtures refer to arch for ada updates (remodeling) $$ 47,500 $ 2,800.00 ea 13 $ 36,400 1.254 $ 45,600 129% $ 58,8001Adams Elem8.08Plumbing FixturesNorth Toilet rooms Toilet 2 B216/B217: F-1 (4), F-2(2), F-3(3) 2LTFM22022Replace fixtures refer to arch for ada updates $ 42,400 $ 32,900 $ 2,800.00 ea 9 $ 25,200 1.254 $ 31,600 129% $ 40,800 42,432 1Adams Elem8.08Plumbing Fixtures Toilet 3 A113/A114: F-1 (6), F-2(3), F-3(7) 4LTFM22022 $$$ 2,800.00 ea $1.254 $ 129% $ 1Adams Elem8.08Plumbing Fixtures Toilet 4 A106, A200, A214A & B208: F-1, F-3 3LTFM22022Replace fixtures refer to arch for ada updates $$$ 2,800.00 ea $1.254 $ 129% $ 1Adams Elem8.08Plumbing Fixtures119 122 124 126 L1 Classroom Sinks 2LTFM22022Replace fixturerefer to arch for casework updates $ 16,700 $ 13,100 $ 2,500.00 ea 4 $ 10,000 1.254 $ 12,500 129% $ 16,100 16,744 1Adams Elem8.08Plumbing Fixtures219 221 224 226 L2 Classroom Sinks 2LTFM22022Replace fixturerefer to arch for casework updates $ 16,700 $ 13,100 $ 2,500.00 sf 4 $ 10,000 1.254 $ 12,500 129% $ 16,100 16,744 1Adams Elem8.08Plumbing Fixtures233 238 242 243 245 247 248 253 254L2 Classroom Sinks 2LTFM22022Replace fixturerefer to arch for casework updates $ 37,900 $ 29,400 $ 2,500.00 sf 9 $ 22,500 1.254 $ 28,200 129% $ 36,400 37,856 1Adams Elem8.08Plumbing Fixtures AO smith KEN8080 gallon 45KW waterheater 2LTFM198222022Replace with high efficiency gas fired hot water heater 15 $ 30,400 $ 23,500 $ 18,000.00 ea 1 $ 18,000 1.254 $ 22,600 129% $ 29,200 30,368 1Adams Elem8.08Plumbing Fixtures AO smith EES8080 gallon 45KW waterheater 2LTFM199622022Replace with high efficiency gas fired hot water heater 15 $ 30,400 $ 23,500 $ 18,000.00 ea 1 $ 18,000 1.254 $ 22,600 129% $ 29,200 30,368 © Copyright 2021 Armstrong Torseth Skold Rydeen, Inc. Page 5 of 7
Fergus Falls Facility Assessment 9/14/2021 200 201 202 203 ABCDEFGHIJKLMNOPQRSTUVWXYZAAAC Adams Elementary 41,770 SF Dan M, Pat C, Mike M, Dave B, Ron S. 2022 TOTAL PRIORITIES 4,804,072 $ Projected2022 BaseEst.Proj.Base2022 PROJECTConstructionUnitConstCostConst.CostProjectProject COST Cost Basis Cost Unit Quantity Cost Factor Cost Factor Cost Cost Year Action Recommended Life Exp. (yrs) Reb. (Y/N) Item Description 1-5 Cond. Install Orig. Repl. Fund Yr Fnl Pr. Item Code Room No.(s) / Area No.(s) Note Bldg No. Location Cat. Code Category Description 387 388 389 390 391 392 393 394 395 396 397 398 399 400 401 402 403 404 405 406 407 408 409 410 411 412 413 414 415 416 417 418 419 420 421 1Adams Elem8.10Drinking FountainsA204drinking fountain at top of stairs 2LTFM22022replace with new water cooler to include bottle fill $ 5,100 $ 4,000 $ 3,000.00 ea 1 $ 3,000 1.254 $ 3,800 129% $ 4,900 5,096 1Adams Elem8.11Fire suppressionsource pumps / distribution / heads LTFM22022 $$$sf $1.254 $ 129% $ 1Adams Elem8.12Compressed air system LTFM22022 $$$sf $1.254 $ 129% $ 1Adams Elem8.13Plumbing for fume hoods LTFM22022 $$$sf $1.254 $ 129% $ 1Adams Elem8.14Pools pumps / heat exchangers filter systems / drainage chemical feed LTFM22022 $$$sf $1.254 $ 129% $ 1Adams Elem8.15Domestic Water Heaters LTFM22022 $$$sf $1.254 $ 129% $ 1Adams Elem8.15Domestic Water Heaters LTFM22022 $$$sf $1.254 $ 129% $ 1Adams Elem8.16 Water Treatment / Softeners / Wells LTFM22022 $$$sf $1.254 $ 129% $ 1Adams Elem 9.00 Electrical LTFM $$$ls $1.254 $ 129% $ 1Adams Elem9.01Electrical Study Update / Main medium voltage tranformer metering LTFM22022 $$ea $1.254 $ 129% $1Adams Elem9.02Arc-Flash NFPA 70e requirements (OSHA) arc flash labels required by code 3LTFM02022provide arc flash study and labels $$ 6,000 $ 0.11 sf 41,766 $ 4,600 1.254 $ 5,800 129% $ 7,5001Adams Elem9.03Electric panelsdistribution / labeling LTFM22022 $$ea $1.254 $ 129% $ 1Adams Elem9.03Electric panelsdistribution / labeling 800
life expectancy (+20 yrs) 2LTFM22022replace with new $ 67,400 $ 52,200 $ 40,000.00 ea 1 $ 40,000 1.254 $ 50,200 129% $ 64,800 67,392 1Adams Elem9.03Electric
distribution / labeling pnl
(+20 yrs) 2LTFM22022replace with new $ 13,400 $ 10,500 $ 4,000.00 ea 2 $ 8,000 1.254 $ 10,000 129% $ 12,900 13,416 1Adams Elem9.03Electric panelsdistribution / labeling pnl E1 past life expectancy (+20 yrs) 2LTFM22022replace with new $ 6,800 $ 5,300 $ 4,000.00 ea 1 $ 4,000 1.254 $ 5,000 129% $ 6,500 6,760 1Adams Elem9.03Electric panelsdistribution / labeling 60 amp pnl past life expectancy (+20 yrs) 2LTFM22022replace with new $ 6,800 $ 5,300 $ 4,000.00 ea 1 $ 4,000 1.254 $ 5,000 129% $ 6,500 6,760 1Adams Elem9.05Fire Alarm ADDRESSIBLE NOT VOICE EVACUATION 3LTFM02022REPLACE WITH VOICE EVACUATION TYPE SYSTEM (current code, not required but desirable) $$ 76,300 $ 1.40 sf 41,766 $ 58,500 1.254 $ 73,400 129% $ 94,7001Adams Elem9.08Emergency generators battery backup systems inverters LTFM22022 $$sf $1.254 $ 129% $ 1Adams Elem9.08Emergency generators battery backup systems inverters LTFM22022 $$$ls $1.254 $ 129% $ 1Adams Elem9.09Sound Systems LTFM22022 $$$ls $1.254 $ 129% $ 1Adams Elem9.09Sound Systems LTFM22022 $$$ls $1.254 $ 129% $ 1Adams Elem9.100 LTFM22022 $$$ls $1.254 $ 129% $ 1Adams Elem 10.00 Lighting LTFM $$$ls $1.254 $ 129% $ 1Adams Elem10.01LightingLamps ballasts controls entire building is flourescent lighting 2LTFM22022replace with new LED lighting $ 392,800 $ 304,600 $ 5.59 sf 41,766 $ 233,500 1.254 $ 292,800 129% $ 377,700 392,808 1Adams Elem10.01LightingLamps ballasts controls rooms have no motion sensors 3LTFM22022install lighting contols $ 70,300 $ 54,600 $ 1.00 sf 41,766 $ 41,800 1.254 $ 52,400 129% $ 67,600 70,304 1Adams Elem10.01LightingLamps ballasts controls LTFM22022 $$$sf $1.254 $ 129% $ 1Adams Elem10.02Emergency Lighting / Exit signs 2nd floor corridor has no emergency lighting 2LTFM22022provide emergency battery packs as required. $ 2,000 $ 1,600 $ 0.40 sf 2,880 $ 1,200 1.254 $ 1,500 129% $ 1,900 1,976 1Adams Elem10.02Emergency Lighting / Exit signs exterior exits have no emergency lighting 2LTFM22022provide emergency lighting as required. $ 21,100 $ 16,400 $ 2,500.40 ea 5 $ 12,500 1.254 $ 15,700 129% $ 20,300 21,112 1Adams Elem10.04Security Lighting (Exterior) LTFM22022 $$ea $1.254 $ 129% $ 1Adams Elem10.05Parking lot lighting LTFM22022 $$$ea $1.254 $ 129% $ 1Adams Elem10.06Exterior athletic lightinglamps / standards / bases LTFM22022 $$$ls $1.254 $ 129% $ 1Adams Elem10.070 LTFM22022 $$$ls $1.254 $ 129% $ 1Adams Elem10.090 LTFM22022 $$$ls $1.254 $ 129% $ 1Adams Elem10.100 LTFM22022 $$$ls $1.254 $ 129% $ 1Adams Elem 11.00Technology / Security LTFM $$$ls $1.254 $ 129% $ © Copyright 2021 Armstrong Torseth Skold Rydeen, Inc. Page 6 of 7
amp old switchboard past
panels
next to IMC, and pnl in rm B222-100A/P past life expectancy
Fergus Falls Facility Assessment 9/14/2021 200 201 202 203 ABCDEFGHIJKLMNOPQRSTUVWXYZAAAC Adams Elementary 41,770 SF Dan M, Pat C, Mike M, Dave B, Ron S. 2022 TOTAL PRIORITIES 4,804,072 $ Projected2022 BaseEst.Proj.Base2022 PROJECTConstructionUnitConstCostConst.CostProjectProject COST Cost Basis Cost Unit Quantity Cost Factor Cost Factor Cost Cost Year Action Recommended Life Exp. (yrs) Reb. (Y/N) Item Description 1-5 Cond. Install Orig. Repl. Fund Yr Fnl Pr. Item Code Room No.(s) / Area No.(s) Note Bldg No. Location Cat. Code Category Description 422 423 424 425 426 427 428 429 430 431 432 433 434 435 436 437 438 439 440 441 442 1Adams Elem11.01Stuctured cablingBuilding1992 vintage. Older cable does not meet current standards 2LTFM22022 $ 50,400 $ 39,200 $ 30,000.00 ls 1 $ 30,000 1.254 $ 37,600 129% $ 48,500 50,440 1Adams Elem11.02Classroom technology systems Classroomworking well4LTFM22022 $$qty $1.254 $ 129% $ 1Adams Elem11.03Local Sound systemsGymold replace system2LTFM22022 $ 20,200 $ 15,700 $ 12,000.00 ls 1 $ 12,000 1.254 $ 15,000 129% $ 19,400 20,176 1Adams Elem11.04Master Clock SystemsBuildingnonenone neededLTFM22022 $$qty $1.254 $ 129% $ 1Adams Elem11.05Building Paging sytemsBuildingnewer Valcom system no corridor speakers 5LTFM22022 $$qty $1.254 $ 129% $ 1Adams Elem11.05Building paging corridor speakers Buildingadd corridor paging speakers 2LTFM22022 $ 5,100 $ 4,000 $ 125.00 ea 24 $ 3,000 1.254 $ 3,800 129% $ 4,900 5,096 1Adams Elem11.06Access ControlBuildingnone LTFM22022 $$$qty $1.254 $ 129% $ 1Adams Elem11.07Burgler Alarm System LTFM22022 $$$qty $1.254 $ 129% $ 1Adams Elem11.08Video Surveillance SystemBuildingmeets current needsLTFM22022 $$qty $1.254 $ 129% $ 1Adams Elem11.09TV Distribution SystemBuildingmeets current needsLTFM22022 $$$qty $1.254 $ 129% $ 1Adams Elem11.09TV Distribution System LTFM22022 $$$ls $1.254 $ 129% $ 1Adams Elem11.100 LTFM22022 $$$ls $1.254 $ 129% $ 1Adams Elem11.100 LTFM22022 $$$ls $1.254 $ 129% $ 1Adams Elem 12.00 Furnishings LTFM $$$ls $1.115 $ 129% $ 1Adams Elem12.01Accessories LTFM22022 $$$ls $1.115 $ 129% $ 1Adams Elem 13.00Technology Upgrading LTFM $$$ls $1.254 $ 129% $ 1Adams Elem13.01District wide technology masterplan LTFM22022 $$$ls $1.254 $ 129% $ 1Adams Elem13.020 LTFM22022 $$$ls $1.254 $ 129% $ 1Adams Elem 14.00 Miscellaneous B LTFM $$$ls $1.254 $ 129% $ 1Adams Elem14.010 LTFM22022 $$$ls $1.254 $ 129% $ 1Adams Elem14.010 LTFM22022 $$$ls $1.254 $ 129% $ © Copyright 2021 Armstrong Torseth Skold Rydeen, Inc. Page 7 of 7

Adams Elementary

Educational Adequacy Analysis

Capacity

Note, for elementary schools, capacity is calculated as number of grade level classrooms used, multiplied by district’s max student per section for those grade levels. Use of standard size classrooms for special ed reduces capacity.

Adams has 14 grade level classrooms in 2021 x 24 students/section (1st & 2nd grade max) = 336 student capacity.

Summary

Refer to Educational Adequacy graphics on the next two pages for detailed analysis.

• The site is very ‘undersized’, with little on-site parking, resulting in parent/student drop-off/pickup/parking, staff parking, and bus drop-off/pick-up all occurring on the street. This lack of parking limits size of school activities and has a negative impact on neighborhood traffic (though the building has been there so long that the neighbors are used to it).

• The limitation in the size of the site does not allow for expansion to accommodate 21st century educational needs.

• The standard classrooms are an acceptable size.

• The school lacks appropriate space to accommodate current learning activities that are typically found in classrooms today. For example, the use of differentiated instruction and small group/collaborative learning do not have appropriately designed space.

• The school does not have sufficient space for needs such as pull-out student support services, professional development, or conferencing.

• Special education seems adequate but utilize standard classroom space, which may not be right sized, and makes those classrooms unavailable for standard usage.

• The ‘core’ areas are generally not adequately sized. This includes library, gym, food service prep areas, art/science, and music.

Facilities Study Fergus Falls Public Schools Page | 25

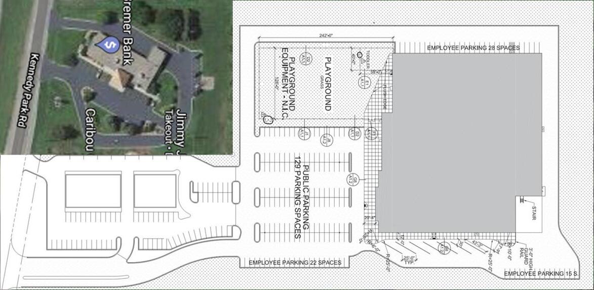
City of Fergus Falls Zoning Code: OffStreet Parking Requirement: 2 parking spaces per classroom x 18 = 36 spaces min. (should also have spaces for other pull-out staff and admin.) Actual = 15 spaces

More adverse impact for neighbors and street traffic due to busses, drop-off/pick- up, and almost all parking being on streets.

2.58 ACRES

MDE Elementary School

Site Requirement: 10 -15 acres + PLUS: one additional acre for each 100 students of estimated student enrollment and community use/partnership program capacity, includin g possible additions = 13 -18 acres Entry

SITE ANALYSIS Educational Adequacy  Site Size (2.58 Acres is very small, MDE is 13-18 acres for this enrollment) Location  Easily Accessible, convenient location  Removed from noise/traffic  Space for Expansion (none) Allow for safe:  Drop Off (limited length, on-street only)  Pedestrian  Bike Traffic (this grade level does not bike)  Traffic Flow (lot access conflict with bus/drop-off requires limitations on access to parking lot) Site Amenities:  Adequate Parking (Limited off-street staff/ visitor/ parent parking)  Bike Racks (N/A)  Athletic Fields (limited fields for school/ community use)  Outdoor classrooms  Environmental learning
Key  Good  Modifications Suggested  Attention Item Staff / Parent Parking Drop Off / Pick Up Heavy Traffic School Bus Adams Elementary School
MAIN
STAFF ENTRY SPEC ED ENTRY SPEC ED BUSSES
ENTRY
ASPHALT AREA
BE BETTER UTILIZED
COULD

Cafeteria #202

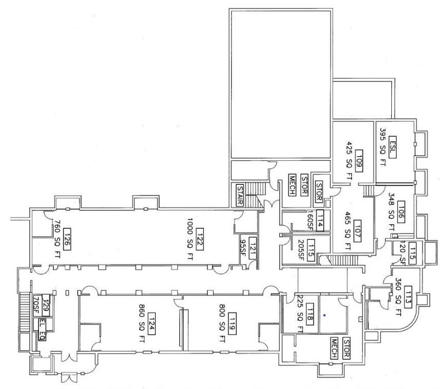
(Original gym) -adequate size at 158 0 as compared to MDE. Size according to number of lunches served and # of lunch periodsgenerally 2-3 at 12-15 square feet per student. 16 full CR-sized spaces

-Secure accessible entry -Limited building zoning -gyms from rest of school.

Admin/Nurse –800 sf –very small –MDE 1840 min. Privacy issues between visitors/ admin functions and ill students / student discipline

Library/ Media Center -1 room at 1070 sf -undersized and lacking seating and support spaces such as small group, conference, office, story area

-14 sections + special ed

Kitchen & Dish room-limited function due to size, designed for a different time and food service delivery model.

Gym addition -very small at 2440 sf, MDE 6-8,000 sf. (also cafeteria is small when used as a gym)

Typsmall room within CR’s: sometimes office or storage, sometimes small group

Music -1 room at 870 sf- inadequate, MDE 1,000-1,500 in multiple activity spaces.

No Art/Science space

2 sets of restrooms this level with limited accessibility; particularly poor condition & inadequate at south addition. Remodeling recommended.

Capacity: 336

Enrollment: +-302

2021

Special Ed using full CR reduces capacity –few other smaller spaces available

(Music too small, no Art) (not supervisable–sinks interior)

(OK –MDE 830-1030 sf)

(must use full CR, no smaller spaces avail)

(Admin / Nurse area too small)

Limited variety of spaces, most are classroom size -missing large group and small as well as sufficient program support spaces –specials, pullouts, etc. Double loaded corridor, "cells & bells", no flex space, lack flexibility to team.

(Minimal daylighting at L.1 support spaces)

 Gyms/PE  Science/Art/Music 
 Special
 Staff Educational
 Variety of Spaces  Individual  One on One  Teaming  Classroomspresentation  Large group, grade level / all school  Variety of Furniture  Agile and Flexible  Architecture –Spatial Connections  Furniture (Flexible/Ergonomic)  Daylighting/Connections to Nature  Lighting  Acoustics  Indoor Air quality  Technology Integration  School & Community
Adams Elementary School Safety & Security  Secure Entry modifications
Building Zoning
Restroom Safety Core space sizes (SF)
Classroom
Cafeteria / Kitchen
Library
Performance
Ed
Environment
Pride/Ethos Messaging EDUCATIONAL ADEQUACY
CR
Second Floor GYM Title 1 CR 2nd CR CR CR CR CR CR CR CR CR 1st LIBRARY 2nd MUSIC Spec Ed Reading CR 2nd 1st 1st 1st 1st 2nd 2nd Title 1 St Lounge Nurse
Below SF Standards Key  Good  Modifications Suggested  Attention Item First Floor CR CR 2nd
2nd Spec Ed 2nd Stor Boiler St Wkrm Spec Ed P.E. St Soc Wk Speech Conf

McKinley Elementary

Facilities Assessment Summary by Category Site

• Replace sections of concrete pavement areas that are broken, pitted, and/or are a trip hazard

o Including the removal and replacement of metal railings where present/necessary

• Remove and replace concrete steps, concrete wing walls, and metal railings

o Steps do not have equal and proportional risers, or a trip hazard exist

• Clean and caulk expansion joint pavement cracks; both structural and/or parallel to building

• Remove and replace sections of asphalt pavement areas to improve drainage. Clean and fill asphalt pavement cracks and seal coat asphalt pavement areas

• Remove, replace, or mend chain link fence sections

• Correct drainage and low areas around building to provide proper drainage away from building. Including planting bed and turf restoration

• NOTE: A playground specialist should evaluate the rubber playground tiles and playground equipment to verify that they are still compliant

General Building Condition – Exterior and Interior

• Roofs out of warranty and beyond life expectancy

• Exterior- masonry restoration, canopies, corrosion at lintels and doors- require upgrades

• Interior- doors, VAT replacement, carpet, roof access and restroom accessibility- require upgrades

Facilities Study Fergus Falls Public Schools Page | 28
Roof ‘Tenting’- stress points
Masonry Condition- Requiring restoration/cleaning/ repair, Replace sealants

Old

Basement

Study Fergus Falls Public Schools Page | 29
Facilities
Roof Access by portable ladder – create interior ships ladder access. Water erosion at base of masonry wall - require correction to divert water away Non-accessible sinks staff area- non accessible, material upgrades required chalkboards/ tackboards- need upgrades

Food Service

• Revise kitchen to comply with hybrid central kitchen district model. Serving line to be replaced for adequate serving. Replace non-compliant equipment including wood cabinetry. Refer to spreadsheet for detailed equipment list.

Mechanical

In 2014 McKinley Elementary School had HVAC upgrades throughout the building. These upgrades include a central geothermal system provides heating and cooling to the building. The plant consists of modular water-cooled chillers and 3 sets of pumps to circulate water through the well, cooling, and heating loops. A rooftop energy recovery unit provides ventilation to the fan coil units. There is a total of 29 fan coil units and 2 air handling units which distribute supply air and provide temperature control. The building energy management system is direct digital control. The following are recommendation incorporated in the report:

• Replace all Gruvlok fittings

• Provide backup hot water boiler

• Replace old exhaust fans

• Replace domestic hot water heaters

Electrical

• Replace fluorescent lighting throughout the building with LED lighting with occupancy sensors for energy savings. Payback is approximately 3 years, not including rebates that may be offered by some utilities.

• Some electrical panels are original and need to be replaced.

Technology

• Replace technology cabling, which is older and does not meet current installation standards. It was installed before there were standards, so it is installed improperly (i.e. running over light fixtures, which can create interference, unsupported laying on ceiling tiles, etc.).

Study Fergus Falls Public Schools Page | 30
Facilities
McKinley Elementary School
Fergus Falls Facility Assessment 9/14/2021 197 198 199 200 201 202 203 204 205 206 207 208 209 210 211 212 213 214 215 216 217 218 219 220 221 222 223 224 225 226 227 228 229 230 231 232 233 234 235 236 237 238 239 ABCDEFGHIJKLMNOPQRSTUVWXYZAAAC 30% $ 65.24 2,924,300 1,2Cond. Priority High (1)$$ $ 49.41 2,215,000 3Cond.Priority Med (2) 5,596,760 $ 5,596,760 $ $ 75.88 3,401,600 4,5Cond.Priority Low (3) 3,401,632 $ 3,401,632 $ McKinley Elem 44,826 SF Dan M, Pat C, Mike M, Dave B, Ron S. 2022 TOTAL PRIORITIES 8,998,392 $ Projected2022 BaseEst.Proj.Base2022 PROJECTConstructionUnitConstCostConst.CostProjectProject COST Cost Basis Cost Unit Quantity Cost Factor Cost Factor Cost Cost 3 LTFM2022 3McKinley Elem 1.00SITEHard surfaces $$$ls 1 $1.292 $129% $3McKinley Elem1.01Asphalt pavingplayground area Asphalt Seal CoatingClean & Fill Cracks 2LTFM22022 $ 800 $ 700 $ 1.25 Lf 400 $ 500 1.292 $ 600 129% $ 800 832 3McKinley Elem1.01Asphalt pavingplayground area Asphalt Seal Coating2LTFM22022 $ 3,500 $ 2,700 $ 2.00 Sy 1,000 $ 2,000 1.292 $ 2,600 129% $ 3,400 3,536 3McKinley Elem1.02Concrete walks / curbsnorthdoor/ramp Remove/ReplaceConcrete Pvmnt 2LTFM22022 $ 35,200 $ 27,300 $ 12.50 Sf 1,620 $ 20,300 1.292 $ 26,200 129% $ 33,800 35,152 3McKinley Elem1.02Concrete walks / curbssteps notsame size, cracling Remove/Replace West Stairs, Wing Walls & Pvmnt 2LTFM22022 $ 43,400 $ 33,600 $ 25,000.00 Ls 1 $ 25,000 1.292 $ 32,300 129% $ 41,700 43,368 3McKinley Elem1.03Curb / Gutterentrance atplayground Remove/Replace Conc. Curb-gutter 2LTFM22022 $ 3,100 $ 2,500 $ 45.00 Lf 40 $ 1,800 1.292 $ 2,300 129% $ 3,000 3,120 3McKinley Elem1.03Curb / Gutternorth entrance and west stair Remove Old Caulking & Re-caulk, bet pavement and bldg 2LTFM22022 $ 1,000 $ 900 $ 5.00 Lf 120 $ 600 1.292 $ 800 129% $ 1,000 1,040 3McKinley Elem 2.00SITEActivity Spaces LTFM $$$ls $1.292 $129% $3McKinley Elem2.01Playgrounds LTFM22022 $$$ls $1.292 $129% $3McKinley Elem2.02Athletic Fields LTFM22022 $$$ls $1.292 $129% $3McKinley Elem2.03 Supporting Activity Structures (Dugouts, fences, etc.) south end of playground Repair Chain Link Fence2LTFM22022 $ 6,300 $ 4,900 $ 60.00 Lf 60 $ 3,600 1.292 $ 4,700 129% $ 6,100 6,344 3McKinley Elem2.03 Supporting Activity Structures (Dugouts, fences, etc.) LTFM22022 $$$ls $1.292 $129% $3McKinley Elem2.04Exterior Bleachersgrandstands LTFM22022 $$$ls $1.292 $129% $3McKinley Elem2.05Hard surface play areas LTFM22022 $$$ls $1.292 $129% $3McKinley Elem 3.00SITEDrainage / Landscaping LTFM $$$ls $1.292 $129% $3McKinley Elem3.01Grass / Turfboth sides of main entrance ramp and SW Add top soil/fill & Sod2LTFM22022 $ 11,400 $ 8,900 $ 6.00 Sf 1,100 $ 6,600 1.292 $ 8,500 129% $ 11,000 11,440 3McKinley Elem3.01Grass / Turf by garden area NE corner Add fill, filter fabric & stone mulch 2LTFM22022 $ 8,300 $ 6,500 $ 8.00 Sf 600 $ 4,800 1.292 $ 6,200 129% $ 8,000 8,320 3McKinley Elem3.02Trees, Shrubs, Planting LTFM22022 $$$ls $1.292 $129% $3McKinley Elem3.03Irrigation Systems LTFM22022 $$$ls $1.292 $129% $3McKinley Elem3.04Monument Signage LTFM22022 $$$ls $1.292 $129% $3McKinley Elem3.05Storm / Drainage LTFM22022 $$$ls $1.292 $129% $3McKinley Elem3.06Accessibility (ADA) LTFM22022 $$$ls $1.292 $129% $3McKinley Elem 4.00Exterior (Building Envelope) LTFM $$$ls $1.210 $129% $3McKinley Elem4.01RoofsConferenceRoom Existing ballasted EPDM older, past warranty 21990LTFM22022Replace with 60 mill fully adhered EPDM with 20 year warranty, more insulation 20 $ 8,700 $ 6,800 $ 16.10 sf 335 $ 5,400 1.210 $ 6,500 129% $ 8,400 8,736 3McKinley Elem4.01RoofsSouthClassrooms Existing ballasted EPDM older, past warranty 21990LTFM22022Replace with 60 mill fully adhered EPDM with 20 year warranty, more insulation 20 $ 90,200 $ 69,900 $ 16.10 sf 3,445 $ 55,500 1.210 $ 67,200 129% $ 86,700 90,168 3McKinley Elem4.01RoofsNorthClassrooms Existing ballasted EPDM older, past warranty 21990LTFM22022Replace with 60 mill fully adhered EPDM with 20 year warranty, more insulation 20 $ 131,500 $ 102,000 $ 16.10 sf 5,030 $ 81,000 1.210 $ 98,000 129% $ 126,400 131,456 3McKinley Elem4.01RoofsWest Cubby Room Existing ballasted EPDM older, past warranty 21990LTFM22022Replace with 60 mill fully adhered EPDM with 20 year warranty, more insulation 20 $ 24,400 $ 18,900 $ 16.10 sf 930 $ 15,000 1.210 $ 18,200 129% $ 23,500 24,440 3McKinley Elem4.01RoofsEast CubbyRoom Existing ballasted EPDM older, past warranty 21990LTFM22022Replace with 60 mill fully adhered EPDM with 20 year warranty, more insulation 20 $ 19,100 $ 14,900 $ 16.10 sf 735 $ 11,800 1.210 $ 14,300 129% $ 18,400 19,136 3McKinley Elem4.01RoofsAdditionExisting ballasted EPDM older, past warranty 21994LTFM22022Replace with 60 mill fully adhered EPDM with 20 year warranty, more insulation 20 $ 262,700 $ 203,700 $ 16.10 sf 10,050 $ 161,800 1.210 $ 195,800 129% $ 252,600 262,704 3McKinley Elem4.01RoofsGymExisting ballasted EPDM older, past warranty 21994LTFM22022Replace with 60 mill fully adhered EPDM with 20 year warranty, more insulation 20 $ 137,700 $ 106,800 $ 16.10 sf 5,270 $ 84,800 1.210 $ 102,600 129% $ 132,400 137,696 3McKinley Elem4.01Roofs LTFM22022 $$sf $1.210 $129% $3McKinley Elem4.02Wall systemsFront entry Canopyconcretepaint peeling 1LTFM22022Scrape and repaint with exterior coating10 $ 800 $ 700 $ 500.00 ls 1 $ 500 1.210 $ 600 129% $ 800 832 3McKinley Elem4.02Wall systems plaster windowinfills/surfaces 10 units 2000sf Plaster damage, stain, minor cracking/crazing 2LTFM22022Clean/restoration of plaster window infills/surfaces 50 $ 82,800 $ 64,200 $ 25.50 sf 2,000 $ 51,000 1.210 $ 61,700 129% $ 79,600 82,784 3McKinley Elem4.02Wall systemsBack gym entry Canopycurved metal fasciadamaged 1LTFM22022Replace damaged metal canopy fascia 40 $ 16,200 $ 12,600 $ 10,000.00 ls 1 $ 10,000 1.210 $ 12,100 129% $ 15,600 16,224 3McKinley Elem4.02Wall systems LTFM22022 $$$ls $1.210 $129% $Year Action Recommended Life Exp. (yrs) Reb. (Y/N) Item Description 1-5 Cond. Install Orig. Repl. Fund Yr Fnl Pr. Item Code Room No.(s) / Area No.(s) Note Bldg No. Location Cat. Code Category Description © Copyright 2021 Armstrong Torseth Skold Rydeen, Inc. Page 1 of 7

paint and plaster surfaces.10

with suspended, high NRC, ACT and grid( with recessed lighting)

paint & plaster

/ Acoustic PanelsOrig gym-music room Original adhered ceiling tile

VWC, etc)Original GymMusic room

Finishes (PT, VWC, etc)RestroomsRm 243, 244 CT wainscot, some damaged tile (small holes, etc)

Repaint for refresh

Finishes (PT, VWC, etc)L 2Classrooms 200 208 216

VWC, etc)L2

Fergus Falls Facility Assessment 9/14/2021 200 201 202 203 ABCDEFGHIJKLMNOPQRSTUVWXYZAAAC McKinley Elem 44,826 SF Dan M, Pat C, Mike M, Dave B, Ron S. 2022 TOTAL PRIORITIES 8,998,392 $ Projected2022 BaseEst.Proj.Base2022 PROJECTConstructionUnitConstCostConst.CostProjectProject COST Cost Basis Cost Unit Quantity Cost Factor Cost Factor Cost Cost Year Action Recommended Life Exp. (yrs) Reb. (Y/N) Item Description 1-5 Cond. Install Orig. Repl. Fund Yr Fnl Pr. Item Code Room No.(s) / Area No.(s) Note Bldg No. Location Cat. Code Category Description 240 241 242 243 244 245 246 247 248 249 250 251 254 255 256 257 258 259 260 261 262 263 264 265 266 267 268 269 270 271 272 273 274 275 3McKinley Elem4.03Tuck pointing / Sealantperimeter 10%Exterior-masonrydeterioration 2LTFM22022Replace shipped/ cracked/spalled brick, tuckpoint mortar joints 50 $ 68,500 $ 53,200 $ 51.00 lf 955 $ 48,700 1.050 $ 51,100 129% $ 65,900 68,536 3McKinley Elem4.03Tuck pointing / Sealantperimeter x sidewall Clean masonry & sills, and stone roof caps on entire envelope 2LTFM22022 50 $ 82,700 $ 64,200 $ 4.10 lf 14,325 $ 58,700 1.050 $ 61,600 129% $ 79,500 82,680 3McKinley Elem4.03Tuck pointing / Sealantasphaltplayground Masonry eroded at base of wall to asphalt 2LTFM22022Replace brick at base of wall & provide material separation to asphalt 50 $ 20,800 $ 16,200 $ 51.00 lf 290 $ 14,800 1.050 $ 15,500 129% $ 20,000 20,800 3McKinley Elem4.03Tuck pointing / SealantWest sideStair opaque wall infillsealant is old 2LTFM22022Re-seal wall panels30 $ 900 $ 800 $ 11.00 lf 60 $ 700 1.050 $ 700 129% $ 900 936 3McKinley Elem4.04Doors / Hardware12 ExteriorDoors Alum/HM Doors Exit devices/Hardware 2LTFM22022Replace missing/ damaged weatherstripping 8 $ 2,200 $ 1,700 $ 105.00 ea 12 $ 1,300 1.210 $ 1,600 129% $ 2,100 2,184 3McKinley Elem4.04Doors / Hardwaregym exterior HM doors Rusted HollowMetal Doors 2LTFM22022Replace pair of doors on gym20 $ 6,300 $ 5,000 $ 3,900.00 ea 1 $ 3,900 1.210 $ 4,700 129% $ 6,100 6,344 3McKinley Elem4.05Curtainwall / StorefrontN/A LTFM22022 $$$ls $1.210 $129% $3McKinley Elem4.06Window systems Corrosion
lintels2LTFM22022Clean of rust and scale, apply rust inhibiting coating 10 $ 8,200 $ 6,300 $ 10.00 lf 500 $ 5,000 1.210 $ 6,100 129% $ 7,900 8,216 3McKinley Elem4.06Window
2LTFM22022Replace
8 $ 1,600 $ 1,300 $ 1,000.00 ls 1 $ 1,000 1.210 $ 1,200 129% $ 1,500 1,560 3McKinley Elem4.07Louvers ScreenwallsFenestration LTFM22022 $$$ls $1.210 $129% $3McKinley Elem4.08Painting and PlasterWeathering
$$$ls $1.210 $129% $3McKinley Elem4.08Painting
LTFM22022 $$$ls $1.210 $129% $3McKinley Elem 5.00Interior (Building) LTFM $$$ls $1.210 $129% $3McKinley Elem5.01Doors / HardwareNon-accessible1LTFM22022Replace with ADA compliant lever7 $ 3,700 $ 2,900 $ 380.00 ea 6 $ 2,300 1.210 $ 2,80 0 129% $ 3,600 3,744 3McKinley Elem5.01Doors / HardwareWood Doors in disrepair2LTFM22022Replace or minimally refinish30 $ 13,800 $ 10,700 $ 1,418.00 ea 6 $ 8,500 1.210 $ 10,300 129% $ 13,300 13,832 3McKinley Elem5.01Doors / Hardware LTFM22022 $$$ls $1.210 $129% $3McKinley Elem5.02Windows / Door Sidelights LTFM22022 $$$ls $1.210 $129% $3McKinley Elem5.03Flooring / BaseFront entrycustodial Break room Abestos (9x9 floor tile? Original? 1LTFM22022Replace flooringexcluding abatement0 $ 9,600 $ 7,500 $ 10.00 sf 589 $ 5,900 1.210 $ 7,100 129% $ 9,200 9,568 3McKinley Elem5.03Flooring / Base113 118 119
216 217 259 DT Classroom carpet 1LTFM22022Remove old and replace with new CPT tile 10 $ 122,100 $ 94,700 $ 10.50 sf 7,165 $ 75,200 1.210 $ 91,000 129% $ 117,400 122,096 3McKinley
2LTFM22022Replace
25 $ 16,000 $ 12,400 $ 6.30 sf 1,560 $ 9,800 1.210 $ 11,900 129% $ 15,400 16,016 3McKinley Elem5.04Ceiling / Acoustic
as required and paint 30 $ 15,700 $ 12,300 $ 11.60 sf 835 $ 9,700 1.210 $ 11,700 129% $ 15,100 15,704 3McKinley Elem5.05Wall
(PT,
Masonry walls with plaster 3LTFM22022Repaint all exposed surfaces10 $ 3,700 $ 2,900 $ 1.50 sf 1,560 $ 2,300 1.210 $ 2,800 129% $ 3,600 3,744 3McKinley Elem5.05Wall
3LTFM22022Replace
tile30 $ 32,800 $ 25,500 $ 18.00 sf 1,120 $ 20,200 1.210 $ 24,400 129% $ 31,500 32,760 3McKinley
3LTFM22022Refresh paint all10 $ 18,600 $ 14,500 $ 1.50 sf 7,645 $ 11,500 1.210 $ 13,900 129% $ 17,900 18,616 3McKinley
(PT,
Supportspaces and Corridor Rm DatedRepaint for refresh 3LTFM22022Refresh paint all10 $ 10,700 $ 8,400 $ 1.50 sf 4,405 $ 6,600 1.210 $ 8,000 129% $ 10,300 10,712 3McKinley Elem5.05Wall Finishes (PT, VWC, etc)Library Rm 212 DatedRepaint for refresh 3LTFM22022Refresh paint all10 $ 2,200 $ 1,700 $ 1.50 sf 860 $ 1,300 1.210 $ 1,600 129% $ 2,100 2,184 3McKinley Elem5.05Wall Finishes (PT, VWC, etc)L1MultipurposeRm 117 DatedRepaint for refresh 3LTFM22022Paint 10 $ 2,900 $ 2,300 $ 1.50 sf 1,205 $ 1,800 1.210 $ 2,200 129% $ 2,800 2,912 3McKinley Elem5.05Wall Finishes (PT, VWC,
L1 Classrooms
120 121 DatedRepaint for refresh 3LTFM22022Paint 10 $ 7,300 $ 5,700 $ 1.50 sf 3,030 $ 4,500 1.210 $ 5,400 129% $ 7,000 7,280 3McKinley Elem5.05Wall
B DatedRepaint for refresh 3LTFM22022Re-paint Walls, Doors/ Frames, expose bar joist structure & metal deck 10 $ 30,700 $ 23,800 $ 1.50 sf 12,600 $ 18,900 1.210 $ 22,900 129% $ 29,500 30,680 3McKinley Elem5.05Wall Finishes (PT, VWC, etc)L1 Supportspaces and corridor 113 DatedRepaint for refresh 3LTFM22022Paint 10 $ 5,600 $ 4,500 $ 1.50 sf 2,330 $ 3,500 1.210 $ 4,200 129% $ 5,400 5,616 3McKinley Elem5.06Tile ApplicationsL2 Restrooms,North end 219 222 Damaged CT floor tiles3LTFM22022Replace damaged CT floors as required30 $ 11,500 $ 9,000 $ 18.00 sf 395 $ 7,100 1.210 $ 8,600 129% $ 11,10 0 11,544 3McKinley Elem5.06Tile ApplicationsL1 RestroomsAddition 107 108 Damaged CT floor tiles3LTFM22022Replace damaged CT floors as required30 $ 13,100 $ 10,200 $ 18.00 sf 450 $ 8,100 1.210 $ 9,800 129% $ 12,60 0 13,104 3McKinley Elem5.06Tile Applications N/A LTFM22022 $$$ls $1.210 $129% $3McKinley Elem5.07Hand, Guardrail / Code Deficiencies Room 214No roof access to service equipment 2LTFM22022Install ships ladder and roof access hatch to access rooftop mech equipment $ 81,100 $ 63,000 $ 50,000.00 ls 1 $ 50,000 1.210 $ 60,500 129% $ 78,000 81,120 © Copyright 2021 Armstrong Torseth Skold Rydeen, Inc. Page 2 of 7
at
systemsRestroom off health room Window sealant
poor fitting window or at minimum re-seal entire opening
LTFM22022Re-finish
and PlasterN/A
209 212
Elem5.04Ceiling
PanelsPlaster ceilingssome cracking, wear2LTFM22022Repair cracks
Finishes
damaged
Elem5.05Wall
Dated
Elem5.05Wall Finishes
etc)
112 119
Finishes (PT, VWC, etc)L1 GymAddition Rm 103 A

kitchen within existing arrea (existing area is too small, but assumption is can not get bigger)

finishes in dishwashing area

Controlled EntriesL1 Entry(accessible) missing vestibule (energy and security)

Controlled EntriesL2 Front Entry locked entry ahead of office (secure secondaryvestibule)

ADDITIONS

Elem5.10REMODELING ADDITIONSKitchenOld cabinets and equipment not suited for current usage

Elem5.10REMODELING ADDITIONSDishwashingUpdate existing finishes with kitchen update

Elem5.10REMODELING ADDITIONS

Elem 6.00Interior (Fixed Equipment)

Fergus Falls Facility Assessment 9/14/2021 200 201 202 203 ABCDEFGHIJKLMNOPQRSTUVWXYZAAAC McKinley Elem 44,826 SF Dan M, Pat C, Mike M, Dave B, Ron S. 2022 TOTAL PRIORITIES 8,998,392 $ Projected2022 BaseEst.Proj.Base2022 PROJECTConstructionUnitConstCostConst.CostProjectProject COST Cost Basis Cost Unit Quantity Cost Factor Cost Factor Cost Cost Year Action Recommended Life Exp. (yrs) Reb. (Y/N) Item Description 1-5 Cond. Install Orig. Repl. Fund Yr Fnl Pr. Item Code Room No.(s) / Area No.(s) Note Bldg No. Location Cat. Code Category Description 276 277 278 279 280 281 282 283 284 285 286 287 288 289 290 291 292 293 294 295 296 297 298 299 300 301 302 303 304 305 306 307 308 309 310 3McKinley Elem5.07Hand, Guardrail / Code Deficiencies Stair near Gym Guard rails are too short (3') and picket spacing over 4" 2LTFM22022Cut off existing guard rails and replace $ 24,400 $ 18,900 $ 500.00 lf 30 $ 15,000 1.210 $ 18,200 129% $ 23,500 24,440 3McKinley Elem5.08Accessibility (ADA)L1 Restrooms107 108 no ambulatory stall1LTFM22022Swing partition door out and add grab bars $ 8,200 $ 6,300 $ 5,000.00 ls 1 $ 5,000 1.210 $ 6,100 129% $ 7,900 8,216 3McKinley Elem5.08Accessibility (ADA)Elevator far end from office LTFM22022 $$$ls $1.210 $129% $3McKinley Elem5.09Secure
2LTFM22022 $ 16,200 $ 12,600 $ 10,000.00 ls 1 $ 10,000 1.210 $ 12,100 129% $ 15,600 16,224 3McKinley Elem5.09Secure
LTFM22022 $$$ls $1.210 $129% $3McKinley Elem5.10REMODELING
LTFM22022 $$$ls $1.362 $129% $-
2LTFM22022Remodel
$
$ 73,400 $
sf
$ 51,800 1.362 $ 70,600 129% $ 91,100 94,744
$
$
sf
$
1.362 $ 15,100 129% $ 19,500 20,280
LTFM22022
$$ls $1.362 $129% $3McKinley
LTFM $$$ls $1.210 $129% $3McKinley Elem6.01Interior BleachersN/A LTFM22022 $$$ls $1.210 $129% $3McKinley Elem6.02Interior Fixed SeatingN/A LTFM22022 $$$ls $1.210 $129% $3McKinley Elem6.03Lockers CorridorMetal damaged from wear and tear LTFM22022electrostatic paint15 $ 32,400 $ 25,200 $ 50.00 ea 400 $ 20,000 1.210 $ 24,200 129% $ 31,200 32,448 3McKinley Elem6.03Lockers Corridor LTFM22022 $$$ls $1.210 $129% $3McKinley Elem6.04Lockers Athletic N/A LTFM22022 $$$ls $1.210 $129% $3McKinley Elem6.05Stage Curtains N/A LTFM22022 $$$ls $1.210 $129% $3McKinley Elem6.06Curtain / Wall DividersgymN/A LTFM22022 $$$ls $1.210 $129% $3McKinley Elem6.07BB Backstops Systems? LTFM22022height adjustable?20 $$$ls $1.210 $129% $3McKinley Elem6.07BB Backstops SystemsN/A LTFM22022 $$$ls $1.210 $129% $3McKinley Elem6.08Wall PadsGym Addition 103 A B Vinyl Wall pads may not be fire rated 3LTFM22022Replace vinyl wall pads20 $ 7,500 $ 5,800 $ 19.00 sf 240 $ 4,600 1.210 $ 5,600 129% $ 7,200 7,488 3McKinley Elem6.08Wall Pads N/A LTFM22022 $$$ls $1.210 $129% $3McKinley Elem6.09Chalk Board / Marker boardL2 ClassroomsExisting greymarkerboards 3LTFM22022Replace grey markerboards (white recommended) 30 $ 61,600 $ 47,700 $ 189.50 lf 200 $ 37,900 1.210 $ 45,900 129% $ 59,200 61,568 3McKinley Elem6.09Chalk Board / Marker board L1 Classrooms 119 120 121 Existing chalk boards2LTFM22022Replace old chalk board with markerboards 30 $ 23,100 $ 17,900 $ 189.50 lf 75 $ 14,200 1.210 $ 17,200 129% $ 22,200 23,088 3McKinley Elem6.10Tack Boards L2 Classrooms 216 217 218 Marker board over existing tack board 3LTFM22022Remove and replace with markerboards25 $ 23,100 $ 17,900 $ 189.50 lf 75 $ 14,200 1.210 $ 17,200 129% $ 22,200 23,088 3McKinley Elem6.10Tack Boards L1 Classrooms 119 120 121 Marker board over existing tack board 3LTFM22022Remove and replace with markerboards25 $ 23,100 $ 17,900 $ 189.50 lf 75 $ 14,200 1.210 $ 17,200 129% $ 22,200 23,088 3McKinley Elem6.11Display Cases N/A LTFM22022 $$$ls $1.210 $129% $3McKinley Elem6.12Operable Dividing WallsN/A LTFM22022 $$$ls $1.210 $129% $3McKinley Elem6.13Cabinetry Counter Tops / Stools L1 Classrooms 119 120 121 Original casework2LTFM22022Replace PLAM base and upper cabinets, sink 30 $ 30,400 $ 23,600 $ 312.00 lf 60 $ 18,700 1.210 $ 22,600 129% $ 29,200 30,368 3McKinley Elem6.13Cabinetry Counter Tops / Stools L 2 Classrooms 216 217 218 Original casework2LTFM22022Replace PLAM base and upper cabinets, sink 30 $ 30,400 $ 23,600 $ 312.00 lf 60 $ 18,700 1.210 $ 22,600 129% $ 29,200 30,368 3McKinley Elem6.14Cubbies / Hook StripsN/A LTFM22022 $$$ls $1.210 $129% $3McKinley Elem6.15Restroom PartitionsAll restroomsMetal partitionswear and tear 3LTFM22022Re-finish Replace as required20 $ 30,500 $ 23,700 $ 1,251.00 ea 15 $ 18,800 1.210 $ 22,700 129% $ 29,300 30,472 3McKinley Elem6.15Restroom PartitionsN/A LTFM22022 $$$ls $1.210 $129% $3McKinley Elem6.16Wall Mount Café TablesN/A LTFM22022 $$$ls $1.210 $129% $3McKinley Elem6.17Window TreatmentsAdd/ Repair as requiredLTFM22022 20 $$$ 17.80 sf $1.210 $129% $3McKinley Elem6.17Window TreatmentsN/A LTFM22022 $$$sf $1.210 $129% $© Copyright 2021 Armstrong Torseth Skold Rydeen, Inc. Page 3 of 7
3McKinley
94,700
288.00
180
3McKinley
2LTFM22022Remodel
20,300
15,800 $ 82.50
135
11,100
3McKinley
$

Elem7.01BoilersMechRevise

Elem7.01BoilersMechExisting Water to Water Heat Pump UnitsWWHP-1 thru 5

3McKinley Elem7.01BoilersMechInstall backup boilerLTFM22022currently the geothermal heat pump system does not have a back-up system for heating the building. We would recommend that a back-up gas fired boiler (3,000 MBH) be installed.

3McKinley Elem7.02Motors / controllers / pumps / systems / VFDs and electrical feeders to accommodate

joints leak throughout the building at the Surejoint couplings. Recommend replacing with Victaulic couplings with 15year leak warranty.

3McKinley Elem7.03fuel oil systems (storage, piping, burners)

Elem7.04HVAC piping (steam hot water), condensate, valves, tanks, heat exchangers MechGruvlok/SurejointCouplings

Fergus Falls Facility Assessment 9/14/2021 200 201 202 203 ABCDEFGHIJKLMNOPQRSTUVWXYZAAAC McKinley Elem 44,826 SF Dan M, Pat C, Mike M, Dave B, Ron S. 2022 TOTAL PRIORITIES 8,998,392 $ Projected2022 BaseEst.Proj.Base2022 PROJECTConstructionUnitConstCostConst.CostProjectProject COST Cost Basis Cost Unit Quantity Cost Factor Cost Factor Cost Cost Year Action Recommended Life Exp. (yrs) Reb. (Y/N) Item Description 1-5 Cond. Install Orig. Repl. Fund Yr Fnl Pr. Item Code Room No.(s) / Area No.(s) Note Bldg No. Location Cat. Code Category Description 311 312 313 314 315 316 317 318 319 320 321 322 323 324 325 326 327 328 329 330 331 332 333 334 335 336 337 338 339 340 341 342 3McKinley Elem6.18Kitchen EquipmentKitchen Equip per meeting with Food Service Director Lance Wells LTFM22022Single convection setting on exg (no hood type due to lower level loc), single section freezer, heated pass through, serving line, scullery sink (and grease trap) and hand sink, misc storage equipment and sink $ 137,100 $ 106,400 $ 84,500.00 LS 1 $ 84,500 1.210 $ 102,200 129% $ 131,800 137,072 3McKinley Elem6.18Kitchen EquipmentDishwash room limited by room size LTFM22022 $$$ls $1.210 $129% $3McKinley Elem6.19Cold Storage RoomsPortableLTFM22022 $$$ls $1.210 $129% $3McKinley Elem6.19Cold Storage RoomsNot adequateLTFM22022 $$$ls $1.210 $129% $3McKinley Elem6.19Cold Storage RoomsN/A LTFM22022 $$$ls $1.210 $129% $3McKinley Elem6.20Pool Equipment None LTFM22022 $$$ls $1.210 $129% $3McKinley Elem6.20Pool Equipment None LTFM22022 $$$ls $1.210 $129% $3McKinley
LTFM22022 $$$ls $1.210 $129% $3McKinley
LTFM22022 $$$ls $1.210 $129% $3McKinley Elem6.220 LTFM22022 $$$ls $1.210 $129% $3McKinley Elem6.220 LTFM22022 $$$ls $1.210 $129% $3McKinley
LTFM $$$ls $1.254 $129% $3McKinley
Heatpump piping and controls 22014LTFM22022There
$$$ls $1.100 $129% $3McKinley
32014LTFM22022 25 $ 479,600 $ 371,800 $ 65,000.00 ls 5 $ 325,000 1.100 $ 357,500 129% $ 461,200 479,648
$
$
$ 65,000.00 ls 3 $ 195,000 1.100 $ 214,500 129% $ 276,700 287,768
$$
$
$
Elem6.21Score Video BoardNone
Elem6.21Score Video BoardNone
Elem 7.00HVAC
is an issue within the piping and control of the heat-pump system that is inhibiting proper system operations. Further investigation needed to gain
287,800
223,100
LTFM22022 $
ls $1.254
129%
-
LTFM22022 $$$ls $1.254 $129% $-
12014LTFM22022Piping
25 $
586,900 $ 450,000.00 ls 1 $ 450,000 1.254 $ 564,300 129% $ 727,900 757,016 3McKinley Elem7.05Pumpscondensing, hot water, chilled water, circulation, fuel oil MechHeat pump chilled pumps (P-5 & P-6) 32014LTFM22022 25 $ 100,900 $ 78,300 $ 30,000.00 ls 2 $ 60,000 1.254 $ 75,200 129% $ 97,000 100,880 3McKinley Elem7.05Pumpscondensing,
MechHeat
32014LTFM22022 25 $ 218,700 $ 169,600 $ 65,000.00 ls 2 $ 130,000 1.254 $ 163,000 129% $ 210,300 218,712 3McKinley Elem7.05Pumps
condensing,
water,
MechWell
(P-1/2
32014LTFM22022 25 $ 218,700 $ 169,600 $ 65,000.00 ls 2 $ 130,000 1.254 $ 163,000 129% $ 210,300 218,712 3McKinley Elem7.06Energy ManagementSystems (24 volt low voltage) Existing Climate Control DDC energymanagement
32014LTFM22022Perform
30 $ 605,600 $ 469,500 $ 6.00 sf 60,000 $ 360,000 1.254 $ 451,400 129% $ 582,300 605,592 3McKinley Elem7.07Air handler units / ERUdampers Existing FCU-1 thru 2942014LTFM32022 30 $ 3,280,600 $ 2,543,200 $ 65,000.00 ls 30 $ 1,950,000 1.254 $2,445,300 129% $ 3,154,400 3,280,576 3McKinley Elem7.08Terminal units -DER dual duct VAV Radiant heat Cabinet unit heaters / unit LTFM22022 $$$ls $1.254 $129% $3McKinley Elem7.09Make-up air units LTFM22022 $$$ls $1.254 $129% $3McKinley Elem7.10Exhaust fans PRV / utility sets 219 222Toilet Exhaust Fan31960LTFM22022Replace Exhaust Fan25 $ 26,900 $ 20,900 $ 8,000.00 ea 2 $ 16,000 1.254 $ 20,100 129% $ 25,900 26,936 3McKinley Elem7.10Exhaust fans PRV / utility sets 243Toilet exhaust fan21939LTFM22022Replace Exhaust Fan25 $ 26,900 $ 20,900 $ 8,000.00 ea 2 $ 16,000 1.254 $ 20,100 129% $ 25,900 26,9 36 3McKinley Elem7.11Liquified-petroleum systems LTFM22022 $$$ls $1.254 $129% $3McKinley Elem7.12water treatmentsofteners for boilers. LTFM22022 $$$ls $1.254 $129% $3McKinley Elem7.13Ductworkhard / plennum LTFM22022 $$$ls $1.254 $129% $3McKinley Elem7.14Ductworkcleaning pressure testing LTFM22022 $$$ls $1.254 $129% $3McKinley Elem7.15Air outlets inlets LTFM22022 $$$ls $1.254 $129% $© Copyright 2021 Armstrong Torseth Skold Rydeen, Inc. Page 4 of 7
3McKinley
757,000 $
hot water, chilled water, circulation, fuel oil
pump heating pumps (P-7 & P-8)
-
hot water, chilled
circulation, fuel oil
Field Pumps
& P-3/4)
system
updates to system and replace componenets as they fail or through routine maintenance.

Elem7.21Pipe and Duct Insulation

Elem7.22Needle Point Bi-Polar Ionization unit

Elem 8.00Plumbing

pumps

controllers

Elem8.01Motors

systems

VFDs and electrical feeders to accommodate

Elem8.02Piping (domestic) labeling conditioning

excercize access

Elem8.03Isolation valves

Fergus Falls Facility Assessment 9/14/2021 200 201 202 203 ABCDEFGHIJKLMNOPQRSTUVWXYZAAAC McKinley Elem 44,826 SF Dan M, Pat C, Mike M, Dave B, Ron S. 2022 TOTAL PRIORITIES 8,998,392 $ Projected2022 BaseEst.Proj.Base2022 PROJECTConstructionUnitConstCostConst.CostProjectProject COST Cost Basis Cost Unit Quantity Cost Factor Cost Factor Cost Cost Year Action Recommended Life Exp. (yrs) Reb. (Y/N) Item Description 1-5 Cond. Install Orig. Repl. Fund Yr Fnl Pr. Item Code Room No.(s) / Area No.(s) Note Bldg No. Location Cat. Code Category Description 343 344 345 346 347 348 349 350 351 352 353 354 355 356 357 358 359 360 361 362 363 364 365 366 367 368 369 370 371 372 373 374 375 376 377 378 379 380 3McKinley Elem7.16Balancing system LTFM22022 $$$ls $1.254 $129% $3McKinley Elem7.17Cooling systemschillers / pumps ice storage / cooling towers gas fired absorbers Chilled water 940 gallon storage tank 42014LTFM32022 25 $ 60,500 $ 47,000 $ 36,000.00 ea 1 $ 36,000 1.254 $ 45,100 129% $ 58,200 60,528 3McKinley Elem7.17Cooling systemschillers / pumps ice storage / cooling towers gas fired absorbers Hot water 940 gallon storage tank 42014LTFM32022 25 $ 60,500 $ 47,000 $ 36,000.00 ea 1 $ 36,000 1.254 $ 45,100 129% $ 58,200 60,528 3McKinley Elem7.17Cooling systemschillers / pumps ice storage / cooling towers gas fired absorbers LTFM22022 $$$ls $1.254 $129% $3McKinley Elem7.18Roof top units DX Split (heat / fan filters) Spot coolers LTFM22022 $$$ls $1.254 $129% $3McKinley Elem7.19dust collection LTFM22022 $$$ls $1.254 $129% $3McKinley Elem7.20Poolsventilationdehumidification / plate exchanger LTFM22022 $$$ls $1.254 $129% $3McKinley Elem7.20Poolsventilationdehumidification / plate exchanger LTFM22022 $$$ls $1.254 $129% $3McKinley Elem7.21Pipe and Duct
LTFM22022 $$$ls $1.254 $129% $-
LTFM22022 $$$ls $1.254 $129% $-
$$$ls $1.254 $129% $-
LTFM $$$ls $1.254 $129% $-
/
/
/
LTFM22022 $$$ls $1.254 $129% $3McKinley
LTFM22022 $$$ls $1.254 $129% $3McKinley
LTFM22022 $$$ls $1.254 $129% $3McKinley Elem8.04Fittings / Couplings LTFM22022 $$$ls $1.254 $129% $3McKinley Elem8.05Piping (sanitary) LTFM22022 $$$ls $1.254 $129% $3McKinley Elem8.06Sump pumps / lift stations LTFM22022 $$$ls $1.254 $129% $3McKinley Elem8.07Storm piping rain water leaders (below drain bowl) LTFM22022 $$$ls $1.254 $129% $3McKinley Elem8.08Plumbing Fixtures119 120 121L1 Classrooms2LTFM22022Replace fixture refer to arch for casework updates $ 12,600 $ 9,800 $ 2,500.00 ea 3 $ 7,500 1.254 $ 9,400 129% $ 12,100 12,584 3McKinley Elem8.08Plumbing Fixtures216 217 218L2 Classrooms2LTFM22022Replace fixture refer to arch for casework updates $ 12,600 $ 9,800 $ 2,500.00 ea 3 $ 7,500 1.254 $ 9,400 129% $ 12,100 12,584 3McKinley Elem8.08Plumbing Fixtures243 244L2 E Toilets3LTFM22022Replace fixture refer to arch for restroom updates $ 56,500 $ 43,900 $ 2,800.00 ea 12 $ 33,600 1.254 $ 42,100 129% $ 54,300 56,472 3McKinley Elem8.08Plumbing Fixtures219 222L2 N Toilets Urinals on a timer 3LTFM22022Replace fixture refer to arch for restroom updates $ 66,000 $ 51,200 $ 2,800.00 ea 14 $ 39,200 1.254 $ 49,200 129% $ 63,500 66,040 3McKinley Elem8.08Plumbing Fixtures255A 2LTFM22022Replace fixture $ 9,400 $ 7,400 $ 2,800.00 ea 2 $ 5,600 1.254 $ 7,000 129% $ 9,000 9,360 3McKinley Elem8.08Plumbing Fixtures252Kitchenette3LTFM22022Replace fixture $ 4,200 $ 3,300 $ 2,500.00 ea 1 $ 2,500 1.254 $ 3,100 129% $ 4,000 4,160 3McKinley Elem8.08Plumbing Fixtures LTFM22022 $$$ls $1.254 $129% $3McKinley Elem8.08Plumbing Fixtures LTFM22022 $$$ls $1.254 $129% $3McKinley Elem8.09Wash Fountains / showers LTFM22022 $$$ls $1.254 $129% $3McKinley Elem8.10Drinking Fountainsporcelain drinking fountain 1LTFM22022replace or remove old porcelain drinking fountain $$$ 2,500.00 ls $1.254 $129% $3McKinley Elem8.10Drinking Fountains newer Elkay water cooler with bottle fill 4LTFM22022 $$$ls $1.254 $129% $3McKinley Elem8.11Fire suppressionsource / pumps distribution heads LTFM22022 $$$ls $1.254 $129% $3McKinley Elem8.12Compressed air system LTFM22022 $$$ls $1.254 $129% $3McKinley Elem8.13Plumbing for fume hoods LTFM22022 $$$ls $1.254 $129% $3McKinley Elem8.14Poolspumps heat exchangers / filter systems drainage chemical feed LTFM22022 $$$ls $1.254 $129% $3McKinley Elem8.14Poolspumps heat exchangers / filter systems drainage chemical feed LTFM22022 $$$ls $1.254 $129% $3McKinley Elem8.15Domestic Water HeatersmechBradford White75T80E3N 75 gallon 76000 btu/h input water 21998LTFM22022Replace with high efficiency water heater $ 13,400 $ 10,500 $ 8,000.00 EA 1 $ 8,000 1.254 $ 10,000 129% $ 12,900 13,4 16 3McKinley Elem8.15Domestic Water HeatersmechElectro Boiler EB-S-23, electric water heater 22.5 KW. 32005LTFM22022Replace electric water heater $ 13,400 $ 10,500 $ 8,000.00 EA 1 $ 8,000 1.254 $ 10,000 129% $ 12,900 13,416 3McKinley Elem8.16 Water Treatment Softeners Wells LTFM22022 $$$ls $1.254 $129% $© Copyright 2021 Armstrong Torseth Skold Rydeen, Inc. Page 5 of 7
Insulation
3McKinley
3McKinley
LTFM22022
3McKinley
3McKinley
/
/

Elem9.04branch circuitscomputer media (utilization voltage120 volt, etc) 400A/3P fused sw in boiler room (20+ years old) 1LTFM22022replace

Fergus Falls Facility Assessment 9/14/2021 200 201 202 203 ABCDEFGHIJKLMNOPQRSTUVWXYZAAAC McKinley Elem 44,826 SF Dan M, Pat C, Mike M, Dave B, Ron S. 2022 TOTAL PRIORITIES 8,998,392 $ Projected2022 BaseEst.Proj.Base2022 PROJECTConstructionUnitConstCostConst.CostProjectProject COST Cost Basis Cost Unit Quantity Cost Factor Cost Factor Cost Cost Year Action Recommended Life Exp. (yrs) Reb. (Y/N) Item Description 1-5 Cond. Install Orig. Repl. Fund Yr Fnl Pr. Item Code Room No.(s) / Area No.(s) Note Bldg No. Location Cat. Code Category Description 381 382 383 384 385 386 387 388 389 390 391 392 393 394 395 396 397 398 399 400 401 402 403 404 405 406 407 408 409 410 411 412 413 414 415 416 3McKinley Elem8.16 Water Treatment Softeners Wells LTFM22022 $$$ls $1.254 $129% $3McKinley Elem 9.00Electrical LTFM $$$ls $1.254 $129% $3McKinley Elem9.01Electrical Study Update / Main / medium voltage / tranformer / metering LTFM22022 $$$ls $1.254 $129% $3McKinley Elem9.02Arc-Flash NFPA 70e requirements (OSHA) arc flash labels required by code 3LTFM02022provide arc flash study and nameplates $$ 6,400 $ 0.11 sq ft 44,826 $ 4,900 1.254 $ 6,100 129% $ 7,9003McKinley Elem9.03Electric panelsdistribution labeling panel LP2100A 120/240 1LTFM22022REPLACE2 $ 6,800 $ 5,300 $ 4,000.00 ea 1 $ 4,000 1.254 $ 5,000 129% $ 6,500 6,760 3McKinley Elem9.03Electric panelsdistribution labeling panel OP2A -225A 120/240 (20+ years old) 2LTFM22022replace 2 $ 6,800 $ 5,300 $ 4,000.00 ea 1 $ 4,000 1.254 $ 5,000 129% $ 6,500 6,760 3McKinley Elem9.03Electric panelsdistribution labeling panel LP4 1001A 120/240 (20+ years old) 2LTFM22022replace 2 $ 6,800 $ 5,300 $ 4,000.00 ea 1 $ 4,000 1.254 $ 5,000 129% $ 6,500 6,760 3McKinley Elem9.03Electric
2LTFM22022 2 $ 6,800 $ 5,300 $ 4,000.00 ea 1 $ 4,000 1.254 $ 5,000 129% $ 6,500 6,760 3McKinley Elem9.03Electric panelsdistribution labeling existing fused panel next to multi purpose room 100A 120/240 (20+ 1LTFM22022replace 2 $ 6,800 $ 5,300 $ 4,000.00 ea 1 $ 4,000 1.254 $ 5,000 129% $ 6,500 6,760 3McKinley
fused disc sw in boiler room (20+ years old) 1LTFM22022replace 2 $ 6,800 $ 5,300 $ 4,000.00 ea 1 $ 4,000 1.254 $ 5,000 129% $ 6,500 6,760 3McKinley
$
$ 7,900 $ 6,000.00 ea 1 $ 6,000 1.254 $ 7,500 129% $ 9,700 10,088 3McKinley
-
-
LTFM22022 $$$ls $1.254 $129% $3McKinley Elem9.05Fire
ADDRESSIBLE NOT
3LTFM02022REPLACE WITH VOICE EVACUATION TYPE SYSTEM
5 $$ 82,000 $ 1.40 SQFT 44,826 $ 62,800 1.254 $ 78,800 129% $ 101,7003McKinley
LTFM22022 $$$ls $1.254 $129% $3McKinley Elem9.06Technology Accomodation LTFM22022 $$$ls $1.254 $129% $3McKinley Elem9.07Low voltage systems (less than 24 volts) LTFM22022 $$$ls $1.254 $129% $3McKinley Elem9.08Emergency generators battery backup systems inverters LTFM22022 $$$ls $1.254 $129% $3McKinley Elem9.09Sound Systems LTFM22022 $$$ls $1.254 $129% $3McKinley Elem9.09Sound Systems LTFM22022 $$$ls $1.254 $129% $3McKinley Elem9.100 LTFM22022 $$$ls $1.254 $129% $3McKinley Elem 10.00Lighting LTFM $$$ls $1.254 $129% $3McKinley Elem10.01Lighting Lamps / ballasts controls entire building is flourescent lighting 2LTFM22022replace with new LED lighting5 $ 421,600 $ 326,900 $ 5.59 sq ft 44,826 $ 250,600 1.254 $ 314,300 129% $ 405,400 421,616 3McKinley Elem10.01Lighting Lamps / ballasts controls rooms have no motion sensors 3LTFM22022add lighting controls5 $ 69,000 $ 53,500 $ 1.00 sq ft 41,042 $ 41,000 1.254 $ 51,400 129% $ 66,300 68,952 3McKinley Elem10.02Emergency Lighting Exit signs corridors have no emergency lighting 1LTFM22022install emergency lighting as required $ 2,400 $ 1,900 $ 0.40 sq ft 3,424 $ 1,400 1.254 $ 1,800 129% $ 2,300 2,39 2 3McKinley Elem10.02Emergency Lighting Exit signs extrerior has no emergency lighting (required by code) 1LTFM22022install emergency lighting as required $ 21,100 $ 16,400 $ 2,500.00 ea 5 $ 12,500 1.254 $ 15,700 129% $ 20,300 21,112 3McKinley Elem10.04Security Lighting (Exterior)existing exterior building lights are hps and incandescent typ) 2LTFM22022replace with LED fixtures. $ 8,400 $ 6,600 $ 500.00 ea 10 $ 5,000 1.254 $ 6,300 129% $ 8,100 8,424 3McKinley Elem10.05Parking lot lighting LTFM22022 $$$ls $1.254 $129% $3McKinley Elem10.06Exterior athletic lightinglamps / standards bases LTFM22022 $$$ls $1.254 $129% $3McKinley Elem10.070 LTFM22022 $$$ls $1.254 $129% $3McKinley Elem10.070 LTFM22022 $$$ls $1.254 $129% $3McKinley Elem10.080 LTFM22022 $$$ls $1.254 $129% $3McKinley Elem10.090 LTFM22022 $$$ls $1.254 $129% $3McKinley Elem10.100 LTFM22022 $$$ls $1.254 $129% $3McKinley Elem 11.00Technology Security LTFM $$$ls $1.254 $129% $3McKinley Elem11.01Stuctured cablingBuilding 1992 vintage older cable. installation no longer meets standards 3LTFM22022 $ 50,400 $ 39,200 $ 30,000.00 ls 1 $ 30,000 1.254 $ 37,600 129% $ 48,500 50,440 3McKinley Elem11.02Classroom technology systems BuildingWorking well5LTFM22022 $$$ls $1.254 $129% $© Copyright 2021 Armstrong Torseth Skold Rydeen, Inc. Page 6 of 7
panelsdistribution labeling existing boiler room panel 200A (20+ years old)
Elem9.03Electric panelsdistribution labeling 100A/3P
2
10,100
Elem9.04branch circuits
computer media (utilization voltage
120 volt, etc)
Alarm
VOICE EVACUATION
(current code, not required but desirable)
Elem9.05Fire Alarm
Fergus Falls Facility Assessment 9/14/2021 200 201 202 203 ABCDEFGHIJKLMNOPQRSTUVWXYZAAAC McKinley Elem 44,826 SF Dan M, Pat C, Mike M, Dave B, Ron S. 2022 TOTAL PRIORITIES 8,998,392 $ Projected2022 BaseEst.Proj.Base2022 PROJECTConstructionUnitConstCostConst.CostProjectProject COST Cost Basis Cost Unit Quantity Cost Factor Cost Factor Cost Cost Year Action Recommended Life Exp. (yrs) Reb. (Y/N) Item Description 1-5 Cond. Install Orig. Repl. Fund Yr Fnl Pr. Item Code Room No.(s) / Area No.(s) Note Bldg No. Location Cat. Code Category Description 417 418 419 420 421 422 423 424 425 426 427 428 429 430 431 3McKinley Elem11.03Local Sound systemsGymolder recommendupdates 3LTFM22022 $ 20,200 $ 15,700 $ 12,000.00 ls 1 $ 12,000 1.254 $ 15,000 129% $ 19,400 20,176 3McKinley Elem11.04Master Clock SystemsBuildingnonenone wantedLTFM22022 $$$ls $1.254 $129% $3McKinley Elem11.05Building Paging sytemsBuildingnewer, works wellLTFM22022 $$$ls $1.254 $129% $3McKinley Elem11.06Access ControlBuildingmeets current needsLTFM22022 $$$ls $1.254 $129% $3McKinley Elem11.07Burgler Alarm System LTFM22022 $$$ls $1.254 $129% $3McKinley Elem11.08Video
$$$ls $1.254 $129% $3McKinley
$$$ls $1.254 $129% $3McKinley Elem11.100 LTFM22022 $$$ls $1.254 $129% $3McKinley Elem 12.00Furnishings LTFM $$$ls $1.115 $129% $3McKinley Elem12.01Accessories LTFM22022 $$$ls $1.115 $129% $3McKinley Elem 13.00Technology Upgrading LTFM $$$ls $1.254 $129% $3McKinley Elem13.01District wide technology masterplan LTFM22022 $$$ls $1.254 $129% $3McKinley Elem13.020 LTFM22022 $$$ls $1.254 $129% $3McKinley Elem 14.00Miscellaneous B LTFM $$$ls $1.254 $129% $3McKinley Elem14.010 LTFM22022 $$$ls $1.254 $129% $© Copyright 2021 Armstrong Torseth Skold Rydeen, Inc. Page 7 of 7
Surveillance SystemBuildingmeets current needsLTFM22022
Elem11.09TV Distribution SystemBuilding meets current needsLTFM22022

McKinley Elementary

Educational Adequacy Analysis Capacity

Note, for elementary schools, capacity is calculated as number of grade level classrooms used, multiplied by district’s max student per section for those grade levels. Use of standard size classrooms for special ed reduces capacity.

McKinley has 11 grade level classrooms in 2021 x 22 students/section (Kindergarten max) = 242 student capacity.

Summary

Refer to Educational Adequacy graphics on the next two pages for detailed analysis.

• The site is very ‘undersized’, with no on-site parking, resulting in parent/student drop-off/pickup/parking, staff parking, and bus drop-off/pick-up all occurring on the street. This lack of parking limits size of school activities and has a negative impact on neighborhood traffic (though the building has been there so long that the neighbors are used to it).

• The limitation in the size of the site does not allow for expansion to accommodate 21st century educational needs.

• The kindergarten rooms are undersized per MDE square footage guidelines. Only the two 1st grade classrooms are an acceptable size per the guidelines.

• The school lacks appropriate space to accommodate current learning activities that are typically found in classrooms today. For example, the use of differentiated instruction and small group/collaborative learning do not have appropriately designed space.

• The school does not have sufficient space for needs such as pull-out student support services, professional development, or conferencing.

• Special education seems adequate but must utilize one standard classroom space, which may not be right sized, and makes that classroom unavailable for standard usage.

• The ‘core’ areas not adequately sized. This includes library, gym, cafeteria, food service prep areas, art/science, and music.

Facilities Study Fergus Falls Public Schools Page | 39

McKinley Elementary School

City of Fergus Falls Zoning Code: OffStreet Parking Requirement: 2 parking spaces per classroom x 15 = 30 spaces min. (should also have spaces for other pull-out staff and admin.)

Actual = NONE

More adverse impact for neighbors and street traffic due to busses, drop-off/pick- up, and all parking being on streets.

MUD PIE PARK –DISTRICT/ COMMUNITY PARTNERSHIP -HIGHLY VALUED BY STAFF

PARENT/ STUDENT ENTRY

2.25 ACRES

STUDENT / STAFF ENTRY

No on-site parking limits school performance size (i.e. Music teacher does performance for parents 9 times)

SLOPING GRASS AREA NOT AS USEFUL FOR PLAY AREA –WOULD BE BETTER IF FLAT

SITE ANALYSIS

Educational Adequacy

 Site Size (2.25 Acres is very small, MDE is 13-18 acres for this enrollment) Location

 Easily Accessible, convenient location

 Removed from noise/traffic  Space for Expansion (none)

Allow for safe:  Drop Off (on-street only –park and walk in)

Pedestrian (these grade levels do not walk)

 Bike Traffic (these grade levels do not bike)

 Traffic Flow (all on-street parking/drop-off/ busses requires timing coordination for safety)

Site Amenities:

 Adequate Parking (no parking)

 Bike Racks (N/A)

 Athletic Fields (limited fields for school/ community use)

 Outdoor classrooms (Mud Pie Park)

 Environmental learning (Mud Pie Park)

MAIN / STAFF ENTRY

SPEC ED BUS

MDE Elementary School Site Requirement: 10 -15 acres +

PLUS: one additional acre for each 100 students of estimated student enrollment and community use/partnership program capacity, includin g possible additions = 13 -18 acres

Key  Good

Modifications Suggested  Attention Item

Staff Parking Drop Off / Pick Up /short-term parent parking

Heavy Traffic School Bus

Entry

Safety & Security-L. 1 -Secure accessible entry on walkout side by e levator. -L. 2 -Locked vestibule, second set of doors prior to office, separate gym access for building zoning, addtldoors at addition.

-Physical plant, storage & staff accessed separatel y from front

12 full std. CR-sized spaces

-11 sections + special ed

Library/ Media Center -2 spaces, 860 +310 sf -undersized and lacking seating and support spaces such as small group, conference, office, story area

Performance in music room limited by site size (no parking), requires multiple sessions.

(open to below)

Small rooms within CR’s: typ. storage

Admin/Nurse –800 sf –very small –MDE 1840 min. Privacy issues between visitors/ admin functions and ill students / student discipline

No Art/Science space

North Capacity: 242

(9) Kindergarten-895-1010 sf -undersized per MDE 12 00-1500 sf., no attached bathroom 2021 Enrollment: +-238

(2) Classrooms-1st grade 890 sf -OK Gym 2 stations-1/2 rec. MDE size4,785 sf total versus MDE 6-8,000 Some students also eat lunch here.

Stg

CR 1st CR 1st Kit Dish OT Speech Comp Lab T T First Floor Staff Boiler Mech Stg McKinley Elementary School

Kitchen & Dish room-limited function due to size, designed for a different time and food service delivery model.

Cafeteria #117 –bot. of range in size at 1200 as compared to MDE. In actual function, is too small –some kids eating in gym. MDE size according to number of lunches served and # of lunch periodsgenerally 2-3 at 12-15 square feet per student. No natural light –poor environment

EDUCATIONAL ADEQUACY

Limited variety of spaces, most are classroom size -missing large group and small for regular student population as well as suf ficient program support spaces –specials, pullouts, etc. spaces. Limits fl exibility & teaching options. Double loaded corridor, "cells & bells", no flex sp ace, capacity limited by number & size of rooms -examples: special ed in a f ull-size classroom or conversely Kindergarten in smaller regular Elementa ry sized classroom. Lack flexibility to team.

(public spaces not together to zone)

Key  Good  Modifications Suggested  Attention Item (no Art) (not supervisable–sinks interior)

(Kind. too small per MDE, only 1 st gr OK)

Portion of (too small) gym partitioned off for Adaptive Phy-Ed and phy-ed storage

CAFETERIA

(using one full CR)

(Admin / Nurse area too small)

L 1 -No connections between ends of building –no elevaccess to South L.1 staff area

Below SF Standards

(No daylighting at L.1 cafeteria)

(Minimal daylighting at L.1 support spaces)

Safety & Security  Secure Entry modifications  Building Zoning  Restroom Safety Core space sizes (SF)  Classroom  Cafeteria/ Kitchen  Library  Gyms/PE  Science/Art/Music  Performance  Special Ed  Staff Educational Environment  Variety of Spaces  Individual  One on One  Teaming  Classroomspresentation  Large group, grade level / all school  Variety of Furniture  Agile and Flexible  Architecture –Spatial Connections  Furniture (Flexible/Ergonomic)  Daylighting/Connections to Nature  Lighting  Acoustics  Indoor Air quality  Technology Integration  School & Community Pride/Ethos Messaging

MUSIC
Second Floor LIBRARY
Spec Ed T T SpecEd SpecEd T T Psych

Lincoln School

Facilities Assessment Summary

This was originally a Target building, constructed in 1998, which the District purchased in 2019 and subsequently developed an early childhood center in the south portion (completed 2021) with shell space in the north portion. Some facilities in the south portion were developed with allowance for capacity for a kindergarten center to move into the north portion in the future, though this is still under review.

Site

• Cut down, clean and caulk expansion joint cracks; parallel to building and along delivery area retaining wall.

• Completion of turf restoration.

• Completion of playground area

General Building Condition – Exterior and Interior

• As would be expected of a building that has just recently been redeveloped (and left with shell space), there are very few facilities needs here. Minor issues have been noted in the summary (some of which may be punch list items for the project just completed).

• The primary general condition need is roofing. The roofing is still in fair condition but is outside its warranty period.

Facilities Study Fergus Falls Public Schools Page | 42
Roof debris- stress at corners and seams

Roof

Mechanical

• Mechanical room appears sufficient to house equipment for future expansion

o Additional air handling unit(s)

o Additional boiler(s)

o Gas meter will likely need to be replaced for increased capacity

Electrical

• No emergency lighting in shell space.

Facilities Study Fergus Falls Public Schools Page | 43
patches and seaming on roof out of warranty

School1.02Concrete

School1.02Concrete

Fergus Falls Facility Assessment 9/14/2021 197 198 199 200 201 202 203 204 205 206 207 208 209 210 211 212 213 214 215 216 217 218 219 220 221 222 223 224 225 226 227 228 229 230 231 232 233 234 235 236 237 238 239 240 241 ABCDEFGHIJKLMNOPQRSTUVWXYZAAAC 0% $ 0.64 56,800 1,2Cond. Priority High (1)$$ $ 29.22 2,612,900 3Cond.Priority Med (2) 9,623,328 $ 9,623,328 $ $ 77.71 6,948,600 4,5Cond.Priority Low (3)$$ Lincoln School 89,420 SF Dan, Pat C, Mike H, Dave B 2022 TOTAL PRIORITIES 9,623,328 $ Projected2022 BaseEst.Proj.Base2022 PROJECTConstructionUnitConstCostConst.CostProjectProject COST Cost Basis Cost Unit Quantity Cost Factor Cost Factor Cost Cost 46 LTFM2022 46Lincoln School 1.00SITEHard surfaces $$$ls 1 $1.292 $129% $46Lincoln School1.01Asphalt pavingAt jointbetween building and conc curb at base/sidewalk transition Cut Down Expansion Joint Material, or Add Backer Rod and Caulk Joints 2LTFM22022 $ 7,800 $ 6,100 $ 5.00 Lf 900 $ 4,500 1.292 $ 5,800 129% $ 7,500 7,800 46Lincoln School1.01Asphalt paving Remove Remaining Silt Fence & Restore Turf 2LTFM22022 $ 1,800 $ 1,400 $ 1,000.00 Ls 1 $ 1,000 1.292 $ 1,300 129% $ 1,700 1,768 46Lincoln School1.01Asphalt paving LTFM22022 $$$sy $1.292 $129% $46Lincoln School1.01Asphalt paving LTFM22022 $$$sy $1.292 $129% $46Lincoln School1.01Asphalt paving LTFM22022 $$$sy $1.292 $129% $46Lincoln School1.01Asphalt paving LTFM22022 $$$sy $1.292 $129% $46Lincoln School1.01Asphalt paving LTFM22022 $$$sy $1.292 $129% $46Lincoln School1.01Asphalt paving LTFM22022 $$$sy $1.292 $129% $46Lincoln
walks curbs LTFM22022 $$$sf $1.292 $129% $46Lincoln
walks curbs LTFM22022 $$$sf $1.292 $129% $46Lincoln
walks curbs LTFM22022 $$$sf $1.292 $129% $46Lincoln
walks curbs LTFM22022 $$ $sf $1.292 $129% $46Lincoln School1.03Curb Gutter LTFM22022 $$ $lf $1.292 $129% $46Lincoln School1.03Curb Gutter LTFM22022 $$ $lf $1.292 $129% $46Lincoln School1.03Curb Gutter LTFM22022 $$ $lf $1.292 $129% $46Lincoln School1.040 LTFM22022 $$ $ls $1.292 $129% $46Lincoln School1.050 LTFM22022 $$ $ls $1.292 $129% $46Lincoln School1.050 LTFM22022 $$ $ls $1.292 $129% $46Lincoln School 2.00SITEActivity Spaces LTFM $$$ls $1.292 $129% $46Lincoln School2.01Playgrounds LTFM22022 $$$sf $1.292 $129% $46Lincoln School2.02Athletic Fields LTFM22022 $$$sf $1.292 $129% $46Lincoln School2.03 Supporting Activity Structures (Dugouts, fences, etc.) LTFM22022 $$$ls $1.292 $129% $46Lincoln School2.04Exterior Bleachers grandstands LTFM22022 $$$sf $1.292 $129% $46Lincoln School2.05Hard surface play areas LTFM22022 $$$sy $1.292 $129% $46Lincoln School2.05Hard surface play areas LTFM22022 $$$sy $1.292 $129% $46Lincoln School2.05Hard surface play areas LTFM22022 $$$ls $1.292 $129% $46Lincoln School 3.00SITEDrainage Landscaping LTFM $$$ls $1.292 $129% $46Lincoln School3.01Grass / Turf Remove Weeds, Add Top Soil, Regrade Turf Areas, Fill in Areas Behind Curbs, Seed, & Properly Cover 2LTFM22022 $ 20,800 $ 16,200 $ 3.00 Sf 4,000 $ 12,000 1.292 $ 15,500 129% $ 20,000 20,800 46Lincoln School3.02Trees, Shrubs, Planting LTFM22022 $$$ls $1.292 $129% $46Lincoln School3.03Irrigation Systems LTFM22022 $$$sf $1.292 $129% $46Lincoln School3.04Monument Signage LTFM22022 $$$sf $1.292 $129% $46Lincoln School3.05Storm / Drainage LTFM22022 $$$ls $1.292 $129% $46Lincoln School3.06Accessibility (ADA) LTFM22022 $$$ea $1.292 $129% $46Lincoln School3.06Accessibility (ADA) LTFM22022 $$$ls $1.292 $129% $46Lincoln School3.070 LTFM22022 $$$ls $1.292 $129% $46Lincoln School3.070 LTFM22022 $$$ls $1.292 $129% $Item Code Note Bldg No. Location Cat. Code Category Description Room No.(s) / Area No.(s) Year Action Recommended Life Exp. (yrs) Reb. (Y/N) Item Description 1-5 Cond. Install Orig. / Repl. Fund Yr Fnl Pr. © Copyright 2021 Armstrong Torseth Skold Rydeen, Inc. Page 1 of 5
School1.02Concrete
School1.02Concrete
Fergus Falls Facility Assessment 9/14/2021 200 201 202 203 ABCDEFGHIJKLMNOPQRSTUVWXYZAAAC Lincoln School 89,420 SF Dan, Pat C, Mike H, Dave B 2022 TOTAL PRIORITIES 9,623,328 $ Projected2022 BaseEst.Proj.Base2022 PROJECTConstructionUnitConstCostConst.CostProjectProject COST Cost Basis Cost Unit Quantity Cost Factor Cost Factor Cost Cost Item Code Note Bldg No. Location Cat. Code Category Description Room No.(s) / Area No.(s) Year Action Recommended Life Exp. (yrs) Reb. (Y/N) Item Description 1-5 Cond. Install Orig. / Repl. Fund Yr Fnl Pr. 242 243 244 245 246 247 248 249 250 251 252 253 254 255 258 259 260 261 262 263 264 265 266 267 268 269 270 271 272 273 274 275 276 277 278 279 280 281 282 283 284 46Lincoln School 4.00Exterior (Building Envelope) LTFM $$$ls $1.210 $129% $46Lincoln School4.01RoofsEntire roofTremco TPO Thermoplastic single ply membrane 32000LTFM22022Replace with 90 mil ballasted EPDM with increased insulation with 30 year warranty (rec longer warranty due to large size) 30 $ 2,612,900 $ 2,025,600 $ 18.00 sf 89,420 $ 1,609,600 1.210 $ 1,947,600 129% $ 2,512,400 2,612,896 46Lincoln School4.01Roofs LTFM22022 $$$sf $1.210 $129% $46Lincoln School4.02Wall systemsExterior Curb cracking at wallLTFM22022Replace cracked/ broken curb $ 5,100 $ 4,000 $ 61.00 lf 50 $ 3,100 1.210 $ 3,800 129% $ 4,900 5,096 46Lincoln School4.03Tuck pointing Sealant LTFM22022 $$$lf $1.050 $129% $46Lincoln School4.04Doors / Hardware LTFM22022 $$$qty $1.210 $129% $46Lincoln School4.05Curtainwall Storefront LTFM22022 $$$sf $1.210 $129% $46Lincoln School4.06Window systems LTFM22022 $$$sf $1.210 $129% $46Lincoln School4.06Window systems LTFM22022 $$$sf $1.210 $129% $46Lincoln School4.07Louvers / Screenwalls / Fenestration LTFM22022 $$$sf $1.210 $129% $46Lincoln School4.08Painting and Plaster LTFM22022 $$$ 3.80 sf $1.210 $129% $46Lincoln School4.08Painting and Plaster LTFM22022 $$$sf $1.210 $129% $46Lincoln School4.09Curbs/ Walks LTFM22022 $$$ 7.90 sf $1.210 $129% $46Lincoln School4.09Curbs/ Walks LTFM22022 $$ $ 174.00 lf $1.210 $129% $46Lincoln School 5.00Interior (Building) LTFM $$$ls $1.210 $129% $46Lincoln School5.01Doors / Hardware LTFM22022 $$$sf $1.210 $129% $46Lincoln School5.01Doors / Hardware LTFM22022 $$$sf $1.210 $129% $46Lincoln School5.02Windows Door Sidelights LTFM22022 $$$sf $1.210 $129% $46Lincoln School5.03Flooring / Base LTFM22022 $$$sf $1.210 $129% $46Lincoln School5.04Ceiling Acoustic Panels LTFM22022 $$$sf $1.210 $129% $46Lincoln School5.05Wall Finishes (PT, VWC, etc) LTFM22022 $$$sf $1.210 $129% $46Lincoln School5.05Wall Finishes (PT, VWC, etc) LTFM22022 $$$sf $1.210 $129% $46Lincoln School5.06Tile Applications LTFM22022 $$$sf $1.210 $129% $46Lincoln School5.07Hand, Guardrail Code Deficiencies LTFM22022 $$$sf $1.210 $129% $46Lincoln School5.08Accessibility (ADA) LTFM22022 $$ $sf $1.210 $129% $46Lincoln School5.09Secure / Controlled Entries LTFM22022 $$ $sf $1.210 $129% $46Lincoln School5.10REMODELING ADDITIONS LTFM22022 $$ $ls $1.362 $129% $46Lincoln School5.10REMODELING ADDITIONSPHASE 2Build-out of remaining space4LTFM22022 $ 6,948,600 $ 5,386,500 $ 101.00 sf 37,650 $ 3,802,700 1.362 $ 5,179,300 129% $ 6,681,300 6,948,552 46Lincoln School 6.00Interior (Fixed Equipment) LTFM $$$ls $1.210 $129% $46Lincoln School6.01Interior Bleachers LTFM22022 $$$sf $1.210 $129% $46Lincoln School6.02Interior Fixed Seating LTFM22022 $$$sf $1.210 $129% $46Lincoln School6.03LockersCorridor LTFM22022 $$$sf $1.210 $129% $46Lincoln School6.04LockersAthletic LTFM22022 $$$sf $1.210 $129% $46Lincoln School6.05Stage Curtains LTFM22022 $$$sf $1.210 $129% $46Lincoln School6.06Curtain / Wall Dividersgym LTFM22022 $$$sf $1.210 $129% $46Lincoln School6.07BB Backstops / Systems LTFM22022 $$$sf $1.210 $129% $46Lincoln School6.08Wall Pads LTFM22022 $$$sf $1.210 $129% $46Lincoln School6.09Chalk Board / Marker board LTFM22022 $$$lf $1.210 $129% $46Lincoln School6.10Tack Boards LTFM22022 $$ $sf $1.210 $129% $46Lincoln School6.11Display Cases LTFM22022 $$ $sf $1.210 $129% $46Lincoln School6.12Operable Dividing Walls LTFM22022 $$ $sf $1.210 $129% $© Copyright 2021 Armstrong Torseth Skold Rydeen, Inc. Page 2 of 5
Fergus Falls Facility Assessment 9/14/2021 200 201 202 203 ABCDEFGHIJKLMNOPQRSTUVWXYZAAAC Lincoln School 89,420 SF Dan, Pat C, Mike H, Dave B 2022 TOTAL PRIORITIES 9,623,328 $ Projected2022 BaseEst.Proj.Base2022 PROJECTConstructionUnitConstCostConst.CostProjectProject COST Cost Basis Cost Unit Quantity Cost Factor Cost Factor Cost Cost Item Code Note Bldg No. Location Cat. Code Category Description Room No.(s) / Area No.(s) Year Action Recommended Life Exp. (yrs) Reb. (Y/N) Item Description 1-5 Cond. Install Orig. / Repl. Fund Yr Fnl Pr. 285 286 287 288 289 290 291 292 293 294 295 296 297 298 299 300 301 302 303 304 305 306 307 308 309 310 311 312 313 314 315 316 317 318 319 320 321 46Lincoln School6.13Cabinetry Counter Tops Stools LTFM22022 $$$lf $1.210 $129% $46Lincoln School6.14Cubbies Hook Strips LTFM22022 $$$sf $1.210 $129% $46Lincoln School6.15Restroom Partitions LTFM22022 $$$sf $1.210 $129% $46Lincoln School6.16Wall Mount Café Tables LTFM22022 $$$sf $1.210 $129% $46Lincoln School6.17Window Treatments LTFM22022 $$$sf $1.210 $129% $46Lincoln School6.18Kitchen Equipment LTFM22022 $$$LS $1.210 $129% $46Lincoln School6.19Cold Storage Rooms LTFM22022 $$$sf $1.210 $129% $46Lincoln School6.19Cold Storage Rooms LTFM22022 $$$ls $1.210 $129% $46Lincoln School6.20Pool Equipment LTFM22022 $$$ls $1.210 $129% $46Lincoln School6.20Pool Equipment LTFM22022 $$$ls $1.210 $129% $46Lincoln School6.21Score / Video Board LTFM22022 $$ $ls $1.210 $129% $46Lincoln School6.21Score / Video Board LTFM22022 $$ $ls $1.210 $129% $46Lincoln School6.220 LTFM22022 $$ $ls $1.210 $129% $46Lincoln School6.220 LTFM22022 $$ $ls $1.210 $129% $46Lincoln School 7.00HVAC LTFM $$$ls $1.254 $129% $46Lincoln School7.01Boilers LTFM22022 $$$MB H $1.100 $129% $46Lincoln School7.01Boilers LTFM22022 $$$mbh $1.100 $129% $46Lincoln
LTFM22022 $$$mbh $1.100 $129% $46Lincoln
/ pumps
LTFM22022 $$$ea $1.254 $129% $46Lincoln School7.03fuel oil systems (storage, piping, burners) LTFM22022 $$$ls $1.254 $129% $46Lincoln School7.04HVAC piping
/ hot water), condensate,
heat exchangers LTFM22022 $$$ls $1.254 $129% $46Lincoln
-
chilled water, circulation, fuel oil LTFM22022 $$$ea $1.254 $129% $46Lincoln School7.06Energy ManagementSystems (24 volt low voltage) LTFM22022 $$$sf $1.254 $129% $46Lincoln School7.07Air handler units ERUdampers LTFM22022 $$$CF M $1.254 $129% $46Lincoln School7.07Air handler units ERUdampers LTFM22022 $$$CF M $1.254 $129% $46Lincoln School7.08Terminal units -DER / dual duct / VAV / Radiant heat Cabinet unit heaters unit ventilators / unit heaters etc. LTFM22022 $$$ea $1.254 $129% $46Lincoln School7.10Exhaust fansPRV utility sets LTFM22022 $$$ea $1.254 $129% $46Lincoln School7.13Ductworkhard plennum LTFM22022 $$$ls $1.254 $129% $46Lincoln School7.15Air outlets inlets LTFM22022 $$$sf $1.254 $129% $46Lincoln School7.18Roof top unitsDX / Split (heat / fan / filters) / Spot coolers LTFM22022 $$$ton $1.254 $129% $46Lincoln School7.19dust collection LTFM22022 $$$EA $1.254 $129% $46Lincoln School7.21Pipe and Duct Insulation LTFM22022 $$$sf $1.254 $129% $46Lincoln School7.21Pipe and Duct Insulation LTFM22022 $$$sf $1.254 $129% $46Lincoln School7.21Pipe and Duct Insulation LTFM22022 $$$ls $1.254 $129% $46Lincoln School7.22Needle Point Bi-Polar Ionization unit LTFM22022 $$$ls $1.254 $129% $46Lincoln School7.22Needle Point Bi-Polar Ionization unit LTFM22022 $$$ls $1.254 $129% $46Lincoln School 8.00Plumbing LTFM $$$ls $1.254 $129% $© Copyright 2021 Armstrong Torseth Skold Rydeen, Inc. Page 3 of 5
School7.01Boilers
School7.02Motors controllers
systems VFDs and electrical feeders to accommodate
(steam
valves, tanks,
School7.05Pumps
condensing, hot water,

heads

School8.08Plumbing Fixtures

School8.10Drinking Fountains

School8.10Drinking Fountains

School8.11Fire suppressionsource pumps / distribution

School8.15Domestic Water Heaters

School8.05Piping (sanitary)

School8.06Sump

Fergus Falls Facility Assessment 9/14/2021 200 201 202 203 ABCDEFGHIJKLMNOPQRSTUVWXYZAAAC Lincoln School 89,420 SF Dan, Pat C, Mike H, Dave B 2022 TOTAL PRIORITIES 9,623,328 $ Projected2022 BaseEst.Proj.Base2022 PROJECTConstructionUnitConstCostConst.CostProjectProject COST Cost Basis Cost Unit Quantity Cost Factor Cost Factor Cost Cost Item Code Note Bldg No. Location Cat. Code Category Description Room No.(s) / Area No.(s) Year Action Recommended Life Exp. (yrs) Reb. (Y/N) Item Description 1-5 Cond. Install Orig. / Repl. Fund Yr Fnl Pr. 322 323 324 325 326 327 328 329 330 331 332 333 334 335 336 337 338 339 340 341 342 343 344 345 346 347 348 349 350 351 352 353 354 46Lincoln School8.01Motors controllers / pumps systems VFDs and electrical feeders to accommodate LTFM22022 $$$ea $1.254 $129% $46Lincoln School8.02Piping (domestic) / labeling conditioning LTFM22022 $$$ls $1.254 $129% $46Lincoln School8.03Isolation valves excercize / access LTFM22022 $$$ea $1.254 $129% $46Lincoln School8.05Piping (sanitary) LTFM22022 $$$sf $1.254 $129% $46Lincoln School8.07Storm piping / rain water leaders (below drain bowl) LTFM22022 $$$ea $1.254 $129% $46Lincoln School8.07Storm piping / rain water leaders (below drain bowl) LTFM22022 $$$ea $1.254 $129% $46Lincoln School8.08Plumbing Fixtures LTFM22022 $$$ea $1.254 $129% $46Lincoln
LTFM22022 $$$ea $1.254 $129% $46Lincoln
LTFM22022 $$$ea $1.254 $129% $46Lincoln
LTFM22022 $$$ea $1.254 $129% $46Lincoln
/
LTFM22022 $$$sf $1.254 $129% $-
LTFM22022 $$$ls $1.254 $129% $46Lincoln School8.03Isolation valves excercize / access LTFM22022 $$$ls $1.254 $129% $46Lincoln School8.04Fittings / Couplings LTFM22022 $$$ls $1.254 $129% $46Lincoln
LTFM22022 $$ $ls $1.254 $129% $46Lincoln
pumps lift stations LTFM22022 $$ $ls $1.254 $129% $46Lincoln School8.07Storm piping / rain water leaders (below drain bowl) LTFM22022 $$ $ls $1.254 $129% $46Lincoln School8.08Plumbing Fixtures LTFM22022 $$ $ls $1.254 $129% $46Lincoln School8.09Wash Fountains showers LTFM22022 $$ $ls $1.254 $129% $46Lincoln School8.10Drinking Fountains LTFM22022 $$ $ls $1.254 $129% $46Lincoln School8.11Fire suppressionsource pumps / distribution / heads LTFM22022 $$ $ls $1.254 $129% $46Lincoln School8.12Compressed air system LTFM22022 $$ $ls $1.254 $129% $46Lincoln School8.13Plumbing for fume hoods LTFM22022 $$ $ls $1.254 $129% $46Lincoln School8.14Pools pumps / heat exchangers filter systems / drainage chemical feed LTFM22022 $$ $ls $1.254 $129% $46Lincoln School8.14Pools pumps / heat exchangers filter systems / drainage chemical feed LTFM22022 $$ $ls $1.254 $129% $46Lincoln School8.15Domestic Water Heaters LTFM22022 $$ $ls $1.254 $129% $46Lincoln School8.15Domestic Water Heaters LTFM22022 $$ $ls $1.254 $129% $46Lincoln School8.16 Water Treatment / Softeners / Wells LTFM22022 $$$ls $1.254 $129% $46Lincoln School8.16 Water Treatment / Softeners / Wells LTFM22022 $$$ls $1.254 $129% $46Lincoln School 9.00Electrical LTFM $$$ls $1.254 $129% $46Lincoln School9.01Electrical Study Update / Main medium voltage tranformer metering LTFM22022 $$$sf $1.254 $129% $46Lincoln School9.02Arc-Flash NFPA 70e requirements (OSHA) arc flash labels required by code 3LTFM02022provide arc flash study and labels $$ 500 $ 0.11 sf 89,420 $ 9,800 1.254 $ 12,300 129% $ 15,90046Lincoln School9.03Electric panelsdistribution / labeling LTFM22022 $$$ 75,000.00 ea $1.254 $129% $© Copyright 2021 Armstrong Torseth Skold Rydeen, Inc. Page 4 of 5
46Lincoln
Fergus Falls Facility Assessment 9/14/2021 200 201 202 203 ABCDEFGHIJKLMNOPQRSTUVWXYZAAAC Lincoln School 89,420 SF Dan, Pat C, Mike H, Dave B 2022 TOTAL PRIORITIES 9,623,328 $ Projected2022 BaseEst.Proj.Base2022 PROJECTConstructionUnitConstCostConst.CostProjectProject COST Cost Basis Cost Unit Quantity Cost Factor Cost Factor Cost Cost Item Code Note Bldg No. Location Cat. Code Category Description Room No.(s) / Area No.(s) Year Action Recommended Life Exp. (yrs) Reb. (Y/N) Item Description 1-5 Cond. Install Orig. / Repl. Fund Yr Fnl Pr. 355 356 357 358 359 360 361 362 363 364 365 366 367 368 369 370 371 372 373 374 375 376 377 378 379 380 381 382 383 384 385 386 387 388 389 390 391 392 46Lincoln School9.03Electric panelsdistribution / labeling LTFM22022 $$$ 2,000.00 ea $1.254 $129% $46Lincoln School9.05Fire Alarm LTFM22022 $$$ 1.40 SF $1.254 $129% $46Lincoln School9.05Fire Alarm LTFM22022 $$$ 350.00 ea $1.254 $129% $46Lincoln School9.06Technology Accomodation LTFM22022 $$$sf $1.254 $129% $46Lincoln School9.07Low voltage systems (less than 24 volts) LTFM22022 $$$sf $1.254 $129% $46Lincoln School9.08Emergency generators battery backup systems inverters LTFM22022 $$$sf $1.254 $129% $46Lincoln School9.09Sound Systems LTFM22022 $$$sf $1.254 $129% $46Lincoln School9.100 LTFM22022 $$$sf $1.254 $129% $46Lincoln School9.100 LTFM22022 $$$sf $1.254 $129% $46Lincoln School 10.00Lighting LTFM $$$sf $1.254 $129% $46Lincoln School10.01LightingLamps ballasts controls LTFM22022 $$$sf $1.254 $129% $46Lincoln School10.02Emergency Lighting / Exit signs there is no emergency lighting in the unfinished area 2LTFM22022 $ 26,400 $ 800 $ 0.40 sf 39,204 $ 15,700 1.254 $ 19,700 129% $ 25,400 26,416 46Lincoln School10.02Emergency Lighting / Exit signs LTFM22022 $$$sf $1.254 $129% $46Lincoln School10.01LightingLamps ballasts controls LTFM22022 $$$sf $1.254 $129% $46Lincoln School10.01LightingLamps ballasts controls LTFM22022 $$$sf $1.254 $129% $46Lincoln School10.01LightingLamps ballasts controls LTFM22022 $$$sf $1.254 $129% $46Lincoln School10.01LightingLamps ballasts controls LTFM22022 $$$sf $1.254 $129% $46Lincoln School10.03Special purpose lighting theaters LTFM22022 $$$sf $1.254 $129% $46Lincoln School10.04Security Lighting (Exterior) LTFM22022 $$$sf $1.254 $129% $46Lincoln School10.05Parking lot lighting LTFM22022 $$$sf $1.254 $129% $46Lincoln School10.05Parking lot lighting LTFM22022 $$$sf $1.254 $129% $46Lincoln School10.06Exterior athletic lightinglamps / standards / bases LTFM22022 $$$sf $1.254 $129% $46Lincoln School10.070 LTFM22022 $$$sf $1.254 $129% $46Lincoln School10.080 LTFM22022 $$$sf $1.254 $129% $46Lincoln School10.090 LTFM22022 $$$sf $1.254 $129% $46Lincoln School10.100 LTFM22022 $$ $sf $1.254 $129% $46Lincoln School10.100 LTFM22022 $$ $ls $1.254 $129% $46Lincoln School 11.00Technology / Security LTFM $$$ls $1.254 $129% $46Lincoln School11.01Stuctured cabling LTFM22022 $$sf $1.254 $129% $46Lincoln School11.02Classroom technology systems LTFM22022 $$sf $1.254 $129% $46Lincoln School11.03Local Sound systems LTFM22022 $$$sf $1.254 $129% $46Lincoln School11.04Master Clock Systems LTFM22022 $$$sf $1.254 $129% $46Lincoln School11.05Building Paging sytems LTFM22022 $$$sf $1.254 $129% $46Lincoln School11.06Access Control LTFM22022 $$$sf $1.254 $129% $46Lincoln School11.07Burgler Alarm System LTFM22022 $$$sf $1.254 $129% $46Lincoln School11.08Video Surveillance System LTFM22022 $$$sf $1.254 $129% $46Lincoln School11.09TV Distribution System LTFM22022 $$$sf $1.254 $129% $46Lincoln School11.100 LTFM22022 $$ $sf $1.254 $129% $© Copyright 2021 Armstrong Torseth Skold Rydeen, Inc. Page 5 of 5

Lincoln School

Educational Adequacy Analysis

Refer to Educational Adequacy graphics on the next three pages for detailed analysis.

Summary:

• The primary issue with this site is management and separation of various types of vehicular and pedestrian traffic. This will be an issue whatever function(s) are developed in the shell space. The site educational adequacy diagram shows how some of this separation might be accomplished.

• An important issue for the interior shell space development is the minimal exterior wall footage compared to the interior space, thus the inability to provide windows in most spaces. Windows are an important delivery mode for natural light, providing that visual connection to nature at eye level. Other ways to bring natural light, such as skylights, both large and small (as have been done in the early childhood portion), or high clerestory windows (vertical mounted windows with roof cap on the roof) will be necessary to the development of the shell space.

• Two diagrams for building educational adequacy are shown. The first shows a preliminary conceptual layout for kindergarten moving into the shell space. The second diagram shows one preliminary concept for how the shell space might be configured for other uses.

• Depending on what function is moved into the shell space, safety and security zoning separating varying usages/ages of occupants will be a challenge. The second building diagram, showing other uses, shows one way this might be managed.

• The nurse area is undersized for an educational usage in the shell space. This area should be evaluated if a different use is developed in the shell space.

Facilities Study Fergus Falls Public Schools Page | 49

Potential future conflict between deliveries/car traffic and future access to east portion of site –if shell becomes student use, consider:

16.62 ACRES

1: Separate bus and delivery traffic from each other and from student path to field/play area with cul-desac for deliveries, 2 nd drive and cul-de-sac for rotated bus area.

2:

OPTION

OPTION

Limit times of deliveries to outside of times access is required, andadd gates at end of drive areas to close off back traffic circulation during those times.

Consider elimination of staff parking areas at sides of building to eliminate traffic conflicts.

If Kindergarten site, missing residential neighborhood surroundings for field trips, etc. –would have to create outdoor learning on site

City of Fergus Falls Zoning Code: OffStreet Parking Requirement: 2 parking spaces per classroom x 18 exg CR = 34 spaces min.(current occupancy) (should also have spaces for other pull-out staff and admin.)

Future occupancy to be determined.

Actual = 123+26+15= 164 sp

Site Requirement: 10 -15 acres +

MDE Elementary School

PLUS: one additional acre for each 100 students of estimated student enrollment and community use/partnership program capacity, including possible additions 368+250(?) future = 16 -21 acres

Staff / Parent Parking Drop Off / Pick Up Heavy Traffic School Bus Lincoln School Entry

SITE ANALYSIS Educational Adequacy  Site Size (8.61+8.01=16.62 acres) Location

Easily Accessible, convenient location  Removed from noise/traffic  Space for Expansion (limited with site config) Allow for safe:  Drop Off (none at this time)  Pedestrian (not pedestrian friendly area)  Bike Traffic (not bike friendly, may not be req)  Traffic Flow (conflicts with car, bus and delivery traffic, and with potential access to east portion of site)

Site Amenities:  Adequate Parking  Bike Racks (N/A)  Athletic Fields (depending on future occ)  Outdoor classrooms (depending on future occ)  Environmental learning (depending on future occupancy) Key  Good  Modifications Suggested  Attention Item Bus / Delivery travel path

NOTE: SITE PLAN AND FLOOR PLAN ARE FOR REFERENCE ONLY -BY DESIGN INTENT ARCHITECTS MAIN ENTRY PARENT & STAFF PARKING –123 sp
STAFF PARKING –26 sp
LOADING DOCK
STAFF PARKING -15 sp

Lincoln School –Option 1

Preliminary Conceptual Plan for potential Kindergar ten (10 sections, approx. 1,400-1,500 s.f.ea)

Food Service Area at 930 sf is undersized per MDE Elem School –3300 sf min. -can vary per District/program requirements -may recommend adding extra square footage for future flexibility/needs (walk-in-cooler?) –needs further review with scope of future build-out Gym at 7600 sf OK per MDE 6000 sf min, though propo rtion limits multipurpose community use (BB court, etc) (may not want with this population)

To playground/ outdoor learning

Outdoor learning / dining

Conf

EDUCATIONAL ADEQUACY

Safety & Security

(Gym/cafeteria separation/multi-use complicates zoning)

 Secure Entry modifications  Building Zoning  Restroom Safety Core space sizes (SF)

Internal CR’s = minimal wdwsand natural light –have todo skylights, missing direct visual connection to nature for teaching, etc.

(Cafeteria or Gym)

(need larger nurse, build out office)

 Classroom  Cafeteria / Kitchen  Library  Gyms/PE  Science/Art/Music  Performance  Special Ed  Staff Educational Environment  Variety of Spaces

undersized per MDE –650 sf min plus toilet –recommend remodel.

NOTE: BACKBROUND SITE PLAN AND FLOOR PLAN ARE FOR REFERENCE ONLY -BY DESIGN INTENT ARCHITECTS

Nurse Area at 130 sf

Recommend build-out of conference and office space as required

Key  Good  Modifications Suggested  Attention Item

(Minimal LF for wdws, need skylights/clerestories at build-out)

(potential sound transmission due to high structure)

Below SF Standards

 Individual  One on One  Teaming  Classroomspresentation  Large group, grade level / all school  Variety of Furniture  Agile and Flexible  Architecture –Spatial Connections  Furniture (Flexible/Ergonomic)  Daylighting/Connections to Nature  Lighting  Acoustics  Indoor Air quality  Technology Integration  School & Community Pride/Ethos Messaging

Lincoln School –Option 2

Food Service Area at 930 sf is undersized per MDE Elem School –3300 sf min. -can vary per District/program requirements -may recommend adding extra square footage for future flexibility/needs (walk-in-cooler?) –needs further review with scope of future build-out

Preliminary Conceptual Plan for E.C. expansion, other uses, maintaining separate entry / zoning

Goal to maintain separate circulation and security zoning bet E.C. and other uses –overlap at Gym lobby

Lobby

To community fields/ outdoor learning

EDUCATIONAL ADEQUACY

undersized per MDE –650 sf min plus toilet –verify req per new usage Gym at 7600 sf OK per MDE 6000 sf min, though propo rtion limits multipurpose community use (BB court, etc) (may not want with this population)

(Gym/cafeteria separation/multi-use complicates zoning)

Staff/ Public Parking

Outdoor learning / dining

Nurse Area at 130 sf

Special Ed Bus Drop-off/Pick-up

Safety & Security

 Secure Entry modifications  Building Zoning  Restroom Safety Core space sizes (SF)

 Classroom  Cafeteria / Kitchen  Library  Gyms/PE 

NOTE: BACKBROUND SITE PLAN AND FLOOR PLAN ARE FOR REFERENCE ONLY -BY DESIGN INTENT ARCHITECTS

Recommend build-out of conference and office space as required

Conf

(Cafeteria or Gym)

(need larger nurse, build out office)

Science/Art/Music  Performance  Special Ed  Staff Educational Environment  Variety of Spaces

 Individual  One on One  Teaming  Classroomspresentation  Large group, grade level / all school  Variety of Furniture  Agile and Flexible  Architecture –Spatial Connections  Furniture (Flexible/Ergonomic)  Daylighting/Connections to Nature

Internal CR’s /Offices = minimal wdwsand natural light –have todo skylights, missing direct visual connection to nature.

Key  Good  Modifications Suggested  Attention Item

`

(Minimal LF for wdws, need skylights/clerestories at build-out) (potential sound transmission due to high structure)

Below SF Standards

 Lighting  Acoustics  Indoor Air quality  Technology Integration  School & Community Pride/Ethos Messaging

Roosevelt Education Center

Note this assessment does not include the ice arenas, dry land training area, or the arena locker room area, as these are owned by the City of Fergus Falls.

Facilities Assessment Summary by Category Site

• Replace sections of concrete pavement areas that are broken, pitted, and/or are a trip hazard

o Including the removal and replacement of metal railings where present/necessary

• Remove, replace, and reconstruct sections of concrete pavement

• Clean and caulk expansion joint pavement cracks; both structural and/or parallel to building

• Remove, replace, and reconstruct sections of concrete curbs

• Remove, replace, and reconstruct asphalt pavement areas. Add in concrete aprons at parking lot and front drive loop entrances

• Mill and overlay asphalt pavement areas, including cleaning and filling of pavement cracks

• Clean and fill asphalt pavement cracks and seal coat asphalt pavement areas

• Remove, replace, or mend chain link fence and backstop sections

• Correct drainage and low areas around building to provide proper drainage away from building

General Building Condition – Exterior and Interior

• The building has many exterior envelope needs, which should be a high priority.

• Gym roof ice issue: the District noted that there is a safety hazard in early spring with ice/snow sliding off the curved gym roof; they have to cordon off the gym entry/exits at those times. This issue is complex and will require further study to develop a solution if there is one.

• Roofing: though the District has begun reroofing some areas in the last 5 years, the majority of the roofs are well past their warranty, and several are showing membrane tenting/pulling in at the perimeter, which makes the roofing vulnerable to tearing. This tenting action is so strong on the roof area above the cafeteria, that it has pulled and warped the parapet walls in – these must be replaced along with reroofing.

Facilities Study Fergus Falls Public Schools Page | 53

• The Vocational Wing (original and both additions to that area) has a deficient condition at the top of the wall, where the brick meets the metal fascia. There is no metal flashing overlap on the brick, so the only protection of the top of the brick wall is caulking. The caulking is old and cracked and is letting water into the top of the brick. This has caused spalling and deterioration of the face brick.

In some areas, this moisture within the wall has also caused ‘rust jacking’ of lintels – the growing rust on the lintel has started to push and curve the lintel down. These lintels need to be replaced.

In some areas (as above some of the lower roofs) there has been an attempt to insert a piece of flashing in the joint, but the flashing does not have good attachment and has come out in some locations.

This condition must be properly corrected in the entire perimeter of this wing to protect the exterior walls and stop further deterioration. The metal fascia must be removed, proper flashing attached behind the fascia and run down and over the face brick a minimum of 2” below the top of the brick with a drip and new sealant underneath, and new flush metal panel facia installed above.

Facilities Study Fergus Falls Public Schools Page | 54

• The face brick mortar joints are deteriorating on the older portions of the building; we are recommending tuckpointing on the entire north and west sides of the 1963 and 1966 buildings, and portions as needed in other locations. There is also need for removal and resealing of control joints, joints at exposed columns, and around windows in many areas. We understand that a contract has been let to Bradco Restoration Inc. for some tuckpointing and sealant work and deteriorated face brick replacement to start shortly. The extent is not as large as what we would recommend. The quantities in the Bradco bid have been incorporated into ATSR’s spreadsheet for record, to the best of our understanding of the bid, and subtracted from our recommended quantities in each area.

• The gymnasium wing windows are original single pane with storms (one is broken), and should be replaced in their entirety with an insulated glass / insulated panel aluminum storefront window system. Brick cleaning is also needed.

• Toilet Room Remodels: several toilet room remodels are recommended to meet ADA and for other deficiencies:

o One toilet group in the Vocational Area near the auto shop, also to provide more equality of men/women fixture ratio.

o A staff toilet near ALC/maintenance area.

o All the public toilet rooms in the gymnasium wing (other than the women’s toilet next to the concession stand) – they also have failing galvanized piping/fixtures.

Facilities Study Fergus Falls Public Schools Page | 55

• Full remodeling of the gymnasium locker room areas is recommended, to meet ADA, address failing galvanized piping/fixtures issues, lockers needing replacement, and space configuration no longer meeting current needs.

• Remodeling in the administration area of the ALC is recommended to provide a vestibule and create a secure entry.

• Many of the finishes, casework, and doors in the building are original to the date of construction, and in the older portions of the building, are past their useful life and should be replaced. These items could be prioritized over time.

Food Service

• The kitchen area is recommended for a full remodel, due to many issues with unacceptable exposed ductwork and piping remnants from earlier removed equipment, some poor-functioning equipment needing replacement, VACT tile in some areas of the floor and other finishes issues, need to demolish the existing hood and floor curb under it, HVAC needs, and new equipment needs to address current and future food service model.

Facilities Study Fergus Falls Public Schools Page | 56

Mechanical

The building is heated by two Cleaver Brooks natural gas/oil fired steam boilers. Steam is distributed to the heating equipment in the original portions of the building (vocational, maintenance, and gym). The 1993 addition included a steam to hot water heat exchanger and a set of pumps to circulate hot water to the heating equipment. There is a total of 6 condensing units to provide cooling to remote air handling equipment (Interior vocational wing, ALC area, Media Center). CU-03, CU-07, CU-16, and CU-17 utilize refrigerant R-22 and CU-16 refrigerant circuit is leaking.

The condition, ventilation, energy usage, and comfort are poor for air handling equipment throughout. All but one (Cafeteria) of the twenty air handling units are constant volume and are original to the building vintage. Controls on units have been upgraded to direct digital control throughout the building.

The domestic water distribution systems utilize galvanized piping throughout. Portions of the galvanized piping is deteriorated in the gym wing, causing leaks and plumbing fixture failures.

Domestic hot water is provided by a hot water tube bundle in the hot water storage tank, heated by the boiler system.

The following are mechanical recommendations for the Roosevelt Education Center:

Vocational Wing

• Replace S-01 through S-09 with variable air volume air handling units with hot water heating.

• Provide steam to hot water heat exchanger, pumps, and piping for hot water loop to the vocational wing.

• Replace auxiliary heating equipment.

• Replace galvanized domestic water piping.

• Replace condensing units CU-01, CU-03, CU-06 and CU-07.

• Replace and/or revise industrial exhaust and collection systems.

o Engine exhaust

o Welding exhaust

o Paint booth

o Dust collection

• Replace plumbing fixtures.

Gym Wing

• Replace S-10 through S-15, S-18, and S-19 with variable air volume air handling units with hot water heating.

o Provide locker rooms with adequate ventilation and energy recovery.

• Provide steam to hot water heat exchanger, pumps, and piping for hot water loop to the gym wing.

• Replace auxiliary heating equipment

• Replace galvanized domestic water piping.

• Provide dehumidification/cooling as needed.

• Replace plumbing fixtures.

Facilities Study Fergus Falls Public Schools Page | 57

Media Center/ALC

• Replace or renovate S-16 and S-17 with variable air volume air handling units.

• Provide variable air volume boxes with reheat for zone control.

• Replace CU-16 and CU-17

Boiler Room

• Replace or renovate hot water heater system

• Once building has been converted to hot water heating equipment and the boilers have run their serviceable life, replace boiler plant with high efficiency hot water boilers.

Electrical

• Replace fluorescent lighting throughout the building with LED lighting with occupancy sensors for energy savings. Payback is approximately 3 years, not including rebates that may be offered by some utilities.

• Some electrical panels are original and need to be replaced.

• The fire alarm system has ongoing problems and needs to be replaced with a voice evacuation fire alarm system as required by code.

Technology

• Replace technology cabling, which is older and does not meet current installation standards. It was installed before there were standards, so it is installed improperly (i.e., running over light fixtures, which can create interference, unsupported laying on ceiling tiles, etc.).

Facilities Study Fergus Falls Public Schools Page | 58
Roosevelt Education Center
Fergus Falls Facility Assessment 9/14/2021 197 198 199 200 201 202 203 204 205 206 207 208 209 210 211 212 213 214 215 216 217 218 219 220 221 222 223 224 225 226 227 228 ABCDEFGHIJKLMNOPQRSTUVWXYZAAAC 51% $ 111.12 16,957,300 1,2Cond. Priority High (1)$$ $ 28.16 4,297,600 3Cond.Priority Med (2) 21,684,624 $ 21,684,624 $ $ 0.33 50,600 4,5Cond.Priority Low (3) 57,408 $ 57,408 $ Roosevelt Educ Center 152,600 SF NancyJohn MPat CGary G Mike HDave BRon S 2022 TOTAL PRIORITIES 21,742,032 $ Projected2022 BaseEst.Proj.Base2022 PROJECTConstructionUnitConstCostConst.CostProjectProject COST Cost Basis Cost Unit Quantity Cost Factor Cost Factor Cost Cost 47 LTFM2022 47 Roosevelt Educ Center 1.00SITEHard surfaces $$$ ls 1 $1.292 $129% $47 Roosevelt Educ Center 1.01Asphalt pavingNW Parking Lot Asphalt Full DepthRemoval/Replacement 2LTFM22022 $ 139,200 $ 107,900 $ 22.00 Sy 3,650 $ 80,300 1.292 $ 103,700 129% $ 133,800 139,152 47 Roosevelt Educ Center 1.01Asphalt pavingNW Parking Lot Conc ApronRemoval/Replacement 2LTFM22022 $ 10,200 $ 8,000 $ 12.50 Sf 470 $ 5,900 1.292 $ 7,600 129% $ 9,800 10,192 47 Roosevelt Educ Center 1.01Asphalt pavingSmall NW Prkng Lot & North Vocational Area Pavement Reconstruction: -Asphalt removal & replacement.-Concrete walk and valley gutter removal -Add concrete apron at entrance into area -Lower pavement catch basin to get better drainage in the area. -Add a concrete trench drain to solve drainage issue by back overhead door. 2LTFM22022 $ 53,600 $ 41,600 $ 30,850.00 Ls 1 $ 30,900 1.292 $ 39,900 129% $ 51,500 53,560 47 Roosevelt Educ Center 1.01Asphalt pavingNE DriveAccess Drive (leading into back parking lot) Pavement Reconstruction: -Asphalt removal & replacement.-Add concrete apron at entrance into area -Removal & replacement of concrete curb & gutters 2LTFM22022 $ 55,100 $ 42,800 $ 31,775.00 Ls 1 $ 31,800 1.292 $ 41,100 129% $ 53,000 55,120 47 Roosevelt Educ Center 1.01Asphalt pavingNE Parking Lot AreaNorth of Hockey Rink (west half of area) Pavement reconstruction/repair:-Asphalt removal & replacement.-Mill & overlay asphalt patch area between drive lane and back rink parking lot -Mill & overlay asphalt access to rink overhead door (pavement had dropped at the door) 2LTFM22022 $ 69,000 $ 53,500 $ 39,840.00 Ls 1 $ 39,800 1.292 $ 51,400 129% $ 66,300 68,952 47 Roosevelt Educ Center 1.01Asphalt pavingEast Parking Lot & Drive Lane Full DepthRemoval/replacement 2LTFM22022 $ 27,400 $ 21,300 $ 22.00 Sy 717 $ 15,800 1.292 $ 20,400 129% $ 26,300 27,352 47 Roosevelt Educ Center 1.01Asphalt pavingMain Entry Area Drive Lane Mill & Overlay2LTFM22022 $ 24,900 $ 19,300 $ 15.00 Sy 950 $ 14,300 1.292 $ 18,500 129% $ 23,900 24,856 47 Roosevelt Educ Center 1.01Asphalt pavingSouth Parking Lot Asphalt Clean & Fill Cracks2LTFM22022 $ 13,000 $ 10,100 $ 1.25 Lf 6,000 $ 7,500 1.292 $ 9,700 129% $ 12,500 13,000 47 Roosevelt Educ Center 1.01Asphalt pavingSouth Parking Lot AsphaltSeal Coating Pvmnt2LTFM22022 $ 35,000 $ 27,200 $ 2.00 Sy 10,111 $ 20,200 1.292 $ 26,100 129% $ 33,700 35,048 47 Roosevelt Educ Center 1.02Concrete walks curbsArena Main Entry area Conc Removal/Replacement2LTFM22022Redoing conc apron and surrounding area to correct busses bottoming out at drive entry $ 47,600 $ 37,000 $ 12.50 Sf 2,200 $ 27,500 1.292 $ 35,500 129% $ 45,800 47,632 47 Roosevelt Educ Center 1.03Curb GutterArena Main Entry area Curb/Gttr Removal/Replacement 2LTFM22022 $ 36,400 $ 28,300 $ 35.00 Lf 600 $ 21,000 1.292 $ 27,100 129% $ 35,000 36,400 47 Roosevelt Educ Center 1.03Curb GutterRemaining SiteConc Removal/Replacement2LTFM22022 $ 69,700 $ 54,100 $ 10.00 Sf 4,015 $ 40,200 1.292 $ 51,900 129% $ 67,000 69,680 47 Roosevelt Educ Center 1.03Curb GutterRemaining SiteRemove Old Caulking & Recaulk 2LTFM22022 $ 4,700 $ 3,700 $ 5.00 Lf 530 $ 2,700 1.292 $ 3,500 129% $ 4,500 4,680 47 Roosevelt Educ Center 1.03Curb GutterRemaining SiteRemove/Replace Conc. Misc. Curb-Gutter 2LTFM22022 $ 5,900 $ 4,600 $ 45.00 Lf 75 $ 3,400 1.292 $ 4,400 129% $ 5,700 5,928 47 Roosevelt Educ Center 1.03Curb Gutter LTFM22022 $$Sf 1 $1.292 $129% $47 Roosevelt Educ Center 2.00SITEActivity Spaces LTFM $$$ ls $1.292 $129% $47 Roosevelt Educ Center 2.01Playgrounds LTFM22022 $$$ ls $1.292 $129% $47 Roosevelt Educ Center 2.02Athletic Fields LTFM22022 $$$ ls $1.292 $129% $47 Roosevelt Educ Center 2.03 Supporting Activity Structures (Dugouts, fences, etc.) Repair Backstop & Ball Field Fence 2LTFM22022 $ 15,600 $ 12,100 $ 60.00 Lf 150 $ 9,000 1.292 $ 11,600 129% $ 15,000 15,600 47 Roosevelt Educ Center 2.03 Supporting Activity Structures (Dugouts, fences, etc.) Repair Ret-Wall Fence/Gate, End of Wall (Includes Removing Trees) 2LTFM22022 $ 2,600 $ 2,100 $ 1,500.00 Ls 1 $ 1,500 1.292 $ 1,900 129% $ 2,500 2,600 47 Roosevelt Educ Center 2.04Exterior Bleachers grandstands LTFM22022 $$$ ls $1.292 $129% $47 Roosevelt Educ Center 2.05Hard surface play areas LTFM22022 $$$ ls $1.292 $129% $47 Roosevelt Educ Center 3.00SITEDrainage Landscaping LTFM $$$ ls $1.292 $129% $Item Code Note Bldg No. Location Cat. Code Category Description Room No.(s) / Area No.(s) Year Action Recommended Life Exp. (yrs) Reb. (Y/N) Item Description 1-5 Cond. Install Orig. / Repl. Fund Yr Fnl Pr. © Copyright 2021 Armstrong Torseth Skold Rydeen, Inc. Page 1 of 19

EPDM, mmb shrinking/tenting at roof edge, past warranty

to ALC addition

EPDM, past warranty

west side,portion south of maint courtyard

Fergus Falls Facility Assessment 9/14/2021 200 201 202 203 ABCDEFGHIJKLMNOPQRSTUVWXYZAAAC Roosevelt Educ Center 152,600 SF NancyJohn MPat CGary G Mike HDave BRon S 2022 TOTAL PRIORITIES 21,742,032 $ Projected2022 BaseEst.Proj.Base2022 PROJECTConstructionUnitConstCostConst.CostProjectProject COST Cost Basis Cost Unit Quantity Cost Factor Cost Factor Cost Cost Item Code Note Bldg No. Location Cat. Code Category Description Room No.(s) / Area No.(s) Year Action Recommended Life Exp. (yrs) Reb. (Y/N) Item Description 1-5 Cond. Install Orig. / Repl. Fund Yr Fnl Pr. 229 230 231 232 233 234 235 236 237 238 239 240 241 242 243 244 245 246 247 248 249 250 251 252 253 254 47 Roosevelt Educ Center 3.01Grass / Turf repair grade, filter fabric & stone mulch (Door AI) 2LTFM22022 $ 5,500 $ 4,300 $ 8.00 Sf 400 $ 3,200 1.292 $ 4,100 129% $ 5,300 5,512 47 Roosevelt Educ Center 3.01Grass / Turf Add Edging & Stone Mulch by Smoke Stack 2LTFM22022 $ 16,700 $ 13,100 $ 9,680.00 Ls 1 $ 9,700 1.292 $ 12,500 129% $ 16,100 16,744 47 Roosevelt Educ Center 3.01Grass / Turf Regrade area beneath Door K & L-down slope, add stone mulch beneath landing, sod 2LTFM22022 $ 14,900 $ 11,600 $ 8,620.00 Ls 1 $ 8,600 1.292 $ 11,100 129% $ 14,300 14,872 47 Roosevelt Educ Center 3.01Grass / Turf Restore Misc Turf Areas & Sod 2LTFM22022 $ 62,400 $ 48,400 $ 8.00 Sf 4,500 $ 36,000 1.292 $ 46,500 129% $ 60,000 62,400 47 Roosevelt Educ Center 3.02Trees, Shrubs, Planting LTFM22022 $$$ ls $1.292 $129% $47 Roosevelt Educ Center 3.03Irrigation Systems 22022 $$$ ls $1.292 $129% $47 Roosevelt Educ Center 3.04Monument Signage LTFM22022 $$$ ls $1.292 $129% $47 Roosevelt Educ Center 3.05Storm / Drainage LTFM22022 $$$ ls $1.292 $129% $47 Roosevelt Educ Center 3.06Accessibility
LTFM22022 $$$ ls $1.292 $129% $47 Roosevelt Educ Center 4.00Exterior (Building Envelope) LTFM $$$ ls $1.210 $129% $47 Roosevelt Educ Center 4.01RoofsGym RoofIce/snow falls off the curved roof in early springsafety hazard 1LTFM22022Gym roof ICE/snow problem needs further investigationno
$$$ ls $1.210 $129% $47 Roosevelt Educ
with
with 20 year warranty, more insulation $ 47,100 $ 36,500 $ 16.40 sf 1,766 $ 29,000 1.210 $ 35,100 129% $ 45,300 47,112 47 Roosevelt Educ Center 4.01RoofsOrig 1952maintenance area and connector
21994LTFM22022Replace with 60 mill fully adhered EPDM with 20 year
$ 229,500 $ 178,000 $ 16.40 sf 8,619 $ 141,400 1.210 $ 171,100 129% $ 220,700 229,528 47 Roosevelt Educ
1952,
Ballasted
21994LTFM22022Replace with 60 mill fully adhered EPDM with 20 year warranty, more insulation $ 105,900 $ 82,100 $ 16.40 sf 3,973 $ 65,200 1.210 $ 78,900 129% $ 101,800 105,872 47 Roosevelt Educ
1952,
Ballasted
21994LTFM22022Replace with 60 mill fully adhered EPDM with 20 year warranty, more insulation, rebuild parapet edge $ 342,300 $ 265,300 $ 18.80 sf 11,212 $ 210,800 1.210 $ 255,100 129% $ 329,100 342,264 47 Roosevelt Educ Center 4.01RoofsEast side, Roof at connector to large chimney Existing
1LTFM22022Replace with 60 mill fully adhered EPDM
20 year
insulation $ 7,900 $ 6,200 $ 16.40 sf 300 $ 4,900 1.210 $ 5,900 129% $ 7,600 7,904 47 Roosevelt Educ Center 4.01RoofsKitchen/
Ballasted
warranty 21994LTFM22022Replace with 60 mill fully adhered EPDM with 20 year warranty, more insulation $ 22,700 $ 17,700 $ 16.40 sf 853 $ 14,000 1.210 $ 16,900 129% $ 21,800 22,672 47 Roosevelt Educ Center 4.01Roofs3-story arena lobby area Ballasted EPDM, past warranty (Cityresponsibility?) 21994LTFM02022Replace with 60 mill fully adhered EPDM with 20 year warranty, more insulation $$ 98,000 $ 16.40 sf 4,743 $ 77,800 1.210 $ 94,100 129% $ 121,400 47 Roosevelt Educ Center 4.01Roofs1994 Media Center addition Ballasted EPDM, past warranty 21994LTFM22022Replace with 60 mill fully adhered EPDM with 20 year warranty, more insulation, more insulation $ 231,800 $ 179,700 $ 16.40 sf 8,708 $ 142,800 1.210 $ 172,800 129% $ 222,900 231,816 47 Roosevelt Educ Center 4.01RoofsArena locker rm area and west connector Ballasted EPDM, past warranty (Cityresponsibility?) 21994LTFM02022Replace with 60 mill fully adhered EPDM with 20 year warranty $$ 219,900 $ 16.40 sf 10,652 $ 174,700 1.210 $ 211,400 129% $ 272,700 47 Roosevelt Educ Center 4.01RoofsLow Roof connector bet Arena locker and Gym Ballasted EPDM, past warranty 21994LTFM22022Replace with 60 mill fully adhered EPDM with 20 year warranty, more insulation $ 23,300 $ 18,200 $ 16.40 sf 880 $ 14,400 1.210 $ 17,400 129% $ 22,400 23,296 47 Roosevelt Educ Center 4.01RoofsMaint Rm# 1409 Wd struct roof beam cracked at bot near center of span (temp col in place) 1LTFM22022Per Tim Lsister in LVL's ea side, connect per structural engineer $ 4,800 $ 3,800 $ 3,000.00 ls 1 $ 3,000 1.210 $ 3,600 129% $ 4,600 4,784 47 Roosevelt Educ Center 4.01Roofs LTFM22022 $$ls $1.210 $129% $47 Roosevelt Educ Center 4.01Roofs LTFM22022 $$$ ls $1.210 $129% $47 Roosevelt Educ Center 4.02Wall systemsREC/ArenaMain Entryinside recess, left (south)side) Face Brick damaged/holes11953LTFM22022 $ 300 $ 300 $ 56.00 sf 3 $ 200 1.210 $ 200 129% $ 300 312 47 Roosevelt Educ Center 4.02Wall systemsMedia Center West elev Approx 30 small holes in EIFS1LTFM22022Repair EIFS holes $ 4,800 $ 3,800 $ 3,000.00 ls 1 $ 3,000 1.210 $ 3,600 129% $ 4,600 4,784 © Copyright 2021 Armstrong Torseth Skold Rydeen, Inc. Page 2 of 19
(ADA)
simple solution.
Center 4.01RoofsVocational West entry Ballasted EPDM, past warranty 21994LTFM22022Replace
60 mill fully adhered EPDM
Ballasted
warranty, more insulation
Center 4.01RoofsOrig
Center 4.01RoofsOrig
east side, over cafeteria
EPDM, mmb shrinking/tenting at roof edge, roof edge being bent in, past warranty
older builtup roof and flashing needs replacing
with
warranty, more
Receivingaddition
EPDM, past

4.02Wall systemsVocationalWingSmEngines, North Lintel above HM door AB /overhead door and smaller overhead door are rustingpossibly rust jacking 11979LTFM22022 Replace lintel, restore composite masonry wall

47 Roosevelt Educ Center 4.02Wall systemsVoc WingWood Shop, North side at Dr AB At interior side of door, CMU wall above/adjacent to door has cracked/open mortar joints (+-4sf)moisture issue?retaining wall contributing? 11967LTFM22022Repair CMU

47 Roosevelt Educ Center 4.02Wall systemsVocationalWing 1967, 1979 and 1982 wingsAt top of ext walls, where mtl panel meets FB no overlap of flashing onto FBshould be 2"and sealant is deteriorated thereallowing water into top of FB, some deteriorated top of older FB walls, will continue if left 11967 1979 1982 LTFM22022Remove exg mtl panel fascia, install mmb flg and term bar, install pre-fin mtl flg at top and bot with 2" overlay on FB, install flush mtl panel(Firestone UC-500 type), seal. (condition and l.f. cost discussed with CMRJ Morton)

Roosevelt Educ Center 4.02Wall systemsVocationalWing, East Prefin mtl fascia panel damaged +-12' long (do if not doing item above) 21967LTFM02022Replace section of prefim mtl fascia panel

Fergus Falls Facility Assessment 9/14/2021 200 201 202 203 ABCDEFGHIJKLMNOPQRSTUVWXYZAAAC Roosevelt Educ Center 152,600 SF NancyJohn MPat CGary G Mike HDave BRon S 2022 TOTAL PRIORITIES 21,742,032 $ Projected2022 BaseEst.Proj.Base2022 PROJECTConstructionUnitConstCostConst.CostProjectProject COST Cost Basis Cost Unit Quantity Cost Factor Cost Factor Cost Cost Item Code Note Bldg No. Location Cat. Code Category Description Room No.(s) / Area No.(s) Year Action Recommended Life Exp. (yrs) Reb. (Y/N) Item Description 1-5 Cond. Install Orig. / Repl. Fund Yr Fnl Pr. 255 256 257 258 259 260 261 262 263 264 265 266 267 268 269 270 271 272 273 274 47 Roosevelt Educ Center 4.02Wall systemsRms# 14071409 wingWestDoor AI Metal panel system over door missing exposed wd substrate 1LTFM22022Remove wd substrate, replace with gyp sheathing, moisture barrier, and metal panel system $ 4,200 $ 3,300 $ 200.00 sf 13 $ 2,600 1.210 $ 3,100 129% $ 4,000 4,160 47 Roosevelt Educ Center 4.02Wall systemsRms# 14071409 wingWestDoor AI Damaged face brick at jambs, and caulk at corners 11953LTFM22022Replace damaged face brick, remove caulk $ 500 $ 400 $ 56.00 sf 5 $ 300 1.210 $ 400 129% $ 500 520 47 Roosevelt Educ Center 4.02Wall systemsRms# 14131417 wingEast Damaged spalling face brick (in Radco bid, 40 fb) 11953LTFM02022Replace damaged face brick $$ 400 $ 56.00 sf 5 $ 300 1.210 $ 400 129% $ 500 47 Roosevelt Educ Center 4.02Wall systems Maint Wing Rm# 14191423, South Wood lintel above overhead door exposed, damaged 11953LTFM22022Replace with stl beam lintel, exterior wall ins/cladding $ 5,500 $ 4,300 $ 342.53 lf 10 $ 3,400 1.210 $ 4,100 129% $ 5,300 5,512 47 Roosevelt Educ Center 4.02Wall systemsVocationalWingSmEngines, West Damaged /busted out face brick at bottom of wall base of 2 corners at stl column (Radco bid) 11979LTFM02022Replace damaged face brick $$ 1,100 $ 56.00 sf 14 $ 800 1.210 $ 1,000 129% $ 1,300 47 Roosevelt Educ Center 4.02Wall systemsVocationalWingSmEngines, West Damaged /busted out face brick at bottom of wall base of 2 corners at stl column (beyond Radco bid) 11979LTFM22022Replace damaged face brick $ 2,900 $ 2,300 $ 56.00 sf 33 $ 1,800 1.210 $ 2,200 129% $ 2,800 2,912 47 Roosevelt Educ Center 4.02Wall
11979LTFM02022Replace damaged face brick $$ 400 $ 56.00 sf 6 $ 300 1.210 $ 400 129% $ 500 47 Roosevelt
$
$ 11,800 $ 491.00 lf 19 $ 9,300 1.210 $ 11,300 129% $ 14,600 15,184
systemsVocationalWingSmEngines, North Damaged /busted out face brick at top of wall (in Radco Bid)
Educ Center
15,200
$ 500 $ 400 $ 300.00 ls 1 $ 300 1.210 $ 400 129% $ 500 520
$ 142,800 $ 110,700 $ 95.00 lf 925 $ 87,900 1.210 $ 106,400 129% $ 137,300 142,792
$$ 1,300 $ 1,000.00 ls 1 $ 1,000 1.210 $ 1,200 129% $ 1,500 47 Roosevelt Educ Center
EastDamaged spalling face brick (in Radco
fb) 11953LTFM02022Replace damaged face brick $$ 200 $ 56.00 sf 2 $ 100 1.210 $ 100 129% $ 100 47 Roosevelt Educ Center 4.02Wall systemsLoading DockLoading Dock demo'ed by Ownerwill it be reconstructed by Owner? 1LTFM22022Reconstruct Loading Dock $ 5,500 $ 4,300 $ 101.00 sf 34 $ 3,400 1.210 $ 4,100 129% $ 5,300 5,512 47 Roosevelt Educ Center 4.02Wall systemsEast side, Walls at metal cover to access boiler room Rigid insulation is exposed, deteriorating 2LTFM22022 Cover exposed insulation with prefin metal flg to grade $ 2,000 $ 1,600 $ 30.00 lf 40 $ 1,200 1.210 $ 1,500 129% $ 1,900 1,976 47 Roosevelt Educ Center 4.02Wall systemsGym NorthExterior Landing/StairRailings at Gym Exit Drs K & L Paint peeling on exterior railings, stringers, angles, etc. Repaint 2LTFM22022Repaint $ 4,700 $ 3,700 $ 28.00 lf 105 $ 2,900 1.210 $ 3,500 129% $ 4,500 4,680 47 Roosevelt Educ Center 4.02Wall systemsGym East at Entrances and J Mtl flashing above canopy is rustingreplace 1LTFM22022 $ 2,200 $ 1,700 $ 40.00 lf 32 $ 1,300 1.210 $ 1,600 129% $ 2,100 2,184 47 Roosevelt Educ Center 4.02Wall systemsGymDamaged spalling face brick (in Radco bid, 29 fb) 11953LTFM02022Replace damaged face brick $$ 400 $ 56.00 sf 5 $ 300 1.210 $ 400 129% $ 500 47 Roosevelt Educ Center 4.02Wall systemsConnector bet Arena locker area and gym Exterior wood beam is exposed on the bottom (covered with pre-fin metal on top, bottom closure has fallen off 1LTFM22022Rewrap beam with prefinished metal $ 3,200 $ 2,600 $ 2,000.00 ls 1 $ 2,000 1.210 $ 2,400 129% $ 3,100 3,22 4 47 Roosevelt Educ Center 4.02Wall systemsGym Southentrance interior side of panel infills white panelssome are coming out of frames 2LTFM22022Replace with metal panels $ 12,600 $ 9,900 $ 15.00 sf 520 $ 7,800 1.210 $ 9,400 129% $ 12,100 12,584 47 Roosevelt Educ Center 4.02Wall systems LTFM22022 $$$ ls $1.210 $129% $© Copyright 2021 Armstrong Torseth Skold Rydeen, Inc. Page 3 of 19
47
4.02Wall systemsVoc
bid, 10
Fergus Falls Facility Assessment 9/14/2021 200 201 202 203 ABCDEFGHIJKLMNOPQRSTUVWXYZAAAC Roosevelt Educ Center 152,600 SF NancyJohn MPat CGary G Mike HDave BRon S 2022 TOTAL PRIORITIES 21,742,032 $ Projected2022 BaseEst.Proj.Base2022 PROJECTConstructionUnitConstCostConst.CostProjectProject COST Cost Basis Cost Unit Quantity Cost Factor Cost Factor Cost Cost Item Code Note Bldg No. Location Cat. Code Category Description Room No.(s) / Area No.(s) Year Action Recommended Life Exp. (yrs) Reb. (Y/N) Item Description 1-5 Cond. Install Orig. / Repl. Fund Yr Fnl Pr. 275 276 277 278 279 280 281 282 283 284 285 286 287 288 289 290 291 292 293 294 295 296 297 47 Roosevelt Educ Center 4.03Tuck pointing SealantTUCKPOINTING SEALANT NOTES: Listing starts at Arena Main entrance at W. side and continues clockwiseRadco Restoration bid portions (2021 work not yet started) are separated from other recommended portions. IN GENERAL, entire North and West faces of 1953 and 1966 buildings are recommended to be tuckpointed, and others as noted. LTFM02022 $$$ ls $1.050 $129% $47 Roosevelt Educ Center 4.03Tuck pointing SealantREC/ArenaMain Entry -3story-West Tuckpointing 21953LTFM22022Tuckpoint modular brick $ 21,400 $ 16,600 $ 29.00 sf 525 $ 15,200 1.050 $ 16,000 129% $ 20,600 21 ,424 47 Roosevelt Educ Center 4.03Tuck pointing SealantREC/ArenaMain Entry -3story-West Sealant At sides of metal panel and around windows sealant is hard 2LTFM22022Remove and replace sealant10 $ 4,800 $ 3,800 $ 11.00 lf 313 $ 3,400 1.050 $ 3,600 129% $ 4,600 4,784 47 Roosevelt Educ Center 4.03Tuck pointing SealantREC/ArenaMain Entry -3story-North Tuckpointingbottom 20' plus 3' above media center roof 21953LTFM22022Tuckpoint modular brick $ 12,200 $ 9,600 $ 29.00 sf 299 $ 8,700 1.050 $ 9,100 129% $ 11,700 12,168 47 Roosevelt Educ Center 4.03Tuck pointing SealantMedia Center West sidehalf round portion Sealant around windowssealant is hard, some cracking 21993LTFM22022Remove and replace sealant $ 63,800 $ 49,400 $ 11.00 lf 4,113 $ 45,200 1.050 $ 47,500 129% $ 61,300 63,752 47 Roosevelt Educ Center 4.03Tuck pointing SealantMedia Center West side Sealant around windowssealant is hard and cracking 11993LTFM22022Remove and replace sealant $ 1,900 $ 1,500 $ 11.00 lf 120 $ 1,300 1.050 $ 1,400 129% $ 1,800 1,872 47 Roosevelt Educ Center 4.03Tuck pointing SealantRms# 14071409 wingSouth Tuckpointing 21953LTFM22022Tuckpoint modular brick $ 18,600 $ 14,500 $ 29.00 sf 455 $ 13,200 1.050 $ 13,900 129% $ 17,900 18 ,616 47 Roosevelt Educ Center 4.03Tuck pointing SealantRms# 14071409 wingWest (Door AI) Tuckpointing (Radco Bid quantity) 21953LTFM22022Tuckpoint modular brick $ 6,100 $ 4,900 $ 29.00 sf 150 $ 4,400 1.050 $ 4,600 129% $ 5,900 6,136 47 Roosevelt Educ Center 4.03Tuck pointing SealantRms# 14071409 wingWest (Door AI) Tuckpointing (beyond Radco Bid quantity) 21953LTFM22022Tuckpoint modular brick $ 6,400 $ 5,100 $ 29.00 sf 159 $ 4,600 1.050 $ 4,800 129% $ 6,200 6,448 47 Roosevelt Educ Center 4.03Tuck pointing SealantRms# 14071409 wingWest (Door AI) Sealant around entrance sealant is hard 2LTFM22022Remove and replace sealant $ 500 $ 500 $ 11.00 lf 34 $ 400 1.050 $ 400 129% $ 500 520 47 Roosevelt Educ Center 4.03Tuck pointing Sealant 1994 Additionupper wall above origbuilding (ALC) Sealant around small wdwssealant is hard 2LTFM22022Remove and replace sealant $ 1,800 $ 1,400 $ 11.00 lf 107 $ 1,200 1.050 $ 1,300 129% $ 1,700 1,768 47 Roosevelt Educ Center 4.03Tuck pointing SealantRms# 14071409 wingNorth Tuckpointing (Radco Bid quantity) 21953LTFM02022Tuckpoint modular brick $$ 5,000 $ 29.00 sf 155 $ 4,500 1.050 $ 4,700 129% $ 6,100 47 Roosevelt Educ Center 4.03Tuck pointing SealantRms# 14071409 wingNorth Tuckpointing (beyond Radco Bid quantity) 21953LTFM22022Tuckpoint modular brick $ 800 $ 700 $ 29.00 sf 19 $ 600 1.050 $ 600 129% $ 800 83 2 47 Roosevelt Educ Center 4.03Tuck pointing SealantRms# 14131417 wingEast Tuckpointing (Radco Bid quantity) 21953LTFM02022Tuckpoint modular brick $$ 1,700 $ 29.00 sf 50 $ 1,500 1.050 $ 1,600 129% $ 2,10047 Roosevelt Educ Center 4.03Tuck pointing SealantRms# 14131417 wingEast Tuckpointing (beyond Radco Bid quantity) 21953LTFM22022Tuckpoint modular brick $ 8,200 $ 6,400 $ 29.00 sf 200 $ 5,800 1.050 $ 6,100 129% $ 7,900 8,216 47 Roosevelt Educ Center 4.03Tuck pointing Sealant Maint Wing Rm# 14191423, South Tuckpointing (Radco Bid quantity) 21953LTFM02022Tuckpoint modular brick $$ 1,700 $ 29.00 sf 50 $ 1,500 1.050 $ 1,600 129% $ 2,10047 Roosevelt Educ Center 4.03Tuck pointing Sealant Maint Wing Rm# 14191423, South Tuckpointing (beyond Radco Bid quantity) 21953LTFM22022Tuckpoint modular brick $ 18,000 $ 14,000 $ 29.00 sf 440 $ 12,800 1.050 $ 13,400 129% $ 17,300 17,992 47 Roosevelt Educ Center 4.03Tuck pointing Sealant Maint Wing Rm# 14191423, West Tuckpointing (Radco Bid quantity) 21953LTFM02022Tuckpoint modular brick $$ 1,000 $ 29.00 sf 30 $ 900 1.050 $ 900 129% $ 1,200 47 Roosevelt Educ Center 4.03Tuck pointing Sealant Maint Wing Rm# 14191423, West Tuckpointing (beyond Radco Bid quantity) 21953LTFM22022Tuckpoint modular brick $ 14,000 $ 11,000 $ 29.00 sf 344 $ 10,000 1.050 $ 10,500 129% $ 13,500 14,040 47 Roosevelt Educ Center 4.03Tuck pointing Sealant Maint Wing Rm# 14191423, West Clean precast conc/stone sills at glass block are dirty/stained and need recaulking 2LTFM22022Clean precast conc/stone sills and recaulk bet 4' sections $ 900 $ 800 $ 5.48 lf 119 $ 700 1.050 $ 700 129% $ 900 936 47 Roosevelt Educ Center 4.03Tuck pointing Sealant Maint Wing Rm# 14191423, North Tuckpointing (Radco Bid quantity) 21953LTFM02022Tuckpoint modular brick $$ 3,900 $ 29.00 sf 120 $ 3,500 1.050 $ 3,700 129% $ 4,800 47 Roosevelt Educ Center 4.03Tuck pointing Sealant Maint Wing Rm# 14191423, North Tuckpointing (beyond Radco Bid quantity) 21953LTFM22022Tuckpoint modular brick $ 23,300 $ 18,200 $ 29.00 sf 572 $ 16,600 1.050 $ 17,400 129% $ 22,400 23,296 47 Roosevelt Educ Center 4.03Tuck pointing Sealant Maint Wing Rm# 14191423, North Sealant around alum entrance AG and adj jtsealant is hard 2LTFM22022Remove and replace sealant $ 400 $ 400 $ 11.00 lf 30 $ 300 1.050 $ 300 129% $ 400 416 © Copyright 2021 Armstrong Torseth Skold Rydeen, Inc. Page 4 of 19
Fergus Falls Facility Assessment 9/14/2021 200 201 202 203 ABCDEFGHIJKLMNOPQRSTUVWXYZAAAC Roosevelt Educ Center 152,600 SF NancyJohn MPat CGary G Mike HDave BRon S 2022 TOTAL PRIORITIES 21,742,032 $ Projected2022 BaseEst.Proj.Base2022 PROJECTConstructionUnitConstCostConst.CostProjectProject COST Cost Basis Cost Unit Quantity Cost Factor Cost Factor Cost Cost Item Code Note Bldg No. Location Cat. Code Category Description Room No.(s) / Area No.(s) Year Action Recommended Life Exp. (yrs) Reb. (Y/N) Item Description 1-5 Cond. Install Orig. / Repl. Fund Yr Fnl Pr. 298 299 300 301 302 303 304 305 306 307 308 309 310 311 312 313 314 315 316 317 318 319 320 321 47 Roosevelt Educ Center 4.03Tuck pointing SealantALC Wing, North Sealant around alum entrance AF and sealant around sm alum wdwssealant is hard 2LTFM22022Remove and replace sealant $ 800 $ 700 $ 11.00 lf 53 $ 600 1.050 $ 600 129% $ 800 832 47 Roosevelt Educ Center 4.03Tuck pointing SealantVocationalWing,atEntrance AE Sealant around alum entrance and around alum wdwssealant is hard 2LTFM22022Remove and replace sealant $ 6,400 $ 5,100 $ 11.00 lf 417 $ 4,600 1.050 $ 4,800 129% $ 6,200 6,448 47 Roosevelt Educ Center 4.03Tuck pointing SealantVocationalWingSmEngines,South Tuckpointing (Radco Bid quantity) 21979LTFM02022Tuckpoint modular brick $$ 400 $ 29.00 sf 10 $ 300 1.050 $ 300 129% $ 400 47 Roosevelt Educ Center 4.03Tuck pointing SealantVocationalWingSmEngines, West Tuckpointing (Radco Bid quantity-ok) 21953LTFM02022Tuckpoint modular brick $$ 4,900 $ 29.00 sf 150 $ 4,400 1.050 $ 4,600 129% $ 5,900 47 Roosevelt Educ Center 4.03Tuck pointing SealantVocationalWingSmEngines, West Sealant around alum entrance and around alum wdwssealant is hard 21979LTFM22022Remove and replace sealant $ 1,200 $ 1,000 $ 11.00 lf 85 $ 900 1.050 $ 900 129% $ 1,200 1,248 47 Roosevelt Educ Center 4.03Tuck pointing SealantVocationalWingSmEngines, West Clean face brick, entire elevation 2LTFM22022Clean face brick $ 4,300 $ 3,300 $ 4.10 sf 721 $ 3,000 1.050 $ 3,200 129% $ 4,100 4,264 47 Roosevelt Educ Center 4.03Tuck pointing SealantVocationalWingSmEngines, North Tuckpointing (Radco Bid quantity-ok) 21979LTFM02022Tuckpoint modular brick $$ 8,000 $ 29.00 sf 250 $ 7,300 1.050 $ 7,700 129% $ 9,900 47 Roosevelt Educ Center 4.03Tuck pointing SealantVocationalWingSmEngines, North Control joints hard, some cracking 11979LTFM22022Remove and replace sealant $ 100 $ 200 $ 11.00 lf 8 $ 100 1.050 $ 100 129% $ 100 104 47 Roosevelt Educ Center 4.03Tuck pointing SealantVocationalWingSmEngines, North Clean face brick, entire elevation 21979LTFM22022Clean face brick $ 2,000 $ 1,600 $ 4.10 sf 350 $ 1,400 1.050 $ 1,500 129% $ 1,900 1,976 47 Roosevelt Educ Center 4.03Tuck pointing SealantVocationalWing Metal Shop, North Tuckpointing (Radco Bid quantity) 21967LTFM02022Tuckpoint modular brick $$ 1,100 $ 29.00 sf 35 $ 1,000 1.050 $ 1,100 129% $ 1,40047 Roosevelt Educ Center 4.03Tuck pointing SealantVocationalWing Metal Shop, North Tuckpointing (beyond Radco Bid quantity) 21967LTFM22022Tuckpoint modular brick $ 60,400 $ 46,900 $ 29.00 sf 1,478 $ 42,900 1.050 $ 45,000 129% $ 58,100 60,424 47 Roosevelt Educ Center 4.03Tuck pointing SealantVocationalWing Metal Shop, North Clean face brick, entire elevation 21979LTFM22022Clean face brick $ 8,700 $ 6,800 $ 4.10 sf 1,513 $ 6,200 1.050 $ 6,500 129% $ 8,400 8,736 47 Roosevelt Educ Center 4.03Tuck pointing SealantVocationalWing Metal Shop, North Sealant on each side of stl columnssealant is hard 2LTFM22022Remove and replace sealant $ 3,200 $ 2,600 $ 11.00 lf 213 $ 2,300 1.050 $ 2,400 129% $ 3,100 3,224 47 Roosevelt Educ Center 4.03Tuck pointing SealantVocationalWingEastOriginal bldg Tuckpointing (Radco Bid quantity) OK 21967LTFM02022Tuckpoint modular brick $$ 12,700 $ 29.00 sf 400 $ 11,600 1.050 $ 12,200 129% $ 15,700 47 Roosevelt Educ Center 4.03Tuck pointing SealantVocationalWingEastOriginal bldg Sealant on each side of stl columns and at control jointssealant is hard and some cracking (in Radco bid) 11967LTFM02022Remove and replace sealant $$ 1,900 $ 11.00 lf 152 $ 1,700 1.050 $ 1,800 129% $ 2,300 47 Roosevelt Educ Center 4.03Tuck pointing SealantVocationalWingEastOriginal bldg Sealant around wdws and doorssealant is hard 1LTFM22022Remove and replace sealant $ 2,800 $ 2,200 $ 11.00 lf 183 $ 2,000 1.050 $ 2,100 129% $ 2,700 2,808 47 Roosevelt Educ Center 4.03Tuck pointing SealantVocationalWing EastAddition Sealant on each side of stl columns and at control jointssealant is hard and some cracking (in Radco bid-ok) 11982LTFM02022Remove and replace sealant $$ 700 $ 11.00 lf 51 $ 600 1.050 $ 600 129% $ 800 47 Roosevelt Educ Center 4.03Tuck pointing SealantVocationalWing SouthAddition Sealant on each side of stl columns and at control jointssealant is hard and some cracking (in Radco bid -ok) 11982LTFM02022Remove and replace sealant $$ 3,700 $ 11.00 lf 300 $ 3,300 1.050 $ 3,500 129% $ 4,500 47 Roosevelt Educ Center 4.03Tuck pointing SealantALC SouthSealant on each side of stl columns and at control jointssealant is hard (in Radco bid as West addit-ok) 21994LTFM02022Remove and replace sealant $$ 800 $ 11.00 lf 60 $ 700 1.050 $ 700 129% $ 900 47 Roosevelt Educ Center 4.03Tuck pointing SealantVoc WingSouth & ALC South Sealant around wdws / doorssealant is hard 21982 1994 LTFM22022Remove and replace sealant $ 900 $ 800 $ 11.00 lf 68 $ 700 1.050 $ 700 129% $ 900 936 47 Roosevelt Educ Center 4.03Tuck pointing SealantALC wing EastSealant around wdwssealant is hard 21994LTFM22022Remove and replace sealant $ 900 $ 800 $ 11.00 lf 68 $ 700 1.050 $ 700 129% $ 900 936 47 Roosevelt Educ Center 4.03Tuck pointing SealantLoadingDock/Recv North and East Tuckpointing (in Radco bid)21953LTFM02022Tuckpoint modular brick $$ 26,100 $ 29.00 sf 825 $ 23,900 1.050 $ 25,100 129% $ 32, 400 47 Roosevelt Educ Center 4.03Tuck pointing SealantKitchen/Receiving addition Sealant at control jointshard and cracking 11994?LTFM22022 $ 1,600 $ 1,300 $ 11.00 lf 100 $ 1,100 1.050 $ 1,200 129% $ 1,500 1,560 47 Roosevelt Educ Center 4.03Tuck pointing SealantCafeteria East Orig bldg Tuckpointing (Radco bid quantity) 21953LTFM22022Tuckpoint modular brick $ 5,000 $ 3,900 $ 29.00 sf 120 $ 3,500 1.050 $ 3,700 129% $ 4,800 4,992 © Copyright 2021 Armstrong Torseth Skold Rydeen, Inc. Page 5 of 19
Fergus Falls Facility Assessment 9/14/2021 200 201 202 203 ABCDEFGHIJKLMNOPQRSTUVWXYZAAAC Roosevelt Educ Center 152,600 SF NancyJohn MPat CGary G Mike HDave BRon S 2022 TOTAL PRIORITIES 21,742,032 $ Projected2022 BaseEst.Proj.Base2022 PROJECTConstructionUnitConstCostConst.CostProjectProject COST Cost Basis Cost Unit Quantity Cost Factor Cost Factor Cost Cost Item Code Note Bldg No. Location Cat. Code Category Description Room No.(s) / Area No.(s) Year Action Recommended Life Exp. (yrs) Reb. (Y/N) Item Description 1-5 Cond. Install Orig. / Repl. Fund Yr Fnl Pr. 322 323 324 325 326 327 328 329 330 331 332 333 334 335 336 337 338 339 340 341 342 343 344 345 346 347 348 349 47 Roosevelt Educ Center 4.03Tuck pointing SealantCafeteria East Orig bldg Tuckpointing (beyond Radco quantity) 21953LTFM02022Tuckpoint modular brick $$ 12,700 $ 29.00 sf 400 $ 11,600 1.050 $ 12,200 129% $ 15,700 47 Roosevelt Educ Center 4.03Tuck pointing SealantCafeteria East Orig bldg Sealant around windows and at mtl col enclosures is hard, separating 1LTFM22022Replace sealant $ 5,500 $ 4,300 $ 11.00 lf 358 $ 3,900 1.050 $ 4,100 129% $ 5,300 5,512 47 Roosevelt Educ Center 4.03Tuck pointing SealantOrig bldg at Door T,southeast,includingupper level of arena lobby Tuckpointing (Radco bid quantity) 21953LTFM02022Tuckpoint modular brick $$ 14,400 $ 29.00 sf 450 $ 13,100 1.050 $ 13,800 129% $ 17,800 47 Roosevelt Educ Center 4.03Tuck pointing SealantOrig bldg at Door S,northeast Tuckpointing (Radco bid quantity) 21953LTFM02022Tuckpoint modular brick $$ 15,900 $ 29.00 sf 500 $ 14,500 1.050 $ 15,200 129% $ 19,600 47 Roosevelt Educ Center 4.03Tuck pointing SealantOrig bldg NW, side of locker area Tuckpointing (Radco bid quantity) 21953LTFM02022Tuckpoint modular brick $$ 3,200 $ 29.00 sf 100 $ 2,900 1.050 $ 3,000 129% $ 3,900 47 Roosevelt Educ Center 4.03Tuck pointing SealantOrig bldg at Door T,southeast Sealant at control joints and
door T and louversealant
bid
21994LTFM02022Remove and replace sealant $$ 1,300 $ 11.00 lf 100 $ 1,100 1.050 $ 1,200 129% $ 1,500 47 Roosevelt Educ Center 4.03Tuck pointing SealantArena Locker Rm North Tuckpointing maintenace by City? 2LTFM02022Tuckpoint modular brick $$ 15,800 $ 29.00 sf 496 $ 14,400 1.050 $ 15,100 129% $ 19,500 47 Roosevelt Educ Center 4.03Tuck pointing SealantMusic Addition North at Door M FB below downspout nozzle (primary or secondary roof drainage?) is dirty/moldy, joints deteriorated from water coming out 2LTFM22022Clean and repair FB, add splash block $ 500 $ 500 $ 55.10 sf 8 $ 400 1.050 $ 400 129% $ 500 520 47 Roosevelt Educ Center 4.03Tuck pointing SealantGym NorthTuckpointing (beyond Radco Bid quantity) 21953LTFM22022Tuckpoint modular brick $ 36,700 $ 28,600 $ 29.00 sf 900 $ 26,100 1.050 $ 27,400 129% $ 35,300 36,712 47 Roosevelt Educ Center 4.03Tuck pointing SealantGym north,above low roof Sealant around/withing sections of metal panelsealant is hard 2LTFM22022Remove and replace sealant $ 1,200 $ 1,000 $ 11.00 lf 83 $ 900 1.050 $ 900 129% $ 1,200 1,248 47 Roosevelt Educ Center 4.03Tuck pointing SealantGym East(north corner) Tuckpointing (beyond Radco Bid quantity) 21953LTFM22022Tuckpoint modular brick $ 10,800 $ 8,500 $ 29.00 sf 265 $ 7,700 1.050 $ 8,100 129% $ 10,400 10,816 47 Roosevelt Educ Center 4.03Tuck pointing SealantGym East(north corner) Face brick stained bottom 2'21979LTFM22022Clean face brick $ 300 $ 300 $ 4.10 sf 40 $ 200 1.050 $ 200 129% $ 300 312 47 Roosevelt Educ Center 4.03Tuck pointing SealantGym; North (north east corner Tuckpointing (beyond Radco Bid quantity) 21953LTFM22022Tuckpoint modular brick $ 16,100 $ 12,500 $ 29.00 sf 392 $ 11,400 1.050 $ 12,000 129% $ 15,500 16,120 47 Roosevelt Educ Center 4.03Tuck pointing SealantGym Doors F& & J Sealant around wdws / doorssealant is hard 2LTFM22022Remove and replace sealant $ 4,300 $ 3,300 $ 11.00 lf 276 $ 3,000 1.050 $ 3,200 129% $ 4,100 4,264 47 Roosevelt Educ Center 4.03Tuck pointing SealantGym EastTuckpointing (Radco Bid quantity) 21953LTFM02022Tuckpoint modular brick $$ 2,500 $ 29.00 sf 75 $ 2,200 1.050 $ 2,300 129% $ 3,00047 Roosevelt Educ Center 4.03Tuck pointing SealantGym EastTuckpointing bottom 2'-8" of wall (beyond Radco Bid quantity) 21953LTFM22022Tuckpoint modular brick $ 19,600 $ 15,200 $ 29.00 sf 478 $ 13,900 1.050 $ 14,600 129% $ 18,800 19,552 47 Roosevelt Educ Center 4.03Tuck pointing SealantGym EastFace brick stained bottom 2'8" and at Door 21979LTFM22022Clean face brick $ 1,800 $ 1,400 $ 4.10 sf 290 $ 1,200 1.050 $ 1,300 129% $ 1,700 1,768 47 Roosevelt Educ Center 4.03Tuck pointing SealantGym South (SE end) Tuckpointing (Radco Bid quantityOK) 21953LTFM02022Tuckpoint modular brick $$ 1,000 $ 29.00 sf 30 $ 900 1.050 $ 900 129% $ 1,200 47 Roosevelt Educ Center 4.03Tuck pointing SealantGym East (SE end) Tuckpointing (Radco Bid quantityOK) 21953LTFM02022Tuckpoint modular brick $$ 700 $ 29.00 sf 22 $ 600 1.050 $ 600 129% $ 800 47 Roosevelt Educ Center 4.03Tuck pointing SealantGym South,Entrance H Sealant around wdws / doorssealant is hard 2LTFM22022Remove and replace sealant $ 500 $ 500 $ 11.00 lf 37 $ 400 1.050 $ 400 129% $ 500 520 47 Roosevelt Educ Center 4.03Tuck pointing SealantGym, West, south end Tuckpointing (Radco Bid quantity) 21953LTFM02022Tuckpoint modular brick $$ 1,700 $ 29.00 sf 50 $ 1,500 1.050 $ 1,600 129% $ 2,10047 Roosevelt Educ Center 4.03Tuck pointing SealantGym, West, south end Tuckpointing (beyond Radco Bid quantity) 21953LTFM22022Tuckpoint modular brick $ 33,900 $ 26,400 $ 29.00 sf 830 $ 24,100 1.050 $ 25,300 129% $ 32,600 33,904 47 Roosevelt Educ Center 4.03Tuck pointing SealantGym WestTuckpointing (Radco Bid quantity) 21953LTFM02022Tuckpoint modular brick $$ 6,500 $ 29.00 sf 205 $ 5,900 1.050 $ 6,200 129% $ 8,000 47 Roosevelt Educ Center 4.03Tuck pointing SealantGym WestTuckpointing (beyond Radco Bid quantity) 21953LTFM22022Tuckpoint modular brick $ 11,000 $ 8,600 $ 29.00 sf 270 $ 7,800 1.050 $ 8,200 129% $ 10,600 11,024 47 Roosevelt Educ Center 4.03Tuck pointing SealantGym WestFace brick stained below and between strip windows 21979LTFM22022Clean face brick $ 3,800 $ 3,100 $ 4.10 sf 691 $ 2,800 1.050 $ 2,900 129% $ 3,700 3,848 47 Roosevelt Educ Center 4.03Tuck pointing SealantGym, North(northwestcorner) Tuckpointing (beyond Radco Bid quantity) 21953LTFM22022Tuckpoint modular brick $ 19,800 $ 15,300 $ 29.00 sf 484 $ 14,000 1.050 $ 14,700 129% $ 19,000 19,760 47 Roosevelt Educ Center 4.03Tuck pointing SealantGym, West(northwestcorner) Tuckpointing (beyond Radco Bid quantity) 21953LTFM22022Tuckpoint modular brick $ 5,000 $ 3,900 $ 29.00 sf 120 $ 3,500 1.050 $ 3,700 129% $ 4,800 4,992 47 Roosevelt Educ Center 4.03Tuck pointing SealantGym Verify that the caulking in Radco bid includes at the top of the wall where it meets the wood overhang, typ all around gym. 2LTFM02022Remove and replace sealant $$ $ 11.00 lf $1.050 $129% $© Copyright 2021 Armstrong Torseth Skold Rydeen, Inc. Page 6 of 19
around
is hard (Radco
quantity)

Wing SmEngines, North OH door (Sm Eng N. Door/OH Door Frame #ADrusted out at jambs)affects OH door

Wd shop (Dr AB), Metal Shop(AC?), wall doors rusted/hard to open/knob hardware instead of panic

Fergus Falls Facility Assessment 9/14/2021 200 201 202 203 ABCDEFGHIJKLMNOPQRSTUVWXYZAAAC Roosevelt Educ Center 152,600 SF NancyJohn MPat CGary G Mike HDave BRon S 2022 TOTAL PRIORITIES 21,742,032 $ Projected2022 BaseEst.Proj.Base2022 PROJECTConstructionUnitConstCostConst.CostProjectProject COST Cost Basis Cost Unit Quantity Cost Factor Cost Factor Cost Cost Item Code Note Bldg No. Location Cat. Code Category Description Room No.(s) / Area No.(s) Year Action Recommended Life Exp. (yrs) Reb. (Y/N) Item Description 1-5 Cond. Install Orig. / Repl. Fund Yr Fnl Pr. 350 351 352 353 354 355 356 357 358 359 360 361 362 363 364 365 366 367 368 369 370 371 372 373 374 47 Roosevelt Educ Center 4.03Tuck pointing Sealant LTFM22022 $$$ ls $1.050 $129% $47 Roosevelt Educ Center 4.03Tuck pointing Sealant LTFM22022 $$$ ls $1.050 $129% $47 Roosevelt Educ Center 4.04Doors / Hardware Maint Wing Rm# 14191423, South Maintenance Overhead Door in poor condition 2LTFM22022Replace with insulated overhead door $ 39,200 $ 30,400 $ 172.00 sf 140 $ 24,100 1.210 $ 29,200 129% $ 37,700 39,208 47 Roosevelt Educ Center 4.04Doors / Hardware Maint Wing Rm# 14191423, South Maintenance HM doorpoor condition, bottom of frame rusting 1LTFM22022Replace with insulated HM door and frame $ 5,100 $ 4,000 $ 3,100.00 ea 1 $ 3,100 1.210 $ 3,800 129% $ 4,900 5,096 47 Roosevelt Educ Center 4.04Doors / HardwareVocational Wing SmEngines, North Sm Eng N. Door/OH Door Frame #AD rusted out at jambs 11979LTFM22022Replace HM ext door frame/transom/OH door frame assembly 14'-8" x 11'-4" MO4' h transom above dr $ 19,400 $ 15,200 $ 12,048.00 ea 1 $ 12,000 1.210 $ 14,500 129% $ 18,700 19,448 47 Roosevelt Educ Center 4.04Doors
11979LTFM22022Replace OH door due to rusted frame jambs and lintel11' w x 12' h. $ 36,900 $ 28,600 $ 172.00 sf 132 $ 22,700 1.210 $ 27,500 129% $ 35,500 36,920 47 Roosevelt Educ Center 4.04Doors / HardwareVocational Wing
OH
11979LTFM22022Replace OH door due to rusted lintel6' w x 12' h. $ 20,200 $ 15,700 $ 172.00 sf 72 $ 12,400 1.210 $ 15,000 129% $ 19,400 20,176 47 Roosevelt Educ Center 4.04Doors / HardwareVocational Wing Metal Shop, North original OH doorpoor condition 21979LTFM22022Replace OH door $ 36,900 $ 28,600 $ 172.00 sf 132 $ 22,700 1.210 $ 27,500 129% $ 35,500 36,920 47 Roosevelt Educ Center 4.04Doors / HardwareVocational Wing,
Doors
11966LTFM22022Replace HM ext door with
HM door
hardware $ 10,100 $ 7,900 $ 3,080.00 ea 2 $ 6,200 1.210 $ 7,500 129% $ 9,700 10,088 47 Roosevelt Educ Center 4.04Doors / HardwareVocational Wing Woodl Shop, North original OH doorpoor condition 21966LTFM22022Replace OH door $ 100,500 $ 77,900 $ 172.00 sf 360 $ 61,900 1.210 $ 74,900 129% $ 96,600 100,464 47 Roosevelt Educ Center 4.04Doors / HardwareEast side, Door T to cafeteria mech room HM door T rusting on bottom2LTFM22022Replace insulatied HM door $ 2,800 $ 2,200 $ 1,747.00 ea 1 $ 1,700 1.210 $ 2,100 129% $ 2,70 0 2,808 47 Roosevelt Educ Center 4.04Doors / HardwareGym, WestHM door/frame/sideliites,rusting on bottom 2LTFM22022Replace with alum storefront/entrance doors system $ 26,500 $ 20,700 $ 114.00 sf 144 $ 16,400 1.210 $ 19,800 129% $ 25,500 26,520 47 Roosevelt Educ Center 4.04Doors / Hardware LTFM22022 $$$ ls $1.210 $129% $47 Roosevelt Educ Center 5.04Ceiling Acoustic Panels LTFM22022 $$$ ls $1.210 $129% $47 Roosevelt Educ Center 4.05Curtainwall StorefrontRms# 14071409 wingNorth Wdw system contains transite panels, some damaged screens, (single pane?) all sealant joints failing 11953LTFM22022Replace window system in its entirety with storefront wdw system $ 69,400 $ 53,800 $ 86.00 sf 496 $ 42,700 1.210 $ 51,700 129% $ 66,700 69,368 47 Roosevelt Educ Center 4.05Curtainwall StorefrontRms# 14131417 wingWest Wdw system contains transite panels, some damaged screens, (single pane?) all sealant joints failing 11953LTFM22022Replace window system in its entirety with storefront wdw system $ 12,600 $ 9,900 $ 86.00 sf 90 $ 7,800 1.210 $ 9,400 129% $ 12,100 12,584 47 Roosevelt Educ Center 4.05Curtainwall Storefront Maint Wing Rm# 14191423, West Glass Block windows (8" x 8") mortar joints poor/failing 21953LTFM22022Replace glass block with insulated storefront window system $ 222,000 $ 172,200 $ 86.00 sf 1,591 $ 136,800 1.210 $ 165,500 129% $ 213,500 222,040 47 Roosevelt Educ Center 4.05Curtainwall StorefrontGym East(north end) Door J Cracked metal panel above door J 1LTFM22022Replace prefinished metal panel $ 900 $ 800 $ 31.00 sf 20 $ 600 1.210 $ 700 129% $ 900 936 47 Roosevelt Educ Center 4.05Curtainwall StorefrontGym, WestWindows are single glazed. One pane is cracked, mtl panels may contain transite?original (?) 11953LTFM22022Replace entire window/metal panel system with storefront window system and insulated glass/mtl panels $ 176,600 $ 137,000 $ 86.00 sf 1,265 $ 108,800 1.210 $ 131,600 129% $ 169,800 176,592 47 Roosevelt Educ Center 4.05Curtainwall StorefrontSouth,connector bet Arena lockers and Gym Carpet at interior of exterior storefront panels is coming out 2LTFM22022Remove existing carpet and replace with metal panel at interior (entire panel?) $ 5,200 $ 4,100 $ 30.00 sf 108 $ 3,200 1.210 $ 3,900 129% $ 5,000 5,200 47 Roosevelt Educ Center 4.05Curtainwall Storefront LTFM22022 $$$ ls $1.210 $129% $47 Roosevelt Educ Center 4.06Window systems LTFM22022 $$$ ls $1.210 $129% $47 Roosevelt Educ Center 4.06Window systems LTFM22022 $$$ ls $1.210 $129% $47 Roosevelt Educ Center 4.06Window systems LTFM22022 $$$ ls $1.210 $129% $47 Roosevelt Educ Center 4.07Louvers / Screenwalls / Fenestration Louvers at side of connector to large chimney Original louvers, poor condition, rusting, some piping runining through it, some partial covers 1LTFM22022Replace or infill louversverify function (can this whole thing be torn down?)repipe as necessary $ 8,900 $ 7,000 $ 62.50 sf 88 $ 5,500 1.210 $ 6,700 129% $ 8,600 8,944 © Copyright 2021 Armstrong Torseth Skold Rydeen, Inc. Page 7 of 19
/ HardwareVocational
SmEngines, North smaller
door (rusted lintel requires door repl)
north Ext
-
new
with panic

Replace original wood doors (those needing lever hardware)

1 1953 Orig buiding (rm #1405, 1415, 1421) (inside maint spaces)

Center 5.01Doors /

Fergus Falls Facility Assessment 9/14/2021 200 201 202 203 ABCDEFGHIJKLMNOPQRSTUVWXYZAAAC Roosevelt Educ Center 152,600 SF NancyJohn MPat CGary G Mike HDave BRon S 2022 TOTAL PRIORITIES 21,742,032 $ Projected2022 BaseEst.Proj.Base2022 PROJECTConstructionUnitConstCostConst.CostProjectProject COST Cost Basis Cost Unit Quantity Cost Factor Cost Factor Cost Cost Item Code Note Bldg No. Location Cat. Code Category Description Room No.(s) / Area No.(s) Year Action Recommended Life Exp. (yrs) Reb. (Y/N) Item Description 1-5 Cond. Install Orig. / Repl. Fund Yr Fnl Pr. 375 376 377 378 379 380 381 382 383 384 385 386 387 388 389 390 391 392 393 394 395 396 397 398 399 400 47 Roosevelt Educ Center 4.07Louvers / Screenwalls / Fenestration Louver above door T (cafeteriamech rm louver) Louver is original, rusting2LTFM22022Replace louver $ 4,700 $ 3,700 $ 50.00 sf 58 $ 2,900 1.210 $ 3,500 129% $ 4,500 4,680 47 Roosevelt Educ Center 4.07Louvers / Screenwalls / Fenestration Gym North small louver Louver is original, rusting2LTFM22022Replace louver $ 800 $ 700 $ 50.00 sf 9 $ 500 1.210 $ 600 129% $ 800 832 47 Roosevelt Educ Center 4.07Louvers / Screenwalls / Fenestration Gym Eastlouver near top of wall Louver is original, rusting2LTFM22022Replace louver $ 800 $ 700 $ 50.00 sf 10 $ 500 1.210 $ 600 129% $ 800 832 47 Roosevelt Educ Center 4.07Louvers / Screenwalls / Fenestration Gym South (SE end) Louver is original, rusting2LTFM22022Replace louver $ 4,800 $ 3,800 $ 50.00 sf 60 $ 3,000 1.210 $ 3,600 129% $ 4,600 4,784 47 Roosevelt Educ Center 4.07Louvers / Screenwalls / Fenestration Gym East (SE end) Louver is original, rusting2LTFM22022Replace louver $ 500 $ 400 $ 50.00 sf 6 $ 300 1.210 $ 400 129% $ 500 520 47 Roosevelt Educ Center 4.07Louvers / Screenwalls / Fenestration Gym south small louver Louver is original, rusting2LTFM22022Replace louver $ 800 $ 700 $ 50.00 sf 9 $ 500 1.210 $ 600 129% $ 800 832 47 Roosevelt Educ Center 4.07Louvers / Screenwalls / Fenestration LTFM22022 $$$ ls $1.210 $129% $47 Roosevelt Educ Center 4.08Painting and PlasterLoading DockPlaster Soffit face damaged2LTFM22022Repair plaster $ 300 $ 300 $ 4.00 sf 48 $ 200 1.210 $ 200 129% $ 300 312 47 Roosevelt Educ Center 4.08Painting and PlasterGym South at Door H Canopy Plaster soffit is cracked2LTFM22022Replace with DEFS soffit $ 2,800 $ 2,200 $ 10.00 sf 168 $ 1,700 1.210 $ 2,100 129% $ 2,700 2,808 47 Roosevelt Educ Center 4.090 LTFM22022 $$$ ls $1.210 $129% $47 Roosevelt Educ Center 4.100 LTFM22022 $$$ ls $1.210 $129% $47 Roosevelt Educ Center 5.00Interior (Building) LTFM $$$ ls $1.210 $129% $47 Roosevelt Educ Center 5.01Doors
HardwareVocational
Replace
doors
21966LTFM22022Replace with HM doors $ 7,700 $ 6,000 $ 1,168.00 ea 4 $ 4,700 1.210 $ 5,700 129% $ 7,400 7,696 47 Roosevelt Educ
HardwareVocational wing Rms
2420, 2436 Replace original HM doors
2'-6"
21966LTFM22022 Replace with HM doors with panics 3'-0" and 2'-0" $ 24,400 $ 18,900 $ 2,501.00 ea 6 $ 15,000 1.210 $ 18,200 129% $ 23,500 24,440 47 Roosevelt Educ Center 5.01Doors / HardwareALC WingReplace Wood Doors -(some are OK), some are beat up 21994LTFM22022Replace
$ 50,800 $ 39,300 $ 1,418.00 ea 22 $ 31,200 1.210 $ 37,800 129% $ 48,800 50,752 47 Roosevelt Educ Center 5.01Doors / HardwareALC Rm #2418A Wd Door does not open fully bottom drags 11994LTFM22022cut down wd door bottom $ 300 $ 300 $ 200.00 ea 1 $ 200 1.210 $ 200 129% $ 300 31 2 47 Roosevelt Educ Center 5.01Doors / HardwareL.2 1953 orig building(cafeteria area) Replace original wood doors (those needing lever hardware) 21953LTFM22022Replace with wood doors $ 27,700 $ 21,400 $ 1,418.00 ea 12 $ 17,000 1.210 $ 20,600 129% $ 26,600 27,664 47 Roosevelt Educ Center 5.01Doors / HardwareL.2 1953 orig building(cafeteria area) Replace original wood doors (those needing panics) 21953LTFM22022Replace with wood door with panics (concealed vert cable), (or HM doors) $ 15,600 $ 12,100 $ 2,401.00 ea 4 $ 9,600 1.210 $ 11,600 129% $ 15,000 15,600
Roosevelt Educ
5.01Doors
HardwareL.1 1953 orig building (Rm# 14--) Replace original wood doors (those needing lever hardware) 21953LTFM22022Replace with wood doors $ 39,200 $ 30,400 $ 1,418.00 ea 17 $ 24,100 1.210 $ 29,200 129% $ 37,700 39,208
Roosevelt
/
WingMezzanine
wood
at mezzanine level damaged/chipped
Center 5.01Doors /
2242,
needing panics, that are
wide (non-ADA)
with wd doors
47
Center
/
47
Educ
HardwareL.
with HM doors inside maintenance areas $ 15,200 $ 11,800 $ 1,168.00 ea 8 $ 9,300 1.210 $ 11,300 129% $ 14,600 15,184
Roosevelt
1421)
to maint
Replace original wood doors (those needing lever hardware) 21953LTFM22022Replace with HM doors at corr doors to maintenance areas $ 19,000 $ 14,800 $ 1,168.00 ea 10 $ 11,700 1.210 $ 14,200 129% $ 18,300 19,032 47 Roosevelt Educ Center 5.01Doors / HardwareL.1 1953 orig building (Rm# 14-and corridors) Replace original wood doors (those needing panics) 21953LTFM22022Replace with wood door with panics (concealed vert cable), (or HM doors) $ 19,400 $ 15,200 $ 2,401.00 ea 5 $ 12,000 1.210 $ 14,500 129% $ 18,700 19,448 47 Roosevelt Educ Center 5.01Doors / HardwareMusic addition Rms 23312333 Replace original wood doors (those needing lever hardware) 21984LTFM22022Replace with wood doors $ 20,800 $ 16,200 $ 1,418.00 ea 9 $ 12,800 1.210 $ 15,500 129% $ 20,000 20,800 47 Roosevelt Educ Center 5.01Doors / HardwareMusic addition Rms 23312333 Replace original wood doors (those needing panics) 21984LTFM22022Replace with wood door with panics , (or HM doors) $ 19,400 $ 15,200 $ 2,401.00 ea 5 $ 12,000 1.210 $ 14,500 129% $ 18,700 19,448 47 Roosevelt Educ Center 5.01Doors / HardwareGym Wing L2Replace original wood doors (those needing lever hardware) 21953LTFM22022Replace with wood doors $ 25,400 $ 19,700 $ 1,418.00 ea 11 $ 15,600 1.210 $ 18,900 129% $ 24,400 25,376 47 Roosevelt Educ Center 5.01Doors / HardwareGym Wing L2Replace original HM doors needing panics 21953LTFM22022Replace with HM doors with panics $ 64,900 $ 50,400 $ 2,501.00 ea 16 $ 40,000 1.210 $ 48,400 129% $ 62,400 64,896 © Copyright 2021 Armstrong Torseth Skold Rydeen, Inc. Page 8 of 19
21953LTFM22022Replace
47
Educ Center 5.01Doors / HardwareL. 1 1953 Orig buiding (rm #1402, 1405, 1415,
(corr doors
spaces)
Fergus Falls Facility Assessment 9/14/2021 200 201 202 203 ABCDEFGHIJKLMNOPQRSTUVWXYZAAAC Roosevelt Educ Center 152,600 SF NancyJohn MPat CGary G Mike HDave BRon S 2022 TOTAL PRIORITIES 21,742,032 $ Projected2022 BaseEst.Proj.Base2022 PROJECTConstructionUnitConstCostConst.CostProjectProject COST Cost Basis Cost Unit Quantity Cost Factor Cost Factor Cost Cost Item Code Note Bldg No. Location Cat. Code Category Description Room No.(s) / Area No.(s) Year Action Recommended Life Exp. (yrs) Reb. (Y/N) Item Description 1-5 Cond. Install Orig. / Repl. Fund Yr Fnl Pr. 401 402 403 404 405 406 407 408 409 410 411 412 413 414 415 416 417 418 419 420 421 422 423 424 425 426 47 Roosevelt Educ Center 5.01Doors / HardwareGym Wing L1Replace original Wd / HM doors needing lever hardware (not inc within remod areas) 2LTFM22022Replace with HM doors with lever hardware $ 34,100 $ 26,500 $ 1,168.00 ea 18 $ 21,000 1.210 $ 25,400 129% $ 32,800 34,112 47 Roosevelt Educ Center 5.01Doors / HardwareGym Wing L1Replace original Wd / HM doors needing panic hardware (not inc within remod areas) 2LTFM22022Replace with HM doors with panics $ 89,300 $ 69,300 $ 2,501.00 ea 22 $ 55,000 1.210 $ 66,600 129% $ 85,900 89,336 47 Roosevelt Educ Center 5.01Doors / Hardware LTFM22022 $$$1.210 $129% $47 Roosevelt Educ Center 5.02Windows Door Sidelights VocationalWing Display Cases have plate glass 1LTFM22022Replace with1/4" tempered glass $ 4,600 $ 3,600 $ 16.60 sf 168 $ 2,800 1.210 $ 3,400 129% $ 4,400 4,576 47 Roosevelt Educ Center 5.02Windows Door Sidelights VocationalWing Wdw/sidelites at Coop area corridor doors are plate glass 1LTFM22022Replace with1/4" tempered glass $ 1,000 $ 900 $ 16.60 sf 40 $ 700 1.210 $ 800 129% $ 1,000 1, 040 47 Roosevelt Educ Center 5.02Windows Door Sidelights VocationalWingEastVestibule doors/sidelight s Full glass doors/sidtlites are plate glass 2LTFM22022Replace with1/4" tempered glass $ 2,800 $ 2,200 $ 16.60 sf 105 $ 1,700 1.210 $ 2,100 129% $ 2,700 2,808 47 Roosevelt Educ Center 5.02Windows Door Sidelights L. 2 Cafeteriawindows Full ht windows are wire glass1LTFM22022Replace with1/4" tempered glass $ 4,600 $ 3,600 $ 16.60 sf 168 $ 2,800 1.210 $ 3,400 129% $ 4,400 4,576 47 Roosevelt Educ Center 5.02Windows Door Sidelights L.1 Corroutside maint Rm #1419 Display Cases have plate glass 1LTFM22022Replace with1/4" tempered glass $ 2,200 $ 1,700 $ 16.60 sf 80 $ 1,300 1.210 $ 1,600 129% $ 2,100 2,184 47 Roosevelt Educ Center 5.02Windows Door Sidelights Music addition Rms 23312333 Sidelites at cross-corr doors to gym wing are not tempered glass 1LTFM22022Replace with1/4" tempered glass $ 1,000 $ 900 $ 16.60 ea 42 $ 700 1.210 $ 800 129% $ 1,000 1, 040 47 Roosevelt Educ Center 5.02Windows Door Sidelights Gym LobbyDisplay Cases have plate glass 1LTFM22022Replace with1/4" tempered glass $ 5,500 $ 4,300 $ 16.60 sf 207 $ 3,400 1.210 $ 4,100 129% $ 5,300 5,512 47 Roosevelt Educ Center 5.02Windows Door Sidelights LTFM22022 $$$ ea $1.210 $129% $47 Roosevelt Educ Center 5.03Flooring / BaseSpec Ed CoopCarpetmodular, seams starting to show, on latter portion of life expect. 3LTFM201022022Replace with modular carpet12 $ 29,600 $ 23,100 $ 6.30 sf 2,900 $ 18,300 1.210 $ 22,100 129% $ 28,500 29,640 47 Roosevelt Educ Center 5.03Flooring / BaseMS EBD Rm 2422 Carpetmodular, seams starting to show, on latter portion of life expectsome torn 2LTFM201022022Replace with modular carpet12 $ 9,600 $ 7,500 $ 6.30 sf 935 $ 5,900 1.210 $ 7,100 129% $ 9,200 9,56 8 47 Roosevelt Educ Center 5.03Flooring / BaseVocationalWingRms2446A,B, & D, and 2448 Carpetbroadloom1LTFM201022022Replace with modular carpet12 $ 4,500 $ 3,400 $ 6.30 sf 435 $ 2,700 1.210 $ 3,300 129% $ 4,300 4,472 47 Roosevelt Educ Center 5.03Flooring / BaseALC Rm#2420,2421,2413,2409,2416,2418,2418A Carpetmodular, seams starting to show, on latter portion of life expect. 3LTFM22022Replace with modular carpet12 $ 42,200 $ 32,800 $ 6.30 sf 4,128 $ 26,000 1.210 $ 31,500 129% $ 40,600 42,224 47 Roosevelt Educ Center 5.03Flooring / BaseCafeteriaVCT flooringold2LTFM22022Replace with VCT $ 36,100 $ 28,000 $ 4.60 sf 4,820 $ 22,200 1.210 $ 26,900 129% $ 34,700 36,088 47 Roosevelt Educ Center 5.03Flooring / BaseL2 Corridoroutside cafeteria VCT flooringold, cracking near elevator 2LTFM22022Replace with VCT $ 18,800 $ 14,600 $ 4.60 sf 2,530 $ 11,600 1.210 $ 14,000 129% $ 18,100 18,824 47 Roosevelt Educ Center 5.03Flooring / BaseL.1 Corroutside boiler rm Cracks in terrazzo floor1LTFM22022Repair with epoxy, or cut out section and replace? $ 4,800 $ 3,800 $ 3,000.00 ls 1 $ 3,000 1.210 $ 3,600 129% $ 4,600 4,784 47 Roosevelt Educ Center 5.03Flooring / BaseL.1 Corr, N-S and S-W outside Rm# 1409-1417 Conc floor, exg flooring removed but not polished, looks unfinished 2LTFM22022Install VCT flooring (or polish exg Conc) $ 13,300 $ 10,400 $ 4.60 sf 1,785 $ 8,200 1.210 $ 9,900 129% $ 12,800 13,312 47 Roosevelt Educ Center 5.03Flooring / Base L.1 Rm# 14091413 Broadloom carpet1LTFM22022Replace with modular carpet $ 21,300 $ 16,500 $ 6.30 sf 2,080 $ 13,100 1.210 $ 15,900 129% $ 20,500 21,320 47 Roosevelt Educ Center 5.03Flooring / BaseL.1 Rm 1423Hole in conc slab around laundry sink waste line 1LTFM22022Repair conc floor slab $ 300 $ 300 $ 200.00 ls 1 $ 200 1.210 $ 200 129% $ 300 312 47 Roosevelt Educ Center 5.03Flooring / BaseMedia Center Area #1401 Broadloom carpet11994LTFM22022Replace with modular carpet $ 85,200 $ 66,100 $ 6.30 sf 8,340 $ 52,500 1.210 $ 63,500 129% $ 81,900 85,176 47 Roosevelt Educ Center 5.03Flooring / BaseRm# 2331School of Choice & offices Broadloom carpet11984LTFM22022Replace with modular carpet $ 22,300 $ 17,300 $ 6.30 sf 2,180 $ 13,700 1.210 $ 16,600 129% $ 21,400 22,256 47 Roosevelt Educ Center 5.03Flooring / BaseRm# 2333Softball batting cagesmain area Broadloom carpet11984LTFM22022Replace with rubber sport flooring $ 62,500 $ 48,500 $ 16.00 sf 2,405 $ 38,500 1.210 $ 46,600 129% $ 60,100 62,504 47 Roosevelt Educ Center 5.03Flooring / BaseRm# 2333Softball batting cagessideareas/offices Broadloom carpet11984LTFM22022Replace with VCT flooring $ 3,800 $ 3,100 $ 4.60 sf 520 $ 2,400 1.210 $ 2,900 129% $ 3,700 3,848 47 Roosevelt Educ Center 5.03Flooring / BaseRm# 2331DTheater Storage VCT flooringold21984LTFM22022Replace with VCT $ 1,800 $ 1,400 $ 4.60 sf 240 $ 1,100 1.210 $ 1,300 129% $ 1,700 1,768 © Copyright 2021 Armstrong Torseth Skold Rydeen, Inc. Page 9 of 19
Fergus Falls Facility Assessment 9/14/2021 200 201 202 203 ABCDEFGHIJKLMNOPQRSTUVWXYZAAAC Roosevelt Educ Center 152,600 SF NancyJohn MPat CGary G Mike HDave BRon S 2022 TOTAL PRIORITIES 21,742,032 $ Projected2022 BaseEst.Proj.Base2022 PROJECTConstructionUnitConstCostConst.CostProjectProject COST Cost Basis Cost Unit Quantity Cost Factor Cost Factor Cost Cost Item Code Note Bldg No. Location Cat. Code Category Description Room No.(s) / Area No.(s) Year Action Recommended Life Exp. (yrs) Reb. (Y/N) Item Description 1-5 Cond. Install Orig. / Repl. Fund Yr Fnl Pr. 427 428 429 430 431 432 433 434 435 436 437 438 439 440 441 442 443 444 445 446 447 448 449 450 451 452 453 47 Roosevelt Educ Center 5.03Flooring / BaseMusic additioncorridor VCT flooringold, cracked VB 21984LTFM22022Replace with VCT $ 3,300 $ 2,700 $ 4.60 sf 455 $ 2,100 1.210 $ 2,500 129% $ 3,200 3,328 47 Roosevelt Educ Center 5.03Flooring / BaseGym L 2 Rm 2348 area Broadloom carpet1LTFM22022Replace with modular carpet $ 6,300 $ 5,000 $ 6.30 sf 613 $ 3,900 1.210 $ 4,700 129% $ 6,100 6,344 47 Roosevelt Educ Center 5.03Flooring / BaseGym #2350 Golf Team Broadloom carpet1LTFM22022Replace with modular carpet $ 21,800 $ 17,000 $ 6.30 sf 2,146 $ 13,500 1.210 $ 16,300 129% $ 21,000 21,840 47 Roosevelt Educ Center 5.03Flooring / BaseGym L2Skiing/Workout Rubber tile flooring2LTFM22022Replace with new interlocking rubber tiles $ 6,300 $ 5,000 $ 4.22 sf 912 $ 3,900 1.210 $ 4,700 129% $ 6,100 6,344 47 Roosevelt Educ Center 5.03Flooring / BaseGym WoodFlooring Existing wd boards are cupping, is original "33/32" ironbound wood on 1/2" cork"not DIN rated, etc. 2LTFM22022 At a minimum, needs sanding, refinishing, and restriping $ 96,700 $ 75,100 $ 6.30 sf 9,465 $ 59,600 1.210 $ 72,100 129% $ 93,000 96,720 47 Roosevelt Educ Center 5.03Flooring / BaseGym WoodFlooring Existing wd boards are cupping, is original "33/32" ironbound wood on 1/2" cork"not DIN rated,
2LTFM02022Option
$$ 219,300 $ 18.40 sf 9,465 $ 174,200 1.210 $ 210,800 129% $ 271,900 47 Roosevelt Educ Center 5.03Flooring / Base LTFM22022 $$$ sf $1.210 $129% $47 Roosevelt Educ Center 5.03Flooring / Base LTFM22022 $$$ sf $1.210 $129% $47 Roosevelt Educ Center 5.04Ceiling Acoustic PanelsVocationalWing 2 x 4 ACTcenter area (except Spec Ed Coop) rusted grid/stained panels 2LTFM22022Replace with 2 x 2 ACT $ 45,400 $ 35,300 $ 4.20 sf 6,670 $ 28,000 1.210 $ 33,900 129% $ 43,700 45,448 47 Roosevelt Educ Center 5.04Ceiling Acoustic PanelsCafeteria1 x 1 adhered ACTtwo levelsNOTE pucks contain asbestos 2LTFM22022Replace with 2 x 2 ACT clouds, painted above (base$*1.25+pt) $ 47,300 $ 36,800 $ 6.05 sf 4,820 $ 29,200 1.210 $ 35,300 129% $ 45,500 47,320 47 Roosevelt Educ Center 5.04Ceiling Acoustic PanelsL.2 Corridoroutside cafeteria 1 x 1 adhered ACTNOTE pucks contain asbestos 2LTFM22022Replace with 2 x 2 ACT $ 8,600 $ 6,700 $ 4.20 sf 1,270 $ 5,300 1.210 $ 6,400 129% $ 8,300 8,632 47 Roosevelt Educ Center 5.04Ceiling Acoustic PanelsL.2 Corridoroutside cafeteria GBD (cracked where no EJT) adhered over 1 x 1 adhered ACTNOTE pucks contain asbestos 1LTFM22022cut down wd door bottom $ 4,100 $ 3,200 $ 4.20 sf 600 $ 2,500 1.210 $ 3,000 129% $ 3,900 4,056 47 Roosevelt Educ Center 5.04Ceiling Acoustic PanelsL.1 Corr, N-S and S-W outside Rm# 1409-1417 1 x 1 adhered ACTNOTE pucks contain asbestos 1LTFM22022Replace with 2 x 2 ACT $ 12,200 $ 9,500 $ 4.20 sf 1,785 $ 7,500 1.210 $ 9,100 129% $ 11,700 12,168 47 Roosevelt Educ Center 5.04Ceiling Acoustic PanelsL.1 N-S Corr outside Rm # 1401-1405 (boiler rmmedia corr) GBD adhered over 1 x 1 adhered ACTNOTE pucks contain asbestos 1LTFM22022Replace with 2 x 2 ACT $ 15,700 $ 12,300 $ 4.20 sf 2,300 $ 9,700 1.210 $ 11,700 129% $ 15,100 15,704 47 Roosevelt Educ Center 5.04Ceiling Acoustic Panels L.1 Rm# 14091413 1 x 1 adhered ACTNOTE pucks contain asbestos 1LTFM22022Replace with 2 x 2 ACT $ 14,000 $ 11,000 $ 4.20 sf 2,080 $ 8,700 1.210 $ 10,500 129% $ 13,500 14,040 47 Roosevelt Educ Center 5.04Ceiling Acoustic PanelsRm# 2331School of Choice & offices 2 x 4 orig ACT21984LTFM22022Replace with 2 x 2 ACT $ 14,900 $ 11,600 $ 4.20 sf 2,180 $ 9,200 1.210 $ 11,100 129% $ 14,300 14 ,872 47 Roosevelt Educ Center 5.04Ceiling Acoustic PanelsRm# 2331#2333 Softball cages & offices 2 x 4 orig ACT21984LTFM22022Replace with 2 x 2 ACT $ 20,000 $ 15,500 $ 4.20 sf 2,925 $ 12,300 1.210 $ 14,900 129% $ 19,200 19, 968 47 Roosevelt Educ Center 5.04Ceiling Acoustic PanelsRm# 2331DTheater Storage 2 x 4 orig ACT21984LTFM22022Replace with 2 x 2 ACT $ 1,800 $ 1,400 $ 4.20 sf 260 $ 1,100 1.210 $ 1,300 129% $ 1,700 1,768 47 Roosevelt Educ Center 5.04Ceiling Acoustic PanelsGym L 2 Rm 2348 area 2 x 2 ACT -poor cond2LTFM22022 $ 4,200 $ 3,300 $ 4.20 sf 613 $ 2,600 1.210 $ 3,100 129% $ 4,000 4,160 47 Roosevelt Educ Center 5.04Ceiling Acoustic Panels Gym Wing Rm 1350 and adjacent rm 2 x 2 ACT -poor cond2LTFM22022 $ 5,200 $ 4,100 $ 4.20 sf 765 $ 3,200 1.210 $ 3,900 129% $ 5,000 5,200 47 Roosevelt Educ Center 5.04Ceiling Acoustic Panels LTFM22022 $$$ sf $1.210 $129% $47 Roosevelt Educ Center 5.04Ceiling Acoustic Panels LTFM22022 $$$ sf $1.210 $129% $47 Roosevelt Educ Center 5.05Wall Finishes (PT, VWC, etc)VocationalWing Center Rms 2433, 2435, 2445, 2447 & Metal Shop 2442 Painted CMU/GBDdingy/stainedneeds repainting (10' h. in metal shop) 2LTFM22022repaint walls $ 8,900 $ 7,000 $ 0.80 sf 6,852 $ 5,500 1.210 $ 6,700 129% $ 8,600 8,944 47 Roosevelt Educ Center 5.05Wall Finishes (PT, VWC, etc)VocationalWing Paint HM Doors and Frames (count pair as 2)all (inc mezz) except special ed coop remodel area 21966LTFM22022Paint $ 33,600 $ 26,100 $ 272.30 ea 76 $ 20,700 1.210 $ 25,000 129% $ 32,300 33,592 47 Roosevelt Educ Center 5.05Wall Finishes (PT, VWC, etc)VocationalWingMezzanine Paint HM dr/wdw Frames 2LTFM22022 $ 1,000 $ 900 $ 186.30 4 $ 700 1.210 $ 800 129% $ 1,000 1,040 47 Roosevelt Educ Center 5.05Wall Finishes (PT, VWC, etc)ALC WingPaint HM Frames (exg 1994 wd doors) 21994LTFM22022 $ 6,800 $ 5,200 $ 186.30 ea 22 $ 4,100 1.210 $ 5,000 129% $ 6,500 6,760 47 Roosevelt Educ Center 5.05Wall Finishes (PT, VWC, etc)ALC WingGBD Corr wallssome corners/wall bumpers need some repairs and corner guards 2LTFM22022 $ 3,200 $ 2,600 $ 2,000.00 ls 1 $ 2,000 1.210 $ 2,400 129% $ 3,100 3,224 © Copyright 2021 Armstrong Torseth Skold Rydeen, Inc. Page 10 of 19
etc.
to Replace with DIN rated floorwould be taller and need remodeling and entrances (that cost not shown here)
Fergus Falls Facility Assessment 9/14/2021 200 201 202 203 ABCDEFGHIJKLMNOPQRSTUVWXYZAAAC Roosevelt Educ Center 152,600 SF NancyJohn MPat CGary G Mike HDave BRon S 2022 TOTAL PRIORITIES 21,742,032 $ Projected2022 BaseEst.Proj.Base2022 PROJECTConstructionUnitConstCostConst.CostProjectProject COST Cost Basis Cost Unit Quantity Cost Factor Cost Factor Cost Cost Item Code Note Bldg No. Location Cat. Code Category Description Room No.(s) / Area No.(s) Year Action Recommended Life Exp. (yrs) Reb. (Y/N) Item Description 1-5 Cond. Install Orig. / Repl. Fund Yr Fnl Pr. 454 455 456 457 458 459 460 461 462 463 464 465 466 467 468 469 470 471 472 473 474 475 476 477 478 479 480 481 482 483 47 Roosevelt Educ Center 5.05Wall Finishes (PT, VWC, etc)L. 2 1952 Orig buiding(cafeteria area) Paint HM door/wdw Frames 1952 orig bldg 2LTFM22022 $ 7,300 $ 5,700 $ 186.30 24 $ 4,500 1.210 $ 5,400 129% $ 7,000 7,280 47 Roosevelt Educ Center 5.05Wall Finishes (PT, VWC, etc)CafeteriaWalls need repainting2LTFM22022 $ 5,100 $ 4,000 $ 0.80 sf 3,900 $ 3,100 1.210 $ 3,800 129% $ 4,900 5,096 47 Roosevelt Educ Center 5.05Wall Finishes (PT, VWC, etc)Receiving AreaWalls need repainting2LTFM22022 $ 2,300 $ 1,800 $ 0.80 sf 1,700 $ 1,400 1.210 $ 1,700 129% $ 2,200 2,288 47 Roosevelt Educ Center 5.05Wall Finishes (PT, VWC, etc)L. 1 1952 Orig buiding (#14-rms)(not inc inside maint spaces) Paint HM door/wdw Frames 1952 orig bldg 21953LTFM22022 $ 9,900 $ 7,700 $ 186.30 33 $ 6,100 1.210 $ 7,400 129% $ 9,500 9,880 47 Roosevelt Educ Center 5.05Wall Finishes (PT, VWC, etc)L. 1 1952 Orig buiding (rm #1405, 1415, 1421) (inside maint spaces) Paint HM door/wdw Frames 1952 orig bldg (inside maintenance spaces) 21953LTFM22022 $ 3,800 $ 3,100 $ 186.30 13 $ 2,400 1.210 $ 2,900 129% $ 3,700 3,848 47 Roosevelt Educ Center 5.05Wall Finishes (PT, VWC, etc)L1 bot of Stair next to #1405 Patch cracked plaster wall1LTFM22022 $ 500 $ 400 $ 300.00 ls 1 $ 300 1.210 $ 400 129% $ 500 520 47 Roosevelt Educ Center 5.05Wall Finishes (PT, VWC, etc)L.1 Corr, N-S and S-W outside Rm# 1409-1417 Painted CMU/GBDdingy/stainedneeds repainting 2LTFM22022 $ 5,200 $ 4,100 $ 0.80 sf 4,050 $ 3,200 1.210 $ 3,900 129% $ 5,000 5,200 47 Roosevelt Educ Center 5.05Wall Finishes (PT, VWC, etc) L.1 Rm# 14091413 Painted PLAS/GBD dingy/stainedneeds repainting 2LTFM22022 $ 5,500 $ 4,300 $ 0.80 sf 4,284 $ 3,400 1.210 $ 4,100 129% $ 5,300 5,512 47 Roosevelt Educ Center 5.05Wall Finishes (PT, VWC, etc)L.1 W. Vest HM doors at W entrance Paint HM Doors and Frames (count pair as 2) 21966LTFM22022Paint doors, frames, and transoms $ 2,600 $ 2,100 $ 272.30 ea 6 $ 1,600 1.210 $ 1,900 129% $ 2,500 2,600 47 Roosevelt Educ Center 5.05Wall Finishes (PT, VWC, etc)L. 1 Rm#1423A Art Rm Stg dingy paint2LTFM22022repaint walls $ 2,000 $ 1,600 $ 0.80 sf 1,440 $ 1,200 1.210 $ 1,500 129% $ 1,900 1,976 47 Roosevelt Educ Center 5.05Wall Finishes (PT, VWC, etc)Media Center Area #1401 Walls need repainting2LTFM22022repaint walls $ 14,000 $ 11,000 $ 0.80 sf 10,878 $ 8,700 1.210 $ 10,500 129% $ 13,500 14,040 47 Roosevelt Educ Center 5.05Wall Finishes (PT, VWC, etc)Media Center Area #1401 Soffits need repainting2LTFM22022 $ 2,300 $ 1,800 $ 2.40 sf 600 $ 1,400 1.210 $ 1,700 129% $ 2,200 2,288 47 Roosevelt Educ Center 5.05Wall Finishes (PT, VWC, etc)Media Center Area #1401 Orig paint on HM door/wdw frames 2LTFM22022Paint HM door and wdw frames $ 7,300 $ 5,700 $ 186.30 sf 24 $ 4,500 1.210 $ 5,400 129% $ 7,000 7,280 47 Roosevelt Educ Center 5.05Wall Finishes (PT, VWC, etc)Rm #1423 Art Rm Original Wd OH door, not in usedemolish 2LTFM22022Remove existing OH door, infill with CMU wall $ 7,000 $ 5,500 $ 45.00 sf 96 $ 4,300 1.210 $ 5,200 129% $ 6,700 6,968 47 Roosevelt Educ Center 5.05Wall Finishes (PT, VWC, etc)Rm# 2331School of Choice & offices Walls need repainting21984LTFM22022repaint walls $ 4,800 $ 3,800 $ 0.80 sf 3,800 $ 3,000 1.210 $ 3,600 129% $ 4,600 4,784 47 Roosevelt Educ Center 5.05Wall Finishes (PT, VWC, etc)Rm# 2331#2333 Softball cages & offices Walls need repainting21984LTFM22022 $ 3,800 $ 3,100 $ 0.80 sf 2,972 $ 2,400 1.210 $ 2,900 129% $ 3,700 3,848 47 Roosevelt Educ Center 5.05Wall Finishes (PT, VWC, etc)Rm# 2331DTheater Storage Walls need repainting21984LTFM22022 $ 1,800 $ 1,400 $ 0.80 sf 1,330 $ 1,100 1.210 $ 1,300 129% $ 1,700 1,768 47 Roosevelt Educ Center 5.05Wall Finishes (PT, VWC, etc)Music addition Rms 23312333 Paint HM Frames (exg 1984 wd doors) 21984LTFM22022 $ 4,800 $ 3,800 $ 186.30 ea 16 $ 3,000 1.210 $ 3,600 129% $ 4,600 4,784 47 Roosevelt Educ Center 5.05Wall Finishes (PT, VWC, etc)Music addition Rms 23312333 Paint HM Doors and Frames (count pair as 2) 2LTFM22022Paint doors, frames, and transoms $ 2,300 $ 1,800 $ 272.30 ea 5 $ 1,400 1.210 $ 1,700 129% $ 2,200 2,28 8 47 Roosevelt Educ Center 5.05Wall Finishes (PT, VWC, etc)Music additioncorridor Walls and transom panels at alum ext wdw system need repainting 21984LTFM22022 $ 600 $ 600 $ 0.80 sf 517 $ 400 1.210 $ 500 129% $ 600 624 47 Roosevelt Educ Center 5.05Wall Finishes (PT, VWC, etc)Gym L 2 Rm 2348 area Walls need repainting2LTFM22022 $ 2,200 $ 1,700 $ 0.80 sf 1,592 $ 1,300 1.210 $ 1,600 129% $ 2,100 2,184 47 Roosevelt Educ Center 5.05Wall Finishes (PT, VWC, etc)Gym L 2 Rm 2348 area corridor GBD ceiling needs repainting2LTFM22022 $ 800 $ 700 $ 0.80 sf 627 $ 500 1.210 $ 600 129% $ 800 832 47 Roosevelt Educ Center 5.05Wall Finishes (PT, VWC, etc)Gym L2Skiing/Workout Walls need repainting2LTFM22022 $ 3,800 $ 3,100 $ 0.80 sf 3,038 $ 2,400 1.210 $ 2,900 129% $ 3,700 3,848 47 Roosevelt Educ Center 5.05Wall Finishes (PT, VWC, etc)Gym L2guardrails Front and mid ht guardrails of seating areas need repainting, both sides 2LTFM22022Paint Guardrails (new/exg acrylic panels to remain) (lf ea rail) $ 8,600 $ 6,700 $ 5.00 lf 1,056 $ 5,300 1.210 $ 6,400 129% $ 8,300 8,632 47 Roosevelt Educ Center 5.05Wall Finishes (PT, VWC, etc)Gym L2 S. Visitor Seating area Wood benches need painting2LTFM22022Paint wd benches $ 2,200 $ 1,700 $ 1.50 lf 860 $ 1,300 1.210 $ 1,600 129% $ 2,100 2,184 47 Roosevelt Educ Center 5.05Wall Finishes (PT, VWC, etc)Gym L2Paint HM dr/wdw Frames 2LTFM22022 $ 9,400 $ 7,300 $ 186.30 ea 31 $ 5,800 1.210 $ 7,000 129% $ 9,000 9,360 47 Roosevelt Educ Center 5.05Wall Finishes (PT, VWC, etc)Gym AreaLaundry Rm Walls need repainting2LTFM22022 $ 1,500 $ 1,200 $ 0.80 sf 1,170 $ 900 1.210 $ 1,100 129% $ 1,400 1,456 47 Roosevelt Educ Center 5.05Wall Finishes (PT, VWC, etc)Gym Wing L 1Paint HM dr/wdw frames2LTFM22022 $ 12,200 $ 9,500 $ 186.30 sf 40 $ 7,500 1.210 $ 9,100 129% $ 11,700 12,168 47 Roosevelt Educ Center 5.05Wall Finishes (PT, VWC, etc)Gym SouthEntrance- interior side of wd frames Paint wood frames2LTFM22022Paint wood frames $ 3,200 $ 2,600 $ 2,000.00 ls 1 $ 2,000 1.210 $ 2,400 129% $ 3,100 3,22 4 47 Roosevelt Educ Center 5.05Wall Finishes (PT, VWC, etc) LTFM22022 $$sf $1.210 $129% $© Copyright 2021 Armstrong Torseth Skold Rydeen, Inc. Page 11 of 19
Fergus Falls Facility Assessment 9/14/2021 200 201 202 203 ABCDEFGHIJKLMNOPQRSTUVWXYZAAAC Roosevelt Educ Center 152,600 SF NancyJohn MPat CGary G Mike HDave BRon S 2022 TOTAL PRIORITIES 21,742,032 $ Projected2022 BaseEst.Proj.Base2022 PROJECTConstructionUnitConstCostConst.CostProjectProject COST Cost Basis Cost Unit Quantity Cost Factor Cost Factor Cost Cost Item Code Note Bldg No. Location Cat. Code Category Description Room No.(s) / Area No.(s) Year Action Recommended Life Exp. (yrs) Reb. (Y/N) Item Description 1-5 Cond. Install Orig. / Repl. Fund Yr Fnl Pr. 484 485 486 487 488 489 490 491 492 493 494 495 496 497 498 499 500 501 502 503 504 505 506 507 508 509 510 511 47 Roosevelt Educ Center 5.05Wall Finishes (PT, VWC, etc) LTFM22022 $$sf $1.210 $129% $47 Roosevelt Educ Center 6.05Stage Curtains LTFM22022 $$$1.210 $129% $47 Roosevelt Educ Center 5.06Tile Applications LTFM22022 $$$ sf $1.210 $129% $47 Roosevelt Educ Center 5.07Hand, Guardrail Code Deficiencies Vocational Wing Small Engines Rm over 50 occDoors lever instead of panic hardware 11966LTFM22022Replace with panic hardware $ 2,200 $ 1,700 $ 1,333.00 sf 1 $ 1,300 1.210 $ 1,600 129% $ 2,100 2,184 47 Roosevelt Educ Center 5.07Hand, Guardrail Code Deficiencies Voc Wing to ALC corridor ramp Ramp missing handrails1LTFM22022Provide painted steel handrails $ 2,900 $ 2,300 $ 44.00 lf 40 $ 1,800 1.210 $ 2,200 129% $ 2,8 00 2,912 47 Roosevelt Educ Center 5.07Hand, Guardrail Code Deficiencies Stair S. of ALCGuard rails are too short (3') and picket spacing over 4" 2LTFM22022Cut off existing guard rails and replace $ 24,400 $ 18,900 $ 500.00 lf 30 $ 15,000 1.210 $ 18,200 129% $ 23,500 24, 440 47 Roosevelt Educ Center 5.07Hand, Guardrail Code Deficiencies Stair S. of ALCHandrail profile large squarenot ADA graspable 2LTFM22022Replace with 1 1/4" id pipe railing $ 3,800 $ 3,100 $ 44.00 lf 54 $ 2,400 1.210 $ 2,900 129% $ 3,700 3 ,848 47 Roosevelt Educ Center 5.07Hand, Guardrail Code Deficiencies Maint areastaff lounge Code issueExposed wd framing on back side not acceptable innoncombustable construction 1LTFM22022Apply GBD to exposed stud wall construction to encase it $ 800 $ 700 $ 3.00 sf 178 $ 500 1.210 $ 600 129% $ 800 832 47 Roosevelt Educ Center 5.07Hand, Guardrail Code Deficiencies Gym area stairs 4 Stairs Guard rails are too short (3') and picket spacing over 4" 2LTFM22022Cut off existing guard rails and replace $ 112,800 $ 87,500 $ 500.00 lf 139 $ 69,500 1.210 $ 84,100 129% $ 108,500 112,840 47 Roosevelt Educ Center 5.07Hand, Guardrail Code Deficiencies Gym area stairs 4 Stairs Handrail profile large square -not ADA graspable 2LTFM22022Replace with 1 1/4" id pipe railing $ 11,400 $ 8,900 $ 44.00 lf 160 $ 7,000 1.210 $ 8,500 129% $ 11,000 11,44 0 47 Roosevelt Educ Center 5.07Hand, Guardrail Code Deficiencies Gym #1349Front guardrail at S. (Visitor) sidelarge spacing bet rails, only netting on it 1LTFM22022Install acrylic panels over existing (to match opposite side) $ 6,100 $ 4,800 $ 13.33 sf 288 $ 3,800 1.210 $ 4,600 129% $ 5,900 6,136 47 Roosevelt Educ Center 5.07Hand, Guardrail Code Deficiencies Gym #1349Front guardrail at N. (Home) sideTwo sections are bent outwards 2LTFM22022 $ 600 $ 600 $ 200.00 ls 2 $ 400 1.210 $ 500 129% $ 600 624 47 Roosevelt Educ Center 5.07Hand, Guardrail Code Deficiencies LTFM22022 $$$ sf $1.210 $129% $47 Roosevelt Educ Center 5.08Accessibility (ADA)VocationalWing Door knob handles instead of levers (all except spec ed coop area) 21966LTFM22022Replace with lever hardware $ 33,000 $ 25,600 $ 350.00 ea 58 $ 20,300 1.210 $ 24,600 129% $ 31,700 32,968 47 Roosevelt Educ Center 5.08Accessibility (ADA)Non-accessible toilets in vocational area see remodeling below LTFM22022 $$sf $1.210 $129% $47 Roosevelt Educ Center 5.09Secure / Controlled Entries LTFM22022 $$$ sf $1.210 $129% $47 Roosevelt Educ Center 5.10REMODELING ADDITIONSVocational Boys toilet next to auto shop non accessible toilet, no girls toilet this area. Major Remodel with Plumbing 1LTFM22022Remodel into boys and girls accessible toilets $ 164,600 $ 127,700 $ 288.00 sf 313 $ 90,100 1.362 $ 122,700 129% $ 158,300 164,632 47 Roosevelt Educ Center 5.10REMODELING
1LTFM22022create vestibule/secure entry/connecting
$ 80,100 $ 62,100 $ 125.00 sf 350 $ 43,800 1.362 $ 59,700 129% $ 77,000 80,080 47 Roosevelt Educ Center 5.10REMODELING ADDITIONSALC officeNo vestibule or secure entry (moderate remodel rest of admin) 1LTFM22022create vestibule/secure entry/connecting corr, therefore
to remodel remainder of admin $ 209,500 $ 162,400 $ 101.00 sf 1,135 $ 114,600 1.362 $ 156,100 129% $ 201,400 209,456 47 Roosevelt Educ Center 5.10REMODELING ADDITIONSKitchen,serving,dishwashing Major Remodel with Plumbing1LTFM22022(note does not include upcoming cullinary kitchen area) $ 586,700 $ 454,900 $ 288.00 sf 1,115 $ 321,100 1.362 $ 437,300 129% $ 564,100 586,664 47 Roosevelt Educ Center 5.10REMODELING ADDITIONSDry Food Stg area and rm Moderate Remodel (75%)2LTFM22022 $ 91,300 $ 70,900 $ 75.75 sf 660 $ 50,000 1.362 $ 68,100 129% $ 87,800 91,312 47 Roosevelt Educ Center 5.10REMODELING ADDITIONSFormer CoolerMajor Remodel2LTFM22022Remove raised floor slab and ins, pour new floor, furr out/refinish walls, new ceiling $ 36,700 $ 28,500 $ 148.00 sf 136 $ 20,100 1.362 $ 27,400 129% $ 35,300 36,712 47 Roosevelt Educ Center 5.10REMODELING ADDITIONSKitchen toiletMajor Remodel with Plumbing2LTFM22022 $ 47,300 $ 36,700 $ 288.00 sf 90 $ 25,900 1.362 $ 35,300 129% $ 45,500 47,320 47 Roosevelt Educ Center 5.10REMODELING ADDITIONSStaff Toilet #1415 Orig space, not accessible, orig finshes 21953LTFM22022Major Remodel with Plumbing create two staff toilets $ 168,500 $ 130,600 $ 288.00 sf 320 $ 92,200 1.362 $ 125,600 129% $ 162,000 168,480 47 Roosevelt Educ Center 5.10REMODELING ADDITIONSRm #2331Old choir room Stepped risers are not accessible 31953LTFM22022Demo exg conc risers and install flat conc floor $ 160,900 $ 124,700 $ 55.00 sf 1,600 $ 88,000 1.362 $ 119,900 129% $ 154,700 160,888 47 Roosevelt Educ Center 5.10REMODELING ADDITIONSGym L2Womens Toilet Remodel original Toiletplmbg fixtures/piping/ADA issues Major Remodel with Plumbing 11953LTFM22022Remodel toilet $ 157,900 $ 122,400 $ 288.00 sf 300 $ 86,400 1.362 $ 117,700 129% $ 151,800 157,872 47 Roosevelt Educ Center 5.10REMODELING ADDITIONSGym L1 Mens Toilet Remodel original Toiletplmbg fixtures/piping/ADA issues Major Remodel with Plumbing 11953LTFM22022Remodel toilet $ 187,300 $ 145,200 $ 288.00 sf 356 $ 102,500 1.362 $ 139,600 129% $ 180,100 187,304 47 Roosevelt Educ Center 5.10REMODELING ADDITIONSGym L1 MensLocker/Storage Areas Remodel locker rm/storage areasoriginal & past useful life 21953LTFM22022Moderate Remodel (see separate line for new lockers) $ 356,200 $ 276,100 $ 101.00 sf 1,930 $ 194,900 1.362 $ 265,500 129% $ 342,500 356,200 © Copyright 2021 Armstrong Torseth Skold Rydeen, Inc. Page 12 of 19
ADDITIONSALC officeNo vestibule or secure entry (major remod corr/vest area)
corr
need
Fergus Falls Facility Assessment 9/14/2021 200 201 202 203 ABCDEFGHIJKLMNOPQRSTUVWXYZAAAC Roosevelt Educ Center 152,600 SF NancyJohn MPat CGary G Mike HDave BRon S 2022 TOTAL PRIORITIES 21,742,032 $ Projected2022 BaseEst.Proj.Base2022 PROJECTConstructionUnitConstCostConst.CostProjectProject COST Cost Basis Cost Unit Quantity Cost Factor Cost Factor Cost Cost Item Code Note Bldg No. Location Cat. Code Category Description Room No.(s) / Area No.(s) Year Action Recommended Life Exp. (yrs) Reb. (Y/N) Item Description 1-5 Cond. Install Orig. / Repl. Fund Yr Fnl Pr. 512 513 514 515 516 517 518 519 520 521 522 523 524 525 526 527 528 529 530 531 532 533 534 535 536 537 538 539 540 541 542 47 Roosevelt Educ Center 5.10REMODELING ADDITIONSGym L1 Menstoilet/shower areas Remodel toilet/shower areasoriginal & past useful life, galv piping issues/leaks 11953LTFM22022Remodel toilet/shower areas $ 548,800 $ 425,600 $ 288.00 sf 1,043 $ 300,400 1.362 $ 409,100 129% $ 527,700 548,808 47 Roosevelt Educ Center 5.10REMODELING ADDITIONSGym L1Womens Locker/Storage Areas Remodel locker rm/storage areasoriginal & past useful life 21953LTFM22022Moderate Remodel (see separate line for new lockers) $ 205,000 $ 159,000 $ 101.00 sf 1,111 $ 112,200 1.362 $ 152,800 129% $ 197,100 204,984 47 Roosevelt Educ Center 5.10REMODELING ADDITIONSGym L1Wemens toilet/shower areas Remodel toilet/shower areasoriginal & past useful life, galv piping issues/leaks 11953LTFM22022Remodel toilet/shower areas $ 578,900 $ 448,800 $ 288.00 sf 1,100 $ 316,800 1.362 $ 431,500 129% $ 556,600 578,864 47 Roosevelt Educ Center 5.10REMODELING ADDITIONS LTFM22022 $$$ ls $1.362 $129% $47 Roosevelt Educ Center 5.10REMODELING ADDITIONS LTFM22022 $ sf $1.362 $129% $47 Roosevelt Educ Center 6.00Interior (Fixed Equipment) LTFM $$$ ls $1.210 $129% $47 Roosevelt Educ Center 6.01Interior Bleachers LTFM22022 $$$ ls $1.210 $129% $47 Roosevelt Educ Center 6.02Interior Fixed Seating LTFM22022 $$$ ls $1.210 $129% $47 Roosevelt Educ Center 6.03LockersCorridorVocational Wing Corridor Lockers6' h, recessedsome rusty bottoms, some banged up (not all in use) 2LTFM22022Replace or remove some (cost is for replacement) $ 75,000 $ 58,200 $ 307.00 ea 150 $ 46,200 1.210 $ 55,900 129% $ 72,100 74,984 47 Roosevelt Educ Center 6.04LockersAthleticGym L1 Mens Locker Rm Old lockers / too many2LTFM22022Provide 60 new athletic lockers (medium number, to cover potential basketball and volleyball team usage) $ 48,000 $ 37,300 $ 493.00 ea 60 $ 29,600 1.210 $ 35,800 129% $ 46,200 48,048 47 Roosevelt Educ Center 6.04LockersAthleticGym L1Womens Locker Rm Old lockers / too many2LTFM22022Provide 60 new athletic lockers (medium number, to cover potential basketball and volleyball team usage) $ 48,000 $ 37,300 $ 493.00 ea 60 $ 29,600 1.210 $ 35,800 129% $ 46,200 48,048 47 Roosevelt Educ Center 6.04LockersAthletic LTFM22022 $$$ ls $1.210 $129% $47 Roosevelt Educ Center 6.05Stage Curtains LTFM22022 $$$ ls $1.210 $129% $47 Roosevelt Educ Center 6.06Curtain / Wall DividersgymGym #1349According to Fac. Dir, bot of roll fold curtain needs repairing 2LTFM22022 $ 3,200 $ 2,600 $ 2,000.00 ls 1 $ 2,000 1.210 $ 2,400 129% $ 3,100 3,224 47 Roosevelt Educ Center 6.06Curtain / Wall Dividersgym LTFM22022 $$$ ls $1.210 $129% $47 Roosevelt Educ Center 6.07BB Backstops / Systems LTFM22022 $$$ ls $1.210 $129% $47 Roosevelt Educ Center 6.08Wall Pads LTFM22022 $$$ ls $1.210 $129% $47 Roosevelt Educ Center 6.09Chalk Board / Marker boardL. 1 Rm 1407Chalkboard only at classrm sized space 2LTFM22022Replace with Mkbd $ 300 $ 300 $ 20.60 lf 10 $ 200 1.210 $ 200 129% $ 300 312 47 Roosevelt Educ Center 6.09Chalk Board / Marker boardRm# 2331 School of Choice & offices Chalkboard only at classrm sized space 2LTFM22022Replace with Mkbd $ 300 $ 300 $ 20.60 lf 8 $ 200 1.210 $ 200 129% $ 300 312 47 Roosevelt Educ Center 6.09Chalk Board / Marker board LTFM22022 $$$ lf $1.210 $129% $47 Roosevelt Educ Center 6.10Tack Boards LTFM22022 $$$ ls $1.210 $129% $47 Roosevelt Educ Center 6.11Display Cases LTFM22022 $$$ ls $1.210 $129% $47 Roosevelt Educ Center 6.12Operable Dividing WallsVocationalWing Auto Shop Welded Wire Mesh Partition rusting 2LTFM22022Replace WWM partition/door assembly $ 6,000 $ 4,700 $ 20.00 sf 186 $ 3,700 1.210 $ 4,500 129% $ 5,800 6,0 32 47 Roosevelt Educ Center 6.13Cabinetry Counter Tops Stools Vocational Wing Original Casework21966LTFM22022Replace with new plastic laminate casework $ 80,600 $ 62,600 $ 338.00 lf 147 $ 49,700 1.210 $ 60,100 129% $ 77,500 80,600 47 Roosevelt Educ Center 6.13Cabinetry Counter Tops Stools ALC Storage Rm# 2419A and 2411A Plam shelves on stds/brkts, 2' d wd edging has come off 21994LTFM22022Replace with 2' d. plam shelves w/ 3mm pvc edging $ 33,400 $ 26,000 $ 92.00 lf 224 $ 20,600 1.210 $ 24,900 129% $ 32,100 33,384 47 Roosevelt Educ Center 6.13Cabinetry Counter Tops Stools Media Center Area #1401 Original Casework21994LTFM22022Replace with new plastic laminate casework $ 67,000 $ 51,900 $ 338.00 lf 122 $ 41,200 1.210 $ 49,900 129% $ 64,400 66,976 47 Roosevelt Educ Center 6.13Cabinetry Counter Tops Stools Rm# 2333 Softball batting cagesmain area Original Casework21984LTFM32022Demo Exg +-12' tall cswk, patch walls $ 1,400 $ 1,100 $ 24.00 lf 34 $ 800 1.210 $ 1,000 129% $ 1,300 1,352 47 Roosevelt Educ Center 6.13Cabinetry Counter Tops Stools Rm# 2331D Theater Storage Original Casework21984LTFM32022Replace with new plastic laminate casework $ 5,500 $ 4,300 $ 338.00 lf 10 $ 3,400 1.210 $ 4,100 129% $ 5,300 5,512 47 Roosevelt Educ Center 6.13Cabinetry Counter Tops Stools Gym L 2 Rm 2348 area Original Casework21953LTFM22022Replace with new plastic laminate casework $ 3,800 $ 3,100 $ 338.00 lf 7 $ 2,400 1.210 $ 2,900 129% $ 3,700 3,848 47 Roosevelt Educ Center 6.13Cabinetry Counter Tops Stools Gym L.1 WingConcessions #1354 Counter has minimal front support for the weight 2LTFM22022Replace counterbase cabs? $ 3,800 $ 3,100 $ 169.00 lf 14 $ 2,400 1.210 $ 2,900 129% $ 3,700 3,848 47 Roosevelt Educ Center 6.13Cabinetry Counter Tops Stools LTFM22022 $$lf $1.210 $129% $© Copyright 2021 Armstrong Torseth Skold Rydeen, Inc. Page 13 of 19
Fergus Falls Facility Assessment 9/14/2021 200 201 202 203 ABCDEFGHIJKLMNOPQRSTUVWXYZAAAC Roosevelt Educ Center 152,600 SF NancyJohn MPat CGary G Mike HDave BRon S 2022 TOTAL PRIORITIES 21,742,032 $ Projected2022 BaseEst.Proj.Base2022 PROJECTConstructionUnitConstCostConst.CostProjectProject COST Cost Basis Cost Unit Quantity Cost Factor Cost Factor Cost Cost Item Code Note Bldg No. Location Cat. Code Category Description Room No.(s) / Area No.(s) Year Action Recommended Life Exp. (yrs) Reb. (Y/N) Item Description 1-5 Cond. Install Orig. / Repl. Fund Yr Fnl Pr. 543 544 545 546 547 548 549 550 551 552 553 554 555 556 557 558 559 560 561 562 563 564 565 566 567 47 Roosevelt Educ Center 6.14Cubbies Hook Strips LTFM22022 $$$ ls $1.210 $129% $47 Roosevelt Educ Center 6.15Restroom Partitions LTFM22022 $$$ ls $1.210 $129% $47 Roosevelt Educ Center 6.16Wall Mount Café Tables LTFM22022 $$$ ls $1.210 $129% $47 Roosevelt Educ Center 6.17Window Treatments LTFM22022 $$$ ls $1.210 $129% $47 Roosevelt Educ Center 6.18Kitchen EquipmentKitchen Equip per meeting with Food Service Director Lance Wells LTFM22022Double convection oven with hood (inc assoc mech equip), double section cooler, heated pass through, serving line, scullery sink (and grease trap), misc storage equipment, replace dishwasher with door type ventless dishwasher. Repair rooftop condensing unit (for exg freezer) $ 435,400 $ 337,700 $ 268,300.00 LS 1 $ 268,300 1.210 $ 324,600 129% $ 418,700 435,448 47 Roosevelt Educ Center 6.18Kitchen Equipment LTFM22022 $$$ LS $1.210 $129% $47 Roosevelt Educ Center 6.19Cold Storage Rooms LTFM22022 $$ls $1.210 $129% $47 Roosevelt Educ Center 6.19Cold
LTFM22022 $$$ sf $1.210 $129% $47 Roosevelt Educ Center 6.20Pool Equipment LTFM22022 $$$ ls $1.210 $129% $47 Roosevelt Educ Center 6.21Score / Video Board LTFM22022 $$$ ls $1.210 $129% $47 Roosevelt Educ Center 6.220 LTFM22022 $$$ ls $1.210 $129% $47 Roosevelt Educ Center 6.220 LTFM22022 $$$ ls $1.210 $129% $47 Roosevelt Educ Center 7.00HVAC LTFM $$$ ls $1.254 $129% $47 Roosevelt Educ Center 7.01Boilers B-1 Cleaver Brooks CB 200300015, 12.5 MMBH input, natural gas/fuel oil, fired steam boiler 31998LTFM22022In good condition, when hot water coils are installed in whole building, then install high efficiency condensing boiler 40 $ 1,014,600 $ 786,500 $ 55,000.00 MBH 13 $ 687,500 1.100 $ 756,300 129% $ 975,600 1,014,624 47 Roosevelt Educ Center 7.01Boilers B-2 Cleaver Brooks CB CBI200-500-015, 20.4 MMBH input, natural gas/fuel oil fired steam boiler 32009LTFM22022In good condition, when hot water coils are installed in whole building, then install high efficiency condensing boiler 40 $ 1,655,800 $ 1,283,600 $ 55,000.00 MBH 20 $ 1,122,000 1.100 $ 1,234,200 129% $ 1,592,100 1,655,784 47 Roosevelt Educ Center 7.04HVAC piping (steam / hot water), condensate, valves, tanks, heat exchangers Steam and condensate piping mains Vocational 500' 6" steam, 500' 2" condensate 31966LTFM22022Provide 1000' 6" piping $ 243,900 $ 189,200 $ 145.00 ft 1,000 $ 145,000 1.254 $ 181,800 129% $ 234,500 243,880 47 Roosevelt Educ Center 7.04HVAC piping (steam / hot water), condensate, valves, tanks, heat exchangers Steam and condensate piping branchesVocational wing 21966LTFM22022Provide 800' 2" piping, done when mech unit is replaced $ 195,200 $ 151,300 $ 145.00 ft 800 $ 116,000 1.254 $ 145,500 129% $ 187,700 195,208 47 Roosevelt Educ Center 7.04HVAC piping (steam / hot water), condensate, valves, tanks, heat exchangers Steam and condesnate piping mains gym 21952LTFM220221200' 6" piping, done when mech unit is replaced $ 292,800 $ 227,000 $ 145.00 sf 1,200 $ 174,000 1.254 $ 218,200 129% $ 281,500 292,760 47 Roosevelt Educ Center 7.04HVAC piping (steam / hot water), condensate, valves, tanks, heat exchangers Steam and condesnate piping branchesgym 21952LTFM22022800' 1-1/2" piping, done when mech unit is replaced $ 195,200 $ 151,300 $ 145.00 sf 800 $ 116,000 1.254 $ 145,500 129% $ 187,700 195,208 47 Roosevelt Educ Center 7.04HVAC piping (steam / hot water), condensate, valves, tanks, heat exchangers Ice ArenaHX & Pumping System3LTFM02022 $$$ is 400 $1.254 $129% $47 Roosevelt Educ Center 7.04HVAC piping (steam / hot water), condensate, valves, tanks, heat exchangers KennedyHX and pump system32009LTFM02022 $$$ is 600 $1.254 $129% $47 Roosevelt Educ Center 7.04HVAC piping (steam / hot water), condensate, valves, tanks, heat exchangers S-16 & S-17 Media Center Heat exchanger & Pumping System in boiler rm 31994LTFM22022Will be removed when hot water boilers are installed $$$ is 400 $1.254 $129% $47 Roosevelt Educ Center 7.05Pumpscondensing, hot water, chilled water, circulation, fuel oil Future Vocational/Maintenance hot water loop 2LTFM22022Provide secondary pumps and heat exchanger for vocational/maintenance loop400 gpm $ 292,800 $ 227,000 $ 145.00 is 1,200 $ 174,000 1.254 $ 218,200 129% $ 281,500 292,760 47 Roosevelt Educ Center 7.05Pumpscondensing, hot water, chilled water, circulation, fuel oil Future Gym Hot water loop2LTFM22022Provide secondary pumps and heat exchanger for gym loop 250 gpm $ 195,200 $ 151,300 $ 145.00 is 800 $ 116,000 1.254 $ 145,500 129% $ 187,700 195,208 47 Roosevelt Educ Center 7.06Energy ManagementSystems (24 volt low voltage) Climate Control DDC Energy Management System 3LTFM22022Update controls for older equipment, replace faulty sensors where required $ 302,800 $ 234,800 $ 30,000.00 SF 6 $ 180,000 1.254 $ 225,700 129% $ 291,200 302,848 © Copyright 2021 Armstrong Torseth Skold Rydeen, Inc. Page 14 of 19
Storage Rooms
Fergus Falls Facility Assessment 9/14/2021 200 201 202 203 ABCDEFGHIJKLMNOPQRSTUVWXYZAAAC Roosevelt Educ Center 152,600 SF NancyJohn MPat CGary G Mike HDave BRon S 2022 TOTAL PRIORITIES 21,742,032 $ Projected2022 BaseEst.Proj.Base2022 PROJECTConstructionUnitConstCostConst.CostProjectProject COST Cost Basis Cost Unit Quantity Cost Factor Cost Factor Cost Cost Item Code Note Bldg No. Location Cat. Code Category Description Room No.(s) / Area No.(s) Year Action Recommended Life Exp. (yrs) Reb. (Y/N) Item Description 1-5 Cond. Install Orig. / Repl. Fund Yr Fnl Pr. 568 569 570 571 572 573 574 575 576 577 578 579 580 581 582 583 584 585 47 Roosevelt Educ Center 7.07Air handler units ERUdampers 2422S-01: Constant volume belt drive supply fan, steam heat, dx cooling, ddc controls 21966LTFM22022 Replace unit with new AHU with hot water heating, verify if DX or go to chilled water? $ 87,900 $ 68,100 $ 18.00 cfm 2,900 $ 52,200 1.254 $ 65,500 129% $ 84,500 87,880 47 Roosevelt Educ Center 7.07Air handler units ERUdampers 2428S-02: Constant volume belt drive supply fan, steam heat, ddc controls 21966LTFM22022 Replace unit with new AHU with hot water heating, verify if DX or go to chilled water? $ 569,600 $ 441,600 $ 18.00 cfm 18,810 $ 338,600 1.254 $ 424,600 129% $ 547,700 569,608 47 Roosevelt Educ Center 7.07Air handler units ERUdampers 2448S-03: Constant volume belt drive supply fan, steam heat, dx cooling, ddc controls 21966LTFM22022 Replace unit with new AHU with hot water heating, verify if DX or go to chilled water? $ 76,900 $ 59,700 $ 18.00 cfm 2,540 $ 45,700 1.254 $ 57,300 129% $ 73,900 76,856 47 Roosevelt Educ Center 7.07Air handler units ERUdampers 2442S-04: Constant volume belt drive supply fan, steam heat, ddc controls 21966LTFM22022 Replace unit with new AHU with hot water heating, verify if DX or go to chilled water? $ 190,000 $ 147,300 $ 18.00 cfm 6,270 $ 112,900 1.254 $ 141,600 129% $ 182,700 190,008 47 Roosevelt Educ Center 7.07Air handler units ERUdampers 2436S-05: Constant volume belt drive supply fan, steam heat, ddc controls 21966LTFM22022 Replace unit with new AHU with hot water heating, verify if DX or go to chilled water? $ 178,000 $ 138,000 $ 18.00 cfm 5,880 $ 105,800 1.254 $ 132,700 129% $ 171,200 178,048 47 Roosevelt Educ Center 7.07Air handler units ERUdampers 2434S-06: Constant volume belt drive supply fan, steam heat, dx cooling, ddc controls 21966LTFM22022 Replace unit with new AHU with hot water heating, verify if DX or go to chilled water? $ 154,400 $ 119,800 $ 18.00 cfm 5,100 $ 91,800 1.254 $ 115,100 129% $ 148,500 154,440 47 Roosevelt Educ Center 7.07Air handler units ERUdampers 2433 2435 2445 2447 S-07: Constant volume belt drive supply fan, steam heat, dx cooling, ddc controls 21966LTFM22022 Replace unit with new AHU with hot water heating, verify if DX or go to chilled water? $ 168,400 $ 130,600 $ 18.00 cfm 5,560 $ 100,100 1.254 $ 125,500 129% $ 161,900 168,376 47 Roosevelt Educ Center 7.07Air handler units ERUdampers 2428S-08: Constant volume belt drive supply fan, steam heat, ddc controls 11981LTFM22022 Replace unit with new AHU with hot water heating, verify if DX or go to chilled water? $ 212,000 $ 164,400 $ 18.00 cfm 7,000 $ 126,000 1.254 $ 158,000 129% $ 203,800 211,952 47 Roosevelt Educ Center 7.07Air handler units ERUdampers 2444S-09: Constant volume belt drive supply fan, steam heat, ddc controls 21978LTFM22022 Replace unit with new AHU with hot water heating, verify if DX or go to chilled water? $ 145,300 $ 112,700 $ 18.00 cfm 4,800 $ 86,400 1.254 $ 108,300 129% $ 139,700 145,288 47 Roosevelt Educ Center 7.07Air handler units ERUdampers 1350 2348S-10: Constant volume belt drive supply fan, steam heat, ddc controls 21952LTFM195222022 Replace unit with new AHU with hot water heating, verify if DX or go to chilled water? $ 145,300 $ 112,700 $ 18.00 cfm 4,800 $ 86,400 1.254 $ 108,300 129% $ 139,700 145,288 47 Roosevelt Educ Center 7.07Air handler units ERUdampers 2350S-11: Constant volume belt drive supply fan, steam heat, ddc controls 21952LTFM195222022 Replace unit with new AHU with hot water heating, verify if DX or go to chilled water? $ 90,800 $ 70,500 $ 18.00 cfm 3,000 $ 54,000 1.254 $ 67,700 129% $ 87,300 90,792 47 Roosevelt Educ Center 7.07Air handler units ERUdampers 1343S-12: Constant volume belt drive supply fan, steam heat, ddc controls 21952LTFM195222022 Replace unit with new AHU with hot water heating, verify if DX or go to chilled water? $ 54,500 $ 42,300 $ 18.00 cfm 1,800 $ 32,400 1.254 $ 40,600 129% $ 52,400 54,496 47 Roosevelt Educ Center 7.07Air handler units ERUdampers 1357S-13: Constant volume belt drive supply fan, steam heat, ddc controls 21952LTFM195222022 Replace unit with new AHU with hot water heating, verify if DX or go to chilled water? $ 90,800 $ 70,500 $ 18.00 cfm 3,000 $ 54,000 1.254 $ 67,700 129% $ 87,300 90,792 47 Roosevelt Educ Center 7.07Air handler units ERUdampers S-14: Constant volume belt drive supply fan, steam heat, ddc controls 21952LTFM195222022 Replace unit with new AHU with hot water heating, verify if DX or go to chilled water? $ 187,700 $ 145,600 $ 18.00 cfm 6,200 $ 111,600 1.254 $ 139,900 129% $ 180,500 187,720 47 Roosevelt Educ Center 7.07Air handler units ERUdampers Gym # 1349S-15: Constant volume belt drive supply fan, steam heat, ddc controls 21952LTFM195222022 Replace unit with new AHU with hot water heating, verify if DX or go to chilled water? $ 454,300 $ 352,200 $ 18.00 cfm 15,000 $ 270,000 1.254 $ 338,600 129% $ 436,800 454,272 47 Roosevelt Educ Center 7.07Air handler units ERUdampers 1401S-16: Constant volume belt drive supply fan, hot water heat, dx cooling, ddc controls 31993LTFM199322022 Replace unit with new AHU with hot water heating, verify if DX or go to chilled water? 20 $ 272,500 $ 211,300 $ 18.00 cfm 9,000 $ 162,000 1.254 $ 203,100 129% $ 262,000 272,480 47 Roosevelt Educ Center 7.07Air handler units ERUdampers 2407-3532S-17: Constant volume belt drive supply fan, hot water heat, dx cooling, ddc controls 31993LTFM199322022 Replace unit with new AHU with hot water heating, verify if DX or go to chilled water? 20 $ 302,800 $ 234,800 $ 18.00 cfm 10,000 $ 180,000 1.254 $ 225,700 129% $ 291,200 302,848 47 Roosevelt Educ Center 7.07Air handler units ERUdampers 2331S-18: Constant volume belt drive supply fan, hot water heat, dx cooling, ddc controls 21984LTFM198422022 Replace unit with new AHU with hot water heating, verify if DX or go to chilled water? $ 215,100 $ 166,700 $ 18.00 cfm 7,100 $ 127,800 1.254 $ 160,300 129% $ 206,800 215,072 © Copyright 2021 Armstrong Torseth Skold Rydeen, Inc. Page 15 of 19
Fergus Falls Facility Assessment 9/14/2021 200 201 202 203 ABCDEFGHIJKLMNOPQRSTUVWXYZAAAC Roosevelt Educ Center 152,600 SF NancyJohn MPat CGary G Mike HDave BRon S 2022 TOTAL PRIORITIES 21,742,032 $ Projected2022 BaseEst.Proj.Base2022 PROJECTConstructionUnitConstCostConst.CostProjectProject COST Cost Basis Cost Unit Quantity Cost Factor Cost Factor Cost Cost Item Code Note Bldg No. Location Cat. Code Category Description Room No.(s) / Area No.(s) Year Action Recommended Life Exp. (yrs) Reb. (Y/N) Item Description 1-5 Cond. Install Orig. / Repl. Fund Yr Fnl Pr. 586 587 588 589 590 591 592 593 594 595 596 597 598 599 600 601 602 603 604 605 606 47 Roosevelt Educ Center 7.07Air handler units ERUdampers 2333S-19: Constant volume belt drive supply fan, hot water heat, dx cooling, ddc controls 21984LTFM198422022 Replace unit with new AHU with hot water heating, verify if DX or go to chilled water? $$$ cfm 7,100 $1.254 $129% $47 Roosevelt Educ Center 7.08Terminal units -DER / dual duct / VAV / Radiant heat Cabinet unit heaters unit ventilators / unit heaters etc. 2422 2422a 2433 2434 2434a 2435 2445 2446 2447 2448 (Vocationalinterior) VAV box w/reheat (s-01 s-s03 s-06 s-07) 2naLTFM22022Provide variable air volume boxes if ahus are replaced $ 75,700 $ 58,700 $ 4,500.00 ea 10 $ 45,000 1.254 $ 56,400 129% $ 72,800 75,712 47 Roosevelt Educ Center 7.08Terminal units -DER / dual duct / VAV / Radiant heat Cabinet unit heaters unit ventilators / unit heaters etc. 2428 2436 2442 2444 (Shop spaces) steam unit heaters unit heaters 21966LTFM22022replace steam unit heaters with hot water unit heaters $ 48,500 $ 37,600 $ 4,800.00 ea 6 $ 28,800 1.254 $ 36,100 129% $ 46,600 48,464 47 Roosevelt Educ Center 7.08Terminal units -DER / dual duct / VAV / Radiant heat Cabinet unit heaters unit ventilators / unit heaters etc. 2446 2434steam cabinet unit heaters21966LTFM22022replace steam cabinet unit heater with hot water cabinet unit heater $ 16,100 $ 12,600 $ 4,800.00 ea 2 $ 9,600 1.254 $ 12,000 129% $ 15,500 16,120 47 Roosevelt Educ Center 7.08Terminal units -DER / dual duct / VAV / Radiant heat Cabinet unit heaters unit ventilators / unit heaters etc. gym areasteam cabinet unit heaters21952LTFM22022replace steam cabinet unit heater with hot water cabinet unit heater $ 40,400 $ 31,300 $ 4,800.00 ea 5 $ 24,000 1.254 $ 30,100 129% $ 38,800 40,352 47 Roosevelt Educ Center 7.08Terminal units -DER / dual duct / VAV / Radiant heat Cabinet unit heaters unit ventilators / unit heaters etc. 1407 1409 1411 1413 1419 1421 1423 (maintenance) vav box w/reheat21952LTFM22022Provide variable air volume boxes if ahus are replaced $ 53,000 $ 41,100 $ 4,500.00 ea 7 $ 31,500 1.254 $ 39,500 129% $ 51,000 53,040 47 Roosevelt Educ Center 7.08Terminal units -DER / dual duct / VAV / Radiant heat Cabinet unit heaters unit ventilators / unit heaters etc. 1409 1423 (maintenance) cabinet unit heater2LTFM22022replace steam cabinet unit heater with hot water cabinet unit heater $ 16,100 $ 12,600 $ 4,800.00 ea 2 $ 9,600 1.254 $ 12,000 129% $ 15,500 16,120 47 Roosevelt Educ Center 7.08Terminal units -DER / dual duct / VAV / Radiant heat Cabinet unit heaters unit ventilators / unit heaters etc. 2407 2409 2410 2411 2413 2416 2418 2419 2421 2420 (S17) vav box w/reheat (with replacment of 1994 units) 3LTFM22022 Provide variable air volume boxes if ahu is provided with a vfd $ 75,700 $ 58,700 $ 4,500.00 ea 10 $ 45,000 1.254 $ 56,400 129% $ 72,800 75,712 47 Roosevelt Educ Center 7.08Terminal units -DER / dual duct / VAV / Radiant heat Cabinet unit heaters unit ventilators / unit heaters etc. 1401vav box w/reheat(withreplacment of 1994 units) 3LTFM22022 Provide variable air volume boxes if ahu is provided with a vfd $ 45,400 $ 35,300 $ 4,500.00 ea 6 $ 27,000 1.254 $ 33,900 129% $ 43,700 45,448 47 Roosevelt Educ Center 7.10Exhaust fansPRV utility sets Wood Shop 2436 paint booth21966LTFM22022 $ 33,700 $ 26,100 $ 5.00 cfm 4,000 $ 20,000 1.254 $ 25,100 129% $ 32,400 33,696 47 Roosevelt Educ Center 7.10Exhaust fansPRV utility sets Auto Shop 2428 paint booth21966LTFM22022 $ 33,700 $ 26,100 $ 5.00 cfm 4,000 $ 20,000 1.254 $ 25,100 129% $ 32,400 33,696 47 Roosevelt Educ Center 7.10Exhaust fansPRV utility sets Metal Shop 2442 welding21966LTFM22022 $ 33,700 $ 26,100 $ 5.00 cfm 4,000 $ 20,000 1.254 $ 25,100 129% $ 32,400 33,696 47 Roosevelt Educ Center 7.10Exhaust fansPRV utility sets Auto Shop 2428 industrial exhaust21966LTFM22022 $ 8,000 $ 6,300 $ 4.00 cfm 1,200 $ 4,800 1.254 $ 6,000 129% $ 7,700 8,008 47 Roosevelt Educ Center 7.17Cooling systemschillers / pumps / ice storage cooling towers gas fired absorbers Mech RoomChiller Plant & Closed Loop Cooling Tower, serves Kennedy, part of Roosevelt and Ice Arena ice sheets 32008LTFM02022Refer to Chiller System report $$ 469,500 $ 1,200.00 ton 300 $ 360,000 1.254 $ 451,400 129% $ 582,30047 Roosevelt Educ Center 7.18Roof top unitsDX / Split (heat / fan / filters) / Spot coolers Roof: S-01 (Interior ofVocational Wing) CU-01, Mcquay MN RCS10F120C, R410A 42010LTFM32022 $ 20,200 $ 15,700 $ 1,200.00 ton 10 $ 12,000 1.254 $ 15,000 129% $ 19,400 20,176 47 Roosevelt Educ Center 7.18Roof top unitsDX / Split (heat / fan / filters) / Spot coolers Roof: S- 03(Interior of Vocational Wing) CU-03, Carrier, R-2211966LTFM22022 $ 20,200 $ 15,700 $ 1,200.00 ton 10 $ 12,000 1.254 $ 15,000 129% $ 19,400 20,176 47 Roosevelt Educ Center 7.18Roof top unitsDX / Split (heat / fan / filters) / Spot coolers Roof: S- 06(Interior of Vocational Wing) CU-06, mcquayRCS15F180C, R410A 42010LTFM32022 $ 30,400 $ 23,500 $ 1,200.00 ton 15 $ 18,000 1.254 $ 22,600 129% $ 29,200 30,368 47 Roosevelt Educ Center 7.18Roof top unitsDX / Split (heat / fan / filters) / Spot coolers Roof: S- 07(Interior of Vocational Wing) CU-07, Aaon MN CA-16-2, R22 22002LTFM22022 $ 32,300 $ 25,100 $ 1,200.00 ton 16 $ 19,200 1.254 $ 24,100 129% $ 31,100 32,344 47 Roosevelt Educ Center 7.18Roof top unitsDX / Split (heat / fan / filters) / Spot coolers Roof: S-16 (Media Center) CU-16, McQuay ALP032C, R22 11993LTFM22022Leaking refrigerant, replace R22 unit $ 64,700 $ 50,100 $ 1,200.00 ton 32 $ 38,400 1.254 $ 48,200 129% $ 62,200 64 ,688 47 Roosevelt Educ Center 7.18Roof top unitsDX / Split (heat / fan / filters) / Spot coolers Roof: S-17 (ALC) CU-17, McQuay ALP032C, R22 21993LTFM22022Replace R22 unit $ 64,700 $ 50,100 $ 1,200.00 ton 32 $ 38,400 1.254 $ 48,200 129% $ 62,200 64,688 47 Roosevelt Educ Center 7.19dust collection2436Torit cyclone style collector21966LTFM22022Original equipment, replace $ 100,900 $ 78,300 $ 20.00 cfm 3,000 $ 60,000 1.254 $ 75,200 129% $ 97,000 100,880 © Copyright 2021 Armstrong Torseth Skold Rydeen, Inc. Page 16 of 19
Fergus Falls Facility Assessment 9/14/2021 200 201 202 203 ABCDEFGHIJKLMNOPQRSTUVWXYZAAAC Roosevelt Educ Center 152,600 SF NancyJohn MPat CGary G Mike HDave BRon S 2022 TOTAL PRIORITIES 21,742,032 $ Projected2022 BaseEst.Proj.Base2022 PROJECTConstructionUnitConstCostConst.CostProjectProject COST Cost Basis Cost Unit Quantity Cost Factor Cost Factor Cost Cost Item Code Note Bldg No. Location Cat. Code Category Description Room No.(s) / Area No.(s) Year Action Recommended Life Exp. (yrs) Reb. (Y/N) Item Description 1-5 Cond. Install Orig. / Repl. Fund Yr Fnl Pr. 607 608 609 610 611 612 613 614 615 616 617 618 619 620 621 622 623 624 625 626 627 628 629 630 631 632 633 634 635 47 Roosevelt Educ Center 7.20Pools ventilation / dehumidification plate exchanger LTFM22022 $$$ ls $1.254 $129% $47 Roosevelt Educ Center 7.21Pipe and Duct Insulation LTFM22022 $$$ ls $1.254 $129% $47 Roosevelt Educ Center 7.22Needle Point Bi-Polar Ionization unit LTFM22022 $$$ ls $1.254 $129% $47 Roosevelt Educ Center 7.22Needle Point Bi-Polar Ionization unit LTFM22022 $$$ ls $1.254 $129% $47 Roosevelt Educ Center 8.00Plumbing LTFM $$$ ls $1.254 $129% $47 Roosevelt Educ Center 8.02Piping (domestic) / labeling conditioning Gym WingGalvanized steel piping mains3" CW, 2-1/2" HW, 1" RHW (900') 21952LTFM22022Replace with new piping $ 204,500 $ 158,500 $ 135.00 lf 900 $ 121,500 1.254 $ 152,400 129% $ 196,600 204,464 47 Roosevelt Educ Center 8.02Piping (domestic) / labeling conditioning Galvanized steel branch piping1-1/2" CW, 1" HW, 3/4" RHW (600') 21952LTFM22022Replace with new piping $ 136,300 $ 105,700 $ 135.00 lf 600 $ 81,000 1.254 $ 101,600 129% $ 131,100 136,344 47 Roosevelt Educ Center 8.02Piping (domestic) / labeling conditioning Maintenance Wing Galvanized steel piping mains2-1/2" CW, 1-1/2" HW, 3/4" RHW (200') 21952LTFM22022Replace with new piping $ 45,400 $ 35,300 $ 135.00 lf 200 $ 27,000 1.254 $ 33,900 129% $ 43,700 45,448 47 Roosevelt Educ Center 8.02Piping (domestic) / labeling conditioning Galvanized steel branch piping1" CW, 1" HW, 3/4" RHW (120') 21952LTFM22022Replace with new piping $ 27,200 $ 21,200 $ 135.00 lf 120 $ 16,200 1.254 $ 20,300 129% $ 26,200 27,248 47 Roosevelt Educ Center 8.02Piping (domestic) / labeling conditioning Vocational Wing Galvanized steel piping mains2-1/2" CW, 1-1/2" HW, 3/4" RHW (800') 21966LTFM22022Replace with new piping $ 181,700 $ 140,900 $ 135.00 lf 800 $ 108,000 1.254 $ 135,400 129% $ 174,700 181,688 47 Roosevelt Educ Center 8.02Piping (domestic) / labeling conditioning Galvanized steel branch piping1" CW, 1" HW, 3/4" RHW (600') 21966LTFM22022Replace with new piping $ 102,200 $ 79,300 $ 135.00 lf 450 $ 60,800 1.254 $ 76,200 129% $ 98,300 102,232 47 Roosevelt Educ Center 8.08Plumbing FixturesVocationalcustod closet 2424 F-5 Service Sink31966LTFM02022Replace with new fixtures $$ 3,300 $ 2,500.00 ea 1 $ 2,500 1.254 $ 3,100 129% $ 4,000 47 Roosevelt Educ Center 8.08Plumbing FixturesVocational Wd shop 2436 F-11, F-5, F-4, Semi circle washbasin, service sink, drinking fountain 11966LTFM22022Replace with new fixtures $ 12,600 $ 9,800 $ 2,500.00 ea 3 $ 7,500 1.254 $ 9,400 129% $ 12,100 12,584 47 Roosevelt Educ Center 8.08Plumbing FixturesVocationalMetal Shop 2442 F-11, F-5, Washbasin and service sink 21966LTFM22022Replace with new fixtures $ 8,400 $ 6,600 $ 2,500.00 sf 2 $ 5,000 1.254 $ 6,300 129% $ 8,100 8,424 47 Roosevelt Educ Center 8.08Plumbing FixturesGym L1 Girls Toilet 1352 F-1(3), F-3(3)390's?LTFM02022Replace with new fixtures $$ 22,000 $ 2,800.00 ea 6 $ 16,800 1.254 $ 21,100 129% $ 27,200 47 Roosevelt Educ Center 8.08Plumbing FixturesALC 2416F-6(6) Stainless steel counter mounted sink 31994LTFM02022Replace with new fixtures $$ 14,100 $ 1,800.00 ea 6 $ 10,800 1.254 $ 13,500 129% $ 17,400 47 Roosevelt Educ Center 8.15Domestic Water HeatersWH01 & 02 Steam to hot water heater and storage tanks. 21952LTFM22022Replace storage type water heaters with new high efficiency gas fired hot water heaters. $ 90,800 $ 70,500 $ 27,000.00 ea 2 $ 54,000 1.254 $ 67,700 129% $ 87,300 90,792 47 Roosevelt Educ Center 8.15Domestic Water Heaters LTFM22022 $$$ sf $1.254 $129% $47 Roosevelt Educ Center 8.15Domestic Water Heaters LTFM22022 $$$ sf $1.254 $129% $47 Roosevelt Educ Center 8.15Domestic Water Heaters LTFM22022 $$$ sf $1.254 $129% $47 Roosevelt Educ Center 8.15Domestic Water Heaters LTFM22022 $$$ sf $1.254 $129% $47 Roosevelt Educ Center 8.16Water Softener LTFM22022 $$$ sf $1.254 $129% $47 Roosevelt Educ Center 8.16 Water Treatment / Softeners / Wells LTFM22022 $$$ ls $1.254 $129% $47 Roosevelt Educ Center 9.00Electrical LTFM $$$ ls $1.254 $129% $47 Roosevelt Educ Center 9.01Electrical Study Update / Main medium voltage tranformer metering LTFM22022 $$$ sf $1.254 $129% $47 Roosevelt Educ Center 9.02Arc-Flash NFPA 70e requirements (OSHA) panels have no arc flash labels 3LTFM02022provide arc flash study and arc flash labels $$ 25,200 $ 0.11 sf 175,750 $ 19,300 1.254 $ 24,200 129% $ 31,200 47 Roosevelt Educ Center 9.03Electric panelsdistribution / labeling Metal shoppanel,"DA",(2)panels in room 1423 (4 total) 100A panels past life expectancy. 2LTFM22022provide new panels $ 26,900 $ 20,900 $ 4,000.00 ea 4 $ 16,000 1.254 $ 20,100 129% $ 25,900 26,936 47 Roosevelt Educ Center 9.03Electric panelsdistribution / labeling (2) in rm 1421, auto shoppanel, wood shop panel,47,10,13,48,50,5 51,48 & 53 (12) 200A panels past life expectancy. 2LTFM22022provide new panels $ 80,800 $ 62,600 $ 4,000.00 ea 12 $ 48,000 1.254 $ 60,200 129% $ 77,700 80,808 47 Roosevelt Educ Center 9.03Electric panelsdistribution / labeling (1) 400 amp panel #48 panel past life expectancy. 2LTFM22022provide new panels $ 8,400 $ 6,600 $ 5,000.00 sf 1 $ 5,000 1.254 $ 6,300 129% $ 8,100 8,424 © Copyright 2021 Armstrong Torseth Skold Rydeen, Inc. Page 17 of 19
Fergus Falls Facility Assessment 9/14/2021 200 201 202 203 ABCDEFGHIJKLMNOPQRSTUVWXYZAAAC Roosevelt Educ Center 152,600 SF NancyJohn MPat CGary G Mike HDave BRon S 2022 TOTAL PRIORITIES 21,742,032 $ Projected2022 BaseEst.Proj.Base2022 PROJECTConstructionUnitConstCostConst.CostProjectProject COST Cost Basis Cost Unit Quantity Cost Factor Cost Factor Cost Cost Item Code Note Bldg No. Location Cat. Code Category Description Room No.(s) / Area No.(s) Year Action Recommended Life Exp. (yrs) Reb. (Y/N) Item Description 1-5 Cond. Install Orig. / Repl. Fund Yr Fnl Pr. 636 637 638 639 640 641 642 643 644 645 646 647 648 649 650 653 654 655 656 657 658 664 665 666 667 668 669 670 47 Roosevelt Educ Center 9.04branch circuitscomputer / media (utilization voltage 120 volt, etc) LTFM22022 $$$ sf $1.254 $129% $47 Roosevelt Educ Center 9.05Fire Alarm fire alarm system
System
2LTFM22022replace with new voice evacuation system $ 414,000 $ 321,000 $ 1.40 sf 175,750 $ 246,100 1.254 $ 308,600 129% $ 398,100 414,024 47 Roosevelt Educ Center 9.05Fire Alarm following rooms should have fire alarm horn/strobe units: (2)north classrooms of room 1401, 1407,1409,(2) rooms in room 1346, gym entry, gym S.E. bathroom, gym N.W. bathroom,(2) gym classrooms at North end of gym,
2LTFM22022install new
this would be
into the new voice evacuation system, if it is installed) $ 8,800 $ 7,000 $ 350.00 sea 15 $ 5,300 1.254 $ 6,600 129% $ 8,500 8,840 47 Roosevelt Educ
9.06Technology
LTFM22022 $$$ sf $1.254 $129% $47 Roosevelt Educ
9.07Low
LTFM22022 $$$ sf $1.254 $129% $47 Roosevelt Educ Center
LTFM22022 $$$ sf $1.254 $129% $47 Roosevelt Educ Center 9.09Sound Systems LTFM22022 $$$ sf $1.254 $129% $47 Roosevelt Educ Center 9.100 LTFM22022 $$$ sf $1.254 $129% $47 Roosevelt Educ Center 9.100 LTFM22022 $$$ ls $1.254 $129% $47 Roosevelt Educ Center 10.00Lighting LTFM $$$ ls $1.254 $129% $47 Roosevelt Educ Center 10.01LightingLamps ballasts controls BuildingPortion North of cityarenas/lobby existing lights are fluorescent2LTFM22022replace with LED light fixtures $ 972,400 $ 753,900 $ 5.59 sf 103,400 $ 578,000 1.254 $ 724,800 129% $ 935,0 00 972,400 47 Roosevelt Educ Center 10.01LightingLamps ballasts controls BuldingPortion South of Arenas/ lockers existing lights are fluorescent2LTFM22022replace with LED light fixtures $ 462,700 $ 358,700 $ 5.59 sf 49,200 $ 275,000 1.254 $ 344,900 129% $ 444, 900 462,696 47 Roosevelt Educ Center 10.01LightingLamps ballasts controls rooms have no motion sensors 3LTFM22022provide motion sensors and associated controls in classrooms, offices, and bathrooms. $ 151,400 $ 117,400 $ 1.00 sf 90,000 $ 90,000 1.254 $ 112,900 129% $ 145,600 151,424 47 Roosevelt Educ Center 10.01LightingLamps ballasts controls Shop areas, Area "G", and Gym existing lights have LED retrofit kits 2LTFM22022these retrofit kits use the old ballasts as driversthe ballasts are probably at their end of life soon. Replace these fixtures with new LED fixtures. $ 474,100 $ 367,600 $ 5.59 sf 50,406 $ 281,800 1.254 $ 353,400 129% $ 455,900 474,136 47 Roosevelt Educ Center 10.01LightingLamps ballasts controls LTFM22022 $$$ sf $1.254 $129% $47 Roosevelt Educ Center 10.02Emergency Lighting / Exit signs Corridors insufficient emergency lighting in corridors. 2LTFM22022 $ 9,200 $ 7,100 $ 0.40 sf 13,570 $ 5,400 1.254 $ 6,800 129% $ 8,800 9,152 47 Roosevelt Educ Center 10.02Emergency Lighting / Exit signs Exterior Exit doors exterior emergency lighting (at exit doors) missing. Required by code 2LTFM22022provide exterior emergency lighting as required. $ 96,700 $ 75,000 $ 2,500.00 ea 23 $ 57,500 1.254 $ 72,100 129% $ 93,000 96,720 47 Roosevelt Educ Center 10.03Special purpose lighting theaters LTFM22022 $$$ sf $1.254 $129% $47 Roosevelt Educ Center 10.04Security Lighting (Exterior) LTFM22022 $$$ sf $1.254 $129% $47 Roosevelt Educ Center 10.05Parking lot lighting LTFM22022 $$$ sf $1.254 $129% $47 Roosevelt Educ Center 10.06Exterior athletic lightinglamps / standards / bases LTFM22022 $$$ sf $1.254 $129% $47 Roosevelt Educ Center 11.00Technology / Security LTFM $$$ ls $1.254 $129% $47 Roosevelt Educ Center 11.01Stuctured cablingBuildingolder does not meet standards 2LTFM22022 $ 143,000 $ 110,900 $ 85,000.00 ls 1 $ 85,000 1.254 $ 106,600 129% $ 137,500 143,000 47 Roosevelt Educ Center 11.02Classroom technology systems Buildingmeets current needs5LTFM22022 $$qty $1.254 $129% $47 Roosevelt Educ Center 11.03Local Sound systemsgymneeds updating and addition of speakers to cover floor 2LTFM22022 $ 75,700 $ 58,700 $ 45,000.00 ls 1 $ 45,000 1.254 $ 56,400 129% $ 72,800 75,712 47 Roosevelt Educ Center 11.04Master Clock Systems LTFM22022 $$$ qty $1.254 $129% $47 Roosevelt Educ Center 11.05Building Paging sytemsBuildinglack of speakers in many areas. Amps very old. Update to Valcom 1LTFM22022 $ 38,700 $ 30,000 $ 23,000.00 qty 1 $ 23,000 1.254 $ 28,800 129% $ 37,200 38,688 47 Roosevelt Educ Center 11.06Access Control meets current needsLTFM22022 $$$ qty $1.254 $129% $© Copyright 2021 Armstrong Torseth Skold Rydeen, Inc. Page 18 of 19
is addressible.
is having problems.
(3) rooms in 2348, & 2342.
horns
incorporated
Center
Accomodation
Center
voltage systems (less than 24 volts)
9.08Emergency generators battery backup systems inverters
Fergus Falls Facility Assessment 9/14/2021 200 201 202 203 ABCDEFGHIJKLMNOPQRSTUVWXYZAAAC Roosevelt Educ Center 152,600 SF NancyJohn MPat CGary G Mike HDave BRon S 2022 TOTAL PRIORITIES 21,742,032 $ Projected2022 BaseEst.Proj.Base2022 PROJECTConstructionUnitConstCostConst.CostProjectProject COST Cost Basis Cost Unit Quantity Cost Factor Cost Factor Cost Cost Item Code Note Bldg No. Location Cat. Code Category Description Room No.(s) / Area No.(s) Year Action Recommended Life Exp. (yrs) Reb. (Y/N) Item Description 1-5 Cond. Install Orig. / Repl. Fund Yr Fnl Pr. 671 672 673 674 675 676 677 678 679 680 681 682 47 Roosevelt Educ Center 11.07Burgler Alarm System LTFM22022 $$$ qty $1.254 $129% $47 Roosevelt Educ Center 11.08Video Surveillance Systemmeets current needsLTFM22022 $$$ qty $1.254 $129% $47 Roosevelt Educ Center 11.09TV Distribution System LTFM22022 $$$ ls $1.254 $129% $47 Roosevelt Educ Center 11.100 LTFM22022 $$$ ls $1.254 $129% $47 Roosevelt Educ Center 12.00Furnishings LTFM $$$ ls $1.115 $129% $47 Roosevelt Educ Center 12.01Accessories LTFM22022 $$$ ls $1.115 $129% $47 Roosevelt Educ Center 13.00Technology Upgrading LTFM $$$ ls $1.254 $129% $47 Roosevelt Educ Center 13.01District wide technology masterplan LTFM22022 $$$ ls $1.254 $129% $47 Roosevelt Educ Center 13.020 LTFM22022 $$$ ls $1.254 $129% $47 Roosevelt Educ Center 14.00Miscellaneous B LTFM $$$ ls $1.254 $129% $47 Roosevelt Educ Center 14.010 LTFM22022 $$$ ls $1.254 $129% $47 Roosevelt Educ Center 14.010 LTFM22022 $$$ ls $1.254 $129% $© Copyright 2021 Armstrong Torseth Skold Rydeen, Inc. Page 19 of 19

Roosevelt Education Center

Educational Adequacy Analysis

Refer to Educational Adequacy graphics on the next two pages for detailed analysis.

Summary:

• Vocational Area:

o Classroom spaces are of good size and seem to function well.

o The secure entry is not accessible, and the exterior path from Kennedy has accessibility issues (and a safety issue as well due to the steep slope of a portion of the sidewalk in the winter).

• Alternative Learning Center:

o Exterior entry is missing a vestibule and is not a secure entry.

o The administration area has casework that is not suited for its function.

o Classrooms are oversized for their class size and have casework that is not suited to their functions.

o The area lacks appropriate space to accommodate current learning activities that are typically found in classrooms today. For example, the use of differentiated instruction and small group/collaborative learning do not have appropriately designed space.

o The area does not have sufficient space for needs such as pull-out student support services, professional development, staff planning, or conferencing.

Facilities Study Fergus Falls Public Schools Page | 79

Roosevelt Education Center

Steep slope of curved sidewalk along student path of travel to/from Kennedy –slippery in winter/early spring

SITE ANALYSIS

Need accessible curb cut/sidewalk at ALC entry

East parking lot conflicts between public, student, staff, and delivery circulation +-30 sp

1.09 ACRES STAFF PARKING

East parking lot undersized for multiple use (limited by site configuration) SPEC ED CO-OP / COMMUNITY ED ENTRY (ACCESSIBLE) STAFF/PUBLIC/ ACCESSIBLE PARKING/ SPEC ED ACCESSIBLE DROP-OFF

Gym roof –spring ice sliding off roof needs to be addressed

Consider eliminating steep sidewalk to reduce slip hazard

16.85 ACRES

City of Fergus Falls Zoning Code: Off-Street Parking Requirement for Schools: 2 parking spaces per classroom x 18 exgCR = 36 spaces min. (school occupancy only). (Should also have spaces for other pull-out staff and admin.) Actual = +-96 spaces north end, +-297 spaces south of arena

Educational Adequacy

 Site Size (1.09+16.85=17.94 acres)

Location

 Easily Accessible, convenient location

 Removed from noise/traffic

 Space for Expansion (limited with site config)

Allow for safe:

 Drop Off (conflicts at back parking lot)

 Pedestrian (steep path at street from Kennedy to Vocational entry)

 Bike Traffic (safer at front of Arena than ALC)

 Traffic Flow (conflicts with car, bus and delivery traffic and pedestrians at east back parking lot)

Site Amenities:

 Adequate Parking

 Bike Racks (at Arena main entry and ALC)

 Athletic Fields (ball field)

 Outdoor classrooms (none for ALC)

 Environmental learning (none for ALC)

Grade differential between gutter and street/drive heights causes busses to bottom out here

Site Requirement: Not Applicable due to multi-use functions of buildin g

MDE

Key  Good 

Modifications Suggested  Attention Item

Delivery travel path

Student travel path to/from Kennedy

Staff / Public Parking Drop Off / Pick Up

Heavy Traffic School Bus Entry

SPEC-ED CO-OP BUSSES OR ALC FIELD TRIP BUSSES MAIN ARENA ENTRY PRACTICE ARENA ENTRY ALC ENTRY ARENA / GYM USE PARKING +-297 Sp
VOCATIONAL STUDENT & SPECED CO-OP STAFF ENTRY STAFF PARKING +-16 Sp STAFF/ STUDENT/ PUBLIC PARKING +-45 Sp LOADING DOCK
SCHOOL OF CHOICE

Roosevelt Education Center

School of Choice

Most of room is not accessible due to tiers; musty odor in unconditioned space

EDUCATIONAL ADEQUACY

North End

Main student entry (and path from Kennedy) not Acce ssible –students must be bussed to east side

(need secure vest at ALC)

No vestibule or secure entry for ALC Admin; existing casework not appropriate for space usage

Safety & Security

CAFETERIA

CR

Shop Wood Auto Shop Spec Ed Co-op Shop Metal Sm. Engines CR CR CR CR MS EBD ES EBD

St.L Store

CRCR Mech ALC ADMIN Recv Staff

MAINT BOILER MECH

VOCATIONAL AREA ALC AREA CR CR CR

Second Floor

North

COMMUNITY ED AREA

Musty odor in unconditioned space

Comm Ed CR Comm Ed CR Off Off CE

MAINTENANCE ART/ ALC

MUSIC

ALC Rooms are oversized for typical class size and usage and have casework that does not fit the room usage

Not enough womens toilets in Vocational Wing (2 mens, 1 womens)

(ALC usage?) (Cafeteria?)

(using one full CR at ALC)

(need staff planning at ALC)

ALC Rooms need staff planning, conf space, and small group spaces

Key  Good  Modifications Suggested  Attention Item

(No natural light in MS EBD & 1 ALC CR)

Below SF Standards

First Floor

(Poor HVAC at L1 1966 CR’s (CE))

 Secure Entry modifications  Building Zoning  Restroom Safety Core space sizes (SF)  Classroom  Cafeteria / Kitchen  Library  Gyms/PE  Science/Art/Music  Performance  Special Ed  Staff Educational Environment  Variety of Spaces  Individual  One on One  Teaming  Classroomspresentation  Large group, grade level / all school  Variety of Furniture  Agile and Flexible  Architecture –Spatial Connections  Furniture (Flexible/Ergonomic)  Daylighting/Connections to Nature  Lighting  Acoustics  Indoor Air quality  Technology Integration  School & Community Pride/Ethos Messaging

(No Vocational Identity connection to Kennedy) (Gym locker rms poor condition for ALC)

Appendix

• Minnesota Department of Education ‘Guide for Planning School Construction Projects in Minnesota’, square footage guidelines excerpts.

• Memos

o Facilities ‘heads up’ meeting

o REC Educational Adequacy Meeting

Study Fergus Falls Public Schools Page | 82
Facilities

Minnesota Department of Education ‘Guide for Planning School Construction Projects in Minnesota’, square footage guidelines excerpts.

Facilities Study Fergus Falls Public Schools Page | 83

Minnesota Department of Education ‘Guide for Planning School Construction Projects in Minnesota’, square footage guidelines excerpt.

Facilities Study Fergus Falls Public Schools Page | 84

Project Number: 21029

MEMORANDUM NO. 1 Page 1

DATE June 12, 2021

PROJECT Fergus Falls Facility Study

SUBJECT Facilities ‘heads up’ meeting

PRESENT Fergus Falls Public Schools:

Jeff Drake, Superintendent

Doug Anderson, Facilities Supervisor

Blake Stoltman, Finance Director

Dan Hanson, mechanical custodian ATSR:

Dan Moll, Architect

Nancy LaBissoniere, Architect

Pat Collins, Mechanical Engineer

The purpose of this meeting is so that the District can bring particular issues of concern for the facilities assessment to ATSR’s attention – a ‘heads up’.

1. Roosevelt Education Center:

a. There is galvanized iron pipe in both the hydronic steam system and in the domestic water system, which is deteriorating. There are areas in the locker rooms where they have had to cut off sections and cap in tunnels, instead of having to cut up the floor slab to repair.

b. Most of the air handling units are original; they are constantly repairing belts, motors, etc.

c. Many of the louvers are not good – are original.

d. Filters – many are 1” filters.

e. They are going to have a water quality test done on the heating and cooling system. They have not been treating with any additives, biocides, corrosion resistance etc.

f. ATSR is aware of the cooling system concerns with the REC / Kennedy / Ice Arena complex, and has a dedicated mechanical team investigating. The staff have started to make some of the small changes that have been suggested; investigation is proceeding.

g. On gymnasium roof (recently reroofed with adhered membrane), there is a problem with spring ice and snow melt releasing large pieces of ice sliding down the curved roof to the entries. They have had to cordon off areas to protect occupants. Some of the entry canopies have been damaged and had to be repaired. Need a solution to this life safety issue.

h. Grading: there an area at the northwest corner of gym, near retaining wall and arena, where the grading runs toward the building into the corner, instead of away.

i. Portions of the original building are being tuckpointed this summer – the District will send ATSR this information.

j. Community Education area exterior wall (former media center) holes in EIFS – these are being repaired with the tuckpointing.

Project Number: 21029

k. Nancy indicated that she saw some rusted lintels at openings at the north side of the vocational wing. This might be exhibiting a condition called “rust jacking”, where excessive moisture has rusted the lintel, and the rust builds up and bends the lintel. If the District is going to tuckpoint those areas, they may want to look at replacing these lintels at the same time.

l. North side of vocational area – water occasionally comes in at the north side, east end, along the sloped grade.

m. North side asphalt is shrinking – may be a drainage issue.

n. There is a wood roof beam at the 1st floor maintenance area that has some cracks in it. The staff have installed a temporary column. ATSR suggested that this should be addressed sooner rather than later.

o. Tremco did an analysis on the roofing about a year ago – the District will send this to ATSR

p. Students walk down the hill from Kennedy to the vocational area, and the crosswalk and sidewalk are sloped and get icy. They would like suggestions to increase safety.

2. Adams Elementary:

a. There is an issue with gymnasium roof scuppers dropping water down along with building which works its way to the areaway and ductwork that penetrates the exterior wall, water drains along that ductwork and into the building; the District is creating a channel at grade to direct water away from the building to help correct this issue.

b. There is still some 9 x 9 vinyl asbestos tile in the building.

c. The district will send ATSR the hazardous material/asbestos reports.

3. McKinley Elementary:

a. There are leaks in the hydronic piping. Pat noted this could be from the groove lock fittings, which we have found to be problematic. These could be replaced with vitolic fittings.

b. The chiller piping was installed incorrectly and runs backward; there are pressure issues and there are hoses running around to different areas to help correct this. ATSR will investigate.

c. Some roofs are ballasted EPDM and need reroofing; gym is good.

4. Lincoln School:

a. Areas need reroofing.

These notes represent the author=s understanding of items discussed and decisions made at this meeting. Any comments or corrections should be forwarded to ATS&R within seven (7) days.

nal cc:

Jeff Drake, FFPS

Doug Anderson, FFPS

Dan Moll, ATSR

Pat Collins, ATSR

Page 2
MEMORANDUM NO. 1

Project Number: 21029

MEMORANDUM NO. 2 Page 1

DATE June 12, 2021

PROJECT Fergus Falls Facility Study

SUBJECT Educational Adequacy meeting – Roosevelt Education Center

PRESENT Fergus Falls Public Schools:

Jeff Drake, Superintendent

Kristin Tuel – Area Learning Center Director

Shannon Erickson - Special Ed Coop Director

Mark Anderson, Kennedy HS Principal

ATSR:

Dan Moll, Architect

Nancy LaBissoniere, Architect

The purpose of this meeting is to understand the functions of the REC building and its site, and to understand what is working, what does not, and what the group would like to be different.

1. The group reviewed the site to understand how it is functioning and what is happening at the various areas.

a. Parking lot/drive at northeast side of the building: This is a busy area. Functions include:

i. Students walking down from Kennedy to the vocational area entry. The cross walk at the street and the curved sidewalk near there can be slippery in winter and spring ice melt.

ii. Cars parked (+-5-6) parked for repair as part of the vocational auto program

iii. Deliveries to loading dock

iv. Special Ed Cooperative staff parking (+-15cars)

v. Special Ed Cooperative offices entry.

vi. Small busses (+-2-3?) pickup/drop off for Special Ed Cooperative classrooms – students who don’t need wheelchair accessibility.

vii. Alternative Learning Center entry. No secure entry here, would be desired. Also no accessible parking/access on this side.

viii. Alternative Learning Center student parking (10-15 cars)

ix. Occasional bus pickup/drop off for ALC field trips (full size busses),

x. Parking/drop off for Ice Arena practice arena.

b. West side of building, northern portion: Small parking lot for Community Education parking. Only accessible entrance for north end of the building, remote videophone connection to Special Ed Coop for admittance. Parking is also available in lot across the street.

Project Number: 21029

c. West side of building, REC/arena entrance: drop off area allows parking on inside side of curve, some accessible. At entrance to drive, busses bottom out and get stuck (all times of year).

2. The group went through the building identifying the function of every room. Kristin provided an overall map with room numbers and functions as well

3. Vocational area on north end of building – does not have good identity connection to Kennedy. Not ideal to have kids going outside from Kennedy to here to access this program. Entry door is open only during passing time; if kids are late, they are held in that corridor and check in at the Special Ed Coop office to access the rest of the area.

4. CNA room is Certified Nurses Assistant.

5. Metal shop has maxed out its electrical capacity.

6. North end of vocational area which used to be two classrooms has been remodeled into Special Ed Cooperative offices. This space was available and they have made it work. If there was another location available for the Coop offices than that space might be able to take on other functions such as graphic arts or maker space.

7. EL and ME EBD rooms are here, not a great location, but space was available here; would be better if they could be at their respective schools. No natural light at MS EBD. Temperature control is difficult in MS EBD.

8. Alternative Learning Center:

a. 80 students

b. 16:1 student/teacher ratio, staff do move.

c. Classrooms are oversized (could be 2/3 size)

d. Short of conference space for 5-6 people – 1-2 spaces – community partners come in.

e. Short of staff planning

f. Would like a calming room for 5-6 students.

g. Not enough toilet rooms (only have one male, one female now). There is a project starting soon to remodel an area for larger gang toilet rooms (in state plan review).

9. Kitchen:

a. There are two big bread ovens they would like to get rid of.

b. This is a satellite kitchen (from Kennedy).

c. The two serving lines need to be replaced – refrigerated wells no longer work, gas leaks at heated wells, can’t keep pilot light on.

10. Cafeteria: Is oversized for day-time functions in the building, but works well for community functions. Best large space in community for large group functions – better site lines than Kennedy’s cafeteria. During the day, serves ALC.

11. Community Education is in former media center. Space is ample, could remove semi-circular computer desks, need finishes upgrades.

12. School of Choice: non-public program for approx. 35 home-schooled students, for 3 days a week, elem K-6. Located in old choir room east of the ice arena locker rooms.

13. Gymnasium – community still has strong connection, would like to see more events held here, want to bring back some basketball and wrestling. Currently community gymnastics program uses for meets only.

14. Gymnasium Locker rooms need upgrading. Only 6 showers working each side. ALC does not change for gym or shower, though they may want to and might allow if facilities were available.

MEMORANDUM NO. 2 Page 2

Project Number: 21029

MEMORANDUM NO. 2 Page 3

Would need to discuss how many lockers would be needed – coaches might not even want lockers for game usage (per Mark, his experience is that coaches keep kid’s valuables (wallets, phones) with them in a bag and bring into the gym during games).

15. Bathrooms in gym area would need to be remodeled for functioning community bathrooms.

These notes represent the author=s understanding of items discussed and decisions made at this meeting. Any comments or corrections should be forwarded to ATS&R within seven (7) days.

nal

cc:

Jeff Drake, FFPS

Dan Moll, ATSR

Pat Collins, ATSR

Turn static files into dynamic content formats.

Create a flipbook
Issuu converts static files into: digital portfolios, online yearbooks, online catalogs, digital photo albums and more. Sign up and create your flipbook.