JD Store in Playa de Aro, Girona, Spain
Iberian Sports Retail Group/2024
Role: Retail Designer

Stages Involved: Conversion (from Sprinter to JD) Architectural drawings from proposal to ‘ as built’ plans. Direct communication with internal teams in Head Office in Manchester before and during the construction process, as well as with the General Contractor during the construction process. Specific site visits.

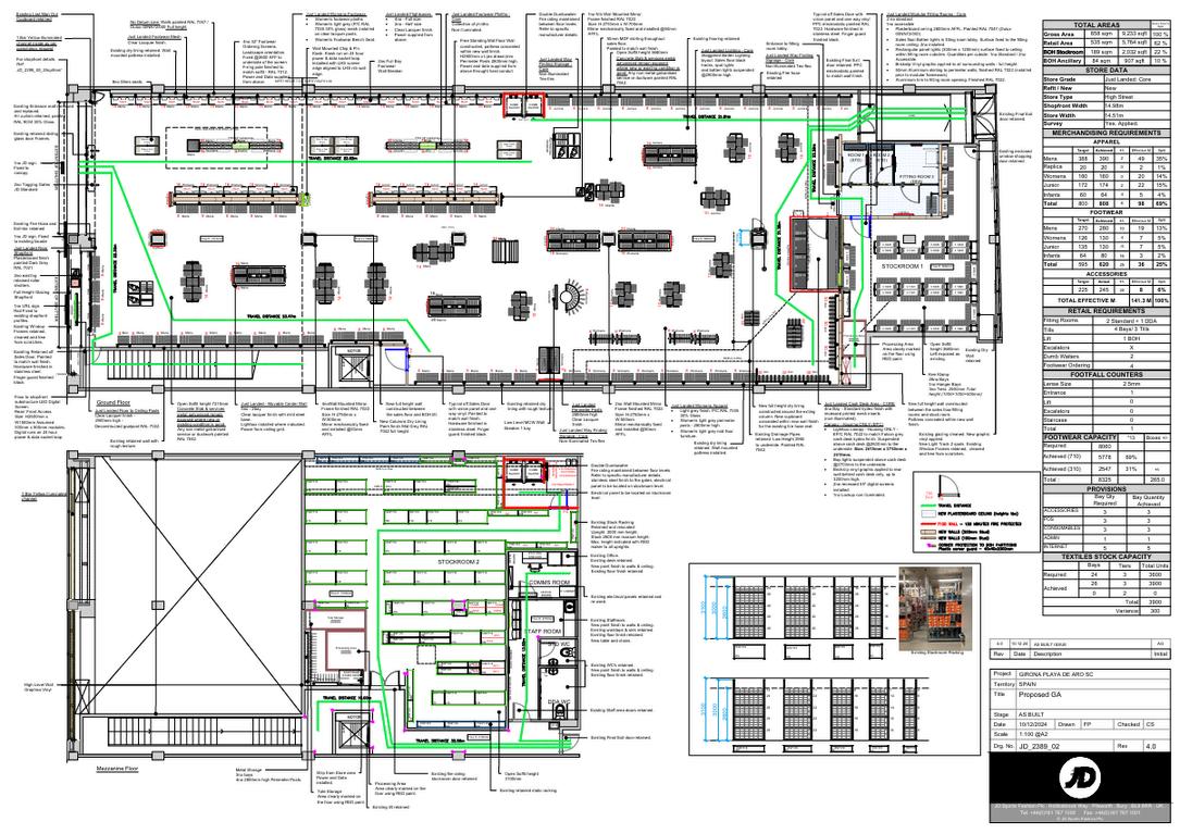
General Arrangement Plan
Iberian Sports Retail Group/2024
Role: Retail Designer
Stages Involved: Conversion (from Sprinter to JD) Architectural drawings from proposal to as built plans. Direct communication with internal teams in Head Office in Manchester before and during the construction process, as well as with the General Contractor during the construction process. Specific site visits.


1 WARSPITE ROAD
Back Yard Extension
Bar, Restaurant and HMO
London Stay Apartments/2020
Role: Draftsman
Stages involved: design regulations review, making of documents and planning application submission

Existing Façades
Proposed Façades

Piece of the Document Submitted to the City Hall


Loft Extension
Bar,Restaurant and HMO
London Stay Apartments/2020

Role: Draftsman
Stages involved: design regulations review, making of documents and planning application submission

PRIMARY AND SECUNDARY SCHOOL
NIAMEY, NIGER
Educational
Article 25, London UK/2018-2019

Role: Architectural Assistant Stages involved: 3D Modeling in Sketchup and Design Development


FAMILY LAINEZ HOUSE, SAN SALVADOR, EL SALVADOR
Residential
Álvarez Asturias Ingenieros
Arquitectos/2014
Role: Designer
Stages Involved:
Feasibility Study
Brief and Concept Design


BUS STATION
AHUACHAPAN, EL SALVADOR Urban Facility
Álvarez Asturias Ingenieros
Arquitectos/2013
Role: Designer
Stages Involved:
Strategic Definition
Brief and Concept Design
Design Development
3D Modeling in Sketchup