BETON 109

Page 1

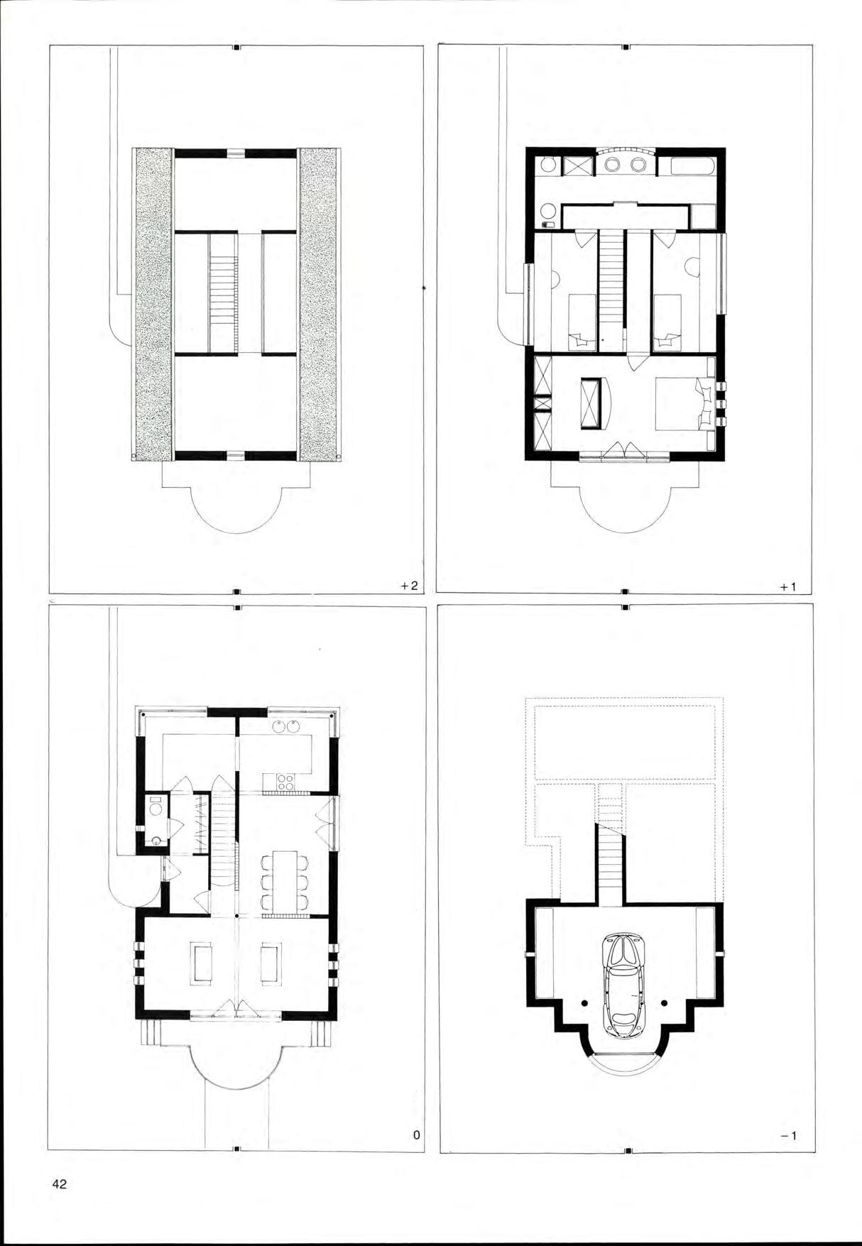
/ Woning - Kortrijk Arch .: Devolder - Kortrijk 76
Habitation
" partelc: ergon pour renseignemenls el do c umenlalion : Service ventes M a rn ix dreef 9 -2500 liER Téi. (03) 49 0 04 00 T x 31 975 parerg b Fa x (03) 489 23 27

Turn static files into dynamic content formats.

Create a flipbook
Issuu converts static files into: digital portfolios, online yearbooks, online catalogs, digital photo albums and more. Sign up and create your flipbook.
BETON 109 by FEBE - Issuu