Bezençon Stanisław Portfolio

Page 1

bezencon.stanislaw@gmail.com +41795348554

sbarchitec_t

ArchitecteAAMIETH

PORTFOLI O
StanislawBezençon
STANISLAW BEZENÇON
22.12.1995 Lausanne,Switzerland
bezencon.stanislaw@gmail.com (+41)0795348554

EXPERIENCE

2022- ETHZÜRICH

•MasterofScienceinArchitecture

2023 GreenPlaces,Lausanne

•ITconsulting(EDMS/BIM),JuniorArchitecte

2021 RDRarchitectes,Lausanne

•Stage

2018-22

2017

ACCADEMIADIARCHITETTURAMENDRISIO

•BachelorofScienceinArchitecture

•BSc EPFL

2017 deRhamArchitectes,Lausanne

•Découverted’unbureaud’architecture

2016 ArméeSuisse

•Grenadierpolicemilitaire/SousofcierInfanterie

2012-16

GymnasedeChamblandes,Pully

•Maturitéopt.Biologie/chimie

2014 OrllatisaConstruction

•Summerjobconstruction/démolitions

20xx-12 CollègeChampittet,Pully

•Education

SKILLS

SOFTWARE

Photoshop Illustrator Indesign Rhino Excel

LANGUES

FRANÇAIS

ITALIEN

POLONAIS

ANGLAIS

AutoCad

ArchiCad

3dsMax

V-Ray

Word

INTÉRÊTS

MATÉRIAUX MÉCANIQUE

RÉNOVATION

PHOTOGRAPHIE

SCIENCE HISTORIE

PATRIMOINE MONTAGNE

01 02 03 04 05 06

3-4
5-6 REZ,Existent+nouveau
ÉlévationSUD
7-8 DETAIL1:20
ÉlévationEST
9-10 DETAIL1:20
ÉlévationEST
11-12 Mockup1:1
Mockup

Participants: 3

Typesdetravail :

Stationderecharge AudessusduShinagawa-bridge

Tokyo,JAPON

Leconfortdesconsommateursdansl'achatdebiensnécessitedescentres logistiquesétendusetdesprocessusdelivraisonchronophages.ÀTokyo,les véhiculescommerciauxreprésententprèsdelamoitiédeskilomètrestotaux parcourusdanslaville.Lamain-d'œuvredescamionneursduJapon,quidépassait lemillionen2000,devraitêtreréduitedemoitiéd'ici2030.Notreattentions'est portéesurunezonesouspressiondelaville,unespacehabitépardestravailleurs, deschaufeursetdessans-abris.Cettepériphérieurbaine,animéepardesparvis deconteneurs,desautoroutesetdesviaducs,résonnedessonsdesradiosetdes véhicules.Lespersonnesici,marginaliséesdelavieurbaine,cherchentrefugedans descamionsetdesabrisdefortune,occupantdesrecoinsurbainsnégligés.

Entourédevastesentrepôtsetderéseauxroutierscomplexes,laprésencehumaine semblenégligeableaumilieud'unearchitectureimposante.Pourtant,cesindividus orchestrentdesactivitésinvisibles.Chaqueconteneursignifeunconducteur,une partiecachéedupoulsdelaville.Notreprojetviseàtransformercetespace inhospitalierenunrefugepourcesindividussouventignorés.Encomblantlefossé entreleséchellesautomobileethumaine,leprojetmédieunéquilibre.

Situéau-dessusd'unviaducàl'intersectiondeszonesrésidentiellesetindustrielles, ledesignétendlarueverslehaut,fusionnantl'accèsvéhiculaireetpiétonnier.Il comprendunestationderechargepourcamionsetdesespacesderevitalisation humaine.Laconceptionfnalecentraliselesbesoinsdespersonnes,ofrantun confortcompactàtraversdescapsules,desonsenspublics,unbar,unecantineet unpachinko.Cetteinitiativeremetenquestionlanorme,assurantqueleshumains nesontpasperdusdansl'immensitémaissontplutôtmisenavantetharmonisés avecl'échelledescamions,symbolisantlarelationsymbiotiqueentrechaquecamion etsonconducteur.

StudioBRUTHER ETHZürichSA2022
Recherche Video Workingmodels1:200
Renders Fragment1:1 15
Dessins1:5000-50
19-20

Participants: 1

Typesdetravail :

Maquettes1:200-50

Dessin1:5000-20

Render

Entrerocheeteau, AncienfouràchauxàCaslano

Tessin-SUISSE

Ceprojetviseàtransformerl'ancienfouràchauxdeCasalanoenunespace dynamiquedédiéauxsportsnautiquesetauxloisirs,toutenpréservantsonhéritage historique.Enajoutantdenouveauxvolumesadaptésàlatopographieetau paysage,l'initiativeintègreuncampd'avironetunclubhouse,reliantlepassé industrieldusiteàdesfonctionnalitésmodernes.

Desaménagementsspécifques,commedespontonslelongdulacetunlidopublic, encouragentl'interactionavecl'eauetinvitentàladécouvertedusite.Les structures,partiellemententerréespoursefondredanslepaysage,maximisent l'efcacitéthermiqueetofrentunediscrétionvisuelle,toutenintégrantdes pergolaspouruneintégrationnaturelle.

Lefouràchauxexistantaccueillerauneréception,unecafétéria,etunesalle polyvalente,avecuneventilationamélioréeparlacheminéeconservée.Lamaison dugardiensetransformeenbureauadministratifetenespacespourles responsablesdecamp,alliantfonctionnalitéetrespectdupassé.

Ceprojetconciliepatrimoineetinnovation,ofrantunlieuderencontreentresport, détenteethistoire,enrichissantainsilacommunautélocaleetlesvisiteurs..

Programmepublic:

•Lido

•Centredesportsnautiquesdepleinair

•Rocherpourl'escaladesportive

•Cafétéria

•Restaurantt

•Cuisineavecunitédestockageattenante

•Sallepolyvalente

•Bureauadministratif

•Toilettesetvestiaires

•Localtechniqueetdestockage

ProgrammeCampd'étépourenfants::

•Dortoirgarçons12lits

•Dortoirféminin12lits

•Chambrepourmoniteurs

•Chambrepourmonitrices

•Sallesdebainsetvestiaires

•Salledestockageetdenettoyage

•Réfectoire/cantine

•Sallepolyvalente

•Vestiairesdupersonnel

AtelierValero AAMSP2022
23

Fouràchauxexistent

Stratégieterritoriale

25-26

Situation

27-28 Toits
Rez

Elévationduclubd'aviron

29-30
Clubhouse/Restaurant
Section1:50

Section1:50

Plan1:50

Dortoirs

Participants: 1

Typesdetravail : Dessin1:5000-20 Collage

HOUSINGBYTHESEA

Leprojetsesituesurl’anciensitedeconstructionduprojetMOSE,ledispositif ingénieuxconçupoursauvegarderVenisedesmarées.SituéàPuntaSabbioni,au norddelalagunedeVenise,unezoneréputéepoursespratiquesagricoles,ce projetaspireàétablirunbâtimentcommunautairepourenviron100résidents,avec unevisiond'autosufsance.

Laconceptiondubâtiments'inscritenparfaitesymbioseavecl'environnement aquatiqueemblématiquedelaculturevénitienne.Érigésurtroisniveaux,l'édifceest entièrementconstruitenbois,refétantunengagementenversladurabilitéet l'intégrationécologique.Touslesespacespublics,penséscommelieuxderencontre etd'échange,sontaccessiblesaurez-de-chaussée,favorisantainsilaconvivialité etl'accessibilité.

Lebâtimentproposequatretypologiesd'espaces,conçuespourêtremodulables tantsurleplanhorizontalquevertical,ofrantunefexibilitéadaptéeauxbesoins changeantsdeseshabitants.Lescouloirsd'accès,ouvertsetbaignésdelumière, sontjudicieusementdisposéspourmaximiserl'intimitédesappartements,touten assurantuneconnexionfuideavecl'extérieur.

Laconceptiontireavantagedelatraditionagricolerichedelarégionenintégrant unmarchécouvertaurez-de-chaussée.Cetespace,conçucommeuncarrefour vivantentrelesrésidentsetlacommunautéélargie,s'ouvresurdesjardinspublics ets'imbriquenaturellementavecl'environnementaquatiqueenvironnant.Cemarché n'estpasseulementunlieud'échangedeproduitslocauxmaisaussiunespacede socialisation,renforçantlelienentreleshabitantsetletissuagricolelocal.

Laproximitéavecl'eauestexploitéenonseulementcommeunatoutesthétique maisaussifonctionnel,enfacilitantl'accèsdirectàdiversesvoiesnavigables.Ce lienprivilégiéavecl'eaurésonneavecl'essencemêmedelavievénitienne,touten proposantuneapprocheinnovanteetrespectueusedel'environnementpourlavie communautaire.Ceprojet,parsonemplacementstratégiquesurl’enciennedigue MOSE,représenteunefusionremarquableentretraditionetmodernité,entre communautéetindividualité,entreterreeteau.

AtelierGRAFTON AAMSP2021
33
PuntaSabbioni- ITALIE

d)Plan1:100

1module35m2/4typesd’appartements

2modulesDUPLEX52,5m2.1chambre.1salled’eau

2modulesFLAT70m2.2chambres.1salled’eau

1moduleSTUDIO35m2.1salled’eau

4modulesDOUBLEDUPLEX122m2.3chambres.2sallesd’eau

35-36 d. b. c.

a)1:2000Plandesituation

Barri è reMOSE Trajectoirebateau Projet

b)1:200Rezprogrammepublic ClasseMontessori É picerie Sallepolyvalente/conf é rence Biblioth è que Restaurant Salletechnique Toilettespubliques

c)1:100Elevation

a.
37-38
1:20Section-2Studios
1:2000maquettedesituationdeCevio

a)Plan1:100

Section1:100

b)Section1:50 Vueperspectivedelastructuredutoit

c)Plandesituation1:500

b.
c.

Typesdetravail :

Dessinconceptuel

Planifcation

Dessind’exécution

Inspectiondechantier

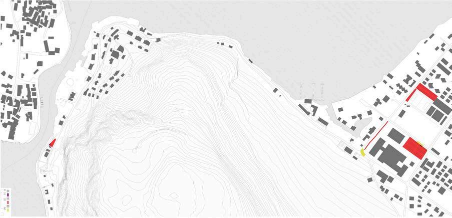
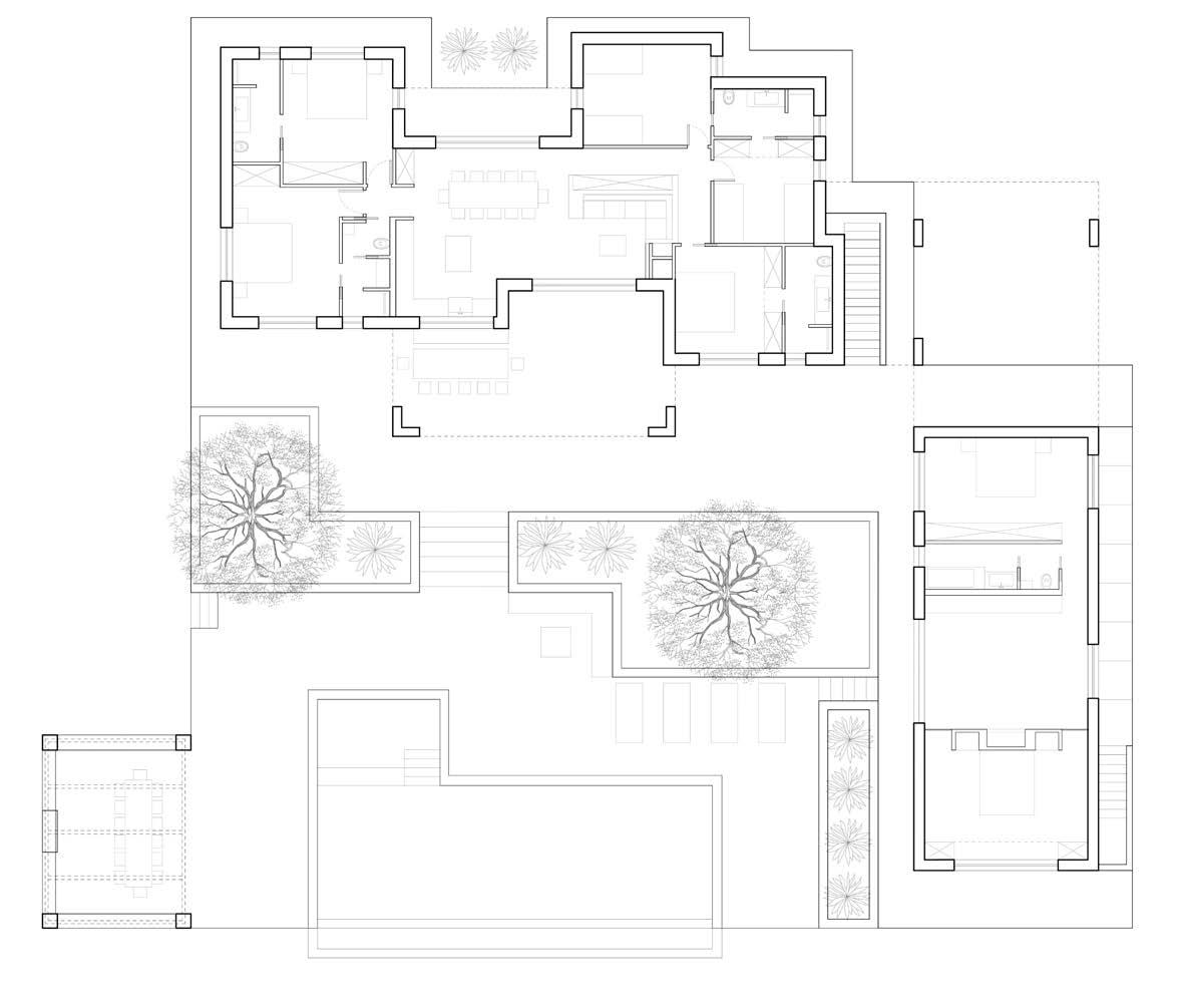
CASASANGIUSEPPE

Carovigno-ITALIE

Ceprojetadébutéilya4ans.Leplaninitialetl'implantationdelavillaontété approuvésparlacommissiondupaysagedesPouilles.Lechantiernes'estouvert qu'en2023,dateàlaquellej'airejointleprojet.Latypologieduplannepouvantpas changer,montravails'estdoncconcentrésurlamatérialitéetl’implantationdela maisondanslepaysageainsiquel’élaborationdeplansexecutifdedétailes.

LaVillaSanGiuseppeestsituéesurunterrainde1500m2d'oliveraieavecpas moinsdetrenteolivierscentenairesquiproduisentunecentainedelitresd'huile d'olivechauqeannées.

Cettemaisondevacancesmultigénérationnellepeutaccueillirjusqu'à18personnes. Elledisposede4chambresdoubles,de2chambresaveclitssuperposéspouvant accueillirchacune4personnesetd'unechambresupérieure.Cesespacesde couchagesontrépartissurdeuxvolumesdistincts:lapartieprincipaledelamaison ainsiqu’unepartiesecondairequipeutservirdepetiteannexe.

47
S.B.Architect 2023-
49-50 a.

a)Implantation

b)Plan1:100

c)ElevationNord

b. c.
51-52
53-54
STANISLAW BEZENÇON bezencon.stanislaw@gmail.com (+41)0795348554

Turn static files into dynamic content formats.

Create a flipbook
Issuu converts static files into: digital portfolios, online yearbooks, online catalogs, digital photo albums and more. Sign up and create your flipbook.
Bezençon Stanisław Portfolio by Stanislaw Bezençon - Issuu