
TIENDA DEPORTIVA TABAS 2.0
E objetivo de esta remode ac ón fue crear un espacio dinámico y atractivo que reflejara a energía vibrante de la cultura urbana y el esti o moderno, ofreciendo a os cl entes
una experienc a de compra ún ca y envolvente. Se priorizó un diseño fresco y contemporáneo, ut lizando mater a es industriales y deta les urbanos que transmitieran una sensación de modernidad y estilo.




TABLERO DE MELAMINE COLOR CEMENTO PEL KANO DE 18 MM MOBILIARIO
ABLERO DE MELAMINE COLOR
PEL KANO DE 18 MM






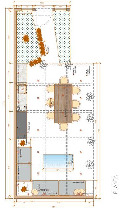
TERRAZA SURCO
El ob etivo de proyecto ue d señar una terraza funcional, aprovechando al máx mo el espac o d sponib e y adaptándose a contexto exter or Se propus eron materiales modernos y resistentes, pensando en la comod dad y neces dades de los usuar os, logrando un amb ente estético agradab e y confortab e que inv ta al disfrute y la convivenc a al a re bre.

























