137 Elbow Road
Alys Beach, FL


![]()


Offered at $11,995,000 (under construction) | $14,995,000 (completed at CO)
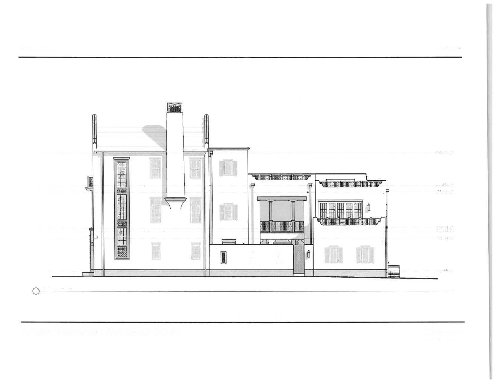
Poised on a prominent corner lot on the south side of Alys Beach, 137 Elbow Road presents an extraordinary opportunity to own a thoughtfully designed coastal residence with curated architectural integrity and sweeping western views toward the Gulf.
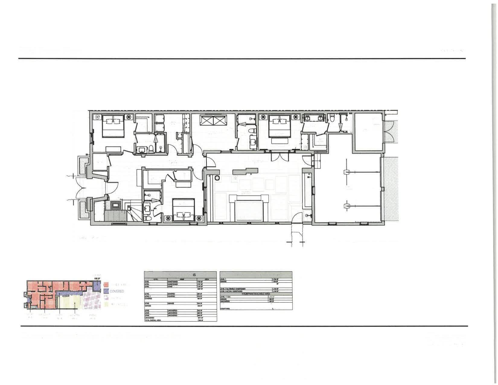
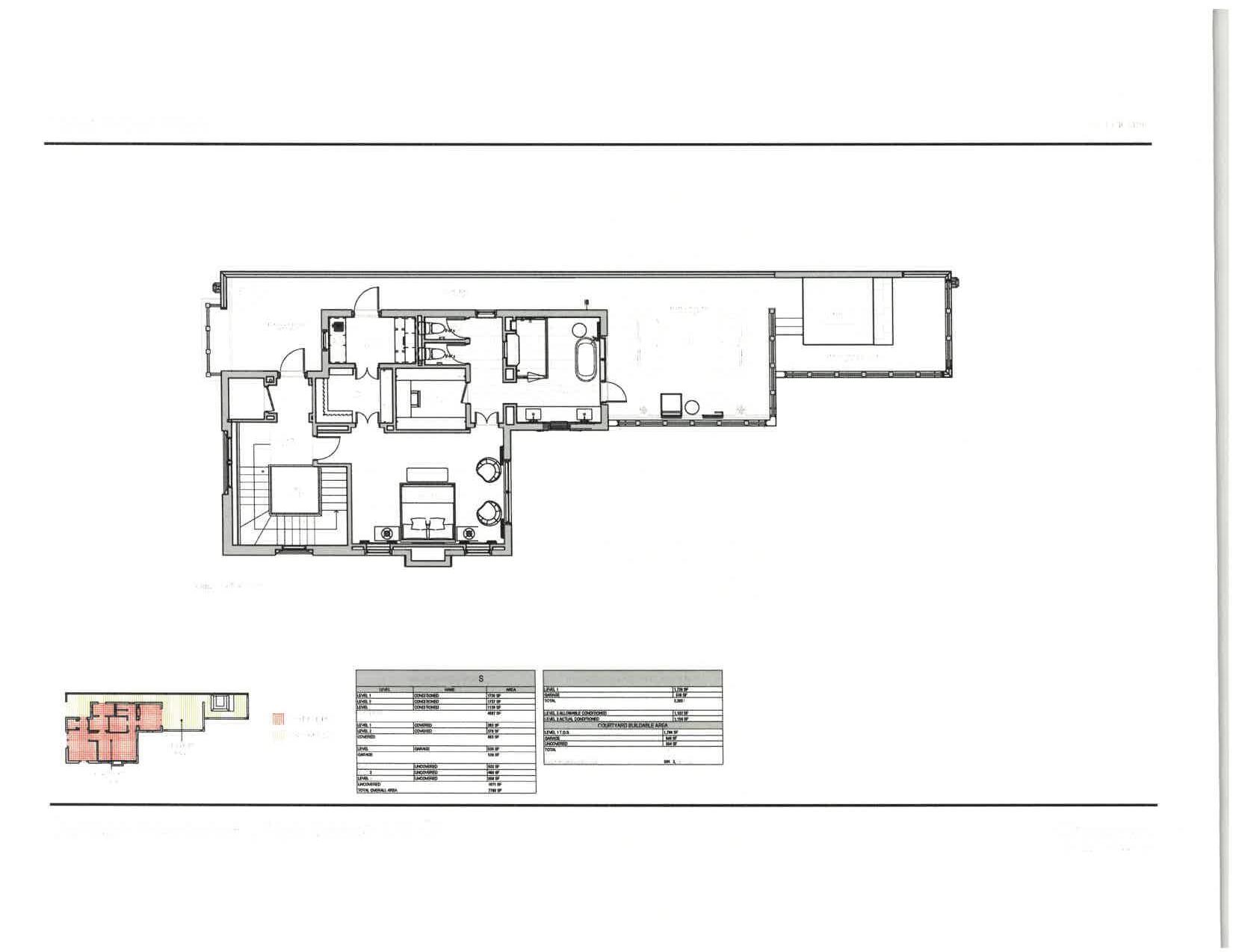
This five-bedroom, five-and-a-half-bathroom home encompasses 4,587 square feet of refined interior living, complemented by 1,971 square feet of open-air balconies and 663 square feet of covered loggia space— crafted to embrace the effortless indoor-outdoor lifestyle that defines Alys Beach.
An elevated private pool and a separate spa, positioned beside the third-floor primary suite, offer an intimate retreat with rare vantage points overlooking the protected corridor of Paradise by the Sea. With three open exposures and a two-car garage, this residence exudes presence, privacy, and elegance.
Designed by Chancey Architecture and brought to life by Arkon Group General Contractors, this home is currently under construction, allowing for a discerning buyer to personalize and select finishes. The seller invites a buyer to assume the existing construction contract for an all-in investment of $11,995,000, or acquire the property upon certificate of occupancy, fully completed, for $14,995,000. Estimated delivery is 18 to 24 months.
An exceptional offering in one of the Gulf Coast’s most architecturally significant communities.
For private inquiries, please contact: Rita Montgomery | 850.819.5749






















