GRUPO 1 - PROYECTO URBANO ARQUITECTÓNICO

Page 1

APA107B DISEÑO ARQUITECTÓNICO 5B PRIMERA ETAPA:INVESTIGACIÓN PAMPA DE LOS PERROS GRUPO 1 Aguilar Aymachoque Rosario Aquise Luque Luz Deysi Cochachin Florecin Jhon Brandon Cuadros Claro Marko Padilla Suazo Virginia Pozada Ramirez Otto Alexander Quispe Palomino Adiel Ramos de la Cruz Bryan Alexander Venero Lobatón Irving Vidal Chávez Esther INTEGRANTES CÁTEDRA Msc. Arq. Robinson C. Ortiz Agama Arq. Carmen Florelí Cárdenas Flores Arq. Juan Luis Palacios Rojas Arq. Luis Enrique Morales Delgado Arq. Alexey Carrasco Escárcena VENTANILLA, CALLAO,PERÚ

1.ESTUDIO TÉCNICO

1.1 MARCO HISTÓRICO

CONTEXTO HISTÓRICO

PERIODO LÍTICO

CHIVATEROS

11000 a.C

Chivateros posee una antigüedad de11,000añosa.C.,porloquesele consideraelhombremásantiguo delacostaperuana.

Esconsiderado como el más grande taller lítico peruano, es decir, el lugar donde los hombres de esa zona elaborabansus herramientas.

PERIODO REPUBLICANO

PARQUE PORCINO

1969

ElProyectoParque Porcino,seinicióen 1969. como parte deunproyectoque promueve la ejecución de proyectos de desarrollo. es asi que surge Parque porcino concebido para ser dedicado exclusivamenteala crianzadeganado porcino.

PERIODO ARCAICO

HUACA

ROSADA (PAMPA DE LOS PERROS)

4500 a.C - 2500 a.C

Huaca Rosada o Pampa de los Perros es un conjunto arqueológico con más de 4500 años de antigüedad, anterioralsurgimientodela Cultura Chavín y casi contemporáneo con la ciudaddeCaral

Su arquitectura era principalmenteceremonial

HUACA EL PARAISO

4000 a.C - 1400a.C

El Paraíso es uno de los mayores asentamientos de la fase final del periodo Pre-cerámico. Tenía arquitectura monumental y por las evidenciasencontradas,sesugiereque tuvounusopúblico,comunitarioy uso doméstico.

Paraterminarlaconstruccióndetodoel complejo se necesitó más o menos 100,000 toneladas de piedra, las que fueronsacadasdecanterasenloscerros vecinos.

G1

PAMPA DE LOS PERROS DIAGNÓSTICO

CÁTEDRA

●Msc. Arq. Robinson Ortiz Agama

●Arq. Carmen Cárdenas Flores

●Arq. Juan Palacios Rojas

● Arq. Alexey Carrasco

●Arq. Luis Morales

●Msc. Arq. Jorge Zaldívar Suárez

CERRO CULEBRAS

100 d.C - 450 d.C

El complejo arqueológico de cerro culebras perteneciente a la cultura Lima fue el núcleo de la población asentada ahí durantelosaños 250a650dC

ALUMNOS

Aguilar Aymachoque Rosario

Aquise Luque Luz Deysi

Pozada

Quispe Palomino Adiel

Venero Lobatón Irving Vidal Chávez Esther

APA107B TALLER DE
L4
DISEÑO 5B 2022-2
Cochachin Florecin Jhon Brandon
Cuadros Claro Marko Padilla Suazo Virginia
Ramirez Otto Alexander
Ramos de la Cruz Bryan Alexander
PERIODO INTERMEDIO TEMPRANO
APA107B TALLER DE DISEÑO 5B 2022-2 L5 PAMPA DE LOS PERROS DIAGNÓSTICO CÁTEDRA ●Msc. Arq. Robinson Ortiz Agama ● Arq. Alexey Carrasco ●Arq. Carmen Cárdenas Flores ●Arq. Luis Morales ●Arq. Juan Palacios Rojas ●Msc. Arq. Jorge Zaldívar Suárez ALUMNOS Aguilar Aymachoque Rosario Aquise Luque Luz Deysi Cochachin Florecin Jhon Brandon Cuadros Claro Marko Padilla Suazo Virginia Pozada Ramirez Otto Alexander Quispe Palomino Adiel Ramos de la Cruz Bryan Alexander Venero Lobatón Irving Vidal Chávez Esther G1 1.2 ANÁLISIS URBANO

PAMPA DE LOS PERROS DIAGNÓSTICO

CÁTEDRA

●Msc. Arq. Robinson Ortiz Agama

●Arq. Carmen Cárdenas Flores

●Arq. Juan Palacios Rojas

● Arq. Alexey Carrasco

●Arq. Luis Morales

●Msc. Arq. Jorge Zaldívar Suárez

ALUMNOS

Aguilar Aymachoque Rosario

Aquise Luque Luz Deysi

Cochachin Florecin Jhon Brandon

Cuadros Claro Marko

Padilla Suazo Virginia

Pozada Ramirez Otto Alexander

Quispe Palomino Adiel

Ramos de la Cruz Bryan Alexander

Venero Lobatón Irving

Vidal Chávez Esther

APA107B TALLER DE
5B
L6
DISEÑO
2022-2
NIVEL
G1
MACRO-URBANO
1 2 3 ÁREAS 1 Huaca Rosada 2 Huaca Culebras 3 Huaca El Paraiso 4 4 Huaca Capilla II RECREACIÓN Cancha deportiva Comisaría Policía ecológica NIVELLIMA 1 1 Estudio de Belleza 2 2 Almacén INDUSTRIA Terminal de contenedores Panta EQUIPAMIENTO Educación Restaurante de menú y chicharronerías 3 4 3 4 Botica Piñatería TIENDAS Bodegas Mercado CULTURA Chacras Parques REGIONAL DISTRITAL ZONAL VÍAS NIVEL MESO-URBANO NESTOR GAMBETA NESTOR GAMBETA AV.CHILLÓN AV.CHILLÓN AV.CENTRAL
TALLER DE DISEÑO Padilla Suazo Virginia Vidal Chávez Esther Av. Prolon. Naranjal Av.NestorGambeta Av.NestorGambeta Av. Chillon Av. Central Río Chillón 1.2.3.NIVEL MICRO-URBANO
HUACA PAMPA
HUACA
CENTRAL
Fuente : Municipalidad de Ventanilla Fuente : Municipalidad de Ventanilla USOS DE SUELOS N N VIVIENDA - TALLER COMERCIO RESIDENCIA ( RDM) CULTURAL
DISEÑO ELEMENTOS URBANOS PRINCIPALES
DE LOS PERROS
CULEBRA PARCELA A
HIDROELÉCTRICA
USOS DE SUELO Y ZONIFICACIÓN
APA107B TALLER DE DISEÑO 5B 2022-2 L10 DIAGNÓSTICO ●Arq. Carmen Cárdenas Flores ●Arq. Luis Morales ●Arq. Juan Palacios Rojas ●Msc. Arq. Jorge Zaldívar Suárez Cochachin Florecin Jhon Brandon Cuadros Claro Marko Padilla Suazo Virginia Ramos de la Cruz Bryan Alexander Venero Lobatón Irving Vidal Chávez Esther
CLIMÁTICAS
CONDICIONES

GRÁFICO PSICOMÉTRICO DE GIVONI

CARTAS BIOCLIMÁTICAS

ROSA DE VIENTOS

G1

LEYENDA INVIERNO VERANO

CÁTEDRA

PAMPA DE LOS PERROS DIAGNÓSTICO

19.67

22.17 17.17

●Msc. Arq. Robinson Ortiz Agama

●Arq. Carmen Cárdenas Flores

●Arq. Juan Palacios Rojas

● Arq. Alexey Carrasco

●Arq. Luis Morales

●Msc. Arq. Jorge Zaldívar Suárez

Aguilar Aymachoque Rosario

Aquise Luque Luz Deysi

Cochachin Florecin Jhon Brandon

Cuadros Claro Marko

Padilla Suazo Virginia

Pozada Ramirez Otto Alexander

Quispe Palomino Adiel

Ramos de la Cruz Bryan Alexander

Venero Lobatón Irving

Vidal Chávez Esther

APA107B TALLER
L11
DE DISEÑO 5B 2022-2

HIDROGRAFÍA Y ESTUDIOS DE SUELOS

Zona I: Comprende la parte sur este y central del distrito, conformado por depósitos de suelos coluviales, provenientes de las laderas de los cerros circundante

Zona II: Abarca la parte noreste del distrito, el suelo es un estrato de arena que cubre las formaciones rocosas, con espesor variable

Zona III: comprende los depósitos de arenas eólicas de gran espesor y sueltas del sector noroeste del distrito. También se ha considerado a los depósitos marinos a lo largo de la costa conformada por arena saturada

Zona IV: está conformada por los suelos pantanosos y depósitos de arenas sueltas de gran espesor que se ubican en la parte litoral del distrito

CÁTEDRA

●Msc. Arq. Robinson Ortiz Agama

●Arq. Carmen Cárdenas Flores

●Arq. Juan Palacios Rojas

● Arq. Alexey Carrasco

●Arq. Luis Morales

●Msc. Arq. Jorge Zaldívar Suárez

ALUMNOS

Aguilar Aymachoque Rosario

Aquise Luque Luz Deysi

Cochachin Florecin Jhon Brandon

Cuadros Claro Marko

Padilla Suazo Virginia

Pozada Ramirez Otto Alexander

Quispe Palomino Adiel

Ramos de la Cruz Bryan Alexander

Venero Lobatón Irving

Vidal Chávez Esther

APA107B TALLER DE DISEÑO 5B 2022-2 L12
PAMPA DE LOS PERROS DIAGNÓSTICO
G1
FUENTE: SIGRID ÁREA EXPUESTA A INUNDACIÓN FAJA MARGINAL DEL RÍO CHILLÓN RÍO CHILLÓN
RIESGO TSUNAMI: ANTEEVENTO SÍSMICODE8.5 Mw ANTEEVENTO SÍSMICODE9Mw
FORMACIONESROCOSAS
FUENTE:Aguilar Z.Calderon D.Microzonificación Geotécnica Sísmica Del Distrito De Ventanilla Cerro Cucaracha Cerro La Cuchilla Cerro Respiro

El acceso a esta parte de la ciudad es mediante transporte privado o mototaxi se da principalmente desde la AV. Gambetta. Desde la Av. Nestor Gambeta hasta el cruce de AV. Chillón con Central el recorrido es aproximadamente 2 Km y se realizan en 6 minutos a moto, además la Av.Chillón se encuentra asfaltada hasta el cruce con Central.

APA107B TALLER DE DISEÑO 5B 2022-2 L13 PAMPA DE LOS PERROS DIAGNÓSTICO CÁTEDRA
Msc. Arq. Robinson Ortiz Agama
Arq. Alexey Carrasco
Arq. Carmen Cárdenas Flores
Arq. Luis Morales
Arq. Juan Palacios Rojas
Msc. Arq. Jorge Zaldívar Suárez ALUMNOS Aguilar Aymachoque Rosario Aquise Luque Luz Deysi Cochachin Florecin Jhon Brandon Cuadros Claro Marko Padilla Suazo Virginia Pozada Ramirez Otto Alexander Quispe Palomino Adiel Ramos de la Cruz Bryan Alexander Venero Lobatón Irving Vidal Chávez Esther G1 INFRAESTRUCTURA VIAL Y MOVILIDAD VÍA
AV.CHILLÓN CENTRAL CENTRAL AV.CHILLÓN AV. NESTOR CAMBETTA
ARTERIAL VÍACOLECTORA
PARADERO DE MOTOTAXIS
RUTADE TRANSPORTE PORCINO RUTADE TRANSPORTE LOGÍSTICO PUENTE PEATONAL

PRINCIPALES SENDAS SECUNDARIAS NODO HITOS BORDE

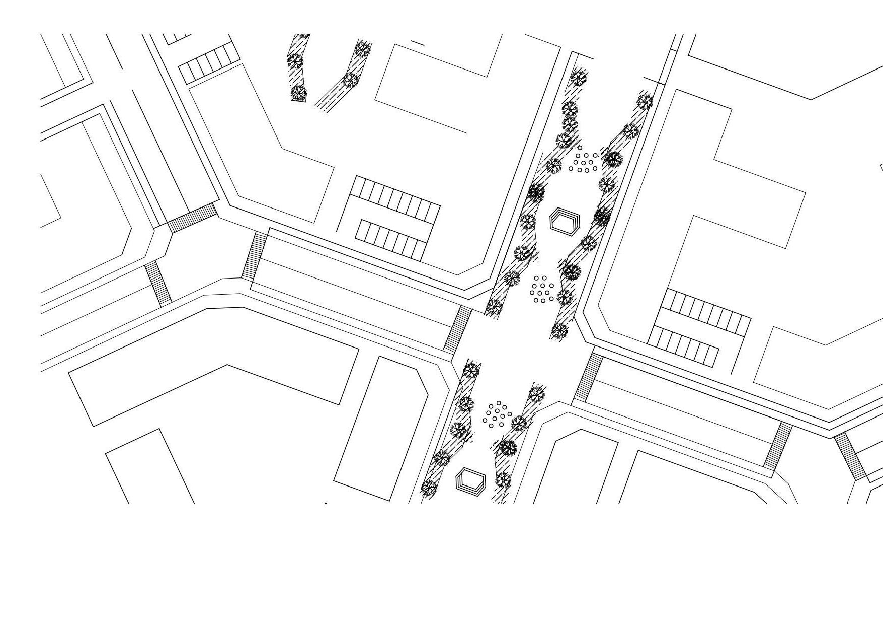
APA107B TALLER DE DISEÑO 5B 2022-2 L14 PAMPA DE LOS PERROS DIAGNÓSTICO CÁTEDRA ●Msc. Arq. Robinson Ortiz Agama ● Arq. Alexey Carrasco ●Arq. Carmen Cárdenas Flores ●Arq. Luis Morales ●Arq. Juan Palacios Rojas ●Msc. Arq. Jorge Zaldívar Suárez ALUMNOS Aguilar Aymachoque Rosario Aquise Luque Luz Deysi Cochachin Florecin Jhon Brandon Cuadros Claro Marko Padilla Suazo Virginia Pozada Ramirez Otto Alexander Quispe Palomino Adiel Ramos de la Cruz Bryan Alexander Venero Lobatón Irving Vidal Chávez Esther G1 FORMA URBANA -IMAGEN URBANA CENTRAL TÉRMICA VENTANILLA HUACA CULEBRAS HUACA PAMPA DE LOS PERROS AVENIDA CENTRAL CON AVENIDA CHILLON
Determinado por dos senderos fuertes y claramente definidos, la Avenida Central y la Avenida Chillon Son las distintas calles que convergen hacia las sendas principales Marcado por la intersección de las sendas principales las avenidas Central y Chillón Son los referentes de la zona las Huacas Culebras y Pampa de los Perros, además de la Central Térmica de Ventanilla El límite de la zona de estudio lo define el Rio Chillon
SENDAS

LÍMITE DE LOS CERROS RÍO CHILLÓN AV. PRINCIPALES

El asentamiento y crecimiento urbano del Parque porcino se genera con la entrega de terrenos en el año 1970, desde ese momento comienza una expansión que se detiene y es definida por elementos naturales y construidos como lo son principalmente los cerros que lo rodean, el río, las huacas y las avenidas.

APA107B TALLER DE DISEÑO 5B 2022-2 L15 PAMPA DE LOS PERROS DIAGNÓSTICO CÁTEDRA
Msc. Arq. Robinson Ortiz Agama
Arq. Alexey Carrasco
Arq. Carmen Cárdenas Flores
Arq. Luis Morales
Arq. Juan Palacios Rojas
Msc. Arq. Jorge Zaldívar Suárez ALUMNOS Aguilar Aymachoque Rosario Aquise Luque Luz Deysi Cochachin Florecin Jhon Brandon Cuadros Claro Marko Padilla Suazo Virginia Pozada Ramirez Otto Alexander Quispe Palomino Adiel Ramos de la Cruz Bryan Alexander Venero Lobatón Irving Vidal Chávez Esther G1 DINÁMICA URBANA
APA107B TALLER DE DISEÑO 5B 2022-2 L16 PAMPA DE LOS PERROS DIAGNÓSTICO CÁTEDRA ●Msc. Arq. Robinson Ortiz Agama ● Arq. Alexey Carrasco ●Arq. Carmen Cárdenas Flores ●Arq. Luis Morales ●Arq. Juan Palacios Rojas ●Msc. Arq. Jorge Zaldívar Suárez ALUMNOS Aguilar Aymachoque Rosario Aquise Luque Luz Deysi Cochachin Florecin Jhon Brandon Cuadros Claro Marko Padilla Suazo Virginia Pozada Ramirez Otto Alexander Quispe Palomino Adiel Ramos de la Cruz Bryan Alexander Venero Lobatón Irving Vidal Chávez Esther G1 HITOS HITO TANQUES DE LA PLANTA TERMOELÉCTRICA ANTENA DE ELECTRICIDAD ANTENA DE ELECTRICIDAD
APA107B TALLER DE DISEÑO 5B 2022-2 L17 PAMPA DE LOS PERROS DIAGNÓSTICO CÁTEDRA ●Msc. Arq. Robinson Ortiz Agama ● Arq. Alexey Carrasco ●Arq. Carmen Cárdenas Flores ●Arq. Luis Morales ●Arq. Juan Palacios Rojas ●Msc. Arq. Jorge Zaldívar Suárez ALUMNOS Aguilar Aymachoque Rosario Aquise Luque Luz Deysi Cochachin Florecin Jhon Brandon Cuadros Claro Marko Padilla Suazo Virginia Pozada Ramirez Otto Alexander Quispe Palomino Adiel Ramos de la Cruz Bryan Alexander Venero Lobatón Irving Vidal Chávez Esther G1 NODOS AVENIDA NESTOR GAMBETA Y AVENIDA CHILLÓN AVENIDA CENTRAL CON AVENIDA CHILLON NODO Marcado por la intersección de las sendas principales las avenidas Central y Chillón Marcado por la intersección de las sendas principales las avenidas Nestor Gambeta y Chillón NODO principales
DISEÑO L18
Aymachoque Rosario
Luque Luz Deysi
Florecin Jhon Brandon
Claro Marko
Suazo Virginia
Palomino Adiel
de la Cruz Bryan Alexander
Lobatón Irving
Chávez Esther CONTAMINACIÓN QUEMAN Quema permanente de residuos en el Parque Porccino Disposición de residuos sólidos Contaminación en el río Chillón por desechos Contaminación por residuos sólidos Contaminación en el aire por dióxido de nitrógeno
Aguilar
Aquise
Cochachin
Cuadros
Padilla
Quispe
Ramos
Venero
Vidal

ZONAS VERDES

En el área demarcada no existe la presencia de parques actuales, pero al estar a la orillas de la cuenca del chillón hay presencia de zonas verdes.

Pudiendo ser desde privadas a públicas, PRIVADO 1 2 3 PÚBLICO

MEANDROS DE LA

es un área donde naturalmente se da la vegetación

En la planta, existen varias zonas de área verde

Al sur del del rio, existe tierras de cosecha

En el área hay 4 canchas; pertenecen a la planta, y una es parte de un club deportivo

CUENCABAJADELRÍO CHILLÓN

El río Chillón, es una zona con potencial agrícola; sin embargo muy deteriorado por la contaminación, inicialmente por minerales y por los desechos en la urbe. Sobre todo a

Cabe resaltar que en la zona no existe agua tratada, se usa agua de una cisterna

En la zona de diagnóstico existe presencia de flora y fauna en las orillas del río Chillón, pero en el resto de la zona es realmente escasa.

APA107B TALLER DE DISEÑO 5B 2022-2 L19 PAMPA DE LOS PERROS DIAGNÓSTICO CÁTEDRA ●Msc. Arq. Robinson Ortiz Agama ●Arq. Carmen Cárdenas Flores ●Arq. Juan Palacios Rojas ●Msc. Arq. Jorge Zaldívar Suárez Cuadros Claro Marko Padilla Suazo Virginia Vidal Chávez Esther G1 BIODIVERSIDAD Y PAISAJE
2 3 3 1 1 1
PRIVADO PRIVADO
Gallinazo Perros Porcinos y Gallinas Eucalipto Árbol de la palta Cactus Molle serrano Ardea Cinerea

G1

La zona referida es atendida por la sub - estación transformadora de EDELNOR de Ventanilla

Las cifras censales del 2007 señalan que en Ventanilla 83.90%, dispone de alumbrado eléctrico por red pública 16.09%, no dispone de alumbrado eléctrico

CÁTEDRA

PAMPA DE LOS PERROS DIAGNÓSTICO

Agua Potable

35.28% de las viviendas particulares cuentan con agua potable por red pública. 39.29% son abastecidas de agua por camión cisterna 19.07% reciben agua de pilón de uso público

2.53% se abastecen del vecino 2.17% se abastece de agua de red pública fuera de la vivienda 1.02% se abastece de pozo 0.07% se abastece de río, acequia, etc. 0.53% de otras fuentes

●Msc. Arq. Robinson Ortiz Agama

●Arq. Carmen Cárdenas Flores

●Arq. Juan Palacios Rojas

0.62% 2.34%

5.69%

19.26%

Servicios higiénicos

Las cifras censales del 2007 también indican que en Ventanilla 35.92% cuenta con conexión a red pública de desagüe dentro de la vivienda 36.14%, posee pozo ciego o negro/ letrina

35.92% 36.14%

19.26%, pozo séptico 5.69%, no tiene; 2.34%, conexión a red pública de desagüe fuera de la vivienda pero dentro de la edificación 0.62%, usa río, acequia o canal como servicio higiénico.

Las poblaciones que no cuentan con el servicio eléctrico se sitúan principalmente en el distrito de Ventanilla siendo el mayor el Parque Porcino.

ALUMNOS

Aguilar Aymachoque Rosario

Pozada Ramirez Otto Alexander

Quispe Palomino Adiel

● Arq. Alexey Carrasco

●Arq. Luis Morales

●Msc. Arq. Jorge Zaldívar Suárez

Aquise Luque Luz Deysi

Cochachin Florecin Jhon Brandon

Cuadros Claro Marko

Padilla Suazo Virginia

Ramos de la Cruz Bryan Alexander

Venero Lobatón Irving

Vidal Chávez Esther

APA107B TALLER DE
5B
L20
DISEÑO
2022-2
ABASTECIMIENTO DE AGUA POR RED PÚBLICA PORCENTAJE DE VIVIENDAS CON ABASTECIMIENTO DE AGUA POR RED PÚBLICA SEGÚN CENSO 2013 83.9% 16.09% 19.07% 2.53% 2.17% 1.02% 35.28% 39.29% 0.53% 0.07%
APA107B TALLER DE DISEÑO 5B 2022-2 L21 PAMPA DE LOS PERROS DIAGNÓSTICO CÁTEDRA ●Msc. Arq. Robinson Ortiz Agama
Arq. Alexey Carrasco
Arq. Carmen Cárdenas Flores
Arq. Luis Morales
Arq. Juan Palacios Rojas
Msc. Arq. Jorge Zaldívar Suárez ALUMNOS Aguilar Aymachoque Rosario Aquise Luque Luz Deysi Cochachin Florecin Jhon Brandon Cuadros Claro Marko Padilla Suazo Virginia Pozada Ramirez Otto Alexander Quispe Palomino Adiel Ramos de la Cruz Bryan Alexander Venero Lobatón Irving Vidal Chávez Esther G1 HUACAPAMPADE LOS PERROS CENTRALHIDROELÉCTRICA DIRPRAM PNPVentanilla DIRECCION DE PROTECCION DELMEDIO AMBIENTE CENTRO DE SALUD VENTANILLAESTE COLEGIOALCIDES CARRION EDUCACIÓN SERVICIOS COMUNITARIOS SALUD INDUSTRIA CULTURA ELEMENTOS URBANOS RELEVANTES
URBANÍSTICO - SITIO ARQUEOLÓGICO
URBANÍSTICO - INDUSTRIA PARÁMETROS URBANÍSTICO - RESIDENCIA Fuente : Plan de desarrollo Urbano Provincia constitucional del Callao Fuente : Plan de desarrollo Urbano Provincia constitucional del Callao
PARÁMETROS
PARÁMETROS
APA107B TALLER DE DISEÑO 5B 2022-2 L22 DIAGNÓSTICO ●Arq. Juan Palacios Rojas ●Msc. Arq. Jorge Zaldívar Suárez Padilla Suazo Virginia Quispe Palomino Adiel Ramos de la Cruz Bryan Alexander Venero Lobatón Irving Vidal Chávez Esther
SOCIOECONÓMICA ESPACIAL
INFRAESTRUCTURA
APA107B TALLER DE DISEÑO 5B 2022-2 L23 PAMPA DE LOS PERROS DIAGNÓSTICO
Msc. Arq. Robinson Ortiz Agama
Arq. Alexey Carrasco
Arq. Carmen Cárdenas Flores
Arq. Luis Morales
Arq. Juan Palacios Rojas
Msc. Arq. Jorge Zaldívar Suárez Aquise Luque Luz Deysi Cochachin Florecin Jhon Brandon Cuadros Claro Marko Padilla Suazo Virginia Ramos de la Cruz Bryan Alexander Venero Lobatón Irving Vidal Chávez Esther RIO CHILLON N

1.3 ANÁLISIS NORMATIVO

La zona está ubicada entre las coordenadas geográficas 11º 20´ y 12º 15’ de latitud sur y 76º 24’ y 77º 10’ de longitud oeste, limitando por el norte con la cuenca del río Chancay, por el sur con la cuenca del río Rímac, por el este con la cuenca del río Mantaro y por el oeste con el litoral peruano, formando parte del departamento de Lima (UNALM y ARC, 2005). Políticamente se localiza en el Distrito de Ventanilla de la Región CallaoProvincia Constitucional del Callao, sobre la margen derecha del río Chillón en forma paralela y a 2.0 km. de la Avenida Néstor Gambetta Su área total es de 845 ha y cuenta con una población estimada de 6100 habitantes

NORMA TH.050

HABILITACIONES EN RIBERAS Y LADERAS

- El Ministerio de Agricultura, a través de sus órganos competentes establece los límites de la faja ribereña a ser respetada como área de uso público

Las áreas ribereñas deberán tener vías de acceso público a una distancia no mayor de 300 metros entre ellos.

Debe ejecutarse una red de desagüe general para la habilitación urbana, que se integre con las redes públicas existentes.

Podrán desarrollarse soluciones locales de abastecimiento de agua para consumo humano, mediante la captación de aguas subterráneas. Si no existiera una red pública

4

- Las habilitaciones en riberas, de acuerdo a las características urbanas de la localidad en que se ubican, podrán ser del tipo A al D, compatible con los sectores colindantes

NORMAA.140 BIENES

CULTURALES INMUEBLES

El RNE señala que no se puede construir en lugares considerados patrimonio .

PATRIMONIO CULTURALDE LANACIÓN

La Zona Arqueológica Pampa de los Perros está ubicada en la margen derecha del rio Chillón, en la zona denominada Parque Porcino, en el distrito de Ventanilla, Callao. Tiene una extensión aproximada de 30,000 m2, y fue declarada Patrimonio Cultural de la Nación en enero del 2001. El sitio cuenta con una pirámide trunca y una plaza circular hundida, perteneciente al periodo arcaico tardío, también llamado pre cerámico.

Que, el artículo 7 del Reglamento de Intervenciones Arqueológicas, aprobado por el Decreto Supremo N° 003-2014-MC y modificatorias, establece que los monumentos arqueológicos prehispánicos son los bienes inmuebles que constituyen evidencia de actividad humana de época prehispánica; con fines de registro, delimitación, investigación, conservación, protección y gestión; y se clasifican en sitio arqueológico, zona arqueológica monumental y paisaje arqueológico;

PARQUE PORCINO

El Proyecto Parque Porcino, se inició el 6 de mayo de 1970 y cuenta con un área de más de 848 hectáreas. En la actualidad engloba a 1,200 predios, cuyos poseedores porcicultores se dedican a la crianza de unos 12 mil cerdos. La condición de vida de los pobladores del Parque Porcino es muy precaria, pues utilizan casas de cartones y de madera triplay, además de carecer de alcantarillado y del servicio de agua potable, ya que este último es facilitado sólo por algunas horas.

APA107B TALLER DE DISEÑO 5B 2022-2 L25 PAMPA DE LOS PERROS DIAGNÓSTICO CÁTEDRA
Msc. Arq. Robinson Ortiz Agama
Arq. Alexey Carrasco
Arq. Carmen Cárdenas Flores
Arq. Luis Morales
Arq. Juan Palacios Rojas
Msc. Arq. Jorge Zaldívar Suárez Aquise Luque Luz Deysi Cochachin Florecin Jhon Brandon Cuadros Claro Marko Padilla Suazo Virginia Quispe Palomino Adiel Ramos de la Cruz Bryan Alexander Venero Lobatón Irving Vidal Chávez Esther G1
1 2 3
Rio arreico repleto de basura Corrales porcinos a la ribera Carretera desnivelada Parque improvisado de futbol

1.4 IDENTIFICACIÓN DEL TERRENO

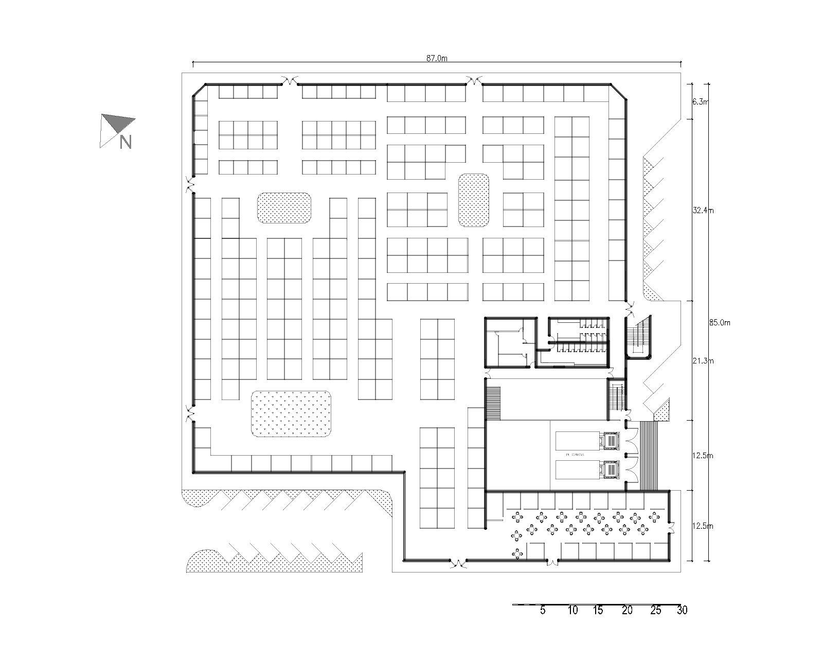
APA107B TALLER DE DISEÑO 5B 2022-2 L27 PAMPA DE LOS PERROS DIAGNÓSTICO CÁTEDRA ●Msc. Arq. Robinson Ortiz Agama ● Arq. Alexey Carrasco ●Arq. Carmen Cárdenas Flores ●Arq. Luis Morales ●Arq. Juan Palacios Rojas ●Msc. Arq. Jorge Zaldívar Suárez ALUMNOS Aguilar Aymachoque Rosario Aquise Luque Luz Deysi Cochachin Florecin Jhon Brandon Cuadros Claro Marko Padilla Suazo Virginia Pozada Ramirez Otto Alexander Quispe Palomino Adiel Ramos de la Cruz Bryan Alexander Venero Lobatón Irving Vidal Chávez Esther G1 LINDEROS LÍNEATOPOGRÁFICA MANZANAS ÁREAS VERDES CORTE CORTETOPOGRÁFICO 1 CORTETOPOGRÁFICO 2 1 2 CERRO CULEBRA PAMPA DE LOS PERROS PARQUE COMUNAL RIOCHILLÓN IDENTIFICACIÓN DEL TERRENO

VIRTUAL

1.5 MAQUETA

APA107B TALLER DE DISEÑO 5B 2022-2 L29 PAMPA DE LOS PERROS DIAGNÓSTICO CÁTEDRA
Msc. Arq. Robinson Ortiz Agama
Arq. Alexey Carrasco
Arq. Carmen Cárdenas Flores
Arq. Luis Morales
Arq. Juan Palacios Rojas
Msc. Arq. Jorge Zaldívar Suárez ALUMNOS
Aymachoque Rosario Aquise Luque Luz Deysi Cochachin Florecin Jhon Brandon Cuadros Claro Marko Padilla Suazo Virginia
Ramirez Otto Alexander
Palomino Adiel
de la Cruz Bryan Alexander
Lobatón Irving
Chávez Esther G1
Aguilar
Pozada
Quispe
Ramos
Venero
Vidal

2.ESTUDIO FENOMENOLÓGICO

APA107B TALLER DE DISEÑO 5B 2022-2 G

2.1 ANÁLISIS TOPOLÓGICO / COLLAGE

UN PARQUE OLVIDADO

Polvo y arena que eres ahora, ,Acaso no te acuerdas cuando naciste?... Entre verdes sueños y claras aguas, De bellas promesas de un futuro eterno y constante.

Hoy has dejado suspiros al viento, Como toda la calma perdida en tu centro. de tu rostro de arcilla parchado con madera y cemento. No queda historia ,sino sólo cuentos.

No me digas que el canto se ha vuelto lamento, Cuando los gallinazos alzan el vuelo y los perros ladran hambrientos. se construye ese futuro incierto donde se oyen los fuertes ecos

Tu río que está apagado por el paso del tiempo, Aún respira con verde de breve intento, Entre montañas de basura y resquebrajado pavimento, Aún anhela ser libre empujando sus escombros sedientos.

Dime qué tu gente no te ah olvidado!, que insiste con la semilla de surgir que hay en sus venas, Que trabaja de sol a sol bajo el calor extenuante , Yque ha convertido la basura ,en una moneda de oro muy bella .

Dime qué es difícil encontrar la alegría, Pero que lo intentas en esas aulas milagrosas.. Que recuperas la esperanza de vivir día tras día, Aunque te atormenten esas notas ruidosas.

Si supieras que irás aprendiendo Acrecer entre tanto ruido, Con el pasar de los inmensos camiones,y el zumbido de los gigantes de acero Hoy tendrías melódicos sueños de niño.

Confía en el aullido de la noche, Que reclama que sigas luchando , Aún sumergida entre la arena Como tesoro que aguarda ser descubierto ....0

ALUMNOS

Aguilar Aymachoque Rosario

●Msc. Arq. Robinson Ortiz Agama

●Arq. Carmen Cárdenas Flores

● Arq. Alexey Carrasco

●Arq. Luis Morales

●Msc. Arq. Jorge Zaldívar Suárez

Aquise Luque Luz Deysi

Cochachin Florecin Jhon Brandon

Cuadros Claro Marko

Padilla Suazo Virginia

Pozada Ramirez Otto Alexander

Quispe Palomino Adiel

Ramos de la Cruz Bryan Alexander

Venero Lobatón Irving

Vidal Chávez Esther

APA107B TALLER DE DISEÑO 5B 2022-2 L32
DE
DIAGNÓSTICO
PAMPA
LOS PERROS
CÁTEDRA
Arq. Juan Palacios Rojas
G1
CÓSMICO
APA107B TALLER DE DISEÑO 5B 2022-2 33 PAMPA DE LOS PERROS DIAGNÓSTICO CÁTEDRA
Msc. Arq. Robinson Ortiz Agama
Arq. Carmen Cárdenas Flores
Arq. Juan Palacios Rojas Aguilar Aymachoque Rosario Aquise Luque Luz Deysi Cochachin Florecin Jhon Brandon G1 ALTURAS Y TIPOLOGÍAS DE VIVIENDAS VG VIVIENDA GRANJA VA VT AI ÁREA INDUSTRIAL VC VIVIENDA COMERCIO U VIV. UNIFAMILIAR 1 PISO 2 PISOS 3 PISOS Leyenda

2.2 ANÁLISIS HISTÓRICO

HUACA PARAISO 2 4

CÁTEDRA

●Msc. Arq. Robinson Ortiz Agama

●Arq. Carmen Cárdenas Flores

●Arq. Juan Palacios Rojas

● Arq. Alexey Carrasco

●Arq. Luis Morales

●Msc. Arq. Jorge Zaldívar Suárez Padilla Suazo Virginia

APA107B TALLER DE DISEÑO 5B
2022-2 PAMPA DE LOS PERROS DIAGNÓSTICO
Vidal Chávez Esther G1
HUACA ROSADA (PAMPA DE LOS PERROS) CERRO CULEBRAS 1 3 4 PARQUE PORCINO
Debido al aumento de poblacion, las zonas arqueologicas han sufrido daños tanto físicos como paisajísticos 1 2 3

2.3 ANÁLISIS PAISAJÍSTICO

Se evidencia un paisaje que se siente olvidado por el estado, pues no existe un ordenamiento territorial, ni control de fachadas, ni pistas ni veredas con algún tratamiento. Esta zona es una muestra de una comunidad que se enfrenta a la ciudad con ganas de salir. Esto se refleja en el hecho de hacer un área pública para jugar futbolito, y que los domingos recibe un gran uso de la población como área para recrearse y hacer comunidad.

INSTALACIÓN ELÉCTRICAS SOBRE RESTOSARQUEOLÓGICOS

UNAPOBLACIÓNTRABAJADORAYENDOYVINIENDO

PAMPA DE LOS PERROS

Cuadros Claro Marko Padilla Suazo Virginia Venero Lobatón Irving Vidal Chávez Esther
●Arq. Juan Palacios Rojas ●Msc. Arq. Jorge Zaldívar Suárez
UN DOMINGO EN COMUNIDAD
UNACOMUNIDAD FRENTEALACIUDAD
APA107B TALLER DE DISEÑO 5B 2022-2 L38 PAMPA DE LOS PERROS DIAGNÓSTICO CÁTEDRA ●Msc. Arq. Robinson Ortiz Agama ● Arq. Alexey Carrasco ●Arq. Carmen Cárdenas Flores ●Arq. Luis Morales ●Arq. Juan Palacios Rojas ●Msc. Arq. Jorge Zaldívar Suárez ALUMNOS Aguilar Aymachoque Rosario Aquise Luque Luz Deysi Cochachin Florecin Jhon Brandon Cuadros Claro Marko Padilla Suazo Virginia Pozada Ramirez Otto Alexander Quispe Palomino Adiel Ramos de la Cruz Bryan Alexander Venero Lobatón Irving Vidal Chávez Esther G1 2.4 ANÁLISIS ESPACIAL

1. Cuenca Chillón

El Río Chillón se origina en la laguna de Chonta (Cerro de Pasco) a 4.850 msnm, con un recorrido de 126 Km

limita por el norte con la cuenca del río Chancay, por el sur con la cuenca del río Rímac, por el este con la cuenca del río Mantaro y por el oeste con el litoral peruano, formando parte del departamento de Lima (UNALM y ARC, 2005

Se puede observar que la parte a intervenir es el tramo final a 4 km de su desembocadura en el mar

DISEÑO 1 2 3
4
APA107B TALLER DE DISEÑO 5B 2022-2 L40 PAMPA DE LOS PERROS DIAGNÓSTICO CÁTEDRA ●Msc. Arq. Robinson Ortiz Agama ● Arq. Alexey Carrasco ●Arq. Carmen Cárdenas Flores ●Arq. Luis Morales ●Arq. Juan Palacios Rojas ●Msc. Arq. Jorge Zaldívar Suárez ALUMNOS Aguilar Aymachoque Rosario Aquise Luque Luz Deysi Cochachin Florecin Jhon Brandon Cuadros Claro Marko Padilla Suazo Virginia Pozada Ramirez Otto Alexander Quispe Palomino Adiel Ramos de la Cruz Bryan Alexander Venero Lobatón Irving Vidal Chávez Esther G1 2.5 ELEMENTOS CONSTRUIDOS

Se sabe que los habitantes de Parque Porcino tienen viviendo más de 5O años en el lugar , y desde hace 30 años la Av. Chillón ha ido sufriendo cambios en su imagen, ya que los nuevos edificios frente a esta , fueron creciendo en altura rápidamente a diferencia de las viviendas agropecuarias, las cuales se mantienen en un nivel.

Vista peatonal frente al ColegioAlcides Carreon

Heterogeneidad

Vista peatonal del ingreso a laAh. Mariano Melgar

Discontinuidad

G1

PAMPA DE LOS PERROS DIAGNÓSTICO

CÁTEDRA

●Msc. Arq. Robinson Ortiz Agama

●Arq. Carmen Cárdenas Flores

●Arq. Juan Palacios Rojas

Vista peatonal del ingreso a la Central Hidroelectrica

● Arq. Alexey Carrasco

●Arq. Luis Morales

●Msc. Arq. Jorge Zaldívar Suárez

APA107B TALLER DE
DISEÑO 5B 2022-2
APA107B TALLER DE DISEÑO 5B 2022-2 L42 PAMPA DE LOS PERROS DIAGNÓSTICO CÁTEDRA ●Msc. Arq. Robinson Ortiz Agama ● Arq. Alexey Carrasco ●Arq. Carmen Cárdenas Flores ●Arq. Luis Morales ●Arq. Juan Palacios Rojas ●Msc. Arq. Jorge Zaldívar Suárez ALUMNOS Aguilar Aymachoque Rosario Aquise Luque Luz Deysi Cochachin Florecin Jhon Brandon Cuadros Claro Marko Padilla Suazo Virginia Pozada Ramirez Otto Alexander Quispe Palomino Adiel Ramos de la Cruz Bryan Alexander Venero Lobatón Irving Vidal Chávez Esther G1 2.6 MOVILIDAD

El comienzo del camino.

En el Parque porcino el único medio de transporte disponible son las motos con ellas los habitantes se trasladan a lo largo de toda la Av, Chillón hasta llegar al paradero de motos ubicado en la Gambeta.

El recorrido desde el paradero hasta la Av.Central es de 6 minutos.

El tránsito fuera de escala.

La tranquilidad del paisaje.

Estando en la Av.Chillón la principal imagen que se tiene, como nos comenta un vecino es el tránsito de trailers y camiones de carga que rompen con la escala de las Avenidas o las viviendas y comercios a su alrededor.

G1

PAMPA DE LOS PERROS DIAGNÓSTICO

4

2 1 Nuevas granjas, nuevo futuro.

En medio de este tránsito de grandes vehículos, podemos encontrar lugares con vistas muy tranquilas y relajantes, una de ellas es el río, con la naturaleza que se asoma y los cerros de fondo. 3

CÁTEDRA

●Msc. Arq. Robinson Ortiz Agama

●Arq. Carmen Cárdenas Flores

●Arq. Juan Palacios Rojas

A lo largo de toda la vía paralela a la AV. central encontramos antiguas granjas y nuevas granjas que se van construyendo, las personas trabajando y camiones o camionetas que se mueven por las pequeñas industrias.

● Arq. Alexey Carrasco

●Arq. Luis Morales

●Msc. Arq. Jorge Zaldívar Suárez

APA107B TALLER DE DISEÑO
5B 2022-2
2 3 1
4

2.7 ANÁLISIS ETNOGRÁFICO

COSTUMBRES RELIGIOSAS

COSTUMBRES DEPORTIVAS

Festividad patronal en honor a la Santísima VirgendelasMercedes, esta celebración empieza en 1 de setiembre y se desarrollaalolargodel mes.

Lascelebraciones se dan en su mayor parte en la capilla VirgendelaMerced

2 Capilla Virgen de la Merced Campo deportivo

Losfinesdesemanayenfechasfestivasla poblacion se reune en un espacio en las riveras del rio Chillon para realizar actividadesdeportivas 1 2

G1

PAMPA DE LOS PERROS DIAGNÓSTICO

CÁTEDRA

●Msc. Arq. Robinson Ortiz Agama

●Arq. Carmen Cárdenas Flores

●Arq. Juan Palacios Rojas

● Arq. Alexey Carrasco

●Arq. Luis Morales

●Msc. Arq. Jorge Zaldívar Suárez

Aguilar Aymachoque Rosario

Aquise Luque Luz Deysi

Cochachin Florecin Jhon Brandon

Cuadros Claro Marko

Padilla Suazo Virginia

Pozada Ramirez Otto Alexander

Quispe Palomino Adiel

Ramos de la Cruz Bryan Alexander

Venero Lobatón Irving

Vidal Chávez Esther

APA107B TALLER DE
5B
L45
DISEÑO
2022-2
1
APA107B TALLER DE DISEÑO 5B 2022-2 L46 PAMPA DE LOS PERROS DIAGNÓSTICO CÁTEDRA ●Msc. Arq. Robinson Ortiz Agama ● Arq. Alexey Carrasco ●Arq. Carmen Cárdenas Flores ●Arq. Luis Morales ●Arq. Juan Palacios Rojas ●Msc. Arq. Jorge Zaldívar Suárez ALUMNOS Aguilar Aymachoque Rosario Aquise Luque Luz Deysi Cochachin Florecin Jhon Brandon Cuadros Claro Marko Padilla Suazo Virginia Pozada Ramirez Otto Alexander Quispe Palomino Adiel Ramos de la Cruz Bryan Alexander Venero Lobatón Irving Vidal Chávez Esther G1 2.6 FODA

FORTALEZAS

● -Se define un barrio, por la escala y por la unión para afrontar los problemas. Los vecinos se conocen

● -Se da la apropiación del área de recreación pública por los habitantes , los vecinos frecuentemente visitan la ribera del río chillón muchos se quedan contemplando el paisaje otros juegan en área verde aledaña y otros caminan.

OPORTUNIDADES

● -Espacios culturales, huacas

● -Elementos paisajísticos de gran impacto, ríos, cerros.

● -Zona pecuaria en proceso de crecimiento y organización. Industria porcina.

DEBILIDADES

● Falta de planificación del territorio, en su crecimiento y organización.

● Falta de zona de actividades que refuercen el arraigo cultural

● Falta de servicios básicos como agua y desagüe.

AMENAZAS

Invasiones en espacios protegidos

Contaminación del río y mala gestión de desechos por parte de las industrias.

Pampas del río Chillón
F
S E N S I B L E
O D A S E N S I B L E F O D A
APA107B DISEÑO ARQUITECTÓNICO 5B PRIMERA ETAPA: REFERENTES PAMPA DE LOS PERROS GRUPO 1 Aguilar Aymachoque Rosario 100% Aquise Luque Luz Deysi 100% Cochachin Florecin Jhon Brandon 100% Cuadros Claro Marko 100% Padilla Suazo Virginia 100% Pozada Ramirez Otto Alexander 100% Quispe Palomino Adiel 100% Ramos de la Cruz Bryan Alexander 100% Venero Lobatón Irving 100% Vidal Chávez Esther 100% INTEGRANTES CÁTEDRA Msc. Arq. Robinson C. Ortiz Agama Arq. Carmen Florelí Cárdenas Flores Arq. Juan Luis Palacios Rojas Arq. Luis Enrique Morales Delgado Arq. Alexey Carrasco Escárcena VENTANILLA, CALLAO,PERÚ
1. CASOS PARADIGMÁTICO 1.1 TOPOFILICO 1.CENTRO DE INTERPRETACIÓN DE LATECNOLOGÍA 2.GRAN MALECÓN DE BARRANQUILLA 3.PLATAFORMAACTIVA 1.2TIPOLOGICO 1. CENTRO DETECNOLOGÍAYOFICIOS KAWARTHA. 2. CENTROTECNOLÓGICOYCULTURALDETONGHUA 3. CENTRO DE INTERPRETACIÓN DE LAAGRICULTURAYLAGANADERÍA/ALDAYJOVER 1.3 PARAMÉTRICO 1.FACHADABODEGA VIÑEDO GANTENBEIN 2.PUENTEATYRAU 3.CENTRO DE INVESTIGACIÓN EN LASELVA 1.4ARTÍSTICO 1. CENTRO PARALACULTURAMUNDIALREYABDULAZIZ 2. COMPANIADE SOSTENIBILIDADYGESTIONAMBIENTAL: BEE´AH 3. COLEGIO DAHOP 1.5 URBANO MORFOLOGICO 1. SOUTH DAGENHAM 2. CIUDAD DELDEPORTE EN VENTANILLA 3. RENOVACIÓN DELCENTRO HISTÓRICO DEAREQUIPA 1.6 HITOS DELSECTORYALREDEDORES 2. MATRIZ DE CASUÍSTICA 3. PROGRMAURBANA-ARQUITECTÓNICO ÍNDICE

1. CASOS PARADIGMÁTICOS

1.1TOPOFILICO 1. CENTRO DE INTERPRETACIÓN DE LA TECNOLOGÍA 2. GRAN MALECÓN DE BARRANQUILLA 3. PLATAFORMA ACTIVA

REFERENTE TOPOFÍLICO

FICHA TÉCNICA

Cliente:Parque

TecnológicoSA Ciudad:Derio,Bizkaia País:España

UBICACIÓN

Arquitectos:IDOM;ACXT Área:2600m² Año:2009

CENTRO DE INTERPRETACIÓN DE LA TECNOLOGÍA

CONCEPTO

A10KmdelaciudaddeBilbao,tieneunrío(Asua)yun arroyo(Untza).

Elcentro,seplanteóparaserun hitoenarmoníaconelpaisaje.Se tienedosvolúmenesque emergendelmonte.Unvolumen tieneuncaracterpesadoalser negrometalico.Elotrovolumen contrariamenteesmásligeroya queutilizaelvidrioqueleotorga esatransparenciayacompañado porunacubiertadecésped concretalaidea.

RELACIÓN CON EL CONTEXTO

Conunpaisajede montesdebajaaltura tieneunGeniusLucci Clásico,puestiene asentamientos modernosconedificios delaépocamedieval.

Seobservaqueestáenelparquefrenteaotrosusos,sin embargoalposarsesobrelacolina,yusandoformas angularesdestacayseamarraalentorno.

Ambos volúmenes se unen debajo de la rasante por lo que la idea de excentricidad por encima de la monte se redondea,yaquenoperceptiblelaunión

Cuentacon3salonesparalaenseñanzadetecnología.Estossalones sonmuydinámicosporloque inspiradinamismoyfacilitanla enseñanzadelatecnología

El BTECK, es un edificio que se acopla al entorno inmediato y de la ciudad. Pues responde morfológicamente y funcionalmente al contexto.Además que los arquitectos diseñaron el edificio como dos bloques que parecen emerger del monte levantado y otro Echado. Logrando resaltar del entorno. Sin embargo la forma del edificio complica el diseño en el interior se observa como los salones tienen espacios residuales,Así mismo, tienen un carácter lúdico que es en respuesta al objetivo que es incentivar el estudio de tecnología en los estudiantes.

CÁTEDRA

ANÁLISIS PARADIGMÁTICO

●Msc. Arq. Robinson Ortiz Agama

●Arq. Carmen Cárdenas Flores

●Arq. Juan Palacios Rojas

APA107B TALLER DE DISEÑO 2022-2

PARADIGMÁTICO

●Arq. Carmen Cárdenas Flores ●Arq. Luis Morales

●Arq. Juan Palacios Rojas

●Msc. Arq. Jorge Zaldívar Suárez

Cochachin Florecin Jhon Brandon Cuadros Claro Marko Padilla Suazo Virginia

Ramos de la Cruz Bryan Alexander Venero Lobatón Irving Vidal Chávez Esther

APA107B TALLER
L6
DE DISEÑO 5B 2022-2

SECTOR CULTURAL

SECTOR DEPORTIVO - RECREATIVO

SECTOR PAISAJÍSTICO -TURÍSTICO

ALUMNOS

G1

ANÁLISIS PARADIGMÁTICO

CÁTEDRA

●Msc. Arq. Robinson Ortiz Agama

●Arq. Carmen Cárdenas Flores

●Arq. Juan Palacios Rojas

● Arq. Alexey Carrasco

●Arq. Luis Morales

●Msc. Arq. Jorge Zaldívar Suárez

Aguilar Aymachoque Rosario

Aquise Luque Luz Deysi

Cochachin Florecin Jhon Brandon

Cuadros Claro Marko

Padilla Suazo Virginia

Pozada Ramirez Otto Alexander

Quispe Palomino Adiel

Ramos de la Cruz Bryan Alexander

Venero Lobatón Irving

Vidal Chávez Esther

APA107B TALLER
L8
DE DISEÑO 5B 2022-2

REFERENTE TOPOFÍLICO

Arq:RicardoVivesGuerra(Líderdelproyecto)

Fecha:2019

Lugar:Barranquilla-Colombia

Este proyecto liderado por la Alcaldía de Barranquilla eselespaciopúblicomásvisitadodeColombia.

La Unidad Funcional 1 abarca la oferta gastronómica, enlaqueestáelCaimándelRíoyManglaresdelRío.

La Unidad Funcional 2 es el espacio recreativo que cuenta con parques infantiles, una plaza para eventos culturales,entreotrosespaciosdestinadosalocio.

En todo el diseño se tomaron en cuenta características típicas de Barranquilla, como la topografía, geografía, historia, vecinos y el clima, todo ello visto en elementos como materiales, colores y conceptos.

TOPOGRAFÍA

GRAN MALECÓN DE BARRANQUILLA

RELACIÓN CON EL PAISAJE SIMBOLOGÍA

La sensibilidad para diseñar este espacio ha brindado la posibilidad de encuentros, realizar deporte, paseos familiares y avistamiento de aves; recargar los teléfonos, ver un show de breakdance o contemplar el río.

PROGRAMA

G1

ANÁLISIS PARADIGMÁTICO

CÁTEDRA

●Msc. Arq. Robinson Ortiz Agama

●Arq. Carmen Cárdenas Flores

●Arq. Juan Palacios Rojas

APA107B TALLER DE DISEÑO 5B 2022-2

TERMAS DE VALS

FICHA TÉCNICA

Cliente:Hotelund ThermalbadValsAG

Ciudad:Graubunden Canton País:Suiza

UBICACIÓN

Poststrasse560,7132Vals,Suiza

Arquitectos:Peter Zhumtor Área:2000m² Año:1993-1996

CONCEPTO

El concepto utilizado por Zumthor para diseñar los baños y el spa, posteriores al hotel, fuecrearunaestructuraconformadecuevao cantera. Inspirado por los alrededores naturales, la sala de baños fue ubicada debajo de un techo de hierba, una estructura semienterradaenlaladera.

Vals es el último lugar en el valle, más adelante sólo hay montañas y cielo. Por otro lado está Ticino y entre ellos, los exuberantes prados alpinos, formaciones rocosas escarpadas, viaductos, y la cantera. Detrás, la elegante pirámide del Zervreilahorn.

Laconcepcióndelosespaciosserealizadesdeelinteriorhaciaelexterioryestáinspiradaenimágenessensiblesdela experienciafísica.Estasideas sontraducidasdirectamenteaarquitectura mediantedistintosrecursoscomolaluz,la continuidadointerrupcióndelespacio,cambiosdenivel,etc.

Elplanteoespacial,determinadoapartirdelaexcavacióndelapendientebrindaunmarcosimpleyrefinadoparaelactodelbañoen

[…]“Yocreoquetodoedificioemiteunsonido…Encuentrohermosoconstruirunedificioeimaginarloensusilencio.Estoes,hacerdel edificiounlugarsosegado,algobastantedifícildelograrhoyendíaquenuestromundoestanruidoso”[…]

APA107B TALLER DE DISEÑO 5B 2022-2
REFERENTE TOPOFÍLICO
TIPOLÓGICO 1. CENTRO DETECNOLOGÍAYOFICIOS KAWARTHA. 2. CENTROTECNOLÓGICOYCULTURALDETONGHUA 3. CENTRO DE INTERPRETACIÓN DE LAAGRICULTURAYLA GANADERÍA/ALDAYJOVER
1.2

Parte central de la universidad de Sir Arthur Fleming, utilizó un diseño innovador para aprovechar el interés del campus y la comunidad en los oficios especializados y los programas de capacitación.

Dos volúmenes que se insertan en el terreno para poder conectar el nivel del ingreso con la parte final hundida del terreno, además se superponen entre sí elevándose levemente el volumen más importante, un cubo que corresponde a la fábrica de aprendizaje.

PROGRAMA

Gestión de proyectos. 610 m2

Recibo y envío de materiales y productos. 420 m2

Fábrica de aprendizaje - 1550m2

Talleres de producción. 3 - 1100 m2

Oficinas 220m2

Esparcimiento

ANÁLISIS PARADIGMÁTICO

CÁTEDRA

●Msc. Arq. Robinson Ortiz Agama

●Arq. Carmen Cárdenas Flores

●Arq. Juan Palacios Rojas

● Arq. Alexey Carrasco

●Arq. Luis Morales

●Msc. Arq. Jorge Zaldívar Suárez

ALUMNOS

Aguilar Aymachoque Rosario

Aquise Luque Luz Deysi

Cochachin Florecin Jhon Brandon

Cuadros Claro Marko

Padilla Suazo Virginia

Pozada Ramirez Otto Alexander

Quispe Palomino Adiel

Ramos de la Cruz Bryan Alexander

Venero Lobatón Irving

Vidal Chávez Esther

APA107B TALLER DE DISEÑO 5B
L13
2022-2
G1 REFERENTE TIPOLÓGICO 1: CENTRO
OFICIOS KAWARTHA
DE TECNOLOGÍA Y
AÑO
UBICACIÓN:Peterborough, Canadá.
ARQUITECTOS
: Perkins + Will Toronto Office
: 2014
1 2 3 4 5 6 3 6 PRIMER NIVEL NIVELINFERIOR
Vestíbulo 240m2 NIVEL INFERIOR
Salones educativos. 825 m2
Oficinas 100 m2 Terraza 240 m2
Vestíbulo principal. 110 m2 PRIMER NIVEL
FICHA TÉCNICA CONCEPTO Y CONTEXTO ESPACIALIDAD FUNCIONAMIENTO Y FLUJOS INTERNOS VESTÍBULO DE INGRESO SALONES OFICINAS ÁREADE PROYECTOS VESTÍBULO INFERIOR OFICINAS FÁBRICADE APRENDIZAJE TALLERES DE PRODUCCIÓN TERRAZA RECIBOY ENVÍOS PRIMER NIVEL NIVEL INFERIOR ESPACIO DE ESPARCIMIENTO CAMPO DE APRENDIZAJE CUBO DE ENSEÑANZA

UBICACIÓNYEMPLAZAMIENTO

FORMA Y CONCEPTO

FUNCIONAMIENTO

SALA DE INVESTIGACIONES

PRIMER NIVEL

MUSEO NATURAL CIRCULACIÓN MUSEO DEARTE

SALADE INVESTIGACIONES

SEGUNDO NIVEL

SALADE INVESTIGACIONES

El proyecto se ubica cerca al río en la falda de la montañaTonghua.

El edificio es el remate de la trama urbana abriéndose a la calle central.

Fecha: 2016

Ubicación :Tonghua China

Arquitectos : CCTN Design

PRIMER NIVEL

Se pretende mediante la forma no alterar el paisaje natural, para ello se recrea en la cubierta la forma irregular de las montañas plasmando un arte tradicional como la papiroflexia.

Además se distinguen los tres principales bloques que lo componen.

PROGRAMA

ANÁLISIS PARADIGMÁTICO

CÁTEDRA

●Msc. Arq. Robinson Ortiz Agama

●Arq. Carmen Cárdenas Flores

●Arq. Juan Palacios Rojas

MUSEO DE CIENCIAY TECNOLOGÍA

SALADE INVESTIGACIONES

MUSEO DEARTE CIRCULACIÓN

TERCER NIVEL

SALADE INVESTIGACIONES

MUSEO DE HISTORIA

MUSEO DEARTE CIRCULACIÓN

ESPACIALIDAD

ALUMNOS

● Arq. Alexey Carrasco

●Arq. Luis Morales

●Msc. Arq. Jorge Zaldívar Suárez

Pozada

Venero Lobatón Irving

Vidal Chávez Esther

APA107B TALLER DE DISEÑO 5B 2022-2 L14
Aguilar Aymachoque Rosario Aquise Luque Luz Deysi Cochachin Florecin Jhon Brandon Cuadros Claro Marko Padilla Suazo Virginia
Ramirez Otto Alexander
Quispe Palomino Adiel Ramos de la Cruz Bryan Alexander
G1 REFERENTE TIPOLÓGICO 2: CENTRO
CULTURAL
TONGHUA
TECNOLÓGICO Y
DE
SALAS DE INVESTIGACIÓNY AUDITORIOS
SEGUNDO NIVEL
TEMÁTICOS
DEARTES
TERCER NIVEL MUSEOS
MUSEO

REFERENTE TIPOLÓGICO 3: Centro De Interpretación De La Agricultura Y La Ganadería / aldayjover

RELACIÓN CON ELCONTEXTO

Tipología: PaisajismoUrbanismo

Fecha: 2013- 2012

Ciudad: Pamplona País: España

Localizada en Pamplona, Navarra, provincia de España, es un proyecto diseñado por Alday-Jover Arquitectos. Esta propuesta busca fomentar y difundir el cultivo ecológico, así como recuperar la biodiversidad de las semillas locales de vegetales de la huerta de la zona.

CONCEPTOYFORMA

En el contexto cultural y social de Pamplona, el Parque público deAranzadi tiene la voluntad de mantener el carácter del paisaje agrícola conciliando con la funcionalidad hidráulica; en consecuencia, el edificio de la Fundación inserto en este paisaje se plantea con una sola planta cuya materialización está cerca de la configuración de los invernaderos. En este afán de integración, se utiliza una paleta material de policarbonato, vidrio, malla de sombra de invernaderos, estructura ligera y plantación de trepadoras.

FUNCIONALIDAD

PROGRAMA

Sala de reuniones, oficinas y despachos. Sala de exposición productos de calidad.

Tres largas naves separadas, articuladas a través de un vestíbulo, dan forma a un edificio colocado sobre un basamento de hormigón.

TECNOLOGÍAYCONSTRUCCIÓN

G1

INTERIOR

ANÁLISIS PARADIGMÁTICO

CÁTEDRA

●Msc. Arq. Robinson Ortiz Agama

●Arq. Carmen Cárdenas Flores

●Arq. Juan Palacios Rojas

● Arq. Alexey Carrasco

●Arq. Luis Morales

●Msc. Arq. Jorge Zaldívar Suárez

ALUMNOS

Aguilar Aymachoque Rosario

Aquise Luque Luz Deysi

Cochachin Florecin Jhon Brandon

Cuadros Claro Marko

Padilla Suazo Virginia

Pozada Ramirez Otto Alexander

Quispe Palomino Adiel

Ramos de la Cruz Bryan Alexander

Venero Lobatón Irving

Vidal Chávez Esther

APA107B TALLER DE
L15
DISEÑO 5B 2022-2
INTERIOR ACCESOYMUSEOGRAFÍA VESTÍBULO GENERALYRECEPCIÓN A1 RECONVERSIÓNANTIGUACASAGURBINDO A2 SALADE EXPOSICIÓN PRODUCTOS CALIDAD A3 SALADE VIDEO A4 FORMACIÓN SALAS DE FORMACIÓN F1 GASTRONOMÍA SALA G1 TALLER COCINA G2 OFICINAS SALADE REUNIONES. OFICINASY DESPACHOS F1 INSTALACIONES F10 EXTERIOR PÉRGOLADEACCESO E1 PORCHE PARAGRUPOSAULAEXTERIOR E2 PORCHE DEACCESO DE TRABAJADORES E3 PORCHE DE SALIDAA AULAEXTERIOR E4 RAMPADEACCESO E5 TERRAZAMIRADOR SOBRE LAHUERTA E6 ESTABLO EN RUINA RECUPERADA E7 HUERTAS EXPOSITIVAS E8 CEDRO CENTENARIO E9 CORTE EXTERIOR
Nave
Nave
Sala
1
2 Nave 3
TallerCocina Salas de Formación Vestíbulo general y recepción

UBICACIÓN:Peter borough, Canadá. ARQUITECTOS: Perkins + Will Toronto Office

AÑO: 2014

PROGRAMA CONTEXTO Y CONCEPTUALIZACIÓN

Dos volúmenes que se insertan en el terreno para poder conectar el nivel del ingreso con la parte final hundida del terreno. Además mediante la transparencia interior se busca conectar los diferentes espacios y actividades.

PRIMER NIVEL

Vestíbulo principal. 110 m2

Gestión de proyectos. 610 m2

Salones educativos. 825 m2

Oficinas 100 m2

Terraza 240 m2

NIVELINFERIOR

Recibo y envío 420 m2

Fábrica de aprendizaje 1550m2

Talleres de producción. 1100 m2

Oficinas 220m2 Vestíbulo 240m2

VESTÍBULO DE INGRESO

UBICACIÓN:

Tonghua China

ARQUITECTOS : CCTN Design

AÑO: 2016

Se pretende mediante la forma no alterar el paisaje natural, para ello se recrea en la cubierta la forma irregular de las montañas. Además se distinguen los tres principales bloques que lo componen.

SALAS DE INVESTIGACIÓNY AUDITORIOS

MUSEOSTEMÁTICOS

MUSEO DEARTES

Tres largas naves separadas, articuladas a través de un vestíbulo, dan forma a un edificio colocado sobre un basamento de hormigón.

Los edificios analizados se componen de volúmenes visiblemente separados debido a que tienen usos marcados, pero que interiormente se integran mediante visuales o áreas de estar.

En cada nivel de los proyectos tenemos un conjunto de actividades compatibles entre sí y que se relacionan mediante un espacio central el cual permite acceder a ellos y conectar con otros niveles.

ANÁLISIS PARADIGMÁTICO

SALONES

ESPACIO DE ESPARCIMIENTO

PRIMER NIVEL NIVEL INFERIOR

TALLERES DE PRODUCCIÓN

FÁBRICADE APRENDIZAJE

TERRAZA

OFICINAS ÁREADE PROYECTOS VESTÍBULO INFERIOR OFICINAS

El edificio cumple con la idea de relacionar funciones sin llegar a mezclarlas, lo hace mediante las visuales, las dobles alturas y las entradas.

CAMPO DE APRENDIZAJE

RECIBOY ENVÍOS

CUBO DE ENSEÑANZA Estructurado con pórticos de concreto, con un cubo interior de estructura metálica y una fachada de madera para armonizar con el paisaje

SALADE INVESTIGACIONES

MUSEO DE CIENCIAY TECNOLOGÍA

FUNCIONALIDAD Y FLUJOS CONCLUSIONES

SALADE INVESTIGACIONES

MUSEO DEARTE

Estructurado con pórticos y losas de concreto de concreto y una cubierta fachada de metal para realizar los pliegues.

Sistema de apertura de cubiertas para el intercambio de aire. Esquema geometría horizontal

Además mantiene el buen funcionamiento logrando entender los flujos peatonales existentes .

El edificio integra la cultura y la ciencia, creando en cada espacio de exposición un área de investigación. El espacio central de triple altura intenta relacionar visualmente espacios, pero la gran cantidad de escaleras perimetrales torna caótico el espacio.

La edificación está referida a preservar la agricultura del lugar, al estudio de mejores tecnologías que ayuden a mejorar la siembra de las plantas del lugar que son aptas también para la ganadería.

El vestíbulo como espacio de recepción e información además de mostrar visualmente los distintos espacios que aunque se encuentran muy bien marcados intentan conectarse visualmente.

El uso central está dedicado a la formación e investigación, pero no olvida incentivar a la comunidad sobre temas de importancia, como cultura.

ALUMNOS

CÁTEDRA

●Msc. Arq. Robinson Ortiz Agama

●Arq. Carmen Cárdenas Flores

●Arq. Juan Palacios Rojas

● Arq. Alexey Carrasco

●Arq. Luis Morales

●Msc. Arq. Jorge Zaldívar Suárez

En el centro de interpretación tenemos tecnologías de sistema de apertura de cubiertas para el intercambio de aire

Aguilar Aymachoque Rosario

Aquise Luque Luz Deysi

Cochachin Florecin Jhon Brandon

Cuadros Claro Marko

Padilla Suazo Virginia

Pozada Ramirez Otto Alexander

Quispe Palomino Adiel

Ramos de la Cruz Bryan Alexander

Venero Lobatón Irving

Vidal Chávez Esther

APA107B TALLER DE DISEÑO 5B
L16
2022-2
G1 REFERENTE TIPOLÓGICO REFERENTES
TECNOLOGÍA Y
Centro De Interpretación De La Agricultura Y La Ganadería / aldayjover
Alday-Jover
FICHA TÉCNICA
MATERIALIDAD
Arq.:
Arquitectos Fecha: 2013-2012 Lugar: Pamplona, Navarra, España
CONCLUSIÓN
DE TECNOLOGÍA Y OFICIOS KAWARTHA CENTRO TECNOLÓGICO Y CULTURAL DE TONGHUA
CENTRO

TOPOFÍLICO

CONCLUSIONES

CONTEXTO Y

PROGRAMA

Esquema geometría horizontal.

● La agricultura que se preserva en el lugar

Sistema de apertura de cubiertas para el intercambio de aire.

Se definirá un partido arquitectónico en base a los 3 referentes topofílicos analizados

El genius loci de los tres proyectos está ligado a la cultura y creencias de cada lugar.

G1

El desarrollo de los 3 proyectos están definidos por la topografía del lugar.

CÁTEDRA

Los 3 referentes buscan relacionarse con el paisaje natural, a través de su forma y sus remates visuales.

ANÁLISIS PARADIGMÁTICO

●Msc. Arq. Robinson Ortiz Agama

●Arq. Carmen Cárdenas Flores

●Arq. Juan Palacios Rojas

● Arq. Alexey Carrasco

●Arq. Luis Morales

●Msc. Arq. Jorge Zaldívar Suárez

ALUMNOS

Aguilar Aymachoque Rosario

Aquise Luque Luz Deysi

Cochachin Florecin Jhon Brandon

Cuadros Claro Marko Padilla Suazo Virginia

APA107B TALLER DE DISEÑO 5B 2022-2
REFERENTE
REFERENTES FICHA TÉCNICA TECNOLOGÍA
Venero Lobatón Irving Vidal Chávez Esther De Interpretación De
Centro
La Agricultura Y La Ganadería / aldayjover
Arq.: Alday-Jover
Arquitectos Fecha: 2013-2012 Lugar: Pamplona Navarra, España
CONCEPTUALIZACIÓN
FUNCIONALIDAD MATERIALIDAD

Arq.: Alday-Jover Arquitectos Fecha: 2013-2012 Lugar: Pamplona, Navarra, España

●Msc. Arq. Robinson Ortiz Agama

●Arq. Carmen Cárdenas Flores

●Arq. Juan Palacios Rojas

ALUMNOS

● Arq. Alexey Carrasco

●Arq. Luis Morales

●Msc. Arq. Jorge Zaldívar Suárez

Pozada Ramirez Otto Alexander

Quispe Palomino Adiel Ramos de la Cruz Bryan Alexander

Venero Lobatón Irving Vidal Chávez Esther

APA107B TALLER DE DISEÑO 5B 2022-2 L18
ANÁLISIS PARADIGMÁTICO CÁTEDRA
Aguilar Aymachoque Rosario Aquise Luque Luz Deysi Cochachin Florecin Jhon Brandon Cuadros Claro Marko Padilla Suazo Virginia
G1 REFERENTE TIPOLÓGICO FICHA TÉCNICA TECNOLOGÍA Y MATERIALIDAD Centro De Interpretación De La Agricultura Y La Ganadería / aldayjover
PROGRAMA CONTEXTO Y CONCEPTUALIZACIÓN FUNCIONALIDAD Y FLUJOS CONCLUSIONES CONCLUSIÓN EJEMPLO DEL FORMATO DE LA LÁMINA. GUIARSE DE LA INFORMACIÓ N DE CADA PUNTO.
DE FLUJOS
IR LOS
DIAGRAMAS
PROGRAMA IRÍAUN LISTADO DE LAS ÁREASY USOSYSI ES POSIBLE UN DIAGRAMA CIRCULAR PARA SABER LOS PORCENTAJES.
DIAGRAMA
PODRÍAN
DOS
COMBINADOS PARAQUEALCANCE ELESPACIO, JERARQUIZAR LAS FLECHAS DONDE HAYMAYORES FLUJOSYPONER SI ELFLUJO ES DE AMBOS SENTIDOS. EN EL
1.3 PARAMÉTRICO 1.FACHADABODEGA VIÑEDO GANTENBEIN 2.PUENTEATYRAU 3.CENTRO DE INVESTIGACIÓN EN LASELVA

REFERENTE PARAMÉTRICO CUBIERTA CENTRO POMPIDOU METZ

MODULACIÓN

TECNOLOGÍA

UBICACIÓN: Metz, Francia ARQUITECTO: ShigeruBanArchitects

AÑO: 2010

FICHA TÉCNICA CONCEPTO

FORMA

Formadelacubierta

CARÁCTER

El Hexágono para los francesesesunsímbolode su país ya que es similar a la forma geográfica de Francia. Además contiene un patrón de triángulos equiláteros inspirados en los sombreros asiáticos de bambú.

SombreroChinode pajahexagonaltejido

Diseñarunacubiertade proteccióndetechosy voladizos,queseadaptea lascaracterísticas requeridas

SIMBOLISMO

Este sombrero simboliza la permanencia, flexibilidad y desmontabilidad que necesitaelproyecto

MATERIAL

Techo ondulado laminado de madera rodea estructura de metal encerrando el espacio del equipamiento. Membrana de vidrio traslúcido y textiles deteflón

MODELADO 3D PARAMÉTRICO: DYNAMO STUDIOS + REVIT

FUNCIÓN

Alavanzarporelpatioylosjardinesque unenelcentrodelaciudaddeMetzyla estación con el centro Pompidou, los visitantesdescubriránunequipamiento que les invita a tomar refugio bajo su techoprotector

Una arquitectura que refleja la apertura,mezcladeculturasybienestar enrelaciónalentorno.

CÁTEDRA

En este proyecto podemos concluir como la arquitectura paramétrica en este tipo de equipamientos nos permite realizar estructuras no convencionales sin la necesidad de ceñirnos aestructurasaporticadasincluyendoconceptosdelavidadiariaoautóctonosdel lugar que nos ayuden a cubrir las necesidades requeridas de un proyecto, así como la materialidadflexiblequenospermiteextraerlaluzdelosequipamientosymostrarlosal mundo.

ALUMNOS

Aguilar Aymachoque Rosario

ANÁLISIS PARADIGMÁTICO

●Msc. Arq. Robinson Ortiz Agama

●Arq. Carmen Cárdenas Flores

●Arq. Juan Palacios Rojas

● Arq. Alexey Carrasco

●Arq. Luis Morales

●Msc. Arq. Jorge Zaldívar Suárez

Pozada

Quispe

APA107B TALLER DE DISEÑO 5B 2022-2 L20
Aquise Luque Luz Deysi
Cochachin Florecin Jhon Brandon
Cuadros Claro Marko Padilla Suazo Virginia
Ramirez Otto Alexander
Palomino Adiel Ramos de la Cruz Bryan Alexander
G1
Venero Lobatón Irving Vidal Chávez Esther

REFERENTE PARAMÉTRICO PUENTE ATYRAU

FICHA TÉCNICA

LUGAR:Astaná,Kazajistán.

ARQUITECTOS: NewMoon Arquitects AÑO: 2018 MEDIDAS:314mdelongitud 10.5mdeancho

FORMA

IMAGEN Y CARÁCTER

Diseñadodemaneraparamétrica,dosmilquinientostrozosde

fachada individuales de su caparazón crean un refugio del espacio público y dan una sensación de lugar. Es verdaderamenteunodelosdestinosturísticosdondealagente leencantareunirseytraerasusinvitadosdevisita.

Su forma de diseño y fachada se refieren al símbolo de la región de Atyrau, un endémico único: el esturión delCaspio.

SIMBOLISMO

TECNOLOGÍA

MATERIAL

Esqueleto de acero con capas especiales de fibras orgánicas y UPVC (policloruro devinilo)

MODELADO 3D PARAMÉTRICO: DYNAMO STUDIOS + REVIT

APA107B TALLER DE DISEÑO 5B 2022-2 L21 ANÁLISIS PARADIGMÁTICO CÁTEDRA ●Msc. Arq. Robinson Ortiz Agama ● Arq. Alexey Carrasco ●Arq. Carmen Cárdenas Flores ●Arq. Luis Morales
Arq. Juan Palacios Rojas
Msc. Arq. Jorge Zaldívar Suárez ALUMNOS Aguilar Aymachoque Rosario Aquise Luque Luz Deysi Cochachin Florecin Jhon Brandon Cuadros Claro Marko Padilla Suazo Virginia Pozada Ramirez Otto Alexander Quispe Palomino Adiel Ramos de la Cruz Bryan Alexander Venero Lobatón Irving Vidal Chávez Esther G1
FUNCIÓN
CONCEPTO evocarelsímbolodelazonaen unhito Flujo principal Accesos

SIMBOLISMO

CONCEPTO

evocarelfrutotípicodelazona:

FORMA

La mampostería en la fachada del viñedosevecomounagrancanasta llena de uvas. Al verla de cerca, los contrastes generan un efecto pictórico, mostrando una suavidad de textiles entre los materiales. El observador se sorprende al ver que esta superficie tan suave está realmente hecha de algo tan duro comoladrillos.

TECNOLOGÍA

Elproyectoeslaextensiónaunpequeño pero exitoso viñedo. Los productores de vino querían un nuevo edificio de servicios, con una gran sala de fermentación para el procesamiento de las uvas, una bodega enterrada para el almacenamiento de los barriles de vino y una terraza en el techo para las recepcionesydegustaciones.

La mampostería actuaría como un filtro de temperatura e iluminación, especial paralasaladefermentación.Losladrillos seacomodandemodoquelaluzdedía penetreatravésdelosmuros.

MATERIAL

La luz directa del sol es excluida porque podría arruinar el proceso de fermentación. Paneles de policarbonato se montaron alinteriorparaprotegerlodel viento. En el nivel superior, losladrillosformanbarandas paralaterrazaeneltecho.

APA107B TALLER DE DISEÑO 5B 2022-2 L22 ANÁLISIS PARADIGMÁTICO CÁTEDRA ●Msc. Arq. Robinson Ortiz Agama ● Arq. Alexey Carrasco ●Arq. Carmen Cárdenas Flores ●Arq. Luis Morales ●Arq. Juan Palacios Rojas ●Msc. Arq. Jorge Zaldívar Suárez ALUMNOS Aguilar Aymachoque Rosario Aquise Luque Luz Deysi Cochachin Florecin Jhon Brandon Cuadros Claro Marko Padilla Suazo Virginia Pozada Ramirez Otto Alexander Quispe Palomino Adiel Ramos de la Cruz Bryan Alexander Venero Lobatón Irving Vidal Chávez Esther G1 REFERENTE PARAMÉTRICO FACHADA BODEGA GANTENBEIN UBICACIÓN: Fläsch,Suiza ARQUITECTO: Gramazio& Kohler,Bearth& Deplazes Architekten AÑO: 2006
MODELADO 3D PARAMÉTRICO: RHINOCEROS 3D + GRASSHOPPER
DO MEJORAR LAMINA URGENTE,ALAPLANTILLA
uva EN UNA ANTÍTESIS LADRILLO (DURO) FRUTO SUAVE
APROBA

REFERENTE PARAMÉTRICO CENTRO DE INVESTIGACIÓN EN LA SELVA

IMAGEN Y CARÁCTER

FICHA TÉCNICA

PROYECTO: Centro deInvestigaciónen Amazonas

ARQUITECTO: EstudioArkiz

UBICACIÓN: Amazonas,Brasil

EstudioarkizesundespachooriginadoenSao Paulo donde compartieron su concepto para unnuevoproyectoenladensaselvaamazónica

El complejo consta de dos plataformas flotantes, cada una de las cuales puede albergar hasta 12 personas y laboratorios móviles para la investigación en el campo de la biología, la geología, la meteorología y la zoología. Estas estructuras también se pueden convertir en unidadesmédicasmóviles.

Se propone que la comunicación del transporte entre las plataformas se realice mediante catamaranes. Equipada con una vela y paneles solares, la embarcación de aluminio se puede utilizar durante aproximadamente una semana sin volver a cargar combustible.

CONTEXTO

ubicado en un entorno de particulares características,unecosistema dondesepuede desarrollarinvestigacionesespecializadas

ANÁLISIS PARADIGMÁTICO

DE FIBRA NATURAL

TECNOLOGÍA

Diseño Mecánico Parametrizado

Prototipo proyectado a incrementar el número de unidades móvilesconeltiempo

CÁTEDRA

APA107B TALLER DE DISEÑO 5B 2022-2 L23
Msc. Arq. Robinson Ortiz Agama
Arq. Alexey Carrasco
Arq. Carmen Cárdenas Flores
Morales
Arq. Luis
Arq. Juan Palacios Rojas
ALUMNOS Aguilar Aymachoque Rosario Aquise Luque Luz Deysi Cochachin Florecin Jhon Brandon Cuadros Claro Marko Padilla Suazo Virginia Pozada Ramirez Otto Alexander Quispe Palomino Adiel Ramos de la Cruz Bryan Alexander Venero Lobatón Irving Vidal Chávez Esther G1
Msc. Arq. Jorge Zaldívar Suárez
CUBIERTA
PLANTA
PLANTA BIODIGESTORA
ALA DE INVESTIGACIÓN
FOTOVOLTAICAS MUELLES ESTACIÓN NIVEL 1 ESTACIÓN NIVEL 2 ESTACIÓN NIVEL 3 ALA DE INVESTIGACIÓN 2 ALAS DE INVESTIGACIÓN 3 ALAS DE INVESTIGACIÓN ESTACIÓN NIVEL 4 ESTACIÓN NIVEL 5 4 ALAS DE INVESTIGACIÓN 5 ALAS DE INVESTIGACIÓN 12 UNIDADES DE INVESTIGACIÓN 9 UNIDADES DE INVESTIGACIÓN 18 CÁPSULAS DE LABORATORIO 3 UNIDADES DE INVESTIGACIÓN 6 UNIDADES DE INVESTIGACIÓN 16 UNIDADES DE INVESTIGACIÓN 90 CÁPSULAS DE LABORATORIO 36 CÁPSULAS DE LABORATORIO 54 CÁPSULAS DE LABORATORIO 72 CÁPSULAS DE LABORATORIO PANEL FRONTAL DE ACCESO CÁPSULAS DE LABORATORIO SIMBOLISMO formas y líneas curvas que simbolizan la sinuosidaddelaselvaamazónica FORMA, FUNCIÓN Y MATERIALIDAD APROBA DO MEJORAR LAMINA URGENTE,ALAPLANTILLA
COBERTURA GIRATORIA DE VIENTO
ESTRUCTURA METÁLICA MODULAR ESTACIÓN PRINCIPAL -
ALTA: VIVIENDAS
UNIDADES DE INVESTIGACIÓN ESTACIÓN PRINCIPAL - PLANTA BAJA: INSTALACIONES DE INVESTIGACIÓN
CUBIERTA DE CÉLULAS

LUGAR:Astaná,Kazajistán. ARQUITECTOS: NewMoon Arquitects AÑO: 2018

MEDIDAS 314mdelongitud 10.5mdeancho

hormigónsonlasmimbres ylafachadareflejalas formasdelafruta.

El volumen remite tipológicamente a una construcciónruralformada por un esqueleto de hormigónyunacubiertaa dos aguas revestida con placas onduladas de fibrocemento. lafachadadelviñedose vecomoungrancanasta llenodeuvas.Alverlade cerca, los contrastes generan un efecto pictórico,mostrandouna suavidadtextilesentrelos materiales.

MODELADO 3D PARAMÉTRICO: RHINOCEROS 3D + GRASSHOPPER

Suformade diseño y fachada se refieren al símbolodela región de Atyrau.

Estereferentenossirveparaver que las modulaciones paramétricas se pueden apreciar desde cosas pequeñas nosoloequipamientosgrandes quenosayudaránenelcarácter de los posibles proyectos así comoverladiferenciaentrelos tipos de estructuras paramétricas

Estereferentenossirveparaver que las estructuras paramétricas no solo se muestran en equipamientos si no también en puentes o coberturas que nos ayudan a conectar los flujos que necesitan ser solucionados, estas soluciones nos apoyan a darle carácter mediante conceptos y materialidad que puede ser autóctona o conocidadelazonaatrabajar.

Funciona con la cooperación de dos componentes, las unidades de investigaciónmóvilesylasestaciones deacoplamiento

El diseño paramétrico le da un carácter versátil y sostenible en el tiempo

Gracias al diseño paramétrico se pueden lograr espacios únicos, que alcanzan proyectos versátiles como este centro, dondesetienelaposibilidad de ampliar la capacidad de sus dimensiones sin que esto signifique desvirtuar el conjunto original. De manera particular este complejoesitinerante,leda laposibilidaddecambiarde locación y no afectar el propósitodesusfunciones

REFERENTES
CONCLUSIÓN
PARAMÉTRICOS
FICHA TÉCNICA CONCEPTO FORMA Y SIMBOLISMO
Puente Atyrau Fachada BodegaViñedo Gantenbein
Fläsch, Suiza
Architekten
Centro de Investigación en la Selva
Centro deInvestigación enelríoAmazonas
Estudio Arkiz
Amazonas, Brasil formas y líneas curvas que simbolizan la sinuosidad de la selvaamazónica IMAGEN
COBERTURA GIRATORIA DE VIENTO MUELLES CUBIERTA DE FIBRA NATURAL ESTRUCTURA METÁLICA MODULAR ESTACIÓN PRINCIPAL - PLANTA ALTA: VIVIENDAS UNIDADES DE INVESTIGACIÓN ESTACIÓN PRINCIPAL - PLANTA BAJA: INSTALACIONES DE INVESTIGACIÓN ALA DE INVESTIGACIÓN CUBIERTA DE CÉLULAS FOTOVOLTAICAS
TECNOLOGÍA Y MATERIALIDAD
UBICACIÓN:
ARQUITECTO: Gramazio&Kohler, Bearth&Deplazes
AÑO: 2006
PROYECTO:
ARQUITECTO:
UBICACIÓN:
Y CARÁCTER
El esturión del Caspio
evocarelfrutotípicodela zona:uva
CONCLUCION POR VARIABLE, POR VARIABLES
1.4 ARTÍSTICO 1. CENTRO PARA LA CULTURA MUNDIAL REY ABDULAZIZ 2. COMPANIA DE SOSTENIBILIDAD Y GESTION AMBIENTAL : BEE´AH 3. Colegio DA HOP

REFERENTE ARTÍSTICO CENTRO PARA LA CULTURA MUNDIAL REY ABDULAZIZ

FICHA TÉCNICA

ARQUITECTO: Snøhetta UBICACIÓN: Damman,ArabiaSaudita AÑO: 2017

El proyecto presenta proporciones áureas, tanto por “bloque” como a nivel deconjunto

➢ VALORES PLÁSTICOS

CONCEPTO

Volúmenesqueseapilanyse entierranenlasuperficie

CARÁCTER

La forma singular del edificio representa un hito reconociblefácilmente

SÍMBOLO Y SIGNIFICADO

La cultura surge del pasado, y se eleva hacia el futuro.

Pasado y futuro conviven en el presente

CÁTEDRA

La cubierta está hecha de tubos de acero pulido doblados según la forma querequiera

PROPORCIÓN MATERIALIDAD Y TEXTURA LUZ RELACIÓN CON EL CONTEXTO

Debido al material reflectivo del material de recubrimiento, el edificio obtiene un aspectobrillante duranteeldía,durantela noche una cinta recorre el edificio y lo ilumina.

USUARIO

La ciudad de Dammam es un centro importante de transporte marítimo, petróleo, comercio e

Está hecho para promover el desarrollo cultural dentro del Reino, estará al servicio de la población local y se convertirá en un hito cultural a nivel regional, nacionalymundial

MEMORIA COLECTIVA

El entorno está hecho para evocarasombroy recordar la resistencia constante y el trabajo duro en condiciones severas en la pionera extraccióndepetróleo.

ANÁLISIS PARADIGMÁTICO

●Msc. Arq. Robinson Ortiz Agama

●Arq. Carmen Cárdenas Flores

●Arq. Juan Palacios Rojas

● Arq. Alexey Carrasco

●Arq. Luis Morales

●Msc. Arq. Jorge Zaldívar Suárez

ALUMNOS

Aguilar Aymachoque Rosario

Aquise Luque Luz Deysi

Cochachin Florecin Jhon Brandon

Cuadros Claro Marko

Padilla Suazo Virginia

Pozada Ramirez Otto Alexander

Quispe Palomino Adiel

Ramos de la Cruz Bryan Alexander

Venero Lobatón Irving

Vidal Chávez Esther

APA107B TALLER DE DISEÑO
L26
5B 2022-2
G1
➢ VALORES SEMIÓTICOS

FICHA TÉCNICA

➢ VALORES SEMIÓTICOS

CONCEPTO

Curvascóncavasyconvexasdanformaa la silueta del edificio, inspiradas en las dunasdeldesierto

: BEE´AH

➢ VALORES PLÁSTICOS

PROPORCIÓN

Existe una proporción áurea entre “dunas”, tanto en dónde comienzan y terminan como dondeseinterponen

MATERIALIDAD Y TEXTURA

Losmaterialessonclarosporellolaestructura es de hormigón blanco y la textura se ve representadaporlaspanelesfotovoltaicos

El edificio posee un espectáculo de luces alimentado por energía renovable,dando vida a la arquitectura

LUZ

➢ VALORES CONTEXTUALES

RELACIÓN CON EL CONTEXTO

USUARIO SÍMBOLO Y SIGNIFICADO

El edificio transmite un entorno de protección del los recursos naturales creando un ecosistema integrado para el futuro

IMAGEN Y CARÁCTER

El carácter de la obra es ser un edificio completamente suministrado de energías renovables en un área de claro dominiodelpetróleo

El diseño comulga perfectamente con el paisaje y la cultura árabe y el proyectocuentacon unagranaceptación social.

La empresa Bee'ha, cumple el rol del usuario , además es pionera en el campo delasostenibilidad

HISTORIA

Despuésdecrecergraciasalpetróleo,elsectorfinancierode Emiratos se comprometió con el desarrollo sostenible por elloayudaránalasempresasconfinanciacionesverdespara desarrollarunanuevaeconomíabasadaenlasostenibilidad ycomprometidaconelobjetivodeemitirceroemisionesde carbono

ALUMNOS

Aguilar Aymachoque Rosario

ANÁLISIS PARADIGMÁTICO

●Msc. Arq. Robinson Ortiz Agama

●Arq. Carmen Cárdenas Flores

●Arq. Juan Palacios Rojas

● Arq. Alexey Carrasco

●Arq. Luis Morales

●Msc. Arq. Jorge Zaldívar Suárez

Aquise Luque Luz Deysi

Cochachin Florecin Jhon Brandon

Cuadros Claro Marko

Padilla Suazo Virginia

Pozada Ramirez Otto Alexander

Quispe Palomino Adiel

Ramos de la Cruz Bryan Alexander

Venero Lobatón Irving

Chávez

APA107B TALLER DE
5B
L27
DISEÑO
2022-2
Vidal
Esther G1 REFERENTE ARTÍSTICO COMPANIA DE SOSTENIBILIDAD Y GESTION AMBIENTAL

REFERENTE ARTÍSTICO ESCUELA DE PRIMARIA DA HOP

FICHA TÉCNICA

ARQUITECTO: 1+1>2 arquitectos

UBICACIÓN: Hoabihn,Vietnam

AÑO: 2017

Se puede observar la variación de las dunas en diferentes proporciones, esto se da para generar movimiento en los

Tres bloques intercaladamente forman espacios exteriores e interioresdemaneradinámica

Serecogelamemoriacolectivaculturalyaque se abstrae los colores de su vestimenta tradicionalparalascubiertas

los quiebres de los techos son en referenciaalosjuegos tradicionales

El proyecto busca revalorar como unazonarecreativa lariberadelrío , por lo que se colocarán las losas campo

VALORES PLÁSTICOS

Dentro de sus valores plásticos se rescata el dinamismo en la forma y volumen ,y el contraste entre los materiales

VALOR SEMIÓTICO

El objeto arquitectónico demuestra una intención de diseño asociada al usuario y naturaleza del equipamiento

VALORES CONTEXTUALES

Es el aspecto más valorado , ya que relaciona la imagen del proyecto con la identificación de aspectos culturales

Padilla Suazo Virginia
DISEÑO

CENTRO PARA LA CULTURA MUNDIAL REY ABDULAZIZ

ARQUITECTO: Snøhetta UBICACIÓN: Damman, Arabia Saudita AÑO: 2017

Elconceptosebasaen bloquesapiladosque conformanunasola unidad

La forma singular del edificio representa un hito reconocible fácilmente a nivel localymundial

La cultura surge del pasado, y se eleva hacia el futuro. Asimismo tanto pasado como futuroconvivenenelpresente

El proyecto presenta proporcionesáureas

La textura se compone por tubos de acero pulido doblados según laformaquerequiera

Funciona como hito para la ciudad, además que gracias a la materialidad esté resaltar tanto de día comodenoche

Tiene una agradable proporcionalidad, basado enlaproporciónáurea

COMPANIA DE SOSTENIBILID AD Y GESTIÓN

AMBIENTAL : BEE´AH

ARQUITECTO: Zaha Hadid Architects UBICACIÓN: Dubai, EAU AÑO: 2022

Curvascóncavasy convexasdanformaala siluetadeledificio, inspiradasenlasdunas

Elcarácterdelaobraes ser un edificio completamente suministrado de energías renovables en un área de claro dominiodelpetróleo

Proteje

Existe una proporción áureaentre“dunas”,tanto en dónde comienzan y terminan como donde se interponen

La textura se ve representada por los panelesfotovoltaicosen lasuperficiedeltecho

El proyecto se mimetiza en el paisaje y es amigableconelentorno

Daunfuertemensajepor su ubicación paradójica en un lugar que comulga conlocontrario

Tiene una agradable proporcionalidad

ARQUITECTOS: 1+1>2 arquitectos UBICACIÓN: ciudad de hoa binh, Vietnam AÑO 2019

AMISTAD

ARMONÍA

CULTURA

El concepto o idea principal es fortalecer la relación hombre naturaleza y cultura ,para crear un lugar acogedorestudiantil

CONCLUSIONES

Los proyectos están concebidas e ideadas por inspiración de acuerdo al uso y el contexto

El proyecto genera un dinamismo visual que al mismo tiempo afianza la relación de hombreconlaculturay lanaturaleza

El edificio genera un ambiente lleno de color y movimiento , esto es con la finalidad de representar y reintepretar el paisajeentremontañas

Se puede observar la variación de las dunas en diferentes proporciones, esto se da para generar movimiento en los volúmenes

Laformaydimensiones del proyecto lo hace un objeto reconocible y diferenciable en el barrio mayor claridad

El carácter hace que las obras representan un objetoúnicoymuyfácil de reconocer por su formayfunción

Pozada Ramirez Otto Alexander

Quispe Palomino Adiel

Ramos de la Cruz Bryan Alexander

Venero Lobatón Irving Vidal Chávez Esther

APA107B TALLER DE DISEÑO 5B 2022-2 L29
ANÁLISIS PARADIGMÁTICO
G1 REFERENTE ARTÍSTICO REFERENTES FICHA TÉCNICA MATERIALIDAD
CONCEPTO CARÁCTER SÍMBOLO
Y TEXTURA ESCUELA DE PRIMARIA DA HOP
PROPORCIÓN
CONCLUSIONES
Brota
Brota

En los 3 proyectos analizados, podemos observar que sus valores semióticos están estrechamente relacionados con la población y el tipo de edificio

En los 3 proyectos analizados,los valores plásticos se diferencian de acuerdo al tipo de materialidad , tipo de lenguaje y otros . Esto se debe a la diferencia de lugar , sin embargo en todos se toma como un punto de partida para generar sensaciones agradables

Los valores contextuales de los 3 proyectos refleja que fueron pensados en el tiempo y espacio correctos, de manera que no se ven como proyectos aterrizados al lugar

VALOR SEMIÓTICO

El objeto arquitectónico transmite un mensaje de atemporalidad, teniendo somo tema la cultura mundial

VALORES PLÁSTICOS

La forma del proyecto además de tener proporciones áureas, funciona como hito para la ciudad, además que gracias a la materialidad este resaltar tanto de día como de noche

VALORES CONTEXTUAL

La ubicación estratégica, convierte a la arquitectura no solo un hito local sino mubdial

VALOR SEMIÓTICO

El proyecto revalora la cultura tradicional y lo plasma en la ciudad

VALORES PLÁSTICOS

Las proporciones del proyecto otorgan un carácter moderno y poco convencional, que se adecua al entorno

VALORES CONTEXTUALES

El entorno montañoso, acerca la ciudad a la arquitectura por ende éste toma su forma

VALOR SEMIÓTICO

El objeto arquitectónico demuestra una intención de diseño asociada al usuario y naturaleza del equipamiento

VALORES PLÁSTICOS

Dentro de sus valores plásticos se rescata el dinamismo en la forma y volumen ,y el contraste entre los materiales

VALORES CONTEXTUALES

Es el aspecto más valorado , ya que relaciona la imagen del proyecto con la identificación de aspectos culturales

Se definirá un partido arquitectónico artístico , siguiendo los criterios de los 3 referentes artísticos analizados

APA107B TALLER DE DISEÑO 5B 2022-2 L30 ANÁLISIS PARADIGMÁTICO CÁTEDRA
Msc. Arq. Robinson Ortiz Agama
Arq. Carmen Cárdenas Flores
Arq. Juan Palacios Rojas
Ramirez Otto Alexander Quispe Palomino Adiel Ramos de la Cruz Bryan Alexander Venero Lobatón Irving Vidal Chávez Esther G1 REFERENTES ARTISTICOS CONCLUSIÓN REFERENTES VALORES SEMIOTICOS CENTRO PARA LA CULTURA MUNDIAL REY ABDULAZIZ Colegio DA HOP CENTRO DE INVESTIGACIÓN DISEÑO Y PRODUCCION YANGSAN SI VALORES PLASTICOS VALORES CONTEXTUAL CONCLUSIONES Y /O APORTES AL CITP
Pozada
AMISTAD ARMONÍA CULTURA
DO MEJORAR,AUMENTAR VARIABLES
APROBA
1.5 URBANO MORFOLOGICO 1. SOUTH DAGENHAM 2. CIUDAD DELDEPORTE EN VENTANILLA 3. RENOVACIÓN DELCENTRO HISTÓRICO DEAREQUIPA

FICHA TÉCNICA

Ciudad : Londres País : Inglaterra

Arquitectos: Maccreanor Lavignton Architects Año : 2003

UBICACIÓN

South Dagenham West está situado al oeste de la planta deproducciónFordy limita al sur y al norte por las carreteras A13 y A1306. La mayoríadeSouth DagenhamWestespropiedad de AXA. La planta de producciónFord,ubicada entre Checkers Lane y Kent Avenue,sigueactualmenteen funcionamiento.

CONTEXTO

South Dagenham está compuesto por un suburbio residencial y una franja

SOUTH DAGENHAM

DESCRIPCIÓN Y PROPUESTA

Lazonaestácompuestaporunatramaregularenlazonaindustrial,peroenlazonaresidencial,latramasevuelvemásorgánica. Lacarretera transversalatraviesalazonaresidencialypartealazonaindustrialhastallegaralríoTámesis

ElproyectodetransformacióndeSouthDagenhamWestdebebuscarunusomixto,viviendasycomercios,aplicandoensusdeterminacionesun diseño ambiental de calidad y un uso integral de materiales sostenibles. Propuesta de intensificación urbana. Sustitución de viviendas unifamiliaresporotrasmásdensasydeusomixto

VIVIENDAS ZONA INDUSTRIAL

APA107B TALLER DE DISEÑO 5B 2022-2 L32 ANÁLISIS PARADIGMÁTICO CÁTEDRA ●Msc. Arq. Robinson Ortiz Agama ● Arq. Alexey Carrasco ●Arq. Carmen Cárdenas Flores ●Arq. Luis Morales ●Arq. Juan Palacios Rojas ●Msc. Arq. Jorge Zaldívar Suárez ALUMNOS Aguilar Aymachoque Rosario Aquise Luque Luz Deysi Cochachin Florecin Jhon Brandon Cuadros Claro Marko Padilla Suazo Virginia Pozada Ramirez Otto Alexander Quispe Palomino Adiel Ramos de la Cruz Bryan Alexander Venero Lobatón Irving Vidal Chávez Esther G1 REFERENTE MORFOLÓGICO RELACIÓN CON ELCONTEXTO

REFERENTE MORFOLÓGICO

FICHA TÉCNICA

Ciudad : Callao, Lima País : Perú

Arquitectos: Arquitectos J. Bentín, A. Montagne y A. Ortiz de Zevallos Año : 1985

UBICACIÓN

Se ubica al norte de la Provincia Constitucional del Callao en el distrito de Ventanilla, a 2256 m.s.n.m. Se accede a través de la Avenida interurbana Nestor Gambeta. Que ahora es llamada Antonia Moreno Caseres.

RELACIÓN CON EL CONTEXTO

El proyecto, se adapta al contexto físico y cultural del entorno pues se observa como hay hundimientos en los retranqueos de los cerros, sin ubicarse en las laderas. Así mismo la existencia de varias canchas como puntos de encuentrohacefactiblelasociabilización.

CIUDAD DEL DEPORTE

CONCEPTO

El eje central de la propuesta contiene las áreas libres de recreación y deporte, además en el centro de él se ubica el centrocívicocultural

Son anillos que esta unidos con ejes dinámicos

TRAMA

Su respuesta con anillo octogonales que están ordenados de manera lineal y que el centro cambia la trama pues responde a otro equipamiento diferente a residencial. Esta forma además permite ser flexible en las faldas de los cerros.

Ejecentral,quecontieneáreas recreativasydeocioydeporte.Yenel centroseubicaelcentrocívicocultural

http://www.josebentinarquitectos.com/proyectos_2.php?id_ga=oJI=&id_sub=p5U=

Enestazonasecelebranprocesiones,parrilladas,ferias.Osealasdinámicassocialesdelosvecinos

El proyecto se propone una regeneración urbana a partir de una remodelación del espacio público, para esto es importantelaintegraciónvecinal

La ciudad del deporte, es una respuesta de urbanización en el Perú de los 80. Cuando el centro ya era extremadamente poblado y las zonas lejanas ya requerían ser urbanizadas. Respecto a la propuesta es sumamente interesante, pues es evidente la comprensión que si bien los autos son importante para una ciudad no pueden ser el centro

.Al realizar estas vías colectoras angulares, favorecen al peatón o se configura un mejor espacio urbano. Por otro lado, al colocar en cada centro de los anillos espacios recreativos y deportivos se logra una mejor conexión social entre los residentes.Yrespecto al equipamiento, colocarlo en el centro es una respuesta clara para abastecer a la urbanización. El principal problema que le veo es su mayor aporte pues en caso de emergencia, el acceso del camión de bomberos es complicado.

ALUMNOS

ANÁLISIS PARADIGMÁTICO

CÁTEDRA

●Msc. Arq. Robinson Ortiz Agama

●Arq. Carmen Cárdenas Flores

●Arq. Juan Palacios Rojas

● Arq. Alexey Carrasco

●Arq. Luis Morales

●Msc. Arq. Jorge Zaldívar Suárez

Aguilar Aymachoque Rosario

Aquise Luque Luz Deysi

Cochachin Florecin Jhon Brandon

Cuadros Claro Marko

Padilla Suazo Virginia

Pozada Ramirez Otto Alexander

Quispe Palomino Adiel

Ramos de la Cruz Bryan Alexander

Venero Lobatón Irving

Vidal Chávez Esther

TALLER DE DISEÑO 2022-2 L33
PlanNacionaldeViviendaFernandoBelaúndeTerry
Extraído de: Símbolo Urbano
Social.
VÍA ARTERIAL VÍA COLECTORA VÍA ZONAL
para la Cohesión
https://www.construccionyvivienda.com/2021/03/10/concurso-parque-del-deporte-simbolo-urbano-para-la-cohesion-social/
del
Ciudad
Deporte en Ventanilla Extraido de

REFERENTE URBANO MORFOLÓGICO:

RENOVACIÓN DEL CENTRO HISTÓRICO DE AREQUIPA

ElCentroHistóricodeArequipa,sehaidourbanizandoyrenovandoalpasardelosaños desdelaépocadondetodoerazonaagrícolayganadera,hastalacontemporánea.Aún así,nosehaperdidolazonaagrícolayganaderaquepresentaasusalrededores,yaque estomandoenpuestadevalorcomopatrimonioprincipalqueformapartedelahistoria.

En este aspecto se puede recalcar que la Cuenca del Río Chili, puede abastecer aún a zonasverdesymejoradasáreasagrícolasyganaderas,,asícomolohace elRíoChillónconrespectoalaszonasporcinasquesedesarrollanalrededoryala dePerros.

L34

País : Inglaterra Arquitectos: Maccreanor Lavignton Architects Año : 2003

Se observa un terreno llano, con un río ancho en una zona industrial

Se observa a toda la zona industrial cerco al río y a las viviendas más alejadas

VIVIENDAS

ZONA INDUSTRIAL RÍO

Mantiene una trama ortogonal regular en la zona residencial, sin embargo la trama industrial es más masiva

CLASIFICACIÓN DE VÍAS

Ciudad : Arequipa

País : Perú

Renovación urbana a lo largo de los años del Centro Histórico de Arequipa.

Sehanbuscadoejemplosen contextossimilares.Yde proyectosyaejecutados puesayudaráaverel impactoenmedianoplazo

Seconcluyequela comprensióndelterreno realmenteesimportante, puesalserproyectosdegran magnitudnopueden impactarsignificativamente alentorno.

Seveunazonificaciónclara enlostresproyectos,así mismo,queestonoes condicionantealusode suelo.Tambiénseobserva unapreocupaciónporlas áreasverdesenlos3.

EnelcasodelproyectoenArequipa, respondealatramacuadricularde sucontextohistórico.Mientrasque enelproyectodeLondreses ortogonalporCONPLETASAQUIy porúltimoenVentanillaesmás orgánicorespondiendoala topografía

Posee una vía longitudinal industrial u una vía transversal que conecta a las manzanas

Elreferentetienecierta similitudmorfológicavial respectoalazonade estudio,sinembargo algunasdelaspropuestas delreferentenosonviables enelterreno,comola densificacióndeviviendas, perosinsepuedecombinar usosylograrviviendastaller

Lostresreferentespresentanvías queatraviesanlazonaurbana, facilitandoelrecorrido.Lasvíasque secruzanpresentanjerarquíalo cualpermitelallegadadeusuarios quevienendelejos.

Alrealizarestasvías colectorasangulares, favorecenalpeatónose configuraunmejorespacio urbano.Porotrolado,al colocarencadacentrode losanillosespacios recreativosydeportivosse lograunamejorconexión socialentrelosresidentes.Y respectoalequipamiento, colocarloenelcentroesuna respuestaclarapara abasteceralaurbanización.

El gran cambio que se dio en el centro histórico de Arequipa, a lo largo del tiempo fue desde las campiñas. el agro y la pecuaria a una urbe organizada conservando las campiñas. Esta característica valiosa de recuperación de las campiñas y el agro favorecen mucho a su valor como patrimonio histórico, al igual que podría suceder en la zona de Pampa de Perros, y la zona pecuaria.

APA107B TALLER DE DISEÑO 5B 2022-2 L35 ANÁLISIS PARADIGMÁTICO CÁTEDRA
Msc. Arq. Robinson Ortiz Agama
Arq. Alexey Carrasco
Arq. Carmen Cárdenas Flores
Arq. Luis Morales
Arq. Juan Palacios Rojas
Msc. Arq. Jorge Zaldívar Suárez ALUMNOS Aguilar Aymachoque Rosario Aquise Luque Luz Deysi Cochachin Florecin Jhon Brandon Cuadros Claro Marko Padilla Suazo Virginia
Ramirez Otto Alexander
Palomino Adiel Ramos de la Cruz Bryan Alexander
Lobatón Irving Vidal Chávez Esther G1 REFERENTES FICHA TÉCNICA RESPUESTA TOPOGRÁFICA CONCLUSIONES South Dagenham Renovación del Centro Histórico de Arequipa USOS DE SUELO
Pozada
Quispe
Venero
TRAMA URBANA
VÍA ARTERIAL VÍA COLECTORA VÍA ZONAL
conclusiones
Ciudad : Londres
completas, no lo entendi

1.6 HITOS DEL SECTOR Y ALREDEDORES GENIUS LOCI

UN PARQUE OLVIDADO

Polvo y arena que eres ahora, ,Acaso no te acuerdas cuando naciste?... Entre verdes sueños y claras aguas, De bellas promesas de un futuro eterno y constante.

Hoy has dejado suspiros al viento, Como toda la calma perdida en tu centro. de tu rostro de arcilla parchado con madera y cemento. No queda historia ,sino sólo cuentos.

No me digas que el canto se ha vuelto lamento, Cuando los gallinazos alzan el vuelo y los perros ladran hambrientos. se construye ese futuro incierto donde se oyen los fuertes ecos

Tu río que está apagado por el paso del tiempo, Aún respira con verde de breve intento, Entre montañas de basura y resquebrajado pavimento, Aún anhela ser libre empujando sus escombros sedientos.

Dime qué tu gente no te ah olvidado!, que insiste con la semilla de surgir que hay en sus venas, Que trabaja de sol a sol bajo el calor extenuante , Yque ha convertido la basura ,en una moneda de oro muy bella .

Dime qué es difícil encontrar la alegría, Pero que lo intentas en esas aulas milagrosas.. Que recuperas la esperanza de vivir día tras día, Aunque te atormenten esas notas ruidosas.

Si supieras que irás aprendiendo Acrecer entre tanto ruido, Con el pasar de los inmensos camiones,y el zumbido de los gigantes de acero Hoy tendrías melódicos sueños de niño.

Confía en el aullido de la noche, Que reclama que sigas luchando , Aún sumergida entre la arena Como tesoro que aguarda ser descubierto ....

El Parque porcino de Ventanilla fue fundado el 6 de mayo de 1970 con la REFORMA AGRARIA del presidente JUAN VELASCO ALVARADO

Se encuentra en la margen derecha del Río Chillón que representa al menos el 10 por ciento del agua utilizada en la ciudad. Un río que nace en los Andes peruanos y fluye por más de cien kilómetros a través de Lima hasta el Océano Pacífico.El segundo río más importante de Lima es un nido de contaminación. El río Chillón ha servido durante años de desagüe natural alimentado por los desechos de urbanizaciones y viviendas cercanas a la ribera que no han dejado de crecer.

La central de energía termoeléctrica de ventanilla no solo es la central de mayor capacidad sino también la más moderna y eficiente del país. Además de marcar un hito como la primera central de ciclo combinado del Perú avenida chillon mas de 12 torres de alta tension.

La Institución Educativa 4021 Carrión del distrito de Ventanilla –Callao.cuenta con 830 alumnos entre inicial y primaria Institucion Educativa Inicial n° 170 Señor de los milagros cuenta con clases en turno Mañana, con unas 3 secciones y tiene un total aproximado de 49 alumnos

Cerca se ubica La Huaca Pampa de los Perros que forma parte del Complejo Arqueológico El Paraíso y presenta una antigüedad de 2000 a 1500 años antes de nuestra era. además de un anterior enlucido de color rosado.

Es considerable el número de gallinazos y perros ubicados en la zona ,siendo este último topónimo de la misma.

CÁTEDRA

ANÁLISIS PARADIGMÁTICO

APA107B TALLER DE DISEÑO 5B 2022-2 L37
Msc. Arq. Robinson Ortiz Agama
Arq. Alexey Carrasco
Arq. Carmen Cárdenas Flores
Arq. Luis Morales
Arq. Juan Palacios Rojas
ALUMNOS Aguilar Aymachoque Rosario Aquise Luque Luz Deysi Cochachin Florecin Jhon Brandon Cuadros Claro Marko Padilla Suazo Virginia
Ramirez Otto Alexander Quispe Palomino Adiel Ramos de la Cruz Bryan Alexander Venero Lobatón Irving Vidal Chávez Esther
Msc. Arq. Jorge Zaldívar Suárez
Pozada
G1
HITOS

MODO DE ENTENDER ELMUNDO

La sociedad de Caral tuvo una cosmovisión del mundo en armonía con la preservación del medio geográfico y sus recursos, así como, también, con el orden observado en el espacio sideral.Teniendo en cuenta esas dimensiones, el ser humano ubicó su verdadera condición, de ser parte de la naturaleza y del universo.

IDEOLOGÍA

Todas las acciones de la vida social, en la política, religión, economía, ciencia, etc., estaban relacionadas entre sí. Los líderes religiosos eran, a la vez, líderes políticos especializados en astronomía o medicina, entre otros campos.

Los señores eran los mediadores entre el grupo social que representaban, y el poder sobrenatural de los ancestros y dioses. La religión era el instrumento de gran efectividad para la cohesión pero también la coerción de la población; aseguraba el poder político, la jerarquía y el orden social. La sociedad participaba en las ceremonias calendarizadas por las autoridades y trabajaba para servir a sus dioses y a las autoridades, que los representaban ante ellos.

H

U N

O

Dios Viracicha o Wiracocha: También conocida como el Señor o Maestro de del Mundo, el primer Dios de la CulturaTiahuanaco, es el Dios creador supremo de todo el Universo y todo lo que contiene la naturaleza adoptando varias partes.

ANÁLISIS PARADIGMÁTICO

Festividad patronal en honoralaSantísimaVirgen de las Mercedes, esta celebración empieza en 1 desetiembreysedesarrolla alolargodelmes. Lascelebraciones sedanensumayorparteen la capilla Virgen de la Merced

CÁTEDRA

●Msc. Arq. Robinson Ortiz Agama

●Arq. Carmen Cárdenas Flores

●Arq. Juan Palacios Rojas

● Arq. Alexey Carrasco

●Arq. Luis Morales

●Msc. Arq. Jorge Zaldívar Suárez

APA107B TALLER DE DISEÑO 5B 2022-2 L38
Aymachoque
Luque Luz Deysi
Florecin Jhon Brandon
Claro Marko Padilla Suazo Virginia
Ramirez Otto Alexander
Cruz
Alexander
Irving
G1 GENIUS LOCI
Aguilar
Rosario Aquise
Cochachin
Cuadros
Pozada
Quispe Palomino Adiel Ramos de la
Bryan
Venero Lobatón
Vidal Chávez Esther
E L
2 1 2 1
INCA

2. MATRIZ DE CASUÍSTICA

3. PROGRAMA URBANO-ARQUIT ECTÓNICO

APA107B TALLER DE DISEÑO 5B 2022-2 L41 ANÁLISIS PARADIGMÁTICO CÁTEDRA ●Msc. Arq. Robinson Ortiz Agama ● Arq. Alexey Carrasco ●Arq. Carmen Cárdenas Flores ●Arq. Luis Morales ●Arq. Juan Palacios Rojas ●Msc. Arq. Jorge Zaldívar Suárez ALUMNOS Aguilar Aymachoque Rosario Aquise Luque Luz Deysi Cochachin Florecin Jhon Brandon Cuadros Claro Marko Padilla Suazo Virginia Pozada Ramirez Otto Alexander Quispe Palomino Adiel Ramos de la Cruz Bryan Alexander Venero Lobatón Irving Vidal Chávez Esther G1 PAQARI LLAQTA PROYECTO

PROGRAMAURBANO

SE EMPLEAUNAFORMULACIÓN DEACUPUNTURAURBANAPARA REGENERAR LAZONAEN FORMARADIALALPRINCIPALNODO (CRUCE DE LASAVENIDAS CHILLONYCENTRAL),ASI MISMO DIRECCIONAR LOS EJES DEACCIÓN EN DICHASAVENIDAS DEAFLUENTE COMERCIAL,AISLANDO LAS ZONAS RESIDENCIALES DE LAS ZONAS PRODUCTIVAS PARAOBTENER UN MEJOR CONFORT

SE DISTINGUEN CINCO TIPOS DE ZONAS EN ELÁREAA REGENERAR:

ZONAINDUSTRIAL

ZONARESIDENCIAL

ZONACOMERCIAL

ZONARECREACIONAL

ZONACULTURAL

CITEC—- PLANTADE PROCESAMIENTO

VIVIENDACOMERCIO VIVIENDAALMACEN

RESTAURANTS

TIENDAS TALLERES

RIBERA MALECÓN

HUACA-MUSEO

ELFLUJO DE USUARIOS SOBRE LAPARTE SUPERIOR DE LAAV.CHILLÓN SE DESPLAZADE MANERARADIAL,MIENTRAS QUE EN LAPARTE INFERIOR ESTETRÁNSITO ES DE MANERALINEALTRANSVERSAL

LOS EQUIPAMIENTOSACTUAN EN FORMADE RADIOS DE ACCIÓN,PARAESTO ES NECESARIOTENER UNADISTRIBUCIÓN EQUITATIVADE LOS MISMOS

PARADIGMÁTICO

●Arq. Carmen Cárdenas Flores

●Arq. Juan Palacios Rojas

●Arq. Luis Morales

●Msc. Arq. Jorge Zaldívar Suárez

Cochachin Florecin Jhon Brandon Cuadros Claro Marko Padilla Suazo Virginia

Ramos de la Cruz Bryan Alexander

Venero Lobatón Irving Vidal Chávez Esther

L43

ANÁLISIS PARADIGMÁTICO

●Msc. Arq. Robinson Ortiz Agama

●Arq. Carmen Cárdenas Flores

●Arq. Juan Palacios Rojas

● Arq. Alexey Carrasco

●Arq. Luis Morales

●Msc. Arq. Jorge Zaldívar Suárez

APA107B TALLER DE DISEÑO 5B 2022-2 L45
Aquise Luque Luz Deysi Cochachin Florecin Jhon Brandon Cuadros Claro Marko Padilla Suazo Virginia
G1
CITP
Quispe Palomino Adiel Ramos de la Cruz Bryan Alexander Venero Lobatón Irving Vidal Chávez Esther
PROGRAMA-
PAQUETES FUNCIONALES ADICIONALESYSU RELACIÓN CON ELENTORNO TOTAL: 2400 m2

●Msc. Arq. Robinson Ortiz Agama

●Arq. Carmen Cárdenas Flores

●Arq. Juan Palacios Rojas

● Arq. Alexey Carrasco

●Arq. Luis Morales

●Msc. Arq. Jorge Zaldívar Suárez

Quispe Palomino Adiel Ramos de la Cruz Bryan Alexander Venero Lobatón Irving Vidal Chávez Esther

APA107B TALLER DE DISEÑO 5B 2022-2 L46
ANÁLISIS PARADIGMÁTICO
Aquise Luque Luz Deysi Cochachin Florecin Jhon Brandon Cuadros Claro Marko Padilla Suazo Virginia
G1
CITP
PROGRAMA-
TOTAL:
CENTRO CULTURAL
PRODUCTIVA CARÁCTER PRODUCTIVO CARÁCTER EDUCATIVO CARÁCTER CULTURAL CAPACITACIÓN PRODUCTIVA TALLERES FERIAS MUSEO DE SITIO FALTADE CENTROS EDUCATIVOS
FALTA
PRODUCTIVA FALTA
PAQUETES FUNCIONALES ADICIONALESYSU RELACIÓN CON ELENTORNO
3600m2
EDUCATIVO DE INVESTIGACIÓN
FALTADE ESPACIOS DE INVESTIGACIÓN
DE ESPACIOS DE CAPACITACIÓN
DE ESPACIOS CULTURALES

almacen

ROSARIOY BRAYAN

TALLER DE DISEÑO 2022-2 ●Arq. Juan Palacios Rojas ●Msc. Arq. Jorge Zaldívar Suárez Cuadros Claro Marko Padilla Suazo Virginia Venero Lobatón Irving Vidal Chávez Esther PROGRAMAVIVIENDAS
100
sala / comedor cocina ss.hh Local Local sala / comedor cocina ss.hh Local Local
Vivienda comercio ➢ Vivienda-
ss.hh cocina sala / comedor taller ss.hh almacén dep dep
200

APA107B TALLER DE DISEÑO 5B 2022-2 L48 ANÁLISIS PARADIGMÁTICO CÁTEDRA
Msc. Arq. Robinson Ortiz Agama
Alexey Carrasco
● Arq.
Carmen
Flores
Luis Morales
●Arq.
Cárdenas
●Arq.
Arq. Juan Palacios Rojas
Jorge
Suárez
Rosario
Luz
●Msc. Arq.
Zaldívar
ALUMNOS Aguilar Aymachoque
Aquise Luque
Deysi Cochachin Florecin Jhon Brandon Cuadros Claro Marko Padilla Suazo Virginia
Pozada Ramirez Otto Alexander
Quispe Palomino Adiel Ramos de la Cruz Bryan Alexander
G1 PROGRAMAPLANTADE EMBUTIDOS PROGRAMA ARQUITECTÓNICO ● Camara(Recepción) ● TrozadoyCorte ● Curado ● Mezclayenfundado ● Oreo ● Escaldado ● Ahumado ● Enfriamiento ● Comercialización ● SaladeMáquinas ● Controldecalidad Administración ● SS.HH. ● Controldeproducción Depósito ● Caldera ● Almacén ● Playaestacionamiento ● Circulaciones 100 80 100 80 70 60 100 80 90 70 100 100 50 80 70 60 100 100 70 INSUMOS
Venero Lobatón Irving Vidal Chávez Esther

G1

SELECCIÓN DEL TERRENO

● Predominantementeplano.

● Alejado de zonas sujetas a erosión de cualquiertipo.

● Libredefallasgeológicas.

● Susceptibleainundaciones.

● Prescindir de terrenos: Arenosos, pantanosos, arcillosos, limosos, rellenossanitarios,antiguoslechosde ríos.

● Evitar terrenos con aguas subterráneas.

● FUNCIONES

PROGRAMA ARQUITECTÓNICO

● SALADEESPERAYUSOSMÚLTIPLES

● TÓPICODEPROCEDIMIENTOS

● CONSULTORIO x2

● ADMISIÓN(caja,archivoybotiquín)

● SERVICIOHIGIÉNICOPÚBLICO

● BOTADERO

● CUARTODEMÁQUINAS

● REPOSO

● SERVICIOSHIGIÉNICOSENREPOSO

● ALMACÉN

● 30%Circulación-MurosyAleros

TOTAL: 198.90 m2

FUNCIONES

PROMOCIÓN PREVENCIÓN RECUPERACIÓN REHABILITACIÓN

● PERSONAL MÍNIMO

ANÁLISIS PARADIGMÁTICO

PERSONALMÍNIMO MÉDICO GENERAL ENFERMERA OBSTETRIZ TÉCNICOSY/OAUXILIAR DE ENFERMERIA

CÁTEDRA

●Msc. Arq. Robinson Ortiz Agama

●Arq. Carmen Cárdenas Flores

●Arq. Juan Palacios Rojas

● Arq. Alexey Carrasco

●Arq. Luis Morales

●Msc. Arq. Jorge Zaldívar Suárez

ALUMNOS

Aguilar Aymachoque Rosario

Aquise Luque Luz Deysi

Cochachin Florecin Jhon Brandon

Cuadros Claro Marko

Padilla Suazo Virginia

Pozada Ramirez Otto Alexander

Quispe Palomino Adiel

Ramos de la Cruz Bryan Alexander

Venero Lobatón Irving

APA107B TALLER DE DISEÑO 5B
L49
2022-2
Vidal Chávez Esther PROGRAMA- ESTABLECIMIENTO DE SALUD TIPO I - 2
42.00 m2 24.00 m2 26.00 m2 8.00 m2 18.00 m2 2.50 m2 4.00 m2 14.00 m2 2.50 m2 12.00 m2 45.90 m2
APA107B DISEÑO ARQUITECTÓNICO 5B PRIMERA ETAPA:INVESTIGACIÓN PAMPA DE LOS PERROS GRUPO 1 Aguilar Aymachoque Rosario Aquise Luque Luz Deysi Cochachin Florecin Jhon Brandon Cuadros Claro Marko Padilla Suazo Virginia Pozada Ramirez Otto Alexander Quispe Palomino Adiel Ramos de la Cruz Bryan Alexander Venero Lobatón Irving Vidal Chávez Esther INTEGRANTES CÁTEDRA Msc. Arq. Robinson C. Ortiz Agama Arq. Carmen Florelí Cárdenas Flores Arq. Juan Luis Palacios Rojas Arq. Luis Enrique Morales Delgado Arq. Alexey Carrasco Escárcena VENTANILLA, CALLAO,PERÚ

PROGRAMA URBANO

ZONA AREA BRUTA

AMBIENTE

RECEPCIÓN 40 35 15 1

SALADE INTERPRETACIÓN 70 49 21 10

SALADE INVESTIGACIÓN 70 49 21 10

AUDITORIO 150 105 45 3

CAFETERÍA 70 49 21 1

SUM 150 105 45 2

MIRADOR 140 98 42 1

ADMINISTRACIÓN 110 77 33 1

SERVICIOS 70 49 21 2 ALMACENES 70 49 21 3

ESTACIONAMIENTO 70 49 21 3

TERRAZA 70 49 21 1

AREADE MAQUINAS 700 490 210 1

VESTIDORES 140 98 42 1

OFICINA 30 21 9 7

CAFETERÍA 150 105 45 1

MEDICINADELDEPORTE 80 56 24 1

AUDITORIO 400 280 120 1

ZONA AREABRUTA AMBIENTE ÁREA TOTAL ÁREA ÚTIL CIRCULACIÓNY MUROS CANTIDAD

ÁREADEACOPIO 300 210 90 1

CENTRO DE RECICLAJEY COMPOSTAJE 1500

ÁREADE COMPOSTAJE 200 140 60 3 ÁREADE SEGREGADO 300 210 90 1 ÁREADE RECICLADO 300 210 90 1

ADMINISTRACIÓN 300 210 90 1

ZONADE INVESTIGACIÓN 700 490 210 1

ZONADE CAPACITACIÓN 300 210 90 1

ZONADE PRODUCCIÓN 1120 784 336 1

CITE 3730

ZONACULTURAL 200 140 60 1

ZONARECREATIVA 600 420 180 1 COMERCIAL 200 140 60 1

ESTACIONAMIENTO 310 217 93 1

ZONAHÚMEDA 500 350 150 1

ZONASEMI-HÚMEDA 500 350 150 1

MERCADO 1677

ZONASECA 170 119 51 1 SERVICIOS GENERALES 80 56 24 1

CENTRO DEPORTIVO 2580

DUCHAS 140 98 42 1 BAÑOS 80 56 24 1

PISCINA 300 210 90 1

ADMINISTRACIÓN 30 21 9 1

SERVICIOS 70 49 21 1

SKATEPARK 140 98 42 2

TEMPLO 600 420 180 1

CENTRO CÍVICO 1800

COMISARIA 600 420 180 1

ADMINISTRACIÓN 600 420 180 1

G1

PAMPA DE LOS PERROS DIAGNÓSTICO

PLANTADE PROCESAMIENT OY CONSERVACIÓN DE LACARNE DE CERDO

ZONA COMPLEMENTARIA 210 147 63 1 ESTACIONAMIENTO 217 147 70 1

ACOPIO 154 84 70 1

MATADERO 154 84 70 1 PRODUCCIÓN 219 149 70 1

1184

ZONADE EVAPORACIÓN 219 149 70 1

ZONADE CONGELACIÓN 219 149 70 1

ZONADE EMPAQUE 219 149 70 1

ALUMNOS

CÁTEDRA

●Msc. Arq. Robinson Ortiz Agama

●Arq. Carmen Cárdenas Flores

●Arq. Juan Palacios Rojas

● Arq. Alexey Carrasco

●Arq. Luis Morales

●Msc. Arq. Jorge Zaldívar Suárez

Aguilar Aymachoque Rosario

Aquise Luque Luz Deysi

Cochachin Florecin Jhon Brandon

Cuadros Claro Marko

Padilla Suazo Virginia

Pozada Ramirez Otto Alexander

Quispe Palomino Adiel

Ramos de la Cruz Bryan Alexander

Venero Lobatón Irving

Vidal Chávez Esther

APA107B TALLER
L2
DE DISEÑO 5B 2022-2
ÁREA
ÁREATOTAL15611M2 ÁREA ÚTIL CIRCULACIÓN
TOTAL
Y MUROS CANTIDAD
CENTRO DE INTERPRETACIÓN CULTURAL 3140

● Arq. Alexey Carrasco

APA107B TALLER DE DISEÑO 5B 2022-2 L3
PAMPA DE LOS PERROS DIAGNÓSTICO
Msc. Arq. Robinson Ortiz Agama
Arq. Carmen Cárdenas Flores
●Arq. Luis Morales
Arq. Juan Palacios Rojas
Cochachin
Padilla
Msc. Arq. Jorge Zaldívar Suárez Aquise Luque Luz Deysi
Florecin Jhon Brandon Cuadros Claro Marko
Suazo Virginia
G1 PROGRAMADEL EQUIPAMIENTO - CITE
Quispe Palomino Adiel Ramos de la Cruz Bryan Alexander Venero Lobatón Irving Vidal Chávez Esther
PAQUETES FUNCIONALES ADICIONALESYSU RELACIÓN CON ELENTORNO TOTAL: 3730m2
APA107B TALLER DE DISEÑO 5B 2022-2 L4 PAMPA DE LOS PERROS DIAGNÓSTICO CÁTEDRA ●Msc. Arq. Robinson Ortiz Agama ● Arq. Alexey Carrasco
Arq. Carmen Cárdenas Flores ●Arq. Luis Morales
Arq. Juan Palacios Rojas ●Msc. Arq. Jorge Zaldívar Suárez ALUMNOS Aguilar Aymachoque Rosario Aquise Luque Luz Deysi Cochachin Florecin Jhon Brandon Cuadros Claro Marko Padilla Suazo Virginia Pozada Ramirez Otto Alexander Quispe Palomino Adiel Ramos de la Cruz Bryan Alexander Venero Lobatón Irving Vidal Chávez Esther G1 PROPUESTA URBANA 02 ppi CICG CRYC CITC COL CC-BI BLIO CM ADMI NIS

Cumbre 7

Cumbre 4

CONCEPTO

Cumbre 1

CERRO CULEBRA CERRO X

Cumbre 3

PAMPA DE LOS PERROS DIAGNÓSTICO

Cumbre 6

Cumbre 2

El concepto de la morfología urbana que se propone a continuación, está inspirada con la orientaci{on de las partes más altas de los cerros de modo que la traza urbana se orienta bajo una línea imaginaria )belleza) que une los 3 cerros más importantes, tal como lo hicieron las culturas prehispánicas orientando sus emplazamientos en dirección al sol solsticio de verano. CERRO PARAISO

ALUMNOS

CÁTEDRA

●Msc. Arq. Robinson Ortiz Agama

●Arq. Carmen Cárdenas Flores

●Arq. Juan Palacios Rojas

● Arq. Alexey Carrasco

●Arq. Luis Morales

●Msc. Arq. Jorge Zaldívar Suárez

Aguilar Aymachoque Rosario

Aquise Luque Luz Deysi

Cochachin Florecin Jhon Brandon

Cuadros Claro Marko

Padilla Suazo Virginia

Pozada Ramirez Otto Alexander

Quispe Palomino Adiel

Ramos de la Cruz Bryan Alexander

Venero Lobatón Irving

Vidal Chávez Esther

APA107B TALLER DE
5B
L5
DISEÑO
2022-2
CONCEPTO
G1
Cumbre 8

Área No Urbanizable Ubicada En La Faja Margina

Clasificación de uso de suelos

Es un área normativa definida como intangible por ser parte de la faja marginal de ambos ríos Chillón y Rímac, esta categoría en definida por la Autoridad Nacional delAgua –ANA

Parque Fluvial Chillón

La propuesta busca una regeneración paisajística sobre la faja marginal y creación de parque fluvial innundable, que colinda con las áreas arqueológicas y urbanas de la zona de Pampas de los Perros, generando espacios para un recorrido patrimonial y ecológico de escala metropolitana y la protección de los habitantes ante la crecida de los ríos.

APA107B TALLER DE DISEÑO 5B 2022-2 L6
PAMPA DE LOS PERROS DIAGNÓSTICO CÁTEDRA
Msc.
Arq. Robinson Ortiz Agama
● Arq. Alexey Carrasco
●Arq. Carmen Cárdenas Flores
Morales
●Arq. Luis
Arq. Juan Palacios Rojas
Suárez ALUMNOS Aguilar Aymachoque Rosario Aquise Luque Luz Deysi Cochachin Florecin Jhon Brandon Cuadros Claro Marko Padilla Suazo Virginia Pozada Ramirez Otto Alexander Quispe Palomino Adiel Ramos de la Cruz Bryan Alexander Venero Lobatón Irving Vidal Chávez Esther
RIESGOS Y DESASTRES
●Msc. Arq. Jorge Zaldívar
G1

APA107B TALLER DE DISEÑO 5B 2022-2 L7 PAMPA DE LOS PERROS DIAGNÓSTICO CÁTEDRA
Msc. Arq. Robinson Ortiz Agama
Arq. Alexey Carrasco
Arq. Carmen Cárdenas Flores
Arq. Luis Morales
Arq. Juan Palacios Rojas
Msc. Arq. Jorge Zaldívar Suárez ALUMNOS Aguilar Aymachoque Rosario Aquise Luque Luz Deysi Cochachin Florecin Jhon Brandon Cuadros Claro Marko Padilla Suazo Virginia Pozada Ramirez Otto Alexander Quispe Palomino Adiel Ramos de la Cruz Bryan Alexander Venero Lobatón Irving Vidal Chávez Esther G1 CORTE C C 150m 150m

PROPUESTA URBANÍSTICA

La morfología de Pakari

Llacta atiende las necesidades humanas permitiendo la relación con el paisaje que lo rodea, por ello se plantean ejes que se orientan hacia sus colinas. La vía principal se convierte en una alameda comercial a la que llegan la mayoría de calles y en donde se genera el comercio principalmente gastronómico a través de sus nodos. Y para atender las necesidades del transporte se trazan dos calles laterales para el transporte pesado y público. Se respeta la faja marginal del río y se crea el malecón asociado a las actividades recreativas y deportivas.

Además para una mejor comprensión y el recorrido del espacio se genera una red de ciclovías que conectan los lugares más importantes.

Área gubernamental.

CITE.

Alameda peatonal.

Vías de tránsito pesado y público.

Anillo de vivienda comercial. Viviendas corral.

Malecón.

Centro

Vías de tránsito pesado y tranporte público.

TALLER DE DISEÑO 2022-2 ●Arq.
Cuadros
Padilla
Venero
Irving Vidal Chávez Esther
Juan Palacios Rojas ●Msc. Arq. Jorge Zaldívar Suárez
Claro Marko
Suazo Virginia
Lobatón
Ciclovía
Centro deportivo
cultural.
Planta de procesamiento y conservación de carne de cerdo
Mercado.
Planta de compostaje y reciclaje.
APA107B TALLER DE DISEÑO 5B 2022-2 L9 PAMPA DE LOS PERROS DIAGNÓSTICO CÁTEDRA
Msc. Arq. Robinson Ortiz Agama
Arq. Alexey Carrasco
Arq. Carmen Cárdenas Flores
Arq. Luis Morales
Arq. Juan Palacios Rojas
Msc. Arq. Jorge Zaldívar Suárez ALUMNOS Aguilar Aymachoque Rosario Aquise Luque Luz Deysi Cochachin Florecin Jhon Brandon Cuadros Claro Marko Padilla Suazo Virginia Pozada Ramirez Otto Alexander Quispe Palomino Adiel Ramos de la Cruz Bryan Alexander Venero Lobatón Irving Vidal Chávez Esther G1 VIVIENDACORRAL VIVIENDATALLER
COMERCIO
VIVIENDA

ALUMNOS

Parte de lla propuesta urbana, es reubicar las torresdealtatensiónen Pakari Llacta, dado que éstas irrumpen con el paisaje urbano y generan problemas de contaminación acústica debidoalgranvoltaje.

CÁTEDRA

●Msc. Arq. Robinson Ortiz Agama

●Arq. Carmen Cárdenas Flores

●Arq. Juan Palacios Rojas

● Arq. Alexey Carrasco

●Arq. Luis Morales

●Msc. Arq. Jorge Zaldívar Suárez

Aguilar Aymachoque Rosario

Aquise Luque Luz Deysi

Cochachin Florecin Jhon Brandon

Cuadros Claro Marko Padilla Suazo Virginia

APA107B TALLER DE DISEÑO 5B
2022-2
PAMPA DE LOS PERROS DIAGNÓSTICO
G1 REDES ELÉCTRICAS Y TELECOMUNICACIONES 0 400 800 ESCALAGRÁFICA CENTRO
ARQUEOLÓGICO CENTRAL ELÉCTRICA
TALLER DE DISEÑO 2022-2 ●Arq. Juan Palacios Rojas ●Msc. Arq. Jorge Zaldívar Suárez Cuadros Claro Marko Padilla Suazo Virginia Venero Lobatón Irving Vidal Chávez Esther ZONA ARQUEOLÓGICA VIVIENDA CORRAL VIVIENDA DENSIDAD MEDIA VIVIENDA COMERCIO EQUIPAMIENTO VIVIENDA DENSIDAD BAJA VIVIENDA ALMACEN USO DE SUELOS

G1

PAMPA DE LOS PERROS DIAGNÓSTICO

CÁTEDRA

●Msc. Arq. Robinson Ortiz Agama

●Arq. Carmen Cárdenas Flores

●Arq. Juan Palacios Rojas

1PISO

● Arq. Alexey Carrasco

●Arq. Luis Morales

●Msc. Arq. Jorge Zaldívar Suárez

ALUMNOS

Aguilar Aymachoque Rosario

Aquise Luque Luz Deysi

Cochachin Florecin Jhon Brandon

Cuadros Claro Marko

Padilla Suazo Virginia

Pozada Ramirez Otto Alexander

Quispe Palomino Adiel

Ramos de la Cruz Bryan Alexander

Venero Lobatón Irving

APA107B TALLER
L12
DE DISEÑO 5B 2022-2
2
Vidal Chávez Esther 3PISO
PISO

PAMPA DE LOS PERROS DIAGNÓSTICO

El circuito turístico está proyectado para dar a conocer las bondades del sector, como lo son la cultura, el paisaje, equipamientos y la futura gastronomía, todo ello conectado mediante una red peatonal y de ciclovías que conectan los lugares más interesantes. Con ello se pretende potenciar la cultura, el paisaje y la producción propias del lugar, para así también tener nuevas fuentes de ingreso económico, que hagan sostenible el lugar.

Plaza central Circuito de huacas Planta de compostaje Mirador Planta eléctrica Recorrido CITE Centro gastronómico Mirador principal Planta de procesamiento Malecón.

CÁTEDRA

●Msc. Arq. Robinson Ortiz Agama

●Arq. Carmen Cárdenas Flores

●Arq. Juan Palacios Rojas

● Arq. Alexey Carrasco

●Arq. Luis Morales

●Msc. Arq. Jorge Zaldívar Suárez

ALUMNOS

Aguilar Aymachoque Rosario

Aquise Luque Luz Deysi

Cochachin Florecin Jhon Brandon

Cuadros Claro Marko

Padilla Suazo Virginia

Pozada Ramirez Otto Alexander

Quispe Palomino Adiel

Ramos de la Cruz Bryan Alexander

Venero Lobatón Irving

Vidal Chávez Esther

APA107B TALLER DE
5B
L13
DISEÑO
2022-2
CIRCUITO TURÍSTICO - CICLOVÍA
G1
TALLER DE DISEÑO 2022-2 L14 Msc. Arq. Robinson Ortiz Agama Arq. Carmen Cárdenas Flores ●Arq. Juan Palacios Rojas Cuadros Claro Marko Padilla Suazo Virginia Pozada Ramirez Otto Alexander Quispe Palomino Adiel Ramos de la Cruz Bryan Alexander Venero Lobatón Irving Vidal Chávez Esther Pendiente 7% Puente río Chillón Faja Marginal Huaca Vivienda Plaza cívica Vivienda comercio Vivienda comercio Parque Porcino Plaza Plaza Alameda central y viviendas comercio NODO 1 NODO 2 NODO 3 NODO 1 NODO 2 NODO 3 PLAZACÍVICA VIVIENDAS VIVIENDAS COMERCIO INGRESOAPARQUE PORCINO VÍA ALAMEDA CENTRAL
TALLER DE DISEÑO 5B 2022-2 L15 DIAGNÓSTICO ●Arq. Carmen Cárdenas Flores ●Arq. Luis Morales ●Arq. Juan Palacios Rojas ●Msc. Arq. Jorge Zaldívar Suárez Cuadros Claro Marko Padilla Suazo Virginia Venero Lobatón Irving Vidal Chávez Esther MALECON RIO CHILLON SECTOR CULTURAL SECTOR RECREATIVO DEPORTIVO SECTOR ECOLÓGICA FRANJA MARGINAL HUACA CULEBRAS HUACADEPAMPA LOS PERROS HUACA E. CULTURAL E.DEPORTIVO Est. EQUIPAMIENTOS PLAZAS CIRCULACIÓN ÁREAVERDE RIBERADELRÍO RÍO
APA107B TALLER DE DISEÑO 5B 2022-2 L16 PAMPA DE LOS PERROS DIAGNÓSTICO CÁTEDRA
Msc. Arq. Robinson Ortiz Agama
Arq. Alexey Carrasco
Arq. Carmen Cárdenas Flores
Arq. Luis Morales
Arq. Juan Palacios Rojas
Msc. Arq. Jorge Zaldívar Suárez ALUMNOS Aguilar Aymachoque Rosario Aquise Luque Luz Deysi Cochachin Florecin Jhon Brandon Cuadros Claro Marko Padilla Suazo Virginia Pozada Ramirez Otto Alexander Quispe Palomino Adiel Ramos de la Cruz Bryan Alexander Venero Lobatón Irving Vidal Chávez Esther G1 MORFOGÉNESIS DE LA PROPUESTA 03

PAMPA DE LOS PERROS DIAGNÓSTICO

CÁTEDRA

●Msc. Arq. Robinson Ortiz Agama

●Arq. Carmen Cárdenas Flores

●Arq. Juan Palacios Rojas

● Arq. Alexey Carrasco

●Arq. Luis Morales

●Msc. Arq. Jorge Zaldívar Suárez

ALUMNOS

Aguilar Aymachoque Rosario

Aquise Luque Luz Deysi

Cochachin Florecin Jhon Brandon

Cuadros Claro Marko

Padilla Suazo Virginia

Pozada Ramirez Otto Alexander

Quispe Palomino Adiel

Ramos de la Cruz Bryan Alexander

Venero Lobatón Irving

Vidal Chávez Esther

APA107B TALLER DE
L17
DISEÑO 5B 2022-2
G1 APUNTES

APA107B TALLER DE DISEÑO 5B 2022-2 L18 PAMPA DE LOS PERROS DIAGNÓSTICO CÁTEDRA
Msc. Arq. Robinson Ortiz Agama
Arq. Alexey Carrasco
Arq. Carmen Cárdenas Flores
Arq. Luis Morales
Arq. Juan Palacios Rojas
Msc. Arq. Jorge Zaldívar Suárez ALUMNOS Aguilar Aymachoque Rosario Aquise Luque Luz Deysi Cochachin Florecin Jhon Brandon Cuadros Claro Marko Padilla Suazo Virginia
Ramirez Otto Alexander Quispe Palomino Adiel Ramos de la Cruz Bryan Alexander Venero Lobatón Irving Vidal Chávez Esther G1 MAQUETA VIRTUAL 04
Pozada

Pozada

Quispe

APA107B TALLER DE DISEÑO 5B 2022-2 L19 PAMPA DE LOS PERROS DIAGNÓSTICO
CÁTEDRA
Msc. Arq. Robinson Ortiz Agama
Arq. Alexey Carrasco
Flores
Arq. Carmen Cárdenas
Morales
Arq. Luis
Arq. Juan Palacios Rojas
Msc. Arq. Jorge Zaldívar Suárez ALUMNOS
Aguilar Aymachoque Rosario
Aquise Luque Luz Deysi
Cochachin Florecin Jhon Brandon
Cuadros Claro Marko Padilla Suazo Virginia
Ramirez Otto Alexander
Palomino Adiel Ramos de la Cruz Bryan Alexander
Venero Lobatón Irving
G1 MAQUETAFÍSICA 05
Vidal Chávez Esther

VENTANILLA, CALLAO,PERÚ

APA107B

DISEÑO

ARQUITECTÓNICO 5B PRIMERA

ETAPA:INVESTIGACIÓN

PAMPA DE LOS PERROS GRUPO 1

CÁTEDRA

Msc. Arq. Robinson C. Ortiz Agama

Arq. Carmen Florelí Cárdenas Flores Arq. Juan Luis Palacios Rojas Arq. Luis Enrique Morales Delgado Arq. Alexey Carrasco Escárcena

INTEGRANTES

Aguilar Aymachoque Rosario Aquise Luque Luz Deysi Cochachin Florecin Jhon Brandon Cuadros Claro Marko Padilla Suazo Virginia

Pozada Ramirez Otto Alexander Quispe Palomino Adiel Ramos de la Cruz Bryan Alexander Venero Lobatón Irving Vidal Chávez Esther

A. APROXIMACIÓN

URBANÍSTICA

1. COMPOSICIÓN GENIUS LOCI

2.4 Imagen Objetivo

2.4.1 Vistas aéreas 2.4.2 Vistas peatonales Localizacion y ubicacion

2. PLAN MAESTRO ( esc. 1/5000 )

2.1. Existente - Mapa de riesgos y desastres

2.2. Propuesta

2.2.1. Localizacion y ubicacion 2.2.2. Concepción urbana 2.2.3. Programa urbano 2.2.4. Vialidad y flujos

2.2.5. Planimetría (esc. 1 / 5000) 2.2.6. cortes, secciones y axonometrías, 2.2.7. Zonificación 2.2.8. Usos de suelos 2.2.9. Alturas de edificaciones 2.2.10. Desarrollo de áreas 2.2.10.1. Residencial 2.2.10.2. Comercial 2.2.10.3. Equipamiento urbano 2.2.10.4. Recorrido turistico 2.2.10.5. Redes eléctricas y de telecomunicaciones 2.2.10.6. Espacios públicos 2.2.10.6.1. Parques 2.2.10.6.2. Alamedas 2.2.10.6.3. Malecón 2.2.10.6.4. Vivero

2.3. Plot Plan

2.3.1. Plano de conjunto 1/1500

2.3.2. Definición de Morfologia urbana

G1

PAMPA DE LOS PERROS DIAGNÓSTICO

CÁTEDRA

●Msc. Arq. Robinson Ortiz Agama

●Arq. Carmen Cárdenas Flores

●Arq. Juan Palacios Rojas

3. MAQUETA (esc 1 / 1500)

3.1 Maqueta virtual

3.2 Maqueta física

B. APROXIMACIÓN ARQUITECTÓNICA

1.1 Concepción arquitectónica

1.2 Programa arquitectónico

1.3 Definición de terreno 1.4 Imagen Objetivo

1.4.1 VIstas aéreas 1.4.2 Vistas Peatonales

C. VIDEO (15’ ) D. ARCHIVO ISSUU ACUMULADO

● Arq. Alexey Carrasco

●Arq. Luis Morales

●Msc. Arq. Jorge Zaldívar Suárez

ALUMNOS

Aguilar Aymachoque Rosario

Aquise Luque Luz Deysi

Cochachin Florecin Jhon Brandon

Cuadros Claro Marko

Padilla Suazo Virginia

Pozada Ramirez Otto Alexander

Quispe Palomino Adiel

Ramos de la Cruz Bryan Alexander

Venero Lobatón Irving

APA107B TALLER DE
L2
DISEÑO 5B 2022-2
Vidal Chávez Esther I N D I C E
APA107B TALLER DE DISEÑO 5B 2022-2 L3 PAMPA DE LOS PERROS DIAGNÓSTICO CÁTEDRA ●Msc. Arq. Robinson Ortiz Agama ● Arq. Alexey Carrasco ●Arq. Carmen Cárdenas Flores ●Arq. Luis Morales ●Arq. Juan Palacios Rojas ●Msc. Arq. Jorge Zaldívar Suárez ALUMNOS Aguilar Aymachoque Rosario Aquise Luque Luz Deysi Cochachin Florecin Jhon Brandon Cuadros Claro Marko Padilla Suazo Virginia Pozada Ramirez Otto Alexander Quispe Palomino Adiel Ramos de la Cruz Bryan Alexander Venero Lobatón Irving Vidal Chávez Esther G1 APROXIMACIÓN URBANÍSTICA A
2022-2 L4 DIAGNÓSTICO ●Arq. Carmen Cárdenas Flores ●Arq. Luis Morales ●Arq. Juan Palacios Rojas ●Msc. Arq. Jorge Zaldívar Suárez Cochachin Florecin Jhon Brandon Cuadros Claro Marko Padilla Suazo Virginia Ramos de la Cruz Bryan Alexander Venero Lobatón Irving Vidal Chávez Esther 01 LOCALIZACIÓN Y UBICACIÓN PLAN MAESTRO 0 100 200 600 m. PAIS: PERÚ DEPARTAMENTO: LIMA DISTRITO: VENTANILLA (CALLAO) Av.Chillón Av.
Central El área se encuentra en el distrito de Ventanilla, que pertenece a la provincia constitucional del Callao, en la intersección delasavenidasChillónyCentralubicadasen lariberadelRíoChillón
Alameda

PAQARIQ LLACTA

Del pie al piso,del piso al paso , Y entre paso y paso lo tuyo con lo mío. De tu puerta a la calle, de tu calle a mi puerta, y entre puerta y puerta Acaso no se le escucha a la vecina que comenta?

¡Qué rico plato! un plato para tu boca y entre tu boca y mi boca lo nuestro se complementa…

Que nos vieron por el río,entre el río y el malecón, entre el malecón y la avenida ,que entre ida y venida yo cantaba y tú reías, Así entonaba mi canto,mientras los demás creaban cuento, que nos había visto juntos por el parque , el parque que está al frente del sargento, Yo no les hago caso querida,siempre digo que salgo del trabajo , no es por afán ni por relajo, pero me gusta ir a pie por la avenida.

Quítele cuidado a lo que digan y vamos este fin de semana a la campiña de paso aproveche en llevar a su hermana , o quizás ir con toda su familia.

Yo le pido la mano para casarnos si usted esta convencida, En la iglesia donde iba usted de niña , que ahora está en la plaza terminando la avenida.

Yo le diré a mi vecino Juan que nos lleve flores del vivero, a doña Teresa que cocine lechón para unos cincuenta o uno cientos, a mi primo Carlos que se encargue del evento, y de padrino el alcalde para que nos cierre la alameda y con su ¡Si! , seguro el resto es cuento. Que nos vean desde el mirador ,o de donde quieran mirarnos, total , saliendo del museo se escuchaba que ya se veía lo nuestro.

ALUMNOS

PAMPA DE LOS PERROS DIAGNÓSTICO

CÁTEDRA

●Msc. Arq. Robinson Ortiz Agama

●Arq. Carmen Cárdenas Flores

●Arq. Juan Palacios Rojas

● Arq. Alexey Carrasco

●Arq. Luis Morales

●Msc. Arq. Jorge Zaldívar Suárez

Aguilar Aymachoque Rosario

Aquise Luque Luz Deysi

Cochachin Florecin Jhon Brandon

Cuadros Claro Marko

Padilla Suazo Virginia

Pozada Ramirez Otto Alexander

Quispe Palomino Adiel

Ramos de la Cruz Bryan Alexander

Venero Lobatón Irving

Vidal Chávez Esther

APA107B TALLER DE DISEÑO 5B
L5
2022-2
G1 01 COMPOSICIÓN “
GENIUS LOCI “

● Arq. Alexey Carrasco

●Arq. Luis Morales

Pozada Ramirez Otto Alexander

Quispe Palomino Adiel

Venero Lobatón Irving

Vidal Chávez Esther

APA107B TALLER DE DISEÑO 5B 2022-2 L6
DIAGNÓSTICO
PAMPA DE LOS PERROS
CÁTEDRA
Msc. Arq. Robinson Ortiz Agama
Arq. Carmen Cárdenas Flores
Arq. Juan Palacios Rojas
Msc. Arq. Jorge Zaldívar Suárez ALUMNOS
Aguilar Aymachoque Rosario Aquise Luque Luz Deysi Cochachin Florecin Jhon Brandon Cuadros Claro Marko Padilla Suazo Virginia
Ramos de la Cruz Bryan Alexander
G1 PLAN MAESTRO
2.1 LO EXISTENTE
PAQARI LLACTA

Área No Urbanizable Ubicada En La Faja Marginal Clasificación de uso de suelos

Es un área normativa definida como intangible por ser parte de la faja marginal de ambos ríos Chillón y Rímac, esta categoría en definida por laAutoridad Nacional delAgua –ANA

Parque Fluvial Chillón

La propuesta busca una regeneración paisajística sobre la faja marginal y creación de parque fluvial innundable, que colinda con las áreas arqueológicas y urbanas de la zona de Pampas de los Perros, generando espacios para un recorrido patrimonial y ecológico de escala metropolitana y la protección de los habitantes ante la crecida de los ríos.

CÁTEDRA

●Msc. Arq. Robinson Ortiz Agama

●Arq. Carmen Cárdenas Flores

●Arq. Juan Palacios Rojas

● Arq. Alexey Carrasco

●Arq. Luis Morales

APA107B TALLER DE DISEÑO 5B
L7
2022-2
PAMPA DE LOS PERROS DIAGNÓSTICO
Msc. Arq. Jorge Zaldívar Suárez ALUMNOS Aguilar Aymachoque Rosario Aquise Luque Luz Deysi Cochachin Florecin Jhon Brandon Cuadros Claro Marko Padilla Suazo Virginia
G1 2.1 LO EXISTENTE
Pozada Ramirez Otto Alexander Quispe Palomino Adiel Ramos de la Cruz Bryan Alexander Venero Lobatón Irving Vidal Chávez Esther
RÍO CHILLÓN - RIESGOS Y DESASTRES

●Arq. Carmen Cárdenas Flores

● Arq. Alexey Carrasco

●Arq. Luis Morales

Aguilar Aymachoque Rosario

Pozada Ramirez Otto Alexander

Quispe Palomino Adiel

Venero Lobatón Irving

Vidal Chávez Esther

APA107B TALLER DE DISEÑO 5B 2022-2 L8
DIAGNÓSTICO
PAMPA DE LOS PERROS
CÁTEDRA
Msc. Arq. Robinson Ortiz Agama
Arq. Juan Palacios Rojas
Msc. Arq. Jorge Zaldívar Suárez ALUMNOS
Aquise Luque Luz Deysi
Cochachin Florecin Jhon Brandon
Cuadros Claro Marko Padilla Suazo Virginia
Ramos de la Cruz Bryan Alexander
G1 PLAN MAESTRO
2.2
PAQARI LLACTA
PROPUESTA

●Arq. Carmen Cárdenas Flores

● Arq. Alexey Carrasco

●Arq. Luis Morales

●Msc. Arq. Jorge Zaldívar Suárez

ALUMNOS

Aguilar Aymachoque Rosario

Aquise Luque Luz Deysi

Cochachin Florecin Jhon Brandon

Cuadros Claro Marko

Padilla Suazo Virginia

CONCEPTO

El concepto de la morfologíaurbanaquese propone a continuación, está inspirada con la orientación de las partes másaltasdeloscerrosde modoquelatrazaurbana seorientabajounalínea imaginaria (belleza) que une los 3 cerros más importantes, tal como lo hicieron las culturas prehispánicas orientando sus emplazamientos en dirección al sol solsticio deverano.0

Pozada Ramirez Otto Alexander

Quispe Palomino Adiel

Ramos de la Cruz Bryan Alexander

Venero Lobatón Irving

Vidal Chávez Esther

APA107B TALLER DE DISEÑO 5B 2022-2 L9
DE
DIAGNÓSTICO
PAMPA
LOS PERROS
CÁTEDRA
Msc. Arq. Robinson Ortiz Agama
Arq. Juan Palacios Rojas
G1
URBANA
CONCEPCIÓN
CERRO PARAISO Cumbre 1 Cumbre 3 Cumbre 2 Cumbre 4 Cumbre 6 Cumbre 7 Cumbre 8 CERRO CULEBRA CERRO X 02 CONCEPCIÓN URBANA
APA107B TALLER DE DISEÑO 5B 2022-2 L10 PAMPA DE LOS PERROS DIAGNÓSTICO CÁTEDRA
Msc. Arq. Robinson Ortiz Agama ● Arq. Alexey Carrasco
Arq. Carmen Cárdenas Flores
Arq. Luis Morales
Arq. Juan Palacios Rojas
Msc. Arq. Jorge Zaldívar Suárez ALUMNOS Aguilar Aymachoque Rosario Aquise Luque Luz Deysi Cochachin Florecin Jhon Brandon Cuadros Claro Marko Padilla Suazo Virginia Pozada Ramirez Otto Alexander Quispe Palomino Adiel Ramos de la Cruz Bryan Alexander Venero Lobatón Irving Vidal Chávez Esther G1 PROGRAMA URBANO 03 PLAN MAESTRO SUB-ZONA AREA m2 ÁREADETERRENO 1572595 ÁREADE VIVIENDAMEDIANADENSIDAD 399825 ÁREADE VIVIENDABAJADENSIDA(CRIADEROS) 56522 EQUIPAMIENTO 142369 ALAMEDAS 67707 PARQUES 76174 MALECON 213281 ZONAINUNDABLE 364375 CIRCULACIÓN 252342 PASTELDE PORCENTAJE SEGÚN ÁREAPOR SUB ZONA PASTELDE PORCENTAJE SEGUNAREAPOR ZONA

Pozada

APA107B TALLER DE DISEÑO 5B 2022-2 L11 PAMPA DE LOS PERROS DIAGNÓSTICO
CÁTEDRA
Arq. Robinson Ortiz
Msc.
Agama
Carrasco
Arq. Alexey
Flores
Arq. Carmen Cárdenas
Morales
Arq. Luis
Juan
Rojas
Arq.
Palacios
Jorge
Suárez ALUMNOS
Aymachoque Rosario
Luque Luz Deysi
Florecin Jhon Brandon
Claro Marko
Suazo Virginia
Msc. Arq.
Zaldívar
Aguilar
Aquise
Cochachin
Cuadros
Padilla
Ramirez Otto Alexander
Adiel
Cruz Bryan Alexander
Irving
Esther G1 PROGRAMA URBANO-EQUIPAMIENTOS 03 PLAN MAESTRO PASTELDE ÁREADETERRENO SEGÚN EQUIPAMIENTO RELACION DE LAHUELLAYÁREALIBRE SEGÚN ÁREADESTINADAA EQUIPAMIENTO ENTODO EL PROYECTO ES DE 142369 M2
Quispe Palomino
Ramos de la
Venero Lobatón
Vidal Chávez
APA107B TALLER DE DISEÑO 5B 2022-2 L12 PAMPA DE LOS PERROS DIAGNÓSTICO CÁTEDRA ●Msc. Arq. Robinson Ortiz Agama ● Arq. Alexey Carrasco ●Arq. Carmen Cárdenas Flores ●Arq. Luis Morales ●Arq. Juan Palacios Rojas ●Msc. Arq. Jorge Zaldívar Suárez ALUMNOS Aguilar Aymachoque Rosario Aquise Luque Luz Deysi Cochachin Florecin Jhon Brandon Cuadros Claro Marko Padilla Suazo Virginia Pozada Ramirez Otto Alexander Quispe Palomino Adiel Ramos de la Cruz Bryan Alexander Venero Lobatón Irving Vidal Chávez Esther G1 PROGRAMA URBANO-EQUIPAMIENTO 03 PLAN MAESTRO ZONA TERRE NO HUELL A %DE AREA LIBRE AREA CONST RUIDA AMBIENTE ÁREA UNITA RIA ÁREA ÚTIL CIRCUL ACIÓN Y MURO S CANTI DAD AREA TOTAL 1 CITE 22912 9577 58% 11090 ADMINISTRACIÓN 300 210 90 1 300 ZONA DE INVESTIGACIÓN 700 490 210 5 3500 ZONA DE CAPACITACIÓN 300 210 90 5 1500 ZONA DE PRODUCCIÓN 1120 784 336 4 4480 ZONA CULTURAL 200 140 60 1 200 ZONA RECREATIVA 600 420 180 1 600 COMERCIAL 200 140 60 1 200 SERVICIOS GENERALES ESTACIONAMIENTO 310 217 93 1 310 2 PLANTA INDUST RIAL DE ALIMEN TOS 7225 2512 65% 3270 ADMINISTRACIÓN 90 63 27 1 90 ACOPIO 120 84 36 3 360 MATADERO 120 84 36 2 240 PRODUCCIÓN 210 147 63 2 420 ZONA DE EVAPORACIÓN 210 147 63 1 210 ZONA DE CONGELACIÓN 210 147 63 1 210 ZONA DE EMPAQUE 210 147 63 1 210 ALMACENAMIENTO 150 105 45 4 600 MAQUINAS 110 77 33 3 330 SERVICIOS GENERALES ESTACIONAMIENTO 600 420 180 1 600 3 MERCA DO 7570 3780 50% 3780 ADMINISTRACIÓN 90 63 27 1 90 ZONA HÚMEDA 1060 742 318 1 1060 ZONA SEMI-HÚMEDA 1060 742 318 1 1060 ZONA SECA 1060 742 318 1 1060 SERVICIOS GENERALES 80 56 24 1 80 ZONA COMPLEMENTARIA 210 147 63 1 210 ESTACIONAMIENTO 220 154 66 1 220 ZONA TERREN O HUELLA %DE AREA LIBRE AREA CONST RUIDA AMBIENTE ÁREA UNITAR IA ÁREA ÚTIL CIRCUL ACIÓN Y MUROS CANTID AD AREA TOTAL 4 PLANTA DE TRATA MIENTO DE RESIDU OS 12100 4670 61% 4670 ADMINISTRACIÓN 90 63 27 1 90 ÁREA DE ACOPIO 300 210 90 4 1200 ÁREA DE COMPOSTAJE 200 140 60 4 800 ÁREA DE SEGREGADO 300 210 90 4 1200 SERVICIOS GENERALES 90 63 27 1 90 ESTACIONAMIENTO 90 63 27 1 90 ÁREA DE RECICLADO 300 210 90 4 1200 5 CENTRO EDUCAT IVO OESTE 6750 2828 58% 5400 ADMINISTRACIÓN 90 63 27 1 90 SERVICIOS GENERALES 210 147 63 4 840 AREAS COMUNES 300 210 90 5 1500 SALONES 90 63 27 20 1800 ESTACIONAMIENTO 300 210 90 1 300 AUDITORIO 150 105 45 1 150 TALLERES 120 84 36 6 720 6 CENTRO EDUCAT IVO ESTE 7685 2512 67% 5520 ADMINISTRACIÓN 90 63 27 1 90 SERVICIOS GENERALES 210 147 63 4 840 AREAS COMUNES 300 210 90 5 1500 SALONES 90 63 27 20 1800 ESTACIONAMIENTO 300 210 90 1 300 AUDITORIO 150 105 45 1 150 TALLERES 120 84 36 7 840 7 BOSQUE 19110 1620 92% 2340 BONGALO 130 91 39 15 1950 SERVICIOS GENERALES 130 91 39 1 130 COCINA 130 91 39 1 130 ALMACENAMIENTO 130 91 39 1 130
APA107B TALLER DE DISEÑO 5B 2022-2 L13 PAMPA DE LOS PERROS DIAGNÓSTICO CÁTEDRA ●Msc. Arq. Robinson Ortiz Agama ● Arq. Alexey Carrasco ●Arq. Carmen Cárdenas Flores ●Arq. Luis Morales ●Arq. Juan Palacios Rojas ●Msc. Arq. Jorge Zaldívar Suárez ALUMNOS Aguilar Aymachoque Rosario Aquise Luque Luz Deysi Cochachin Florecin Jhon Brandon Cuadros Claro Marko Padilla Suazo Virginia Pozada Ramirez Otto Alexander Quispe Palomino Adiel Ramos de la Cruz Bryan Alexander Venero Lobatón Irving Vidal Chávez Esther G1 03 PLAN MAESTRO ZONA TERRE NO HUELL A %DE AREA LIBRE AREA CONST RUIDA AMBIENTE ÁREA UNITA RIA ÁREA ÚTIL CIRCUL ACIÓN Y MURO S CANTI DAD AREA TOTAL 8 CENTR O DE SALUD 6270 2130 66% 2130 ADMINISTRACIÓN 160 112 48 1 160 ATENCIÓN 160 112 48 1 160 SERVICIOS GENERALES 90 63 27 1 90 SERVICIOS COMPLEMENTARIOS 90 63 27 1 90 LABORATORIOS 70 49 21 6 420 SALAS 90 63 27 8 720 MAQUINAS 190 133 57 1 190 ESTACIONAMIENTO 300 210 90 1 300 9 CENTR O DE INTERP RETACI ÓN CULTUR AL 18995 3645 81% 6960 RECEPCIÓN 50 35 15 1 50 SALA DE INTERPRETACIÓN 70 49 21 12 840 SALA DE INVESTIGACIÓN 70 49 21 12 840 AUDITORIO 150 105 45 3 450 CAFETERÍA 70 49 21 1 70 SUM 150 105 45 2 300 MIRADOR 200 140 60 1 200 ADMINISTRACIÓN 110 77 33 1 110 SERVICIOS 70 49 21 2 140 ALMACENES 70 49 21 3 210 ESTACIONAMIENTO 600 420 180 3 1800 TERRAZA 350 245 105 1 350 ANFIETRO 800 560 240 2 1600 ZONA TERREN O HUELLA %DE AREA LIBRE AREA CONST RUIDA AMBIENTE ÁREA UNITAR IA ÁREA ÚTIL CIRCUL ACIÓN Y MUROS CANTID AD AREA TOTAL 10 CENTRO DEPORTI VO 31208 5922 81% 14130 ADMINISTRACIÓN 90 63 27 1 90 AREA DE MAQUINAS 700 490 210 1 700 VESTIDORES 140 98 42 1 140 OFICINA 30 21 9 7 210 CAFETERÍA 150 105 45 1 150 MEDICINA DEL DEPORTE 80 56 24 1 80 AUDITORIO 400 280 120 1 400 DUCHAS 140 98 42 1 140 BAÑOS 80 56 24 1 80 PISCINA 300 210 90 1 300 ESTADIO 30 21 9 1 30 SERVICIOS 70 49 21 1 70 SKATEPARK 140 98 42 2 280 ESTADIO 11460 8022 3438 1 11460 11 CENTRO COMUN AL 772 480 38% 480 ADMINISTRACIÓN 60 42 18 1 60 SUM 210 147 63 1 210 SERVICIOS 60 42 18 1 60 ESTACIONAMIENTO 150 105 45 1 150 12 CAPILLA 500 390 22% 390 ADMINISTRACIÓN 50 35 15 1 50 CAPILLA 210 147 63 1 210 SERVICIOS 50 35 15 1 50 ESTACIONAMIENTO 80 56 24 1 80 13 INSTITU TO 1272 682,5 46% 2730 ADMINISTRACIÓN 90 63 27 1 90 SERVICIOS GENERALES 90 63 27 4 360 AREAS COMUNES 300 210 90 1 300 SALONES 90 63 27 8 720 ESTACIONAMIENTO 150 105 45 1 150 AUDITORIO 150 105 45 1 150 LABORATORIOS 120 84 36 8 960 PROGRAMA URBANO-EQUIPAMIENTO

ALAMEDACENTRAL

CÁTEDRA

●Msc. Arq. Robinson Ortiz Agama

●Arq. Carmen Cárdenas Flores

●Arq. Juan Palacios Rojas

● Arq. Alexey Carrasco

●Arq. Luis Morales

●Msc. Arq. Jorge Zaldívar Suárez

ALAMEDACENTRAL

ALUMNOS

Aguilar Aymachoque Rosario

Pozada Ramirez Otto Alexander

Quispe Palomino Adiel

Venero Lobatón Irving

APA107B TALLER DE DISEÑO 5B
L14
2022-2
PAMPA DE LOS PERROS DIAGNÓSTICO
Aquise Luque Luz Deysi
Cochachin Florecin Jhon Brandon
Cuadros Claro Marko
Padilla Suazo Virginia
Ramos de la Cruz Bryan Alexander
Vidal Chávez Esther G1 3.0 1.8 4.5 14.0 4.5 1.8 3.0
VÍAQIPIY- Para transporte de carga AVENIDACHILLÓN - Vía de transporte público.
Paraderos de transporte público.

Av.Chillón

DISEÑO 05 PLANIMETRÍA PLAN
MAESTRO 0 100 200 600 m.

APA107B TALLER DE DISEÑO 5B 2022-2 L16 PAMPA DE LOS PERROS DIAGNÓSTICO CÁTEDRA
Msc. Arq. Robinson Ortiz Agama
Arq. Alexey Carrasco
Arq. Carmen Cárdenas Flores
Arq. Luis Morales
Arq. Juan Palacios Rojas
Msc. Arq. Jorge Zaldívar Suárez ALUMNOS Aguilar Aymachoque Rosario Aquise Luque Luz Deysi Cochachin Florecin Jhon Brandon Cuadros Claro Marko Padilla Suazo Virginia
Ramirez Otto Alexander Quispe Palomino Adiel Ramos de la Cruz Bryan Alexander Venero Lobatón Irving Vidal Chávez Esther G1 CORTE C C 150m 150m CORTESTRANSVERSALES CORTE LONGITUDINAL
Pozada

Pozada

Quispe

APA107B TALLER DE DISEÑO 5B 2022-2 L17 PAMPA DE LOS PERROS DIAGNÓSTICO CÁTEDRA
Msc. Arq. Robinson Ortiz Agama
Arq. Alexey Carrasco
Arq. Carmen Cárdenas Flores
Arq. Luis Morales
Arq. Juan Palacios Rojas
Msc. Arq. Jorge Zaldívar Suárez
Aymachoque Rosario
Luque Luz Deysi
Florecin Jhon Brandon
Claro Marko
Suazo Virginia
ALUMNOS Aguilar
Aquise
Cochachin
Cuadros
Padilla
Ramirez Otto Alexander
Palomino Adiel
de la Cruz Bryan Alexander
Lobatón Irving
Chávez Esther G1 07 ZONIFICACIÓN PLAN MAESTRO
Ramos
Venero
Vidal
09 ALTURA DE EDIFICACIONES PLAN MAESTRO
1 PISO 2 PISO 3 PISO 4 PISO
LEYENDA

APA107B TALLER DE DISEÑO 5B 2022-2 L19 PAMPA DE LOS PERROS DIAGNÓSTICO CÁTEDRA
Msc. Arq. Robinson Ortiz Agama
Arq. Alexey Carrasco
Arq. Carmen Cárdenas Flores
Arq. Luis Morales
Arq. Juan Palacios Rojas
Msc. Arq. Jorge Zaldívar Suárez ALUMNOS Aguilar Aymachoque Rosario Aquise Luque Luz Deysi Cochachin Florecin Jhon Brandon Cuadros Claro Marko Padilla Suazo Virginia Pozada Ramirez Otto Alexander Quispe Palomino Adiel Ramos de la Cruz Bryan Alexander Venero Lobatón Irving Vidal Chávez Esther G1 RESIDENCIA - TIPOLOGÍA DE VIVIENDAS DESARROLLO DE ÁREAS 10 VIVIENDATIPO B VIVIENDATIPO C 60 m2 c/u VIVIENDATIPO D 75 m2 CIRCULACIÓN HORIZONTAL CIRCULACIÓN VERTICAL DISTRIBUCIÓN BLOQUE 1

Pozada

TALLER DE DISEÑO 2022-2 L20
Claro Marko Padilla Suazo Virginia
PAMPA DE LOS PERROS Cuadros
Alexander
Ramirez Otto
Alexander
Esther RESIDENCIA - TIPOLOGÍA DE VIVIENDAS DESARROLLO DE ÁREAS 10
BLOQUE 2
Quispe Palomino Adiel Ramos de la Cruz Bryan
Venero Lobatón Irving Vidal Chávez
DISTRIBUCIÓN

ALUMNOS

Aguilar Aymachoque Rosario

Pozada Ramirez Otto Alexander

Quispe Palomino Adiel

Msc. Arq. Robinson Ortiz Agama

● Arq. Alexey Carrasco Arq. Carmen Cárdenas Flores

●Arq. Luis Morales Arq. Juan Palacios Rojas

●Msc. Arq. Jorge Zaldívar Suárez

Aquise Luque Luz Deysi

Cochachin Florecin Jhon Brandon

Cuadros Claro Marko

Padilla Suazo Virginia

Ramos de la Cruz Bryan Alexander

Venero Lobatón Irving

Vidal Chávez Esther

TALLER DE
L21
APA107B
DISEÑO
RESIDENCIA
DESARROLLO DE ÁREAS 10 VIVIENDATIPOA VIVIENDATIPO D VIVIENDATIPO C VIVIENDATIPO B PLANTA DISTRIBUCIÓN BLOQUE 4 MERCADO
- MERCADO

PLANTAINDUSTRIALDEALIMENTO PORCINO

Arq. Alexey Carrasco

Arq. Luis Morales

Msc. Arq. Jorge Zaldívar Suárez

ALUMNOS

Aguilar Aymachoque Rosario

Aquise Luque Luz Deysi

Cochachin Florecin Jhon Brandon

Cuadros Claro Marko

Padilla Suazo Virginia

Pozada Ramirez Otto Alexander

Quispe Palomino Adiel

Ramos de la Cruz Bryan Alexander

Venero Lobatón Irving

Vidal Chávez Esther

L22
VIVIENDA GRANJA - PLANTA INDUSTRIAL DESARROLLO DE ÁREAS 10
INSPECCIÓNY SELECCIÓN ADECUACIÓN DE MATERIAPRIMA PREPARACIÓN DEL ALIMENTO REPOSOYEMPAQUE DISTRIBUCIÓN YVENTA ALMACÉN CARGAY DESCARGA OFICINAS MANTENIMIENTO DISTRIBUCIÓN PLANTA VIVIENDA GRANJA
APA107B TALLER DE DISEÑO 5B 2022-2 L23 DIAGNÓSTICO ●Arq. Carmen Cárdenas Flores ●Arq. Luis Morales ●Arq. Juan Palacios Rojas ●Msc. Arq. Jorge Zaldívar Suárez Cochachin Florecin Jhon Brandon Cuadros Claro Marko Padilla Suazo Virginia Ramos de la Cruz Bryan Alexander Venero Lobatón Irving Vidal Chávez Esther COMERCIO DESARROLLO DE ÁREAS 10 ZONAS DE COMERCIO VIVIENDA HALL- ENTRADAPEATONAL
APA107B TALLER DE DISEÑO 5B 2022-2 L24 PAMPA DE LOS PERROS DIAGNÓSTICO CÁTEDRA ●Msc. Arq. Robinson Ortiz Agama ● Arq. Alexey Carrasco ●Arq. Carmen Cárdenas Flores ●Arq. Luis Morales ●Arq. Juan Palacios Rojas ●Msc. Arq. Jorge Zaldívar Suárez ALUMNOS Aguilar Aymachoque Rosario Aquise Luque Luz Deysi Cochachin Florecin Jhon Brandon Cuadros Claro Marko Padilla Suazo Virginia Pozada Ramirez Otto Alexander Quispe Palomino Adiel Ramos de la Cruz Bryan Alexander Venero Lobatón Irving Vidal Chávez Esther G1 EQUIPAMIENTO URBANO DESARROLLO DE ÁREAS 10 1 2 3 4 7 6 8 5 9 10 11 12 13 1.CITE 2. PLANTAINDUSTRI DEALIMENTOS 3. MERCADO 4. PLANTADETRATAMIENTO DE RESIDUOS 5. CENTRO EDUCATIVO OESTE 6. CENTRO EDUCATIVO ESTE 7. BOSQUE 8. CENTRO DE SALUD 9. CENTRO CULTURAL 10. CENTRO DEPORTIVO 11. CENTRO COMUNAL 12. IGLESIA 13. INSTITUTO

DESARROLLO DE ÁREAS

RECORRIDO TURÍSTICO

El circuito turístico está proyectado para dar a conocerlasbondadesdelsector,comolosonla cultura, el paisaje, equipamientos y la gastronomía, todo ello con la posibilidad de disfrutar de la zona de bungalows rodeado de unáreareforestada.

Estos lugares están conectados mediante una red peatonal y de ciclovías que permiten visitar loslugaresmásinteresantes.

Con ello se pretende potenciar la cultura, el paisaje y la producción propias del lugar, para así también tener nuevas fuentes de ingreso, quehagansostenibleellugar.

ALUMNOS

PAMPA DE LOS PERROS DIAGNÓSTICO

CÁTEDRA

●Msc. Arq. Robinson Ortiz Agama

●Arq. Carmen Cárdenas Flores

●Arq. Juan Palacios Rojas

● Arq. Alexey Carrasco

●Arq. Luis Morales

●Msc. Arq. Jorge Zaldívar Suárez

Aguilar Aymachoque Rosario

Aquise Luque Luz Deysi

Cochachin Florecin Jhon Brandon

Cuadros Claro Marko

Padilla Suazo Virginia

Plaza central Circuito de huacas Viviendas granja Mirador Planta eléctrica

Recorrido CITE Centro gastronómico

Zona forestal. Zona de bungalows Malecón.

Pozada Ramirez Otto Alexander

Quispe Palomino Adiel

Ramos de la Cruz Bryan Alexander

Venero Lobatón Irving

Vidal Chávez Esther

APA107B TALLER DE DISEÑO 5B
L25
2022-2
G1

Parte de la propuesta urbana,esreubicarlas torres de alta tensión en Pakari Llacta, dado queéstasirrumpencon el paisaje urbano y generan problemas de contaminación acústica debido a la actual ubicacióndeéstas.

● Arq. Alexey Carrasco

Este nueva propuesta de reordenamiento permite un flujo más limpio en la avenida

APA107B TALLER DE DISEÑO 5B 2022-2 26
DIAGNÓSTICO
PAMPA DE LOS PERROS
CÁTEDRA
Msc. Arq. Robinson Ortiz Agama
Arq. Carmen Cárdenas Flores
Arq. Luis Morales
Arq. Juan Palacios Rojas
Msc. Arq. Jorge Zaldívar Suárez ALUMNOS
G1 REDES ELÉCTRICAS Y TELECOMUNICACIONES DESARROLLO DE ÁREAS 0 400 800 ESCALAGRÁFICA
Aguilar Aymachoque Rosario Aquise Luque Luz Deysi Cochachin Florecin Jhon Brandon Cuadros Claro Marko Padilla Suazo Virginia
CENTRO ARQUEOLÓGICO CENTRAL ELÉCTRICA

Pozada

TALLER DE DISEÑO 2022-2 L27
Arq. Robinson Ortiz Agama
Arq. Alexey Carrasco Arq. Carmen Cárdenas Flores
Arq. Luis Morales
Arq. Juan Palacios Rojas
Msc. Arq. Jorge Zaldívar Suárez ALUMNOS
Aymachoque Rosario
Luque Luz Deysi
Florecin Jhon Brandon
Claro Marko Padilla Suazo Virginia
Msc.
Aguilar
Aquise
Cochachin
Cuadros
Ramirez Otto Alexander
Adiel
Cruz Bryan Alexander
Lobatón Irving
Chávez Esther ALAMEDA CENTRAL ESPACIO PÚBLICO Pendiente 7% Puente río Chillón Faja Marginal Huaca Vivienda Plaza cívica Vivienda comerci o Vivienda comerci o Parque Porcino Plaza Plaza Alameda central y viviendas comercio Puente río Chillón y Huaca ANILLO 1 ANILLO 2 ANILLO 3 ANILLO 1 2 ANILLO 3 PLAZACÍVICAVIVIENDAS VIVIENDAS COMERCIO INGRESOAPARQUE PORCINO 10
Quispe Palomino
Ramos de la
Venero
Vidal

●Arq. Carmen Cárdenas Flores

● Arq. Alexey Carrasco

●Arq. Luis Morales

Aguilar Aymachoque Rosario

Pozada Ramirez Otto Alexander

Quispe Palomino Adiel

Ramos de la Cruz Bryan Alexander

Venero Lobatón Irving

Vidal Chávez Esther

APA107B TALLER DE DISEÑO 5B 2022-2 L28
DE
DIAGNÓSTICO
PAMPA
LOS PERROS
CÁTEDRA
Msc. Arq. Robinson Ortiz Agama
Arq. Juan Palacios Rojas
Msc. Arq. Jorge Zaldívar Suárez ALUMNOS
Aquise Luque Luz Deysi
Cochachin Florecin Jhon Brandon
Cuadros Claro Marko
Padilla Suazo Virginia
G1 ALAMEDA CHILLÓN ESPACIO PÚBLICO 10
peatonal
En los ingresos MÓDULO BASE
CICLISTAS-PARADERO CRUCE PAETONAL preferencia
SEPARADORES
APA107B TALLER DE DISEÑO 5B 2022-2 L29 PAMPA DE LOS PERROS DIAGNÓSTICO CÁTEDRA
Msc. Arq. Robinson Ortiz Agama
Arq. Alexey Carrasco
Arq. Carmen Cárdenas Flores
Arq. Luis Morales
Arq. Juan Palacios Rojas
Msc. Arq. Jorge Zaldívar Suárez ALUMNOS Aguilar Aymachoque Rosario Aquise Luque Luz Deysi Cochachin Florecin Jhon Brandon Cuadros Claro Marko Padilla Suazo Virginia Pozada Ramirez Otto Alexander Quispe Palomino Adiel Ramos de la Cruz Bryan Alexander Venero Lobatón Irving Vidal Chávez Esther G1 PARQUES ESPACIO PÚBLICO 10 70 m 70 m
DISEÑO

Para le prevención de los deslizamientos e inundaciones se plantea el uso de muros gaviones, hechas de piedra de canto rodado.

DISEÑO ZONA CULTURAL ZONA DEPORTIVA RECREACIÓN Y TURISMO HUACA CULEBRAS HUACA PAMPA DE LOS PERROS HUACA SECTOR C Alameda Malecón y Miradores 1 2 3 4 5 6 6 6 6 6 6 6 6 1. Huacas 2. Anfiteatros 3. Pérgolas 4. Losas deportivas 5. Estadio 6. Miradores 4 LEYENDA
APA107B TALLER DE DISEÑO 5B 2022-2 L32 PAMPA DE LOS PERROS DIAGNÓSTICO CÁTEDRA
Msc. Arq. Robinson Ortiz Agama
Arq. Alexey Carrasco
Arq. Carmen Cárdenas Flores
Arq. Luis Morales
Arq. Juan Palacios Rojas
Msc. Arq. Jorge Zaldívar Suárez ALUMNOS Aguilar Aymachoque Rosario Aquise Luque Luz Deysi Cochachin Florecin Jhon Brandon Cuadros Claro Marko Padilla Suazo Virginia Pozada Ramirez Otto Alexander Quispe Palomino Adiel Ramos de la Cruz Bryan Alexander Venero Lobatón Irving Vidal Chávez Esther G1 APROXIMACIÓN ARQUITECTÓNICA B Centro de InvestigacionTecnologica PRODUCCIÓN INVESTIGACIÓN COMERCIALIZACIÓN

APA107B TALLER DE DISEÑO 5B 2022-2 L33
DE LOS PERROS DIAGNÓSTICO
PAMPA
CÁTEDRA
Msc. Arq. Robinson Ortiz Agama
Arq. Alexey Carrasco
Flores
Arq. Carmen Cárdenas
Morales
●Arq. Luis
Arq. Juan Palacios Rojas
Suárez
Rosario
Luque
Florecin
Brandon
Marko
Virginia
Msc. Arq. Jorge Zaldívar
ALUMNOS Aguilar Aymachoque
Aquise
Luz Deysi Cochachin
Jhon
Cuadros Claro
Padilla Suazo
Alexander
Pozada Ramirez Otto
Alexander
G1 CONCEPCIÓN ARQUITECTÓNICA CITEC APROXIMACIÓN ARQUITECTÓNICA 10 ESPACIO PÚBLICO ESPACIO PÚBLICO ESPACIO PÚBLICO PRODUCCIÓN COMERCIALIZACIÓN INVESTIGACIÓN DISTRIBUCIÓN AVENIDA CENTRAL
Quispe Palomino Adiel Ramos de la Cruz Bryan
Venero Lobatón Irving Vidal Chávez Esther

ALUMNOS

Aguilar Aymachoque Rosario

Aquise Luque Luz Deysi

Cochachin Florecin Jhon Brandon

Cuadros Claro Marko

Padilla Suazo Virginia

Pozada Ramirez Otto Alexander

Quispe Palomino Adiel

Ramos de la Cruz Bryan Alexander

Venero Lobatón Irving

Vidal Chávez Esther

TALLER DE DISEÑO 2022-2 L34
Arq. Juan
Rojas
Palacios
●Msc. Arq. Jorge Zaldívar Suárez
APROXIMACIÓN ARQUITECTÓNICA 10
10
DEFINICIÓN DEL TERRENO CITEC

APA107B TALLER DE DISEÑO 5B 2022-2 L36 PAMPA DE LOS PERROS DIAGNÓSTICO CÁTEDRA
Msc. Arq. Robinson Ortiz Agama
Arq. Alexey Carrasco
Arq. Carmen Cárdenas Flores
Arq. Luis Morales
Arq. Juan Palacios Rojas
Msc. Arq. Jorge Zaldívar Suárez ALUMNOS Aguilar Aymachoque Rosario Aquise Luque Luz Deysi Cochachin Florecin Jhon Brandon Cuadros Claro Marko Padilla Suazo Virginia
Ramirez Otto Alexander
Palomino Adiel Ramos de la Cruz Bryan Alexander
Lobatón Irving Vidal Chávez Esther G1 IMAGEN OBJETIVO CITEC APROXIMACIÓN ARQUITECTÓNICA 10
Pozada
Quispe
Venero
APA107B TALLER DE DISEÑO 5B 2022-2 L37 PAMPA DE LOS PERROS DIAGNÓSTICO ●Msc. Arq. Robinson Ortiz Agama
Arq. Alexey Carrasco
Arq. Carmen Cárdenas Flores ●Arq. Luis Morales
Arq. Juan Palacios Rojas
Msc. Arq. Jorge Zaldívar Suárez Aquise Luque Luz Deysi Cochachin Florecin Jhon Brandon Cuadros Claro Marko Padilla Suazo Virginia Ramos de la Cruz Bryan Alexander Venero Lobatón Irving Vidal Chávez Esther VIDEO C Link : video VIDEO D Link : ISSUUACUMULADO

Turn static files into dynamic content formats.

Create a flipbook
Issuu converts static files into: digital portfolios, online yearbooks, online catalogs, digital photo albums and more. Sign up and create your flipbook.