Resume
Interior Architect & Designer _ Store Design & Development
CONTACTS / PERSONAL INFORMATION
Locations:
10179_Berlin_Germany
V6B 0H7_Vancouver, BC_Canada
Phone: +49 152 24012663
E-mail: rubbo.eugenio@outlook.com
Nationality: Italian
2014
COLLEGE EDUCATION
Architecture Masters’ Degree
Polytechnic University of Turin, Torino, Italy
2012 Architecture Bachelors’ Degree
Polytechnic University of Turin, Torino, Italy WORK EXPERIENCE
2024 -- 2025
Senior Store Designer
lululemon;
Vancouver, British Columbia, Canada
2023 -- 2024
Lead, Retail Development
Under Armour;
Amsterdam, North Holland, Netherlands
2023
Design Architect
HUGO BOSS; Metzingen (Stuttgart), Germany
2019 -- 2022
Expansion / Store Design Project Leader
H&M - 海恩斯莫里斯(上海)商业有限公司; Shanghai, China - 中国上海市
2019
Senior Interior Architect / Designer
DLArchitecture - 上海朵幂信息咨询有限公司; Shanghai, China - 中国上海市
2018
Senior Interior Architect / Designer
Des:glory Design - 上海屹珂商务咨询有限公司; Shanghai, China - 中国上海市
2016 – 2018
Interior Architect / Designer
DLArchitecture - 上海多米装潢设计有限公司; Shanghai, China - 中国上海市
2016
Interior & Exhibition Architect / Designer
Area-17 (Shanghai) Co., Ltd -
意意七建筑设计咨询(上海)有限公司; Shanghai, China - 中国上海市
2015
Interior & Exhibition Architect / Designer
Weew Smart Design / Torino, Italy
2014 – 2015
Interior & Exhibition Architect / Designer
Shanghai Runfar Exhibition Production Co., Ltd; Shanghai, China - 中国上海市
PERSONAL SKILLS
Mother tongue: Italian
Other languages: English, Chinese, Spanish
Design Skills
Communication & Presentation Skills
Entrepreneurial Spirit
Cross-Function Collaboration
Team Player / Independent Work
Problem-Solving
Project Management
Design Development
Interior Design Portfolio
Works Selection
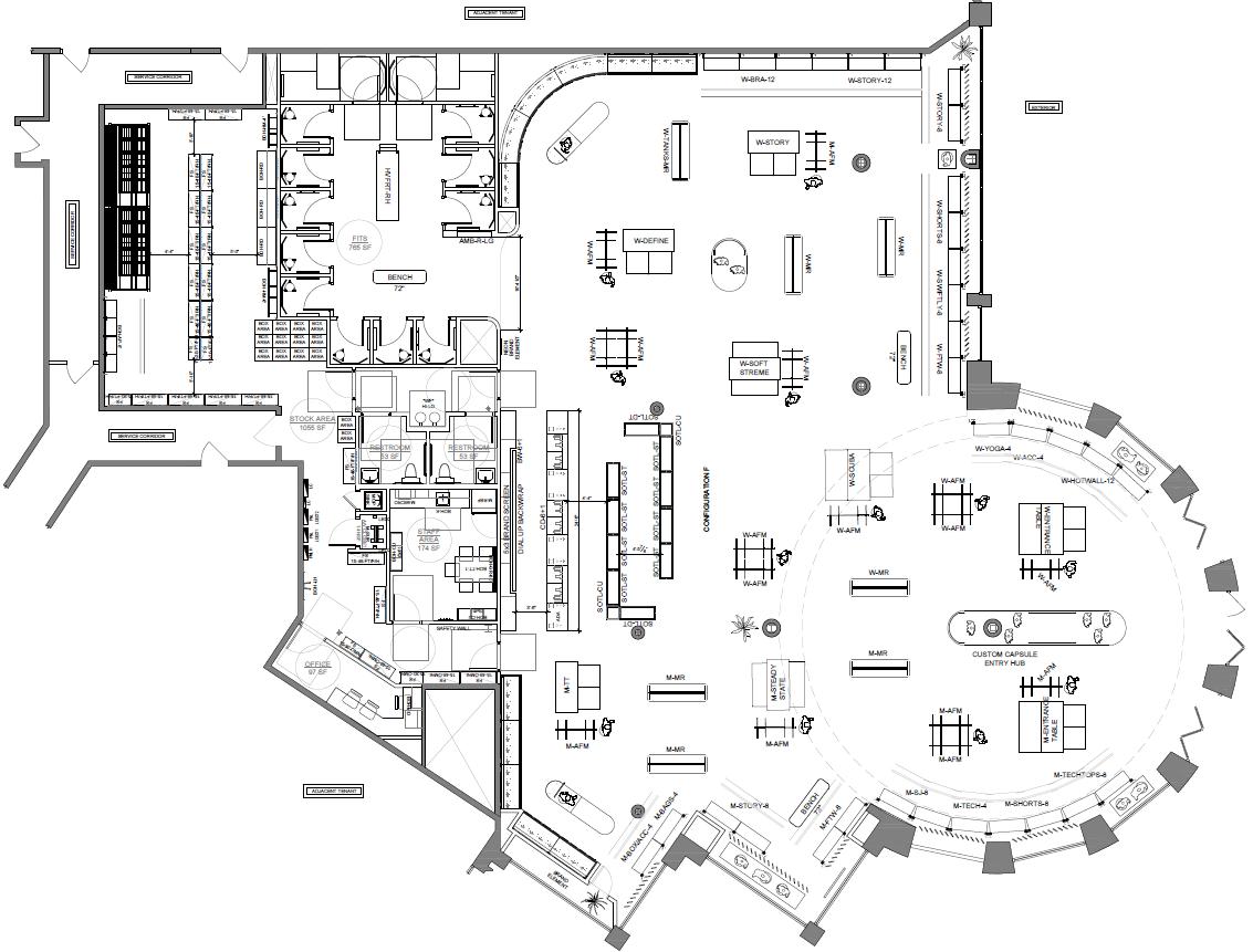
lululemon
Location: USA & Canada_Professional Projects_Realized & Ongoing_2024 - 2025

Design & delivery of exceptional retail brand experiences across NA, with a focus on managing complex projects from inception to completion.
Control over the entire design and execution development, ensuring that all designs meet the highest standards of quality, maintain brand consistency, and adhere to budgetary constraints.
Presentation & delivery of innovative design concepts & solutions that enhance customer experiences and support strategic growth, blending functionality, aesthetics, and brand integrity to create impactful and enduring retail environments.




lululemon
Location: USA & Canada_Professional Projects_Realized & Ongoing_2024 - 2025




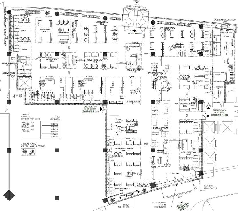
Location: China_Professional Projects_Realized_2019 - 2023




Aligned with the brand’s DNA, the projects cover the entire spectrum of project phases: from lease line discussions and design solutions, through concept drawings production to detail drawings supervision, product displacement, followup, project management, and construction site oversight until completion. The scope of the works extends to new openings and rebuilds, involving downsizes, relocations, layout changes, and space optimizations.
Location: China_Professional Projects_Realized_2019 - 2023






Location: China_Professional Projects_Concept_2020 - 2021








CASETiFY
Location: Busan_South Korea Professional Project_Concept_2025




The proposal introduces a conceptual retail experience for CASETiFY Studio at Shinsegae Centum City in Busan.
Rooted in the brand’s modular and immersive design language, the concept aims to respond to the location’s dynamic blend of youth culture, creativity, tourism, and tech & lifestyle shoppers.
Drawing from Busan’s layered identity of coastal vibrancy, digital-native youth, and visual experimentation, the concept offers CASETiFY Studio a bold, flexible stage for customization, content creation, and cultural expression.
Showfields Lafayette
Location: New York_USA Professional Project_Concept_2018



Proposed Concept Design for Showfield’s Flagship Store in NYC. The structure incorporates Retail Spaces, Exhibition Areas, and Events Venues. Elegance and simplicity define the elevated retaiW introduces configurations and volumes that allow customers to engage in seamless exploration, offering a fresh and compelling perspective of the space.

