Skip to main content

Townhouse 4

Page 1

Rilassare RESIDENCES TOWNHOUSE 4 Indicative finishes & inclusionsImage relates to Townhouse 5 Indicative finishes & inclusionsImage relates to Townhouse 5

Rilassare l 386 Booker Bay Road, Booker Bay

Townhouse 4

Bedroom l Two plus Study

Bathroom l Two

Garage l Two

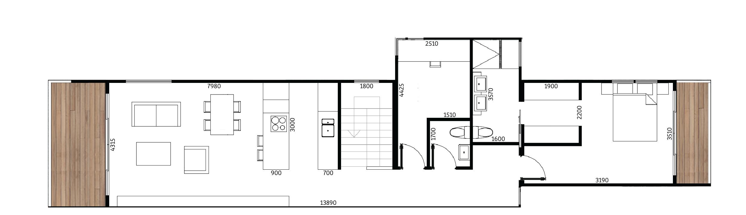
Floorplan

Ground Floor 36m²

First Floor 87m² l Balcony 13m²

Garage 36m²

Garden 69m²

Total Area 241m²

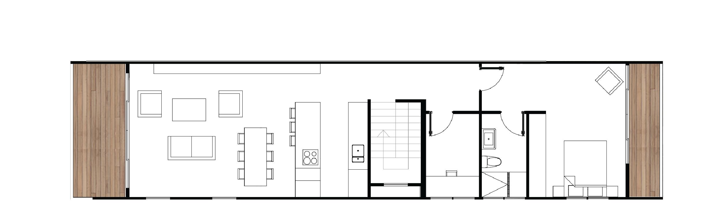
First Floor

General Finishes & Inclusions

General

Windows

Sliding Doors

Doors

Blinds

Lighting

Decking

Balustrading

Rainwater Tanks

Solar Panels

Roofing

Garages

Waterfront Access

Outdoor Showers

Flooring

Blinds Lighting

Air Conditioning

Kitchen

Cabinetry

Benchtop

Kitchen Sink

Splashback

Tapwear

Cooktop

Oven

Microwave

Bradnams Signature range louvres with screens

Bradnams Signature range louvres with screens

Hume recessed panel solid timber painted white

Blockout & sheer roller blinds to all windows

Automated LED outdoor wall & path lighting, courtyard ambient, feature & general lighting

Modwood flushfit eco deck

Frameless 10mm safety glass

Integrated in driveway for common areas & toilets

Solar ready wired

Colorbond steel from Stratco

Secure oversized garages with remote entry

Direct access to beach

Hot & cold direct from beach shower

High quality engineered timber, honed & sealed concrete

Blockout & sheer roller blinds to all windows

Automated LED downlights & LED striplights

Integrated & zoned reverse cycle

White & timber style veneer finish, soft close doors & drawers

Engineered stone

Large 1½ bowl stainless sink undermounted

Mirror or engineered stone

Select black kitchen mixer

Fisher & Paykel 4 burner wide induction cooktop

Fisher & Paykel integrated fan forced

Fisher & Paykel integrated microwave

Rilassare RESIDENCES

* Specifications may vary slightly due to availability, design and construction requirements

* A full list of inclusions can be found on the website rh.com.au/peninsula

* All dimensions/areas are approximates

Peninsula Andrew Persiani 0410 324 454 rh.com.au/peninsula

Turn static files into dynamic content formats.

Create a flipbook