Skip to main content

Ethan Murphy ucas id 2048548261

Page 1


ETHAN MURPHY

UCAS ID 2048548261

DESIGN PORTFOLIO 2025/26

Form exploration in and around the national museum in water color, here I'm trying to improve my weaker abilities.

Initial ideas and development of an interactive space based on the fear of falling. My main goal here was to make it inclusive and accessible to everybody, designing wheelchair safe ledges and including ramps was a priority to me.

Large slow moving fan creates a slight breeze

Screen graphic development

Collage moodboard of architectural inspiration of what could be displayed on the screen bellow the catwalks

catwalks accessible ramps

Height map of catwalks

Final renders of pitfall interactive space

Accessible catwalk leads directly to fire escape

The large hidden fan design. Creating a slight breeze and hum noise.

OLED screen bellow catwalks displaying various tall things

Font designing

Poster development and outcome for event, some font development as well.

Moodboard collage

Development for an exhibit space extension for the gunpowder store in Granton. Based on Antony Gormly's sculpture work.

Idea finalizing

Scale

model of said extension

The model is modular, being removable from the attached building. Its roof is also segmented allowing viewing of individual floor layouts and rooms and how they interact with the balcony space.

Signage and branding for the restaurant – font made from extinct language Siculian Greek

Room renders for Sicilian restaurant. Top down bathroom and kitchen from the cupboard .

Standing Stone gas hybrid pizza oven render and cross section. A modern centerpiece for the restaurant.

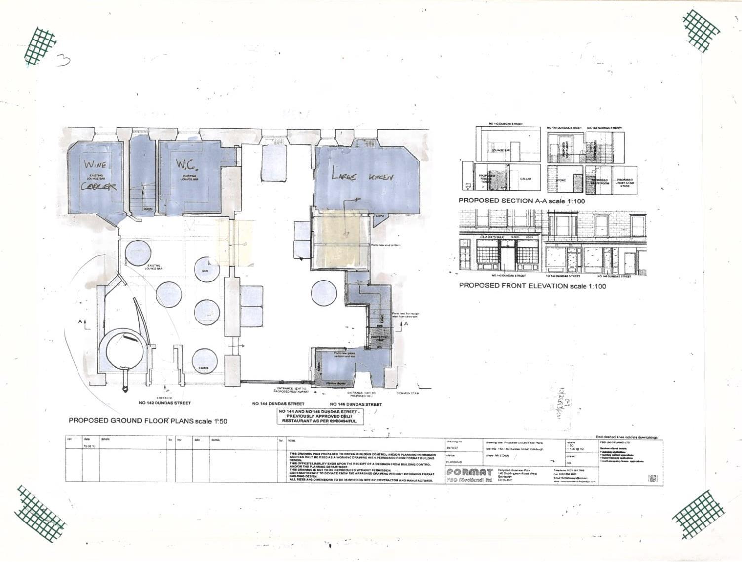
Floorplans attempting to make the restaurant as authentic as possible

Basement pool hall

Extra folding chair for a restaurant brief. Inspired by the things old Italian folks love. Made sure that the chair had plenty of cross members and support while no legs or leather intersect while folded, while being super fly.

.

Abode using a church. Filling the space with something natural was my priority. Designing the space around a living tree would breath life into the big cold space.

Large shelving units on a caster track allowing an easy change of space

Room map

Advertising graphics for a make-believe coffee shop and graphical style that inspired it

A line of 1:32 scale models. conveying interpretive household goods, these would have been scaled up one to one with how they are here.

Repeat pattern development. wallpaper based on scots pine bark

Refurbished 212 axe head with ash handle in linseed oil beeswax finish. Made with only hand tools. Glove for scale

Turn static files into dynamic content formats.

Create a flipbook