PORTAFOLIO DE PROYECTOS ARQUITECTURA

Page 1

PORTAFOLIO ERIC ESTRADA VOLUMEN 02 ENERO 2024

Hola,

Soy un profesional arquitecto egresado y técnico interiorista comprometido con la creación de entornos funcionales, eficientes y visualmente impactantes que reflejen una profunda conexión con el ser humano y sus necesidades. Mi enfoque se basa en un profundo entendimiento de las necesidades humanas, tanto a nivel práctico como emocional. Es asi que busco integrar elementos que fomenten la comodidad, la inspiración y el bienestar para un alto impacto en la calidad de vida de las personas.

Lima, 15 de Diciembre de 2023

Portafolio de Proyectos | Eric Estrada Rodriguez 2
Portafolio de Proyectos | Eric Estrada Rodriguez 3 Indice [Proyecto de carrera] 01 02 03 CULTURAL RECREACIONAL URBANO - CULTURAL

[Proyecto de carrera]

Centro cultural recreacional en base a la permeabililidad urbana en san Juan de Lurigancho

Lima - Perú

Información

año: 2023

Ubicación: San Juan de Lurigancho

Tipología: Cultural, Recreacional Área: 9,500 m2

Software utilizado:

Autocad, Archicad, Photoshop, Enscape, Indesign.

Fotografia: Eric Estrada

Sobre el proyecto

El proyecto parte comprendiendo la memoria histórica y espacial del distrito de San Juan de Lurigancho evidenciado en sus restos arqueológicos como son la huaca de Mangomarca y la fortaleza de Campoy obteniendo una riqueza arquitectónica de integración al paisaje , dominio del territorio, monumentalidad y formas geometricas naturales.

Portafolio | Proyectos de carrera | Eric Estrada Rodriguez 4
01

La arquitectura permeable, es la que cuenta con un estilo puramente relacional, donde se establecen conexiones entre lo privado y lo publico.

Portafolio | Proyectos de carrera | Eric Estrada Rodriguez 5

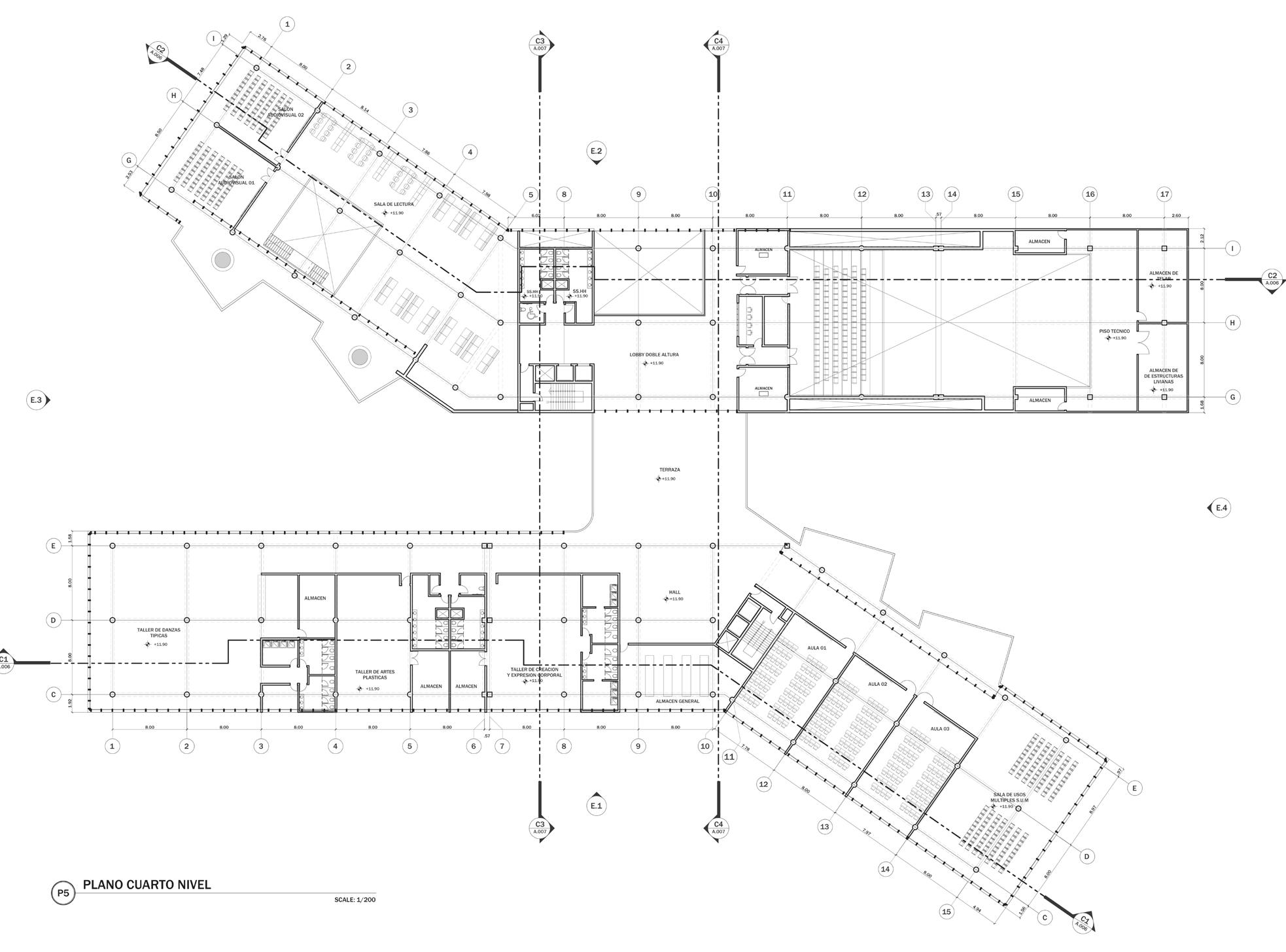
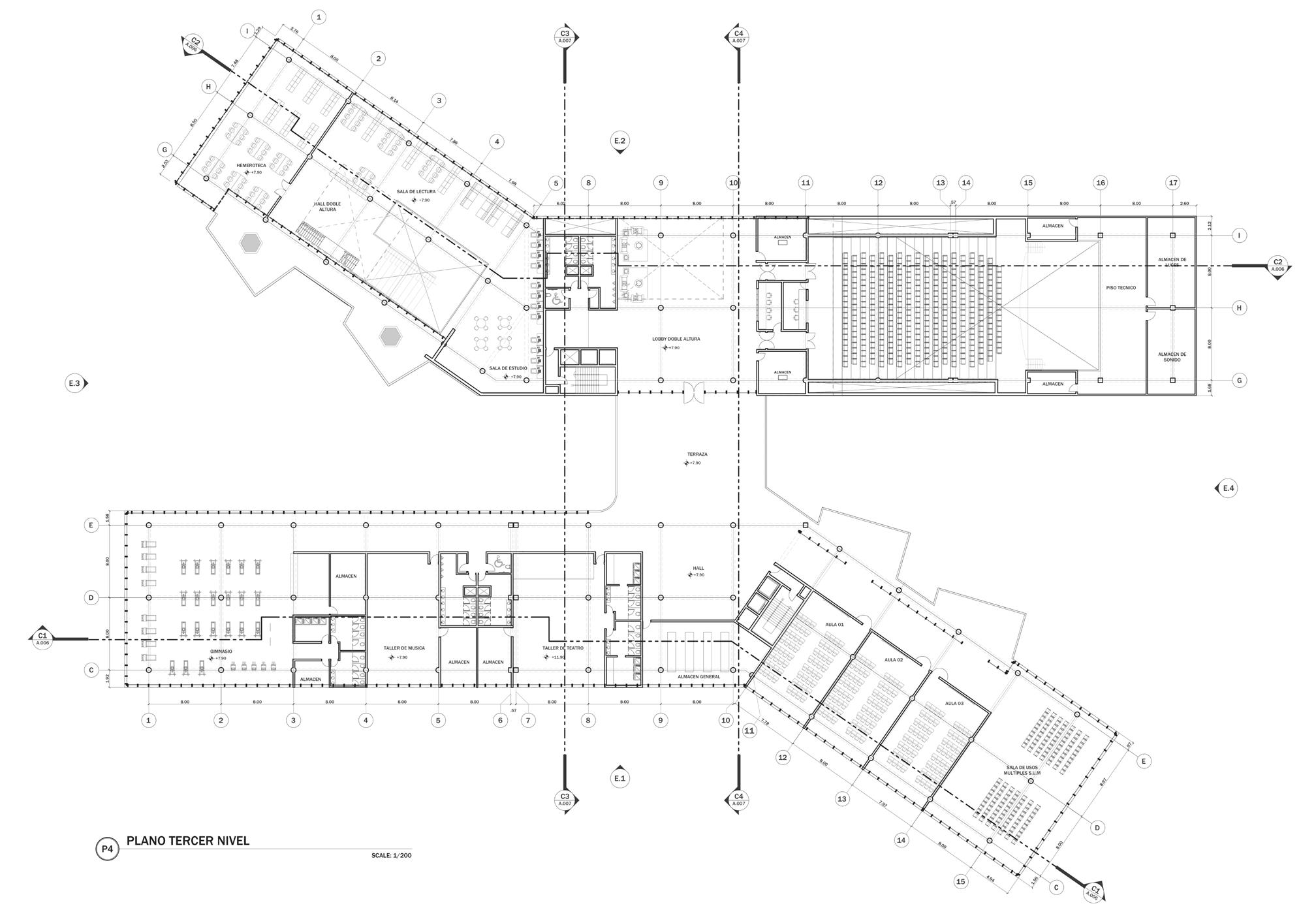
Planimetría

Portafolio | Proyectos de carrera | Eric Estrada Rodriguez 6
Portafolio | Proyectos de carrera | Eric Estrada Rodriguez 7

Maqueta

Portafolio | Proyectos de carrera | Eric Estrada Rodriguez 8
Maqueta | 1:250
Portafolio | Proyectos de carrera | Eric Estrada Rodriguez 9

Planimetría

Portafolio | Proyectos de carrera | Eric Estrada Rodriguez 10
Portafolio | Proyectos de carrera | Eric Estrada Rodriguez 11

Detalles

Portafolio | Proyectos de carrera | Eric Estrada Rodriguez 12
Portafolio | Proyectos de carrera | Eric Estrada Rodriguez 13

Biblioteca

Portafolio | Proyectos de carrera | Eric Estrada Rodriguez 14
Portafolio | Proyectos de carrera | Eric Estrada Rodriguez 15

Biblioteca

Portafolio | Proyectos de carrera | Eric Estrada Rodriguez 16
Portafolio | Proyectos de carrera | Eric Estrada Rodriguez 17
Portafolio | Proyectos de carrera | Eric Estrada Rodriguez 18
| Plaza central Render | Biblioteca
Render | Ingreso principal Av. Wisse
Render
Portafolio | Proyectos de carrera | Eric Estrada Rodriguez 19 Maqueta | General + Urbano

[Proyecto de carrera]

Recuperación del espacio

público y equipamiento cultural en la ribera del río Rímac.

Lima - Perú

Información año: 2020

Ubicación: Lima cercado

Tipología: Cultural, Recreacional Área: 9,500 m2

Software utilizado: Autocad, Sketchup, Photoshop, Lumion, Indesign.

Fotografia: Eric Estrada

Sobre el proyecto

La propuesta busca recuperar el espacio público de la ribera del río Rímac, adaptándose a la topografía del mismo y considerándola como parte de una propuesta integral de intervención en el río, desde Chosica hasta el Callao. Se han implementado dos equipamientos un anfiteatro y una biblioteca pública Se recupera una zona actualmente ocupada por el Campo Ferial Amazonas, y se revalora el paisaje urbano a través de una reforma integral arquitectónica.

Portafolio | Proyectos de carrera | Eric Estrada Rodriguez 20
02

Se recupera el espacio publico de la ribera del rio Rimac, adaptandose a la topografia e hidrologia inmediata. “

Portafolio | Proyectos de carrera | Eric Estrada Rodriguez 21

Planimetría

Portafolio | Proyectos de carrera | Eric Estrada Rodriguez 22 Planta general | 1:1000
Portafolio | Proyectos de carrera | Eric Estrada Rodriguez 23

Elevaciones

Corte A-A | Abancay 1/100

Corte B-B | Balta 1/100

Portafolio | Proyectos de carrera | Eric Estrada Rodriguez 24
Render | Anfiteatro
Portafolio | Proyectos de carrera | Eric Estrada Rodriguez 25
Render | Anfiteatro
Corte A-A | Anfiteatro 1/50

Detalles

Portafolio | Proyectos de carrera | Eric Estrada Rodriguez 26
Corte A-A | Biblioteca
Portafolio | Proyectos de carrera | Eric Estrada Rodriguez 27
Portafolio | Proyectos de carrera | Eric Estrada Rodriguez 28 Render | Biblioteca
Portafolio | Proyectos de carrera | Eric Estrada Rodriguez 29 Render | Anfiteatro
Render | Ingreso

[Proyecto de carrera]

Centro social y cultural como un edificio hito en el

Centro histórico de Lima.

Lima - Perú

Información

año: 2022

Ubicación: Lima cercado

Tipología: Cultural , Social Área: 7,600 m2

Software utilizado: Autocad, Sketchup, Photoshop, Lumion, Indesign.

Fotografia: Eric Estrada

Sobre el proyecto

El edificio hito se encuentra ubicado entre las avenidas Jr.Andahuaylas y Jr. Puno , un sitio estratégico para potenciar la arquitectura de valor del entorno inmediato como lo es el Convento de Santa Catalina que proporciona al edificio de una gran plazuela frontal y remates visuales dada por su monumental arquitectura del siglo XVII. Se propone un edificio que rescate y ponga en valor los patrones y elementos arquitectonicos del centro historico de Lima a traves de un analisis, exploracion y finalizando con una idea rectora que manifieste la riqueza arquitectonica del lugar y mantener un activo cultural a traves de una reforma arquitectonica.

Portafolio | Proyectos de carrera | Eric Estrada Rodriguez 30
03

Se propone un edificio que rescate y ponga en valor los patrones y elementos arquitectonicos del centro historico de Lima. “

Portafolio | Proyectos de carrera | Eric Estrada Rodriguez 31
Portafolio | Proyectos de carrera | Eric Estrada Rodriguez 32 Isometrico Explotado

Exploración

Isometrico Explotado CHL.

La exploración descompone en su forma mas básica los elementos y principios ordenadores del referente CHL para plantear de manera coherente una propuesta que eleve el diseño a un nivel de centro cultural. Para ello es necesario pensar en volumetría y corte que formen la espacialidad.

Portafolio | Proyectos de carrera | Eric Estrada Rodriguez 33

Planimetria

Portafolio | Proyectos de carrera | Eric Estrada Rodriguez 34
Corte Urbano A-A
Portafolio | Proyectos de carrera | Eric Estrada Rodriguez 35
Corte Urbano B-B

Elevaciones

Portafolio | Proyectos de carrera | Eric Estrada Rodriguez 36
Fachada Sur - Render
Portafolio | Proyectos de carrera | Eric Estrada Rodriguez 37
Portafolio | Proyectos de carrera | Eric Estrada Rodriguez 38
Render | Plaza elevada
Render | Fachada Este Render | Lobi de ingreso
|
| Eric Estrada Rodriguez 39 Render | Jiron peatonalizado
Portafolio
Proyectos de carrera

Turn static files into dynamic content formats.

Create a flipbook
Issuu converts static files into: digital portfolios, online yearbooks, online catalogs, digital photo albums and more. Sign up and create your flipbook.