
E S T H E R W U WORK COLLECTION
![]()

E S T H E R W U WORK COLLECTION
Brooklyn, New York
ewux8@pratt.edu | (626) 677-0357
https://ewux8 myportfolio com
Bachelor of Fine Arts, Interior Design
Pratt Institute
2022 - 2026
Associate of Arts, Interior Design
Los Angeles Mission College
2020 - 2022
Winner, Kravet Student Design Challenge, Hosted by ASID NY Metro, November 2024.
Gensler, New York,NY
Summer Intern - Design Center
Organized and cataloged samples in the Materials Library and Materials Hub.
June 2025 - August 2025
Coordinated sample returns and maintained resource availability for multiple design teams
Designed signage and resource boards to improve navigation and visibility in the Design Center.
Spearheaded a team of 6 to develop an intern capstone project focusing on subway design.
Pratt Institute, Brooklyn, NY
Interior Design Department Office Assistant
January 2024 - December 2025
Managed departmental operations, faculty/student communications, and office resources.
Assisted with archiving, poster design, and digital communications. Supported events, guest lectures, and prospective student outreach
Federation of Taiwanese Student Associations in New York
Outreach / External Vice President
May 2025 - Present
Led sponsorship outreach by connecting potential partners and proposing collaboration opportunities.
Maintained external relations with sponsors and partner organizations to ensure long-term partnerships.
Organized large-scale events across the New York metropolitan area for student and youth groups
Expanded visibility and engagement through strategic branding and outreach initiatives.
Welcome to my portfolio!
I’ve always believed in the power of design to shape how people experience the world. Design is deeply impactful, grounded in sustainability, functionality, and intention. Ever since I was a child, I’ve dreamed of becoming an interior designer, and over the years I’ve developed a diverse range of skills that strengthen my ability to tell stories, create strong concepts, and design functionally beautiful spaces for users.




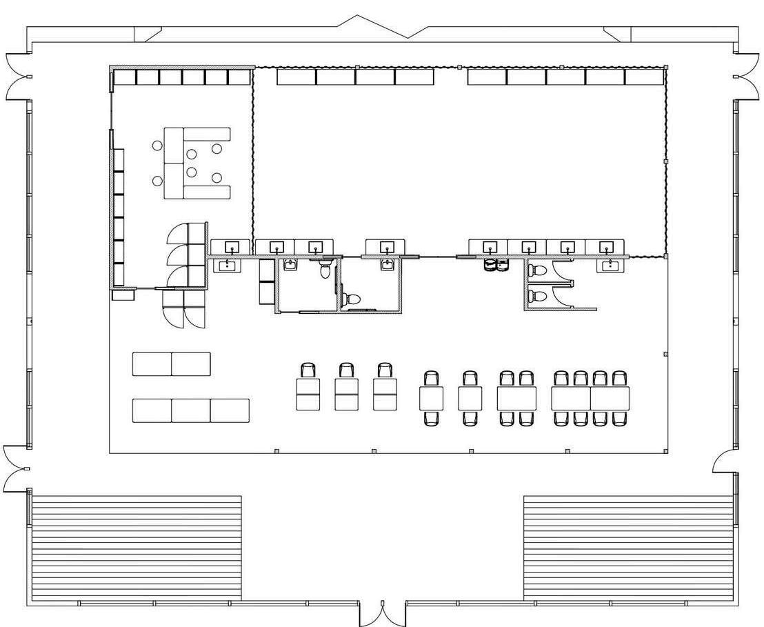
This project was developed during Gensler’s Summer Internship Program. Our team reimagined the historic 125th Street–Manhattanville Station, a key transit hub in Harlem that has not undergone a major redesign in over 75 years. Through user research and site analysis, we proposed a design that strengthens the station’s role as a community gateway while improving accessibility, public identity, and environmental performance


During our site visit, we interviewed daily users to understand their real needs. Many shared that they appreciate the station as it is and only hope for small improvements, showing how meaningful it is to East Harlem Even so, our observations revealed opportunities to enhance accessibility, sustainability, and comfort




INACCESSIBLE SUBWAY STATION
ACCESSIBLE SUBWAY STATION


From our site analysis and user interviews, accessibility emerged as a major issue. Despite repeated applications, the station still lacks ADA access. Our proposal adds a new elevator and a secondary entrance to improve vertical circulation and reduce congestion.












This project reimagines the 125th Street Manhattanville Station as a symbol of accessibility, sustainability, and community. By integrating inclusive circulation, wasteconscious design, and bio-based materials, the proposal celebrates Harlem’s heritage and reveals the stories embedded in its community history.
Through experiments with organic waste and natural pigments including spirulina and cochineal, we developed biodegradable bio tiles and plastic panels These materials not only visualize the energy of the Manhattanville community but also propose a sustainable alternative to conventional subway finishes.






Cheer Kitchen transforms an abandoned school auditorium in Columbia County, New York into a community kitchen that supports aging adults and low income residents. The project focuses on accessibility, nutrition, and social connection. Inspired by natural systems, the design uses biomimicry strategies to collect rainwater, filter air, and store resources. Adjustable kitchen surfaces and wheelchair accessible cooking stations allow elderly users to comfortably participate in cooking, learning, and community food production


The project is located in an abandoned school auditorium in Upstate New York, a space once filled with community voices By repurposing this underutilized site, it into a place to reconnect people through food


Cheer Kitchen addresses these health and social gaps by transforming local invasive plants into nutritious, affordable meals while creating community-based cooking opportunities
LIMITED ACCESS TO HEALTHY FOODS


COLUMBIA COUNTY HEALTH BEHAVIORS



Using locally abundant invasive plants, Cheer Kitchen promotes sustainable consumption and year-round food education.
Garlic Mustard - early spring and fall


SleepLess Than 7 Hours Obesity
Physical Inactivity Binge Drinking Smoking

As younger people leave for nearby cities, Cheer Kitchen supports the aging community by fostering social engagement, small-business opportunities, and intergenerational interaction.
Aging adults
→ Social engagement & small-business skills
Low-income residents
→ Cooking education & affordable food options

Rich in vitamins A and C
Contains fiber and omega-3 fatty acids
Multiflora Rose - early summer to fall

High in vitamin C, E, and carotenoids.
Ground to powder as a nutritional supplement.
Japanese Knotweed - early spring to summer

Rich in vitamin A, vitamin C, and resveratrol. An antioxidant linked to heart health.
Burdock - late summer to winter

Rich in fiber, calcium, and magnesium
Supports liver health and aids digestion.



Bromeliads form funnel-shaped leaves that capture rainwater and channel it toward the plant’s center, storing moisture for later use.





Mushroom gills form a dense, porous surface that controls airflow and filters particles through their layered geometry.




Basking sharks swallow great quantities of plankton, straining it from the water via specialized filters called gill-rakers.



Lotus flowers open and close their petals in response to light and temperature, protecting their core and expanding only when needed.







Honeypot ants use specialized workers with expandable abdomens to store nectar. These vessels provide nourishment to the colony when resources are limited.




Tree grow in multiple canopy layers, from ground shrubs to high treetops. Each layer offers different levels of light, temperature, and accessibility.

Basking Shark Layered plates inside the column mimic shark gillrakers, filtering debris as water moves downward






This design functions as a self-sustaining kitchen that supports elderly and physically challenged users. Inspired by bromeliads, basking sharks, and honeypot ants, the structure collects, filters, and stores water in a central core Foldable multi-height counters, informed by lotus petals and camel legs, improve accessibility, while mushroom-gill layers filter cooking air Together, these strategies create an inclusive and efficient cooking environment

Rainwater enters through the upper canopy and flows into the filtration column, while hot air and steam are directed upward by the ribbed gill-like geometry. The dual system integrates passive water harvesting with natural ventilation, reducing mechanical loads and improving accessibility.













The lower countertop opens automatically with a button, allowing wheelchair users and physically challenged individuals to access the surface without lifting

Standing users can manually close the upper panel with a light push or upward lift, following a natural forward motion



_Step_1. _Step_2. _Step_3.

The life cycle begins with harvesting edible invasive plants from nearby fields, turning unwanted species into useful ingredients.

The collected plants will be delivered to Cheer Kitchen, where they’re cleaned, processed, and prepared for cooking and nutrition programs.





Material
Made with local agricultural crop waste such as plant stalks and mushroom mycelium, it promotes sustainable material cycles and reduces environmental waste It’s fully biodegradable, compostable, and provides thermal, acoustic, and fire-resistant insulation, with its Class A fire rating and ultra-low VOCs.






Skal & Ink is a writers’ hostel on Copenhagen’s waterfront designed as a place for inspiration, rest, and creative exchange. The concept draws from Viking storytelling traditions and the imaginative spirit of Hans Christian Andersen, connecting local history with the act of writing. The name reflects this dual identity Skal references the shell and maritime character of the site, while Ink represents narrative, imagination, and storytelling
Nordre Toldbod 19, 1259 København, Denmark

Storage
Linen


Dorms


Activity Density
Main Circulation Path
Back-of-House Entry
Resident Only Entrance
Main Entrance
The blue path shows the main circulation route from the entrance to key areas. The gradient highlights areas with higher activity levels.
Color coding shows how the hostel’s programs are organized by function and privacy, guiding guests from social zones to quieter, private areas.

“Skal” (shell in Danish) brings in the local and coastal vibe, while “Ink” nods to storytelling and writing
Together, Skal & Ink means writers by the sea.




Benefit from natural lighting


At Nordre Toldbod 19, the hostel overlooks a historic harbor with generous daylight and views of the water and Kastellet The project is grounded in openness and landscape.
The concept centers on storytelling as a shared experience. Writers from around the world come to Skal & Ink seeking inspiration in a space that supports their creative process.
















The lighting strategy blends skylight daylight with ambient artificial lighting. Skylights provide soft natural light, while fixtures support evening use and circulation, creating a balanced, comfortable atmosphere.






Section A
Shows the lobby and bar area with bar seating, a photo booth, and adjacent dining.


Section B
Highlights the main lounge with flexible seating, a reading nook, and a social zone.





"Vase & Foliage" is a contemporary reinterpretation of an Ottoman textile archive piece, designed for modern interiors Inspired by the historic motif of vases and floral arrangements, this design distills its essence into a more abstract, geometric form.

Competition timeframe:
5 hours
Honor
Winner of Kravet Student Design Challenge
Material:
Velvet, Embroidered Elements, Woven Fabric
The pattern was developed across velvet, woven, and printed fabrics to explore how material affects texture, color depth, and visual expression Each material offers a different character, allowing the design to adapt to various interior applications such as upholstery, curtains, and wall coverings while maintaining the same graphic language.



The design process began with studying an archival Ottoman textile and extracting its botanical motifs. Through sketches and iterative studies, the original vase forms were simplified into geometric lines and stylized leaves The final pattern preserves the essence of the historical reference while translating it into a contemporary composition.

The design wasn inspired by shattered glass, this tile freezes fragmentation in time he interplay of light with the tiles creates a layered depth, adding to the shattered glass concept Depending on the sun’s position or lighting conditions, the sharp lines cast intricate shadows, further enhancing the idea of fragmented glass.

Size:
12"W x 12"L
Material:
CNC, 3D Printing
Software Programs:



The modular wall panels feature a textured geometric pattern formed by interwoven lines, creating a contemporary and sculptural surface Crafted through CNC fabrication and 3D printing, the panels evoke a warm, wood-like materiality while introducing a modern aesthetic through angular, abstract motifs. Their layered arrangement enhances depth and dimensionality, and the play of light across the surfaces highlights the pattern, adding subtle contrast and visual interest to the space.















Pond, 2023
Textile and mixed media
Esther is a designer currently completing her BFA in Interior Design at Pratt Institute in Brooklyn, New York. Born in the United States and raised in Taiwan, her multicultural background informs her interest in the relationships between people, culture, and the spaces they inhabit. Her design work explores themes of storytelling, user experience, materiality, and community engagement, often focusing on how environments can improve everyday life and support diverse users.
(626)-677-0357 c Brooklyn, NY
ewux8@pratt.edu