

Estefanía Llave portafolio
ESTEFANÍA LLAVE

Tengo 21 años. Estudiante de Arquitectura en la Universidad Peruana de Ciencias Aplicadas (UPC) y perteneciente al Grupo de Excelencia Académica. La arquitectura me apasiona, y siempre busco aprender y explorar nuevas ideas. Creo en diseñar espacios que no solo sean funcionales, sino que también conecten con las emociones y mejoren la calidad de la vida de las personas.
estefaniallave30@gmail.com +51 979 979 169 https://www.linkedin.com/in/estefania-llave/
IDIOMAS
Español (Lengua materna)
Inglés (avanzado. FCE. nivel C1)
Alemán (intermedio. DSD I. nivel B1)
EDUCACIÓN
2020 - Act.
2000 - 2019 2021
Colegio Santa Úrsula
Educación primaria y secundaria. Bachillerato internacional (IB)
Universidad Peruana de Ciencias Aplicadas (UPC)
Educación superior
Perteneciente al Grupo de Excelencia Académica (GEA)
EXPERIENCIA LABORAL
Freelancer
Elaboración de planos y renders para la remodelación del laboratorio clínico GastroLab
Ene.-Mar 2023 y 2024
Gianfranco Fassioli Arquitectos
Realización de visualizaciones 3D y planimetría
LOGROS PROGRAMAS
AutoCad
SketchUp
Revit
Rhinoceros
Grasshopper
Enscape
Twinmotion
Lumion
D5 Render
Photoshop
InDesign
Illustrator
Premiere Pro
After Effects
2020-1
2021-2
2022-1
2022-2
2023
TI - Primer puesto Proyecto parcial y final
TIV - Primer puesto Proyecto final elegido para exhibición
TV - Segundo puesto Proyecto final
TVI - Segundo puesto Proyecto final
Primer puesto
En proyecto de emprendimiento e innovación social, evualuado por el Tecnológico de Monterrey y UPC
2023-1
TVII - Segundo puesto Proyecto final
TABLA DE CONTENIDO
Taller 6 / 2022-2
Edificio híbrido Ingenium
pág. 06

Taller 7 / 2023-1
Edificio híbrido
pág. 18

Taller 8 / 2023-2
Centro
pág. 30
comunitario en Texas
Taller 5 / 2022-2
Ecolodge en Cieneguilla
pág. 36




EDIFICIO HÍBRIDO INGENIUM
Taller VI / Cátedra: Gómez + Chang 2022-2
El edificio híbrido se encuentra en el distrito de San Beatriz, en cuyos alrededores se desarrollan actividades de ocio, comercio y educación. El proyecto busca realzar a su entorno, al distrito de San Beatriz, y así crear un hito urbano que permita unir a la comunidad y atender a sus necesidades.

Segundo puesto en el taller


Render: SketchUp, Enscape, Photoshop
Ubicación
El proyecto está ubicado en el cruce entre la avenida Arequipa y el Jirón Saco Oliveros, en el distrito de San Beatriz, Lima, Perú, frente a la parque Cervantes y con gran cercanía a la Universidad Inca Garcilaso de la Vega y el Estadio Nacional.





Conectividad con la casa histórica + relación con la esquina
Alineación con el edificio vecino de 11 pisos
Volumen que conecta a los dos volúmenes verticales principales. Se mantiene la diagonal principal.
Conexión con el parque. Se usa la relación de alturas y el lenguaje volumétrico de la casa histórica
Concepto: Conectividad
El edificio busca mantener todos los aspectos del terreno y del entorno conectados. Con la misma volumetría, se logra una relación directa con la casa histórica vecina (pudiendo acceder directamente a su patio trasero, y adaptando su lenguaje de volumen vertical con uno horizontal), el parque, la esquina, y el metro subterráneo. Asimismo, la volumetría crea un lenguaje de horizontales y verticales que reflejan el movimiento de una “L”, lenguaje que también se puede encontrar en las casas históricas en el entorno
Diagrama isométrico: SketchUp, Illustrator
Soporte
La fachada está compuesta por módulos móviles de planchas de policarbonato opalino. De esta forma, permite la protección de los rayos solares, permitiendo el ingreso de sol moderado, pero a su vez permitiendo obtener vistas hacia el exterior. En el techo final se colocaron paneles solares para la protección de los techos y aprovechar energías renovables, y en los techos posteriores se colocó vegetación para evitar que los techos se sobre-calienten.
Se cuenta con una estructura suspendida superior y a una viga Vierendeel para lograr un espacio que no sea interrumpido por elementos estructurales. Asimismo, se utilizó una junta estructural de 20 cm entre el volumen de 55 m y 36 m. Debido a la diferencia de altura, existe un gran riesgo de falla estructural debido al distinto comportamiento y pandeo que estos edificios tienen frente a un sismo.

Estructuras


Volado
Viga Vierendeel
Sistema aporticado
Columnas principales

Elevación: SketchUp, Enscape
Escantillón: AutoCad, Photoshop

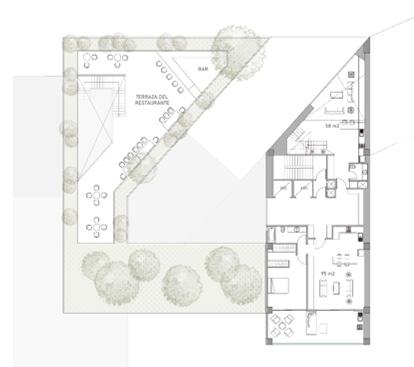
El concepto con el que desarrolló el proyecto es la conectividad. Con el diseño del primer piso, se logra crear un área acogedora tanto para los habitantes como residentes de la zona. Asimismo, logra unir a los lugares principales más cercanos al edificio: El edificio de CONADIS, que se convertirá en una edificación cultural que aporte al edificio híbrido, el parque, conectado a través de un puente, y a la estación de la línea 3.
Primera planta
Plantas: AutoCad, Photoshop



El programa cuenta con funciones culturales, ocio, comercio, y vivienda. La función de vivienda se encuentra en los últimos pisos del edificio, y están diseñados para un usuario que es un joven adulto, y en su mayoría residente temporal. Por lo tanto, se crearon dos módulos de departamentos de un dormitorio.
Sótano
Planta de vivienda

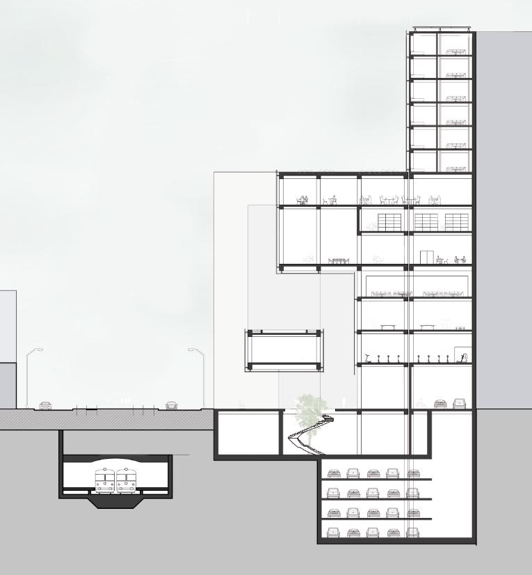
Corte del proyecto, pasa por la Linea 3 del metro
Corte: AutoCad, Photoshop

Espacialidad
El proyecto cuenta con una gran escalera vertical que conecta al primer piso con el nivel subterráneo, que cuenta con una zona de comercio y a la subestación del metro.
Asimismo, implementando el uso de una viga Vierendeel, se creó un puente que conecte al edificio con el parque, sin interrumpir al flujo vehicular. Asimismo, se aprovechó este puente para utilizar su techo para un área verde que aporte a la ya existente de sus alrededores.
Corte del proyecto, pasa el puente que conecta al edificio con el parque.

Maqueta física de la estructura del proyecto

Maqueta física del proyecto
Maquetas físicas: Elaboración individual. Acrílico. Cartón maqueta. Mica pavonada.
EDIFICIO HÍBRIDO EN ANCÓN
Taller VII / Cátedra: Romero + Chang / 2023-1
El proyecto se ubica frente a la Plaza Central de Ancón. El proyecto busca satisfacer las necesidades de la población de la zona, así como de aquellos trabajadores temporales como de turistas. Asimismo, se tomaron en cuenta las características de la tipología residencial de Ancón, pero otorgándole a su vez una forma más libre y dinámica, logrando un equilibrio entre ambos.

Segundo puesto en el taller




Ubicación
El proyecto se ubica frente a la Plaza Central de Ancón, encontrándose en un punto estratégico del lugar, creando un potencial para el diseño de un hito que una a todos los tipos de usuario de la zona y que recoja los usos que complementen a los usos alrededor del terreno.
Primera planta



CEBRE - Mediateca
CEBRE - Piscina


Planta de vivienda
Función
El proyecto tiene 10 pisos, los cuales incluyen: 14 tiendas, 1 minimarket, 18 Stands, 1 cafetería de paso, 17 departamentos de viviendas temporales de 1 y 2 dormitorios, un centro de salud básico con atención de emergencias y CEBRE. El proyecto se ha integrado con el parque y las calles aledañas usando un diseño dinámico y al mismo tiempo ortogonal, lo cual hace que la relación con el contexto sea natural. El sistema estructural principal (aporticado) permitió conseguir una forma del vacío principal planteado que armonizara con el resto de la volumetría. Este vacío también permitió un puente que se planteó como zona de mesas y mirador, y estructuralmente se utilizó una viga compuesta para esta parte.
Centro de salud - Emergencias


Corte transversal
Volumen y espacialidad
Se utilizó un escalonamiento en el volumen, consiguiendo una transición de alturas y, a su vez, visuales ininterrumpidas que se complementan con los espacios de doble altura incluidos en el proyecto. Asimismo, se emplea el uso de curvas para mantener una volumetría fluida. Mientras que, hacia la zona de la plaza mantiene una forma más libre y dinámica, hacia las casas vecinas se utilizó un lenguaje más ortogonal y que rescata características de la tipología residencial de Ancón, como el uso del pórtico. Asimismo, la forma logra que ambos lados del lugar se conecten sutilmente.

Vivienda Educación
Corte longitudinal
Comercio
Espacialidad
El interior del proyecto goza de sensaciones espaciales con cambios de alturas, interrelación visual entre los diversos niveles de la zona comercial, transparencia y vistas agradables hacia el mar. La arquitectura que se ha querido transmitir a los usuarios es la de un espacio abierto con interrelación directa con su entorno: playa y plaza.
Las vistas principales hacia la playa tienen una orientación suroeste, lo cual obligaron a plantear elementos de diseño para evitar la penetración solar directa durante los meses de verano: parasoles verticales, aleros y balcones. Las ventanas orientadas hacia el norte, noroeste y noreste no requieren de estos elementos de protección solar.




DE 8mm RELLENO DE CONCRETO
El sistema estructural principal es el aporticado, y para el gran volado se logra a través de una viga compuesta o viga vierendeel, bajando columnas en puntos estratégicos para sostener a todos los volados de la parte frontal.
Se tuvieron en cuenta detalles del proyecto para su realización para lograr el total confort. Por ejemplo, se consideró al confort acústico sobretodo para la vivienda, evitando así cualquier malestar. Para ello, se utilizó un aislante de ruido de impacto en las losas del proyecto.










MALLA DE RETRACCIÓN GALVANIZADA DE 5mm VACIADO DE CONCRETO PLACA COLABORANTE
PINTADO DE COLOR GRIS CLARO MATE
VIGA METÁLICA DE COLLARÍN DE PERFIL 30x15cm MOLDURA FRONTERA
PERNOS DE ANCLAJE DE 4'' TAPA DE SUPERBOARD, TARRAJEADA Y ACABADO EN COLOR GRIS CLARO MATE
LOSA DE PLACAS DE YESO


CRISTAL TEMPLADO INCOLORO DE 12mm
JARDINERA PROFUNDIDAD 40cm
PARAPETO DE CONCRETO ARMADO h=0.50cm CONSIDERAR UNA PENDIENTE DE 0.5% HACIA LA JARDINERA
GEOMEMBRANA DE POLIETILENO
LOSA DE PLACA COLABORANTE
TARRAJEADO Y ACABADO EN COLOR GRIS CLARO MATE
PINTADO DE COLOR GRIS CLARO MATE
VIGA METÁLICA DE COLLARÍN DE PERFIL H 25x15cm
TAPA DE SUPERBOARD, TARRAJEADA Y ACABADO EN COLOR GRIS CLARO MATE
LOSA DE PLACAS DE YESO
CRISTAL TEMPLADO INCOLORO DE 12mm
HELECHOS
PARAPETO DE CONCRETO ARMADO h=0.50cm CONSIDERAR UNA PENDIENTE DE 0.5% HACIA LA JARDINERA
TIERRA VEGETAL CANTO RODADO
GEOMEMBRANA DE POLIETILENO
TUBERÍA DE DRENAJE / SUMIDERO d=3''
FRONTERA
BLOQUES DE CONCRETO 39x12x9cm


















BARANDA DE MADERA 2''x4''; ALTURA 1.10m
PANEL DE CRISTAL TEMPLADO INCOLORO DE 10mm
TARRAJEADO Y ACABADO EN COLOR ARENA MATE

TARRAJEADO Y ACABADO EN COLOR BLANCO MATE
VIGA METÁLICA EXPUESTA CON ACABADO CON PINTURA DE COLOR GRIS CLARO MATE
BARANDA DE MICROCEMENTO, PREFABRICADO ALTURA 1.00m
PARAPETO DE MICROCEMENTO, PREFABRICADO COLOR BLANCO HUMO
MAMPARA CORREDIZA DE CRISTAL TEMPLADO INCOLORO DE 10MM CON MARCO DE ALUMINIO INOXIDABLE
PANEL DE CRISTAL TEMPLADO INCOLORO DE 12mm
VIGA METÁLICA EXPUESTA











PANEL DE CRISTAL TEMPLADO INCOLORO DE 12mm




















PANEL DE CRISTAL TEMPLADO INCOLORO DE 12mm
ACABADO CON PINTURA DE COLOR GRIS MATE PANEL DE CRISTAL TEMPLADO INCOLORO DE 12mm


















CENTRO COMUNITARIO EN TEXAS
Taller VII / Cátedra: Jones + Martinez / 2023-2
Ubicado en San Antonio, Texas, se abordó el desafío de diseñar bajo las normativas y el sistema constructivo de Estados Unidos. El resultado es un centro cultural y comunitario que responde a las necesidades de la población local, mayoritariamente latina.
El proyecto ofrece espacios multifuncionales que promuevan la integración social y el aprendizaje. El proyecto destaca por su adaptabilidad y sostenibilidad.

Primer puesto en el taller


Render: Revit, SketchUp, Enscape, Photoshop
El proyecto se organiza alrededor de un espacio central de triple altura que actúa como un núcleo articulador, conectando tanto visual como funcionalmente todos los ambientes. Además, se respetaron las normativas del lugar, como las distancias entre escaleras de evacuación, garantizando la seguridad y accesibilidad.
La fachada del proyecto incorpora un sistema de paneles metálicos perforados, diseñado para ofrecer protección frente al asoleamiento. Estos paneles están ubicados estratégicamente en función del recorrido solar, logrando un balance óptimo entre control térmico, iluminación natural y estética arquitectónica.

Perspectiva y acercamiento al cerramiento de la fachada
Construcción
El sistema constructivo del proyecto se basa un sistema aporticado, utilizando columnas, vigas y cerchas de acero estructural, y complementado con paredes de drywall. Se tomó en cuenta la correcta continuidad del aislamiento térmico.
Planta del segundo piso
Corte A-A

ECOLODGE EN CIENEGUILLA
Taller V / Cátedra: Noboa + Vergara / 2022-1
En este terreno en Cieneguilla, con una forma y topografía cóncava, se plantea una tipología de hospedaje sostenible e innovadora: el Ecolodge. Junto con el concepto de la Biofilia, que supone una necesaria unión e integración con la naturaleza, se busca lograr la conexión del proyecto y el usuario con su entorno natural. De esta manera, se realizó un diseño arquitectónico que priorizara la preservación y la apreciación del medio.


Ubicación y función
El Ecolodge se encuentra en Cieneguilla, en un terreno con forma y topografía cóncava. El proyecto se plantea en seis niveles principales: ingreso, instalaciones eléctricas y estacionamientos; zona de recepción, administración, servicios y restaurante; área social; y finalmente los niveles superiores donde se ubican las cabañas.
La zona inferior (área administrativa y de servicios, hall de ingreso y restaurante) fue diseñada en base a volúmenes separados pero integrados virtualmente por un eje longitudinal y con una transición de los materiales predominantes: piedra, ladrillo, madera y cemento solaqueado.

Cieneguilla

Diseño entorno a la topografía
La comunicación de las diversas zonas se facilita por medio de rampas y escaleras estratégicamente trazadas en la ladera logrando una pendiente adecuada de acuerdo a la diferencia de niveles.
Los volúmenes fueron colocados en el terreno de tal manera que la distancia de altura entre ellos permita que la vista al paisaje no sea interrumpida.
La arborización y arquitectura paisajista complementa perfectamente todo el diseño propuesto en este Proyecto.





Cabaña matrimonial
Cabaña familiar

Las cabañas
Las cabañas poseen una propiedad de flexibilidad, creando un diseño modular que pueda adaptarse y transformarse según las distintas necesidades del huésped: ampliarse o reducirse en ambientes. Para el emplazamiento de las cabañas se han trazado cuatro líneas imaginarias que siguen la topografía en los diversos niveles. La idea principal es la de crear un orden visual que ayuda a los usuarios a reconocer rápidamente la ubicación de sus cabañas. La orientación de las cabañas logra que los usuarios gocen de una vista periférica de todo el paisaje y una correcta iluminación y ventilación.

Cabaña económica




Zona social
El trazo utilizado para el diseño se ha basado en líneas oblicuas y perpendiculares que al cruzarse forman espacios tensionados y escultóricos. Los bocetos iniciales buscaron la correcta armonía con el paisaje, el respeto por la arborización existente y la coherencia entre la funcionalidad y el manejo de los espacios. El resultado final es una arquitectura con personalidad propia, respetuosa de la naturaleza pero a la vez con un lenguaje de vanguardia, utilizando materiales que predominan en el entorno.



Estefanía Llave Vásquez estefaniallave30@gmail.com +51 979 979 169
https://www.linkedin.com/in/estefania-llave/