

arquitectura y diseño
![]()


arquitectura y diseño
lauraginebra.arquitectura@gmail.com / 664 234 7472
Profesional con años de experiencia en gestión de proyectos de construcción y diseño arquitectónico. He dirigido proyectos desde el diseño hasta la entrega de una gran variedad de edificaciones, garantizando la entrega en tiempo y forma.
Arquitecto Proyectista / Independiente 01/2021 – Actual
• Anteproyecto casa habitación familia Calderón Oviedo.
• Proyecto ejecutivo de bodegas comerciales de Javier Guzmán.
• Proyecto para ampliación de despacho jurídico. Lic. Teresa Ávila.
Arquitecto Proyectista / Arquitecto Simón Orozco 01/2019 – Actual
• Elaboración de anteproyectos y proyectos ejecutivos
Docente / Instituto Tecnológico de Tijuana 08/2017 – Actual
• Impartir talleres de creatividad, dibujo y construcción.
• Clases de análisis proyectual y de geometría descriptiva.
• Proporcionar al alumno conocimientos necesarios para fomentar el pensamiento creativo, la comunicación efectiva y el trabajo en equipo.
• Asesoramiento y guía continua a los estudiantes en su trabajo académico.
• Seguimiento de plan curricular de la institución para cada curso.
• Evaluación periódica de los estudiantes mediante exámenes y proyectos.
Ing. Diseño / Custom Cabs Ind.
05/2014 – 09/2015
• Diseño detallado y personalizado de elevadores.
• Análisis de contrato.
• Cálculo de peso y verificación.
• Órdenes de compra de material y seguimiento de entrega al cliente.
Residente de Obra / Inmobiliaria El Aguila de Tijuana
08/2013 – 12/2013
• Supervisar ejecución de los trabajos en tiempo y forma.
• Control de personal y administración de material.
• Reportes fotográficos, estimaciones y generadores.
Supervisor de obra / BBG Wireless
07/2012 – 08/2013
• Garantizar al cliente estándares de calidad en la ejecución constructiva y administrativa.
• Trato directo con usuarios, proveedores y personal de obra.
Auxiliar administrativo de obra / GRA Arte, diseño y construcción
12/2011 – 07/2012
• Control administrativo de obra.
• Trato directo con proveedores y persona de obra.
• Elaboración de anteproyectos y láminas de presentación.
Dibujante / MB Servicios de topografía y construcción
03/2011 – 11/2011
• Dibujo de proyectos de obra civil.
• Láminas de presentación de proyectos
• Digitalización de memoras de cálculo y memorias fotográficas
lauraginebra.arquitectura@gmail.com / 664 234 7472
Arquitecto: Curso de legislación urbana para el municipio de la ciudad de Tijuana, B.C., D.R.O. / 2023 Colegio de Ingenieros Civiles de Tijuana
Diseñador de Interiores: Diplomado de Diseño de Interiores / 2012 U.I.A.
Arquitecto: Licenciatura en Arquitectura con especialidad en Arquitectura Sustentable / 2009
Instituto Tecnológico de Tijuana
Representante: 1er Concurso Repentina / 2008
C.A.T.A.C.
• Autocad (2D y 3D)
• Sketch Up
• 3D Studio Max (básico)
• Corel Draw
• Photoshop
• Paquetería Ofce
• Español (Lengua nativa)
• Inglés conversacional (nivel 6B Quick Learning)
• Responsable
• Organizada
• Liderazgo
• Proactiva

arquitectura y diseño
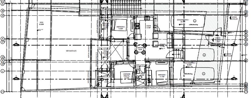
Cliente Loth Dolores



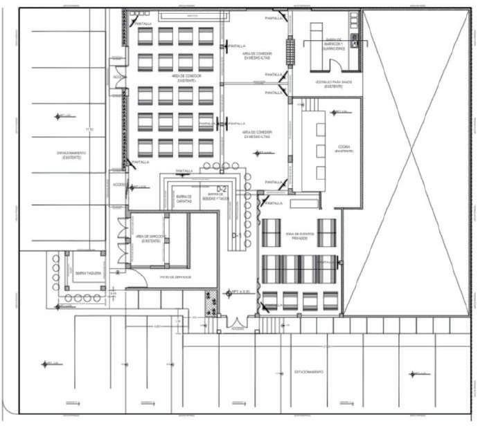
Cliente Carnitas Morelianas




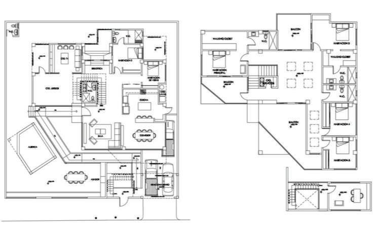
Residencia Miriam Camarena



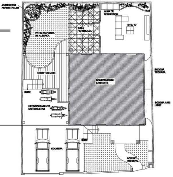
GRAARTE
Diseño y Construcción

Participación en la supervisión de remodelación y ampliación del Aeropuerto Internacional de Tijuana, en áreas específicas de jardinería, jardín de acceso, construcción de boleteras y acabados de interiores.
