EM-Work Samples-1

Page 1

Esra Martin, AIA, LEED A.P.

RECENT DESIGN WORK

All Design / Planning Work and Renderings done entirely by Esra Martin

Center

Building A- Shady Grove Life Sciences
Rockville, MD 2020-Current Master Plan
Site Plan BLDG - A BLDG B BLDG - C BLDG A 194,190 sf(6 levels) 611,897 sfTOTAL GROSS FLOOR AREA (without penthouse) BLDG-B BLDG-C (6 levels) (5 levels) 263,692 sf 154,015 sf GROSS FLOOR AREA (with penthouse) 280,392 sf 197,690 sf 157,515 sf 635,8597 sf
Bldg A / Plaza View Phase I
Bldg A /
Main Entrance View
Phase I
Bldg A&B / Road View Phase II
Bldg B / Road View Phase II
Bldg B / Plaza View Phase II
Bldg C / Road View Phase III
Bldg C / Plaza View Phase III

PATTERN

PATTERNS

7.6’ 8.6’ FRIT
GL-1 & GL- 2 16’ 7’ 3 ½” 8’3 ½ ” Spandrel Vision Glass GL-4 GL-3 (Human DNA Sequence) FRIT
GL- 3 & GL- 4
Building A Skin Design Development BIM modeling
Design Development Massing Diagrams
Design Development Massing Diagrams
Design Development Massing Diagrams
Design Development Massing Diagrams

Design Development

A B C
Bldg Skin Design

Design Development

Design

A B C
Bldg Skin

PLAZA ELEVATION

Design Development Bldg Skin Design

FRONT ELEVATION

Building

Lobby Interior Design

Main Entrance Plaza EntranceLobby / Reception Desk
A
Building A Lobby Interior Design

Parking Garage -

Grove Life Sciences Center

Shady
Rockville, MD 2020-Current
Front Entrance View Back Entrance View

Hillsmere Elementary School

Entrance View Site/ Floor Plan

Annapolis, MD 2020-Current
Early Site Plan Studies

Interior Design

Vestibule

/
Interior Design / Public Spaces

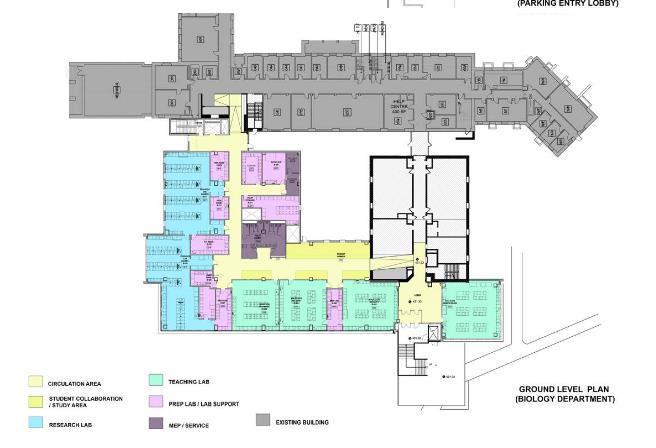
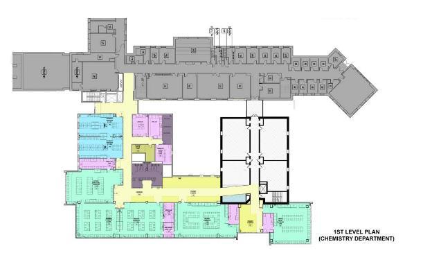
Gaucher Collage- Hoffberger Science Building Edition Towson, MD 2016 - Current

Schematic
Phase Design
Schematic Phase Design
Final CD Phase
Final CD Phase
Final CD Phase
Final CD Phase
Basement Level Lobby
Ground Level Stair Hall
First Level Collaboration Space

Turn static files into dynamic content formats.

Create a flipbook
Issuu converts static files into: digital portfolios, online yearbooks, online catalogs, digital photo albums and more. Sign up and create your flipbook.
EM-Work Samples-1 by esra martin - Issuu