
Interior Design Portfolio
Raffles University
Faculty of Built Environment & Regenerative Design

WABI-SABI
This project explores a Wabi-Sabi-inspired residential interior through natural materials, muted tones, and soft lighting. The design creates a calm and balanced living environment that celebrates simplicity, warmth, and quiet beauty.

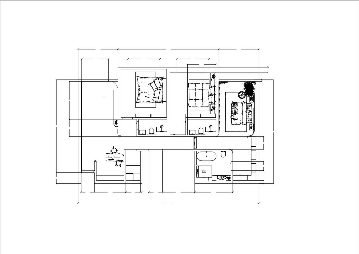
The floor plan is organized to create a clear balance between shared and private spaces.
The living, dining, and kitchen areas are connected in an open arrangement to support daily interaction, while the bedrooms and bathrooms are positioned to provide privacy and comfort. A central corridor links the spaces smoothly, creating a calm and functional flow that reflects the simplicity and harmony of the WabiSabi concept.








LIVING AREA


ENTRY & KITCHEN
DINING & KITCHEN AREA
CORRIDOR










