



Oven,Dishwasher,Microwave,CountertopRange,Refrigerator,Washer,Dryer,
(See Remarks) Area Amenities: Shopping,Park,Walk/JogTrails,GolfCourse,MedicalFacility,HighwayAccess,HouseofWorship,Marina,PublicSchool
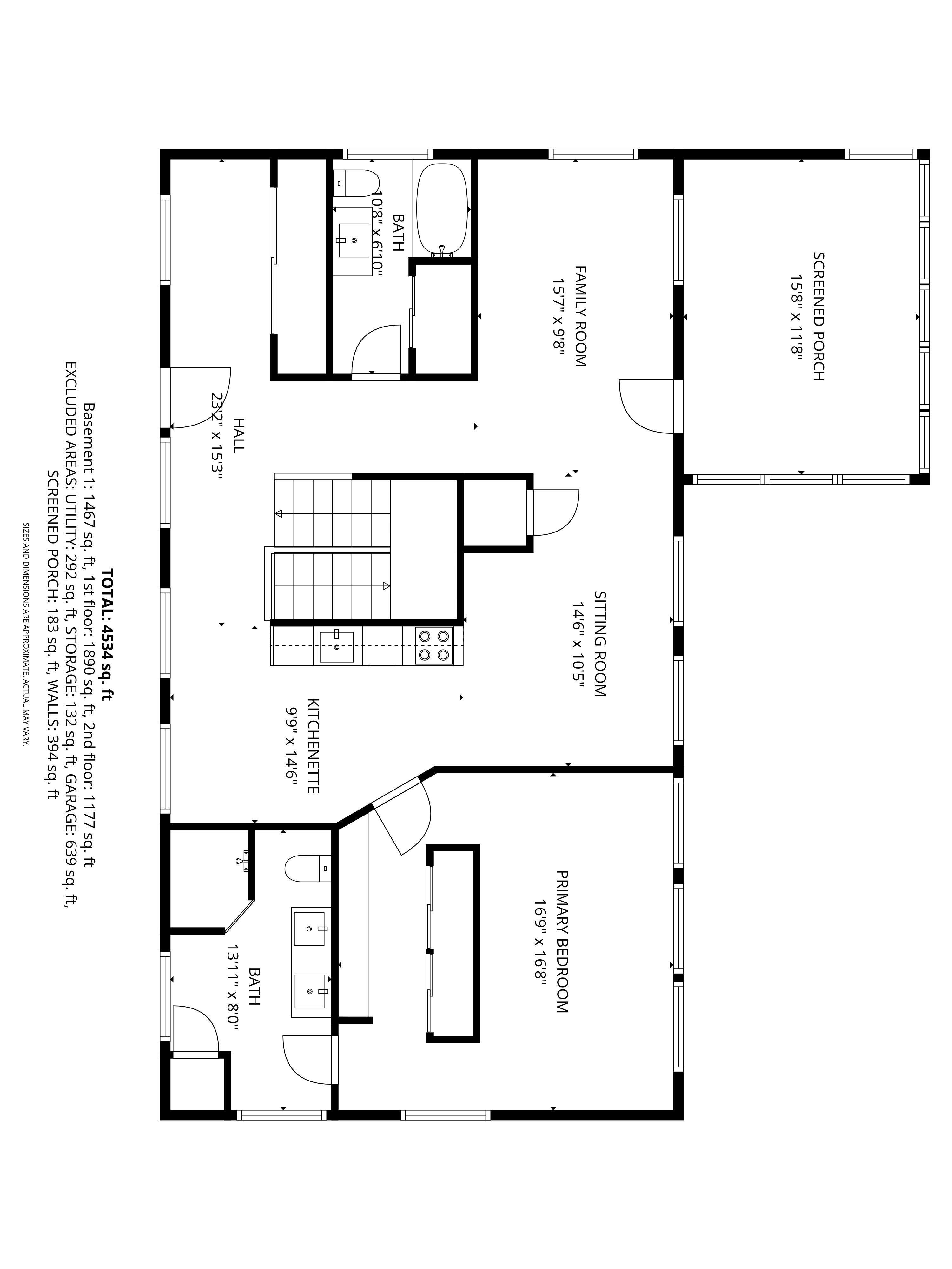
Basement: Yes Full,PartiallyFinished,WalkOut,InteriorAccess,ConcreteFloor,ExteriorAccess
Beach: Yes Bay
Beach Ownership: Public
Beach - Miles to: 1/10to3/10
Construction: Frame
Electric: 220Volts,200Amps
Energy Features: Prog Thermostat
Exteror: Shingles,Wood
Exteror Features: Porch,Porch-Screened,Deck,Deck-Roof,Deck-Wood,CoveredPatio/Deck,Pool-AboveGroundHeated,Gutters,StorageShed,ProfessionalLandscaping, FruitTrees,GardenArea
Flooring: Wood,Tile,Hardwood
Foundation Size:
Foundation Description: PouredConcrete
Hot Water: Electric,Tank
Insulaton: Full,BlownIn
Interior Features: CentralVacuum,CableAvailable,Other(SeeRemarks)
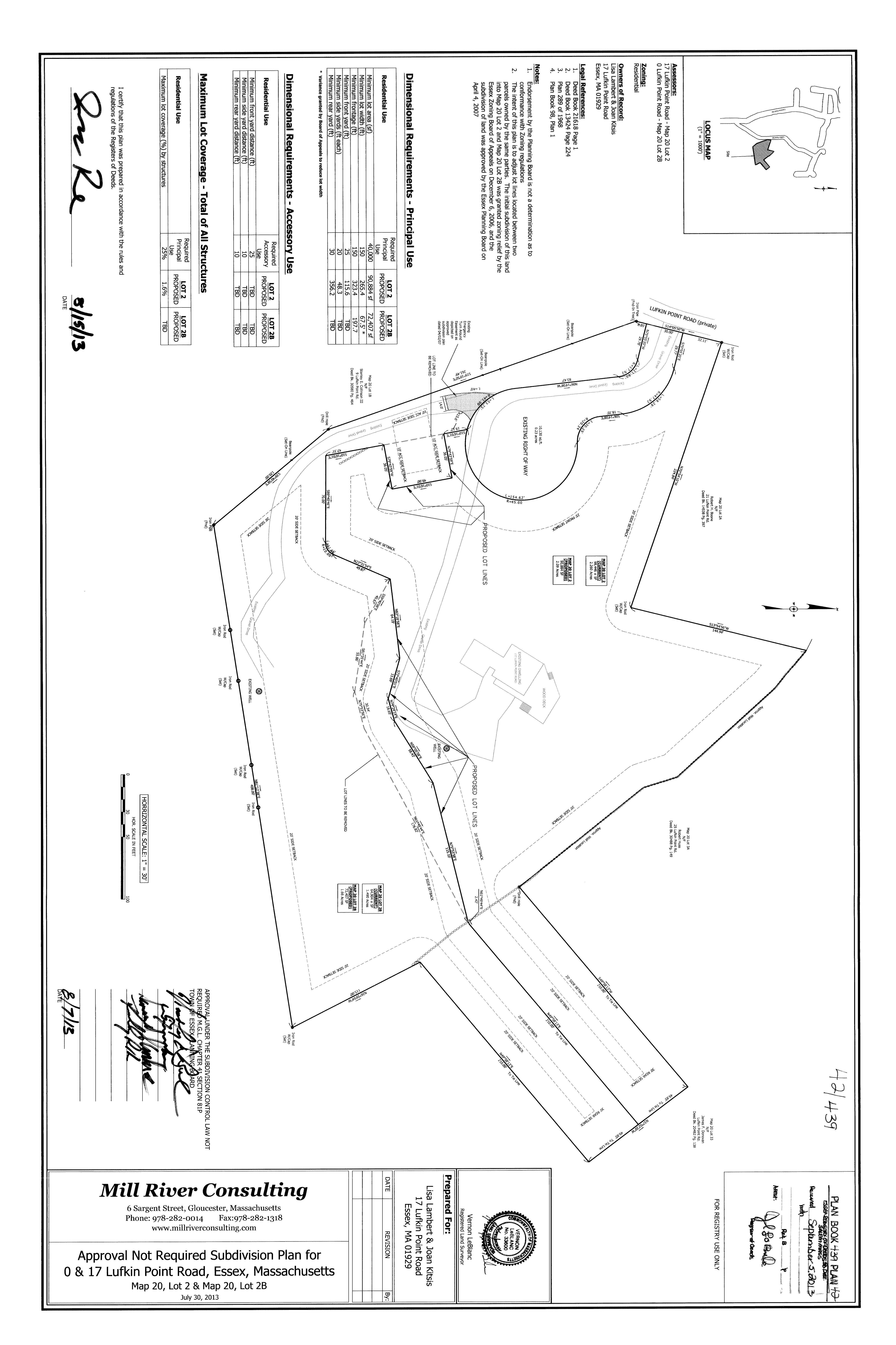
Lot Description: Wooded,PavedDrive,Easements,SharedDrive,GentleSlope,ScenicView(s)
Road Type: Public
Roof Materia: Metal,Vegetation/Garden
Sewer Utiities: PrivateSewerage-Title5:Passed
Terms: ContractforDeed
Utility Connections: forElectricRange,forElectricDryer,WasherHookup,OutdoorGasGrillHookup
Water Utilities: PrivateWater
Waterfront: Yes Creek,Marsh
Water View: Yes Bay,Creek,Marsh,Ocean,River
Office/Agent Information
Listing Office: Engel&VolkersBytheSea (978)865-1168
Listing Agent: AndreeGillianGroup(978)985-2441
Team Member(s):AndreeRobert (978)290-2360;GillianHarnishBouchie (978)985-2441
Sale Office: Sale Agent:
Listing Agreement Type: ExclusiveRighttoSell Entry Only: No
Showing: Sub-Agency: CallListAgent,AccompaniedShowings,AppointmentRequired,EmailListAgent
Showing: Buyer's Broker: CallListAgent,AccompaniedShowings,AppointmentRequired,EmailList
Showing: Fac itator: CallListAgent,AccompaniedShowings,Appointment

























