ARCHITECTURE PORTFOLIO
Emmanuel Therency
05-08
![]()
05-08
Materials & Methods - Wood Framing Model 01-04 Special Studies - Generative 3D Object
Shape Into Form - Park Pavilion
I am a Fifth-year Architecture student at Florida A&M University, seeking an internship to expand my knowledge and skills in the field. I am open-minded and continuously motivated to embrace challenges that foster my growth as an individual.
Currently completing the fifth year of the Bachelor of Architecture program at Florida A&M University, with the intention of pursuing architectural licensure. Recognized by faculty and peers as a highly committed, organized, and design-focused individual with strong conceptual and technical skills. Proficient in BIM workflows and graphic communication, and open to diverse opportunities that further refine technical expertise, expand architectural understanding, and contribute to meaningful project development.
Publix - Deli Clerk (Jan 26’)
preparing and serving deli items while providing efficient customer service in a fast-paced environment. Maintained food safety standards, operated deli equipment, and ensured products were fresh, stocked, and well-presented
Ecorp - Event Crew Member (Jan 19’ - Aug 23’)
Set up and dismantled lighting, audio, and technical equipment for events, ensuring proper installation and functionality. Collaborated with team members to meet tight deadlines.
Show Masters - Warehouse Member (Jan 19’ - Aug 23’)
Oversaw loading and unloading of road cases and event equipment into trucks for transportation. Ensured secure handling and organization of equipment.
National Home Builders Association (NAHB)
- Former Member
- Assist & Participated in NAHB Student Competition (Team production Home)
American Institute of Architecture Students (AIAS)
National Organization of Minority Architects Students (NOMA)
The Seshait Chapter of Alpha Rho Chi Professional Fraternity Inc (APX)
- Served as Recruitment Chair
- Volunteering Service Kearney Center Feeding Breakfast for those in Need
Florida A&M University Bands (Marching 100)
- Former Member
emmanuel1.therency@famu.edu
Fort Lauderdale, Florida
linkedin.com/in/emmanuel-therency
High School Diploma - 3.34 GPA
McArthur High School Fall 2016 - Spring 2020
Associate In Arts - 3.21 GPA Broward College Spring 2021 - Spring 2023
Bachelor of Science - 3.85 GPA
Florida Argicultual & Mechanical University Fall 2023 - Spring 2025
Honor Roll Student
SOFTWARE
• AutoCAD
• ArchiCAD
• Revit
• Lumion
• Enscape
• Rhinoceros 3D
• Grasshopper
• CNC Milling - V Carve
• Q-GIS Software
• Adobe Photoshop
• Adobe Illustrator
• Adobe Indesign
• Lightroom
• Microsoft Office
• Procreate OTHERS
• Photography
• Model Making
• Drafting
• Prome AI


Situated at the intersection of FAMU Way and Railroad Avenue in Tallahassee, Florida, this project explores the integration of art, movement, and infrastructure through the design of an Art Museum and a Light Rail Station with a sculptural canopy. The highlighted portion of the project—the Art Museum—anchors the site with a program that activates the ground floor through public spaces including an Event Space, Bookstore, Classroom, Café, and a central Atrium. The Atrium serves as the heart of the design, featuring a prominent ramp that invites pedestrians to “Travel Through” the space, blurring the boundaries between circulation and experience.





The progression of the Art Museum began with the FAMU Way Light Rail Station and focused on developing a solution for how pedestrians and vehicles would enter the site to access both the light rail station and the art museum. Key considerations included the pedestrian approach, vehicular access, sun paths, noise conditions, easements, and circulation pathways.


This concept draws inspiration from Robert Hickox’s cubist painting Through Space and Time, whose fragmented forms and layered depth influenced the museum’s spatial composition.































































The design process used lines from nearby buildings to create a foundational layout, evolving from rough models to a refined systems model incorporating columns and load-bearing walls. Inspired by architect Cutler Anderson, the design breaks away from traditional box forms, introducing voids, unique facade patterns, and extruded elements to add depth and harmony with the environment. This project stands as a landmark of Regional Modernism, offering a luxurious, functional space that connects deeply with Boulder’s unique landscape and community.

In Boulder Colorado, at 1700 Broadway, a new Boutique hotel captures the spirit of regionalism Modernism, offering stunning Nature views of The Rocky Mountains, bringing Natural Beauty to the community. There are a plethora of outdoor activities for the mild climate to engage like hiking, biking, and rock climbing. Which makes this location ideal for a hotel refelcting the surrounding.
This Botique Hotel holds spaces like Resturants, Public / private Offices, an Indoor recreational / Gym area, and a Gallery area. There are a total of 60 Hotel rooms each accomidating a Bathroom, Bed, Television, shelfing, cabinets, and a Sofa.
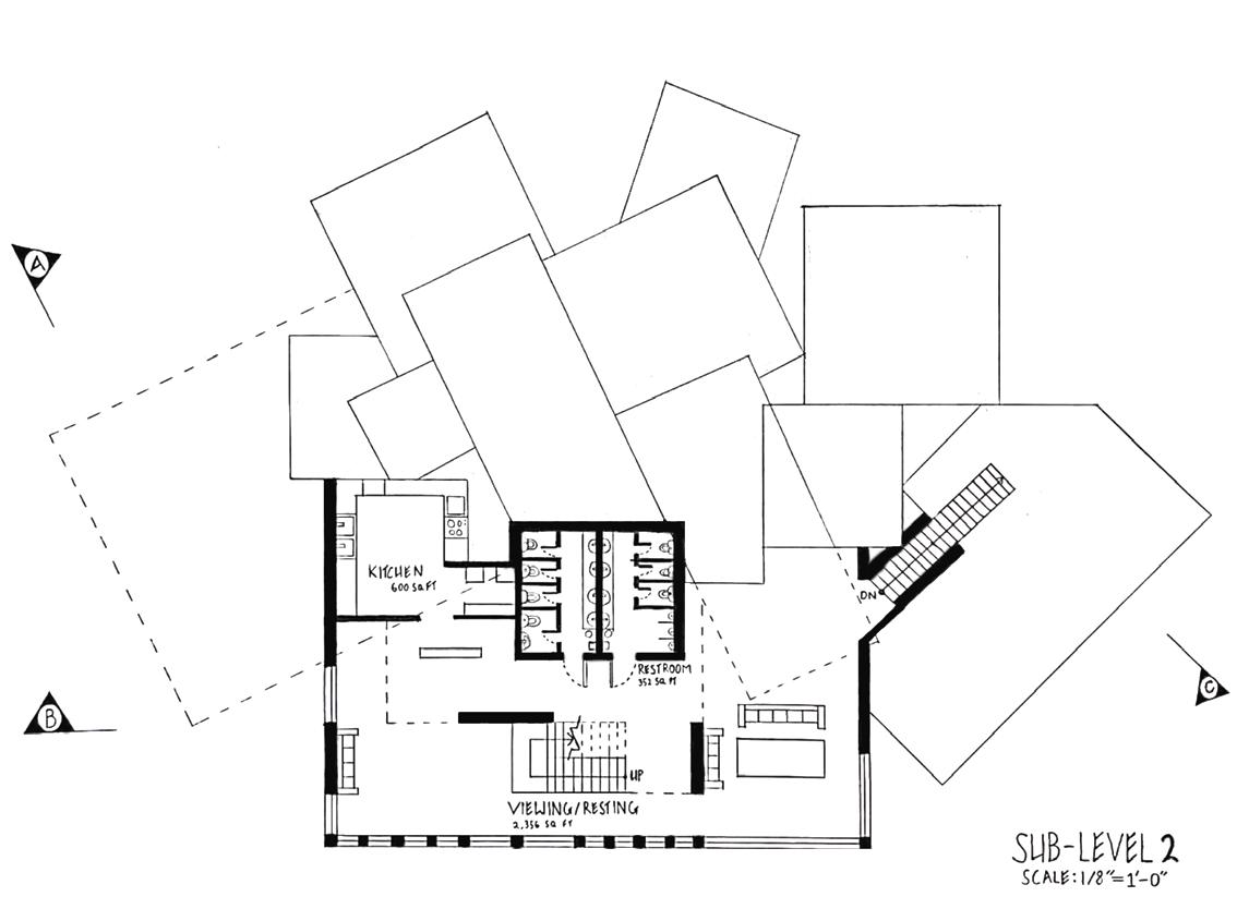
The Shape-Into-Form concept transforms a square into a rectangular prism. The cliff is inspired by Bassin Bleu, a natural water site in Jacmel, Haiti. This popular tourist destination attracts visitors who come to admire the scenery and swim in its waters.



The entrance begins at the top of the cliff, descending into the building’s first sub-level, where part of the floor leads to the Gallery Room for art pieces. Continuing downward to the second sub-level, visitors are welcomed by the viewing and resting room. A small coffee shop is situated behind the stairs, with restrooms located adjacent to it. Further down, the second gallery, known as the Ballroom, awaits.












The design process involved careful consideration of spatial layout, building form, and sunlight entry. Structural elements were also evaluated, including mullion design and the cantilevering of the building over the cliff.

















This project involved modeling a sample wood-frame house, requiring extensive research on construction detailing and assembly methods. The process provided valuable insight into structural building techniques, standard construction materials, and the overall workflow of wood-frame construction.






This Is the result of the 3D objects initially modeled in Rhino, refined in ZBrush, and rendered in Cinema 4D. The composition features a liquid, milky texture applied to the mask with subtle gold edging, seamlessly wrapping around the purple boolean form.


