Application Portfolio for UCL MLA Landscape Architecture

Page 1

HUAXU WANG

Major in Environmental Design, Jiangnan University

Application number: 23154191

Email: huaxuwang2001@outlook.com

Tel: +86 19850155919

01 02 03 04 RESHAPE THE AXIS HEAL THE WOUNDS SOUNDPROOF, CONNECT, SETTLE UNSAID HISTORY
Wetland Planning, Yancheng, China Noise reduction habitat design, Chengdu, China
Plaza Design, Nanjing,
Historic Site Renewal Design, Athens,
PORTFOLIO
Purification
City
China
Greece
05 CATBLOCK CAFE
Applying for MLA Landscape Architecture, University College London
Interior design, Wuxi, China

HEAL THE WOUNDS

Purification Wetland Planning

Individual work

Duration: 05/2022-06/2022

Site location: Yancheng, China

Area: 4 km²

Instructor: Liu Jia

The design tries to heal the wounds of the chemical park - severe water pollution and explosion accidents. Through the addition and arrangement of sewage plants, the design of protective belts and wetlands, and the adjustment of the layout of towns, farmland, and industrial areas; in order to achieve sustainable development of the local environment and economy, and to achieve the purpose of education and warning.

INDUSTRIALIZATION OF THE SITE

Excellent natural environment

Start of industrialization

Xiangshui Chenjiagang port Industrial Zone was established

INDUSTRIAL DISTRIBUTION ALONG GUAN RIVER

Xiangshui County is located in the northernmost part of the Yangtze River Delta urban agglomeration in China, bordering the Yellow Sea in the east. The Guanhe River in the north of the county has a wide channel, a large flow rate, and convenient navigation. The chemical industry zone is distributed along the river and is large in scale, close to towns and agricultural areas.

Red-crowned cranes

Factory Emissions

Hazardous chemical wastes are landfilled, water pollution is serious, chlorine gas leaks from the plant.

False killer whales

Water pollution

The surface water next to the industrial zone is poor category 5 and no longer suitable for fish.

Illegal emissions from chemical plants

Huge casualty losses

The explosion killed 47 people, buildings were damaged and Chemical combustion caused the fire.

Air pollution

Carcinogenic pollutants in water

Explosion accident

On March 21, 2019 at 14:48 , a chemical plant in Chenjiagang Industrial Park exploded

Sewage pollution, Soil pollution

Serious pollution and ecological damage

Chemical leaks caused severe environmental contamination

01
C6H6 CH2Cl2
Farmland Salt field Residential area Water Irrigation Canal Industrial area Main Roads Explosion site C2H4Cl2 CHCl₃
Site boundary
2010 2005 2019 2002
China Jiangsu province
SITE
Yellow sea Duigou Industrial Park Port Industry Park Industry Park Chenjiagang Town Duigou Town Guan River Chengjiagang Industrial Park

WOUNDS OF INDUSTRY: WATER POLLUTION A NEW PLANNING SCENARIO

Long-term industrial management in Xiangshui County is not standardized, resulting in serious environmental pollution, which is the root cause of the explosion accident. The design intervenes from sewage treatment to seek strategies for local sustainable development.

Problems

Sewage Discharge

Hazards

Objectives

Polluted rivers Contaminated soil Contaminated undergroundwater Agro-industrial

Strategy

Damage to agriculture

Loss of wetlands and habitat Health problems

The project re-planned the Guan River watershed and adjusted the layout of urban farmland and industrial areas; installed wastewater treatment plants in each industrial park and designed purification wetlands downstream of the wastewater treatment plants.
Domestic sewage
ecological habitats clean water for
awareness awaken
Agricultural wastewater Chemical wastewater
production system New
domestic use Environmental
Wise
planning of agriculture Natural purification wetlands Education and Warning
Sewage Treatment
Illegal
Farmland Residential area Industrial area Port Sewage plant Water wetlands Green belt Pedestrian route Main Roads Explosion site Yellow
pipeline discharge Direct sewage discharge
sea
Port
Duigou Industrial Park Industry Park
Industry Park
Chenjiagang Town Sigang Village Duigou Town
Guan River

SEWAGE PURIFICATION WETLAND DESIGN Morphology and Fuction

① Sewage plant

② Chemical plant

③ Sedimentation tank

④ Flow suppression inlet

⑤ Surface flow wetland

⑥ Submerged flow wetland

⑦ Retention pond

⑧ Open Water Area

⑨ Islands

⑩ Memorial spot

⑪ Beach Meadow

⑫ Ship port

The wetland design starts from the process of natural purification of sewage and designs the landscape topography. The wastewater first flows out of the sewage treatment plant, enters a sedimentation tank for settling, filters through the flow suppression inlet, and then flows through surface flow wetlands and submerged wetlands, where it is purified by plants and soil. After that, it flows the monumental landscape of open water, and finally diverts through ecological islands to merge into the Guan river.

Section A-A'

Marsh Marsh Surface flow wetland

Open Water Area

Submerged flow wetland Retention pond

Flow

A A'
① ② ③ ④ ④ ④ ⑤ ⑦ ⑦ ⑨ ⑧ ⑩ ⑪ ⑫ ⑪ ⑥
Sedimentation tank
suppression inlet Islands
Water flow Form Functional wetlands Activity route 0 N 100 200 500M Sewage Treatment Original industry site Original sewage plant Explosion site Sewage treatment wetlands Memorial Ecological habitats Memorial and Warning Education

WETLAND NODE ANALYSIS PLANTING STRATEGY

Metasequoia glyptostroboides

Height: 35m

Wetland Index: FACU

Arundo donax

Height: 6m

Wetland Index: OBL

Phragmites australis

Stage1: Tank

Contains wastewater, reduces sediment, disperses stormwater

Stage2 : Wetland

Decontaminate, divert water flow, increase the flow time

Stage3 : Open Water Area

Stage 0

Sewage

Reduce flood peaks, improve water quality, wildlife sanctuary

Stage 1

Tank

Canna indica

Height: 1.5m

Wetland Index: FACW

Iris pseudacorus

Height: 0.6-0.7m

Wetland Index: OBL

Height: 1-3m

Wetland Index: OBL

Oenanthe javanica

Height: 0.15-0.8m

Wetland Index: OBL

Flow suppression inlet

Pinus elliottii

Height: 30m

Wetland Index: FACU

Cinnamomum camphora

Height: 30m

Wetland Index: FACU

Lythrum salicaria

Height: 0.3-1m

Wetland Index: OBL

Nelumbo nucifera

Height: 1-1.5m

Wetland Index: OBL

Nymphaea tetragona

Height: floating plant

Wetland Index: OBL

Trapa

Height: floating plant

Wetland Index: OBL

Marsh Floating wetland

Surface flow wetland Submerged flow wetland

Sedimentation tank Retention pond Island Memorial spot

Stage 2 Wetland

Salix babylonica

Height: 12-18m

Wetland Index: FAC

Ligustrum lucidum

Height: 25m

Wetland Index: FACU

Coix lacryma-jobi

Height: 1-2m

Wetland Index: OBL

Iris germanica

Height: 0.6-1m

Wetland Index: OBL

Pontederia cordata

Height: 0.2-0.8m

Wetland Index: OBL

Nymphoides peltata

Height: floating plant

Wetland Index: OBL

Stage 3

Open Water Area

NEW ECOLOGICAL HABITATS

The new wetlands cleanse the effluent through the topography and also provide a diverse habitat for native flora and fauna. People visiting the wetlands can visualize the purifying power of nature and appreciate the beauty of life.

ENVIRONMENTAL AWARENESS AWAKEN

Signage

The chemical explosion created a circular crater 80m in diameter from which a large amount of contaminants leaked, deeply scarring nature. The design uses a circular walkway to enclose the original site of the explosion and a wedge-shaped monument to point to the center of the explosion. While being healed by the beautiful wetlands, the importance of controlling industrial pollution is remembered.

Memorial to the explosion made of concrete, wedge-shaped, point to the explosion site

Round shallow pool concrete pile stainless steel grating pavement reinforced foundations Stainless steel path made of concrete, describtion of the accident Wetland deep water Black-capped Kingfisher protected wild animal Metasequoia glyptostroboides remove TP, COD chemicals Chinese sucker Reed birds' nest Shrimp Little Yellow Croaker Surface flow wetland Whooper Swan protected wild animal Baer's Pochard protected wild animal Red-crowned Crane protected wild animal Arundo donax remove COD chemicals Wetland Trail Submerged flow wetland Eurasian River Otter protected wild animal Helical pile Batter anchor with turnbuckle assembly helix

SOUNDPROOF, CONNECT, SETTLE

Noise reduction habitat design

Individual work

Duration: 06/2022-11/2022

Site location: Chengdu, China

Area: 65 ha

Instructor: Zhou Lin

Based on the habits of Chinese ferret-badger, a native wild animal, the project uses topography and vegetation design to reduce the noise impact, connect the green space system cut off by the expressway, and create a habitat park.

SITE ANALYSIS

The project is located next to the Chengdu Ring Expressway and the airport, which has serious noise pollution. Due to the construction of the greenway around the city, it offers the possibility to improve the habitat environment for local wildlife.

CITY GREENWAY AND NOISE CONDITION

Potential umbrella species

Number of wildlives counted in 3 months

An area can support the stable life of two wild carnivorous mustelids, which means that this area has a relatively stable and complete food chain. Chinese ferret-badger is a representative urban wild animal, and protecting its habitat is beneficial to maintaining the stability of the urban ecology.

Melogale moschata

Mustela sibirica

Bambusicola thoracica

Chengdu cycling greenway and the site

Distribution of Melogale moschata in China

Diverse habitats in urban areas

THREATS AND STRATEGIES

Noise Strategy

Threats

● Noise interferes with badger's communication

● Hearing impairment, blurred vision and damage to organs

● Badgers abandon their habitats

Habitat Strategy

Threats

Zoothera dauma

● Blocked migrations

● Hit by car and killed

● Human interference

Schools and residential area Green spaces and habitats

Noise and highway threatens badgers' survival

The planes and cars are so noisy that my ears hurt

I want to have a safe and comfortable home without disturbance......

Help! my partner was knocked by a car!

ridges berms enclosure sink

airplane sound deflection

airplane noise buffer

road noise reflection

road noise barrier

noise reduction and absorption

enclosure protection

noise reflection and absorption

wetland habitat

sound absorption green corridors

connect habitats nesting

green corridors foraging

foraging activity

Hit by car and killed Noise threat Separated habitats 70dB 20dB 30dB
02
merulacolchicusthoracica
sannio merulacolchicusthoracica Urocissa erythrorynchacolchicusthoracica 15 times 12 times 3 times 1 time 1 time 2 times 9 times 8 times
Phasianus colchicusthoracica Turdus
Garrulax
Cycling park Building site Qiming School Highway Parking lot Shuangliu Airport 80dB 80dB 70dB 70dB 70dB Design Site Noise Source Noise Range Highway
80dB Factory 0 200 400m 100

SOUND-GROUND DESIGN PROCESS

Landforms shaped from noise

Topography design

phase 1: ridges

phase 2: twist of ridges

phase 3: enclosure

135°

Step 1: the noise directions

Ground noise made by airplane moves in an angle of 135° and noise from the highway spreads to both sides of it.

ridges to the direction of noise twisted berms

large size enclosure small size enclosure

combine different directions

berms along the road

open space

sink habitat

Step 2: frame to reduce the sound

Construct a grid system according to the direction of the noise to determine the position and shape of the noise buffer.

Step 3: ridges and slope to reduce the sound

Various sheltered and open spaces are created by the grid, Increasing landform diversity.

ridges absorb and reflect low frequency of sound

berms and slope cut the loudness of traffic noise

provide farm area and food for Chinese ferret-badgers

provide water and shelter for Chinese ferret-badgers

original pattern extract forms apply forms to the site
low frequency sound buffer traffic noise barrier food resource field wetland habitat

NOISE REDUCTION LANDSCAPE WITH HABITATS AND CORRIDORS

Low frequency sound buffer

Traffic noise barrier

Food resource field

Fruit trees

Open grassland

Underpass tunnel

Woodland

Wetland habitat

Pedestrian route

Bicycle trail

Connected Habitats

Badger Routes: 3.5 km added

Sound Buffer: 1.2 km² added

Habitats: 0.3 km² increased

Human area: 0.05 km²

0 100 200m 50 A A B B
1
In the daytime, I rest in my burrow in the rock crevice. At dusk, I get out of my den and search for food along the river. I like eating fruit, insects and small Sometimes I go through the tunnel to look for companions.
This is my travel route. Don't get hit by car!
2 2 4 5 5 5 1 2 3 4 5 6 7 8 9 10 3
This is my forage route. Hide in the woods!
6 7 8 9 10

Badgers' corridor: Sound buffer, underpass

Traffic noise barrier and planting design reduce damage and disturbance to ferret badgers. Arbors, shrubs and grasslands serve as migration corridors for badgers to provide shelter, and fruit forests and fields provide food sources.

migrate corridor food sources

shaded corridor

road traffic noise barrier

Badgers' habitats: Slopes, woods, wetland

Gentle slope woodlands are suitable for badgers to make nests, and grasslands and shallow water are the areas where weasel badgers drink, prey and move.

PLANTS LIST

Metasequoia glyptostroboides

Ligustrum quihoui

Cedrus deodara Ginkgo biloba

Cinnamomum longipaniculatum

Sapindus saponaria

Linnaeus

Phragmites australis

Typha orientalis

Sagittaria trifolia

Prunus

Caulis Fici Tikouae

Medicago

Setaria viridis

drink forage nest
traffic noise
grasslands grasslands grove shallow water
barrier slope woods
field noise barrier berm slope woods wetland edible grass grove local fruit trees evergreen noise resistant trees
fruit trees food resource
DETAILDED PLANTING
0 6 12m 4 0 6 12m 4
The underpass tunnel is designed according to the size of the ferret badger. The topography and vegetation design act as ecological corridors to shelter its activities.
foraging by the water Nests in the woods
Section B Section A

03 RESHAPE THE AXIS City Plaza Design

The design aims to "reshape the axis", using landscape topography and road pavement to create a rhythm of space, guide the spatial axis, and channel the traffic flow, in order to improve the chaotic site conditions and coordinate the conflict between the old and new buildings around.

Individual work

Duration: 03/2022-06/2022

Site location: Nanjing, China

Area: 6 ha

Instructor: Liu Jia

The clash of historic sites and modern architecture in the city center

The site is located in the middle of the old city of Nanjing with many historical sites. Due to urban development, the ancient buildings are surrounded by high-rise buildings and city arteries, and the appearance of the site is in a mess.

AIMS : REORDER THE SITE BY AXIS

Modern large volume buildings and wide road networks have broken the ancient city texture.From an urban perspective, the historic sites of Nanjing form a north-south axis; from the scale of the site, the Presidential Palace extends the north-south axis. The design will refer to this axis to shape a new space order.

N-S cultural axis

The site's new axis

Case study: Afrikaanderplein Plaza

The plaza divides the square site with axes, creating a new triangular spatial order, which is dynamic and streamlined for pedestrians.

Strategy 1 wedges

Site Problems

The busy avenues, complicated city grid systems have created a strong sense of seperation, strong edges and boundaries hinder people from going in.

Bus line and station

Car lane

Heritage and tourists attraction

Use of wedges and retaining walls to create a sense of space

Strategy 2 roads

Highlight the axis by characteristic linear paving and benches.

Metro line and station

Broken public space

Circuitous tourist flow

Strategy 3 trees

Rows of trees enclose the space, groves suggest the axis.

Axis
Xuanwu Lake Jiming Temple Presidential Palace Xi'an Gate Xinjiekou St.Paul's Church Confucius Temple Tongji Gate Beiji Temple Gate of Presidential Palace, since 1870 Nanjing Library, built in 2006 Central Hotel, since 1927 Jiangsu Art Museum, built in 2008 Surrounding high-rise buildings
circulation inefficiency no hierarchy of constructions fragmentation of open space

1

PLAN VIEW Design Process

A. Park entrance

B. Subway entrance

C. Library square

D. Outdoor theater

E. Grassy slopes

F. Retaining wall

G. Water mirror

H. Benches

I. Gallery square

J. Grove

Strategies that emphasize the axis

Use bending retaining walls at the beginning and end of the axis, Set wedge-shaped retaining walls along the road

2 Linear elements

The trees planted in rows , the paving and benches directly guide the axis

3 Planting design

Trees planted in patches at both ends of the road suggest the axis, emphasizing the space at the beginning and end.

1 2
1'
2' Vertical construction 1. Extend the north-south axis 2. Bifurcation of the axis 3. Axes guides the roads 4. Roads divide space 5. Sinking space 6. Lifting space
5 15 35m 0
A A A A C D E G F J H I B B

PROPOSED FINAL PERFORMANCE

The design reshaped the axial order of the site. The spatial axis is guided by landscape topography and road pavement, forming a clear and simple circulation network; the unified lawn and woods coordinate the conflicts between old and new buildings in the surrounding area, and carry various tourist activities.

The urban road passing underneath realizes the diversion of people and vehicles. The circular square echoes the curved enclosure of the Presidential Palace.

The Gallery square maintains a visual connection with the Presidential Palace, and at the same time provides space for gathering activities.

Central lawn, outdoor theatre, paths and shade trees provide spaces for rest and movement.

Pedestrians follow the terrain uphill from the park entrance connected to the subway station, feeling the axis of the space. Section 1-1' Section 2-2'
5 15 35m 0

Kerameikos was the potters' quarter of the city, and was also the site of an important cemetery and numerous funerary sculptures erected along the Sacred Way.

04 UNSAID HISTORY

Historic Site Renewal Design

The Acropolis has a long history and has been built, destroyed and rebuilt many times since antiquity. Today we are able to enjoy our visit because of the diligent exploration and restoration by archaeologists since the recent past. Yet the archaeological process is like a silent story, attached to monuments and artifacts, unknown to the public. The project seeks to improve the Acropolis' infrastructure and landscape experience by incorporating a building that demonstrates the importance of archaeology to the Acropolis. The bulk of the building is located underground, while providing a visual connection to the site and offering visitors a new perspective on the Acropolis' history.

Archaeological sites Hills

ATHENS ARCHAEOLOGYCAL MAP

The surrounding area of the Acropolis is a world-renowned tourist attraction, where archaeological sites and museums gather. The site is on the hill of the Acropolis, not only has magnificent ancient Greek architectural relics, but also has a good landscape view.

Museums and galleries

Individual work

Duration: 10/202211/2022

Site location: Athens,Greece

Area: 2.7 ha

Instructor: Zhou Lin

The ancient Agora of Athens is the best-known example of an ancient Greek agora, whose initial use was for a commercial, assembly, or residential gathering place.

Thissio is a small settlement which is found south west of Monastiraki. It is famous for the plethora of trendy cafes and bars.

Pikionis’ paved pathways connects Propylaea to the Philopappou hill. It is designed by the architect Dimitris Pikionis.

Philopappos Hill is home to the Philopappos Monument, a square white-marble construction dedicated to Gaius Julius Antiochus Epiphanes Philopappos.

Mount Lycabettus is a Cretaceous limestone hill in Athens. At 277 meters above sea level, its summit is the highest point in Central Athens and pine trees cover its base. The Acropolis is an ancient citadel located on a rocky outcrop and contains the remains of several ancient buildings. The Arch of Hadrian is a monumental gateway resembling a Roman triumphal arch. It spanned an ancient road from the center of Athens. The Temple of Olympian Zeus is a former colossal temple. During the Roman period the temple, it included 104 colossal columns, was renowned as the largest temple in Greece.
300m 300m 300m 300m 300m 300m 300m 300m 300m Acropolis
Agora Olympian Stadium SITE Metro Line SiteVision SiteVision Highway
The Panathenaic Stadium is a multipurpose stadium in Athens, Greece. It is the only stadium in the world built entirely of marble.
Keramikos

ACROPOLIS'S HISTORY

SITE CONDITION PROBLEMS

The Acropolis has a clear circulation, with three ancient buildings and the open space forming a strong sense of spatial sequence and ritual. The project adds a new building mass on the site of the old Acropolis Museum in the southeast corner of the site.

As the number of visitors grows, the landscape and services within the site are in urgent need of improvement.

Lack of spatial scene experience

ARCHITECTURE Acropolis
Propylaia
Roman Empire Turkish
Morean War, The Parthenon
Athens Charter Acropolis became a purely archaeological site Original site protection Acropolis restoration project starts Acropolis inscribed on World Heritage List New Acropolis Museum completed Venice Charter 1964 1975 2009 1985 Greek- Turkish War World War I World War II 1914-1918 1687 1821 1939-1945 1931 1834 1863-1874 338 BC 437-405 BC 146 BCE 1396 550 BC RESTORATION WARS
Erechtheion Lack of tourist services and rest facilities ? Cement road damages pristine surface 1 1 2 2 3 3
The Old Temple of Athena Battle of Chaeronea
era
exploded as an arsenal
Parthenon

The project began by sorting out the circulation network and designing road paving that has material continuity with the site. Landscape facilities such as seating, pergolas, and fountain were added to improve the visitor experience. A new museum building was placed in the southeast corner of the site, and the majority of its space is underground, echoing the nature of the archaeological work.

Vision spots Axis Architecture and facilities Landscape 1 1 2 3 4 5 6 7 8 9 10 11 12 13 14 Propylaia Parthenon Erechtheion Old Temple of Athena (Remains) Roma and Agustus Temple (Remains) Acropolis Viewing Point Archeological Museum Fountain Observation Deck Meadow Staircase Accessible Elevaor Signage Shades and Bench
MASTER PLAN
Mediterranean pine Gravel pavement Athens Schist Surface A B C D E F Ruins of stones and grass Athens marble olive tree 2 3 4 5 6 7 8 9 9 10 11 12 13 A B C D 14 14 14 14 14 A D E F 0 5 15 30m
1 2 3 4 5 6 7 8 9 10 Entrance hall Cafeteria Kitchen WC Exhibition room Restoration display hallway Heritage Exhibition Hall Exit hall Staircase Office area 1 2 ±0.000 -1.00 -4.00 -4.00 3 4 4 5 6 10 7 8 9 Entrance A Exit down down down -1F PLAN A-A' SECTION A'

SOUTH ELEVATION

1 2 3 4 Archaeological Relics Exhibition Hall Heritage Exhibition Hall WC Staff lounge up up up -8.00 1 2 3 4 -2F PLAN

The building's skylight creates a visual connection to the landscape at the surface, providing a visual contrast between the past and present, and offering visitors a new perspective. The new building quietly blends into its environment, developing amidst the ancient traces buried to this day, revealing the archaeological history of the site.

AXONOMETRIC VIEW Heritage exhibition hall Entry ramp Exit staircase Restoration display hallway
Feeling and reflecting on history
Experience the process of archaeological work
The museum's entrance ramp hint at the archaeological theme
Back to reality from archaeological history

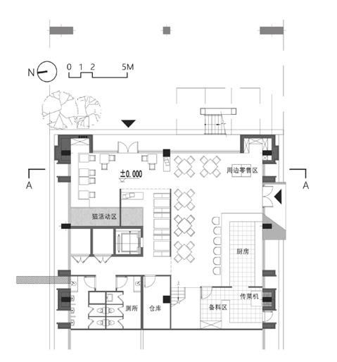
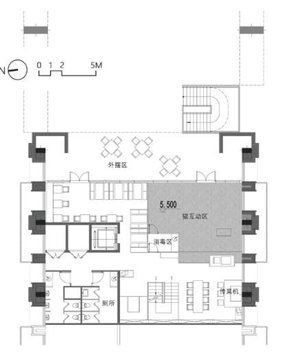
05 CATBLOCK CAFE

Cat Cafe Interior Design

Individual Work

Location: Wuxi, China

Duration: 11/2021-12/2021

Instructor: Ji Lin

EQUAL RELATIONSHIP BETWEEN HUMAN AND CAT

In "Catblock Cafe", people are the objects and cats are the subjects.Through the combination of separation and intersection of human and cat activity area, the equal relationship between human and pet is explored.

In China, cat cafes are popular places where young office workers enjoy drinks and desserts, play with cats, and relieve stress at the same time. However, there are some problems with cat cafes, the core of which is that in cat cafes, the human customer is God and the cat serves the human. Sometimes the will of the human overrides the cat, and the relationship is not one of equality and mutual benefit.

STRATEGY: SEPARATION AND INTERACTION

In a cat cafe, the encounter between a human and a cat is as brief as the encounters of passers on the street (low intensity contact). At "Catblock", in order to get close to cats quickly, people need to respect the perspective and habits of cats, and approach them with kindness and caution.

1 Cat watching people from high " blocks"

3 Cats have undisturbed space to move around

2 In the dining area, people can only spy on cats

5 Discreetly gaining the cat's trust and then interacting further

Interactive area

restaurant area

Cats' area

4 People in the window being observed by cats

Cats' area

restaurant area

1st floor plan mezzanine floor plan 2nd floor plan Block Scale Ergonomics Cat Scale Human and cat encounter "Cat Engineering"

Turn static files into dynamic content formats.

Create a flipbook
Issuu converts static files into: digital portfolios, online yearbooks, online catalogs, digital photo albums and more. Sign up and create your flipbook.
Application Portfolio for UCL MLA Landscape Architecture by kzs kt - Issuu