Heme prospekt

Page 1


Heme ved fjorden, her blir det hyggelig å komme hjem. Et område med god kombinasjon av interne gangveier, sosiale uterom med tilgang til vannet og bygg med gode kvaliteter. Illustrasjon, avvik vil forekomme.

Utbygger: Eina Sentrum AS Arkitekt: PV Arkitekter

Grafisk utforming og tekst: EiendomsMegler1 Østlandet, avd. nybygg

Illustrasjoner: Oxivisuals AS / EVE

Trykk: Grafika AS

3D illustrasjoner: Vi gjør oppmerksom på at illustrasjoner er utviklet for å gi publikum et inntrykk av leilighetene og prosjektets utforming, avvik vil forekomme. Detaljprosjektering er ikke gjennomført på det tidspunktet illustrasjonene er utviklet.

Prospekt utg. 22.05.2025

01 OM PROSJEKTET

Heme - ved Einafjorden s.12

2843 – et postnummer som vekker varme følelser s. 14

Noe helt nytt på Eina s. 16

Splitter ny leilighet – mange fordeler s. 18

Flotte uteområder med store muligheter s. 20

Hvilken stil velger du? s. 22

Betonmast – en kjent aktør i Innlandet s. 32

Nøkkelinformasjon s. 33

Opplev naturen på sitt beste – rett utenfor døra s. 34

Spaden som ble et helt boligområde s. 36

Finansrådgivere som kjenner Eina s. 38

Grønt Boliglån i SpareBank 1 Østlandet s. 39

02 TEGNINGER

Tegnforklaringer s. 52

Utomhusplan s. 54

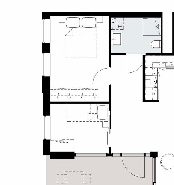
Parkeringsplan og etasjeplan - hus A, B, D, E og F fra s. 56

Plantegninger fra s. 76

03 SALGSDOKUMENTER

Info fra megler s. 106

Leveransebeskrivelse s. 116

Utkast til vedtekter s. 124

Utkast til kjøpekontrakt s. 136

Kjøpsbekreftelse s. 148

Heme består av syv bygg i varierende størrelse med parkeringskjeller og Meieribygget i ny drakt. Fjordgløtt Kafé og landhandel vil ha lokaler på hjørnet mot brygga. Illustrasjon, avvik vil forekomme.

Ælle har vøksi opp en stann, ælle lik å høre tæl. Væger som vi gikk på hår dag da vi var små, går tæl steller det er godt å vara på.

Første vers fra Detti er heme // Torbjørn Dyrud
Einavatnet 1903. Foto: Anders Beer Wilse / Norsk Folkemuseum

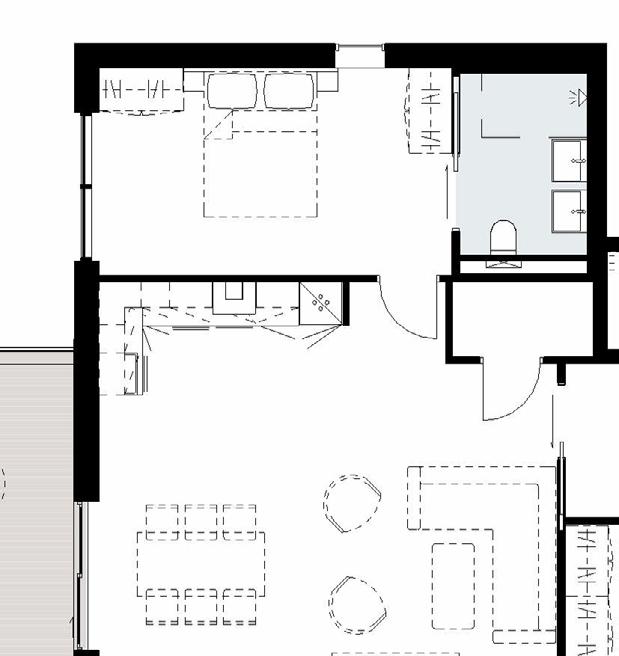
Heme – ved Einafjorden

Endelig! Det er med stor glede vi presenterer Heme – ved fjorden på vakre Eina. For første gang får Eina et leilighetsprosjekt i denne størrelsen, og vi tror Heme vil sette Eina på kartet for flere enn dem som allerede vet hva stedet har å by på.

Det som gjør Heme så spesielt er utbyggerne bak prosjektet. Med hjerter som banker for bygda har Monica og Per Arne Jakobsen jobbet i mange år for å realisere det som nå kan bli ditt neste hjem, og som blir et realt ansiktsløft for Eina sentrum. Tanken bak Heme er å gi noe tilbake til lokalsamfunnet. Einafjorden er vakker slik den er, men med Heme blir fjorden enda mer innbydende for alle som besøker Eina. Nye muligheter, nye arenaer for gode møter. Her skapes et miljø der den gode, avslappede følelsen går hånd i hånd med moderne og praktiske leiligheter. Alt sammen rammet inn av vakker natur – unik for Eina.

I dette prospektet finner du den informasjonen du trenger om Heme. Vi håper din drømmeleilighet befinner seg på en av disse sidene. Ta gjerne kontakt med oss dersom du har spørsmål.

Velkommen hjem!

GRO RAKSTAD

Prosjektmegler MNEF

971 22 404 gro.rakstad@em1ostlandet.no

THOMAS SKOGLI RUSTEN

Prosjektmegler 902 23 545 thomas.rusten@em1ostlandet.no

2843 vekker varme følelser

Hvis du kjenner til Eina allerede, vet du godt hva stedet har å by på. Knutepunkt for jernbane, kort vei til storbyen, men med rolige og naturskjønne omgivelser. Eina er et kinderegg av muligheter for deg som liker livet på landet.

Det er blitt sendt mange postkort fra Eina opp gjennom tidene. Her har folk ladet batteriene, funnet roen og brukt naturen som rekreasjon. Eina er også et landbrukssamfunn med lange tradisjoner. Åkre, vann og skog rammer inn stedet som mange er så glade i.

På midten av kartet mellom Randsfjorden og Mjøsa ligger Einavatnet, på folkemunne kalt Einafjorden. Fjorden har alltid vært hjertet i Eina, enten som transportveg, for fiske eller som bakteppe for et mylder av aktiviteter – både sommer og vinter.

Nå står en ny tid på trappene. Eina ser mot fremtiden, og Heme tilbyr noe det lille tettstedet i Vestre Toten ikke har hatt tidligere. Med Heme får sentrum et ansiktsløft, noe som gjør postnummer 2843 til et enda mer attraktivt sted å bo i årene fremover. – et postnummer som

Postkort av Eina sentrum, ukjent årstall.
Postkort av Eina sentrum 1910. Foto: Carl Normann / Mjøsmuseet
På Heme blir det lett og slå av en prat med naboen, enten det er på gåtur gjennom tunet, på kaféen eller på vei ned til vannet.
Illustrasjon, avvik vil forekomme.

Noe helt nytt på Eina

Heme blir noe helt nytt på Eina. Moderne, men samtidig kjent og hjemmekoselig.

La oss fortelle deg litt mer om planene:

• Heme byr på syv hus med leiligheter i varierende størrelser

• De fleste leiligheter får adkomst via heis

• Det gamle meieriet gjenskapes, utvides og blir til moderne kontorlokaler

• Under bygningene blir det praktisk parkeringskjeller med boder

• Utendørs blir det hyggelige fellesområder, grøntanlegg og brygge, med tiltenkt badstue

• Her blir det ny kafé/restaurant, gjesteleilighet og nye næringslokaler

Leilighetene bygges i god håndverksmessig kvalitet etter dagens høye krav til nybygg. Gode balkonger med fin utsikt over Einafjorden gir deg et skjermet, privat område å nyte utsikten på.

Heme får gode solforhold, og beliggenheten midt i sentrum gjør at du har tøffelavstand til alt du trenger.

Glem iskald bil og skraping av ruter, glem plenklipping og beising av husvegger. Heme kan du nyte livet og bruke tiden din til ting du virkelig bryr deg om. Lettstelte leiligheter med smarte og gjennomtenkte planløsninger.

Heme er veien aldri lang over til naboen hvis du vil låne en kopp sukker – eller slå av en prat.

Splitter ny leilighet – mange fordeler

En helt ny leilighet kommer uten riper i lakken, uten gamle interiørsynder fra tidligere eiere og med en ny hverdag full av muligheter. Enklere er det også, for her er alle flater nye og rene – litt mer lettstelt, med andre ord.

Bedre forutsigbarhet

Har du tenkt på at utgiftene i en ny leilighet er langt mer forutsigbare enn i en eldre enebolig? En ny leilighet er isolert etter moderne standard, og bruker dermed langt mindre strøm. Vannbåren varme i gulvene gir en lun og god varme, og fraværet av panelovner og radiatorer i oppholdsrom gjør at du står friere når du skal møblere.

Lavere omkostninger

Kjøper du en brukt bolig krever staten dokumentavgift på 2.5 % av hele kjøpesummen. Når du kjøper ny bolig under oppføring beregnes det kun 2.5 % av andel tomteverdi. For kjøpere i Heme-prosjektet vil det være en betydelig besparelse i dokumentavgift i forhold til det å kjøpe en brukt bolig til samme pris(er). Det tas forbehold om endringer i bestemmelser om dokumentavgift og beregning av grunnlag for de enkelte leiligheters andel av tomteverdien.

Lovfestet garanti

Det er trygghet å ta med seg inn i ny bolig at du har en lovfestet garanti på 5 år når du kjøper ny bolig. Dine rettigheter står beskrevet i bustadoppføringslova § 12.

Flotte uteområder med store muligheter

Nydelig bryggeanlegg hvor det også er planlagt en badstue til alles benyttelse. Illustrasjon, avvik vil forekomme.

Utendørs vil du ikke kjenne igjen området når Heme står klart. Her blir det en real oppgradering som løfter hele Eina. Små gangveier, sosiale møteplasser med benker og bord, pen beplantning og ei ny brygge ved Einafjorden. For den hageglade er det gode muligheter for å dyrke egne gleder i kasser og bed. Gled deg til alt det som følger med en leilighet her!

Å flytte fra en enebolig til leilighet kan være en overgang. Heme sørger for at du fortsatt har plass til de store begivenhetene og gjester. En egen gjesteleilighet kan leies for en rimelig pris i helger og ferier, og gir deg muligheten til fortsatt å ha overnattingsgjester selv om du ikke har eget gjesterom i leiligheten din.

Fjordgløtt kafé er allerede et populært sted å ta en matbit og en kaffekopp, og kaféen får helt nye lokaler når Heme står ferdig. Kaféen blir et naturlig møtested for alle på Eina, kjekt å ha helt i nærheten for deg som bor her. Ta deg en god lunsj, eller avtal et hyggelig møte med en nabo.

Muligheten ved Einafjorden er så å si uendelige, og det ligger mange planer på tegnebordet for denne naturperlen i Innlandet.

Åkeren, fjorden eller skogen:

Hvilken stil velger du?

Ikke alle liker samme stil – heldigvis! For Heme er det i tillegg til standardleveransen utviklet tre interiørpakker som baserer seg på omgivelsene rundt. Interiørarkitektene har satt sammen farger og materialer som skaper varme, lune hjem som står seg godt i lang tid fremover.

Standardleveransen for Hemes leiligheter består at moderne, stilsikre materialer og hvitevarer som vil passe godt til mange ulike møbelstiler. Som standard leveres leilighetene blant annet med 1-stavs eikeparkett (untatt F hvor det leveres 4-stavs eikeparkett som standard, tilvalg på annet gulv er mulig), 60x60-fliser på baderom og kjøkkeninnredning fra anerkjent leverandør.

I standardleveransen følger det med følgende hvitevarer:

• Stekeovn i høyskap, ev. i benkeskap under keramisk koketopp, sort front

• Nedfelt keramisk koketopp, type induksjon. Der hvor denne er vist i kjøkkenøy, leveres induksjonstopp med integrert vifte og kullfilter

• Helintegrert oppvaskmaskin med kjøkkenfront

• Helintegrert kjøl og frys med kjøkkenfront

• Kjøkkenventilator med kullfilter i hvit/sort utførelse

Hvis du ønsker noe annet enn standardleveransen, kan du mot tillegg i prisen velge blant flere interiørpakker. De forskjellige pakkene er alle basert på farger vi finner i naturen, men hver pakke har sin stil og identitet. Velg mellom « Åkeren», «Fjorden» og « Skogen», og få et skreddersydd hjem du føler deg heme i.

Åkeren

“Åkeren” tar inn de varme tonene fra kornet, den lave solen som gjør landskapet gyllent - og ton-i-ton jordfarger som sprer seg over åkeren. En variasjon av beige, gylne toner, uten store kontraster, med et harmonisk og rolig uttrykk.

Den generelle veggfargen er lun og varm. Kjøkkenet går ton-i-ton med benkeplate i lys beige utførelse, og harmonerer med de varme veggene og eikegulv. Badene har fliser med naturmønster i lys farge og innredning i eik.

Soverommene har fått en mer dempet jordfarge, som en fin variasjon til den generelle fargen.

ÅKEREN PV ARKITEKTER

Fjorden

I “Fjorden” tar vi Einafjorden inn og lar de herlige blåtonene få være kontrasten til den rolige basen vi finner i vannkanten og refleksjonene fra himmelen. En dempet base i beige toner passer godt mot det dype blå og varmen fra eikegulvene. Den generelle veggfargen er en sandfarget tone som oppleves lun og behagelig. Kjøkkenet i mørk blå farge gir karakter og står i kontrast til de lysere veggene.

Eikegulvet binder det hele sammen med struktur og varme. Badene har fliser med naturmønster i lys farge og innredning i eik, med en kontrast i de sorte detaljene. Soverommene har fått en litt dypere tone, som en fin variasjon til de andre veggene.

FJORDEN

Skogen

“Skogen” tar med seg de dype fargene fra grantrærne og mosen, varmen fra solen som skinner i gjennom trærne og en følelse av ro. En mørkere palett i grønn- og bruntoner som bringer naturen inn. Den generelle veggfargen er en lun, beige farge. Kjøkkenet står i kontrast mot veggene i mosegrønn utførelse og ton-i-ton benkeplate.

Gulvet i eik er i en mørkere, “disig” utførelse og komplementerer uttrykket til de andre overflatene. Badene har fliser med naturmønster i en mellombrun tone og innredning i røkt eik. De sorte kontrastene i detaljer binder det hele sammen. Soverommene har fått en lun bruntone og gir ro og en avslappet følelse.

Tilvalg - bestem selv!

Hvis du ønsker det, kan du selvsagt ta dine egne valg når det gjelder farger, materialer og for eksempel kjøkkeninnredning. Du kan ved tilpasninger og tilvalg velge fronter, benkeplate og hvitevarer helt etter din egen smak. Bestem farge på innervegger, hvor mange kontakter du skal ha i boligen din og flere andre ting.

Merk at muligheter for tilvalg/endringer vil være avhengig av fremdrift i byggeprosessen. Tilvalg/ endringer avtales nærmere i forbindelse med «tilvalgsprosessen» for den enkelte leilighet som blir styrt av entreprenør, og vil kunne medføre tilleggskostnader.

Betonmast – en kjent aktør i Innlandet

Betonmast Innlandet er valgt som entreprenør for Heme, og er en totalleverandør i byggog anleggsbransjen. Selskapet utfører alle typer byggeoppdrag, som bygging av skoler, næringsbygg, boliger, kjøpesenter og omsorgsboliger.

Virksomheten ble etablert som Toten Bygg og Anlegg i 1977, og er anerkjent i sitt område. Betonmast har stor egenproduksjon med egne håndverkere, og alle betong- og tømrerarbeider utføres av høyt kvalifiserte fagfolk. Betonmast Innlandet har Hadeland, Toten, Gjøvik, Hamar og Lillehammer som sitt område.

– Betonmast Innlandet er stolt lokal entreprenør, med røtter i lokalsamfunn som Eina. Det å få lov å være med å utvikle et helt nytt Eina sentrum, er midt i kjernen av det vi er kjent for; å bygge levende lokalsamfunn på Innlandet, sier Ståle Kværndal, daglig leder i Betonmast Innlandet.

Foto: Betonmast

Nøkkelinformasjon om leilighetene

• 25 leiligheter i størrelser fra 51 - 163 kvm

• Store, solrike balkonger med utsikt over Einafjorden

• Hyggelige punkthus

• Gjennomgående leiligheter med store vinduer

• Heis fra parkeringsplan til de aller fleste leilighetene

• Solid standard

• Balansert ventilasjon

• Vannbåren varme i gulv – større møbleringsfrihet

• Gjesteleilighet som kan leies rimelig i helger og ferier

Nøkkelinformasjon om uteområdene

• Trygg parkering i felles parkeringsanlegg – du slipper å skrape ruta!

• Elbillader (tilvalg) og vaskeplass tilgjengelig i parkeringskjeller

• Unik nærhet til turområder, badeplass, brygge, skiløyper m.m

• Kort avstand til ny matbutikk, hyggelig kafé og togstasjon

• Pent opparbeidede uteområder med benker og beplantning samt lekeområde

• Sykkelparkering og avgiftsbelagt gjesteparkering

• God plass til lagring i egne boder

Det vises til detaljert leveransebeskrivelse i prospektet.

Opplev naturen på sitt beste

- rett utenfor døra

Med naturen som nærmeste nabo kan hverdagen Heme fylles med friluftsglede!

Her bor du i hjertet av et naturskjønt område, omgitt av vakre skoger, åpne landskap og den idylliske Einafjorden. Uansett årstid ligger mulighetene åpne for deg som elsker å være aktiv utendørs.

På varme sommerdager er Einafjorden et naturlig samlingspunkt. Her kan du starte dagen med en padletur i kajakk eller kano, ta et forfriskende morgenbad eller nyte late dager på en av de fine badeplassene i området. Båthavna rett bortenfor Heme er et hyggelig utgangspunkt for en liten utflukt. For de som liker fisking, byr fjorden på muligheter til å få napp. Og sykkelentusiaster

finner milevis med sjarmerende veier i et vakkert kulturlandskap.

Rett utenfor døra venter et nettverk av turstier. Veien er ikke lang til skogsområder med fine utsiktspunkter og urørt natur som inviterer til både dagsturer og lengre utflukter.

Når snøen faller, forvandles Eina til et flott utgangspunkt for vinteraktiviteter. I nærheten finnes også Lygna – et herlig område vinterstid med flotte skiløyper. Milevis med preparerte løyper gir deg muligheten til å spenne på deg skiene rett ved Heme og nyte vinterlandskapet.

Foto: Aud
Ingebjørg Barstad

Spaden som ble et helt boligområde

Du vet hvordan det er når du drar på butikken for å kjøpe én ting, og så kommer du ut igjen med en hel pose? Sånn var det for Per Arne Jakobsen også, da han kjøpte meieriet og tomta til det som nå blir Heme – og en helt ny start for Eina sentrum.

Da Per Arne og Monica Jakobsen flyttet sammen på Eina i 1993, hadde Monica bodd i bygda et par år allerede. De trivdes godt på det lille tettstedet. Her vokste ungene opp, her gikk de på skole og fritidsaktiviteter, og her fant ekteparet det de trengte i hverdagen.

Som for eksempel en ny spade. For fjorten-femten år siden stakk Per Arne innom den lokale butikken

Eina Maskin i det gamle meieribygget, som blant mye annet hadde spader til salgs.

- Det blir det siste du kjøper av meg, sa innehaveren til Per Arne da han sto i døra på veg hjem med nytt redskap. Eina Maskin skulle legges ned, og meieriet skulle selges. Egentlig var det allerede solgt.

- Men etter litt prat med megler og bank fikk jeg kjøpt det. Jeg slo til der og da. Magefølelsen sa at det var riktig, forteller Per Arne. Han måtte ringe hjem til kona.

- Er det greit at vi har kjøpt meieribygget?

Joda, Monica var med på notene. Nå er de to om prosjektet, ekteparet Jakobsen. I over 30 år har de drevet næringsvirksomhet på Eina, og nå vil de skape noe nytt. Tanken om å utvikle sentrum i bygda kom etter noen år som eiere av meieribygget.

- Vi har trua på potensialet i eiendommen og mulighetene som byr seg her, sier Monica.

- Vi vil bli boende på Eina, for det er så mange kva-

liteter i samfunnet her vi setter pris på. Hvor ellers har du et tettsted i nordenden av en innsjø, med jernbanestasjonen like ved, natur og skiløyper og turmuligheter rett utenfor døra? I tillegg setter vi stor pris på folka som bor her. Frivilligheten som står så sterkt, blant annet innen idretten. Det er aldri nei å få fra folk når noe skal gjøres, sier hun.

En ting er å være utbygger og investor for et boligprosjekt, en annen ting er å skulle bo der sjøl. Monica og Per Arne bygger Heme for Eina, men også som sitt fremtidige hjem.

- Vi vil skape noe som folk trives i, og som vi kan bo i resten av livet. Vi er ferdige med stort hus og hage, og ønsker oss en pen leilighet med utsikt over fjorden. Det tror jeg mange andre i samme livssituasjon også ønsker seg, sier Monica.

- Målet vårt er å gjøre Eina til noe mer enn det som finnes i dag. Det skal være solid, godt bygget og hjemmekoselig – det er derfor det heter Heme.

Om spaden får være med videre inn i den nye hverdagen?

- Ja, den skal ta det første spadetaket på tomta når vi bygger!

Foto: Aud Ingebjørg Barstad

Finansrådgivere som kjenner Eina

Hvis du finner din drømmeleilighet i dette prospektet, lønner det seg å ha finansieringsbevis klart når salgsstarten for Heme går. EiendomsMegler 1 Østlandets samarbeid med SpareBank 1 Østlandet gjør at du får ordnet alt på ett sted: Både gratis e-takst av nåværende bolig og hjelp til finansiering. Trygt og enkelt!

Heme har dedikerte finansrådgivere i banken på Raufoss som kjenner prosjektet godt. Rådgiverne er klare til å ta i mot deg for et hyggelig møte, og de kan svare deg på de spørsmål du måtte ha angående finansiering av ny leilighet.

For å få finansieringsbevis krever banken en nylig e-takst (verdivurdering) av din nåværende bolig. Du får gratis e-takst av våre meglere. Ta kontakt med oss, så hjelper vi deg.

Finansrådgiverne:

Unni Hoel (t.v.), tlf 907 82 310 / unni.hoel@totenbanken.no

Hilde Marie Glæserud, tlf 957 54 660 / h.glaeserud@totenbanken.no

Grønt Boliglån i SpareBank 1 Østlandet

Leilighetene på Eina blir bygget etter en standard som gjør at de kvalifiserer til Grønt Boliglån i SpareBank 1 Østlandet. Grønt Boliglån gis til energieffektive boliger (klassifiserte som A og B), og gir deg en bedre rente på boliglånet ditt. Du sparer penger – både på renter og utgifter til oppvarming.

Betingelser på Grønt Boliglån

• Gjelder kjøp og refinansiering av bolig med energimerke A eller B

• Du kan låne inntil 90 % av kjøpesummen

• Opptil 30 års nedbetaling

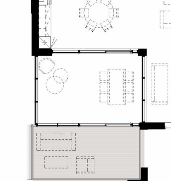
Heme vil få flotte fellesarealer som skaper sosiale møteplasser. Tunet vil være hjertet mellom bygningene. Illustrasjon, avvik vil forekomme.

Prosjektet er godt gjennomtenkt for at flest mulig skal kunne nyte luft og sikt i tillegg til gode uteplasser. Her fra B301 med bl.a. både en innglasset og åpen balkong. Illustrasjon, avvik vil forekomme.

Lys og sol er ivaretatt og uteplassene til leilighetene vender mot syd og vest. Her fra balkongen til B301, som vender rett syd med fantastisk utsikt utover Einafjorden og omkringliggende områder. Illustrasjon, avvik vil forekomme.

Gode planløsninger og godt med lysinnfall gjenspeiler kvaliteten. Her fra D201, med vestvendt utsikt mot Einavatnet som går over til Hunnselva. Illustrasjon, avvik vil forekomme.
D301 har i tillegg til en stor balkong ut fra stue, en flott balkong i tilknyttning til hovedsoverommet. Her kan man nyte solen til den går ned. Illustrasjon, avvik vil forekomme.

Ælle har vøksi opp en stann, ælle lik å høre tæl.

Væger som vi gikk på hår dag da vi var små, går tæl steller det er godt å vara på.

Første vers fra Detti er heme // Torbjørn Dyrud
Eina Meieri. Foto: Anders Beer Wilse / Norsk Folkemuseum
Eina Meieri. Foto: Anders Beer Wilse / Norsk Folkemuseum

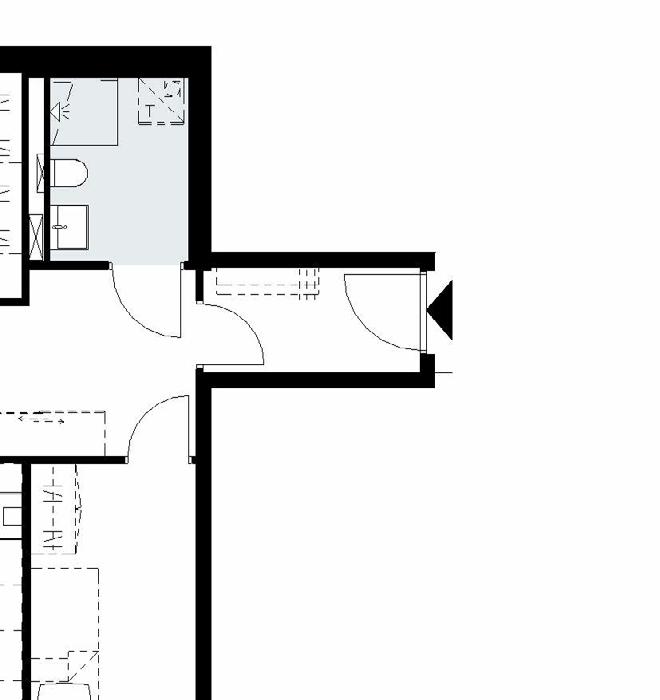
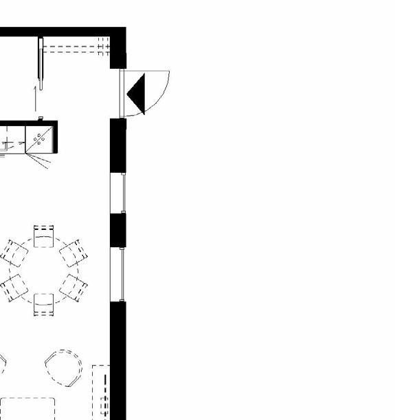
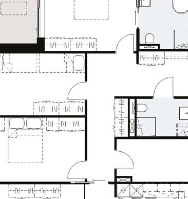
Tegninger

Prospektet for Heme viser til forbehold vedr. vedlegg, illustrasjoner og kontrakter

Sentrale begreper:

BRA: Totalt bruksareal. Dette inkluderer BRA-i, BRA-e og BRA-b.

BRA-i: Alt av areal innenfor leilighetenes omsluttende yttervegger, både innredet og uinnredet, altså både oppholdsrom, internt bodareal, sjakter og innervegger.

BRA-e: Eksternt bruksareal som tilhører boenheten, men som er fysisk separat, som eksterne boder uten direkte tilgang fra hoveddelen.

BRA-b: Innglasset terrasse- og balkongareal tilknyttet boenheten.

NB! Iht. målereglene for Norsk Standard inkluderer dette veggareal mellom BRA-i og BRA-b.

TBA: Arealet av terrasser og åpne balkonger, verandaer og altaner tilknyttet boenheten.

Om arealberegning:

- Arealberegningene er foretatt av arkitekt/utbygger.

- Bruksareal er beregnet etter reglene i ny NS3940:2023.

- Arealer angitt på tegninger for det enkelte rom er rommets nettoareal.

- Tabellfremvisning av areal for innglasset terrasse/balkong inkluderer veggareal mellom BRA-i og BRA-b.

- Tegninger viser møbler/forslag til møblering, planter etc. Kun for illustrasjon og medfølger ikke i leveransen.

Det tas forbehold om mindre avvik for de angitte arealer, da beregningene er foretatt på tegninger.

Tegnforklaringer:

Vaskemaskin

Tørketrommel

Kjøleskap/fryser

Oppvaskmaskin

Koketopp

Kompassymbolet viser deg hurtig hvilken retning som er mot nord.

Det tas forbehold om noe avvik i angitt kompassretning

UTOMHUSPLAN

Einafjorden
Hunnselva
Renovasjon
HUS F
HUS G
Jernbane

Merk at det vil bli endringer/tilpasninger i underetasjen.

Innkjøring garasjeanlegg

30.5 m²

Kjøkken Lager

19.5 m²

145.7 m²

Merk at det vil bli endringer/tilpasninger i planløsningen til cafe/restaurant.

54.5

Cafe/restaurant
Selskapslokale
Trapperom Heis
Kjøkken

Utleie/ gjesteleilighet

69 m2

Selskapslokale

54.5 m²

Tilhører salgstrinn 2

Balkong
Balkong
Balkong
Innglasset balkong
Innglasset
Trapperom
Heis
Gangbro

B0201 C0201

Innglasset balkong

B og C 2. et. Balkong

Tilhører salgstrinn 2

Balkong
Balkong
Innglasset balkong
Trapperom Heis
Gangbro

Balkong

Balkong Innglasset

Terrasse
Terrasse

Heis Korridor Trapperom Terrasse

Gangbro
Balkong
Balkong

5.1

Heis

Trapperom

Korridor Balkong

Balkong

Gangbro
Balkong
Balkong

5.1

Heis

Trapperom

Balkong

Balkong
Balkong
Trapperom Heis

Næring

56.9 m²

Balkong

Tilhører salgstrinn 2 113.8 m² 4-roms

Balkong
Balkong
Trapperom Heis

5.1

Tilhører salgstrinn 2

Balkong
Balkong
Trapperom Heis

5.1 m²

Balkong

m² STUE/ KJØKKEN

G0301

Tilhører salgstrinn 2

Balkong
Trapperom

Trapperom Heis

5.1

Gjesterom/

Stue / Kjøkken

/ Kjøkken

3- roms

Stue / Kjøkken

E0201 D E

3- roms

/ Kjøkken

3- roms

Stue / Kjøkken

/ Kjøkken

Stue / Kjøkken

Stue / Kjøkken

/ Kjøkken

Gjesterom/

Kontor/TV

Info fra megler

OPPDRAGSTAKER

EiendomsMegler1 Østlandet AS Avdeling Nybygg, Hamar

Strandgata 15 2317 Hamar

Orgnr.: NO 945727306

ANSVARLIGE MEGLERE

Gro Rakstad

Prosjektmegler / Eiendomsmegler MNEF

Tlf.: 971 22 404 / epost: gro.rakstad@em1ostlandet.no

Thomas Skogli Rusten

Prosjektmegler / Eiendomsmegler

Tlf.: 902 23 545 / epost: thomas.rusten@em1ostlandet.no

EIERFORHOLD

Utbygger

Eina Sentrum AS Solvikvegen 15, 2843 Eina

Orgnr. 921 552 572

Entreprenør

Betonmast AS

EIENDOMSBETEGNELSE

Adresse:

Heme har en flott beliggenhet i Eina sentrum. Eiendommen vil bli sammenføyd, fradelt, seksjonert og tildelt nye adresser fra Vestre Toten kommune.

EIERFORM

Selveier

REGISTERBETEGNELSE

Eiendommen har matrikkelnummer Gnr. 145, bnr. 4 og 22 i Vestre Toten kommune (3443).

Registerbetegnelsen kan bli endret i forbindelse med fradeling/sammenføying av tomteareal.

GENERELL INFORMASJON

Heme er et nytt og moderne boligprosjekt beliggende i hjerte av Eina. Prosjektet har en unik beliggenhet rett ved Einafjorden og denne vakre perlen i Innlandet skal få et realt ansiktsløft. På Heme vil du bo moderne og bekvemmelig. Få friheten til å bruke tiden på det du ønsker, om det er fisketurer, sykkelturer eller småturer. Her er du omgitt av flotte og naturlige rekreasjonsområder året rundt.

Heme er et prosjekt med sterk lokal forankring. Per Arne og Monica Jakobsen er utbygger og einapatrioter. I over 30 år har de drevet næringsvirksomhet her, og nå vil de skape noe nytt.

Deres visjon er å skape et sentrum som det er trivelig å bo og leve i, med inkluderende bomiljøer som bidrar til sosial bærekraft og trivsel. Heme vil sette Eina på kartet, og bli et samlingspunkt for folk i alle aldre. Den lange historien og det gode samholdet er bærebjelkene for det som nå blir framtidas Eina.

Når du bor på Eina har du nesten alt du trenger på ett sted, og i tillegg toget som tar deg rett til Gjøvik eller Oslo.

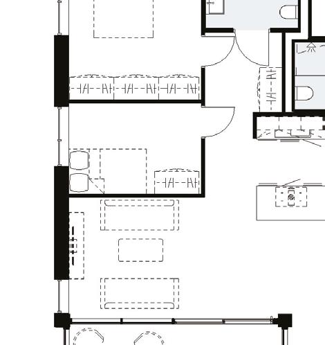
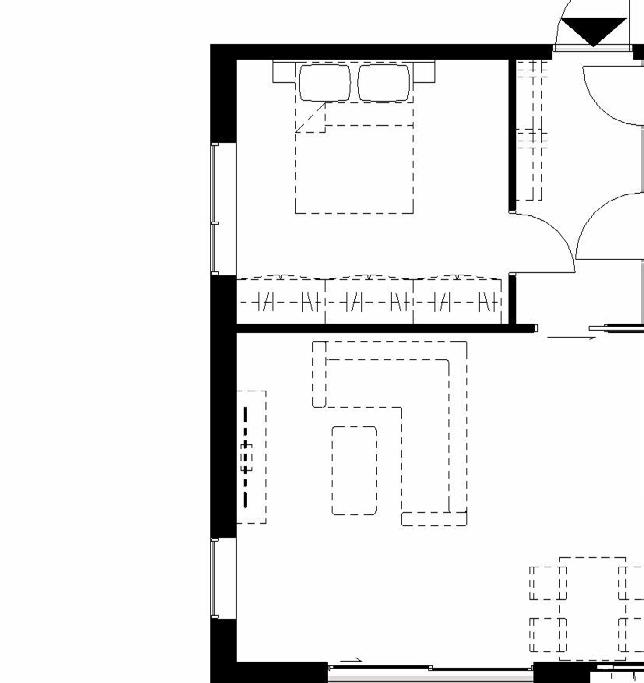
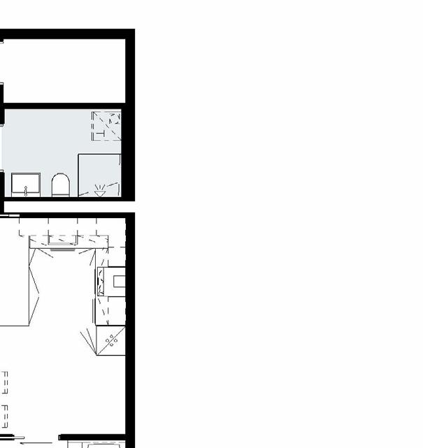
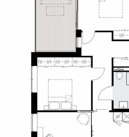
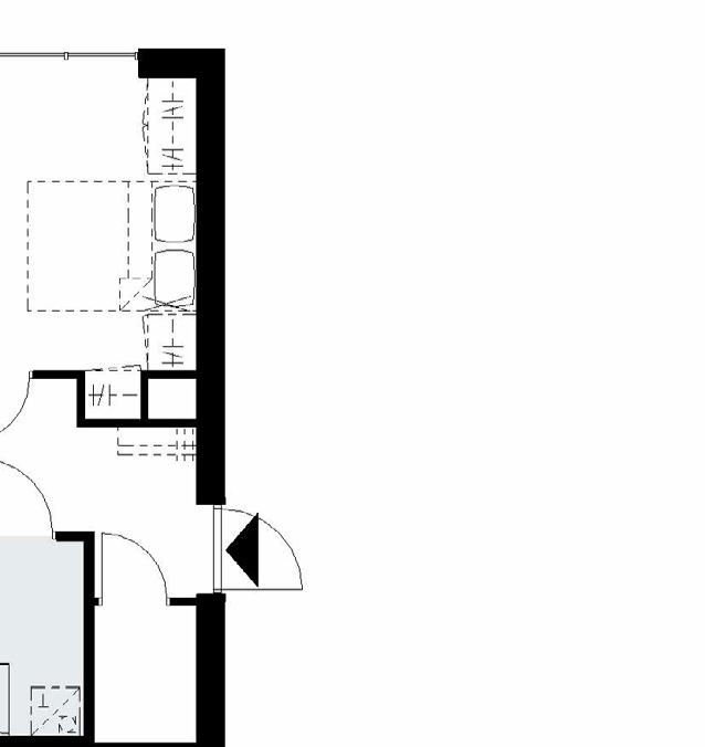
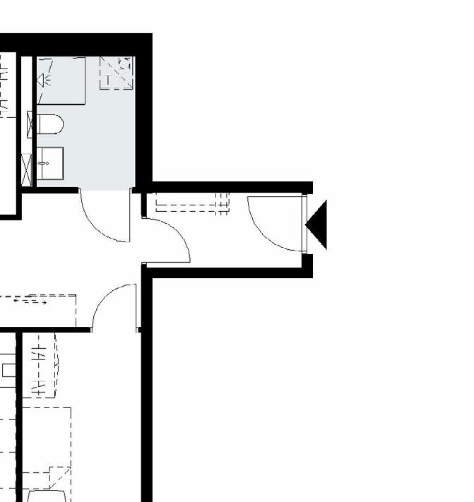
Heme er planlagt å utbygges i to trinn. Første salgstrinn består av fem bygg med til sammen 25 leiligheter i tillegg til noe næringsareal og parkeringskjeller med vaskeplass og boder. Byggene vil være i varierende størrelser og utforming som vil skape variasjon og flotte felles utearealer. Enkelte hus vil være todelt ved at det blir knyttet en gangbro i mellom etasjene. Dette for at flest mulig kan ta heisen fra parkeringskjelleren og opp i sitt plan. Leilighetene vil ha størrelse fra 51-163 kvm, noe som gir gode muligheter til å finne en leilighet som passer nettopp deg.

Selve Meieribygget, hus C og G, er i andre salgstrinn. Meieribygget vil bli rehabilitert/nyoppført og tilbygd slik at det beholder sin historie i området. Her vil det bli næring og leiligheter.

Byggene i salgstrinn 1 er nøye plassert slik at både utsikten og tomtens områder utnyttes

optimalt. Forskyvningen av bygningene i forhold til hverandre legger til rette for et luftig areal med varierte nisjer i uterommet og et tun med hyggelige sittegrupper og et lekeområde. Mellomrommene mellom byggene er også etablert for å skape et lettere uttrykk, sikre gode solforhold for leilighetene samt gi utsikten mellom byggene. Det blir et bilfritt område hvor inngangen til leilighetene vil ligge.

Her er det mange leiligheter som får en nydelig utsikt mot vannet og omkringliggende områder. Alle leiligheten har uteplasser/balkonger. Flere av leilighetene vil få en innglasset del av balkongen og noen en tilleggsbalkong. Det er planlagt et bryggeanlegg med badstue ut mot vest. Den vil være offentlig tilgjengelig. I tillegg vil den populære Fjordgløtt Kafé og Landhandel ha lokaler i første plan på hjørnet mot fjorden. I tilknytning til disse lokalene vil det være lokaler som man kan leie til private selskaper. En av leilighetene i salgstrinn 1 vil etableres som en gjesteleilighet som beboere kan leie i helger ved besøk.

Alle leilighetene vil være på ett plan med alle nødvendige funksjoner for en enkel og god hverdag. Leilighetene har gode og gjennomtenkte planløsninger og alle boligene utenom to, har flere sider med lysinnfall. Enkelte går over hele etasjen. Store vinduer gir gode lysforhold og lys er viktig for en god bokvalitet. Flere leiligheter får fleksible løsninger hvor det ekstra soverommet ligger i tilknytning til stuen og kan enkelt benyttes som gjesterom, hjemmekontor eller tv stue. I noen leiligheter er det også mulig innenfor en gitt frist å innlemme soverom som del av stuearealet. Mange leiligheter har i tillegg to bad.

Fasadene vil ha en fin variasjon mellom plater, glass og treverk, med mulig innslag av andre materialer der arkitekten måtte ønske det. Dette er solide materialer som er værbestandig og tåler områdets klima godt. Rekkverk på balkonger vil bli glassrekkverk over brystning. Innglassede balkonger blir en kombinasjon mellom åpningsbare og faste felt. Gulv på balkongene vil være royalimpregnert treplatting. På bakkenivå blir det betongheller/belegningsstein.

Heme vil være et prosjekt med god kvalitet og dette kommer ikke bare til utrykk i arkitekturen, men også innvendig i leilighetene. Generelt vil leilighetene og bygget leveres med god standard på teknisk anlegg, materialvalg og innredninger. Kjøkkeninnredning leveres fra anerkjent leverandør med moderne fronter og integrerte hvitevarer som stekeovn, nedfelt koketopp i type induksjon, helintegrert oppvaskmaskin og helintegrert kjøl- og frys. Flere av leilighetene vil ha mulighet for kjøkkenøy. Gulv leveres med en 1- stavs eikeparkett med tilpassede gulvlister, med unntak av hus F som leveres med 4-stavs eikeparkett som standard. Bad leveres med 60x60 cm keramiske fliser på gulv og vegger, nedsenket grube i dusjsonen med mindre fliser, veggmontert toalett, heldekkende servant med innredning og speil med integrert belysning. På bad, dusj/wc og entré leveres LED-downlights innfelt i himling. Det blir i hovedvedsak vannbåren varme i gulv og det leveres balansert ventilasjon uten kjøling for hver enkelt leilighet fra eget luftbehandlingsanlegg.

Det er utviklet tre interiørpakker i tillegg til standardleveransen til leilighetene. Åkeren, Fjorden og Skogen er tre pakker som baserer seg på omgivelsene rundt. Konseptene er utarbeidet for å treffe et bredt spekter av kjøpere. De trekker farger og materialer fra nauren, og skaper varme, lune hjem som står seg godt i lang tid fremover.

I salgs- og byggeprosessen vil kjøpere få anledning til å påvirke enkelte materialvalg og innredningsvalg. Prosjektet vil bli prosjektert og bygget i henhold til teknisk forskrift av 2017, versjon gjeldene på rammesøknadstidspunktet. Rammetillatelse forventes i løpet av sommeren 2025 og det tas således forbehold om forhold som kan dukke opp og som ikke er kjent.

Heme vil bli organisert som et eierseksjonssameie. Utbygger forbeholder seg retten til enten å velge en løsning med ett eierseksjonssameie felles for alle, eller flere sameier. Selger forbeholder seg retten til å endre antall leiligheter og næringsdel, samt eierbrøken som følge av dette.

Selskapslokale og gjesteleilighet

Heme skal bli et sted der beboerne trives sammen og hvor nye, gode naboskap knyttes. Det å bli kjent med naboen er kanskje det viktigste for trivsel, trygghet og tilhørighet i et bomiljø.

Heme vil det bli tilrettelagt for flere sosiale soner som kan benyttes til naturlig samlingssteder. I første etasje i hus A/B vil Fjordgløtt Kafé og Landhandel ligge. I tilknytning til kaféen er det et stort, flott rom med god plass til langbord.

Lokalene tilrettelegges for utleie til privat samling av venner og familie når det er behov for dette. Det vil også være en gjesteleilighet i dette bygget med kjøkken, tre soverom og privat baderom som kan leies til overnattingsbesøk i helger. Perfekt for en familie på besøk.

Utomhus vil det etableres et hyggelig tun med sitteplasser og et bryggeområde for at man slå av en prat med naboen. Bryggeområdet blir unikt i seg selv. Dette vil bli et yndet sted hvor man kan trekke ned på fine solskinnsdager både alene, sammen med naboen eller med barnebarn. I Heme vil det bli enkelt å bli kjent med naboer og nyte godt av nabolagets mange muligheter.

TOMT OG BELIGGENHET

Beliggenhet

I Heme får du muligheten til å bo med umiddelbar nærhet til Einafjorden. Det å bo nære flotte rekreasjonsområder sommer som vinter er få unt. I tilknytning til prosjektet Heme vil det bli opparbeidet et flott offentlig bryggeområde. Dette er et perfekt område for morgen- eller kveldsbadet i tillegg til at det er planlagt en badstue som vil forlenge badesesongen. Kommunen har planer for opparbeidelse av badeplass på andre siden av vegen som vil berike området.

Tar du beina fatt, er det flere merkede turstier som tar deg rundt i områdene. Er man ekstra sprek, er en sykkeltur rundt Einafjorden en opplevelse. Området brukes i dag av både unge som eldre, og gir grobunn for et sunt og friskt liv. Om vinteren kan du spenne på deg skiene eller prøve isfiske når isen er trygg.

Det er daligvareforretning, frisør, kafé/restaurant i Eina sentrum. Gjøvik ligger kun 20 minutters kjøretur unna, og det er kort gangavstand til jernbanestasjonen med togforbindelse både til Gjøvik og Oslo.

Areal og type

Tomten er regulert til boligformål og er på drøye 7 daa. Tomten vil bli fradelt for de ulike salg- og/ eller byggetrinnene.

Planområdet er avgrenset av Einavatnet mot vest, jernbanen mot nordøst, næring (mulig fremtidig bygg) mot nord, Fjordgata mot øst og Hågårvegen med kommunens friområdet ned til Einafjorden mot sør.

Tomtens beskaffenhet

Heme vil bli opparbeidet med fine grønne fellesområder rundt byggene. Det vil bli varierende beplantning av grønne vekster, gangveier med grus/asfalt/belegningsstein, noen lekeapparater og sosiale soner med sitteplasser som vil være tilgjengelig for beboere og andre forbipasserende. Opparbeidelse vil skje i takt med utbygging og ferdigstillelse til overtakelse så langt det lar seg gjøre innenfor årstiden.

Det vil bli montert moderne og tidsriktig utebelysning ved innganger, i gårdsrom, ved garasjeporter og på alle balkonger/terrasser. All utvendig belysning vil være av god kvalitet og design.

Bryggeanlegget med en planlagt badstue ut mot Einafjorden vil være offentlig tilgjengelig.

Adkomst

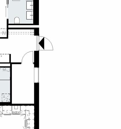
Innkjøring til parkeringskjeller blir fra Fjordgata, inn under hus F. Innkjøringen vil gjelde for hele området og for alle kommende byggetrinn –som Meierigården - i prosjektet. Fra parkeringskjeller under hus A, E, F og Meierigården blir det adkomst via heis og trapperom til alle næring-/boligetasjene.

Hus B og D vil få gangbro med varmekabler fra hus A og E. Hus C og G vil ha utvendig adkomst fra parkeringskjeller med innvendig trapp mellom etasjene.

Vei/vann/avløp

Eiendommen er tilknyttet offentlig vann og avløp. Interne stikkveger er sameiets fellesansvar.

Oppvarming/ventilasjon

Oppvarming av leilighetene vil bli levert som vannbårent anlegg med gulvvarme. Dette gjelder for oppholdsrom som entré, stue og kjøkken. Baderom får elektrisk gulvvarme. Soverom og ev. bodareal vil leveres uten varmekilde. Bygget blir tilknyttet bergvarmeanlegg (varmepumpe) og forbruk av oppvarming og varmt tappevann måles separat i hver enkelt enhet og avregnes etter forbruk. Sameiet vil ha energiforbruk utover forbruket som registreres i hver enkelt leilighet, så som oppvarming av fellesarealer, snøsmelteanlegg og avgitt energi ved distribusjon av varme mellom sameiets hovedmåler og leilighetene.

Det leveres balansert ventilasjon uten kjøling i hver enkelt leilighet. Det leveres et eget ventilasjonsanlegg for garasjeanlegg med boder.

Parkering/boder

For leiligheter med p-plass legges det opp til parkering i kjellerplan, plan U. Det fremkommer av den enhver tid oppdaterte prislisten detaljert informasjon om hvilke leiligheter som har medfølgende garasjeplass(er). Det tilrettelegges for lastbalansert ladeanlegg for el-bil. Ladeboks kan kjøpes som tilvalg i tilvalgsprosessen. Når hele området for Heme er ferdig utbygd, vil det være anlagt gjesteparkering nord på tomten. I perioden frem til ferdigstillelse vil gjesteparkeringen kunne få en annen plassering på tomten. Gjesteparkering i nærområdet etter gjeldende regler.

Det vil i plan U legges opp til sportsboder, vaskeplass til bil og teknisk rom. Utvendig sykkelparkering.

Areal

Arealberegningene er foretatt av arkitekt/utbygger. Se prisliste eller tegninger for areal pr. leilighet.

Bruksarealet er beregnet iht. reglene i NS

3940:2023 og utgjør alt areal innenfor omsluttende yttervegger. Arealer angitt på tegninger for det enkelte rom, er rommets nettoareal og er eksklusiv innvendige vegger. Det tas forbehold om mindre avvik for de angitte arealer, da beregningene er foretatt på tegninger.

Det er planlagt at leiligheter skal disponere en bod på ca. 5 kvm.

Parkeringsanlegget planlegges seksjonert som en egen næringsseksjon der seksjoner med eierrett til parkeringsplass vil få en tinglyst ideell andel i seksjonen. Utbygger tar likevel forbehold om alternativ organisering av arealet (se forbehold).

ØKONOMISKE FORHOLD

Kommunale avgifter

De kommunale avgiftene er inkludert i felleskostnadene. Det er kommunen som fastsetter nivå for disse avgiftene og det tas forbehold om endringer i avgiftsnivået.

Eiendomsskatt faktureres direkte fra Vestre Toten kommune og kommer i tillegg. Eiendomsskatten og størrelsen på denne blir vedtatt i kommunestyret hvert år i forbindelse med budsjettbehandlingen. Herunder vedtas også neste års skattesats, hvilke eiendommer som skal fritas for eiendomsskatt og hvorvidt kommunen skal ha bunnfradrag. For bolig og fritidseiendom settes satsen til 4 promille. Nyoppførte boligeiendommer fritas i inntil 2 år, eller til kommunestyret endrer eller opphever fritaket.

Stipulerte felleskostnader

De ulike kostnadspostene i driftsbudsjettet for sameiet vil bli fordelt andelsmessig mellom seksjonene, og beregnes delvis etter seksjonens innvendige bruksareal, delvis på antall seksjoner og delvis på grunnlag av antall garasjeplasser for den enkelte seksjon. Fellesutgiftene er iht. utkast til budsjett og dekker; forretningsførsel, revisjon, styrehonorarer, arbeidsgiveravgift, innleid vaktmestertjenester, renhold av fellesareal, service/drift/vedlikehold av tekniske anlegg, bygningsmessig forsikring, kommunale

avgifter som renovasjon og vann/avløp, strøm/ energi fellesarealer, á-konto fjernvarme leiligheter, grunnpakke TV/internett, brøyting/strøing, drift/vedlikehold av felles garasjeanlegg og bidrag til huseierforening som har ansvar for drift/vedlikehold av utomhusanlegg og anlegg/ bygninger til felles benyttelse. Endelig kostnadsnivå avhenger av hvilke tjenester sameiet kjøper og hvilket forbruksmønster beboere har.

Mindre leiligheter vil ha et høyere stipulert beløp per kvm BRA-i enn større leiligheter. Månedlige fellesutgifter for den enkelte leilighet må forstås som stipulerte og iht. 2024-priser da budsjett ikke hensyntar ev prisøkninger på kostnader og tjenester fra 2024 til innflytting ved overtakelse. Det henvises til prislisten hvor felleskostnadene for den enkelte leilighet fremkommer.

Fyringsutgifter

For fyring og varmtvannsforbruk er et stipulert á-kontobeløp inkludert i de månedlige felleskostnadene. Den årlige kostnaden vil variere etter størrelse og beliggenhet til leiligheten samt eget forbruksmønster.

Strømutgifter

Strømutgifter i hver leilighet betales separat iht. egen måler direkte til strømleverandør.

Likningsverdi

Likningsverdi fastsettes etter at boligen er ferdigstilt.

Bygningsforsikring

Eiendommen vil bli fullverdiforsikret gjennom sameiets fellespolise, og betjenes gjennom felleskostnadene. Den enkelte eier må selv tegne innboforsikring.

OFFENTLIGE FORHOLD

Ferdigattest

Utbygger vil utstede minimum midlertidig brukstillatelse innen overtagelse. Ferdigattest vil bli utstedt når utbyggingen innfrir de krav kommunen setter for utstedelse av ferdigattest.

Antall godkjente boenheter/utleieforhold

Hver leilighet vil bli godkjent som egen boenhet. Den enkelte leilighet kan fritt leies ut etter eiers ønske, forutsatt at utleien er i tråd med bestemmelsene i eierseksjonsloven og gjeldende vedtekter for sameiet.

Tinglyste pengeheftelser/heftelser: Eiendommen selges fri for pengeheftelser, dog med unntak for heftelser som ev. påhviler sameiet. Heftelser som vil følge eiendommen:

• Skjønn: Jernbanetakster, gjelder denne med flere. Doknr. 1899/900129-1, tinglyst 01.11.1899.

• Erklæring/avtale. Jernbanetakster, gjelder denne med flere. Doknr. 1902/900212-1, tinglyst 15.04.1902.

• Rettigheter iflg. skjøte. Bestemmelse om gjerde. Overført fra: Knr: 0403 Gnr: 1 Bnr: 3667. Doknr. 100150-1, tinglyst 25.01.1940.

• Rettigheter iflg. skjøte. Rettighetshaver: Toten Regnskapskontor AS, leieavtale. Doknr. 1989/7247-1, tinglyst 24.07.1989.

Tinglyste dokumenter på eiendommen er tilgjengelig hos megler.

Selger har rett til å tinglyse nye heftelser på eiendommen som følge av privat- og/eller offentligrettslige krav, herunder heftelser som gjelder vei, vann, avløp og tilliggende rettigheter og forpliktelser.

Alle seksjonseiere har panterett i hver seksjon som følge av sameieforholdet jf. eierseksjonsloven § 31. Pantekravet kan ikke overstige et beløp som for hver bruksenhet svarer to ganger folketrygdens grunnbeløp på det tidspunktet tvangsdekning besluttes gjennomført.

Andre rettigheter og forpliktelser

Den enkelte sameier plikter seg til å innrette seg etter sameiets vedtekter og gyldige fattede vedtak på generalforsamling/årsmøtet for sameiet. Det er utarbeidet et forslag til vedtekter, dette ligger vedlagt prospektet. Det tas forbehold om tilpasning av vedtektsutkastet før det blir endelig vedtatt på stiftelsesmøte for sameiet.

Dersom det blir etablert mer enn ett sameie, vil dette kunne medføre at det vil bli tinglyst rettigheter og forpliktelser knyttet til bruk, drift og vedlikehold/utskiftning i tilknytning til fellesområder som uteområder, adkomster, ledningsnett og lignende forhold.

Offentlige planer

Området vil bli utbygget i henhold til gjeldende bestemmelser i reguleringsplan for Eina sentrum, planid: 171, planforslag datert 20.02.2025.

For kopi av gjeldende reguleringsplan, eller informasjon om øvrige reguleringsplaner i området, ta kontakt med megler. Det tas derfor forbehold om forhold som p.t. ikke er kjent. Kjøper må påregne byggeaktiviteter for resten av utviklingsområdet, herunder Meierigården, samt eventuell utvikling mot nord. Vestre Toten kommune har planer om utvikling av strandområdet mot sør. Utbygger vil søke om rammetillatelse som trolig vil foreligge sommeren 2025.

Energimerking

Alle leilighetene overleveres ferdig energimerket. Boligens varmetap og energibehov er dimensjonert iht. teknisk forskrift 2017. Det er ventet at leilighetene vil få en klassifisering i kategori A eller B.

ØVRIGE FORHOLD

Overtakelse

Leilighetene planlegges ferdigstilt i perioden 2. kvartal til 3. kvartal 2027, under forutsetning av vedtak om igangsetting 2. kvartal eller 3. kvartal 2025. Kjøpere vil bli holdt løpende oppdatert om denne utviklingen, og det tas forbehold om overtagelse i henhold til byggestart, fremdrift, solgte enheter samt at selger anser gjennomføringen av prosjektet som økonomisk forsvarlig.

Forbehold

Selger tar følgende forbehold med tanke på igangsetting av prosjektet:

1. Nødvendige offentlige godkjenninger. Dette omfatter også i forbindelse med rammetillatelse og igangsettingstillatelse.

2. Tilfredsstillende forhåndssalg i salgstrinn 1 (hus A, B, D, E og F) tilsvarende minimum 50 % av antall enheter og/eller leilighetenes totale verdi.

3. Selgers byggelån blir innvilget og åpnet. 4. Vedtak om igangsetting i utbyggingsselskapets styre.

Selgers forbehold skal være avklart innen 01.06.2026. Forbehold anses avklart først når selger har avklart dette uttrykkelig overfor kjøper. Dersom forbeholdene ikke er oppfylles eller avklares innen nevnte frist er ingen av partene forpliktet etter denne kontrakt. Ved skriftlig enighet mellom partene, kan fristen i dette avsnitt forlenges på samme vilkår.

Selger kan velge å igangsette bygging på et lavere forhåndssalg enn nevnt i pkt. 2.

Selger forbeholder seg retten til å endre antall bolig-/næringsseksjoner, samt eierbrøken og utkast til budsjett for sameiets felleskostnader som følge av dette. Selger forbeholder seg retten til å transportere kjøpekontrakt fra Selger til et annet selskap uten samtykke fra Kjøper.

Selger tar forbehold om å justere salgspriser på usolgte boliger i prosjektet. Uavhengig om prisforlangende for tilsvarende boliger i tidsrommet etter kontraktsinngåelsen blir justert opp eller ned, kan ingen av partene av den grunn kreve prisavslag eller pristillegg.

Felleskostnader fordeles delvis per kvm BRA, og delvis på antall boligenheter. Dette medfører at mindre boliger får høyere felleskostnader pr. kvm BRA enn større boliger. Det tas forbehold om endringer i fordelingsprinsipper og stipulerte felleskostnader for den enkelte bolig, som først vil bli endelig vedtatt av sameierne i konstituerende sameiermøte ifm. fastsettelse av vedtekter, samt budsjett for første driftsår.

Selger har rett til å gjøre mindre endringer i konstruksjon, fasader, tekniske installasjoner og materialvalg som ikke reduserer Boligens kvalitet, uten at dette gir Kjøper rett til endring av avtalt kjøpesum. Er det motsetninger mellom

prospekttegninger og beskrivelser, gjelder beskrivelser foran tegninger. Det tas forbehold om justeringer og endringer av utomhusplanen.

Selger tar videre forbehold om at bilder og illustrasjoner er ment å illustrere prosjektet, og kan vise tilvalg som ikke er en del av standardleveransen. Inntegnede møbler/utstyr/inventar/ hvitevarer medfølger nødvendigvis ikke, og det kan forekomme elementer i presentasjonsmaterialet som ikke inngår i leveransen. Det kan være avvik mellom salgsmaterialet og den endelige leveransen. Slike mangler utgjør ingen mangel ved selgers leveranse, og gir ikke kjøper rett til prisavslag eller erstatning. Illustrasjoner av kjøkken på tegninger er veiledende og angir utstrekning av kjøkkenet. Kjøkken leveres iht. nærmere detaljert tegning fra kjøkkenleverandør.

Illustrasjoner, 3D animasjoner, skisser, plantegninger m.m. er presentert for å synliggjøre den ferdige bebyggelsen, men kan ikke anses å inngå i leveransen eller detaljer for utførsel. Det vises til leveransebeskrivelsen inntatt i dette prospektet. Leveransebeskrivelsen er bindende for selger og er en del av kjøpekontrakten på boligen.

Selger tar forbehold om at Kjøper godtar at Selger og Megler kan bruke elektronisk kommunikasjon for å sende varsler og informasjon etc. Det tas forbehold om trykkfeil i prospektet/ salgsoppgaven.

Visning

Foreløpig salg på bakgrunn av prospekt. Megler kan etter avtale møte interessenter på tomten.

Boligselgerforsikring

Selger anses som profesjonell og har ikke anledning til å tegne boligselgerforsikring.

Omkostninger kjøper Kjøpers omkostninger fremkommer av prislisten. Omkostningene inkluderer startkapital til sameiet, dokumentavgift av andel tomteverdi beregnet etter eierbrøk og tinglysingsgebyr for skjøte. I tillegg betaler kjøper for tinglysing til egen

finansiering med kr 545 pr. panterettsdokument. For nærmere opplysninger om omkostninger vises det til prisliste og vedlagt utkast til kjøpekontrakt.

Meglers vederlag

Det er mellom selger og megler avtalt en provisjon på kr 50.000 pr. solgte enhet. Oppgjørshonorar er avtalt til kr. 5.000 pr. enhet. Meglers vederlag dekkes av oppdragsgiver. I tillegg kommer eventuelle visnings- og markedsføringskostnader.

Tilvalg

Kjøper har rett til å kreve endringer og tilleggsarbeider som står i sammenheng med ytelsen som er avtalt, og som ikke i omfang eller karakter skiller seg vesentlig fra denne ytelsen og som ikke er til hinder for rasjonell gjennomføring av byggearbeidene.

Selger vil utarbeide en tilvalg-/endringsmeny som angir aktuelle valgmuligheter for endringer og tilleggsarbeider. Tilvalgs menyen vil inneholde opplysninger og priser, frist for bestilling samt eventuell betydning for overtakelsestidspunktet. Dersom kjøper ønsker å få utført endringen og/ eller tilleggsarbeider, skal dette bestilles skriftlig av selger eller den selger måtte oppnevne. Selger er ikke forpliktet til utføre endringer eller tilleggsarbeider som endrer vederlaget med 15 % eller mer. Selger er heller ikke forpliktet til å utføre endringer eller tilleggsarbeider som vil føre til ulempe og som ikke står i forhold til kjøpers interesse i å kreve endringen eller tilleggsarbeidet.

Alle tilleggs bestillinger/endringer skal faktureres av megler. Selger har rett til å ta seg betalt for utarbeidelse av pristilbud, tegninger mv. jf. bustadoppføringslova § 44. Selger har ikke rett til å utføre endringer/tilleggs bestillinger som medfører konsekvenser for øvrige kjøpere.

Garantier

For bolig som blir solgt etter bustadsoppføringslova vil selger stille de nødvendige garantier i samsvar med bustadoppføringslova § 12. Dersom selger stiller § 47 garanti, vil megler foreta utbetaling av kjøpers innbetalinger.

Eventuell transport av avtalen

Kjøper er kjent med at kjøpekontrakten ikke kan transporteres uten samtykke av Selger. Selger kan på fritt grunnlag avslå å gi samtykke til transport. Dersom Selger godtar transport vil de kreve et transportgebyr på kr. 50.000 som pliktes innbetalt i sin helhet av Kjøper 1 før Selger signerer nødvendige dokumenter. Megleromkostninger kommer i tillegg.

Selger/megler påberoper seg opphavsrettighetene til alt av markedsmateriell for boligprosjektet, herunder bilder og illustrasjoner. Kjøper kan ikke benytte boligprosjektets markedsmateriell i sin markedsføring for videresalg/transport av kjøpekontrakt eller utleie uten selger/meglers samtykke.

Avbestilling

Ved kontraktsbrudd/avbestilling fra Kjøpers side, vil Selger holde Kjøper ansvarlig for økonomiske tap og merkostnader som følge av hevingen.

Kjøpers adgang til å avbestille følger av bustadoppføringsloven §§ 52-54. Ved avbestilling før varslet igangsetting skal Kjøper betale en normaltapserstatning til Selger som skal tilsvare 10 % av den avtalte kjøpesummen. Ved avbestilling letter varslet igangsetting vil Kjøper holdes ansvarlig for Selgers merkostnader og tap som følge av avbestillingen.

Bestilte tilvalg og endringer skal i slike tilfeller, i sin helhet, uansett betales av Kjøper. Selger kan kreve utbetaling av Kjøpers delinnbetaling til dekning av avbestillingsgebyr eller vederlag etter dette punkt. Hvis kontrakten ikke gjennomføres, vil renter på innbetalte forskudd tilfalle Kjøper.

Personopplysningsloven

I henhold til personopplysningsloven gjør vi oppmerksom på at interessenter som henvender seg til megler vil bli registrert for videre oppfølging. For å bidra til effektive og sikre transaksjoner, er det nødvendig at eiendomsmeglingsforetakene og finansieringsforetakene kan utveksle opplysninger, herunder personopplysninger, av betydning for transaksjonen, raskt. For dette formålet er det utviklet en

løsning som gjør at kjøpers og selgers finansieringsforbindelse vil kunne hente ut kjøpekontrakten og strukturerte data fra denne (navn, kjøpesum, overtakelsesdato o.l.) gjennom Altinn.

Lov om hvitvasking

I henhold til Lov av 1. juni 2018, nr. 23 om tiltak mot hvitvasking og terrorfinansiering (Hvitvaskingsloven) er meglerforetaket pliktig til å gjennomføre kundetiltak (ID kontroll, kontroll av reelle rettighetshavere, mv). Kundetiltak skjer løpende og vil blant annet gjennomføres når handel inngås og ved gjennomføring av oppgjøret, samt dersom det foreligger mistanke om hvitvasking eller terrorfinansiering.

Dersom kundetiltak ikke kan gjennomføres, skal meglerforetaket ikke gjennomføre transaksjonen med kjøper. Ved meglerforetakets avvikling av kundeforholdet, vil avtalen mellom partene være bindende, men meglerforetaket kan ikke bidra i gjennomføringen av handelen. Det kan ikke gjøres ansvar gjeldende mot meglerforetaket som følge av at meglerforetaket overholder sine plikter etter Hvitvaskingsloven.

Kjøper oppfordres til å innbetale kjøpesum som ikke kommer fra låneinstitusjon, i en samlet innbetaling fra konto i norsk bank.

Lov som regulerer salget

Kjøpekontrakter som er inngått før ferdigstillelse av bygget selges etter bustadsoppføringslovas bestemmelser. For de leilighetene/boligene som selges etter ferdigstillelse av bygget, vil disse selges etter Avhendingslovas normalbestemmelser. Bustadoppføringslova kommer ikke til anvendelse når kjøper er profesjonell/investor.

Kjøpers undersøkelsesplikt

Kjøper har selv ansvaret for å sette seg inn i salgsprospekt, reguleringsplaner, byggebeskrivelse og annen dokumentasjon som kjøper har fått tilgang til. Dersom utfyllende/ supplerende opplysninger er ønskelig, bes kjøper henvende seg til megler. Kjøper har ingen rett til å reklamere på grunnlag av forhold som kjøper er blitt gjort

oppmerksom på, eller som kjøper på tross av oppfordring har unnlatt å sette seg inn i. Kjøper oppfordres til å ta kontakt med megler dersom noe er uklart, og det presiseres at det er viktig at slike avklaringer finner sted før bindende avtale om kjøp inngås.

Budgivning

Ta kontakt med megler for informasjon om gjeldende kjøpsbetingelser før innlevering av bindende kjøpsbekreftelse.

Den bindende kjøpsbekreftelsen må inneholde finansieringsbekreftelse, eller kontaktinformasjon til en bankkontakt som kan bekrefte finansiering.

Bindende kjøpsbekreftelse følger vedlagt dette prospektet. Skjemaet kan også lastes ned fra prosjektets hjemmeside: hemeeina.no.

Finansiering

Når du skal kjøpe bolig, kan Sparebank 1 hjelpe deg med finansieringen. Sparebank 1 er representert i hele landet og kan gi deg lånetilbud ved boligkjøp.

Verdivurdering/e-takst

Dersom din vurdering av kjøp er avhengig av hva du kan få for din nåværende bolig vil EiendomsMegler 1 være behjelpelig med e-takst.

EiendomsMegler 1 er representert i hele landet og kan også gi deg et gunstig tilbud ved senere salg av din eksisterende bolig.

Leveransebeskrivelse

SALGSTRINN 1

Denne beskrivelsen er utarbeidet for å orientere om de til nå planlagte bygnings- og installasjonstekniske kvalitetene som er innarbeidet i prosjektet Heme, og hva som inngår i selgers leveranse. Det tas forbehold om eventuelle feil i teksten.

Dersom det er avvik mellom tegninger eller beskrivelser i prospektet eller prosjektets hjemmeside og leveransebeskrivelse gjelder denne leveransebeskrivelsen foran øvrige dokumenter.

Detaljprosjektering er ikke gjennomført, og alle opplysninger er gitt med forbehold om rett til endringer av prosjektet, herunder bl.a. standard, planløsninger, fasader og utomhusanlegg, som er relevant, hensiktsmessig og nødvendig, uten å forringe den generelle standard i vesentlig grad.

GENERELT

Prosjektet vil bli prosjektert og bygget i henhold til Teknisk forskrift av 2017 (TEK17) med gjeldende revisjoner på det tidspunktet rammetillatelsen blir gitt.

Prosjektet består av 7 bygg i varierende størrelse plassert oppå en p-kjeller i tillegg til rehabilitering/ nyoppføring av eksisterende Meieribygg. Byggene varierer i størrelse og utforming for å skape variasjon og flotte felles utearealer.

Salgstrinn 1 består av bygg A, B, D, E og F. Fjordgløtt Kafé og landhandel skal ha lokaler i plan 1 bygg A. Der vil det bli uteservering i sommerhalvåret. Det vil også bli en gjesteleilighet i plan 1 bygg B som vil være tilgjengelig for utleie til boligeiere og leietakere av næringsarealer.

I plan 2 og 3 på bygg A og B vil det være leiligheter. I bygg C er det næringsarealer i plan 1 og leilighet i plan 2. I bygg D, E og F vil det bli leiligheter i 3 og 4 plan. I bygg G vil det bli næring i plan 1 og leiligheter i plan 2 og 3. Salgstrinn 2 vil være bygg C, G og H (Gamle Meieribygget) der det også vil bli næring og leiligheter.

Med forbehold om tilfredsstillende forhåndssalg for utbygger, vil prosjektets salgstrinn 1 kunne bli igangsatt i tidsrommet 2. kvartal 2025 eller 3. kvartal 2025. Med en stipulert byggetid på ca. 25 måneder vil dette bety en forventet ferdigstillelse 2. eller 3.kvartal 2027. Oppstart og/eller ferdigstillelse kan bli endret.

Det vil også kunne bli et bygg til på området, rett nord for nedkjøring til p-kjeller.

UTOMHUS

Utomhusområder og grøntanlegg

Felles utomhusområder opparbeides med gress, asfalt, grus, belegningsstein og beplantning som vist på utomhusplan. Det er planlagt et bryggeanlegg med badstu ut mot Einafjorden. Den vil være offentlig tilgjengelig. Opparbeidelsen av utomhus vil skje trinnvis i takt med utbyggingen, med sluttføring sammen med ferdigstillelse av siste bygg, dog hensyntatt årstiden. Generelt må det påregnes at utomhusarealene og gater/ fortau ikke vil bli ferdigstilt dersom overlevering skjer i vinterhalvåret.

Eierseksjonssameiet står ansvarlig for driftsutgifter av fellesarealer og utomhusarealer inkl. brøyting av fortau, intern- og adkomstveier.

Selger forbeholder seg retten til å foreta tilpasninger og/eller endringer i forhold til det som

er gitt i rammetillatelsen på utomhusarealene. Kommunen har også planer for istandsetting av strandlinjen på den andre siden av Hågårveien, slik at dette blir en attraktiv badeplass.

Utearealet mellom meieribygget og ny bebyggelse tenkes også brukt til forskjellige arrangement samt konserter. Det kan også være aktuelt med konsert på bryggeanlegget.

Gater

Alle internveger, omsluttende gater og fortau blir asfaltert, gruset eller belagt med belegningsstein. Kjøreadkomst til eiendommen skjer fra Fjordgata, jf. situasjonsplan. Opparbeidelse av fortau og nye veier inntil fylkes- og kommunale veier skjer i tråd med egnet fremdrift.

Utekraner

Det monteres frostfri utekraner ved inngang til boligene / til sameiets felles benyttelse. Det vil også bli frostfrie utekraner ved innganger til Meieribygget.

Elektro utomhus

Det monteres moderne og tidsmessig utebelysning ved hovedinnganger, garasjeport, i gårdsrom og på terrasser/balkonger.

All utvending belysning vil være av god kvalitet og design, og styres fra felles styringsenhet. Det leveres belysning styrt av astrour, og ett dobbelt el-uttak på terrasse/balkong. Det leveres også utvendige stikkontakter ved utekraner.

BYGNINGSKONSTRUKSJONER

Grunn- og fundamenter

Kjeller fundamenteres iht. forskrifter. Byggene fundamenteres i hovedsak på dekke over kjeller.

Bærende konstruksjoner og dekker

Vertikale bærekonstruksjoner utføres som en kombinasjon av betong og stålsøyler.

Dekker og himlinger

Dekker leveres som hulldekker med trinnlydsplate og flytsparkel. Himlinger i boligene leveres som en kombinasjon av sparklet og malte hull-

dekkeelementer med synlig V-fuger og sparklet og malt gips. Det vil forekomme innkassinger av tekniske anlegg eller bærekonstruksjoner som utføres i malt gips.

Yttertak

Utvendig tak utføres som platetak type Decra eller tilsvarende.

Yttervegger

Yttervegger utføres av 250 mm isolert bindingsverk. Utvendig kledning i en kombinasjon av panel og plater.

Innervegger

Bærende innervegger, trapperoms vegger og heissjakt utføres av betong. Øvrige vegger av isolert stål eller tre bindingsverk med standard gipsplater.

Varme, brann og lydisolering

Bygget vil generelt minimum tilfredsstille gjeldende forskrifter hva angår varmeisolering, brann og lyd (TEK17). Trinnlyd mellom etasjene i boligene ivaretas med dekkekonstruksjoner som tilfredsstiller lydklasse C iht. NS8175. Øvrig lyddemping iht. lydklasse C.

Terrasser/Balkonger

Terrasser/balkonger bygges i treverk. Himlinger på balkonger leveres som malt overflate. Vegger vil være beiset panel eller vinduer. Gulv vil være royalimpregnert treplatting. På bakkenivå blir det betongheller/belegningsstein.

Innglassing

Noen terrasser/balkonger leveres med innglassing som vist på plan og fasadetegninger. Innglassing vil være en kombinasjon mellom åpningsbare og faste felt.

Rekkverk

Over brysting vil det bli glassrekkverket på balkonger. Dette leveres som innspent glassrekkverk uten stolper.

FELLESAREALER

I fellesareal leveres det sparklet og malt betong

på vegger og himling. Trappeløp og gulv vil være støvbundet betongoverflater.

Postkasser

Postkasser / postkassestativ plasseres ved innganger. Det tas forbehold om postvesenets godkjenning av endelig plassering.

Avfallshåndtering

Felles avfallsløsning (flere brukere) med søppelsorteringsanlegg plasseres i nordenden av tomta. Hver beboer bringer selv sitt søppel til et antall nødvendige fraksjoner.

Sykkelparkering

I kjeller etableres det et eget område for felles sykkelparkering til felles benyttelse. For øvrig sykkelparkering utomhus ved sykkelpullerter.

Ventilasjon

Det leveres et eget ventilasjonsanlegg for garasjeanlegget, sportsboder og fellesarealer iht. forskrifter. Det vil være eget balansert ventilasjonsanlegg for hver leilighet.

Elektro

Belysning i trappeoppganger og garasjeanlegg leveres med bevegelsessensorer. Tidsmessige, utenpåliggende armaturer i fellesarealer. I garasjeanlegg leveres belysning i henhold til gjeldende anbefalinger for private garasjeanlegg.

Heis

Det er heis i alle oppganger fra kjeller til øverste plan iht. plantegninger. Heisene leveres med rustfri/laminat innredning med speil og LED-lys på vegg eller himling. Gulv leveres med belegg. Heisene tilknyttes alarm etter gjeldende forskrifter.

ROMBESKRIVELSE BOLIGER

Generelt

Boligene vil fremstå med god håndverksmessig kvalitet, og det er lagt vekt på gode kvaliteter på overflater og materialvalg.

Romhøyde

Netto innvendig etasjehøyde er ca. 265 cm. Bad/

WC/vaskerom, entré/korridor, gjesteWC/-bad, kjøkken og soverom vil leveres med delvis eller hel nedforet gipshimling, sparklet og malt for nødvendig fremføring av tekniske anlegg, høyde ca. 240 cm. Ved eventuelt behov for nødvendig fremføring av tekniske anlegg i stuer og øvrige rom, kan nedforet himling også forekomme i disse arealer. Nærmere informasjon om prosjektert himlingsplan for den enkelte bolig opplyses på forespørsel.

Gulv

Gulv i alle tørre oppholdsrom i blokk A, B, D og E leveres med en stavs 14 mm eikeparkett type

Bjelin eller tilsvarende. På blokk C, F, G og H leveres 4-stavs eikeparkett som standard. På bad leveres fliser på gulv og i tekniske boder leveres vinylbelegg.

Vegger

I boligene leveres veggene med gipsplater som blir sparklet og malt i en standard farge. Estetisk klasse K2. Ujevnheter ved slepelys vil kunne forekomme. På våtrom leveres vegger med fliser. På kjøkken, over benkeplate under overskap legges laminatplate i samme farge som benkeplate.

Himlinger

Himlingene (innvendig tak i leilighetene) leveres med sparklet og malt betongelement med v-fug, og nedforing med fast gips for fremføring av tekniske anlegg. Det gjøres oppmerksom på at volumet mellom topp overskap og himling i kjøkken i stor grad vil bli benyttet til fremføring av ventilasjonskanaler / sprinklerrør, som kasses med gips/møbelplater. Nedforet himling i overgang mellom stue og kjøkken vil være nødvendig stedvis for fremføring av tekniske anlegg.

Bad

Bad er planlagt levert som prefabrikerte badekabiner. På gulv og vegg legges keramiske fliser i størrelse 60x60 cm med lokalt fall mot sluk. Nedsenket grube i dusjsone med mindre fliser. Generelt bygges badene etter Tek 17 og ikke våtromsnormen.

Vinduer

Vinduer og balkongdører leveres som alubeslåtte trevinduer. U-verdi iht. krav i TEK17. Glass leveres ikke selvrensende. På grunn av høy isolasjonsevne på glassene vil det i perioder kunne oppstå kondens på glasset. Det leveres brannvinduer ihht krav for de boligene som har vindu mot rømningsvei.

Innerdører

Hovedinngangsdør til boligene leveres som massive tredører med brann og lydkrav. Innvendige dører leveres som beskrevet i interiørkonsept. Dører leveres med flat eik terskel med spalteåpning. Der det på tegning er vist dør eller skyvedør mellom gang og stue/kjøkken, leveres denne som glassdør.

Listverk

Gulvlist leveres i utførelse tilpasset parkett. Gerikter leveres i dørens farge, glatt utførelse. Spikerhull i listverk og gerikter leveres sparklet og overmalt. Overgangen mellom vegg/himling fuges.

Lås og beslag

Hver bolig får 3 stk. systemnøkler, som foruten til egen bolig vil passe til ytterdør og egen postkasse. Port til garasjeanlegget vil tilbys som fjernstyringsløsning. Vrider og skilt leveres i børstet rustfritt stål.

Kjøkkeninnredning

Det leveres kjøkken fra anerkjent kjøkkenleverandør, høyde ca. 228 cm med foring til tak. Laminert benkeplate med rett kant. Samme overflate på vegg mellom benkeplate og overskap. Plantegning i prospekt er veiledende og egen kjøkkentegning for den enkelte leilighet overleveres i forbindelse med tilvalgsmøte. Det leveres rustfri oppvaskkum og avtrekkshette over komfyr.

Følgende hvitevarer leveres:

• Stekeovn plasseres i høyskap, ev. i benkeskap under keramisk koketopp, sort front.

• Nedfelt keramisk koketopp, type induksjon. Der hvor denne er vist i kjøkkenøy, leveres

induksjonstopp med integrert vifte og kullfilter.

• Helintegrert oppvaskmaskin med kjøkkenfront.

• Helintegrert kjøl og frys med kjøkkenfront.

• Kjøkkenventilator med kullfilter i hvit/sort utførelse.

Baderomsinnredning

På bad og gjeste bad levers hvit veggmontert toalett og heldekkende servant med ettgreps blandebatteri. Baderomsinnredningen fra anerkjent leverandør leveres i henhold til egne tegninger fra leverandør, i varierende bredde avhengig av leilighetsstørrelse. Mindre gjestebad har smal vask 60 cm. Over innredning leveres speil med integrert led lys.

Det leveres rette dusjvegger i glass og dusjarmatur med ettgreps blandebatteri.

Det leveres opplegg for vaskemaskin og tørketrommel med kaldtvannstilførsel og avløp, samt strømuttak for disse på bad.

Garderobeskap

Tegningene viser forslag til plassering av garderobeskap. Disse garderobeskapene inngår ikke i standardleveransen, men tilbys som tilvalg.

Mindre leiligheter uten bod har gulvvarmefordelerskap i garderobe.

Det leveres ikke skap eller annen innredning i entré/gang eller bod.

Teknisk bod

Rør-i-rør skap plasseres i himling eller vegg på bad. Teknisk bod vil inneholde VVS-skap for vannbåren oppvarming, ventilasjonsanlegg, EL-tavle og svakstrøms utstyr samt, evt. annet teknisk utstyr.

Energimerking

Før overtakelse vil alle boligene bli energimerket. Boligens varmetap og energibehov er dimensjonert iht. Teknisk forskrift av 2017. Det er ventet at bolig vil bli klassifisert i kategori A eller B.

Inspeksjonsluker

Flere av de tekniske installasjonene krever inspeksjonsluker som er synlige, som for eksempel rør-i-rør system, fordelerskap fjernvarme med måler og veksler for varmt tappevann, ventilasjonsanlegg, sjakter, WC og el-skap m.m. Slike dører og luker vil i størst mulig grad bli plassert i teknisk bod og gang, i garderobeskap og på bad. I enkelte tilfeller kan det bli nødvendig å plassere dem i oppholdsrom, hvor disse vil kunne bli synlige.

Garasje/parkering

Det tilbys parkeringsplass i p-kjeller som tilvalg. Høyder i garasjeanlegget er minimum 220 cm –også gjennom garasjeport. Det vil bli oppmerket garasjeplasser på asfalt og montert plassnummer på vegg eller søyler. Garasjeport leveres med fjernstyringsløsning. P-plassene varierer i størrelse ift. hvor de er plassert. Minste bredde på p-plass blir ca. 250 cm. Det vil tilbys lademulighet samt mulighet for vasking av bil.

Sportsbod

Det er en sportsbod i kjeller som tilhører hver enkelt leilighet. Vegger i netting. Størrelse ca 5 kvm.

TEKNISKE INSTALLASJONER

Oppvarming

Til oppvarming av leilighetene, fellesarealene og forbruk av varmt tappevann benyttes sentralt plassert bergvarmeanlegg (varmepumpe), som vil bli plassert i området. Det blir en energimåler for romoppvarming i hver leilighet. Forbruk av oppvarming og tappevann måles separat i hver enkelt leilighet. Leiligheter skal også fordele og bære kostnader med en andel av forbruk i fellesarealer og fra transmisjonstap fra varmerørnettet. Størrelse på varmetapet kan utgjøre 15-25 %.

Vannbåren gulvvarme fordeles ut fra teknisk skap i hver leilighet til hvert enkelt rom. Styres via romtermostater.

Baderom blir levert med elektrisk gulvvarme. På soverom leveres ikke varmekilde, men det er klargjort for montering av elektrisk panelovn. Etablering av vedovn eller gasspeis vil ikke være mulig.

Varmtvann

Boligene forsynes med varmtvann fra bergvarme (varmepumpe) med elektrisk kjel som spisslast. Varmeanlegget er plassert i teknisk rom i kjeller. Forbruk på varmtvann og kaldtvann avregnes på egen måler for hver leilighet.

Ventilasjon

Det leveres balansert ventilasjon uten kjøling for hver enkelt bolig fra eget luftbehandlingsanlegg plassert i teknisk bod eller over himling i gang/ korridor. Luftbehandlingsanlegget har god varmegjenvinning og elektrisk ettervarmebatteri.

Behandlet friskluft tilføres i stue/kjøkken, soverom, avtrekk fra bad/WC, bod og kjøkken. Tilluft- og avtrekksventiler plasseres i himling eller vegg. Ventilasjonsanlegget vil så langt det er mulig bli plassert i teknisk bod med synlige kanaler i dette rommet. Inntak/avkast vil skje via kombirist i fasaden.

Brannsikring/sprinkleranlegg

Brannvarsling deles inn i to deler, egen sikring for hver enkelt bolig og en egen for fellesareal/ kjeller. Branndeteksjon iht. TEK17 inne i hver leilighet. Det leveres boligsprinkleranlegg i boligene. Kjelleretasje og fellesareal inklusive trapper skal full-sprinkles. Det må påregnes sprinklerhoder og fremføring til balkonger. Sprinklerhoder blir synlige i skjørt og himlinger. Det vil bli levert et pulverapparat for brannslukking i teknisk bod i hver leilighet.

Elektro

Det leveres ledlys under overskap, integrert ledlys i speil på bad, taklampe på soverom og i innvendig bod. Det leveres stikk ved tak styrt av lysbryter for øvrige lamper. På bad og entré leveres LED-downlights innfelt i himling, antall avhengig av himlingens og rommenes størrelse iht. tegning fra El-entreprenør. Antall uttak leveres iht. normen for elektriske installasjoner i boliger NEK 400-8-823:2022. Konferer tegning hos el-entreprenør for plassering og antall punkter og belysningsutstyr.

Kabel-TV og Bredbånd

Det føres fiberkabel fram til ekomfelt i hver bolig. Det leveres 1 uttak for TV-system, i stue.

Porttelefon

Det vil bli etablert porttelefonanlegg med svarapparat og kamera i hver leilighet.

BYGGESAK

Bygningene skal oppføres på 145/4 og 145/22 i Vestre Toten kommune. Eiendommen er benevnt som Eina Sentrum i detaljreguleringsplan. Det er ikke gitt rammetillatelse for prosjektet, denne forventes godkjent i 2. kvartal 2025.

TILVALG

Det vil være muligheter til å gjøre enkelte individuelle tilpasninger av boligen innenfor gitte frister og mot tillegg i prisen. Det vil bli et informasjonsmøte hvor tilvalgsprogrammet Rubus blir presentert. Tilvalg vil primært bli avtalt direkte mellom boligkjøper og entreprenør. Ved tilvalg beregnes det et oppstartsgebyr på kr 5.000 inkl. mva. Prosjektets fremdrift styrer muligheten for tilvalg.

Det er lagt opp til tilvalgs muligheter på følgende områder:

• Innredning på kjøkken, garderobe.

• Tilvalg på bad må avklares tidlig da baderom er prefabrikkerte og noe begrenset tilvalgsmuligheter da dette styres av leverandør.

• Alternative flisløsninger på våtrom.

• Type parkett.

• Dører og listverk.

• Vaskesøyle i bod der det er mulig

• Elektroinstallasjoner som belysning, ekstra TV-kontakt, ekstra el-punkter, samt alarmanlegg. Tilpasning av lysstyringssystem er mulig, samt stikkontakter m.m.

Mulighet for fargevalg på brytere m.m.

• El-billader

• Screens

SAMEIE

Det vil bli etablert et sameie så fort det er tilstrekkelig med salg. Det vil da bli inngått/ tinglyst avtaler for adkomstrettigheter og rettig-

heter knyttet til bruk av fellesarealer innvendig i bebyggelse og utomhus. Sameievedtekter vil vedtas. Oppgaver som sameie vil utføre vil typisk kunne være: Organisering av p-anlegg og utomhus. Engasjere forretningsfører. Engasjere leverandør av bredbånd. Engasjere leverandør av strøm. Vaktmestertjeneste for snøbrøyting og vedlikehold.

FORBEHOLD

Illustrasjoner er ikke retningsgivende for detaljer rundt leveranser. Perspektivtegninger i 3D og animerte presentasjoner er illustrasjoner, og kan avvike fra leveransen. Tekniske fag er ikke ferdig prosjektert, og endringer som følge av dette kan forekomme. Utbygger tar forbehold om eventuelle avvik i plantegningen og potensielle endringer.

Det tas forbehold om å foreta nødvendige endringer av standard og utførelse, herunder mindre vesentlige endringer i boligens areal, samt utomhusanlegg, forutsatt at dette ikke medfører at boligen blir vesentlig endret i forhold til prospektet.

Selger forbeholder seg retten til å forestå fordelingen av sportsboder og garasjeplasser i felles parkeringsanlegg, samt plasseringen av disse. For komplett informasjon og kjøpsbetingelser må kjøpekontrakt med alle vedlegg være gjennomgått.

Det gjøres oppmerksom på at svinnsprekker og riss kan oppstå en tid etter overlevering. Spesielt gjelder dette i overgang mellom yttervegg og himling, og i gjæring av gerikter. Dette er i utgangspunktet ikke reklamasjonsberettiget. Dette vil bli befart i forbindelse med ettårs befaring, hvor det gjøres avtale om en eventuell utbedring.

Det gjøres oppmerksom på at sportsboder ikke er egnet for oppbevaring av klesplagg og fuktighetsømfintlige gjenstander.

Det forutsettes at utgifter til drift og vedlikehold av garasjeanlegget bæres av de sameierne som har rettighetene til garasjeplassene.

Selger skal ikke levere innredninger, lamper, løst belysningsutstyr, tepper, møbler og tilbehør med mindre det fremgår av denne leveransebeskrivelse. Innredninger er definert i egen beskrivelse. Mer detaljert dokumentasjon av innredninger i kjøkken, bad og garderobe vil bli fremlagt på forespørsel. Siden detaljplanlegging ikke er utført på det tidspunkt når denne beskrivelse er utarbeidet, tas det forbehold om dispensasjonsmessige endringer i fasadeutforminger/-uttrykk og at veggtykkelser kan bli endret for å tilpasse seg nødvendige frem-

føringer av sjakter og tekniske anlegg. I tillegg kan det vise seg nødvendig og kasse inn mindre vertikale og/eller horisontale tekniske føringer for fremføring av tekniske anlegg. Plassering av tekniske anlegg vil primært bli plassert i teknisk bod, men detaljprosjekteringen kan medføre at plasseringen vil måtte justeres noe.

Eina 10.04.25

Eina Sentrum AS

Utkast til vedtekter

for

Heme Eina Sentrum Sameie

Vedtatt i medhold av Lov om eierseksjoner (eierseksjonsloven) av 16. juni 2017 nr. 65.

1. SAMEIETS NAVN, ORGANISERING OG SAMEIEBRØK

1-1 Sameiets navn og organisering

(1) Sameiets navn er Heme Eina Sentrum Sameie («Sameiet»).

(2) Sameiet består av 29 boligseksjoner («Boligseksjonene») og åtte næringsseksjoner («Næringsseksjonene») på eiendommen gnr. XXX, bnr. XXX i Vestre Toten kommune.

(3) Bebyggelsen og tomten ligger i sameie mellom eierne av de seksjoner som bebyggelsen og tomten er oppdelt i. Seksjonen kan ikke skilles fra deltakerinteressen i sameiet.

(4) Den enkelte bruksenhet består av en hoveddel, samt eventuelt én eller flere seksjonerte tilleggsdeler. Hoveddelen består av en klart avgrenset og sammenhengende del av en bygning, med egen inngang.

(5) De deler av eiendommen som ikke inngår i de enkelte bruksenheter er fellesareal.

1-2 Sameiebrøk

Innehaveren av den enkelte seksjon overtar seksjonen i henhold til seksjonert sameiebrøk.

1-3 Om Heme Eina Sentrum prosjekt

Sameiet er en del av prosjektet «Heme Eina Sentrum» («Prosjektet»). Prosjektet er delt inn i følgende matrikkelenheter:

•Grunneiendom for frittstående bygg A, B, C, D, E, F, G og H med gnr. XXX, bnr. XXX i Vestre Toten kommune («Heme Eina Sentrum Sameie»),

• Anleggseiendom under bakken, med gnr. XXX, bnr. XXX i Vestre Toten kommune («Heme Eina Sentrum garasjesameie»), som er et tingsrettslig sameie som eies i fellesskap av de som har kjøpt en ideell andel med tilhørende eksklusiv bruksrett til et visst antall parkeringsplasser.

2. RETTSLIG DISPOSISJONSRETT

2-1 Rettslig disposisjonsrett

(1) Seksjonseieren disponerer fritt over egen seksjon med de begrensninger som følger av sameieforholdet og eierseksjonsloven. Seksjonseieren kan fritt selge, pantsette og leie ut sin egen seksjon.

(2) Sameiets styre skal underrettes skriftlig om alle overdragelser og leieforhold. Ved eierskifte betaler avhender et eierskiftegebyr til forretningsfører for sameiet tilsvarende fire ganger gjeldende rettsgebyr, jf. eierseksjonsloven § 63 a.

(3) Ingen kan kjøpe eller på annen måte erverve en boligseksjon hvis ervervet fører til at man blir eier av flere enn to boligseksjoner i eierseksjonssameiet.

Dette gjelder tilsvarende hvis et erverv av en boligseksjon eller av aksjer eller andeler i et selskap fører til at flere enn to av boligseksjonene eies av noen som har slik tilknytning til hverandre:

a) eierne er nærstående som nevnt i aksjeloven § 1-5 første ledd.

b) eierne er selskaper i samme konsern. Aksjeloven § 1-3 gjelder tilsvarende, likevel slik at det regnes som konsern også hvis morselskapet har en annen foretaksform enn aksjeselskap.

c) eierne er selskaper som en fysisk person alene eller sammen med nærstående har bestemmende innflytelse over. Aksjeloven §§ 1-5 og 1-3 gjelder tilsvarende.

(4) Tredje ledd bokstav a er ikke til hinder for at en nærstående erverver en boligseksjon som den nærstående selv eller dennes nærstående skal bruke som egen bolig.

(5) Begrensningen i tredje ledd gjelder ikke kjøp og erverv av fritidsboliger, erverv ved ekspropriasjon, arv eller forskudd på arv til livsarving eller en kreditors erverv for å redde en fordring som er sikret med pant i en seksjon. Borettslag, staten, fylkeskommuner, kommuner samt selskaper og organisasjoner som eies eller kontrolleres av staten, en fylkeskommune eller en kommune, og som har til formål å skaffe boliger, kan erverve flere seksjoner. Det samme gjelder institusjoner eller sammenslutninger med samfunnsnyttig formål som har til formål å skaffe boliger, eller en arbeidsgiver som skal leie ut seksjonene til sine ansatte.

3. SEKSJONSEIERENS

3-1 Rett til bruk

RETT TIL Å BRUKE BRUKSENHETEN

OG FELLESAREALER

(1) Seksjonseieren har enerett til å bruke sin bruksenhet. Seksjonseieren har også rett til å bruke fellesarealene til det de er beregnet til eller vanligvis brukes til, og til annet som er i samsvar med tiden og forholdene.

(2) Bruksenheten og fellesarealene må ikke brukes slik at andre seksjonseiere påføres skade eller ulempe på en urimelig eller unødvendig måte.

(3) Bruksenheten kan bare brukes i samsvar med formålet. En endring av bruksformålet krever reseksjonering.

(4) Korttidsutleie av hele boligseksjonen i mer enn 90 døgn årlig er ikke tillatt, jf. eierseksjonsloven § 24 syvende ledd. Med korttidsutleie menes utleie i inntil 30 døgn sammenhengende. Grensen på

90 døgn kan fravikes i vedtektene og kan i så fall settes til mellom 60 og 120 døgn. Slik beslutning krever et flertall på minst to tredjedeler av de avgitte stemmene på årsmøtet.

(5) Utleie av egen seksjon minker ikke seksjonseiers plikter overfor sameiet. Seksjonseier vil således kunne identifiseres med leietaker, og vil kunne holdes ansvarlig for leietakers handlinger og unnlatelser overfor sameiet og de øvrige seksjonseierne.

(6) Dersom årsmøtet ikke har truffet vedtak om bruken, bestemmer styret hvordan fellesarealene skal brukes. Fellesarealene må ikke brukes på en slik måte at andre seksjonseiere hindres i å bruke dem.

(7) Tiltak som er nødvendige på grunn av en seksjonseiers eller husstandsmedlems funksjonshemming kan ikke nektes uten saklig grunn.

3-2 Skilting, tilpasninger og endringer i forbindelse med næringsvirksomhet

(1) Eier av næringsseksjon har rett til, uten at det er nødvendig med samtykke fra styret eller årsmøtet, å skilte og profilere egen næringsvirksomhet i normalt omfang ved reklame og markedsføringsutstyr på fasade i tilknytning til de aktuelle næringsseksjonene. Fasade til næringsseksjonen defineres som fasadeareal frem til tilstøtende seksjoner eller øvrig fellesareal.

(2) Eier av næringsseksjon har også rett til å gjennomføre tiltak både i egen bruksenhet, fellesareal underlagt eneretter, herunder bruksendringer og bygningsendringer i den forbindelse og andre søknadspliktige tiltak etter plan- og bygningsloven som er nødvendig for en kommersiell og fornuftig utnyttelse av arealene som inngår i næringsseksjonene.

(3) Øvrig reklame eller markedsføringsutstyr på resterende fasade krever skriftlig forhåndsgodkjenning fra styret eller årsmøtet. Det forutsettes at eventuelle inngrep har nødvendige offentlige tillatelser og for øvrig ikke bryter med fasadens visuelle profil og ikke er til urimelig ulempe for andre seksjonseiere.

3-3 Endringer av fasade, fellesarealer, fellesanlegg og utvendig tilleggsareal Med mindre det fremgår spesifikt i disse vedtekter, kan ikke seksjonseier uten skriftlig forhåndsgodkjenning fra styret eller årsmøtet foreta arbeider eller endringer som påvirker eller berører sameiets fasade, fellesarealer eller fellesanlegg, herunder slikt som:

• Innglassing av balkong, oppsetting/montering av antenner, varmepumper, sol- og vindavskjerming, plattinger, flislegging eller annet fast belegg på balkonger/terrasser, boblebad/badestamp, fastmontert belysning og lignende.

• Endring av utomhusplanen som anleggelse/utvidelse av plattinger, heller, oppsetting av gjerder eller porter, flytting av eksisterende beplanting, nyplanting og lignende. Dette gjelder også innenfor tilleggsdel til den enkelte seksjon. Styret kan med saklig grunn nekte godkjenning av slike tiltak, og kan også gi bestemmelser om høyde, type og utforming på gjerder, hekker og annen beplantning, også innenfor tilleggsdel.

• Å henge innretninger på utsiden av rekkverk på balkong, som for eksempel blomsterkasser, balkongflagg mv.

3-4 Ordensregler og dyrehold

(1) Årsmøtet kan vedta og eventuelt endre vanlige ordensregler for eiendommen etter vanlig flertall av de avgitte stemmer. Seksjonseierne og andre brukere av eiendommen plikter å følge de til enhver tid gjeldende husordensregler.

(2) Dyrehold er tillatt så lenge dette ikke på en urimelig eller unødvendig måte er til skade eller ulempe for de øvrige brukerne av eiendommen.

4. VEDLIKEHOLD, UTSKIFTING OG ENDRINGER

4-1 Seksjonseierens plikt til å vedlikeholde bruksenheten

(1) Seksjonseieren skal vedlikeholde bruksenheten slik at skader på fellesarealene og andre bruksenheter forebygges, og slik at de øvrige seksjonseierne slipper ulemper.

(2) Seksjonseiernes vedlikeholdsplikt omfatter alt indre vedlikehold av egen bruksenhet, herunder slikt som:

a) inventar

b) utstyr, som radiator, vannklosett, varmtvannsbereder, badekar og vasker

c) apparater, for eksempel brannslukkingsapparat

d) skap, benker og innvendige dører med karmer

e) listverk, skillevegger, tapet

f) gulvbelegg, varmekabler, membran og sluk

g) vegg-, gulv- og himlingsplater

h) rør, ledninger, sikringsskap fra og med første hovedsikring eller inntakssikring

i) vann- og avløpsledninger så langt de er synlige eller lett tilgjengelige fra bruksenheten, og ikke er bygget inn i etasjeskillere og andre bærende konstruksjoner, eller også betjener andre bruksenheter. j) vinduer (herunder takvinduer) og ytterdører til seksjonen

(3) Seksjonseier er ansvarlig for utvendig vedlikehold av vinduer (maling og lignende), som er lett tilgjengelige fra egen balkong, terrasse og lignende.

(4) Seksjonseieren skal vedlikeholde våtrom slik at lekkasjer unngås. Seksjonseieren er også ansvarlig for å holde bruksenheten oppvarmet, slik at rør ikke fryser.

(5) Seksjonseieren skal rense sluk og holde avløpsrør åpne frem til fellesledningen. Dette gjelder også sluk på balkong, takterrasse eller lignende som ligger til bruksenheten.

(6) Vedlikeholdsplikten omfatter også eventuelle tilleggsdeler og arealer seksjonseieren har eksklusiv bruksrett til, slikt som for eksempel boder som medfølger seksjonen, samt innsiden av balkonger og terrasser med gulvbelegg og sluk.

(7) Seksjonseieren skal holde bruksenheten fri for insekter og skadedyr.

(8) Seksjonseier er ansvarlig for at bruksenheten er utstyrt med påbudt brannvernutstyr, og at dette er i forskriftsmessig stand.

(9) Seksjonseiers vedlikeholdsplikt omfatter også nødvendig reparasjon og utskifting av det som er nevnt ovenfor, med mindre denne plikten påhviler sameiet.

(10) Seksjonseiers vedlikeholdsplikt omfatter også utbedring av tilfeldige skader, for eksempel skader som er forårsaket av uvær, innbrudd eller hærverk.

(11) Innkassing og andre hindringer utført av nåværende eller tidligere seksjonseiere, fritar ikke for vedlikeholdsplikt.

(12) Oppdager seksjonseieren skade i bruksenheten som sameiet er ansvarlig for å utbedre, plikter seksjonseieren straks å sende skriftlig varsel til styret.

(13) Etter et eierskifte plikter den nye seksjonseieren å utføre vedlikehold, inkludert reparasjoner og utskiftning i henhold til disse vedtekter. Denne plikten gjelder selv om vedlikeholdet skulle vært utført av den tidligere seksjonseieren.

4-2 Seksjonseiers erstatningsansvar (1) En seksjonseier som ikke oppfyller sin vedlikeholdsplikt, skal erstatte tap dette påfører andre seksjonseiere, jf. eierseksjonsloven § 34.

(2) En seksjonseier er erstatningsansvarlig for skade som ved forsett eller uaktsomhet påføres fellesarealer eller påføres sameiets bygninger. Bestemmelsen gjelder også når skaden er forårsaket av noen av seksjonseierens husstand eller personer som seksjonseieren har gitt adgang til eiendommen eller overlatt sin seksjon til.

4-3 Sameiets plikt til å vedlikeholde og utbedre fellesarealer m.m.

(1) Sameiet skal holde utvendige og innvendige fellesarealer forsvarlig ved like så langt vedlikeholdsplikten ikke påhviler seksjonseier. Dette omfatter slikt som bygninger, tak, fellesrom, utearealer, felles anlegg og utstyr, trappeoppganger og inngangsdører til oppgangene.

(2) Sameiets vedlikeholdsplikt omfatter også utvendig vedlikehold av vinduer, med unntak av vinduer som er lett tilgjengelige fra egen balkong, terrasse og lignende.

(3) Sameiets vedlikeholdsplikt omfatter også slikt som nødvendig utskifting av radiatorer, vinduer, herunder nødvendig utskifting av isolerglass, ytterdører til boligen eller reparasjon eller utskifting av tak, bjelkelag, bærende veggkonstruksjoner, samt rør eller ledninger som er bygd inn i bærende konstruksjoner med unntak av varmekabler.

(4) Sameiets vedlikeholdsplikt omfatter også reparasjon og utskiftning når det er nødvendig, og utbedring av tilfeldige skader.

(5) Vedlikeholdet skal utføres slik at skader på fellesarealene og de enkelte bruksenhetene forebygges, og slik at seksjonseierne slipper ulemper.

(6) Sameiet har rett til å føre nye slike installasjoner gjennom bruksenhetene hvis det ikke skaper vesentlig ulempe for den aktuelle seksjonseieren.

(7) Seksjonseieren skal gi sameiet adgang til bruksenheten for å vedlikeholde, installere og kontrollere installasjoner som nevnt ovenfor. Kontroll og arbeid i bruksenhetene skal varsles i rimelig tid og gjennomføres slik at det ikke skaper unødvendig ulempe for seksjonseieren eller andre brukere.

4-4 Sameiets erstatningsansvar

Et sameie som ikke oppfyller sin vedlikeholdsplikt, skal erstatte tap dette påfører seksjonseierne gjennom skader på bruksenhetene, jf. eierseksjonsloven § 35.

4-5 Ansvar for egenandel ved bruk av sameiets felles bygningsforsikring (1) Ved skader som faller innenfor seksjonseiers vedlikeholdsansvar eller skyldes seksjonseiers uaktsomhet, skal seksjonseiers egen forsikring benyttes så langt den rekker, inkludert mulig egenandel, før sameiets felles bygningsforsikring eventuelt benyttes.

(2) Når slik skade likevel dekkes av sameiets felles bygningsforsikring, skal seksjonseieren betale egenandelen og andre direkte utlegg som ikke dekkes av forsikringen og som er en følge av skaden.

(3) Ovennevnte gjelder uansett om skaden oppstår på fellesareal eller i en bruksenhet, og er uavhengig av om skaden er forårsaket av noen i seksjonseiers husstand eller personer som seksjonseieren har gitt adgang til eiendommen eller overlatt sin seksjon til.

5. FELLESKOSTNADER, PANTESIKKERHET OG HEFTELSESFORM

5-1 Felleskostnader (1) Felleskostnader er alle kostnader med eiendommen som ikke knytter seg til den enkelte bruksenhet.

(2) Felleskostnadene skal fordeles mellom samtlige seksjonseierne etter sameiebrøken med mindre annet følger av disse vedtekter.

(3) Boligseksjonene skal alene dekke følgende kostnader:

• Kostnader til egen andel av kommunale avgifter, drift og vedlikehold av tekniske installasjoner for boliganleggene, øvrige anlegg knyttet til boligene, innvendige «egne» fellesarealer, utskifting av vinduer og dører i/til Boligseksjonene, renovasjon for bolig, service- og driftsavtaler for Boligseksjonene (eksempelvis brann, sprinkling-, ventilasjon- og nøkkelsystemer, vedlikehold av navneskilt mv.), strøm i «egne» fellesarealer, vakt- og alarmtjenester og øvrige anlegg, bygningskonstruksjon og funksjoner, herunder heis, tv/bredbånd, takareal/takterrasse, grønt uteoppholdsareal og boder som bare eller i det vesentlige betjener Boligseksjonene, øvrige kostnader knyttet til arealer hvor Boligseksjonene har enerett til bruk eller har særskilt vedlikeholdsansvar for. Kostnadene skal fordeles etter innbyrdes sameiebrøk. Kostnader til eventuell felles løsning for TV/internett og nabolagsapp (Heime) fordeles flatt mellom samtlige boligseksjoner.

(4) Næringsseksjonene skal alene dekke følgende kostnader:

• Kostnader til egen andel av kommunale avgifter, drift og vedlikehold av tekniske installasjoner for næring, utomhusanlegg som Næringsseksjonen alene eller i det vesentlige benytter, øvrige anlegg knyttet til næring, innvendige fellesarealer, overflatevedlikehold av «egen fasade» utskifting av vinduer og dører i/til Næringsseksjonen, avfallshåndtering, service og driftsavtaler for Næringsseksjonen (eksempelvis brann-, sprinkling-, ventilasjon, og nøkkelsystemer), vakt- og alarmtjenester og øvrige anlegg og funksjoner som bare eller i det vesentlige betjener Næringsseksjonen og øvrige kostnader hvor Næringsseksjonen har enerett til bruk eller særskilt vedlikeholdsansvar for.

5-2 Betaling av felleskostnader

(1) Sameiets styre skal påse at alle felleskostnader blir dekket av sameiet etter hvert som de forfaller, slik at man unngår at kreditor gjør krav gjeldende mot de enkelte seksjonseierne for sameiets felles forpliktelser.

(2) Den enkelte seksjonseier skal forskuddsvis hver måned betale et akontobeløp som fastsettes av styret, for å dekke sin andel av felleskostnadene.

(3) Årsmøtet kan med alminnelig flertall vedta avsetning av midler til framtidig vedlikehold, påkostninger eller andre fellestiltak på eiendommen. Slike midler innkreves samtidig med den månedlige betalingen til dekning av felleskostnader.

5-3 Seksjonseierens heftelse for sameiets ansvar og forpliktelser utad

Den enkelte seksjonseier hefter for felles ansvar og forpliktelser etter sin sameiebrøk.

5-4 Panterett for seksjonseiernes forpliktelser

(1) De andre seksjonseierne har lovbestemt panterett i seksjonen for krav mot seksjonseieren som følger av sameieforholdet, jf. eierseksjonslovens § 31.

(2) Pantekravet kan ikke overstige et beløp som for hver bruksenhet svarer til to ganger folketrygdens grunnbeløp på det tidspunktet tvangsdekning besluttes gjennomført. Panteretten omfatter også krav som skulle ha vært betalt etter at det er kommet inn en begjæring til namsmyndighetene om tvangsdekning.

6. MISLIGHOLD, PÅLEGG OM SALG OG FRAVIKELSE

6-1 Mislighold

(1) Seksjonseiers brudd på sine forpliktelser overfor sameiet utgjør et mislighold. Som mislighold regnes blant annet manglende betaling av felleskostnader, forsømt vedlikeholdsplikt, ulovlig bruk og brudd på ordensregler.

(2) Unnlatelse av å betale seksjonseiers andel av sameiets felleskostnader etter påkrav ansees som et vesentlig mislighold som gir sameiet rett til å pålegge vedkommende å selge seksjonen.

6-2 Pålegg om salg

(1) Dersom en seksjonseier til tross for skriftlig advarsel vesentlig misligholder sine plikter, kan styret pålegge vedkommende å selge seksjonen, jf. eierseksjonslovens § 38. Advarselen skal opplyse om at vesentlig mislighold gir styret rett til å kreve seksjonen solgt.

(2) Et pålegg om salg skal gis skriftlig og opplyse om at seksjonen kan kreves solgt ved tvangssalg dersom pålegget ikke er etterkommet innen en fastsatt frist. Fristen skal ikke settes kortere enn seks måneder fra pålegget er mottatt.

6-3 Fravikelse

Dersom seksjonseierens oppførsel medfører fare for ødeleggelse eller vesentlig forringelse av eiendommen, eller seksjonseierens oppførsel er til alvorlig plage eller sjenanse for eiendommens øvrige brukere, kan styret kreve fravikelse av bruksenheten etter tvangsfullbyrdelseslovens kapittel 13.

7. STYRET OG DETS VEDTAK

7-1 Styret - sammensetning, valg, tjenestetid og vederlag

(1) Sameiet skal ha et styre bestående av en leder og to til tre andre styremedlemmer.

(2) Styreleder og styremedlemmene tjenestegjør i to år dersom årsmøtet ikke har bestemt noe annet. Eventuelle varamedlemmer velges for ett år. Styreleder, styremedlem og varamedlem kan gjenvelges.

(3) Årsmøtet skal velge styret med vanlig flertall av de avgitte stemmene. Styrelederen skal velges særskilt. Styret velger nestleder blant sine medlemmer.

(4) Årsmøtet skal fastsette eventuelt vederlag til styremedlemmene. Styret bestemmer fordelingen av vederlaget.

7-2 Styremøter

(1) Styreleder skal sørge for at styret møtes så ofte som det trengs. Et styremedlem eller forretningsføreren kan kreve at styret sammenkalles.

(2) Styremøtet skal ledes av styrelederen. Er ikke styrelederen til stede, og det ikke er valgt noen nestleder, skal styret velge en møteleder.

(3) Styret er beslutningsdyktig når mer enn halvparten av alle styremedlemmene er til stede. Beslutninger kan treffes med mer enn halvparten av de avgitte stemmene. Står stemmene likt, gjør møtelederens stemme utslaget. De som stemmer for en beslutning, må likevel utgjøre mer enn en tredjedel av stemmene.

(4) Styret skal føre protokoll fra styremøtene. Alle de fremmøtte styremedlemmene skal undertegne protokollen.

7-3 Styrets oppgaver

Styret skal sørge for vedlikehold og drift av eiendommen, og ellers sørge for forvaltningen av sameiets anliggen¬der i samsvar med lov, vedtekter og beslutninger på årsmøtet.

7-4 Taushetsplikt

Medlemmer og varamedlemmer av styret og komiteer plikter å hindre at andre får tilgang eller kjennskap til opplysninger om noens personlige forhold som vedkommende har fått kunnskap om i forbindelse med vervet. Taushetsplikten gjelder også etter at vedkommende har fratrådt vervet.

7-5 Styrets beslutningsmyndighet

(1) Styret skal ta alle beslutninger som ikke i loven eller vedtektene er lagt til andre organer. Beslutninger som kan tas med et vanlig flertall på årsmøtet, kan også tas av styret om ikke annet følger av lov, vedtekter eller årsmøtets beslutning i det enkelte tilfelle.

(2) Styret kan ikke ta beslutninger eller handle på en måte som er egnet til å gi noen seksjonseiere eller utenforstående en urimelig fordel på andre seksjonseieres bekostning.

7-6 Inhabilitet

Et styremedlem kan ikke delta i behandlingen eller avgjørelsen av noe spørsmål som medlemmet selv eller dennes nærstående har en fremtredende personlig eller økonomisk særinteresse i.

7-7 Styrets representasjonsadgang

(1) Seksjonseierne forpliktes ved underskrift av styreleder og ett styremedlem i fellesskap. Styret kan meddele prokura.

(2) Styret har rett til å representere seksjonseierne og forplikte dem med sin underskrift i saker som gjelder seksjonseiernes felles rettigheter og plikter. Dette omfatter å gjennomføre beslutninger

truffet av årsmøtet eller styret, og rettigheter og plikter som ellers angår fellesareal og fast eiendom. Styret kan også gjøre gjeldende krav seksjonseiere har mot utbygger dersom kravet knytter seg til mangler ved fellesarealene eller forsinket ferdigstillelse av disse.

8. FORRETNINGSFØRER, REGNSKAPSFØRSEL OG REVISJON

8-1 Forretningsfører

Styret ansetter forretningsfører og andre funksjonærer i samsvar med lov om eierseksjoner av 16.6.2017 nr. 65.

8-2 Regnskap og revisjon

Styret skal sørge for ordentlig og tilstrekkelig regnskapsførsel. Sameiets revisor velges av årsmøtet, og tjenestegjør inntil ny revisor eventuelt velges.

9. ÅRSMØTET

9-1 Årsmøtets myndighet. Mindretallsvern. (1) Årsmøtet har den øverste myndigheten i sameiet.

(2) Et flertall på årsmøtet kan ikke ta beslutninger som er egnet til å gi noen seksjonseiere eller utenforstående en urimelig fordel på andre seksjonseieres bekostning.

9-2 Tidspunkt for årsmøtet

(1) Ordinært årsmøte skal holdes hvert år innen utgangen av juni.

(2) Ekstraordinært årsmøte skal holdes når styret finner det nødvendig, eller når minst to seksjonseiere som til sammen har minst ti prosent av stemmene, krever det og samtidig oppgir hvilke saker de ønsker behandlet.

9-3 Forhåndsvarsel om møtet og frist for innmelding av saker

Styret skal på forhånd varsle seksjonseierne om dato for ordinært årsmøte og om siste frist for å innlevere saker som ønskes behandlet.

9-4 Gjennomføring av årsmøtet

(1) Styret beslutter hvordan årsmøtet skal gjennomføres.

(2) Årsmøtet skal gjennomføres som fysisk møte dersom minst to seksjonseiere som til sammen har minst ti prosent av stemmene, krever det. Styret kan sette en frist for når et krav om fysisk møte kan settes frem. Fristen kan tidligst løpe fra seksjonseierne har blitt informert om hvilke saker årsmøtet skal behandle, og må være så lang at seksjonseierne får rimelig tid til å vurdere om de skal fremme krav om fysisk møte.

(3) Dersom årsmøtet ikke gjennomføres som fysisk møte, må styret sørge for en forsvarlig gjennomføring og at det foreligger systemer som sikrer at lovens krav til årsmøte er oppfylt. Systemene må sikre at deltakelsen og stemmegivningen kan kontrolleres på en betryggende måte, og det må benyttes en betryggende metode for å bekrefte deltakernes identitet.

9-5 Innkalling til årsmøte

(1) Styret innkaller til årsmøte med et varsel som skal være på minst åtte og høyst tjue dager. Styret kan om nødvendig innkalle til ekstraordinært årsmøte med kortere varsel, men varselet kan aldri

være kortere enn tre dager. I begge tilfeller skal det gis skriftlig melding til forretningsføreren.

(2) Innkallingen skjer skriftlig. Som skriftlig regnes også elektronisk kommunikasjon.

(3) Innkallingen skal tydelig angi de sakene årsmøtet skal behandle. Skal årsmøtet kunne behandle et forslag som etter loven eller vedtektene må vedtas med minst to tredjedels flertall av de avgitte stemmene, må hovedinnholdet være angitt i innkallingen.

(4) Saker som en seksjonseier ønsker behandlet i det ordinære årsmøtet, skal nevnes i innkallingen når styret har mottatt krav om det før angitt frist.

9-6 Saker årsmøtet skal behandle

(1) Årsmøtet skal behandle de sakene som er angitt i innkallingen til møtet.

(2) Uten hensyn til om sakene er nevnt i innkallingen, skal det ordinære årsmøtet:

• behandle og eventuelt godkjenne styrets regnskap for foregående kalenderår

• velge styremedlemmer

• behandle eventuelt vederlag til styret

(3) Årsregnskap, eventuell årsberetning og revisjonsberetning skal senest én uke før ordinært årsmøte sendes ut til alle seksjonseiere med kjent adresse. Dokumentene skal dessuten være tilgjengelige i årsmøtet.

(4) Bortsett fra saker som skal behandles av ordinært årsmøte, kan årsmøtet bare ta beslutning om saker som er angitt i innkallingen til møtet. Dersom samtlige seksjonseiere er til stede på årsmøtet og stemmer for det, kan årsmøtet også ta beslutning i saker som ikke står i innkallingen. At saken ikke er nevnt i innkallingen, er ikke til hinder for at styret beslutter å innkalle til nytt årsmøte for å avgjøre forslag som er fremsatt i møtet.

9-7 Hvem kan delta i årsmøtet

(1) Alle seksjonseiere har rett til å delta på årsmøtet med forslags-, tale-, og stemmerett. Ektefelle, samboer eller annet medlem av husstanden til eieren av en boligseksjon har rett til å være til stede og uttale seg.

(2) Styremedlemmer, forretningsfører, revisor og leier av boligseksjon har rett til å være til stede på årsmøtet og uttale seg. Styreleder og forretningsfører har plikt til å være til stede med mindre det er åpenbart unødvendig eller de har gyldig forfall.

(3) En seksjonseier kan møte ved fullmektig. Fullmakten skal være skriftlig og kan når som helst tilbakekalles. Fullmakten kan ikke angi hva fullmektigen skal stemme.

(4) Seksjonseieren har rett til å ta med en rådgiver til årsmøtet. Rådgiveren har bare rett til å uttale seg dersom et flertall på årsmøtet tillater det.

9-8 Møteledelse og protokoll

(1) Styrelederen leder årsmøtet med mindre årsmøtet velger en annen møteleder. Møteleder behøver ikke å være seksjonseier.

(2) Møtelederen har ansvar for at det føres protokoll over alle saker som behandles, og alle beslutninger som tas på årsmøtet. Møtelederen og minst én seksjonseier som utpekes av årsmøtet blant dem som er til stede, skal underskrive protokollen. Protokollen skal til enhver tid holdes tilgjengelig for seksjonseierne.

9-9 Beregning av flertall og opptelling av stemmer på årsmøtet (1) I årsmøtet har hver seksjon én stemme, og flertallet regnes etter antall stemmer.

(2) Ved opptelling av stemmer anses blanke stemmer som ikke avgitt. Står stemmene likt, avgjøres saken ved loddtrekning.

9-10 Flertallskrav ved ulike beslutninger på årsmøtet (1) Beslutninger på årsmøtet tas med vanlig flertall av de avgitte stemmene hvis ikke annet flertallskrav er fastsatt i eierseksjonsloven eller vedtektene. Ved valg kan årsmøtet på forhånd fastsette at den som får flest stemmer skal regnes som valgt. Vedtektene kan ikke fastsette strengere flertallskrav enn det som er fastsatt i loven.

(2) Det kreves et flertall på minst to tredjedeler av de avgitte stemmene på årsmøtet for å ta beslutning om:

a) ombygging, påbygging eller andre endringer av bebyggelsen eller tomten som går ut over vanlig forvaltning og vedlikehold i det aktuelle sameiet

b) omgjøring av fellesarealer til nye bruksenheter eller utvidelse av eksisterende bruksenheter

c) salg, kjøp, utleie eller leie av fast eiendom, inkludert seksjoner i sameiet som tilhører eller skal tilhøre seksjonseierne i fellesskap, eller andre rettslige disposisjoner over fast eiendom som går ut over vanlig forvaltning

d) samtykke til at formålet for én eller flere bruksenheter endres fra boligformål til annet formål eller omvendt

e) samtykke til reseksjonering som nevnt i eierseksjonslovens § 20 annet ledd annet punktum

f) endring av vedtektene

g) ombygging eller annen tilrettelegging som fører til at bruksenheten kan brukes som bolig for flere personer enn det som er vanlig for bruksenheter med tilsvarende størrelse og romløsning.

9-11 Flertallskrav for særlige bomiljøtiltak

(1) Tiltak som har sammenheng med seksjonseierens bo- eller bruksinteresser, og som går ut over vanlig forvaltning, og som fører med seg økonomisk ansvar eller utlegg for seksjonseierne i fellesskap på mindre enn fem prosent av de årlige felleskostnadene, besluttes med vanlig flertall av de avgitte stemmene på årsmøtet. Hvis tiltaket fører med seg økonomisk ansvar eller utlegg for seksjonseierne i fellesskap på mer enn fem prosent av de årlige felleskostnadene, kreves det flertall på minst to tredjedeler av de avgitte stemmene på årsmøtet.

(2) Hvis tiltakene etter (1) fører med seg et samlet økonomisk ansvar eller utlegg for enkelte seksjonseiere på mer enn halvparten av folketrygdens grunnbeløp på det tidspunktet tiltaket besluttes, kan tiltaket bare gjennomføres hvis disse seksjonseierne uttrykkelig sier seg enige.

9-12 Beslutninger som krever enighet fra alle seksjonseierne

Alle seksjonseiere må, enten på årsmøtet eller på et annet tidspunkt, uttrykkelig si seg enige hvis sameiet skal kunne ta beslutning om a) salg eller bortfeste av hele eller vesentlige deler av eiendommen

b) oppløsning av sameiet

c) tiltak som medfører vesentlig endring av sameiets karakter

d) tiltak som går ut over seksjonseiernes bo- eller bruksinteresser, uavhengig av størrelsen på kostnaden som tiltaket medfører, og uavhengig av hvor stort økonomisk ansvar eller utlegg tiltaket medfører for de enkelte seksjonseiere.

9-13 Beslutninger som krever samtykke fra seksjonseiere det gjelder

Følgende beslutninger krever samtykke fra de seksjonseiere det gjelder:

a) at eierne av bestemte seksjoner plikter å holde deler av fellesarealet vedlike

b) innføring av vedtektsbestemmelser som begrenser den rettslige disposisjonsretten over seksjonen

c) innføring av vedtektsbestemmelser om en annen fordeling av felleskostnadene enn det som følger av disse vedtekter.

9-14 Inhabilitet

Ingen kan delta i en avstemning om a) et søksmål mot en selv eller ens nærstående b) ens eget eller ens nærståendes ansvar overfor sameiet c) et søksmål mot andre eller andres ansvar overfor sameiet dersom egen interesse i saken er vesentlig og kan stride mot sameiets interesser d) pålegg eller krav etter eierseksjonsloven §§ 38 og 39 som er rettet mot en selv eller ens nærstående.

Dette gjelder også for den som opptrer ved eller som fullmektig.

10. FORHOLDET TIL EIERSEKSJONSLOVEN

For så vidt ikke annet følger av disse vedtekter, gjelder reglene i lov om eierseksjoner av 16.6.2017 nr. 65.

Kjøpekontrakt om rett til bolig

i eierseksjonssameie under oppføring med tomt

Oppdragsnr: 16249005

Omsetningsnr:

Meglerforetakets org.nr: NO 945 727 306

Kontraktens bestemmelser utfylles av bustadoppføringslova (buofl.) av 13. juni nr. 43 1997 og annen bakgrunnsrett. Kontrakten gjelder avtale etter lovens §1, første ledd b), avtale om bolig eller fritidsbolig under oppføring og hvor avtalen også omfatter rett til grunn.

1. Partene

Navn

Eina Sentrum AS

Adresse/Kontaktinfo

Solvikvegen 15, 2843 Eina

Tlf: 908 32 186 / E-post: per.arne.jakobsen@quick.no

Org.nummer: 921 552 572

heretter kalt Selger, og

Navn

Adresse/postnr./sted Mobil/epostadresse Pnr.

heretter kalt Kjøper, Kan benytte BankID Ja Nei

Eierandel: 1/1

Partene har inngått avtale om kjøp av ny eierseksjon, Leilighets nr. (heretter kalt Boligen) i henhold til prospekt datert xx.xx.2025 og leveransebeskrivelse datert XX.

Med utrykket «Boligen» menes i denne kjøpekontrakt både den fysiske leilighet med tilleggsareal, den eventuelt ideelle andel av samleseksjon for parkeringsarealet samt den ideelle andel av hele eiendommen med inn- og utvendige fellesarealer.

Boligens planløsning, standard og utstyr er nærmere angitt i vedlagte prospekt som gjelder som del av denne kontrakt, sammen med øvrige vedlegg som følger av denne kontrakts punkt 16 (Bilag).

Boligen vil bli tildelt eget seksjonsnummer og blir en del av x boligsameie, gnr. 145, bnr. 4 (Ideell andel 1/1) - gnr. 145, bnr. 22 (Ideell andel 1/1) i Vestre Toten kommune. Adresse og Bolignummer (H-nummer) vil bli tildelt av kommunen.

Eiendommen vil bli oppdelt i eierseksjoner i henhold til lov om eierseksjoner av 16. juni 2017 nr. 65. Til Boligen medfølger bruksrett til X bod og X garasjeplass(er) i eiendommens felles parkeringsanlegg. Selger forbeholder seg retten til å avgjøre hvordan organisering av parkeringsanlegget, uteareal utenfor boliger i 1. etasje samt bodene vil bli. Dette kan bli søkt organisert som egen næringsseksjon med ideelle andeler, tilleggsdel(er) til kjøpers boligseksjon, skilles ut som en egen eiendom (anleggseiendom), eller bli lagt som fellesareal med vedtektsfestet bruksrett. Selger forbeholder seg retten til å fordele parkeringsplassene. Overskjøting av ideell andel i parkeringskjeller og fellesarealer, eventuelt vedtektfesting av bruksretter, vil kunne finne sted først etter ferdigstillelse av alle boliger som skal ha rettigheter i parkeringskjeller og fellesarealer .

Kjøpesummen er avtalt til kr. ,- (kroner)

Betalingsplan:

10 % av kjøpesummen innen 10 dager etter at Selgers forbehold er opphevet og tilfredsstillende garanti fra Selger er etablert, jf. buofl § 12: kr ,5 dager før overtagelsestidspunktet: kr ,Til sammen kr ,-

Kjøpesummen er fast og ikke gjenstand for regulering, jf. likevel punkt 2 om gebyrer og avgifter.

2. Omkostninger

I tillegg til kjøpesummen betaler Kjøper uoppfordret omkostninger samtidig som sluttoppgjøret, jf. punkt 1.

Dokumentavgift til Staten (2,5 % av andel tomteverdi inkl. ev. garasjeplass(-er)) kr ,Tinglysingsgebyr skjøte til Staten kr 545 ,Andel startkapital til sameiet, tilsvarende 2 x stipulerte månedlige fellesutgifter kr ,-

Andel tilknytningskostnader for kabel-TV/bredbånd/fiberoptikk kr 5.000 ,-

Etableringsgebyr for sameie kr 8.000 ,Til sammen kr x ,-

I tillegg vil det komme tinglysingsgebyr på kr 545,- til Staten for hvert pantedokument Kjøper må la tinglyse på denne Boligen i forbindelse med etablering av egne lån.

Sameiet og eierseksjonssameierne er fritatt for ytterligere betaling av andel tilknytningsgebyr for kabel- TV/bredbånd/fiberoptikk da disse er inkl. i omkostninger, jf. dette punkt. Månedlige abonnementskostnader og hovedbestemmelser i avtalen fremgår av hhv. budsjett felleskostnader for sameiet og leveransebeskrivelse, jf. punkt 15.

Kjøper av seksjon i prosjektet innbetaler et engangsbeløp tilsvarende to måneders felleskostnader for å etablere en forsvarlig oppstartskapital i sameiet, i tillegg til felleskostnader for den første driftsmåneden beregnet fra overtakelsen.

Det tas forbehold om endringer av omkostningsbeløpene til Staten som følge av endrede gebyrer/ avgifter før overtagelsen.

Alle gebyrer og avgifter til det offentlige i forbindelse med utbyggingen er inkludert i kontraktssummen. Eventuell taksering av Boligen står for Kjøpers regning.

3. Oppgjør

Oppgjøret mellom partene foretas av Megleren, EiendomsMegler 1 Østlandet AS. Alle innbetalinger, inklusive omkostninger og eventuelle forsinkelsesrenter, forbundet med denne kontrakt skal innbetales samlet fra Kjøpers konto i norsk finansinstitusjon til EiendomsMegler 1, oppgjørsavdelingen, postboks 198, 2302 Hamar, klientkonto 1800 60 46580 merket med KID-nummer 1624900526 i SpareBank 1 Østlandet.

Kjøpesummen regnes ikke som betalt med befriende virkning for Kjøper før den er innkommet på Meglerens klientkonto. Skriftlig bekreftelse fra Kjøpers bank om at slik betaling er overført må sendes EiendomsMegler 1 Østlandet AS på e-post oppgjorhamar@em1ostlandet.no.

Dersom deloppgjør/sluttoppgjør betales senere enn avtalt, påløper forsinkelsesrente av den del av kjøpesummen som berøres av forsinkelsen i henhold til enhver tid gjeldende rentesats i Lov om forsinkelsesrenter. Forrentning av en eventuelt innbetalt del av kjøpesum, beregnet fra overtagelse, går til fratrekk i beregning av forsinkelsesrenter ved sluttoppgjør. Oppgjør betraktes å ha funnet sted på det tidspunkt beløpet er valutert Meglerens konto. Denne bestemmelse gir ikke Kjøper rett til å forlenge betalingsfristen utover de frister som er avtalt i kontrakten med mindre forsinkelse er varslet fra Selger.

Forsinkes innbetaling av kjøpesummen, samt betaling for alle tilleggsarbeider/endringer som Kjøper måtte ha bestilt, med mer enn 14 dager for beløp som forfaller 10 dager etter kontraktsinngåelsen og 30 dager for andre avtalte innbetalinger, regnes dette som vesentlig mislighold, og Selger har rett til å heve kjøpet umiddelbart etter bustadoppføringslova § 57.

Kjøper har jf. bustadoppføringslova § 49, 2. ledd deponeringsrett for omtvistet beløp, og kan etter § 49, 1. ledd ved deponering likevel kreve overtagelse og hjemmelsoverføring. Selger kan etter forsinkelsesrenteloven kreve forsinkelsesrente av Kjøper for beløp som er uberettiget/for mye deponert.

Tinglysing av skjøtet vil ikke finne sted før Kjøper har foretatt fullt oppgjør, jf. pkt. 2, inkludert ev. betaling av forsinkelsesrenter. Eventuelle forsinkelser med tinglysing som er begrunnet i forsinket

oppgjør fra Kjøpers side er Kjøpers ansvar. Dersom Kjøper har overtatt og/eller flyttet inn i Boligen før fullt oppgjør har funnet sted, på tross av garantier eller av andre grunner ikke presterer fullt oppgjør etter denne kontrakt, vedtar Kjøper utkastelse fra Bolig uten søksmål og dom, idet han da ikke har rett til å besitte Boligen, jf. tvangsfullbyrdelsesloven § 13-2, 3. ledd (e).

De deler av kjøpesummen som forfaller til betaling før overtagelsen, vil stå på Meglers klientkonto. Dersom Selger stiller § 47 garanti vil deloppgjør utbetales til Selger/byggelånsbank og godskriving av renter opphører. Dersom garantien kommer til anvendelse, bekrefter Kjøper ved underskrift av denne kontrakt at garantisten får ugjenkallelig fullmakt til å returnere eventuelle utbetalinger til Megler, slik at denne får avviklet et eventuelt inneståelsesansvar overfor Kjøpers bank.

Utbetaling av renter forutsetter at beløpet totalt sett overstiger mer enn ½ rettsgebyr.

Dersom selvskyldnergaranti ikke fremlegges, er innbetalt beløp Kjøpers og kan først overføres Selger etter Kjøpers overtagelse av Boligen.

4. Skjøte / tinglysing / sikkerhet Skjøte på Boligen utstedes av Selger senest ved overtagelse. Tinglysing kan ikke finne sted før fullt oppgjør med tilleggsarbeider og omkostninger er betalt.

Dersom seksjonsnummer ikke er fastsatt ved kontraktsdato, gir partene Megler fullmakt til å innsette dette i skjøtet og eventuelle panteretter så snart dette er avklart.

Selger har utstedt et pantedokument (sikringsobligasjon) til Megler som lyder på et beløp minst tilsvarende kjøpesummen. Pantedokumentet inneholder også en urådighetserklæring. Pantedokumentet er tinglyst, eller skal tinglyses, av Megler. Pantedokumentet tjener som sikkerhet for den til enhver tid utbetalte del av salgssummen. Megler skal vederlagsfritt besørge pantedokumentet slettet når oppgjør mellom partene er avsluttet og skjøtet er godtatt til tinglysing.

All tinglysing av dokumenter på eiendommen skal foretas av eiendomsmegler. Dokumenter som skal tinglyses må snarest, og i god tid før overtagelse, overleveres eiendomsmegler i undertegnet og tinglysingsklar stand.

Etter at Selger har slettet/frafalt sine forbehold om igangsetting av prosjektet, og forutsatt at partene har signert kjøpekontrakten, skal Selger innen 10 dager stille ugjenkallelig bankgaranti for oppfyllelse av avtalen, jf. bustadoppføringslova § 12. Garantien skal fremlegges for Kjøper før hele eller deler av kjøpesummen innbetales. Kjøper er ikke pliktig til å innbetale noen del av vederlaget før Selger har stilt garanti, jf. bustadoppføringslova § 12 siste ledd.

For krav som Kjøperen fremsetter mot Selgeren før overtagelsen, skal garantien utgjøre 3 % av avtalt kjøpesum.

For krav som fremsettes innen 5 år fra overtagelse, skal garantien utgjøre 5 % av avtalt kjøpesum. Pengeheftelser som ikke skal følge med eiendommen, skal slettes for Selgers regning.

Selger opplyser at det ikke eksisterer pengeheftelser av noen art, herunder utleggsforretninger, utover det som grunnboksutskriften viser. Selger forplikter seg til umiddelbart å underrette Megler dersom slike forretninger blir avholdt innen tinglysing av skjøtet skal finne sted. Videre forplikter

Selger seg til å betale alle avgifter m.v. som vedrører eiendommen og som er forfalt eller forfaller før overtagelsen.

Selger gir herved Megler ugjenkallelig fullmakt til å innfri pengeheftelser som fremgår av bekreftet grunnboksutskrift/oppgjørsskjema og som det ikke er avtalt at Kjøper skal overta. Selger garanterer at Boligen overleveres fri for andre heftelser enn dem Kjøper selv påhefter. Kjøper har fått seg forelagt utskrift fra grunnboken og har gjort seg kjent med denne, jf. punkt 16. Kjøper er gjort kjent med at grunnboksutskriften omfatter hele eiendommen (før deling og seksjonering).

Heftelser som vil følge eiendommen:

Skjønn: Jernbanetakster, gjelder denne med flere. Doknr. 1899/900129-1, tinglyst 01.11.1899. Erklæring/ avtale. Jernbanetakster, gjelder denne med flere. Doknr. 1902/900212-1, tinglyst 15.04.1902. Rettigheter iflg. skjøte. Bestemmelse om gjerde. Overført fra: Knr: 0403 Gnr: 1 Bnr: 3667. Doknr. 100150-1, tinglyst 25.01.1940.

Rettigheter iflg. skjøte. Rettighetshaver: Toten Regnskapskontor AS, leieavtale. Doknr. 1989/7247-1, tinglyst 24.07.1989.

Selger har rett til å tinglyse nye heftelser på eiendommen som følge av privat- og/eller offentligrettslige krav, herunder heftelser som gjelder vei, vann, avløp og tilliggende rettigheter og forpliktelser.

5. Utførelse og bebyggelse

Avtalens omfang fremgår av denne kontrakten og bilag spesifisert i pkt. 16. Selgers ytelser skal være i samsvar med gjeldende lover, forskrifter og offentlige vedtak. Ytelsene skal ha god håndverksmessig standard og svare til opplysninger som følger av kontraktsdokumentene eller ved markedsføring, med unntak av markedsføringen på Internett som er omtrentlig. Det vises til bustadoppføringslovas §§ 25, 26 og 27

Inneholder kontraktsdokumentene bestemmelser som strider mot hverandre, gjelder yngre bestemmelser foran eldre, spesielle foran generelle og bestemmelser utarbeidet særskilt for denne avtalen foran standardiserte bestemmelser.

Ved motstrid mellom leveransebeskrivelsen i prospektet og tegninger, gjelder leveransebeskrivelsen. Prospektets illustrasjonstegninger utgjør ikke en del av kontraktstegningene.

Selger har rett til å foreta endringer som ikke vesentlig reduserer den generelle standarden på utførelse og bebyggelse herunder utomhusarealer.

6. Endringsarbeider, tilleggsarbeider og tilvalg

Avtales det endringer eller tilleggsarbeider, skal Selger skriftlig bekrefte for Kjøper de kostnadsmessige og tidsmessige konsekvensene. Selger kan kreve betaling for tilleggsarbeider når de er utført uavhengig av betalingsplanen nevnt i punkt 1. Det vises til bustadoppføringslovas §§ 7 og 8.

Kjøper kan be om endrings- eller tilleggsarbeid, herunder avbestillinger, som endrer Selgers vederlag inntil 15 %. Det vises til bustadoppføringslovas § 9. Da prosjektet og dets priser er basert på at utbyggingen skal gjennomføres rasjonelt og med delvis serieproduksjon, er det ikke mulig å bestille endringer i utførelsen utover det som fremkommer av prospektet.

Selger skal innkalle til og gjennomføre kundemøter med tanke på tilleggsarbeider/endringsavtaler.

Selger skal skriftlig klargjøre for Kjøper de kostnadsmessige og tidsmessige konsekvensene av de endringene eller tilleggsarbeidene Kjøper krever. Disse forhold må avtales i egen skriftlig avtale mellom Selger og Kjøper.

Megler vil i forbindelse med utsendelse av innbetalingsbrev til Kjøper vedrørende resterende kjøpesum og omkostninger, på vegne av Selger kunne innta i oppstillingen ett samlet beløp omfattende Kjøpers endringer og tilleggsarbeider. Senest 3 uker før overtagelse skal Megler fra Selger motta kopi av undertegnet endringsavtale.

Selger har rett til å foreta mindre endringer i konstruksjon, tekniske installasjoner og materialvalg som ikke reduserer Boligens kvalitet, uten at dette gir rett til endring av avtalt pris. Selger skal så langt det er praktisk mulig informere Kjøper om slike endringer.

Det tas forbehold om at det kan forekomme mindre avvik i forhold til vedlagte tegninger.

7. Ferdigstillelse

Boligen planlegges ferdigstilt i perioden 2. kvartal til 3. kvartal år 2027, under forutsetning av vedtak om igangsetting/bortfall av forbehold innen 2. kvartal eller 3. kvartal 2025. Det er beregnet ca. 25 måneders byggetid. Tidsangivelsen er å forstå som foreløpig og gjelder ikke som en bindende frist for å ha Boligen klar for overtagelse, herunder ikke grunnlag for å kreve dagmulkt. Arbeidet skal utføres med rimelig fremdrift og uten unødige avbrudd.

Selger vil ved vedtatt igangsetting varsle Kjøper skriftlig om overtagelsesdato, som vil være å regne som en frist jf. bustadoppføringslova. Selgeren kan kreve overtagelse inntil fire måneder før den avtalte fristen til å ha Boligen klar til overtagelse.

Selger vil holde Kjøper orientert om fremdriften. Selger plikter, senest 8 uker før ferdigstillelse av Boligen, å meddele Kjøper skriftlig om fast overtagelsesdato. Kopi av meddelelsen sendes også til Megler. Denne varslede dato gjelder da som bindende overtagelsesdato, er evt. dagmulktsutløsende og skal ligge innenfor overtagelsesperioden.

Selger har rett til tilleggsfrist dersom vilkårene som er nevnt i bustadoppføringslovas § 11 er oppfylt og Selger har varslet Kjøper om forsinkelsen.

Kjøper er kjent med og aksepterer at forsinkelser som knyttes til produksjon, leveranse og frakt av bygningselementer/byggevarer som følge av krigen i Europa, gir Selger rett til å forlenge fristen for overtagelse, jf. buofl. § 11 c, uten at det gir Kjøper rett til å kreve dagmulkt.

Selger skal innkalle til overtagelsesbefaring i samsvar med bustadoppføringslovas § 15. Det skal føres protokoll over feil og/ eller mangler som skal rettes av Selger. Protokollen skal undertegnes av begge parter. Kopi sendes Megler.

Forut for overtagelse kan Selger innkalle til en forhåndsbefaring hvor protokoll føres på samme måte som ved overtagelse. Dette skjer 2-3 uker før overtagelsesdatoen.

Det kan holdes overtagelsesforretning selv om det gjenstår mindre arbeider som ikke er til hinder for at hele Boligen kan bebos. Midlertidig brukstillatelse skal foreligge ved overtagelsen.

Ved forsinket ferdigstillelse som Selger er ansvarlig for, gjelder bestemmelsene i bustadoppføringslovas §18 om dagmulkt (0,75 promille per dag) og §19 om erstatning.

Ved vesentlig forsinkelse, unntatt force majeure, har Kjøper rett til å heve kontrakten, og få tilbakebetalt innbetalt del av kjøpesum inkl. påløpte renter på Meglerens konto som følge av innbetalingen.

Selger plikter å rette feil/ mangler som inngår i protokollen uten unødig opphold og i henhold til overtagelsesprotokoll. Utvendig arbeid gjøres i henhold til årstidene, for øvrig henvises det til bustadoppføringslovas §§ 10 og 11. Det er Selgers ansvar å fremskaffe ferdigattest på avtalt leveranse.

Kjøper plikter å gi Selgers kontraktsmedhjelpere adgang til Boligen innenfor normal arbeidstid (kl. 07.00 - 16.30), slik at eventuelle rettelser kan bli utført på rasjonell måte.

Skulle det for øvrig være feil/ mangler som det vil falle uforholdsmessig kostbart å utbedre, har Selger rett til å gi Kjøper prisavslag istedenfor å foreta utbedring, dersom feilen/ mangelen ikke vesentlig reduserer Boligens verdi jf. bustadoppføringslovas §32.

Inntil samtlige enheter med tilhørende utomhusarealer er ferdigstilt, har Selger rett til å ha stående anleggsmaskiner, materialer, rigg og utstyr på området. Denne retten gjelder så lenge byggearbeidene pågår. Eventuelle skader dette påfører Eiendommen, skal Selger snarest utbedre for egen regning.

8. Overtakelse

Når Boligen er overtatt og skjøte er tinglyst, bortfaller Kjøpers instruksjonsrett over kjøpesummen, med mindre eventuelt beløp som skal tilbakeholdes skriftlig framgår av overtagelsesprotokollen. Eventuelt beløp som skal tilbakeholdes deponeres hos Megler, og frigivelse av dette beløpet krever begge parters signatur. Beløpet skal stå i rimelig forhold til verdien av de gjenstående arbeid. Renter på et eventuelt tilbakeholdt beløp i forbindelse med overtagelsen tilfalle Selger.

På overtakelsen går partene gjennom Boligen/eiendommen sammen, fyller ut og signerer overtakelsesprotokollen. Eventuelle mangler/anmerkninger må noteres i protokollen. Selve overleveringen skjer i det øyeblikk protokollen signeres. Det er Selgers ansvar å sende protokollen til Megler/oppgjørsavdelingen. I de tilfeller det er to eller flere Selgere eller Kjøpere til eiendommen, forplikter hver av partene hverandre, selv om bare en representant fra hver side møter på overtakelsen og undertegner protokollen.

Synlige skader på overflater, utstyr og lignende kan ikke påberopes etter overtagelse. Dersom Boligen har feil eller mangler som gir Kjøper grunnlag til ikke å overta Boligen, vil den innbetalte del av kjøpesummen bli sperret på Meglerens klientkonto, inntil Boligen kan overtas, jf. bustadoppføringslovas §§ 15 og 31. Renter i forsinkelsesperioden tilfaller Kjøper.

Ved overtagelse skal eiendommen leveres i byggerengjort stand. Dette innebærer at Kjøper må akseptere begrensede tilfeller av byggestøv på enkelte overflater, samt at gulvflater generelt kan inneha begrensede tråkkmerker og/eller vaskestriper ved slepelys fra vinduer.

Til Boligen hører en andel av fellesarealer. Deler av fellesarealene, herunder utomhusarbeidene kan bli ferdigstilt etter overtagelse av Boligen, men senest innen 1. september påfølgende eller

inneværende år, avhengig av forventet ferdigstillelsesdato. Som sikkerhet for ferdigstillelse av alle fellesarealer vil det på Meglerens klientkonto bli holdt tilbake et forholdsmessig beløp felles for alle sameiere tilsvarende verdien på eventuelt gjenstående arbeid.

Kjøper gir sameiets styre, eller den sameiet utpeker, fullmakt til sammen med Selger foreta og undertegne overtagelsesforretningen for fellesarealene. Når protokollen viser at fellesarealene er levert i henhold til kontrakten, vil tilbakeholdt beløp bli utbetalt Selger. Opparbeidede renter tilfaller Selger.

Fra overtagelsen går risikoen for Boligen over på Kjøper. Kjøper svarer for påløpte utgifter, samt oppebærer eventuelle inntekter. Dersom sameiet ikke er stiftet når Boligen tas i bruk, har Selger rett til å kreve dekket kostnader til fellesutgifter som han betaler på vegne av sameiet.

Når overtagelsesforretningen har funnet sted, anses Kjøper å ha godtatt Boligen som kontraktsmessig med eventuelle bemerkninger i overtagelsesprotokollen.

9. Garanti / 1-års befaring / reklamasjonsrett

Om lag 1 år etter overtagelse skal Selger uoppfordret innkalle til ettårsbefaring. Selger skal føre protokoll på samme måte som ved overtagelsesforretningen. Det vises ellers til bustadoppføringslovas § 16. For sameiets fellesarealer vil Selger innkalle sameiets styre til tilsvarende befaring.

Selger gir 5 års garanti for Boligen som er omhandlet i kontrakten, regnet fra overtagelsesdato.

Garantien dekker et beløp som tilsvarer 5 % av kjøpesummen. Garantien skal utstedes direkte til Kjøper, eventuelt kan 3 % garantien opptrappes innen betalingsforfall for sluttoppgjør. Original garanti overleveres Megler, og oversendes så Kjøper etter at overtagelsen har funnet sted.

Det gjøres spesielt oppmerksom på at Selgers plikt til å utbedre feil eller mangler ikke omfatter følgende punkter:

a) Krymping av betong, treverk eller plater og derav sprekkdannelser i tapet, maling og lignende, med mindre sprekkdannelsene skyldes dårlig håndverk eller feilaktig behandling av materialer.

b) Reparasjoner som går inn under vanlig vedlikehold.

c) Mangler som oppstår på grunn av mangelfullt vedlikehold og/ eller uforsvarlig bruk av Boligen med utstyr.

d) Skader som skyldes tilfeldige begivenheter etter overtagelse som Selger ikke kan lastes eller ha ansvar for

Reklamasjoner i henhold til ovennevnte garanti må meldes skriftlig til Selger med kopi til garantisten. Eventuelle reklamasjoner og etterarbeider vil bli utført mest mulig samlet for alle Boligene, så sant ikke normal bruk av Boligen krever at en eventuell feil utbedres omgående.

Reklamasjonsretten i henhold til bustadoppføringslovas §30 er begrenset til 5 år etter overtagelsesdato.

10. Risiko - forsikring

Boligen er Selgers risiko frem til overtagelse har funnet sted i henhold til punkt 1 og 8 i kontrakten. Selger er forpliktet til å forsikre eiendommen i byggeperioden i henhold til bustadoppføringslovens bestemmelser.

Styret i sameiet plikter å tegne egen forsikring snarest mulig, og melde fra om dette til Selger som da kan slette sin forsikring. Etter dette tidspunkt er sameiet ansvarlig for forsikring av bygningen. Kjøper må selv tegne egen innboforsikring fra og med overtagelsesdato.

Dersom Boligen skades av brann eller utsettes for annen erstatningsmessig skade før overtagelsen, kan denne kontrakt opprettholdes fullt ut dersom Kjøper ønsker det. Skadeserstatning skal i så fall utbetales til Selger/Selgers byggelånsbank, som har plikt til å foreta gjenoppbygging/ utbedring av bygget på kortest mulig tid uten pristillegg eller forrentning av den kapital som er innbetalt à konto i forbindelse med kjøpet.

11. Sameie og vedtekter

Ved ervervet av Boligen blir Kjøper sameier i Sameiet x. Sameiet har til oppgave å ivareta sameiernes felles interesser, herunder driften av fellesarealene. Kjøper plikter å rette seg etter sameiets vedtak og vedtekter, samt betale sin andel av sameiets utgifter (fellesutgifter). De ulike kostnadspostene i fellesutgifter for sameiet vil bli fordelt andelsvis mellom Boligene, og beregnes delvis etter Boligenes bruksareal, delvis på antallet og delvis på basis av antall garasjeplasser for den enkelte Bolig. Det er utarbeidet et utkast til budsjett for felleskostnader fordelt på de respektive Boligene i sameiet, se vedlegg jf. pkt. 16.

Budsjett for fellesutgifter for sameiet fastsettes av vedtak i sameiet på årsmøtet. På bakgrunn av erfaringstall fra sammenlignbare sameier og estimerte kostnader for første driftsår, så er Boligens andel av sameiets felleskostnader stipulert til ca. kr x,- pr. måned. Kjøper er kjent med at felleskostnadene kan bli justert som følge av endringer i konsumprisindeks, vedlikeholdsbehov, sameiets egne vedtak m.m. Det tas forbehold om at Selger kan justere stipulerte felleskostnader som følge av endringer i budsjettpostene. Ved tilleggskjøp av garasjeplasser vil det påløpe ytterligere felleskostnader.

Selger står ansvarlig for å dekke fellesutgifter for Boliger som ikke er solgt og overlevert til ny eier. Selger har inngått avtale med forretningsfører om forvaltning av sameiet.

Selger, eller Selgers representant, har som eier av usolgte Boliger møterett i styremøter uavhengig om vedkommende er valgt som styremedlem i sameiet.

Kjøper er kjent med at sameiet forbeholder seg 1. prioritets panterett for et beløp tilsvarende 2 ganger folketrygdens grunnbeløp, jf. Eierseksjonsloven § 31, som sikkerhet for sameierens forpliktelser. Der er utarbeidet vedtekter som følger som vedlegg til denne kontrakten. Disse vedtekter gjelder fram til generalforsamlingen vedtar eventuelle endringer.

Det er utarbeidet vedtekter som følger som vedlegg til denne kontrakten. Disse vedtekter gjelder frem til generalforsamlingen vedtar eventuelle endringer.

12. Befaring på byggeplassen

Ferdsel på byggeplassen i anleggsperioden er beheftet med høy grad av risiko og skal kun skje etter forutgående avtale med Selger.

13. Avbestilling

Ved kontraktsbrudd/avbestilling fra Kjøpers side, vil Selger holde Kjøper ansvarlig for økonomiske tap og merkostnader som følge av hevingen. Kjøpers adgang til å avbestille følger av bustadopp -

føringsloven §§ 52-54. Ved avbestilling skal Kjøper betale en normaltapserstatning til Selger som skal tilsvare 10 % av den avtalte kjøpesummen. Ved avbestilling etter varslet igangsetting vil Kjøper holdes ansvarlig for Selgers merkostnader og tap som følge av avbestillingen.

Bestilte tilvalg og endringer skal i slike tilfeller, i sin helhet, uansett betales av Kjøper. Selger kan kreve utbetaling av Kjøpers delinnbetaling til dekning av avbestillingsgebyr eller vederlag etter dette punkt. Hvis kontrakten ikke gjennomføres, vil renter på innbetalte forskudd tilfalle Kjøper.

14. Tvister

Skulle det oppstå tvist om forståelsen av denne kontrakt eller gjennomføringen av denne handel, skal partene søke å løse den oppståtte konflikt i minnelighet.

Dersom Kjøper tar rettslige skritt med påstand om at kjøpet ikke er kontraktsmessig, er Kjøper likevel forpliktet til å foreta oppgjør overfor Megler som bestemt i denne kontrakt.

Eventuelle tvister blir å føre i det verneting som ligger i det området eiendommen tilhører

15. Særskilte bestemmelser - Selgers forbehold

Selger tar følgende forbehold med tanke på igangsetting av prosjektet:

1* Nødvendig offentlige godkjenninger. Dette omfatter også eventuelle pålegg og endringer i forbindelse med rammetillatelse og igangsettingstillatelsen.

2* Tilfredsstillende forhåndssalg i salgstrinn 1 (hus A, B, D, E, F) tilsvarende minimum 50 % av antall enheter og/eller leilighetenes totale verdi.

3* Selgers byggelån blir innvilget og åpnet.

4* Vedtak om igangsetting i utbyggingsselskapets styre.

Selgers forbehold skal være avklart innen 01.06.2026. Forbeholdet anses avklart først når selger har avklart dette uttrykkelig overfor Kjøper. Dersom forbeholdene ikke er oppfylles eller avklares innen nevnte frist er ingen av partene forpliktet etter denne kontrakt. Ved skriftlig enighet mellom partene, kan fristen i dette avsnitt forlenges på samme vilkår.

Selger kan velge å igangsette bygging på et lavere forhåndssalg enn nevnt i pkt. 2*

Selger forbeholder seg retten til å endre antall bolig-/næringsseksjoner, samt eierbrøken og utkast til budsjett for sameiets felleskostnader som følge av dette. Selger forbeholder seg retten til å transportere kjøpekontrakt fra Selger til et annet selskap uten samtykke fra Kjøper. Selger tar forbehold om å justere salgspriser på usolgte boliger i prosjektet. Uavhengig om prisforlangende for tilsvarende boliger i tidsrommet etter kontraktsinngåelsen blir justert opp eller ned, kan ingen av partene av den grunn kreve prisavslag eller pristillegg.

Felleskostnader fordeles delvis pr. kvm BRA, og delvis på antall boligenheter. Dette medfører at mindre boliger får høyere felleskostnader pr. kvm BRA enn større boliger. Det tas forbehold om endringer i fordelingsprinsipper og stipulerte felleskostnader for den enkelte bolig, som først vil bli endelig vedtatt av sameierne i konstituerende sameiermøte ifm. fastsettelse av vedtekter, samt budsjett for første driftsår.

Selger har rett til å gjøre mindre endringer i konstruksjon, fasader, tekniske installasjoner og materialvalg som ikke reduserer Boligens kvalitet, uten at dette gir Kjøper rett til endring av avtalt kjøpesum. Er det motsetninger mellom prospekttegninger og beskrivelser, gjelder beskrivelser foran tegninger. Det tas forbehold om justeringer og endringer av utomhusplanen.

Eiendommen selges fri for pengeheftelser, dog med unntak for heftelser som påhviler sameiet. Selger kan tinglyse bestemmelser som vedrører sameiet, naboforhold eller forhold pålagt av myndighetene.

Kjøper er kjent med at kjøpekontrakten ikke kan transporteres uten etter samtykke av Selger. Selger kan på fritt grunnlag avslå å gi samtykke til transport. Dersom Selger godtar transport vil de kreve et transportgebyr på kr. 50.000 som pliktes innbetalt i sin helhet av Kjøper 1 før Selger signerer nødvendige dokumenter. Megleromkostninger kommer i tillegg.

Selger tar videre forbehold om at bilder og illustrasjoner er ment å illustrere prosjektet, og kan vise tilvalg som ikke er en del av standardleveransen. Selger tar forbehold om at Kjøper godtar at Selger og Megler kan bruke elektronisk kommunikasjon for å sende varsler og informasjon etc.

16. Bilag

Kjøper har fått seg forelagt kopi av:

- Prospekt datert xx.xx.2025

- Plantegning av Boligen i målestokk 1:50 eller 1:100

- Plantegning av parkeringsplan i målestokk 1:50 eller 1:100

- Leveransebeskrivelse, datert xx.xx.202x

- Utkast til vedtekter for eierseksjonssameiet x

- Grunnboksutskrift for eiendommen, gnr. 145, bnr. 4 i Vestre Toten kommune, datert xx.xx.202x

- Reguleringsplan og bestemmelser

- Prisliste, datert xx.xx.2025

- Budsjett felleskostnader for første driftsår

- Kopi av bustadoppføringslova

Dato/signatur

Denne kontrakt er opprettet i 3 likelydende eksemplarer hvorav hver av partene får ett eksemplar hver, og ett beror hos Megler, EiendomsMegler 1 Østlandet AS, avd. Nybygg.

Sted, dato

Sted, dato

Selger Kjøper

Eina Sentrum AS

Sendes til:

EiendomsMegler 1 Østlandet, avd. Nybygg, Strandgata 15, 2317 Hamar e-post: gro.rakstad@em1ostlandet.no / thomas.rusten@em1ostlandet.no

Bindende kjøpsbekreftelse

Jeg/vi inngår herved bindende avtale med selger om kjøp av Leilighetsnr.: inkl. eventuell garasjeplass (-er) i Heme, i henhold til prisliste datert , prospekt med prosjektbeskrivelse og vedlegg datert ,samt dette kjøpetilbud med informasjon og vilkår til fast pris kr. - kroner 00/100 med tillegg av omkostninger jfr. prislisten. Kjøper bekrefter å ha satt seg inn i ovennevnte dokumenter.

Ev. forbehold

FINANSIERINGSPLAN

Lån i

Lån i

Egenkapital i

Hvor kommer egenkapitalen fra?

(salg av bolig, BSU, bankinnskudd, oppsparte midler)

Jeg/vi ønsker finansieringstilbud fra Sparebank 1: Ja Nei

Jeg/vi ønsker E-takst fra EiendomsMegler 1: Ja Nei

Jeg gir bud som: Forbruker Ledd i næringsvirksomhet/juridisk person (selskap)

Forbruker: Med forbruker menes en fysisk person som ikke hovedsakelig handler som ledd i næringsvirksomhet. Ledd i næringsvirksomhet/juridisk person (selskap): Der kjøper er en privatperson kan man likevel anses for å kjøpe eiendommen som ledd i næringsvirksomhet. Dette kan for eksempel være der en privatperson kjøper bolig for utleie/salg, og driver med dette i et slikt omfang at virksomheten blir ansett for å være næringsvirksomhet. Dersom du representerer en juridisk person (selskap) som skal stå som kjøper av eiendommen skal dette alternativet velges. Dersom du er i tvil om du anses som forbruker eller for å kjøpe eiendommen som ledd i næringsvirksomhet bes det om at du tar kontakt med megler på oppdraget.

Undertegnede gir med dette bindende bekreftelse på kjøp av ovennevnte eiendom, og bekrefter med dette å ha lest salgsoppgaven med tilhørende vedlegg. Kjøpsbekreftelse er avgitt iht. de avtalebetingelser som fremgår av salgsoppgaven. Bindende bekreftelse på kjøp kan ikke trekkes tilbake etter at dette er gjort kjent for megler på vegne av selger. Undertegnede samtykker i at hver av partene forplikter hverandre i forbindelse med endring/inngivelse av kjøpsbekreftelse og/eller vilkår.

Budgiver 1

Fødselsnr.:

Tlf.:

Adresse

Postnr/sted

E-post

Sted/Dato: Underskrift

Budgiver 1: kopi av gyldig legitimasjon (f.eks. førerkort)

Budgiver 2

Fødselsnr.:

Tlf.:

Adresse

Postnr/sted E-post

Sted/Dato: Underskrift

Budgiver 2: kopi av gyldig legitimasjon (f.eks. førerkort)

EiendomsMegler 1 Østlandet, avd. Nybygg, Strandgata 15, 2317 Hamar / Postboks 198, 2302 Hamar / eiendomsmegler1.no

FORBRUKERINFORMASJON VED INNGÅELSE AV KJØPSAVTALE

• Alle kjøpetilbud skal være skriftlige eller skriftlige bekreftet, og skal oversendes signert via e-post eller leveres til megler.

• Skjemaet skal fylles ut så nøyaktig som mulig med hensyn på finansiering, finansinstitusjonens kontaktperson, samt andel egenkapital.

• Megler bekrefter overfor kjøper at kjøpetilbudet aksepteres.

• Vær oppmerksom på at det ikke eksisterer noen form for angrefrist ved kjøp/salg av eiendom.

• Dersom kjøper anses som profesjonell forbeholder selger seg retten til å kreve at avhendingslovens bestemmelser skal komme til anvendelse for avtalen mellom partene.

Avtalevilkår:

Kjøpekontrakt vil bli signert etter at kjøpetilbudet er akseptert av selger. Megler vil innkalle til kontraktssignering.

Betalingsbetingelser:

10 % av kjøpesummen betales innen 10 dager etter at selgers forbehold er opphevet og tilfredsstillende garanti fra selger iht. buofl § 12 er etablert. Hvis kjøper er å anse som profesjonell skal det innbetales 20% av kjøpesummen. Resterende kjøpesum, omkostninger og eventuelle tilleggs- eller endringsarbeider betales 5 dager før overtakelse.

Kostnader ved kontraktsbrudd:

Ved kontraktsbrudd/avbestilling fra kjøperens side, vil selger holde kjøper ansvarlig for økonomiske tap og merkostnader som følge av hevingen. Kjøpers adgang til å avbestille følger av bustadoppføringsloven § 52-54. Ved avbestilling før varslet igangsetting skal Kjøper betale en normaltapserstatning til Selger som skal tilsvare 10 % av den avtalte kjøpesummen. Ved avbestilling etter varslet igangsetting vil Kjøper holdes ansvarlig for Selgers merkostnader og tap som følge av avbestillingen. Bestilte tilvalg og endringer skal i slike tilfeller, i sin helhet, uansett betales av kjøper. Selger kan kreve utbetaling av kjøpers delinnbetaling til dekning av avbestillingsgebyr eller vederlag etter dette punkt. Hvis kontrakten ikke gjennomføres vil renter på innbetalte forskudd tilfalle kjøper.

Omkostninger:

Det henvises til prislisten for de stipulerte omkostningene pr. bolig.

Det tas forbehold om endringer av omkostningsbeløpene som følge av politiske vedtak eller lovendringer. Kjøper er innforstått med at grunnlag for beregning av dokumentavgift til staten vil bli justert etter sameiebrøken når denne foreligger med 2,5 % av beregnet andel av tomteverdi.

Alminnelige forbehold:

Selger tar følgende forbehold med tanke på igangsetting av prosjektet:

1. Nødvendige offentlige godkjenninger. Dette omfatter også eventuelle pålegg og endringer i forbindelse med rammetillatelse og igangsettingstillatelse.

2. Tilfredsstillende forhåndssalg i trinn 1 (hus A, B, D, E og F) tilsvarende minimum 50 % av antall enheter og/eller leilighetenes totale verdi.

3. Selgers byggelån blir innvilget og åpnet.

4. Vedtak om igangsetting i utbyggingsselskapets styre.

Selgers forbehold skal være avklart innen 01.05.2026. Forbehold anses avklart først når selger har avklart dette uttrykkelig overfor kjøper. Dersom forbeholdene ikke oppfylles eller avklares innen nevnte frist er ingen av partene forpliktet etter denne kontrakt.

Ved skriftlig enighet mellom partene, kan fristen i dette avsnitt forlenges på samme vilkår. Selger kan velge å igangsette bygging på et lavere forhåndssalg enn nevnt i pkt. 2.

Selger forbeholder seg retten til å endre antall bolig-/næringsseksjoner, samt eierbrøken og utkast til budsjett for sameiets felleskostnader som følge av dette. Selger forbeholder seg retten til å transportere kjøpekontrakt fra selger til et annet selskap uten samtykke fra kjøper. Selger forbeholder seg retten til enhver tid å justere salgspriser på usolgte boliger i prosjektet. Uavhengig om prisforlangende for tilsvarende boliger i tidsrommet etter kontraktsinngåelsen blir justert opp eller ned, kan ingen av partene av den grunn kreve prisavslag eller pristillegg.

Felleskostnader fordeles delvis pr. kvm BRA, og delvis på antall boligenheter. Dette medfører at mindre boliger får høyere felles- kostnader pr. kvm BRA enn større boliger. Det tas forbehold om endringer i fordelingsprinsipper og stipulerte felleskostnader for den enkelte bolig, som først vil bli endelig vedtatt av sameierne i konstituerende sameiermøte ifm. fastsettelse av vedtekter, samt budsjett for første driftsår.

Selger har rett til å gjøre mindre endringer i konstruksjon, fasader, tekniske installasjoner og materialvalg som ikke reduserer boligens kvalitet, uten at dette gir kjøper rett til endring av avtalt kjøpesum. Er det motsetninger mellom prospekttegninger og beskrivelser, gjelder beskrivelser foran tegninger. Det tas forbehold om justeringer og endringer av utomhusplanen.

Eiendommen selges fri for pengeheftelser, dog med unntak for heftelser som påhviler sameiet. Selger kan tinglyse bestemmelser som vedrører sameiet, naboforhold eller forhold pålagt av myndighetene.

Kjøper er kjent med at kjøpekontrakten ikke kan transporteres uten etter samtykke av selger. Ved transport av kjøpekontrakten vil selger beregne seg et transportgebyr på kr 50.000. Megleromkostninger kommer i tillegg.

Selger tar videre forbehold om at bilder og illustrasjoner er ment å illustrere prosjektet, og kan vise tilvalg som ikke er en del av standardleveransen. Selger tar forbehold om at kjøper godtar at selger og megler kan bruke elektronisk kommunikasjon for å sende varsler og informasjon etc.

Sted: Dato:

Signatur/underskrift Signatur/underskrift

Kong Haakon VII åpner Valdresbanen, Eina jernbanestasjon i Veste Toten 1906. Foto: Georg Kjellerød / Østfold fylkes billedarkiv
Landbruk på Eina 1962 / Paul Andreas Røstad / DEXTRA Photo
Marie, Anna og Johannes Skinderviken i båt på Einafjorden september 1905. Foto: Antonius Skinderviken / Mjøsmuseet

GRO RAKSTAD

Prosjektmegler MNEF 971 22 404

gro.rakstad@em1ostlandet.no

THOMAS SKOGLI RUSTEN

Prosjektmegler 902 23 545

thomas.rusten@em1ostlandet.no

Turn static files into dynamic content formats.

Create a flipbook
Issuu converts static files into: digital portfolios, online yearbooks, online catalogs, digital photo albums and more. Sign up and create your flipbook.