



Rising at the confluence of three world-renowned New York neighborhoods – the East Village, the Lower East Side and Alphabet City – One One Eight is a collection of four spacious residences framed by an elegant aesthetic. Featuring a garden duplex, a three-level penthouse with roof deck and retail at the street level, One One Eight is a superb example of contemporary architectural design, balancing a bold street presence with intimate interiors.
Clad in eye-catching Jet Mist Granite, One One Eight incorporates an array of green materials and sustainable practices, arrayed in a sleek outline. Irrigated gardens cascade luxuriantly down the street façade, punctuated by Juliet balconies. Facing the garden courtyard, a tier of spacious balconies open from living areas and bedrooms, providing a private respite for meditation or
relaxing. Finishes throughout are of the highest quality, balancing old-world artisanship with the latest in technology, from continuous fresh-filtered air to the Akuvox R295 virtual doorman system. Surrounded by the famously bohemian cafes, restaurants and night-spots of the East Village, including such standbys as Katz’s Deli, Lucien, Russ & Daughters, Dirty French and Prune, the building literally overlooks the historic streets of the LES, where cultural centers such as The New Museum and the International Museum of Photography, art galleries and emporiums hum with creative energy. Equinox is across the street, Whole Foods a block away.
Near the F/M/J/Z trains, One One Eight is an architectural archetype at the center of things.
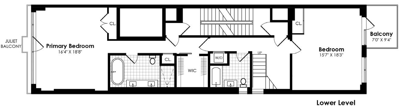
Encompassing the 2nd and 3rd levels, Unit 2 at One One Eight is a three-bedroom, 3 bath 2,871 sq. ft. residence that balances metropolitan sophistication with privacy and charm. Incorporating an additional 606 sq. ft of outdoor space, this luxurious and carefully crafted duplex is a secret garden at the dynamic heart of New York.
Surrounded by the famously bohemian cafes, restaurants and night-spots of the East Village, including such standbys
as Katz’s Deli, Lucien, Russ & Daughters, Dirty French and Prune, the building literally overlooks the historic streets of the LES, where cultural centers such as The New Museum and the International Museum of Photography, art galleries and emporiums hum with creative energy. Equinox is across the street, Whole Foods a block away. Near the F/M/J/Z trains, One One Eight’s Unit 2 is an oasis of calm at the center of it all.
• Floor-to-ceiling windows and a ventless fireplace with Tundra Gray stone mantel and surround
• Sleek Miele appliances, a 36” Bertazzoni induction range and hood, Artemis White marble countertops and backsplash, a dual-zone French door wine refrigerator, a Bosch drawer microwave and concealed trash an recycling bins, all surrounded by European Oak cabinetry by Alta Cucine.
• A spa-like en-suite bath with customized dual vanity, Siberian and Woodgrain marble walls, herringbone flooring, Italian fixtures by New Form in brushed stainless steel and a handcrafted bathtub by Wetstyle.
• Italian wardrobes by Alta with white lacquered doors, contrasting all-wood interiors and LED lighting.
• Custom Italian white oak doors by GD Dorigo feature Italian Columbo Design hardware
• Energy-efficient German windows by Schuco
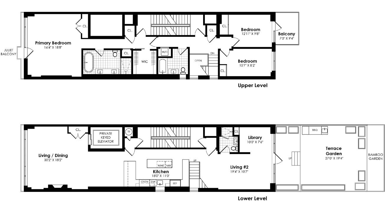
Encompassing the 4th & 5th levels, Unit 5 at One One Eight is a three-bedroom, 3 bath residence. Incorporating 2,872 Sq ft with an additional 144 exterior sq. ft, this bright and spacious residence is poised to be both showplace and a retreat.
Surrounded by the famously bohemian cafes, restaurants and night-spots of the East Village, including such standbys as Katz’s Deli, Lucien, Russ & Daughters,
Dirty French and Prune, the building literally overlooks the historic streets of the LES, where cultural centers such as The New Museum and the International Museum of Photography, art galleries and emporiums hum with creative energy. Equinox is across the street, Whole Foods a block away. Near the F/M/J/Z trains, One One Eight Unit 5 epitomizes Manhattan living.
• Floor-to-ceiling windows and a Juliet balcony are offset by a ventless fireplace with Tundra Gray stone mantel and surround.
• Sleek Miele appliances, a 36” Bertazzoni induction range and hood, Artemis White marble countertops and backsplash, a dual-zone French door wine refrigerator, a Bosch drawer microwave and concealed trash an recycling bins, all surrounded by European Oak cabinetry by Alta Cucine.
• A spa-like en-suite bath with customized dual vanity, Siberian and Woodgrain marble walls, herringbone flooring, Italian fixtures by New Form in brushed stainless steel and a handcrafted bathtub by Wetstyle.
• Italian wardrobes by Alta with white lacquered doors, contrasting all-wood interiors and LED lighting.
• Custom Italian white oak doors by GD Dorigo feature Italian Columbo Design hardware
• Energy-efficient German windows by Schuco
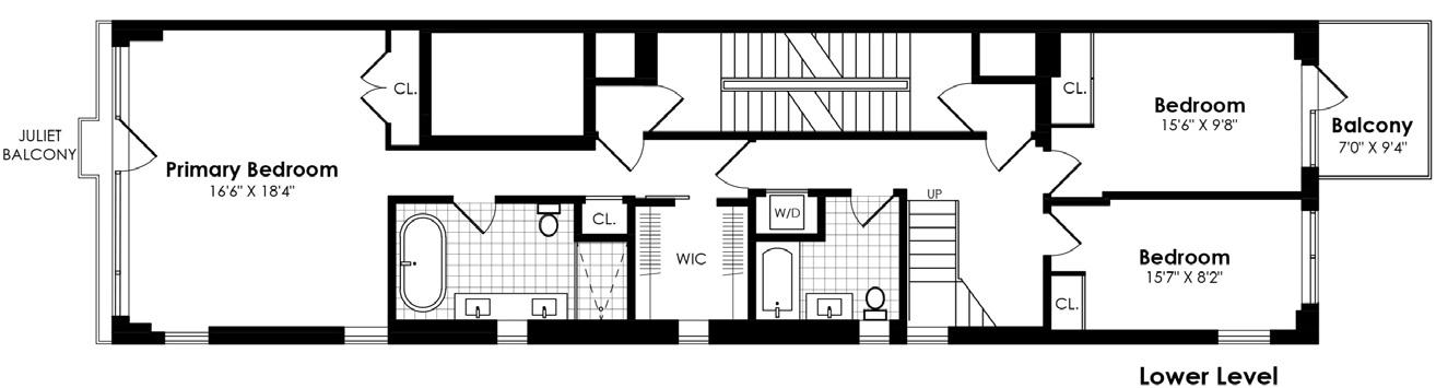
Encompassing the 6th and 7th levels, Unit 7 at One One Eight is a three-bedroom, 3 bath residence. Incorporating 2,879 Sq ft with an additional 144 exterior sq. ft, this beautifully planned and detailed apartment offers a perfect fulcrum of fine living and the latest in technology. Surrounded by the famously bohemian cafes, restaurants and night-spots of the East Village, including such standbys as Katz’s Deli, Lucien, Russ & Daughters,
Dirty French and Prune, the building literally overlooks the historic streets of the LES, where cultural centers such as The New Museum and the International Museum of Photography, art galleries and emporiums hum with creative energy. Equinox is across the street, Whole Foods a block away. Near the F/M/J/Z trains, One One Eight Unit 7 is an aerie of timeless elegance.
• Wraparound floor-to-ceiling windows and a ventless fireplace with Tundra Gray stone mantel and surround provides a central focus for entertaining and relaxing.
• Sleek Miele appliances, a 36” Bertazzoni induction range and hood, Artemis White marble countertops and backsplash, a dual-zone French door wine refrigerator, a Bosch drawer microwave and concealed trash an recycling bins, all surrounded by European Oak cabinetry by Alta Cucine.
• A spa-like en-suite bath with customized dual vanity, Siberian and Woodgrain marble walls, herringbone flooring, Italian fixtures by New Form in brushed stainless steel and a handcrafted bathtub by Wetstyle.
• Italian wardrobes by Alta with white lacquered doors, contrasting all-wood interiors and LED lighting.
• Custom Italian white oak doors by GD Dorigo feature Italian Columbo Design hardware
• Energy-efficient German windows by Schuco
118 EAST 1ST STREET
Encompassing the ground floor level and a portion of the basement, the Commerical Unit at One One Eight is a unique opportunity to open an establishment in one of New York’s most dynamic locations. Incorporating 2,026 sq. ft of space on two levels, this white-box rental space is perfect for a stylish boutique.
Opening directly off of 1st Street between First Avenue and Avenue A, the spacious interior extends the full length of the building’s footprint, with a shop window space for displays. A second level is perfect for either an office or storage. Track lighting and a sprinkler system are already installed.Near the F/M/J/Z trains, One One Eight is a canny retailer’s chance to stake a claim at the center of it all.
• Energy-efficient windows by Schuco
• Net Zero interior and exterior insulation
• MERV-13 air filters with energy-saving heat exchange
•
• SQ. FT: 2,026
Widely recognized as the historical center of counterculture in the city, the East Village attracted an incredible number of artists, writers, poets, and punk rockers over the years. Many still remain, giving the neighborhood an increasingly rare feeling of authentic New York. Streets are lined with low buildings–of walk-ups, lofts and single-family townhomes–intermingled with small independent shops and the 10.5 acre Tompkins Square Park. The restaurant scene has become one of the best and most varied in the city, with big ticket establishments like Momofuku Ko tempered by blocks populated entirely by One type Of Food, Like Curry Row (A block of Indian restaurants) And The Japanese version of the same.
LICENSED ASSOCIATE REAL ESTATE BROKER
DIRECT: 212.891.7012 | MOBILE: 646.423.2595 allison.chalfin@elliman.com