PORTAFOLIO | ELIZABETH OCHOA ACUÑA
Proyectos Seleccionados
![]()
Proyectos Seleccionados
Diseño Arquitectónico
Casa unifamiliar ubicado en Ate, Lima, Perú. El diseño busca complementar un estilo elegante con uno tradicional, los ambientes giran en torno al ingreso de luz natural en sus ambientes principales.
Proyecto independiente. Programas utilizados: Autocad, Sketchup, Vray.
Ubicación: Lima, Perú Año: 2024




Diseño Arquitectónico
Diseño de vivienda ubicado a 100 metros del mar en Chinchaycamac. El diseño busca complementar un estilo elegante con uno rústico, evocando las chozas ubicadas en la costa frente al mar y combinándolo con toques personales de los propietarios.
Proyecto independiente. Programas utilizados: Autocad, Sketchup, Vray.








NOTA: -Todos los muros son de albañilería e=15cm -Tabiques divisorios al interior de los baños (ducha, inodoro) serán de e=10cm -El interior de la sala de cine tendrá revestimiento acústico -Los pisos de las duchas, baños y zonas húmedas serán antideslizantes

PROYECTO:
Proyectista:
Dirección: Nombre de Lámina: Número de lámina:
Diseño Arquitectónico
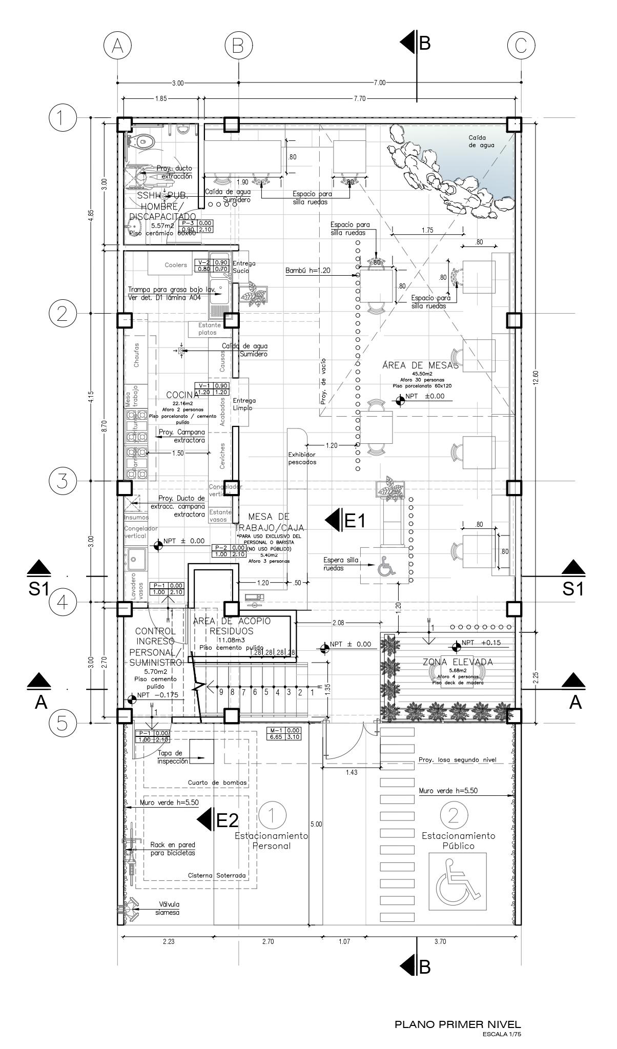
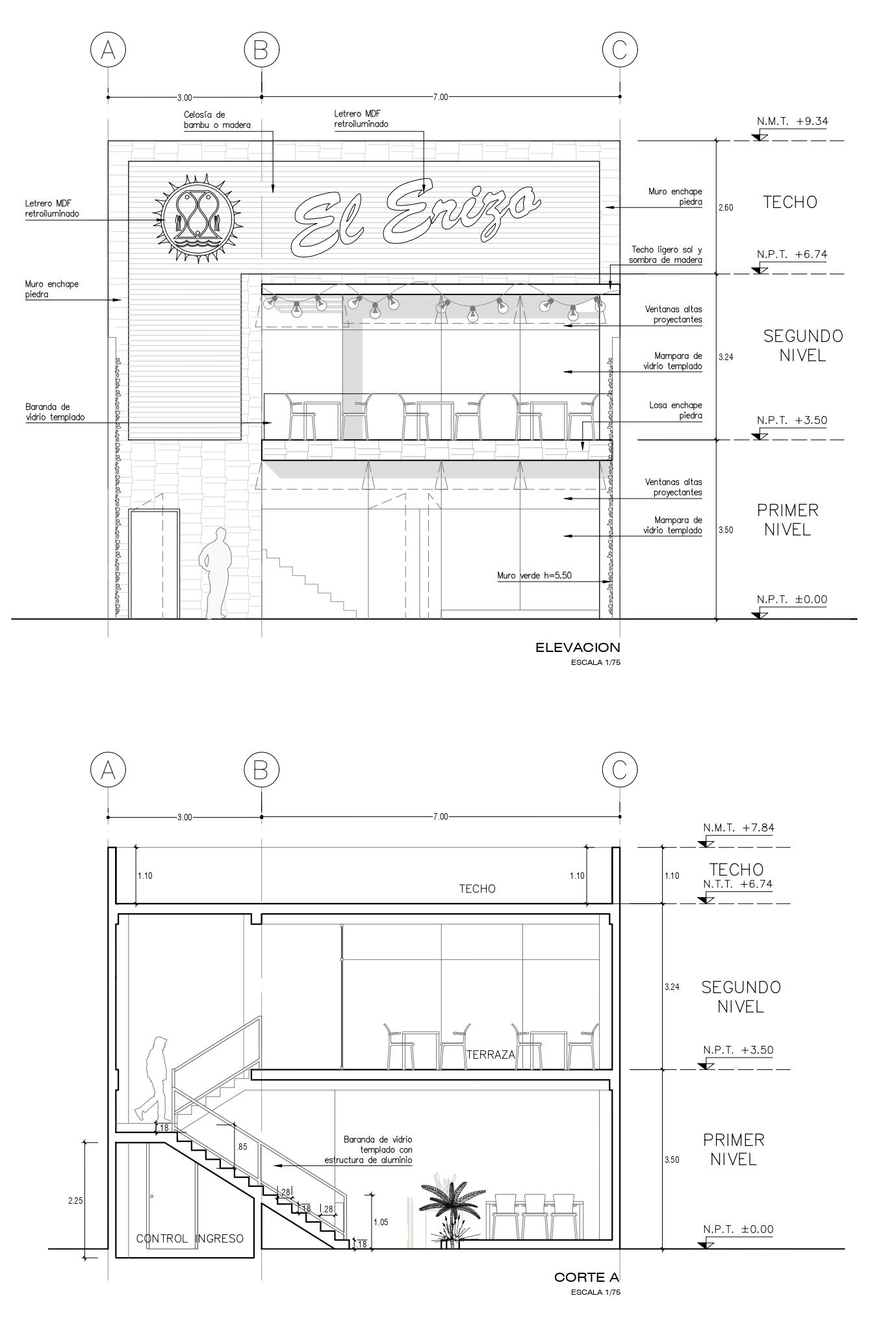
Diseño de restaurante de comida marina. El lenguaje arquitectónico busca limpieza en sus líneas y materiales teniendo como principales el uso de madera y bambú, vegetación como palmeras, lo cual evoca un paisaje costero acorde al uso del restaurante cevichería, así como también microcemento (para los muros cerrados) y vidrio, generando pequeños espacios interiores para los comensales.
Proyecto independiente. Programas utilizados: Autocad, Sketchup.
Ubicación: Lima, Perú
Año: 2023




Distribución Arquitectónica
Hospital ubicado en Jalapa, Nicaragua. El estudio de arquitectura tuvo a cargo el diseño arquitectónico del establecimiento de salud, en el que se buscó no sólo que fuera funcional sino que la calidad espacial contibuyera al bienestar del usuario.
Proyecto de estudio de arquitectura QPro. Programas utilizados: Autocad, Sketchup, 3D Max, Photoshop.
Ubicación: Jalapa, Nicaragua
Año: 2019



Diseño Arquitectónico
Establecimiento de salud especializado donde se realizarán actividades de prevención, diagnóstico y tratamiento del cáncer para niños y adolescentes con enfermedades oncológicas entre 0-15 años. Se ubica en Lima Este: San Juan de Lurigancho por tener la mayor cantidad de población infantil que padecen de cáncer. El proyecto busca el bienestar del paciente a través de su arquitectura y de la naturaleza y el color como terapia integral
Proyecto de tesis de grado. Programas utilizados: Autocad, Sketchup, Vray, Archicad, Photoshop.
Ubicación: Lima, Perú
Año: 2021



El proyecto se ubica en un terreno cuyo frente se cedió como área libre para que sirva de espacio conector entre el hospital y la ciudad. Así mismo sirve como un filtro para alejar el ruido y caos de la avenida del centro oncológico.
La distribución parte de un zócalo conformado por las unidades que tienen mayor recurrencia y afluencia de usuarios, donde se encuentran las áreas ambulatorias, de ayuda al diagnóstico y tratamiento.

Sobre el zócalo se ubican las barras de hospitalización, las cuales se han escalonado hacia la avenida con una mayor altura y en decrecimiento hacia la zona residencial para una mejor transición de alturas




Dirección de Obra
El proyecto consistió en la instalación de protectores de camillas, esquineros, cortinas y estores para el Hospital de Apoyo Yungay, ubicado en el departamento de Ancash, Perú. Se coordinaron y supervisaron los trabajos de instalación, en trabajo conjunto directamente con el staff encargado en campo, se elaboraron los documentos de seguimiento de obra, entregables de dossier de calidad y cierre comercial del proyecto
Ubicación: Yungay, Ancash, Perú
Año: 2024





Dirección de Obra
El proyecto consistió en la instalación de contrazocalos de aluminio, protectores de camillas y esquineros, para la clínica Aviva sede Colonial, ubicado en el departamento de Lima, Perú. Se coordinaron y supervisaron los trabajos de instalación, en trabajo conjunto directamente con la supervisión encargadoa en campo, se elaboraron los documentos de seguimiento de obra, entregables de dossier de calidad y cierre comercial del proyecto
Ubicación: Lima, Perú
Año: 2024





Arquitecta | Peruana
Arquitecta con colegiatura y habilitación vigente, con experiencia en la coordinación de proyectos de instalación e implementación de acabados.Especializada en arquitectura hospitalaria diseño y ejecución, así como en vivienda. Aprendizaje autónomo de diferentes softwares de diseño y modelado 3D, predominancia en habilidades organizativas de autogestión y cooperación en equipo, post producción de planimetría y renderizado de vistas arquitectónicas. Apasionada del diseño y la transformación del espacio.
2023 – Presente
Coordinadora de Proyectos
Jela Perú SAC
Gestión de implementación de acabados en proyectos de arquitectura, especialización en hospitales, contratos NEC, proyectos del Estado ARCC/ ANIN y sector privado
• Responsable de la planificación y programación del inicio y ejecución de obras, liderando al equipo in situ mediante una gestión constante y la toma de decisiones efectivas.
• Responsable de la supervisión y seguimiento de los proyectos en ejecución, garantizando el cumplimiento de los procesos establecidos y el cierre comercial exitoso del mismo
• Gestionar la documentación de especificaciones técnicas, elaborando y revisando valorizaciones de obra junto al cliente y subcontratistas, así como la elaboración y seguimiento de RFI
• Elaboración de detalles constructivos, expedientes técnicos de obra (ETO) y planos ‘as built’
• Elaboración de dossier de calidad, incluyendo liberaciones, PPI, protocolos, submittals, cartas de garantía, certificados de calidad, entre otros
• Control y seguimiento del avance diario de obra, elaboración de reportes de cumplimiento y desarrollo de procedimientos y planes de trabajo, informes técnicos de visita a obra y reporte de avance de obras.
• Verificación de los documentos relacionados con SSOMA (Seguridad, Salud Ocupacional y Medio Ambiente)
• Planificar reuniones y organizar la logística del proyecto
2021 – 2023
Arquitecta Independiente
Profesional Independiente
• Diseño arquitectónico de Proyectos residenciales y comercio
• Desarrollé modelos 3D y renderizado para presentación a clientes y por encargo
• Realicé visitas de supervisión ocasionales a los proyectos durante su construcción y/o remodelación.
• Dedicada a la edición y postproducción de imágenes y planos arquitectónicos en Photoshop
2020 – 2021
Ejecutiva de Cuentas Software BIM
Ingeniería Digital 3D – Graphisoft Perú
• Conocimiento y orientación sobre el software BIM Archicad
• Elaboración de cotizaciones y órdenes de compra
• Capacitación en el uso y manejo del software
• Trato directo con clientes y potenciales leads
• Uso de los softwares Salesforce y Hubspot
2016 - 2019
Arquitecta
QPRO Arquitectura
• Diseño y planeamiento de proyectos hospitalarios desde el anteproyecto hasta la compatibilización con las especialidades
• Elaboré detalles constructivos, señalética, cuadro de acabados.
• Edición y postproducción en Photoshop, paneles de proyectos
• Desarrollo de modelos 3D y renders
• Manejo de programas arquitectónicos y paquetes funcionales.
2015
Diseñador de Proyectos
Valdizán Arquitectos
• Desarrollo de planos arquitectónicos
• Diseño y modelado 3D
• Gestión de trámites municipales
• Levantamiento arquitectónico
2014
Practicante de Arquitectura
TVP
• Dibujo de planos
• Elaboración de modelos 3D
• Diseño de proyectos
2013
Modeladora 3D
CC Design
Encargada de la elaboración de modelos 3D de mobiliario y retail para su diseño y construcción
Google Career Certificates
2022
Título Profesional en Arquitectura Universidad Peruana de Ciencias Aplicadas (UPC)
Bachiller en Arquitectura
Autogestión
Organización
Autonomía
Liderazgo
Trabajo en equipo
Cooperación Motivación
Compromiso Empatía
Diplomática
Comunicación oral y Escrita

