DESIGNER

ARCH7420ADVANCEDARCHITECTURALDESIGNII
COLLABORATIVEPROJECT:UNIVERSITYADAPTIVERE-USE
GRADUATEYEARTWO
PROFESSORASHLEYBINGHAM&BETHBLOSTEIN
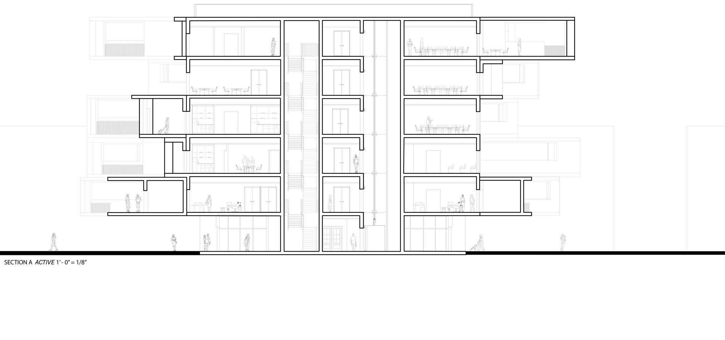
ThenewadditiontoRamseyerHallthoughtfullyrespects theexistingstructurewhileintroducingadynamicand functionalexpansionthatcreatesaninvitingentrywayto campus Mostinteriorwallswereremovedtoopenupthe interiorspace,preservingover90%oftheoriginalexterior wallstohonorthebuilding’shistoricalcharacter.The designthenextendsupwardwithanew,double-height floorperchedatoptheexistingstructure,seamlessly integratingtheoldandnew.Throughstrategic compressionandtensioningoftheabstractform,the projectachievesabold,radicalaestheticthatredefinesthe campus’sarchitecturallanguage.Theinnovativecurved designnotonlyenhancesthebuilding’svisualpresence butalsoimprovesvisibilityandaccessibilityfromboth universitygroundsandcitystreets,creatingalandmark thatbridgestraditionandmodernity


RamseyerHall,anexampleofBeaux-Artsarchitecture wasconstructedin1932asan innovativeeducationalfacilityforstudentsfromkindergartenthrough12thgrade operated byOhioStateUniversitysCollegeofEducation

Reimagined addition

Atransformativeprojectforthe CollegeofEducationandHuman Ecology focusingontheCenter forPhysicalWellnessatRamseyer Hall.Thisproposalexplores adaptivereuseinarchitecture, blendinginnovativedesignwith historicalintegrity








The positioning of Ramseyer Hall serves a unique and strategic role at the intersection of the academic and urban environments of Columbus. On the north, west, and south sides of the site, the surrounding area is strictly academic, characterized by traditional college buildings dedicated to educational purposes. In contrast, the east side opens up to the city and the busy high street. This naturally creates a vibrant interface between the campus and the broader community. This juxtaposition showcases the potential for the new addition to serve not only the student body but also the city student residents, fostering engagement and collaboration between these two distinct yet interconnected realms.
The facade acts as an active element for the addition, featuring a double-skin design with a diaphanous quality, complemented by winter gardens and shading devices that promote sustainability and adaptability. The outer layer, a custom steel mesh veil, creates a dynamic, shifting appearance with reflections, shadows, and light. Inside, the second skin provides thermal insulation, natural light filtration, and energy efficiency, reducing solar heat gain and supporting temperature control in areas like kitchens, gyms, lecture halls, and labs. This design blurs indoor and outdoor boundaries while enhancing aesthetic and environmental performance.




OccupancyGroups:
303.1AssemblyGroup
304.1BusinessGroupB
TravelDistance:
GroupAandBoccupanciesinbuildingsshallhaveamaximumexitaccesstravel distanceof250feetwithasprinklersystem.



URBAN FILTER
ARCH7410ADVANCEDARCHITECTURALDESIGNI
COLLABORATIVEPROJECT:UNIVERSITYHOUSING
GRADUATEYEARTWO
PROFESSORERIKHERMANN&KARENLEWIS

UrbanFilterisdesignedspecificallyfor studentswithphysicalorlearningdisabilities whorequireadditionallivingspaceand flexibilityintheiraccommodations.This innovativeuniversityhousingnotonly providesforstudentswithdisabilitiesbutalso theirservicedogs Thefacilityincludes variouscommunalspacessuchassocial areas,kitchens,studyrooms,physical therapyzones,studentservices,and designatedplayandbathingareasfordogs, ensuringthatallneedsaremet.



Thisinitiativeseekstotransformtraditionaldormitoryspacesbycreatingmoreopenunits.Bydoingso,residentsgainadditional spaceforessentialitemssuchasmedicaldevices,learningtools,andsuppliesforservicedogs,empoweringyoungadultswith disabilitiestoleadmoreindependentlives.Theincreasedairflowresultingfromthisdesignpromotesbothmentalandphysicalwellbeing,whilealsobenefitingthehealthofserviceanimalsthroughimprovedventilation Additionally,modifyingthebuilding’sexterior allowsforabalancebetweenopennessandprivacy,protectingoccupantsfromenvironmentalelements.



Theclienttypeforegroundedthewayweadaptedtheenvironmentsandtheirexperience.UrbanFilterexemplifiesatransformative approachtostudenthousingbyprioritizinginclusivityandcommunity.Thedesignnotonlymeetsthediverseneedsofstudentswith disabilitiesbutalsopromotesthevaluableroleofservicedogsintheirlives




Theelevatedsouthbuildingcreatesmoreoutdoorspaceforstudents andtheirdogswhilebenefitingthecommunity.Itfeaturesacafeteriaon thewestsidethatconnectstothecampus,providinganotherdining option.Ground-levelcommunalspacesincludekitchensforcooking withfriends,meetingareasfortherapistsandservices,andfacilitiesfor servicedogs.



Thedesignoftheofficespaceisguidedbythe principleofadaptability,wherethearchitecture respondsandcaterstotheprogrammaticneeds andenvironmentalconditionsthroughorthogonal movement.Byincorporatingacombinationof collaborativeandindividualworkspaces,thedesign allowsforadynamicandflexibleinteriorthatcanbe reconfiguredtomeetthechangingneedsofthe occupants Theprojectstartsbyanalyzingand defininghumanscaleandsmallgroups.Thereare40 unitsintotalattachedtothestructure.







Thestructureislocatedonthewestsideofcampus surroundedbyotherproposedinstitutionbuildingsforthe university.Thefirstfloorprovidesan exhibitspaceandaccesstoabusstoponsite.
Theunitsarebeingdisplayedinstaticmodealignedwiththeir8 designatedopenings.
Theunitsareplacedineventmodereflectedonbothsidesof thestructureaccessibletothetedtalkspacesandmicro kitchen.

Theunitsplacedinarandomassortmentwhichwouldbethe typicalcaseeachday.

Theunitsplacedonthesouthsideforwinterdaylighting conditions.

Theunitsplacedonthenorthforsummerdaylightingconditions.


Thestaticsectiondemonstratesthestructureinitsfixed statewhichuserswouldexpecttoseewhenarrivingat theofficeandschoolinthemorningbeforetheunitsare putintouse.

Thestaticsectionadaptstothespecificneedsand environmentalconditionsofaworkplacethroughoutthe dayandseasons,whichincludesfactorssuchas naturallight,airquality,andtemperaturecontrol.








































