portfolio
ELINA MICAH MUSA
SELECTED WORKS ARCHITECTURAL DESIGNER
![]()
ELINA MICAH MUSA
SELECTED WORKS ARCHITECTURAL DESIGNER







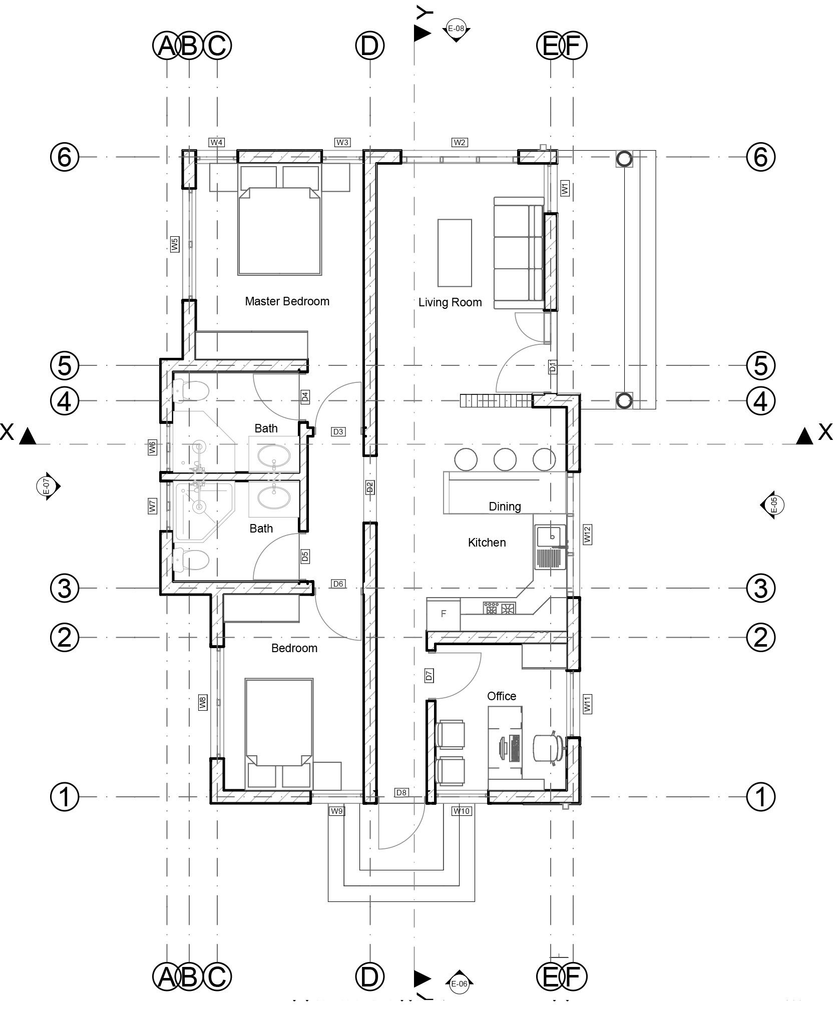
Typology: Residential building
Location: Dodoma, Tanzania
Year: 2021
Company: Flint & Best Ltd
Architect: Mr Adrian John



This African-inspired house embodies the essence of traditional African architecture while incorporating modern design elements, creating a blend of cultural heritage and contemporary living. The circular shape of the house draws direct inspiration from the iconic African huts, evoking a sense of community and rootedness in its form. The exterior is clad in clay bricks, capturing the warm, earthy tones of red-brown and off-white, reminiscent of the natural materials used in traditional construction. These earthy hues enhance the organic connection between the house and its surrounding environment.
The entrance is designed to be welcoming, with stone cladding on the facade that adds texture and a sense of grounding, symbolizing stability and connection to the land. The roof, covered with grey tiles, recalls the materials often used in African hut construction, providing both function and a subtle nod to tradition. Adding to the cultural richness, terracotta vases are creatively integrated into the balustrade design, their earthy tones reinforcing the natural, grounded aesthetic of the home.
The window elements, framed in black, offer a modern contrast while tying the design together with subtle sophistication. Shades of grey-green are used sparingly to accentuate parts of the building, adding a natural yet modern touch to the overall palette. This combination of shapes, materials, and colors not only reflects African architectural traditions but also elevates them into a contemporary, livable space that celebrates heritage.






























The interior of the house complements its African-inspired exterior by creating a warm and inviting ambiance, blending natural elements with modern touches. Hardwood doors introduce a rich, organic feel, harmonizing with the overall earthy aesthetic. The floors are laid with cream-colored tiles, which brighten the space and provide a neutral base for the interior design. In the bathrooms, grey tiles are used to add a cool, modern contrast, balancing the warmth of the other elements and contributing to the clean, contemporary feel.
Interior plant decorations are thoughtfully placed throughout the space, bringing nature indoors and enhancing the connection to the natural environment, which is a key element in traditional African homes. Above the dining area, rustic pendant lights add a cozy, textured warmth, evoking the handcrafted elements often found in African design.
The color palette ties the interior together with soothing cream tones, soft sky blue accents that provide a calming and refreshing atmosphere, and pops of orange, bringing energy and vibrancy to key areas of the home. This thoughtful combination of materials and colors creates an inviting, modern space that honors African design traditions while offering a fresh, contemporary living experience.

Typology: Educational building
Location: Dar es Salaam, Tanzania
Year: 2023
Company: Flint & Best Ltd
Architect: Mr. Tirio Manga
The assignment involved designing a student changing room tailored for primary school students, with a focus on stimulating their imagination while also serving as a functional space for learning and creativity. The facade concept creatively integrates vibrant colors with a playful twist inspired by the classic game Tetris, encouraging a sense of fun and engagement. This dynamic facade not only captivates the children’s attention but also enhances the overall aesthetic appeal of the building.
The design includes a middle courtyard and an upper floor designated as relaxation areas for both students and teachers. These spaces provide opportunities for informal gatherings and quiet reflection, promoting a sense of community within the school environment.
Additionally, the design thoughtfully considers the site’s environmental conditions. The existing vegetation is preserved and seamlessly incorporated into the overall layout, fostering a connection between the building and its natural surroundings while promoting sustainability.
Throughout the design process, the concept underwent multiple iterations, refining aspects of space, architecture, and aesthetics. The use of steel, wood, and concrete was deliberate, allowing for the creation of playful shapes that echo the school’s existing architecture. This combination of materials not only contributes to the building’s structural integrity but also aligns with the school’s identity, creating a cohesive and inspiring environment for young learners.









Typology: Residential building
Location: Kigamboni, Tanzania
Year: 2023
The symmetrical house design exudes a modern classical theme, elegantly blending traditional aesthetics with contemporary materials. The facade showcases a harmonious combination of white stone, which provides a timeless and refined appearance, while grey square blocks add texture and depth, enhancing the exterior’s visual interest. The use of wooden elements framing the bottom and top spaces of the windows introduces a warm, organic touch that contrasts beautifully with the coolness of the stone and grey blocks.
A standout feature of the design is the pergola that extends from the house, creating an inviting outdoor space for relaxation and gatherings. Constructed from a combination of wood and steel, the pergola offers a modern edge while maintaining the classical feel of the overall structure.
The symmetrical layout emphasizes balance and proportion, characteristic of classical architecture, while the modern materials and design elements ensure that the house remains relevant and functional for contemporary living.






Typology: Residential building
Location: Dar es Salaam, Tanzania
Year: 2022
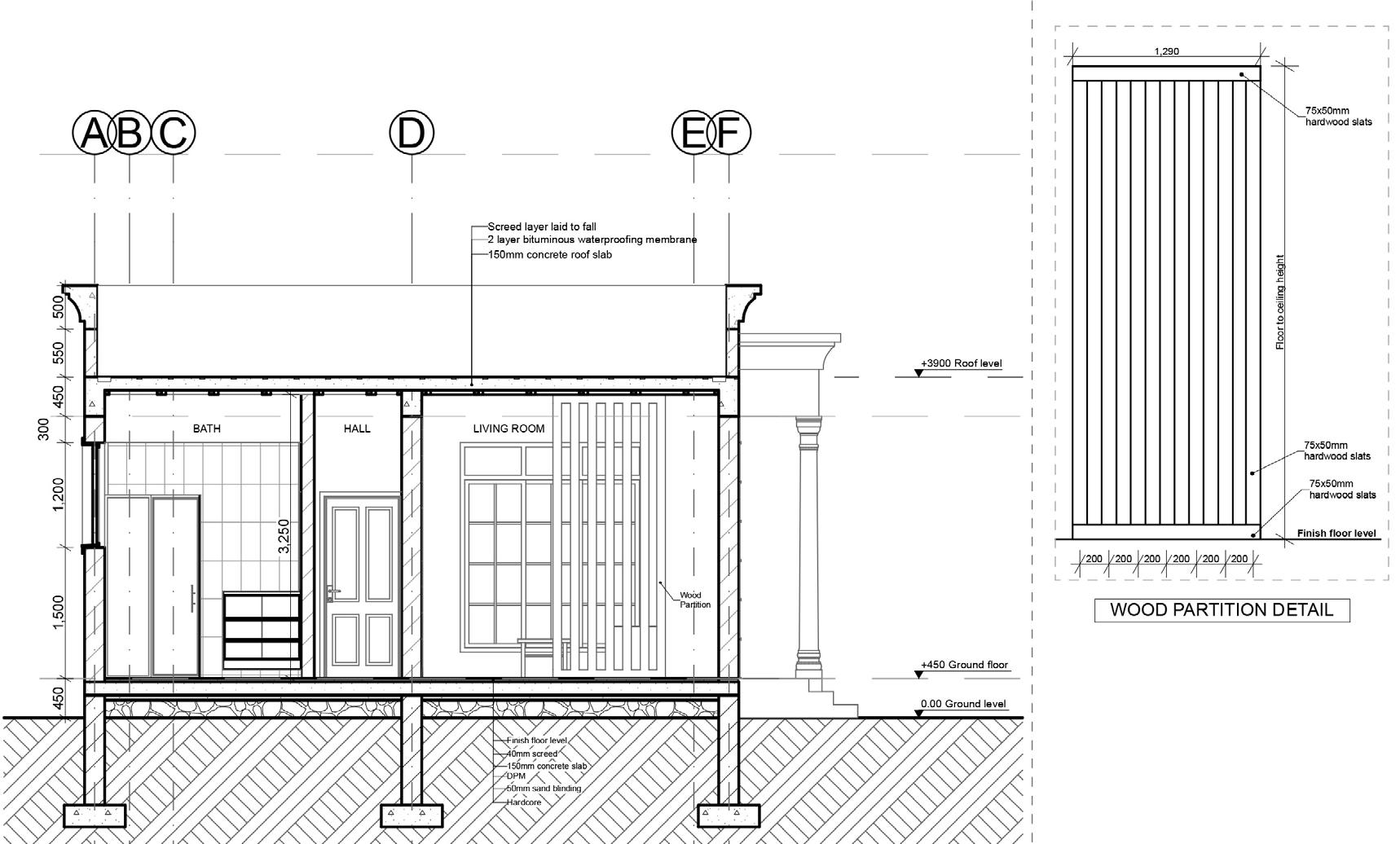
The architectural design combines classical and modern elements to create a balanced and sophisticated aesthetic. Central to the design are the round, tapered columns that evoke a sense of grandeur while offering a refined, streamlined appearance. The building’s facade features plaster siding, providing a smooth, elegant surface that complements the minimalist color palette of grey, cream, and black. A parapet wall is crowned with intricate crow molding, adding a decorative touch that enhances the structure’s classical inspiration. The surrounding landscape is carefully designed with stepping stones, guiding visitors through the outdoor space while seamlessly integrating with the overall architectural composition. The cohesive use of neutral tones and elegant detailing creates a timeless yet modern ambiance.



The interior design creates a harmonious blend of warmth and modernity through the use of carefully selected materials and colors. Hardwood doors provide a rich, natural touch that contrasts elegantly with the cream-colored floor tiles, establishing a light and open feel throughout the living spaces. In the bathrooms, grey floor tiles bring a cool, contemporary vibe, while the kitchen showcases a striking marble countertop paired with bold orange-yellow cabinets, adding a lively and energetic focal point. Floor lamps contribute soft, ambient lighting in relaxation areas, while pendant lighting above the dining space creates a stylish and intimate atmosphere. Mirrors are thoughtfully placed in the entrance area, enhancing the sense of space and offering a welcoming touch. The interior color palette ties everything together, with shades of grey, cream, orange-yellow, and blue used strategically to create a balanced, inviting, and visually stimulating environment.







Typology: Commercial Residential building
Location: Dar es Salaam, Tanzania
Year: 2022

The apartment building complex features a sleek, modern design characterized by its box-like form and flat roof, presenting a minimalist yet bold architectural aesthetic. The two-story structure contains a total of four rooms, offering compact and efficient living spaces within a contemporary framework. The exterior color palette enhances its modern appeal, with dark blue serving as the primary color, lending a striking and sophisticated look to the facade. Off-white is used as a contrasting neutral tone, providing balance and visual harmony, while the use of wood material as an accent wall finish adds warmth and texture to the otherwise streamlined design. Orange-brown concrete window shades not only serve a functional purpose by offering sun protection but also contribute to the building’s unique identity by introducing an earthy, vibrant touch to the exterior. This combination of materials and colors results in a stylish, modern complex that stands out while blending with its surroundings.





Typology: Health institution
Location: Dar es Salaam, Tanzania
Year: 2021
Company: Flint & Best Ltd
Architect: Mr Adrian John

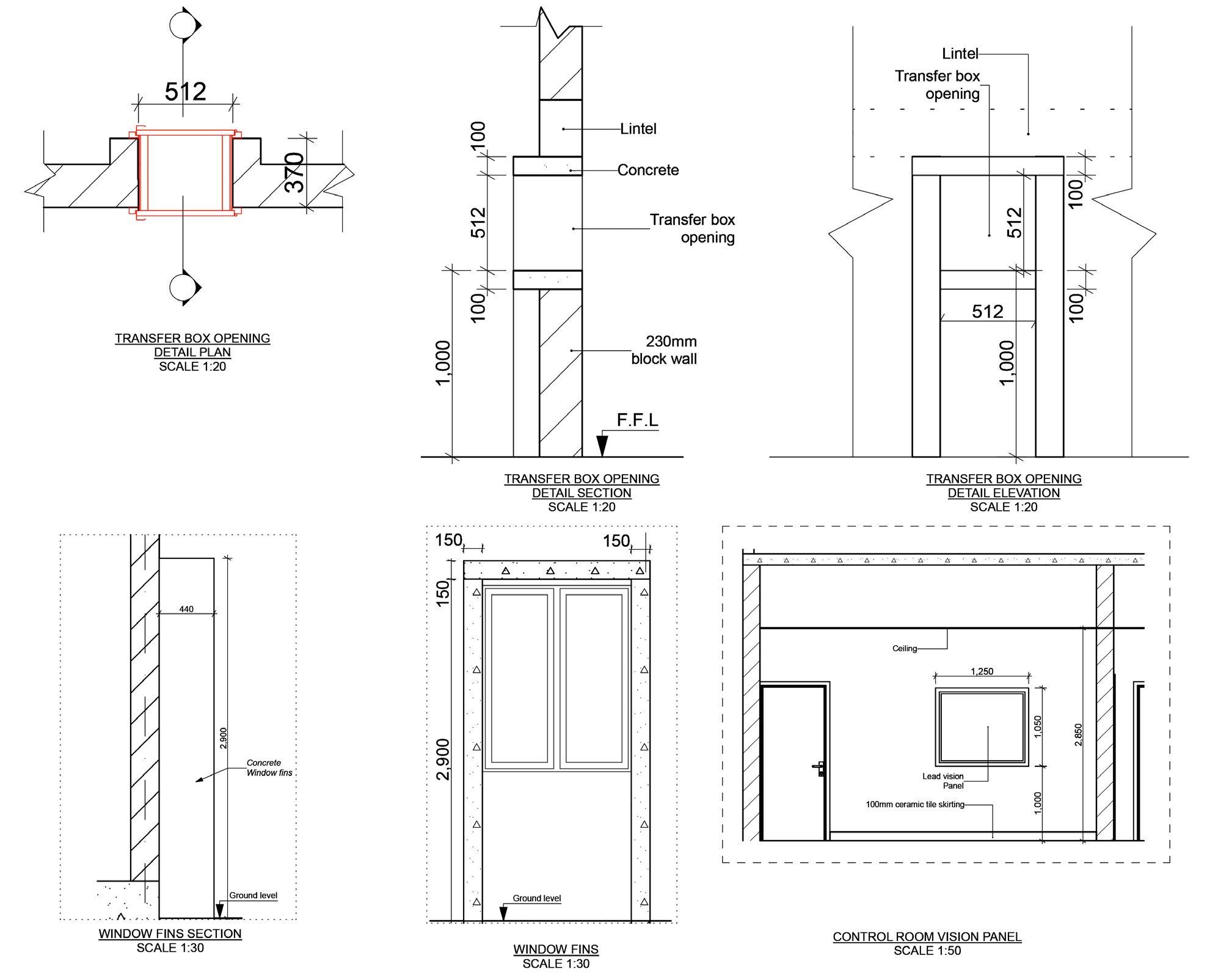
The project involved developing detailed construction drawings for a proposed PET-CT scan building within the Ocean Road Cancer Institute. The design required meticulous attention to the specifics of the PET scan room, ensuring sensitivity to radiation shielding, the integration of specialized medical equipment, and compliance with hospital safety standards. Key considerations included determining room dimensions, openings, and materials.
Materials were carefully chosen to suit a healthcare environment while adhering to strict budgetary constraints. Safety remained a top priority throughout the design process, ensuring that the building met all necessary standards for radiation protection and hospital operations.





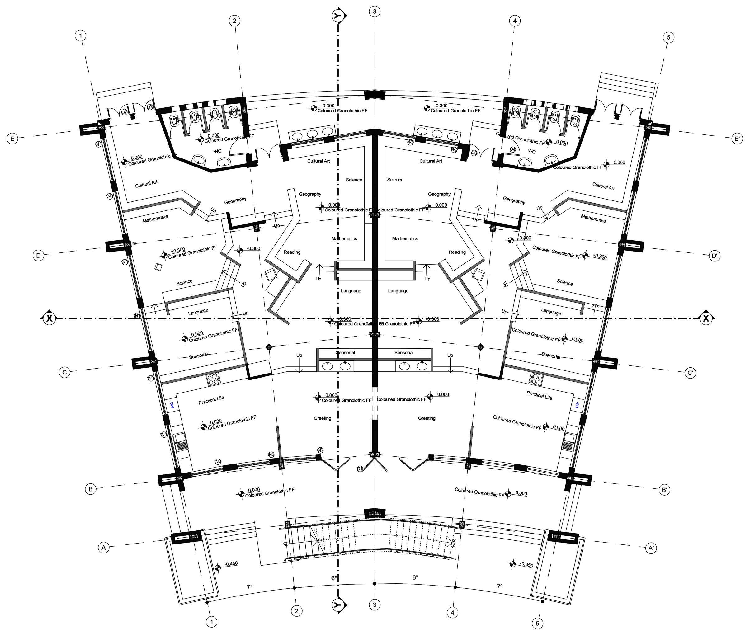
Typology: Education institution
Location: Tanga, Tanzania
Year: 2021
Company: Flint & Best Ltd
Architect: Mr Adrian John & Tirio Manga
This project focused on designing a Montessori learning environment that nurtures independent exploration and development for young children. The layout was organized into distinct zones aligned with key subject areas, allowing for a structured yet flexible educational experience.
Playfulness and creativity were central to the design approach—bright colors, varied textures, and different floor levels were incorporated throughout to support both mental and physical development. The use of color and form was intentional, guiding children through spaces while stimulating curiosity and engagement. The result is a practical, child-centered environment that fosters learning through movement, interaction, and imagination.












