Skip to main content

Hayran Porfolio 2014-2025

Page 1


selected works 20132025

DIin Elif Hayran

BIM-basierte Ausführungsplanung (Revit & Archicad)

Wohnbau (Neubau & Umbau)

Detail- und Werkplanung

Barrierefreies Bauen

Kontakt

a: 1040 Wien, Österreich m: + 436801125225 @: elifhayran@gmail.com in: https://www.linkedin.com/in/ elifhayran

Über mich

Dipl.-Ing.in Architektin mit Schwerpunkt auf BIM-basierter Ausführungsplanung, Wohnbau und Bauen im Bestand. Mehrjährige Erfahrung in Einreich-, Ausführungsund Detailplanung sowie in der Mitarbeit an internationalen Projekten. Fundierte Kenntnisse in Revit und Archicad sowie im Wiener Baurecht, OIB-Richtlinien und ÖNORMEN.

Berufserfahrungen

Architektin – Ausführungs- & Detailplanung bei CA Pichler ZT GmbH Wien, Österreich

April 2025 - January 2026

Erstellung und Bearbeitung digitaler Planungsmodelle (Archicad & Revit)

Mitarbeit in der Ausführungs- und Detailplanung

Mitarbeit am Wohnbauprojekt Ichagasse (102 WE, Wien)

Mitarbeit am Besucherinformationszentrum (BIZ) Deutscher Bundestag

Mitarbeit am Kunsthistorisches Museum - Temporäres Foyer

Anwendung von BIM in unterschiedlichen Projektphasen

https://www.capp.at

Architektin – Entwurf- & Ausführungsplanung bei pool Architektur Wien, Österreich

Februar 2024 - Dezember 2024

Mitarbeit in der Ausführungs- und Detailplanung

Anwendung von Revit, BIM und Dalux

Mitarbeit am Projekt „Eichhof West – Baufeld D“, Kriens (CH)

http://pool-arch.at/de/

Planerin bei opu Architekten Wien, Österreich

Dezember 2019 - März 2022

Planung von Wohnungsumbauten und Dachausbauten

Mitarbeit am Wohnbauprojekt „QS - Quartier Starhemberg“ (70 WE, Bestand & Neubau)

Beteiligung am Entwurf der Berg- und Talstation in Obertauern

https://www.opu-architekten.com

CAD-Technikerin bei Bacon Gebäudetecnik Wien, Österreich

Oktober 2018 - April 2019

https://www.bacon.at

Sprachkentnisse

Türkisch - C2

Deutsch - C1

Englisch- C1

Software

Adobe cc

Archicad

Autocad

Revit

Rhino

Sketch-up

Microsoft/Apple Office

Soft Skills

Analytisches Denken

Teamarbeit & klare Kommunikation

Hohe Detailgenauigkeit & Verantwortungsbewusstsein

Interkulturelle Zusammenarbeit

Planerin bei Artuner Constructions

Wien, Österreich

Januar 2017 - Oktober 2018

BIM Planerin bei Senta International B.V

Oss, Niederlanden

Mai 2017 - Oktober 2017

Ausführungsplanung und Modellierung von Natursteinelementen mit Revit

Mitarbeit am Projekt „Hourglass“ (NL) in Zusammenarbeit mit internationalen Planungsteams

Vertiefung von BIM-Prozessen und Kenntnissen in der Natursteinverarbeitung

http://www.senta.net

Paktikantin bei Reimar Herbst Architekten BDA

Berlin, Deutschland

Juni 2015 - Oktober 2015

Mitarbeit in der Ausführungs- und Detailplanung Erstellung und Bearbeitung von Planunterlagen mit Archicad Mitarbeit über mehrere Planungsphasen bis zur Fertigstellung (2022)

http://www.reimarherbstarchitekten.de

Ausbildung

Afyonkarahisar, Türkei Hauptschule (2007 - 2003)

Istanbul, Türkei Yeditepe University (2010 - 2008) Bachelorstudium - Architektur

Wien, Österreich Technische Universität Wien (2023 - 2011)

Deutsch Sprachkurs an der Uni. (2012 - 2011) Bachelorstudium Architektur (2021 - 2012) Masterstudium Architektur (2023 - 2021)

Eichhof West Bauteil D [DE]

KHM - Remastering Kunsthistorisches Museum [DE]

von CAPP u. Chaix & Morel

Ausführungarchitektin

April 2025Dezember 2025

1 - 2

IGA - Wohnbau Ichagasse [DE]

von CAPP u. Chaix & Morel

Ausführungarchitektin

April 2025Dezember 2025 3 - 6

Kempelen [DE]

von pool Architektur

Entwurfsarchitektin

Februar 2024Dezember 2024 11 - 14

Quartier Starhemberg [DE]

von opu Architekten

Planerin

Dezember 2019März 2022 15 - 18

Kopernikus - Oberschule [DE]

von HerbstKunkler Architekten

Praktikantin

Juni 2015- Oktober 2015 19 - 22

REMASTERING KUNSTHISTORISCHES MUSEUM

Beteiligung am Projekt: Entwurfsarchitektin April 2025 - Dezember 2025

Ein umfassendes Sanierungs- und Erschließungsprojekt des Museums in Wien mit einer BGF von 6.249 m²

KUNSTHISTORISCHES

Standort: Wien, Österreich

Architekten: CA Pichler ZT GmbH in Zusammenarbeit mit chaixetmorel. et associés (Generalplaner)

Fläche: ca. 6.249 m² Bruttogeschossfläche (Planungsprojekt)

Zeitraum: Wettbewerb 2024 (1. Platz), Planung laufend, Baubeginn geplant ab 2027 (fertig 2028)

Wettbewerb: 1. Preis (2024)

Projektbeschreibung:

Das Projekt Remastering Kunsthistorisches Museum in Wien umfasst die behutsame Neugestaltung und Erschließung des historischen Neorenaissancebaus des Kunsthistorischen Museums für den Museumsbetrieb des 21. Jahrhunderts. Ziel ist es, die Zugänglichkeit für alle Besucher*innen zu verbessern und barrierefreie Besucherwege zu schaffen, einschließlich eines neuen Eingangsbereichs vom Maria-TheresienPlatz, moderner Gästeinfrastruktur sowie optimierter interner Erschließung unter Wahrung der denkmalgeschützten Bausubstanz.

Beteiligung am Projekt:

Im Projekt wurden der Entwurf sowie die Ausführungsplanung eines temporären Eingangsfoyers in Leichtbauweise bearbeitet, das ausschließlich für die Dauer der Bauphase vorgesehen ist.

Darüber hinaus wurde die Ausführungsplanung des zukünftigen Eingangsbereichs übernommen und die planerische Umsetzung unter Berücksichtigung funktionaler Anforderungen sowie der denkmalgeschützten Bestandssituation koordiniert.

Beteiligung am Projekt: Ausführungarchitektin April 2025 - Januar 2026

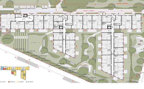
Ichagasse, Wohnbauprojekt ca. 6.900 m² GmbH in Zusammenarbeit & Morel.

Wohnbau

Standort: Wien 21 (Floridsdorf), Österreich

Architekten: CA Pichler ZT GmbH mit Chaix & Morel, Paris

Fläche: ca. 6.900 m² Bruttogeschossfläche (Wohnbau)

Zeitraum: in Bau / laufende Planung (Status: in Bau)

Projektbeschreibung:

Der Wohnbau IGA Ichagasse ist eine neue Wohnhausanlage im 21. Bezirk von Wien, der die großvolumigen Gemeindebauten mit den kleineren Villen der Umgebung verbindet. Die Wohnbauten sind in eine abwechslungsreiche Park- und Gartenlandschaft eingebettet und schaffen so eine durchgrünte Wohnumgebung mit hohem Bezug zum Außenraum.

Großzügige Balkone und Terrassen erweitern die Wohnungen in den Freiraum, während raumhohe Fenster einen direkten Blick auf das umliegende Grün ermöglichen. Begrünte Fassaden, extensive Dachbegrünungen und Maßnahmen zur Reduktion des CO2Fußabdrucks durch regenerative Energien und gezielte Materialwahl sind zentrale Bestandteile des nachhaltigen Wohnprojekts.

Beteiligung am Projekt: Als Ausführungsarchitektin, April 2025 und Januar

Die Aufgaben umfassten anderem:

• Detaillierte Ausschreibungsplanung: Erstellung zahlreicher Detailzeichnungen, Konstruktionsdetails Schnittdarstellungen für die Ausschreibung.

• Anpassungen und Bearbeitung von Planänderungen infolge baulicher, technischer behördlicher Anforderungen.

• Sicherstellung der architektonischen Qualität: Überprüfung der gestalterischen Umsetzung insbesondere Bezug auf Fassadenbegrünung, Freiraumbezüge und Wohnungsgrundrisse.

• 3D-Modellierung und in Archicad.

Projekt: Ausführungsarchitektin, zwischen Januar 2026.

umfassten unter

Ausschreibungsplanung: zahlreicher Konstruktionsdetails und Schnittdarstellungen als Grundlage Ausschreibung.

Optimierungen:

Planänderungen technischer oder Anforderungen.

der Qualität: gestalterischen insbesondere in Fassadenbegrünung, und Wohnungsgrundrisse. und Planerstellung

oben u. unten, Wohnbau Ichagasse © CAPP u. Chaix & Morel: https://www.capp.at/project/iga

EICHHOF WEST // BAUTEIL D

Beteiligung am Projekt: Ausführungarchitektin

Februar 2024 - Dezember 2024

Eichhof West in, Luzern - Schweiz, ein

Wohngebäude mit einer Geschossfläche von 11.000 m²von pool Architekten

Eichhof West
Eichhof West © pool Architektur,

Standort: Kriens, Luzern, Schweiz

Architekten: Gigon Guyer, Stücheli Architekten, pool Architektur

Fläche: 30.000 m² (Gesamtareal), 58.500 m² BGF

Zeitraum: Wettbewerb 2010, Bebauungsplan 2019 rechtskräftig, Bau 2022–2025

Wettbewerb: 1. Preis (2010)

Projektbeschreibung:

Das Quartier Eichhof West in Kriens ist eine urbane Entwicklung auf einem ehemaligen Brauereigelände. Der zentrale autofreie Platz verbindet verschiedene Wohn- und Gewerbebereiche und dient als sozialer

Treffpunkt. Vier Gebäudeensembles gruppieren sich um diesen Platz, darunter Baufeld D.

Baufeld D:

Ein 80 m langer Wohnriegel mit Gemeinschaftsterrasse, Studios im Erdgeschoss und nach Süden orientierten Wohnungen. SplitLevel-Wohnungen mit überhohen Wohnräumen bieten eine besondere architektonische Qualität.

Das zehnstöckige Haus Querbeet ist parallel zum Sonnenberghang platziert. Besonders bemerkenswert ist die innovative Aufteilung der Wohnungen mit Größen von 2½ bis 5½ Zimmern. Einige dieser Wohnungen sind als Split-Level organisiert, wodurch unterschiedliche Ebenen innerhalb der Wohnung entstehen, die durch kurze Treppen verbunden sind. Dies schafft spannende Raumkonzepte mit überhohen Wohnbereichen.

Weitere Informationen:

http://pool-arch.at/de/projekte/eichhof-d

Beteiligung an dem Projekt: als Ausführungsarchitektin am Projekt zwischen Februar 2024 und Dezember 2024.

Die Aufgaben umfassten unter anderem:

•Detaillierte Ausführungsplanung: Erstellung und Koordination technischer Pläne für den Bau, einschließlich Konstruktionsdetails, Materialauswahl und Schnittzeichnungen.

•Abstimmung mit Fachplanern: Zusammenarbeit mit Tragwerksplanern, Haustechnikern und anderen Fachdisziplinen, um eine reibungslose Integration aller Gewerke sicherzustellen. •Anpassungen und Optimierungen: Bearbeitung von Planänderungen, die sich aus baulichen oder behördlichen Anforderungen ergaben.

•Sicherstellung der architektonischen Qualität: Überwachung der gestalterischen Umsetzung der Planung, insbesondere bei den Split-LevelWohnungen, den überhohen Wohnräumen und der Sichtbetonkonstruktion der Freibereiche.

•3D-Modellierung in Revit

Links unf Rechts, Eichhof West © pool Architektur, https://eichhofwest.ch/projekt/

KEMPELEN

Beteiligung an dem Projekt: Entwurfsarchitektin Februar 2024 - Dezember 2024

Eichhof West © pool Architektur, http://pool-arch.at/de/projekte/kempelen

Kempelenpark Wohngebäude

Adresse: Am Kempelenpark A4, 1100 Wien

Architekten: [noch anzugeben]

Fläche: ca. 16.000 m² BGF

Wettbewerb: 1. Platz im Realisierungswettbewerb

Projektbeschreibung:

Das Wohngebäude mit hybrider Nutzung fügt sich harmonisch in die städtebauliche Umgebung ein und fördert die zukünftige Entwicklung des Areals. Ein offener Innenhof und begrünte Außenflächen schaffen ein angenehmes Wohnklima. Die Sockelzone mit Café, Veranstaltungsbereich und Gemeinschaftsräumen verbindet die unterschiedlichen Zugangsebenen und fördert die Interaktion der Bewohner.

Wohnungen & Nutzung:

Ab dem 2. Obergeschoss verteilen sich Wohneinheiten in einer klar strukturierten

Anordnung. Kleine Apartments sind funktional gegliedert, während größere Wohnungen an den Ecken für optimale Belichtung sorgen. Eine Gemeinschaftsterrasse im 8. OG bietet Ausblick über die Stadt. In den obersten Geschossen ergänzen Büroflächen und Seminarräume das Nutzungskonzept.

Konstruktion:

Das Tragwerk besteht aus einem Skelettbau mit Stahlbetondecken und vorgefertigten Stützen. Die Bauweise kombiniert ökologische und wirtschaftliche Aspekte und ermöglicht flexible Umnutzungen.

Weitere Informationen:

http://pool-arch.at/de/projekte/kempelen

Eichhof West © pool Architektur, http://pool-arch.at/de/projekte/kempelen

Beteiligung als Entwurfsarchitektin zwischen Februar 2024 maßgebliche Aufgaben Konzeptionsphase.

•Architektonische Konzeptentwicklung: Entwicklung und Verfeinerung unter Berücksichtigung funktionaler und gestalterischer Anforderungen.

•Grundriss- und Fassadengestaltung: Erstellung von räumlichen gestalterischen Lösungen Wohnqualität, Lichtführung

•Städtebauliche Integration: eines Baukörpers, der sich in die Umgebung einfügt Entwicklungen berücksichtigt.

•Abstimmung mit Fachplanern: Zusammenarbeit mit Tragwerksplanern, Haustechnikern und weiteren zur Sicherstellung der Machbarkeit.

•Visualisierung und Präsentation: Aufbereitung des Entwurfs Wettbewerbspräsentationen, Plandarstellungen und Entscheidungsgremien.

•3D-Modellierung in Revit

Entwurfsarchitektin am Projekt 2024 und Dezember 2024, in der Entwurfs- und

Konzeptentwicklung: Verfeinerung des Entwurfs Berücksichtigung städtebaulicher, gestalterischer

Fassadengestaltung: räumlichen und Lösungen mit Fokus auf Lichtführung und Materialität.

Integration: Entwurf sich harmonisch einfügt und zukünftige berücksichtigt.

Fachplanern: Tragwerksplanern, weiteren Fachdisziplinen technischen

Präsentation: Entwurfs für Wettbewerbspräsentationen,

Revit

Regelgeschoss 3. - 8. OG

Eichhof West © pool Architektur, http://pool-arch.at/de/projekte/kempelen

Quartier Starhemberg

QUARTIER STARHEMBERG

Beteiligung am Projekt: Planerin

Dezember 2019 - März 2022

Standort: Wien, Österreich

Architekten: opu architekten

Fläche: ca. 7.500 m² Grundstücksfläche

Zeitraum: ab 2018 -

Projektbeschreibung:

Das Quartier Starhemberg ist ein Wohnprojekt im 4. Wiener Gemeindebezirk Wieden, gelegen zwischen der Favoritenstraße und der Graf-Starhemberg-Gasse. Es umfasst fünf Baukörper, darunter vier revitalisierte Gründerzeithäuser sowie eine ehemalige Hutfabrik. Im Zentrum des Quartiers befindet sich ein ca. 800 m² großer, begrünter Innenhof, der als gemeinschaftliche Gartenfläche dient. Die Neugestaltung verbindet historischen Bestand mit zeitgemäßem Wohnkomfort und nachhaltigen Baukonzepten.

Gebäudestruktur:

•Altbau-Wohnungen: Die sanierten Gründerzeithäuser bieten klassische Altbauwohnungen mit Raumhöhen bis zu 3,60 m.

•Lofts: Die ehemalige Hutfabrik wurde in loftartige Wohnungen umgewandelt.

•Neubauten: Zusätzlich wurden moderne Neubauten errichtet.

Wohnungsgrößen:

Das Projekt umfasst insgesamt ca. 70 Wohnungen mit Wohnflächen zwischen 35 m² und 190 m², verteilt auf 1 bis 5 Zimmer.

Weitere Informationen: https://www.opuarchitekten.com/118-16_ab4-3-3/

https://quartier-starhemberg.at

Beispiel Wohnung 1
Beispiel Wohnung 2
Quartier Starhemberg © opu Architekten,

Beteiligung am Projekt: Entwurfs- und Ausführungsplanung.

•Wohnungsspezifische Entwurfsplanung: Entwicklung individueller Grundrisse für jede Wohneinheit unter Berücksichtigung funktionaler und gestalterischer Anforderungen.

•Barrierefreie Planung: Entwurf aller Wohnungen nach dem Grundsatz, dass sämtliche Einheiten barrierefrei zugänglich sind.

•Einrichtungsplanung: Gestaltung und Koordination der Innenraumkonzepte einschließlich Möblierung und Raumnutzung.

•Bearbeitung der Einreichpläne: Unterstützung bei der Erstellung der

Einreichunterlagen für Behörden, insbesondere für die komplexen Umbauwohnungen im Bestand sowie für die Neubauten.

•Fassadengestaltung und Innenhöfe: Mitarbeit an der Gestaltung der Fassaden und Freiräume, insbesondere im Bereich der Innenhöfe.

•Grafische Darstellung und Dokumentation: Erstellung von Visualisierungen, Präsentationsunterlagen und Planlayouts

•3D-Modellierung in Archicad

Quartier Starhemberg © opu Architekten, https://quartier-starhemberg.at

KOPERNIKUS-OBERSCHULE

Beteiligung an dem Project: Praktikantin Juni 2015- Oktober 2015

Erweiterung und Sanierung der Kopernikus-Oberschule

OBERSCHULE

Kopernikus-Oberschule in denkmalgerechte Modernisierung

Kopernikus - Oberschule © HerbstKunkler Architekten,

https://www.competitionline.com/de/news/ergebnisse/erweiterung-der-kopernikus-oberschulesteglitz-zehlendorf-121003/prizegroup/1-preis-zur-realisierung-empfohlen-42363.html

Standort: Berlin, Deutschland

Architekten: HerbstKunkler Architekten

Fläche: 6.200 m² BGF

Zeitraum: Wettbewerb 2013 (1. Preis), Fertigstellung 2017

Projektbeschreibung:

Die Kopernikus-Oberschule in Berlin Steglitz-Zehlendorf wurde während des laufenden Schulbetriebs erweitert und saniert. Der fünfgeschossige Neubau, fertiggestellt 2017, ergänzt den Altbau und schafft mit einer neuen Raumkante eine klare städtebauliche Struktur. Eine offene Treppe mit Aufzug verbindet Alt- und Neubau barrierefrei. Die innenliegende Schulterrasse sowie flexibel nutzbare Verkehrsflächen fördern eine moderne Lernumgebung. Die Steinfassade des Altbaus wurde weitergeführt und umhüllt nun auch den Neubau, wodurch eine gestalterische Einheit entsteht.

Weitere Informationen: https:// www.german-architects.com/de/ herbstkunkler-architekten-berlin/project/ kopernikus-oberschule-schulhaus

Beteiligung am Projekt: wurde als Praktikantin im Bereich Ausführungsplanung an den Nasszellen mitgearbeitet und detaillierte Fliesenpläne im großen Maßstab erstellt.

3D-Modellierungen wurden im Archicad gefertigt.

Haberlandtgasse 73 [EN]

Studio Wohnbau SS 2016

Kunstschule - Bauen im Bestand [DE]

Großes Entwerfen Raumgestaltung

WS 2021

Postcards to

to the Future [EN]

Studio Hochbau

WS 2018

49 - 50

Idea Store [EN]

Gebäudelehte

SS 2014 51 - 72

Mesh. [EN]

Großes Entwerfen Hochbau

SS 2016 73 - 84

quartier23

An analogue Vienna. [EN]

Studio Städtebau

SS 2016 85 - 100

Exhibition Ship(s) for the Art Academies [EN]

HABERLANDTGASSE

HABERLANDTGASSE 73

Design Studio Housing

Studio Wohnbau

ST2016

Habitant [s,m,l] is designed to respond the need of new residences in area of Aspern. Also it is located close to Aspern Seestadt, which is a recently developing project that has a lot of future potential for a new and live urban ambience.

Habitant [s,m,l] is composed of 15 attached houses. There are in total 15 dwellings on the side and are in three different sizes. 3x large (274 m2), 5x medium (187 m2) and 7x small (140 m2) in order to be able to correspond to different types of dwellers such as large families, couples etc.

Building codes alows for a maximum 7,5 meters height that corresponds to around two floor height. And it is allowed to build another 4,5 meters height as a roof floor. An autopark on the basement level is also planned .

The site is positioned longitudinal on north-south axis. Both south and north edges are parallel to main roads. The main idea is to connect these main road with a pedestrian spine. The dwellings are alined along both side of the spine. The entrances are setted back and covered with a screen to provide privacy. Also this semi outdoor space provides shelter for bikes.

The layout of dwellings are composed of L shape plans, which provides privacy and protection from weather conditions for the terraces. Each dwelling has three floors. Entrance floor includes common spaces such as living room,kitchen and courtyard. Second floor and roof floor includes bedroom spaces. Rough, sustainable and simple materials used for interior to keep it minimalistic.

Roof Construction:

250 mm black pigmented reinforced concrete

180 mm foam glass

150 mm installation layer

24 mm limewashed spruce boarding

Wall Construction:

250 mm black pigmented reinforced concrete

140 mm extruded polystyrene thermal insulation adhesive

40 mm woodwool thermal insulation lathing

20 mm woodwool thermal insulation

20 mm limewashed spruce boarding

Flooring:

70 mm cement- and-sand

screed separating layer

30 mm glass-wool impact sound insulation

70 mm EPS filling

280 mm reinf. concrete floor

Um neue Tragkonstruktion ersichtlich zu machen,wird das Model ohne Dach dargestellt - Endzustand

Endzustand

KUNSTSCHULE// BAUEN IM BESTAND

Design Studio Spatial Design

Großes Entwerfen Raumgestaltung

Konferenz-Raum

Empfang

Ausstellungsraum

Workshops

Atelier Räume
Atelier Räume Küche

Das Schaffen eines Raumes für diskursive künstlerische Praktiken steht im Mittelpunkt des Projektes – Diskurs um Relationen zwischen unterschiedlichen Akteuren sichtbar zu machen, Relationen, die wahrgenommene Grenzen überwinden.

Die Kunstschule ist inklusiv gedacht und tritt in den öffentlichen Raum, um aktive Teilhabe möglich zu machen.

Es geht um das Schaffen eines Künstleratelier für die Studierende in der Umgebung, in dem die verschidenen Menschen, die in der Nachbarschaft wohnen zusammen kommen können und einen Ort zu schaffen, der inklusiv gedacht ist, an dem jede:r eine Platz hat.

Wie schafft man nun eine Universität, die einerseits universitätseigene Personen bildet und andererseits eben nicht nur, ihre Wirkkraft auf die (nähere) Umgebung ausdehnt, wieder politisch wird? Was wenn man im Kontext der Universität mehr an selbstorganisierte Strukturen denkt, wenn Hierarchien so gut als geht vermieden werden, wenn Studierende ihr politisches, ihr ge- sellschaftliches Potenzial nutzen, mit der Öffentlichkeit aktiv in Kontakt treten, um sich ihre Umgebung zu gestalten.

Würde es Sinn machen Disziplinen der Kunst dort unterzubringen, die generell schon in aktivem Kontakt mit möglichen Beobachter:innen stehen, die vielleicht auf den Kontakt zu Außenstehenden angewiesen sind, während sie stattfinden? Disziplinen der Kunst, die bewusst transdisziplinär sind, schon im Feld der Künste, und dann vielleicht generell eine größere Offenheit ausstrahlen? Könnten vielleicht ebenso (geistes-)wissenschaftliche Studien dort stattfinden, damit innerhalb der Studierenden schon verschiedene Menschen zusammenkommen, Umbau/Auswechslung

Endzustand

Umbau/Auswechslung

voneinander lernen, Erfahrungen sammeln können und dann eben mit der Öffentlichkeit noch eine nicht unbedingt akademische Herangehensweise oder Perspektive dazutritt?

Straßenseitig sollen sich öffentliche Funktionen ansiedeln bzw. Funktionen mit Nutzungen, die nicht nur für Studierende gedacht sind sondern auch die Umgebung miteinbeziehen und einladen sollen an der Atmosphäre teilzuhaben.

Die angedachte Innenraumerschließung bedindet sich in der südlichen Halle in einem zum Hof offenen Gang und führt von dort über die Schleuse, die den Innenhof von der Heistergasse trennt, vorbei am Veranstaltungssaal, der zum Vorplatz orientiert ist, mitten in die nördliche Halle. Anschließend sind Gemeinschaftsräume in der „Atelier-Halle“ angedacht, die einerseits für ein gemütliches Zusammensitzen genutzt werden könne, aber auch für Diskussionen unter den Stu- dierenden, sowie für Arbeiten in einer offenen Atelieratmosphäre.

Der Weg führt schließlich zu einem Werkstattbereich, der abgekoppelt von dem Rest der Halle, um Schallschutz zu gewährleisten, funktioniert.

Im Eckhaus soll Bibliothek und Verwaltungsgebäuden kommen.

Ausstellung

Bibliothek

Digitale Ausstellung

Verwaltung

Bibliothek

Terrassen Café
Kino

POSTCARDS TO THE FUTURE

Design Studio Construction

Studio Hochbau WT2018

reuserecyclerepeat

T echnische Universität Wien Institut für Architektur und Entwerfen

Forschungsbereich Hochbau –

Konstruktion und Entwerfen E 253/5

Karlsplatz 13, 1040 Wien, Österreich

The construction industry has not only become a major consumer of materials, natural sources; it has also become a source of pollution. We shall reuse building materials as a way for environment protection and sustainable development.

IDEA

Design Studio Building Gebäudelehte

STORE

Building Theory

Gebäudelehte

Typologie des Projekts lässt noch viele unterschiedliche Interpretationen und Weiterentwicklungen zu dank der viele openspace Räumlichkeiten.

Das Gebäude ist auf 1900 m2 Nutzfläche und stehen Räume für Bibliotheksbetrieb, Information, Verkauf, Vermittlung, verschiedenste Kurse, Workshops, Veranstaltungen, Ausstellungen und Gastronomie zur Verfügung. Gerechnet wird mit ca 1700 Besuchern pro Tag.

Der Idea Store ist ein Angebot für alle Altersgruppen. Die Architektur kommuniziert diese Offenheit aktiv und gestalterisch einlöst. Alle Räume und Erschließungen sind barrierefrei geplant.

Das Gebäude bietet höhe Flexibilität und Nutzungsvariabilität. Der Idea Store soll als Impulsgeber für den umgebenden Stadtraum wirksam werden. Jeder Student entwickelt sein individuelles Raumprogramm und erstellt einen Entwurf.

Standort: Kürschnergasse 9, 1210 Wien

Gesamt-Raumprogramm: ca. 1900m2 Nutzfläche bestehend aus ca. 1500m2 BasisRaumprogramm und ca. 400m2 Zusatz-Raumprogramm.

Der “Idea Store” überträgt den Zusammenhang zwischen inspirierendem Arbeitsumfeld und kreativem Output auf den edukativen Bereich. Was früher eine monofunktionale Bibliothek war, soll im Idea Store eine Lese- Lern- Arbeits- und Experimentier-Raumlandschaft werden, die nicht nur Bücher in Regalen anbietet, sondern sehr viel mehr Aktivitäten initiiert und zulässt. Die wesentlichste programmatische Erweiterung ist ein ausdifferenziertes Kursprogramm für Kinder, Jugendliche und Erwachsene. Hinzu kommen Service- und Vermittlungsangebote. Lernen und Weiterbildung wird also umfassend interpretiert und implementiert. Mit variablen Räumen für Veranstaltungen, Ausstellungen, Workshops, etc erfüllt der Idea Store sogar Funktionen eines lokalen Stadtteilzentrums. Mit dem Idea Store wird eine programmatische und raumdramaturgische Tendenz deutlich.

Basis-Raumprogramm: ca 1500 m2:

UG:

Lager, Technische Infrastruktur, Garderobe

EG:

Eingangsbereich, Wartebereich, Treffpunkt, Informations-Desk, Medien-Ausgabe und Rückgabe, Shop, Anlieferung, etc

Raumlandschaft für die Aufstellung von Büchern, Medien, Infomaterial

Gallerie: Café, Restaurant, Küche, Lager

OG1:

open-space Lern- Lesebereiche mit wechselnder Möblierung, Jugend-Bereich, Bibliothek sowie Kinder-Bibliothek

OG2:

Variabel nutzbares Raum für Informationsveranstaltungen, Kurse, Workshops, Gruppenarbeit, Online Bibliothek, Virtuelles Lernen

DG:

Konferenzraum ausgestattet mit Technik. Je nach Lärm-Entwicklung einzeln abschließbar. Ausstellungen, Filmvorführungen, Flohmärkte, Party, etc.Einfach anpassbar durch unterschiedliche Möblierung und Raumatmosphäre (Verdunkelung, etc). Bereich für Buffet/Catering sowie Mitarbeiter-Küche, Office Räumlichkeiten für die Mitarbeitern.

Alle Geschösse sind mit WC sowie ein Lager-putzmittelraum gestattet. Ein Barrierefreies WC ist im UG zu finden.

Expanding both museum of natural history & museum of art history Vienna subterraneously for much needed extra exhibiton rooms, storage areas and a conference room.

Aim of the project is creating an subterrean extension for both museum of natural history and museum of art history Vienna, which gives visitors a chance to move freely.

In order to obtain the simple form, the square of Maria-Theresien divided in 20x20 meters grid and each singe grid part is pulled away from each other with a 4 meter distance.

The obtained interspace here serves as open area for the circulation between rooms. Consequently the surface extruded negatively.

Through sinking the grid rooms systematicaly, areas with different levels are obtained.

The deepest level (Ephesos exhibiton) stands at -13 meters under the surface. After obtaining different level under the ground, those are connected to each other with 4 meter wide ramps.

The top level is used as storage, workshop studios, toilette areas. All other levels serve as common space or exhibition tooms.

The exhibiton rooms and theier connection axis enhance and capture the pattern of central square above the ground.

1. Bodenbelag - 40mm

2. Kiesschüttung - 90mm

3. Schutzvlies - 5mm

4. Wärmedämmung XPS - 150 mm

5. Abdichtung PKV-5 + EKV-4 - 10mm

6. Gefällbeton - 80mm

7. Stahlbetondecke - 250mm

8. Abgehängte Decke mit Abhängekonstruktion (z.B. Protektor)

1. Bodenbelag - 15mm

2. Estrich - 60mm

3. Trennlage PE-Folie - 5mm

4. Hochverdichtete Mehrschichtespannplatte - 100mm

5. Aluminiumfeinblech - 200mm

6. Stahlbetondecke - 400mm

7. Wärmedämmung XPS - 150mm

8. Stampfbeton - 250mm

9. Fundament

Austellungsraum

Schätze aus Ephesos 1936 m²

-13,00 m -11,00 m

Austellungsraum

-4m -4m -7m -11m -13m

In general, the main question how the city should be understood can be asked in two an architectural composite in interaction with natural conditions; or two: is it an architectural basic questions should be asked at the very first encounter and engagement with the entire time while experiencing

Under the title “quartier23 - An analogue Vienna.”, the latter question is mainly of experiments to explore specific, but also generalised characteristics of the suggested. In this project the 23rd district of Vienna, i.e Liesing (a former industrial according to their spatial-physical, ecological condition and quality, as well as their the city and their underlying or superficial complexity. The aim is to make statements growing urban landscape

two ways: one: is the city a natural phenomenon that develops from within itself as architectural composition that represents a consciously designed entity. those two with the city. The two questions will be repeatedly asked and answered throughout experiencing the city within itself.

mainly tried as an answer as to understand how the city develops and through series Viennese urban structure a more “design and build” oriented project has been industrial now more suborban district) has been repeatedly visited and analyised their social conditions. The interest in this project lays in built and unbuilt forms of statements about possible target images and development scenarios of a dynamically landscape and its concrete form.

Revitalizing Liesing with innovative synergy:

A sprawling mix of residential and light industrial areas, Liesing begs a new urban development proposal as the population of the district growing in a constant rate due to immigration, growth and more affordable residing possibilities.

By getting urban development right, the area would create jobs and offer better livelihoods; increase economic growth; improve social inclusion; promote the decoupling of living standards and economic growth from environmental resource use; protect local and regional ecosystems; reduce both urban and rural poverty.

In this project a high number of new residential buildings are planned in order to offer a high amont of new housing possibilities and by leaving the ground floor level open for commercial use, the number of shops, cafés, offices, galleries and artist ateliers would also create a kind of unique livelihood and dynamic to the area.

Analysing the Area

3 Unterschiedliche Module

Bestand
Abbruch
Neubau

Höhenentwicklung

Nutzung

Concept

The targetted area consists mainly of family housings and industrial complexes. In addition to the nearby s-train station (Atzgersdorf), possible spaces for social interaction and new living quarters are designed in order to bring more livelihood to the district. The participation of artists and cultural institutions in the planning of the district’s makeover is proposed to spark the desired development and urbanisation.

Öffentliche Grünfläche

Halb-öffentliche Grünfläche

Private Gärten

n

Spielplatz

Sportplatz

Öffentlicher Platz

Wasser

EXHIBITION SHIP(S) FOR THE ART ACADEMIES

Master’s Thesis

The Danube, connecting ten countries has a past that continues to shape

In light of everything, this project proposes ships will dock for a period providing students

By implementing these mobile exhibition ships along the Danube. This program will be

This project seeks to harness the diversity and coming artists. This initiative would benefit

and five capitals, has always played an important role as a tradind route. It the present fostering connections between cultural and economical communities.

proposes an initiative where two exhibition ships regularly visit cities along the Danube. These students with an opportunity to showcase their artworks beyond their city or national borders.

ships it is aimed to facilitate exchange and networking among art students from cities coordinated by art schools in Vienna, which serves as a hub, along the rivers course.

diversity found along the Danube to promote both transcultural exchange and visibility for up benefit not art students and young artists. Also contribute positively to the entire region.

(Level Below)
(Level Above)

Rooms Entrance Level (EE in German)

In the realm of creating forms that go beyond functionality and embrace artistic expression we find inspiration in the timeless wisdom of nature itself. The exhibition ships embody the connection between creativity and the organic world.

The design of the vessels pays homage to the undulations of river waves reflecting the fluidity and constant movement that defines life. Every contour seeks to evoke the yet powerful presence of water going beyond practicality to embrace aesthetics.

As we delve deeper into the creation we encounter an interplay between light and shadow. This dance of illumination partially obscured by the textures of tree leaves creates a mesmerizing and ever changing pattern on the forest floor.

When we gaze upon the ships facade we are reminded of the branching patterns found in trees. These branches form a web network symbolizing interconnection and unity, among all living things like arteries nourishing life itself.

Wrapped in semi transculent foils the exhibition ships appear cloaked in translucency resembling water itself. The semi-transparent sheen reflects the nature of existence just as ripples on a pond reveal what lies beneath its surface. This architectural choice seeks to uncover hidden beauty.

The way these elements delve into something we celebrate how everything in life is connected the beauty of change and discovering the truths beneath the surface. The exhibition ship becomes more than a place for art, it becomes a space, for reflection and connecting with the world around us.

Built on push barge Europa II covers a space of 1,150 square meters.

This large ship combines innovative elements to showcase forms of art. It features traditional art exhibition rooms as well as a Digital Exhibition room tfor multimedia installations and interactive exhibits. Furthermore the ship includes also a Concert area where music performances and cultural events can take place. This versatile space accommodates expressions and serves as a dynamic platform for artists and musicians to share their talents with the public.

Concealed in the background are storage and technical areas that ensure operations behind the scenes. These unobtrusive spaces play a role in maintaining the ships day to day functions

In conclusion, this project represents a forward thinking endeavor that intersects art, culture and innovation.

It embodies a vision that aims to empower art students and honor the significance of the Danube River. By converting a push barge into an exhibition ship this project provides a platform, for emerging artists to showcase their creativity and establish connections with established professionals in the art industry.

The smaller ship, built on top of the push barge SL Blumenau covers a space of approximetaly 355 square meters.

As visitors step aboard they will come across the anteroom and The exhibition room connects directly to anteroom and connects to the café in the back area. The ship designed to invite guests to embrace a blend of artistry, functionality and aesthetics.

Although compact in size this intimate vessel offers an art experience that fosters connections, with creativity and culture. It adds its touch to the diverse fabric of artistic creativity.

The selection of the Europa II and SL Blumenau push barges, known for their simplicity, practicality and sustainability reflects consideration for efficiency and adaptability. These vessels are not merely

functional, also serve as expressions themselves and reminding us of our interconnectedness.

This project goes beyond art exhibitions by creating a space for introspection, connection and exploration. It nurtures an environment where creativity flourishes effortlessly akin to the flowing Danube River. In doing it promises to rejuvenate the spirits of emerging artists while expanding their visibility, on a wider European scale.

To sum it up „Navigating Artistry“ goes beyond converting a barge into a ship, for exhibitions. It aims to promote cultural connections and embrace the profound significance of change and hidden truths.

The Project exemplifies how art can unite people and cultures offering the potential to make an impact, on the realm of art and imagination.

(Level Below)

Entrance Level (EE in German)

selected works 20132025

Turn static files into dynamic content formats.

Create a flipbook
Hayran Porfolio 2014-2025 by Elif Hayran - Issuu