TEL: 0421091793
EMAIL: 2456535116@QQ.COM

PRECENDENTS -- TOWER SHAPE

ADRIAN SMITH + GORDON GILL NEW YORK CENTRAL PARK TOWER

HARIRI PONTARINI TORONTO WATERFRONT SKYSCRAPER
PRECENDENTS -- FACADE





SHUIBEI INTENATIONAL CENTER SHENZHEN CHINA 210 METER HIGH-RISE LANDMARK
WITH ITS CURVED EDGES, ANGLED TIP AND GROOVED GREEN GLASS FACADE, THE NEW SKYSCRAPER BLENDS VISUAL REFERENCES TO BOTH CHINESE BAMBOO SHOOTS AND THE PLEATED COLUMNS OF ANCIENT GREECE.





CURVED SURFACE DESIGN










TOWER
C1: STEEL CONTRETE COMPOSITE COLUMN, 1200mm x 800mm
B1: 700WB 150
B2: 530UB 820
B3: 460UB 67.1
B4: 410UB 59.7
EB1: 700WB 150
EB2: 610UB 125
EB3: 610UB 125 (CURVE) PODIUM
C2: CONCRETE CIRCULAR COLUMN, 800mm d
BB1: STEEL UNIVERSAL BEAM, 610UB 125
BB2: STEEL UNIVERSAL BEAM(CURVE), 610UB 125
BB3: STEEL UNIVERSAL BEAM 180UB 18.1
GB1: INTALOK GLAZING BAR MULLION, 100mm x 35mm






The tower designed in this semester consists of five parts: podium, middle-rise office floor, mechanical floor, high-rise hotel floor and crown. The structure and shape of the entire tower were discussed and designed by the three team members. On the whole, we use a concrete tube-in-tube structural system. Because the height of the mechanical layer is higher, the structure of belts and outriggers are used in the position of the mechanical floor and connect to the core to ensure the tower is more stable. In order to allow the wind to pass more smoothly around the tower, and to increase the richness of the tower shape, we designed curved surfaces at the diagonal corners, so the floor slab of the tower is made of concrete because concrete is easy to pour into shape, it is also used to make the shear wall at the core position, and the shear wall decreases as the height of the tower rises, ranging from 600mm to 450mm and the size of the core is about 18 by 18m.
The tower is designed strictly according to the 6000mm modulus, so there are seven columns inside each face of the tower and the size of the office and hotel floor is about 42 by 42m. In this way, we designed a 6000mm structural grid so in the plan view, it could clearly find that the columns are aligned with the grid so that we can use 1500mm glazing modules between the column. All the mega columns are located at the edge of the floor slabs, and the exterior is covered with glazing and aluminum facade to ensure that they are visually hidden from the outside. In terms of material, the column is composed of steel and concrete. Steel column is embedded in concrete column. Thereby forming a stronger structural system. In terms of size, the columns have become thinner from podium to high-rise hotel floor, which are 1200x800mm to 600x400mm.
The position of the beam also follows the structural grid on the plan. The bottom of the concrete floor is supported by steel beams of different sizes. The beam types are B1 B2 between the column and the core shear wall, B3 B4 on the four corners of the tower, and side beams EB1 EB2.
The crown looks like an inclined plane in appearance. From the elevation, the crown is seamlessly connected to the main tower, and from the plan, its size is the same as that of the office and hotel. Inside the crown, we set up a truss structural system which is made by steel material. The truss structure of the inner ring is used to support the BMU for operation, and the exterior of the truss structure is also wrapped by glazing facade as same as the facade which located at office floors. The podium also follows the structural grid, and the truss system is supported by cylinders. Each of the cylinders is 800 x 800mm.
The choice of this system ensures that the external vertical surface of the tower is very stable. The single facade and double facade will be installed on the outside of the structure to ensure ventilation and normal use of the tower.

ANCHOR BOLTS
BATT INSULATION
GL2--SUPERGRAY GLAZING
CATWALK FOR MAINTAINANCE
HOOK-ON BRACKET
GL1--DOUBLE GLAZED UNITS
STEEL IN CONCRETE COLUMN
MEGA COLUMN
SPANDREL PANEL
ALUMINIUM PANEL
GL2--SUPERGRAY GLAZING




ROCKWOOL MINERAL WOOL, BATT INSULATION
SPANDREL PANEL
GL1--DOUBLE GLAZED UNITS
MEGA COLUMN, STEEL IN CONCRETE
GL2--SUPERGRAY GLAZING

ROCKWOOL MINERAL WOOL, BATT INSULATION
CATWALK FOR MAINTAINANCE
MEGA COLUMN
CONCRETE SLAB
MEGA COLUMN, STEEL IN CONCRETE
GL2--SUPERGRAY GLAZING
INTEGRATED ALUMINIUM FRAME
SPANDREL PANEL
GL1--DOUBLE GLAZED
FLODABLE LOUVRE
ALUMINIUM MULLION ALUMINIUM MULLION
GL2--SUPERGRAY
CATWALK FOR MAINTAINANCE













































































ALUMINIUM MOVEABLE FACADE
BLIND PELMET
AL2 ALUMINIUM MOVEABLE FACADE AL2 ALUMINIUM MOVEABLE FACADE
GL2 EXTERNAL GLAZING
GL1 INTERNAL GLAZING
AL1 INTEGRATED EXTERNAL ALUMINIUM FRAME
EXTERNAL GLAZING
ANCHOR BOLTS
BATT INSULATION
GL1--DOUBLE GLAZED UNITS
ALUMINIUM MOVEABLE FACADE



CONCRETE STRUCTURE
ROCKWOOL MINERAL WOOL, BATT INSULATION
GL2 EXTERNAL GLAZING
GL1 INTERNAL GLAZING
CONCRETE COLUMN
ALUMINIUM FRAME CONCRETE SLAB CONCRETE COLUMN
CONCRETE STRUCTURE
EXTERNAL GLAZING SUSPENDED CEILING
ALUMINIUM MOVEABLE FACADE
SUSPENDED CEILING













Place glass boxes in the building to form different functional spaces. Two trees in the building are kept the enhance the playfulness.The long and narrow space is mainly divided to four functional areas.


DIVIDING ROOM TEA ROOM

CHATTING ROOM





The use of glass brings a strong sense of layers among different functional areas, adding playfulness and transparency.
THE SITE
A courtyard can increase the lighting.

The outdoor pillars increase the depth of the space while forming a grey space.





PERSPECTIVE VIEW RENDERING















Due to the global COVID-19 epidemic, more and more people choose to work from home. The family day care community provides workers and their children with the necessary living space to work, play and live at the same time.



The family daycare community provides childcare services for children. Family members in the community can take turns to take care of the children, or they can hire professional childcare staff to take care of the children. There are workshops, discussion rooms and personal workstations for adults. The children can read and play here.






Our goal is to create a small community where workers and their children can live in harmony. At the same time, the building itself is a big classroom where children and parents can learn wood structure, landscape design, painting, sculpture and so on.





The ground floor is set back a certain distance from the first floor, providing corridors and gray space for people who living on the ground floor. It could also effectively blocking part of the sun, and people can chat and move in the shade.
B-B'

There is a central garden in the middle of the building, and there are also windows in the living space, working space and daycare to provide ventilation.
SURROUNDING GRASSES
(Percolates to sub-grade soils)



















TWO BEDROOM UNITS
Suitable for: 1 or 2 Adult + 1 or 2 Children
The two-bedroom unit is located on the north side of the site. The bedrooms and bathrooms are located on one side of the house to ensure that there is transparent north-south lighting and ventilation on the other side.
FOUR BEDROOM UNITS
Suitable for: 1 or 2 Adult + 1 or 2 Children
The four-bedroom unit is set on the south side of the site as a double-storage space. The first floor still retains northsouth ventilation and lighting, and it also contains two bedrooms. The rest of the two bedrooms are located on the first floor.






































DESIGN INTRODUCTION
After searching for cases and some domestic and international websites, such as "the official website of the National Palace Museum", we found that it is a trend to design modern furniture and cultural products by combining traditional culture as the starting point with modern products.
In this project, traditional symbols are deconstructed and refined to build a combination of modern and traditional, bringing new needs and perspectives to modern lamps. The traditional symbols studied must have a good meaning in both "past" and "modern". The "new patterns" designed should have the shadow of traditional patterns, but also meet the needs of modern people for simplicity and fashion.
TRADITIONAL PATTERNS
Traditional household items, patterns, sculptures, paintings, ancient poems and texts ......
MODERN PRODUCTS
Furniture, cultural and creative products ......
PRECEDENT INTRODUCTION
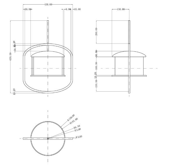
Ancient Chinese lamps first appeared during the Spring and Autumn and Warring States periods, and continued to innovate and improve during the Warring States period. The most representative lamp of this period should be the hanging lamp. The lamp is a lamp with an arcshaped conduit that resembles a lamp for a car. The program is based on this type of lamp.


SKETCHES





INNOVATION POINTS




LIGHTING DESIGN
TRADITIONAL LIGHTING
SHAPE
PATTERN
QUADRILATERAL CONTINUOUS PATTERN
MODERN LIGHTING

MATERIAL SELECTION

In order to be able to express the metallic feel of the Han Dynasty luminaire, but still contain a stylish flavor, brushed brass is used as the main material for the frame, lid, plate and the interior of the container below. Another advantage of using this material is that it is durable and easy to clean.
At the same time, in order to more closely resemble the color of Han Dynasty bronze, green marble is used as the outer basin of the container below. Since the veining on each stone varies, the lamps purchased by each user are unique. In order to make the light more fully illuminate the room, the material of the lampshade part is chosen from clear and frosted glass, and since the lampshade is removable, users can clean the glass shade regularly to keep the shade crystal clear.
LIGHTING DESIGN & CHINESE TRADITIONAL PATTERN TUTOR: Jian Liu

BEIJING UNIVERSITY OF TECHNOLOGY Puyue Liu


CHANDELIERS



PLACEMENT SECTION
Since the lower part of the traditional lamp is a spherical container to hold water to absorb harmful gases and soot from the candles above, but since people now use light bulbs, the lower part is designed as a half spherical container to hold potted plants or as a fish tank.
LIGHTING DESIGN & CHINESE TRADITIONAL PATTERN
COVER OF LAMP
Made of glass with built-in bulbs to illuminate the room.
LIGHTING DESIGN


LIGHTING FRAME
The form of the original conduit part of the luminaire is preserved, refined and geometrically abstracted, and used as the outer frame part of the modern luminaire, which serves as a support.
TUTOR: Jian Liu
DUE DATE: 5th Jun 2020
BEIJING UNIVERSITY OF TECHNOLOGY Puyue Liu
SWITCH
The three buttons that switch the lamp on and off and adjust the brightness level are designed on the tray of the table lamp.










































SITE STRATIFICATION




The specific work includes landscape preliminary design, model making, analysis drawing and rendering.
The specific work includes landscape preliminary design, model making, analysis drawing and rendering.
The specific work includes landscape preliminary design, model making, analysis drawing and rendering.
The specific work includes landscape preliminary design, model making, analysis drawing and rendering.






