Sarah Baeumler Proposal RMHC Atlantic

Page 1

RONALD MCDONALD HOUSE, ATLTANTIC 17 MAY 2023

“Living beautifully doesn’t stop at how things look; it’s how they feel, what they are made of, where they come from, and ultimately, how they cohesively work together.”

RONALD MCDONALD HOUSE, ATLANTIC

PRESENTATION CONTENTS

reas of presentation focus

ation of three core ideas ary

- Four Schemes selections

RONALD MCDONALD HOUSE, ATLANTIC MAIN LEVEL FLOOR PLAN

Main Level Areas of Focus

This presentation will focus on the primary front of house areas If the concept, selections and colour palette is approved Baeumler Design Group can apply the look and feel to the other rooms on the Main Level as well as the Lower Level as part of a second phase

Areas covered:

Front Terrace

Parlour

Kitchen/ Dining Area and Outdoor Terrace

Living Room

Play Room

1 2 3 4 5 1 2 3 3 4 5

RONALD MCDONALD HOUSE, ATLANTIC MAIN LEVEL ZONING & CIRCULATION PLAN

We begin our design process by studying the plan to carve out different zones and circulation paths within the floor plan This allows us to find a logical commonality between different areas which we will reinforce with our selections and colour palettes

For this presentation we have divided the main front of house areas into three zones:

Functional Areas

Circulation

Pr mary circulation

Secondary circulation

Transition Active Passive

RONALD MCDONALD HOUSE, ATLANTIC MAIN LEVEL CONCEPTUAL INSPIRATION

Conceptual Inspiration: The Halifax Commons

Located in the centre of the Halifax Peninsula, "the Commons" dates back to the settlement of the city and has been at the centre of civic life ever since

It has continuously evolved to fit the needs and changing lifestyle of the community It's home to open, recreational and sporting facilities, providing versatility, vibrancy and a richly layered city centre

Just like "the Commons", the Ronald McDonald House Atlantic is in the heart of Halifax, open and welcome to everyone within the Atlantic provinces It is a home, away from home a place where each family can engage in daily life in a supportive and inclusive environment surrounded by natural elements

We draw inspiration from the Commons not just for the natural colour palette it provides, but for what it represents

The Hal fax Commons in Autumn

RONALD MCDONALD HOUSE, ATLANTIC MAIN LEVEL CONCEPTUAL INSPIRATION

The Hal fax Commons

RONALD

MCDONALD HOUSE, ATLANTIC MAIN LEVEL CONCEPT

NURTURING UNITED EXPANSIVE

Building from the overarching concept of the Halifax Commons, we propose taking the public spaces and breaking them into zones that celebrate one of the three core ideas of the RMHC: nurturing, united, and expansive The above images also help create a colour palette for the different spaces

RONALD MCDONALD HOUSE, ATLANTIC MAIN LEVEL: APPLYING THE CONCEPT

In this stage of the design process we merge the zoning and circulation plan with our three core ideas that have emerged from our design concept: the Halifax Commons

Within the plan, each area provides an opportunity for people to come together in different ways: from the initial greeting area developed around the concept of unity, to areas that are more nurturing to those that allow for active and expansive activity

Transition Un ted Active Expansive Passive Nurtur ng

RONALD MCDONALD HOUSE, ATLANTIC PREVIOUS ARCHITECTURAL MATERIALS

Architectural Materials

Timber slatted Ceiling @ Parlour, K tchen and L ving room

General Paint

WDP1- general WD f nish

LVT @ General Floor

CPT-3 inset carpet t le @ Parlour, Living Room

CPT-2- carpet tile @ Intake & Off ces

CNT3 2-Corian at recept on countertop, bathrooms

CNT3 1- Corian at built-in "hospitality counter" and Kitchen Counters

LVT2- P ay Kitchen Flooring

The dark grey and black carpet tiles selected feel corporate rather than residential We suggest using carpet tiles with warmer, more welcoming colour tones

3
2 3 4 5 6 7 8 9 2 1 4 5 6 7 8
1
9

RONALD MCDONALD HOUSE, ATLANTIC REVISED ARCHITECTURAL MATERIALS

Architectural Materials

Timber slatted Ceiling @ Parlour, K tchen and L ving room General Paint

WDP1- general WD f nish

LVT @ General Floor

CPT-3 inset carpet t le @ Parlour

CPT-2- carpet tile @ Intake & Off ces (note this is a plank and not a square t le)

CNT3 2-Corian at recept on countertop, bathrooms

CNT3 1- Corian at built-in "hospitality counter" and Kitchen Counters

LVT2- P ay Kitchen Flooring

CPT-4 inset carpet tile @ Living Room

Using FLOR carpet tiles at the L ving Room and Parlour in more res dential patterns and colours allows these two key spaces to feel warm and welcoming Both these carpet tiles are 100% solution dyed nylon with an antimicrobial treatment

2 1 4 5 6
9
1 2 3 4 5 6 7
8 9 10
7 8 3 10

RONALD MCDONALD HOUSE, ATLANTIC FRONT TERRACE PLAN & FURNITURE SELECTIONS

Cabana Coast Arcade col ection for lounge seat ng

Powdered coated alum num in a b ack finish with teak detai on arms, for a natura e ement

We suggest us ng arm ess chairs in the middle section to provide flexibi ity to move or group the chairs as required

Large potted p ans wi l help provide both pops of fresh green co our and gent e privacy barriers

Finishes on chair

Key Plan

A symmetrical central seating area with mixed seating for fam lies There is stil ample c rculat on for people who need to access the credenza- for a cup of tea/coffee

RONALD MCDONALD HOUSE, ATLANTIC PARLOUR & RECEPTION FURNITURE PLAN

To not block the window to the courtyard outside seating w th a ower back has been se ected with movable ottomans for k ds to s t on Th s provides a secondary c rculat on space w thout mped ng c rculat on patterns COURTYARD

To reinforce the idea of bringing nature into the house, we suggest des gn ng a green wal for the donor wa l The signature RMHC heart can be carved out of wood w th a wood or a red plaque nside

 large potted plant helps prov de privacy between seating groups

Key Plan

RONALD MCDONALD HOUSE, ATLANTIC PARLOUR & RECEPTION CONCEPT & MATERIALS SELECTION

UNITED
al
and seating ound
ounge
ounge
quare poufs quare poufs aterials 1 4 8 12 11 10 9 3 2
The Reception is where families are welcomed to their "home away from home" A soft colour palette and layered materials anchor this trans tion space with accents in soft, deep blues and greens slat @ Ceiling (brown a)
Paint h ply at TV wall and or et carpet
ottoman
chairs
seating by window ecorative Throw Pillows on s
1 1 2 2 3 4 4 5 5 6 6
7 7 3
RONALD MCDONALD HOUSE, ATLANTIC
PARLOUR & RECEPTION - FABRIC/colour PALETTE

RONALD MCDONALD

HOUSE, ATLANTIC CHILDREN'S ART GALLERY WALL

Suggested location for a mixed media art "gallery wall" for a l the chi dren staying at the house

As this area is off the Parlour/ Reception t is a continuat on of the "UNITY" concept- with a wall that brings together the experiences of all the different children who have stayed in the home and acts as a cheerful welcome to families coming to stay for the first time

RONALD MCDONALD HOUSE, ATLANTIC KITCHEN, DINING & OUTDOOR TERRACE FURNITURE PLAN

To reinforce the idea of bringing nature into the house and g ving fresh pops of co our we suggest hanging rounds of moss by GREENMOOD from the cei ing above the ma n d n ng tables

Seating has been reor ented to offer add t onal seating for fam l es and arger groups

Key Plan

EXPANSIVE

Active areas take on a dynamic palette of greens and neutrals, inspired by Halifax's open green spaces

RONALD MCDONALD HOUSE, ATLANTIC KITCHEN, DINING & OUTDOOR TERRACE MATERIALS SELECTION

Kitchen 4

WD-1 Wood slat @ Ce ling

PT-1 General Paint

Greenmood hanging moss

LVT1 @ Floor

WDP1- birch p y at mi lwork

CNT3 1- Corain Quartz @ countertops

6 7 8 10

12 9

Fabric @ Banquette Back

Vinyl @ Banquette Seat

LVT2 @ Kitchen Play Floor

P astic @ Dining chair seat

Wood @ Dining chair legs

Laminate@ Table top

& Dining Room Materials 1 5 11

We are recommending a new lighter and monolithic LVT2 for the Kitchen P ay Area as t w ll be easier for c ean up (finding smal parts of toys may prove challeng ng with the prev ous selection)

13 2 3
Metallic Finish @ Table legs 1 2 3 4 5 6 7 8 9 10 11 12 13

RONALD MCDONALD HOUSE, ATLANTIC ITCHEN, DINING & OUTDOOR TERRACE FURNITURE SELECTION

Cabana Coast, Arcade dining chair & table for outdoor terrace Chairs and d n ng tab es at central area with GREENMOOD hanging e ement
1 2 3 4 1 2 3 4
Decorat ve pendants over the banquettes

RONALD MCDONALD HOUSE, ATLANTIC LIVING ROOM FURNITURE PLAN

Simp ifying and reducing the number of furniture p eces gives this room more cohes on Three separate seating groups have been carved out w th flexible seat ng prov ded w th movable ottomans and " puzz e pieces" as wel as a low centre ottoman that acts as a seat or coffee table

Green pane s can be surface mounted for portabi ity or hung n custom panels from the ceiling to prov de acoustic and v sual comfort Screening off this area of the L ving Room from the corridor wi l make the seat ng group fee protected and cosy

Suggest to have a arger bookshe f next to the f replace to house a l the books

Plan
Key
Art Display: Watercolour pa nt ng of RMHC origina house

NURTURING

A gentle colour palette has been selected for use throughout the passive areas, creating a restful and peaceful environment

RONALD MCDONALD HOUSE, ATLANTIC LIVING ROOM CONCEPT & MATERIALS SELECTION

WD-1 Wood slat @ Ceiling

PT-1 General Pa nt

WDP1- birch ply at TV wall and millwork

LVT1 @ Floor

CPT3 @ Inset carpet

Stone at fireplace

Fabric @ Sofa

Fabric @ Round ottoman

Fabric @ Side chairs

Wood @ Side tables

Fabric @ BuzziPuzzles

Fabric @ BuzziCubes

Liv ng Room Materials 1 2 3 4 5 6 7 8 9 10 11 12 1 4 3 2 5 7 8 9 10 11 12 6

RONALD MCDONALD HOUSE, ATLANTIC LIVING ROOM FURNITURE SELECTION

5
1 1 2 2 3 4 4 3 5 6 6

RONALD MCDONALD HOUSE, ATLANTIC

PLAY ROOM CONCEPT

Drawing from nature and the views outside into the courtyard organic shapes and colours to provide inspiration for the flexible pebble seating groups A simple play structure along one wall of the room features portals into the playroom as well as the adjacent living room

Natural timber tones accented with fresh shades of green help bring nature inside in this space that allows children to play, explore and read

RONALD MCDONALD HOUSE, ATLANTIC PLAY ROOM DESIGN ELEMENTS

Pebble seating groupsAs each piece moves th s s fun f exible seating

RONALD MCDONALD HOUSE, ATLANTIC PLAY ROOM PLAN

Hang ng pod (by others)

Possib e green wal location with acoustic panels on either side to he p absorb noise

Pegboard area/ flexible hang ng space for nstruments or toys

Ra sed p ay p atform or p ay structure (by others)

Number of stairs

TBD on he ght of the platform

Key Plan

RONALD MCDONALD HOUSE, ATLANTIC PLAY ROOM SKETCH ELEVATIONS

WEST ELEVATION SOUTH ELEVATION

EAST ELEVATION

NORTH ELEVATION

NOTE: Elevations not to sclae

N
Drop cei ing with "sky ights" W ndows to L ving Room Possible green wa l ocat on Pegboard Raised play platform w th craw / hang out space below

EXPANSIVE

Active areas take on a dynam c palette of greens and neutra s insp red by Hal fax s open green spaces

RONALD MCDONALD HOUSE, ATLANTIC

PLAY ROOM MATERIALS

millwork

PT-1 General Pa nt Acoustic panel at wall Inset Green wall
Play Room Materials
1 4
WDP1- birch ply at Buzzi Pendant Pegboard wall Inset rubber f ooring (design TBD) Fabric at Pebbles 1 2 3 4 5 6 7 8
2 3 6 7 5 8

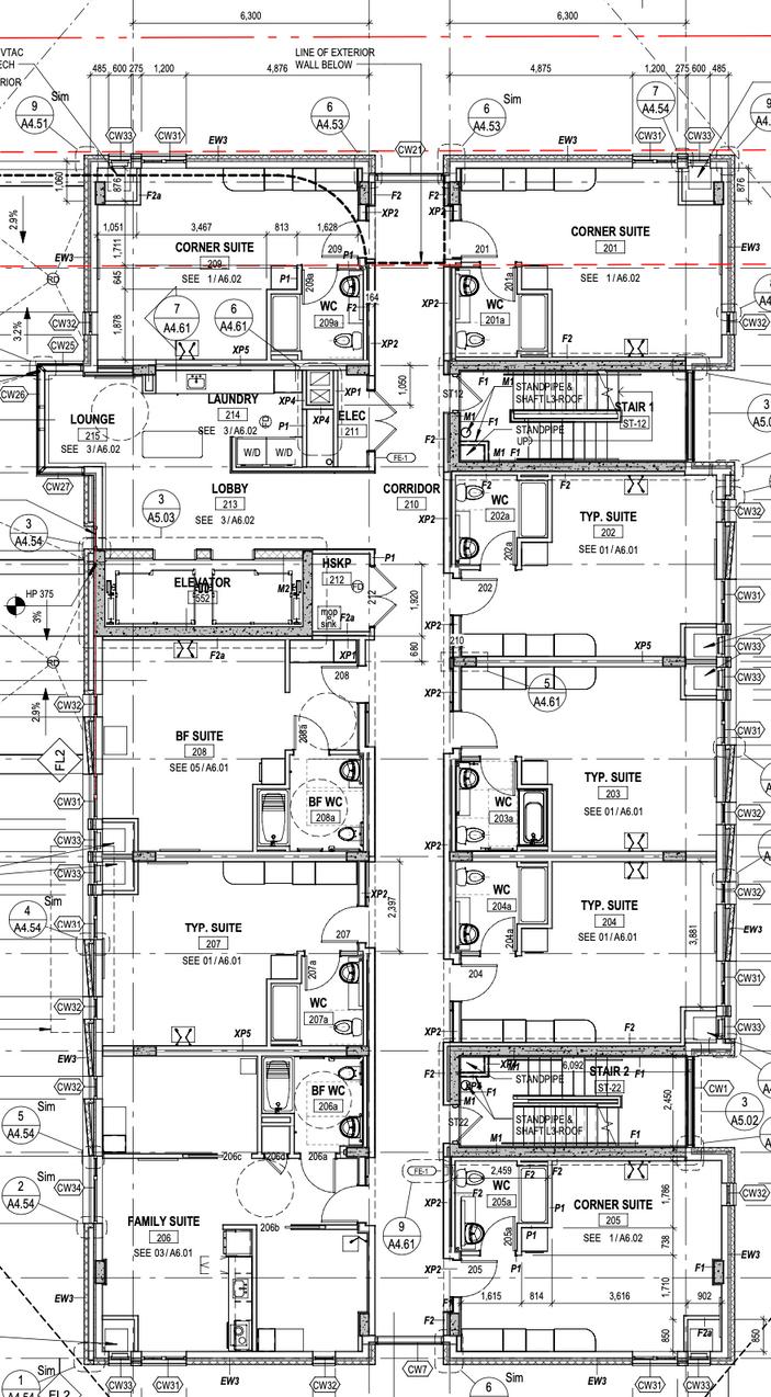
SUITES FLOORS

RONALD MCDONALD HOUSE, HALIFAX SUITES FLOOR PLAN

Each Suite Floor has:

Shared lounge with laundry facilities

(3) Corner Suites

(4) Typical Suites

(1) Two bedroom Family Suite

(1) BF Suite

RONALD MCDONALD HOUSE, HALIFAX LOUNGE PLAN & COLOUR PALETTE CONCEPT

Bui t- n banquette w th 55" round tab e

Custom table w th Corian top and stable base

5 clearance for whee cha r

Shift counter over to engage w th the wall to create more space

Insp red by nature accent colours at each lift lobby will help with way find ng

Feature Wall- carved acoust c panels in four d fferent co ourswith decorative but durable artwork by Buzzispace Console tab e with ottoman beneath for additional seating

RONALD MCDONALD HOUSE, HALIFAX

LEVEL 1 LOUNGE: The Garden

RONALD MCDONALD HOUSE, HALIFAX LEVEL 1 LOUNGE: The Garden

3 4

Lobby 2

6 5 7

Carpet at border of su tes corridors

Accent acoust c panel at wal opposite lift doors

Fabric options for throw pillows at Kitchen banquette

Vinyl upholstery at Kitchen banquettes

Paint @ K tchen mil work

Paint @ wall above Kitchen banquette

Paint @ Suite entry doors Level One Materials 1 2 3 4 5 6 7 1

RONALD MCDONALD HOUSE, HALIFAX

LEVEL 2 LOUNGE: The Sunset

RONALD MCDONALD HOUSE, HALIFAX LEVEL 2 LOUNGE: The Sunset

Carpet at border of su tes corridors

Accent acoust c panel at wal opposite lift doors

Fabric options for throw pillows at Kitchen banquette

Vinyl upholstery at Kitchen banquettes

Paint @ K tchen mil work

Paint @ wall above Kitchen banquette

Paint @ Suite entry doors

1 2 3 4 5 6 7 1 2 3 4 5 6 7
Level Two Materials

RONALD MCDONALD HOUSE, HALIFAX

LEVEL 3 LOUNGE: The Sea

3

RONALD MCDONALD HOUSE, HALIFAX LEVEL 3 LOUNGE: The Sea

5 6 7

4

Level Three Materials 2

Carpet at border of su tes corridors

Accent acoust c panel at wal opposite lift doors

Fabric options for throw pillows at Kitchen banquette

Vinyl upholstery at Kitchen banquettes

Paint @ K tchen mil work

Paint @ wall above Kitchen banquette

Paint @ Suite entry doors 1 2 3 4 5 6 7 1

RONALD MCDONALD HOUSE, HALIFAX

LEVEL 4 LOUNGE: The Forest

RONALD MCDONALD HOUSE, HALIFAX

LEVEL 4 LOUNGE: The Forest

f su tes corridors

nel at wal opposite lift doors

throw pillows at Kitchen banquette Kitchen banquettes

il work

e Kitchen banquette

y doors

1 2 3 4 5 6 7

Materials

RSF1- LVT Flooring at room and Bathroom

General Paint

CT-3 Feature Ceramic Tile @ Suites Bathroom

CT-2 Ceramic Tile @ Bathroom

CNT3 2- Vanity Countertop

PLAM1- P astic Laminate @ Millwork

CNT3 1- bar countertop

Headboard upho stery

Fabric @ sofas

10 11 12 13 14

Fabric @ lounge chair

Fabric @ Swivel Chair

Fabric @ Desk chair

finishes at coffee table

3 4 6 7 5 1 2 Level 3 Buzz Puzzle Leve 2 BuzziPuzzle Level 1 BuzziPuzzle Leve 4 BuzziPuzzle 4 8 9 10 11 12 13 13 14

Accent Fabrics will tie in with the colour story of each floor Each room wil have a accent pillows as well as colourful BuzziPuzzles:

Inset carpet tiles (Interface FLOR) 1 2 3 4 5 6 7 8 9
RONALD MCDONALD HOUSE, HALIFAX SUITES' FINISHES OPTION 1- Dark Flooring

RONALD MCDONALD HOUSE, HALIFAX SUITES' FINISHES OPTION 2- Light Flooring

Materials

RSF1- LVT Flooring at room and Bathroom

General Paint

CT-3 Feature Ceramic Tile @ Suites Bathroom

CT-2 Ceramic Tile @ Bathroom

CNT3 2- Vanity Countertop

PLAM1- P astic Laminate @ Millwork

CNT3 1- bar countertop

Headboard upho stery

Fabric @ sofas

Fabric @ lounge chair

Fabric @ Swivel Chair

Fabric @ Desk chair

finishes at coffee table

Level 3 Buzz Puzzle Leve 2 BuzziPuzzle Level 1 BuzziPuzzle Leve 4 BuzziPuzzle 3 4 6 7 5 1 2 4 8 9 10 11 12 13 13 14

Accent Fabrics will tie in with the colour story of each floor Each room wil have an accent pillows as well as colourful

Inset carpet tiles (Interface FLOR) 1 2 3 4 5 6 7 8 9 10 11 12 13 14
BuzziPuzzles:

RONALD MCDONALD HOUSE, ATLANTIC TYPICAL SUITE

Suggest ay ng carpet ti e underneath the beds and run the LVT in the rest of the room to prov de a more residentia touch

The coffee table comes w th the opt on for a durab e Corian top The BuzziPuzzle found throughout the downstairs space offers a fun f exib e seat or acts as an ottoman In l eu of a corporate feel ng task cha r we are proposing a side cha r that can comfortably be pul ed into the seat ng group

Desk Light

RONALD MCDONALD HOUSE, ATLANTIC CORNER SUITE

Suggest ay ng carpet ti e underneath the beds and run the LVT in the rest of the room to prov de a more residentia touch

Swivel lounge cha r s a second lounge chair option Can just use n the Corner Suites or can use in the Typ cal Su tes as we l

Desk Light

RONALD MCDONALD HOUSE, ATLANTIC BF SUITE- PULL OUT SLEEPER SOFA

group to provide a more

pul out sofa

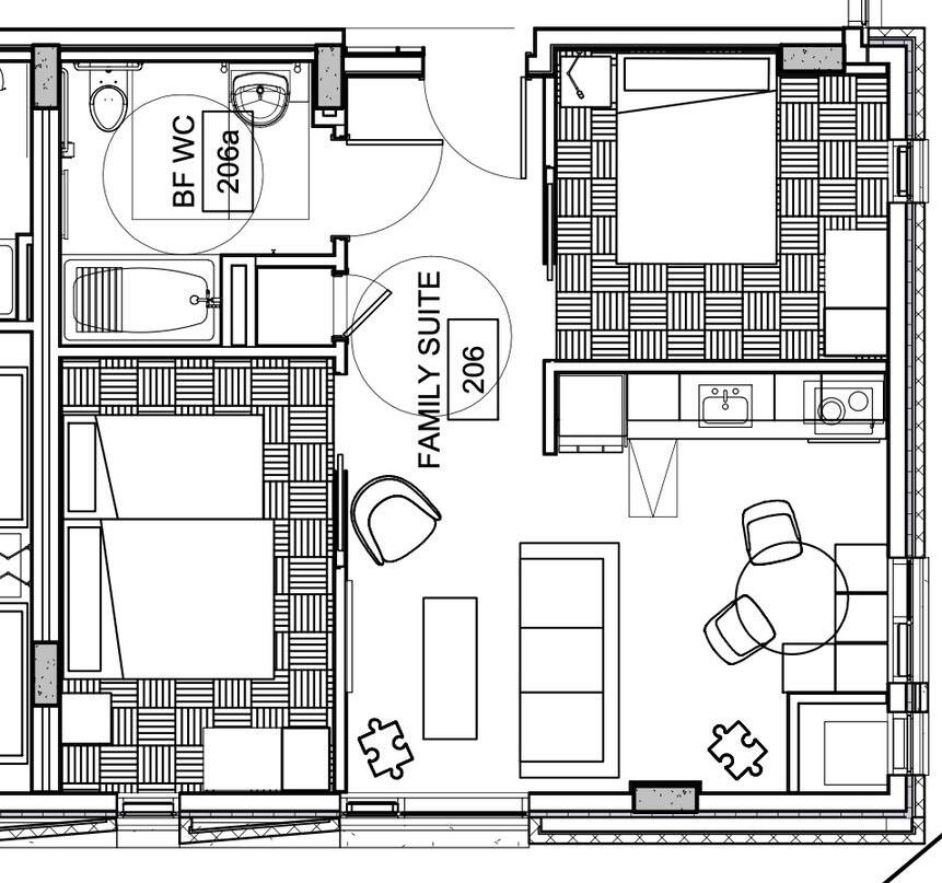
RONALD MCDONALD HOUSE, ATLANTIC FAMILY SUITE

Carpet t le in the bedrooms wi l help not only with noise but wi l g ve these rooms a softer, gentler feeling

Using the buzziblock bench he ps util ze the corner of this room A 42"round table al ows for two d ning/ desk chairs
"Storytelling and human connection is the ethos of my brand. At the core, these are the elements which truly bring life and soul to each and every product I design and project I create." -

Turn static files into dynamic content formats.

Create a flipbook
Issuu converts static files into: digital portfolios, online yearbooks, online catalogs, digital photo albums and more. Sign up and create your flipbook.