Arch Portfolio_Egor Hroz

Page 1

ARCHITECTURAL PORTFOLIO

EGOR HROZ

egorgroz6767@gmail.com

Egor Hroz
(98) 100 84 51 tg: @egorhroz CV
+380

About me

розвитку в архітектурній сфері, яке виражається в моїй

Work Experience

June - Aug 2023

Freelancer on Upwork Графічний

Sep 2021 - now

ArchiLife

Dec 2023 - now

Education

Skills

Revit

Archicad

Autocad

Twinmotion

Enscape

Sketchup

Adobe Photoshop

Adobe Illustrator

Adobe Indesign Advanced Intermediate Intermediate Advanced Advanced Basic Proficient Advanced Intermediate

Languages

Ukrainian

English

Ступінь Рік
(наразі 3й курс)
Університет
КНУБА бакалавр 2021-2025
Посада Роки праці Фізична особа Виконавець обмірів приміщень
Замовник
дизайнер
Голова дизайн відділу
Посада Роки праці Організація Посада Роки праці Native B1+ Вітаю! Я студент, який палко захоплюється архітектурою. На наступних сторінках ви зможете побачити деякі з моїх проєктів, котрі найбільш точно передають рівень моїх знань, і до яких було докладено багато зусиль на розробку. В архітектурі мені важливо не просто створювати форми, а також розробляти простори, які сприяють розвитку зв'язку та взаємодії між людьми, створюючи комфортні та функціональні середовища. Я маю прагення до постійного
готовності набувати практичного досвіду. Я завжди відкритий до вивчення і вдосконалення своїх навичок, задля створення ще більш естетичних, функціональних та інноваційних архітектурних рішень.
Компанія

CONTENT

KINDERGARTEN

project 1

MID-RISE BUILDING

project 2

KINDERGARTEN a

lovely space for childhood

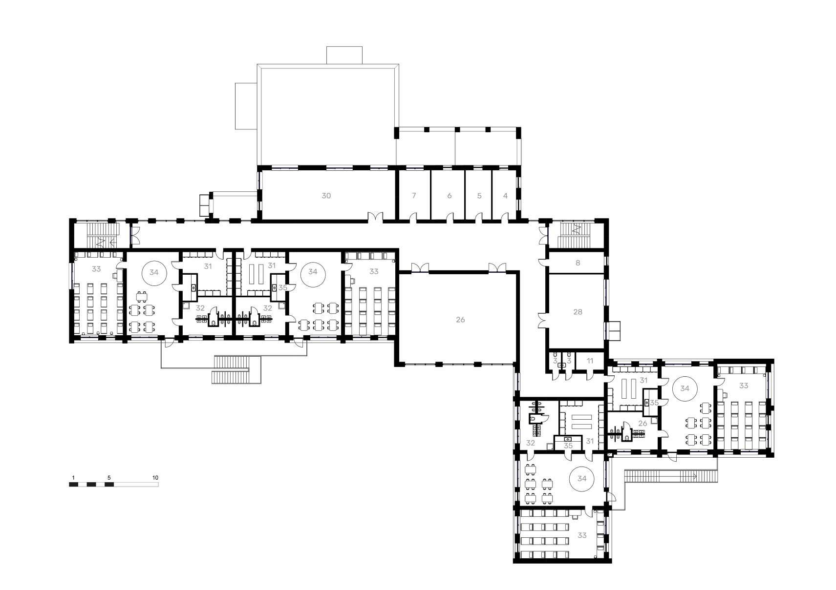
01 Проєкт закладу дошкільної освіти на 160 місць загального типу розташований на Троещині, серед житлової забудови. Архітектурно-планувальне рішення будівлі базується навколо дитячих осередків, поєднуючи в собі ігрові, службово-побутові, медичні й інші приміщення. У художньому образі враховано значність впливу архітектури на формування особистості дитини, це проглядається завдяки грайливій геометрії, яка використана серед арок, прямокутників й кіл. Задля більшої привабливості, й психологічного захисту дитини в проєкті наявний яскраво-помаренчевий колір, який додатково трансформую форму будівля, виявляючи її основні та акцентні елементи.
type march 2024 university project
year

1. Тамбур

2. Хол

3. Туалет для персоналу

8.

9.

12.

14.

15.

16.

7. Кабінет психолога
Кабінет фізрука
Комора
білизни
чистої
брудної білизни
10. Комора
Приміщення для
Сушильно-прасувальна
прання 13.
Медична кімната
Процедурна
Фізаотерап. кабінет
Ізолятор
Кухня з роздавальною ЕКСПЛІКАЦІЯ ПЛАНУ НА ВІДМІТЦІ +0.000 19. Мийна
посуду 20.
21.
камера 22. Комора сухих продуктів 23. Комора овочів
з душовою 27.
зал
Туалетна
Спальня
кімната 35.
відмітці
KINDERGARTEN PROJECT
17.
18.
кухоноого
Заготівельний цех
Охолоджуюча
24. Завантажувальна 25. Кімната персоналу
Спортивний
31. Роздягальня 32.
33.
34. Ігрова
Буфет План на
+0.000

3. Туалет для персоналу

4. Кабінет завідуючого

5. Кімната завгоспа

6. Методичний кабінет

7.

26.

на відмітці +3.600
План
Кабінет психолога
8. Кабінет фізрука
Кімната образотворчого мистецтва 29. Логопедичний кабінет 30. Приміщення ігротеки 31. Роздягальня 32. Туалетна 33. Спальня 34. Ігрова кімната
Буфет ЕКСПЛІКАЦІЯ ПЛАНУ НА ВІДМІТЦІ +3.600 9
Музичний зал 28.
35.
KINDERGARTEN PROJECT
11 Території закладу включає в себе: 6 дитячих майданчиків для дітей дошкільного віку, 2 - для ясел, зону юних натуралістів, ігрову, й також окремі спортивні майданчики для кожної з підгрупи.
Головний фасад KINDERGARTEN PROJECT

батьків та проведення різноманітних святкових заходів. На майданчиках для дітей

Заклад дошкільної освіти на 160 місць має окрему ізольовану ділянку, яка огороджена парканом висотою 1,6 м. З санітарно-захисною метою по периметру всієї ділянки влаштована рядова посадка дерев, що утворює захисну зелену смугу шириною 3 метри. Також передбачено наступні функціональні
забудови, групових майданчиків, спортивно-ігрова зона, зона юних натуралістів та господарська. Будівля розташована на відстані 25м від червоної лінії вулиць. Групові осередки є гарно інсольованими й розділені на дві вікові групи: ясла й дошкільнята, - перші з яких перебувають на першому поверсі будівлі. Біля головного входу влаштовано накопичувально-ігровий майданчик для
ясельного віку
а для дітей дошкільного віку - частково трав’яне, частково ґрунтове покриття. Господарська зона розміщена біля входу до виробничих приміщень. Бічний фасад Поперечний розріз 1. Заклад дошкільної освіти 2. Спортивно-ігрова зона 3. Груповий майданчик ясел 4. Груповий майданчик дошкільнят 5. Зона юних натуралістів 6. Господарська зона 7. Мусорні баки ЛЕГЕНДА ГЕНЕРАЛЬНОГО ПЛАНУ 13
зони: зона
використано трав’яне покриття,

MID-RISE BUILDING

year type

december 2023

02 Багатоквартирний житловий будинок середньої поверховості на 4 секції розташований на ділянці в місті Гостомель, напроти вулиці Остромирська, маючи на території наявну забудову - продуктовий магазин. У проєкті продумані зручні й функціональні планувальні рішення, що забезпечують максимальний комфорт мешканцям і гарний показник інсоляції. На фасадах будинку розташовано 3 типи вікон, які створюють між собою метричні ряди композиції. Перший поверх відведений під комерційні приміщення, а в підʼїзді мешканців будинку розташована кімната для охорони, колясочна та технічне приміщення електрощитової.
university project
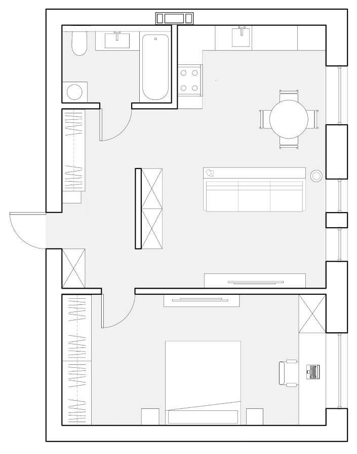
MID-RISE BUILDING PROJECT Планувальне рішення №1 для двокімнатної квартири План на відмітці +0.000 Коридор Санвузол Спальня 14,7 м² Вітальня 14,7 м² Гардеробна 3,3 м² Кухня 12,1 м² 10,9 м² 5,4 м²
17 Коридор Санвузол Спальня 20,3 м² Кухня-вітальня 26,5 м² 7,3 м² 5,4 м² План на відмітці +3.600 Планувальне рішення №2 для двокімнатної квартири
MID-RISE BUILDING PROJECT
19
Західний фасад MID-RISE BUILDING PROJECT
У проєкті використана секційна планувальна структура зі стінової конструктиної системою. Ділянка знаходиться в зоні 5-9 поверхової забудови із спокійним рельєфом. На території навколо будинку розташовані різноманітні зони для відпочинку та розваг. Це включає в себе дитячий майданчик, місце відпочинку дорослих, зелену зону, окремо відведені сміттєві баки, спортивний майданчик та місце для прогулянок з домашніми тваринами. Для зручності мешканців передбачені асфальтовані доріжки і паркові місця. Також наявні зелені насадження, квітучі клумби та дерева, які створюють природний баланс та сприяють здоровому й активному способу життя мешканців. Південний фасад Поперечний розріз 21 1. Будинок 2. Існуюча забудова 3. Парковка 4. Дитячий майданчик 5. Спортивна зона 6. Сміттєві баки ЛЕГЕНДА ДО ГЕНЕРАЛЬНОГО ПЛАНУ

THE END

Turn static files into dynamic content formats.

Create a flipbook
Issuu converts static files into: digital portfolios, online yearbooks, online catalogs, digital photo albums and more. Sign up and create your flipbook.
Arch Portfolio_Egor Hroz by Егор Грозь - Issuu